
1 minute read
COMMUNITY GALLERY
Spring 2022
INSTRUCTOR: ZAID KASHEF ALGHATA
Advertisement
COORDINATOR: HAL HAYES, MARY LOU ARSCOTT IN COLLABORATION WITH HENRY YOUNGREN
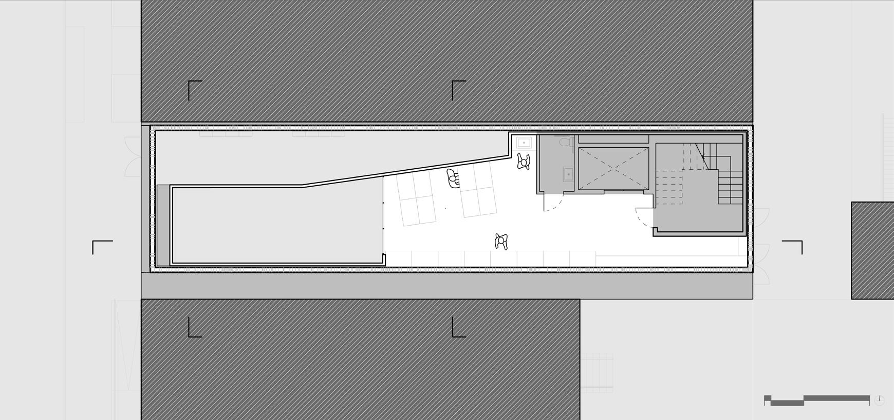
This Community Gallery, located on South Craig Street is designed as a vertical gallery and places a lot of focus on the interior even though it is a facade project. Our focus on the interior in designing allows for more interactions with the facade and creates a conversation around gallery orientation.
The process of our design focused on making different interior massings, where we designed massings that would allow for interactions with the outside and creating exposed corridors. Our bowtie shape design would allow for corridors with skylights and a narrow hallway in between. We utilized dropped ceilings and sloped hallways to further convey the directionality of our geometry and guide the guests.
The building includes area for the school of art as well as invite the rest of the community. The gallery visitors enter through a narrow hallway which leads up to the main gallery which stretches across three levels with a slight look at a skylight. Whereas the second and third level is where the school area is mainly located but is opened to seeing the artwork on display as well.
Enclosure Diagram








Physical Model






Model In Site







