MZA Architecture-Hospitality

Page 1

Hospitality

67

9th and Howell, Seattle

Seattle, Washington

Client: R.C.HEDREEN CO.

Function: Retail/Hotel

Size: 436,000 sf

Number of Levels: 34 Levels

Building Height: 420 f t.

Scope of Services: Architectural Design

Programming

Space Planning

Project Management

Status: Preparing for the MUP Review (Schematic Design); Expecting to break ground in 2020

69 Hospitality
70

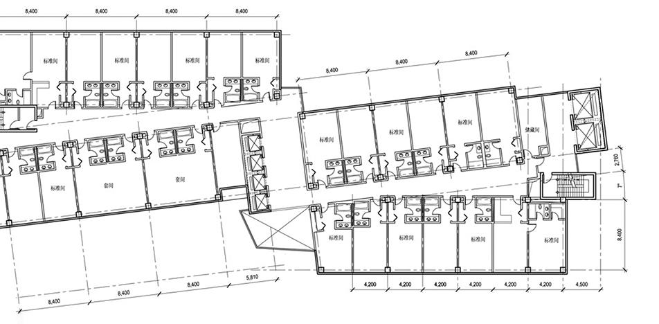
SITE PLAN NOTE:

The blue dashed line indicates the area associated with the Ninth and Howell project.

Work outside of the blue dashed line is associated with the adjacent 808 Howell project site currenly under construction.

Work in th Right of Way has been approved and permitted through SDOT via the 808 Howell Project. It will be installed as shwon and approved with that project already under construction.

SITE PLAN

ELEVATIONS

DESIGN REVIEW MEETING _ 09/04/2018
HOWELL
_
NINTH &
SEATTLE
SDCI PROJECT #3022135
1 2
9TH AVENUE 1 71 Hospitality

Allée Elm (outlets @ base of tree - all locations along 9th Ave.)

Sculpture

Property Line

Building Canopy

Dining Patio

Sidewalk, 9’ width

Bike Racks (5) HOWELL STREET

Bowhall Red Maple (outlets @ base of tree - all locations along Howell St.)

Stone Paving (veh)

Stone Paving (ped)

Concrete Paving Vehicle ingress only

Bollard Building Canopy

2
72
NTS

Echo Falls Golf Club

73 Hospitality

Snohomish County, WA

Client: N&M Enterprises

Function: Golf Club and Lodging

Project Size: 113,000 sf

Scope of Services: Master Planning

Concept Design

Schematic Design

Design Development

Constr uction Documents

Construction Administration

74
75 Hospitality
76
77 Hospitality
78

Location Everett, Washington

Client: Columbia Hospitality/ AM Wealth LP

Function: Hospitality

Project Size: 100,000 sf / 140 Rooms

Scope of Services: Site Feasibility Study

Program Analysis

Master Planning

Schematic Design

Design Development

Constr uction Documents

Construction Administration

79 Hospitality
80
Everett Waterfront Hotel
81 Hospitality
82
83 Hospitality

Hyatt Regency Hotel at South Port

Location: Renton, Washington

Client: Seco Development Co.

Function: Convention Hotel

Project Size: 360,000 sf (347 Rooms)

Number of Levels: 12 Levels

Scope of Services: Building Planning

Architectural Design

Construction Documents

Construction Administration

84
85 Hospitality

Team roles while employed at MG2:

Ming Zhang: Design Partner

Craig Davenport: Principal in Charge

Kant Chutikul: Senior Designer

Frank Lo: Senior Designer

86
87 Hospitality
88
89 Hospitality

Hyatt at Olive 8

Location: Seattle, WA

Client: R.C. Hedreen Co.

Function: Hotel/ Residential

Project Size: 932,000 sf (229 Units)

Number of Levels: 39 Levels

Building Height: 460 f t. (140 m)

Scope of Services: Master Planning

Architectural Design

Construction Documents

Construction Administration

Team roles while employed at MG2:

Ming Zhang: Design Partner

Craig Davenport: Project Manager

Frank Lo: Senior Designer

90

Seattle Grand Hyatt Hotel

Location: Seattle, WA

Client: R.C. Hedreen

Function: Hotel/Convention

Project Size: 932,000 SF / 425 Hotel Rooms

Scope of Services: Architectural Design Interior Design

91 Hospitality

Team roles while employed at MG2: Kant Chutikul: Project Designer

92
93 Hospitality
94

Bellevue Club

Creating a new “front door” to an existing health club, Craig Davenport managed this complex project that included a hotel, underground parking, and tennis courts. The new main entry was created around a circular drive and fountain, enhanced by a contemporary lobby in limestone and wood finishes. From the entry, guests are directed to the club or hotel check-in areas, including the hotel’s “Living Room” that oversees the new tennis courts. Surpassing any other luxury hotel in the area, the guest rooms feature high ceilings, balconies with french-style doors, jetted tubs, and contemporary interior furnishings.

Challenging land use restrictions for parking, landscaping, and building height dictated a design that maximized the number of rooms on the property, without sacrificing the character of the original structure. Working with the City of Bellevue, Craig Davenport was able to meet all of their criteria and meet the Owner’s demands for luxury accommodations.

The Bellevue Club Hotel has been recognized as the Gold Key Winner for Hospitality Design by Hospitality Design Magazine.

Work performed by Craig Davenport while employed at Callison

95 Hospitality
96

Bellevue, Washington

Client: The Bellevue Club

Function: Hospitality

Size: 70,000 sf (75 rooms)

Services: Master Planning

Architectural Design

Construction Documents

Construction Administration

97 Hospitality
98
99 Hospitality
100

W Hotel Seattle

Location: Seattle, WA

Client: Star wood Hotels and Resorts

Function: Hotel / Meeting Space

Project Size: 26 Floors

336 Hotel Rooms, 88 Suites

Scope of Services: Architectural Design

Interior Design

101 Hospitality
102
103 Hospitality
104

Sanjia Resort Mixed-use Project

Location: Shanghai, China

Client: Dayuan Jin

Functions: Spa - 10,500 m²

Retail - 21,850 m²

Boutique Hotel - 17,500 m² (255 Rooms)

Luxur y Hotel - 30,650 m² (390 Rooms)

Planning area: 82,500 m²

Scope of Services: Program Analysis

Master Planning

Schematic Design

105 Hospitality
106
107 Hospitality
108
109 Hospitality
110
111 Hospitality
112
113 Hospitality
114
115 Hospitality

Thousand Lakes Blue Water Resorts

Location: Zhejiang, China

Client: N&M Enterprises

Function: Resort/ Residential/ Hotel/ Service Apartment

Doubletree Conference Hotel (384 rooms)

Conrad Spa Hotel (79 rooms)

Doubletree Boutique Hotel (125 rooms)

Project Size: 70,000 m²

Scope of Services: Site Feasibility Study

Program Analysis

Master Planning

Concept Design

Schematic Design

116
117 Hospitality
118
119 Hospitality
120
121 Hospitality
122
123 Hospitality
124
125 Hospitality
126
127 Hospitality
128
129 Hospitality
130
131 Hospitality

Fudan Crowne Plaza

Location: Shanghai, China

Client: Shanghai Shangtou Investment Co.

Function: Hotel/Residential

Project Size: 35,574 m²

Scope of Services: Concept Design

Schematic Design Construction Documents

Team roles while employed at MG2: Ming Zhang: Design Partner

132
133 Hospitality

This 5-star hotel was designed to harmoniously blend into its contextual surroundings. It offers 309 elegantly appointed guest rooms with 34 suites, each designed in a contemporary style. Other functions include restaurants, a multifunctional hall, conference facilities, and swimming pool and fitness center.

The building’s orientation conserves energy and a glass-roofed lobby captures an abundance of natural light. All public amenities orientated toward a central garden, the terra-cotta facades harmony with other red brick campus buildings. The hotel design is well blended with the natural beauty of its surrounding.

134

Turn static files into dynamic content formats.

Create a flipbook
Issuu converts static files into: digital portfolios, online yearbooks, online catalogs, digital photo albums and more. Sign up and create your flipbook.