Skip to main content

MJA

Page 1

Cover

(still not final)

education

experience

award/volunteering

language

skills

(Table of contents)

HALE PU’UHONUA

ADDITIONAL RENTAL UNIT

APARTMENT

HCC STUDENT RESIDENCE BUILDING

HCC MULTIPURPOSE BUIDLING

SELECTED EXTRAS

PAST ASSIGNMENTS

PHOTOGRAPHY(nature)

Table of contents

still brainstorming to make more unique

Hale Pu’uhonua

A Mauna Kea Fairways South Subdivision Project

Hale Puuhonua is hypothetically located at the Mauna Kea Fairways South, Waimea, Hawai’i- an established neighborhood consisting of upscale, custom-designed houses The dwelling sits on the upland side of the golf course and is carved into the sloping terrain.

Large windows and doors that open out directly into the views are incorporated to avoid boundaries that disconnect the homeowners to their incredible environment. A small open-tosky courtyard is introduced to invite a lot of natural light and natural ventilation.

Consideration of views was strongly emphasized by carefully positioning and maximizing openings to augment the great outdoor, so that wherever you are in the house, homeowners get a glimpse of the natural environment.

Hale Puuhonua can be described as a dwelling that honors traditional Hawaiian architecture and celebrates modern architecture. The house is horizontally laid out to have a proportion that harmonizes with the surrounding site, as well as to have the site maximized.

01

sketches/final sketch/still have to incl. preliminary sketches/concept

interior renders/have to make adjustment to make color more subtle

interior renders/have to make adjustment to make color more subtle

money

shot/exterior perspective

money

shot/exterior perspective

will make adjustment for collage

Kaua’i ARU

Affordable Housing Project in Kaua’i

The 660 square feet ARU is hypothetically built in the Wailua, Homesteads in Kauai, which is noted for its sweeping views of the Nounou Forest Reserve and cooling breezes from the northeast trade winds.

One of the challenges for this project was to achieve a simple but well-designed house in a cost-effective approach which is why the house is designed to be affordable but without sacrificing aesthetics and comfortability.

The ARU boasts a minimalist contemporary look blended with local architectural style. 60-30-10 rule is implemented for the exterior which is composed of complementary materials like white paint, olive green vertical sidings, and wood Moreover, the ARU is entirely elevated using a post and pier foundation to allow rainwater to flow through.

02
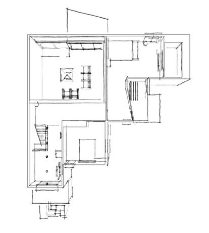
location/site plan/floor plan

preliminary to final sketches

interior renders/have to make adjustment to make color more subtle

exterior render/color adjustment/collage

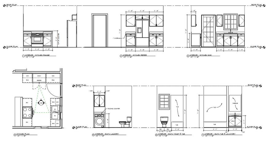
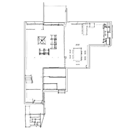
Apartment A Renovation Project

Body text

03
interior renders/have to make adjustment to make color more subtle

preliminary to final floor plans

to make adjustment to make color more subtle
interior renders/have

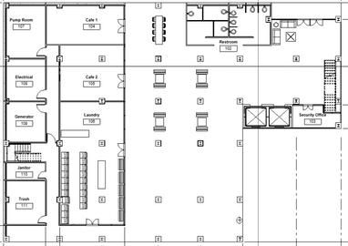
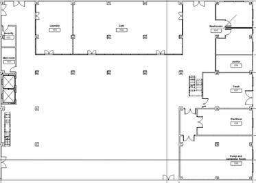
HCC Buildings

HCC Student Housing and Multipurpose Building

Body text

04
project site analysis
sketches drafts
Final
details/sections

still need to rendere/collage exterior perspectives showing concept

Selected Extras Bus Shelter Coffee Stand 05

Selected Extras

Pop-up Shop

Dog Park

06

Selected Extras

Technical Drawings

07

Selected Extras

Technical Drawings

Extras
Photography
for Inspiration) 08 US 2023
Selected
Nature/Travel
(Travel

US 2023-24

NZ 2022 PH 2020

Turn static files into dynamic content formats.

Create a flipbook