
1 minute read
BRAC BRANCH OFFICE-PROTOTYPE
Type: Professional Centre for Inclusive Architecture and Urbanism (Ci+AU) Status: Completed, 2019

Advertisement

Role: Management of eight branch office design, 3D modelling, rendering, construction drawings, consultant coordination and top supervision
Lead Architect: Adnan Z Morshed
Team Members: Shafaiet Mahmud, Tahseen Reza, Samiur R Bhuiyan, Tasmia Kamal, Saad M Kaikobad
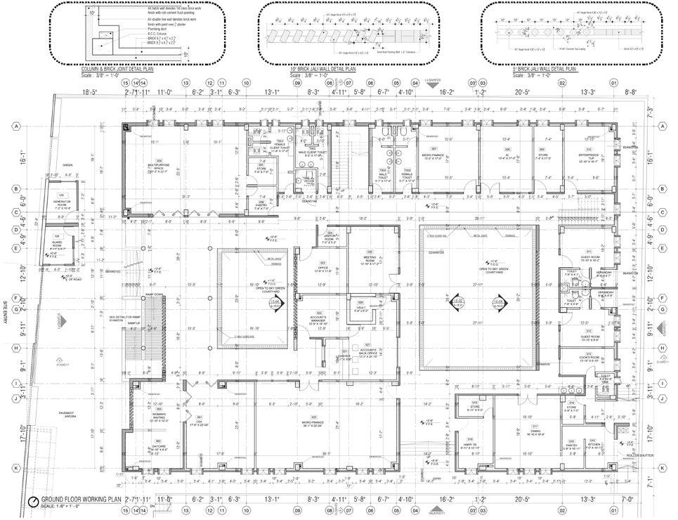
Our primary design challenge was to conceive a compact office building with a clear articulation of different functional zones, both horizontally and vertically. We needed to create a sequential spatial diagram, from the public (beneficiary areas) to the private (staff accommodation and dining), all intermingled with a system of moderately-sized courtyards, facilitating natural light and air ventilation. As we imagined an inclusive, healthy, and ecological life-style office environment, we also endeavoured to create a visual language that people across Bangladesh would readily identify with BRAC and its mission of social inclusiveness. That visual language took inspiration from three archetypal features of the Bengal pastoral landscape: the rudimentary Bengal hut, the solitary tree in the agricultural field, and the horizontal sweep of the Bengal delta.
Construction detail drawing: AutoCAD



Elevation: AutoCAD, Photoshop
3D modelling and rendering: Sketchup, Lumion and Photoshop









