
1 minute read
URBAN BUSINESS HOTEL
Design Of A Convention Hospitality
Academic: Team Work ARC 501 Design Studio IX Duration: 12 weeks [Spring 2016]
Advertisement
Role: Individual
Instructors: Bashirul Haque, MD Faruk, Huraera Jabeen and Cyrus S Khan
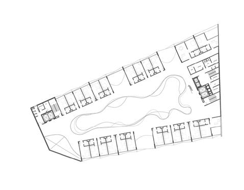
The idea was to create an introvert space for the business and city users of the hotel. A public walkway through the hotel serving the surrounding areas. The water body creates a barrier between the two entities but ensures a visual connection. It brings back the presence of former large ponds around the Kuril area. It also provides an evaporative cooling from the South. The forms were placed according to site considerations and viewpoints around the site. Floating masses above Waterscapes were intended to give an essence of our demography- flood plain. An atrium incorporated centrally for a rural arbitrary sense of walkways through fluid corridors on the bay and lobby area then terminating into sky gardens.
Floor plans

The site is situated in a dense urban context. An area of four acres within master plan of Jamuna Future Park surrounded by southeast Asia’s largest shopping mall, an amusement park and commercial strip on the road side Progoti Shoroni is full of huge traffic all the time of the day connecting to the north of the country.
However ,there is a declination of existence of water body around the area in the last few years. Therefore, design development involved proposal of large water compound to serve the neighbourhood as well.


Form development by considering minimum obstruction to surrounding buildings. Arbitrary lines were generated by locating vantage points. These lines were derived using factors from site analysis such as noise level, visual connection.







Suite Details















