From Monastery to City State
The original space for learning was condensed into a virtual one, and the work time required to continue learning was reduced. Anyone can learn all kinds of knowledge through the Internet. With this development, it is foreseeable that in the future, the development of 5G and the joining of AI will greatly change the relationship between living and learning. In the future, because of the development of technology, the living conditions can be gradually completed by mechanized auxiliary facilities and minimize time and cost, so the time and space that people can use in learning behavior will gradually expand. Living will be condensed and become a part of the learning field.
Thinking about the future evolution of NCKU, we return to the essence of learning. The core value of learning behavior lies in the process of exchanging thoughts and values with each other through words, and this definition coincides with the definition of “Action” in Hannah Arendt's The human condition for the conditions that constitute humans. Therefore, we hope that through “The human condition" to clarify the differences and positioning future learning behavior and live acts.
The Human Condition In Hannah Arendt's "The human condition", human behavior is divided into three levels: Labor, Work, and Action. "Labor" is the closest activity between humans and animals. It is about survival. The result also died out together with animal life. "Work" means that humans can perform higher-order activities with different human characteristics from animals. It is related to life because its results can be relatively durable. At the same time, it also creates a world where people can interact with each other and define their own identity. The world we have created and that exists for us and for future generations. As for what she calls "Action", it must be political in nature and the only meaningful form of immortality-immortality is not an attempt to escape from the present life and enter eternal life, but to create an event that will affect future generations. Its significance is only for future generations Existence can continue to be extolled, which is the way that personal life can be immortal. The most important difference between humans and other animals is that humans have the level of "action". When a group of people work together and complete one thing, they will accumulate experience and inheritance, and make people continuously progress.




formed by the existing mass also redefines the relationship of the campus mass, creating more possibilities and forms, breaking the existing campus order, and establishing a campus that is constantly disappearing and growing. Relations with cities have erased the boundary between campus and city, making NCKU not only a campus in the city, but also a knowledge field belonging to the city
Learning Scenario in The Future
After basic education, individuals entering the university begin to connect with others through a large number of other people's academic publications and interesting courses, which stimulate the in-depth study and discussion of the issues they interesting in multiple and alternate publications.
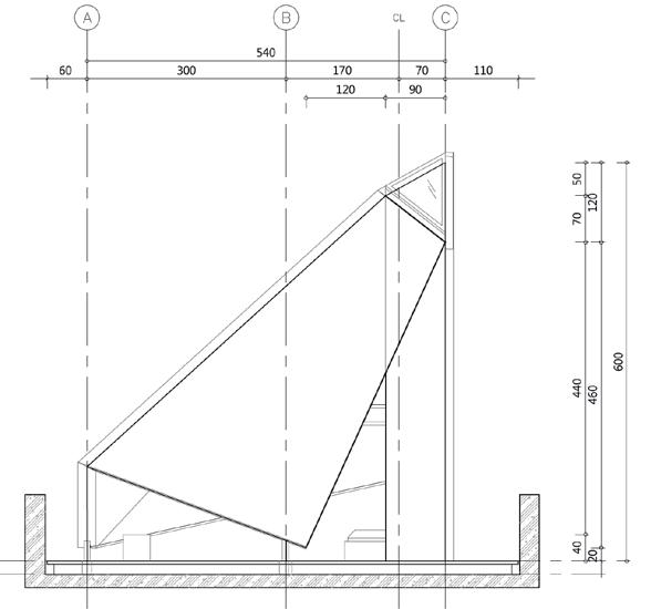
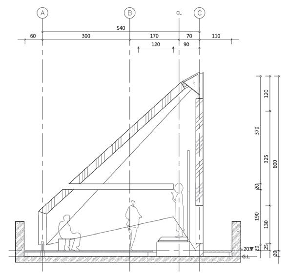
capsule completes the labor
學習、論述、行動
Learning /Discourse /Action
負責項目:
議題討論、論述架構規劃、圖面計畫、海報及簡報排版、簡報方式計畫
這次全系競圖討論對未來學習與生活詮釋並以百年後的成大為題。藉此釐清了自己對於大學中所學到且 可能可以終身受用的生活概念,藉以漢娜鄂蘭《人的條件》一書作為論述基礎,一生中所追求的包含基本週 期性的生理生存、有目標的勞動,以及核心——抱有群體理想性的行動。
建築系教育中最重要也佔生活主要部分的莫過於每次面對議題的討論、釐清觀點、呈現論述、接續討論
這樣循環的過程,課程中必定對於城市、對建築、使用者、對空間形塑有所討論,但這個習慣亦影響同學彼 此討論及分享觀點的模式。當大家生活與知識差異度越高的同時,討論、產生論述、甚至研究著應該一起完 成什麼的次數就越加頻繁。是一種同學間難得的衝力,是我認為在大學教育中最重要的獲得。
把自由裝箱
Freespace -2018 Venice Biennale Taiwan Exhibition design competition
負責項目:
實景觀察拍攝、概念發想、說明圖面製作
提案以台灣傳統市場及生活的再現為核心,以魚的視角呈現,除了借魚的視角看見台灣社會文化縮影外,
也同時表現出自己對社會中的理解,以魚作為比喻,看似是魚生卻也同時是人生。透過其中不同場景設計, 希望在威尼斯傳達台灣當今的文化或甚是人生哲學的思考。
圖面透過市場中觀察的照片collage 出空間呈現時的主要情境。而diagram 呈現魚在捕獲上岸後的一連 串時間經歷,最終將人類置入,講述人看魚、人是魚、人看見自己的過程。
由時雅文學姊指導/共同製作 展場規劃由陳品蓁老師指導規劃
在安平漁市的觀察從半夜十二點前一路觀察到隔 天早上近五點天色漸亮之時,將時間分成一個半小時 一組,就可以看到進貨準備、客人尖峰期、對帳、最 後收拾離開漁市。我們記錄下各個角色的神情,並試 圖以影片與聲音記錄下漁市場的重要元素,氣味。
安平漁市場以批發為主,整個市場交易繁忙,緊 繃氣氛直到漆黑的四周泛起藍白色曙光,大家步調才 慢了下來,找張塑膠椅、點根菸。或是到一旁販賣食 物的雜貨店,點了碗泡麵、一罐氣泡飲料。鐵皮屋簷 下,雜貨店老闆正跟批貨的店家聊著天。
個人作品集
Record of life
透過作品集對大一及大二的生活與成果做總結, 大學前半段除了基本學業外,也花了一些時間嘗試自 己有興趣的事。
大一時常自己開車去台南的鄉下看魚塭。大二修 中文系戲劇製演課,因而參與了一場表演準備到演出 的過程。時而拿起相機記錄下生活、同學、一些顏色。
參與作品
other projects
《感覺有點奢侈的事 》 黃麗群 常覺得當代華文文學在現代讀書潮流之中 是相對小眾的,因為翻譯文學如此強勢。而以
大二設計期末展總召
大二期末展是在設計組畢展前最後一個全年級設 計展覽。接下總召後與招集的策展小組一同籌備、每
週進度匯報,從展場規劃、宣傳、工作流程到最終展 期開始,幸運能與四人策展小組一同完成! 題目「大爆設」是當時全班票選以作為整個展覽 主題,亦可說是大家對當時設計狀態的詮釋。
《為什麼孩子要上學 》 大江健三郎 在學期初,經過一段充電後,也希望能夠 有些什麼新氣象的改變,因此讀這本書就再適 合不過了。 書中主要描述作者自己對學習的習慣,也 推薦了不少包含日本跟俄羅斯等國家的文學作 品,並加之評論,其中因寫作對象定為青年, 所以內容淺顯易讀。 另外書中時不時提到作者的童年,能看到 一些對戰後日本的描述,雖是些日常的事情, 但非常有趣。
暖的衝勁,很適合在雨過天晴時 聽,振奮人心的旋律、歌詞,可 以陪著渡過很多個低潮。當決心 要開心的再繼續過下去時,就讓 柚子陪著,更有勇氣的微笑。
科洛弗10號地窖 10 Cloverfield Lane, 2016
推薦此部最主要的原因,是它從頭到尾毫無冷場的懸疑驚悚! 一個主要的空間場景、三名人物,設定如此簡潔更是厲害之處。 事件接連不斷,在獲得愈多資訊的同時,觀眾也和主角一樣無可避 免地產生各種猜疑和計算 當然結局或故事寓意可能就見仁見智了。 同步推薦相關作品:柯洛弗檔案,Cloverfield, 2008。
編輯股系刊編輯
本書將與歷史主流思想直接衝撞。但書中描述 的許多觀點值得思考,也許能夠接受並思考各 種論點就是在這塊島上生活最大的禮物吧。總 之雖是本讀了會想讓人闔上的書,但卻又因為
黃色潛水艇作為一部1960 年代的動畫電影,雖不以技術聞名, 但以現今的眼光而言, 畫面與歌曲仍然具有衝擊性與可觀賞性。 而作為奇幻電影,縱使題材可能老套,但其表現手法與對白總 是引發思考,在反戰年代的象徵總是具有背景含義,也讓現在的我
關係,推理成分挺高。 而故事很會抓人的弱點,總知道什麼時候是人們最會多想的情
大二在編輯股作為新進股員總能聽到學長姐們聊 一些對文學、近期生活、文字編輯等等的閒聊。書看 得不快的我,也因為要做書籍推薦專題而督促自己多 看點書,並且嘗試起文藝推薦的論述工作,如何描述 電影、書籍、音樂。挺喜歡跟編輯股學長姐們一起想 系刊方向、聊專題內容的清談。
2020 X-site競圖_ㄟㄟ
河樂廣場常設展展覽設計
像是電子紙、紙管、木棧板等進行 創作。
電子紙能依據使用情境,以程式設 定和控制變化的時機和模式,故不 只有藝術表現,也能兼具功能性,
因為品蓁老師的邀請,有了幾次參加實際競圖或 設計的機會。雖然工作項目以圖面製作為主,然而老 師及放開建築實驗室成員總是跟我們講解清楚目前的 工作進行狀態,所以在幾次密集趕圖的同時也看到這 些工作所需先行做的準備。
這是在畢業送舊晚會上和自己大學好友的合照。
我覺得自己是個很幸運的人,不論是出生的家庭、身旁的同學、遇到的長輩,因為大家對 我的信任與支持,我不論投入在做任何事時總能保有這個燦爛的微笑。
大學教授曾說過從成大建築畢業,我們必須抱有回饋社會的責任。我想了很久自己到底能 帶給社會什麼,我猜想就是認真之餘給予一份溫柔、一份溫暖跟這個微笑!
聯絡資訊
姓名:李牧凡
手機:0939546734
電子信箱:lee.mf508@gmail.com