Corrie Machado Portfolio

Page 1

CORRIE MACHADO

Hospitality Healthcare Business 2023

Hospitality

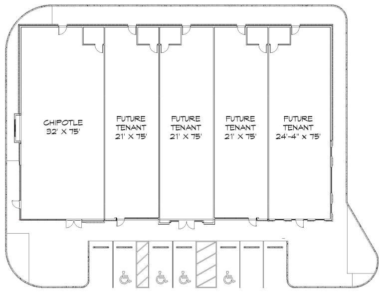
Chipotle Retail Building Harrisonburg, VA
Proposed Floor Plan
Charlie’s Cafe Norfolk, VA

ADA and Space Planning Improvements

PROPOSED SECOND FLOOR PLAN

PROPOSED FIRST FLOOR PLAN

Chicho’s Pizza Virginia Beach, VA

Interior Design and Branding

Mary Washington M.O.B. Stafford, VA Healthcare
C.R.M.C. Emergency Chesapeake, VA

Phasing Plan

CHESAPEAKE REGIONAL MEDICAL CENTER EMERGENCY

DEPARTMENT RENOVATION

Project Responsibility

Develop interior architecture throughout E.R. including Waiting Room, Exam Rooms, Nurse Stations, Corridors , Child Play and Bathrooms. Developed design for walls, ceilings, casework, floors, furniture & ADA signage. Selected finishes for interior, furniture & signage. Developed construction drawings in AutoCAD Architecture including: floor plans, Wall elevations, ceiling (plans & details), casework (elevations, sections & details), schedules, ADA signage (location plan, elevations, details & schedule) and phasing plans.

Hospice Virginia Beach, VA
Sentara

Space Planning

SENTARA HOSPICE RENOVATION

Designer for interior architecture including Living Room, Sleep Rooms, Nurse Station, Waiting Room, Corridors, Bathrooms and Employee Break Room. Developed design for walls, ceilings, casework, floors, furniture & window treatments. Selected finishes for interior and window treatments. Developed construction drawings in Revit including: floor plans, wall elevations, ceiling (plan & details), casework (elevations, sections & details), and schedules.

Hospitality Business

Decisions Virginia Beach, VA

Construction Drawings

Construction Drawings

Vtyal Studios Richmond, VA

The Language Group

Virginia Beach, VA

B A D C
NEW WORK PLAN DEMOLITION PLAN
Speed Club Center Newport News, VA
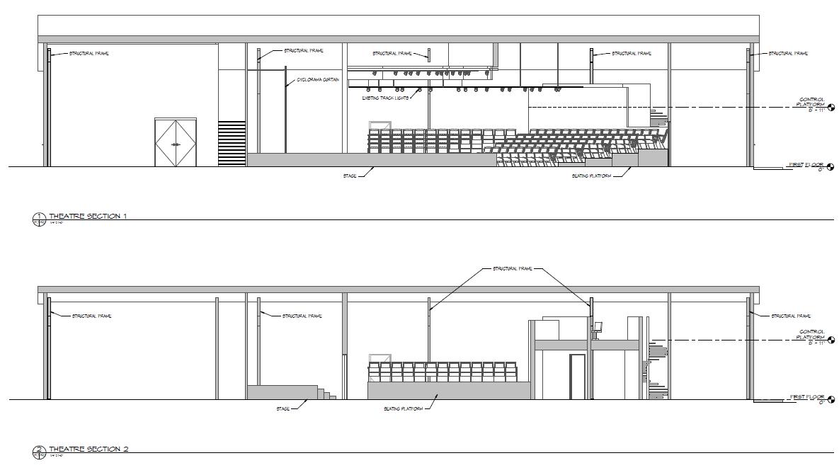
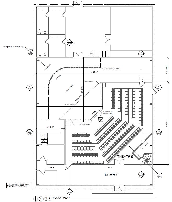
Pro Bono Work The Little Theater Virginia Beach
Student Work Hampton University

Turn static files into dynamic content formats.

Create a flipbook
Issuu converts static files into: digital portfolios, online yearbooks, online catalogs, digital photo albums and more. Sign up and create your flipbook.