Professional Portfolio

Page 1


MORGAN JENSEN

PORTFOLIO

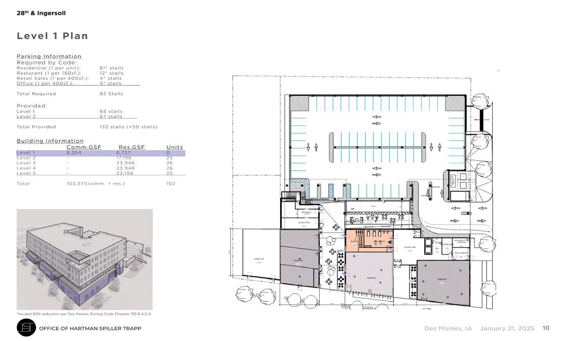
28TH & INGERSOLL IS A MIXED-USE APARTMENT COMPLEX THAT REVITALIZES A GROWING DISTRICT BY REIMAGINING EXISTING STOREFRONTS. THE PROJECT BLENDS MODERN LIVINGSPACES WITH RENOVATED COMMERCIAL AREA, CREATING A VIBRANT COMMUNITY HUB. DESIGNED FOR EMERGING PROFESSIONALS, IT OFFERS SUSTAINABLE HOUSING WHILE SUPPORTING LOCAL BUISNESSES AND ENHANCING THE NEIGHBORHOOD’S CHARACTER.

MAXWELL RESIDENCE

THE MAXWELL RESIDENCE WAS A FULL REBUILD FROM THE FOUNDATION UP. AFTER THEIR HOME WAS SEVERLY DAMAGED BY A TORNADO, THE FAMILY APPROACHED US WITH A UNIQUE REQUEST: TO RECREATE THE ESSENCE OF THEIR ORIGINAL HOME WHILE REIMAGINING THE LAYOUT AND FINISHES TO BETTER SUIT THEIR CURRENT LIFESTYLE AND REFLECT A MORE MODERN AESTHETIC.

LAMPE RESIDENCE

WEST DES MOINES, IA

FOLLOWING A SUCCESSFUL RENOVATION OF THE PRIMARY SUITE, THE LAMPE RESIDENCE PRESENTED A NEW DEISGN OPPORTUNITY: AN ENTRY ADDITION THAT WOULD CELEBRATE THEIR KOREAN HERITAGE WHILE ENHANCING THE HOME’S SENSE OF ARRIVAL. THE DESIGN INCLUDES A SHELTERED OUTDOOR SEATING AREA THAT INVITES GATHERING AND REFLECTION, SEAMLESSLY BLENDING TRADITIONAL INFLUENCES WITH A MODERN ARCHITECTURAL DESIGN.

TRACY RESIDENCE

CUMMING, IA

TRACY RESIDENCE BEGAN AS A 2 STORY 1,318 SF. HOME. THE PROJECT INCLUDES A FULL REMODEL AND A 7,411 SF. ADDITION TO ACCOMODATE A GROWING FAMILY AND THEIR LOVE FOR ENTERTAING, WITH A FOCUS ON SPACIOUS, MODERN LIVING.

LEA RESIDENCE BONDURANT, IA

THE LEA RESIDENCE IS A FULL-HOME, REIMAGINED FROM THE BASEMENT TO THE SECOND FLOOR. THE DESIGN FOCUSES ON RECONFIGURING THE EXISTING LAYOUT TO BETTER SUIT THE FAMILY’S DAILY LIFE WHILE TRANSFORMING THE HOUSE INTO THEIR DREAM HOME. A LARGE SHOP ADDITION, CONNECTED BY A NEW BREEZEWAY, ENHANCES BOTH FUNCTIONALITY AND FLOW-SEAMLESSLY TYING TOGETHER WORK, STORAGE, AND LIVING SPACES IN A COHESIVE, MODERN DESIGN.

Turn static files into dynamic content formats.

Create a flipbook
Issuu converts static files into: digital portfolios, online yearbooks, online catalogs, digital photo albums and more. Sign up and create your flipbook.
Professional Portfolio by Morgan Jensen - Issuu