MassLabs-BuildLabs Strategy 2025

Page 1


MassTimber

The Future of Sustainable, Off-Site Construction

To create graphic standards and narrative frameworks to improve our team’s communication towards better collaboration and project impact.

To create graphic standards and narrative frameworks to improve our team’s communication towards better collaboration and project impact.

Objectives Context Opportunities Approach

Discussion

To establish a studio that champions Mass Timber construction—not as an end in itself, but as a means to deliver high-performance buildings that excel in quality, cost-efficiency, and deliverability. By leveraging BuildLabs' expertise, the studio aims to create versatile, holistic solutions adaptable to diverse contexts while serving as a valuable resource for the broader design community.

The MassLab Studio— a collaborative ecosystem strategically aligned to empower design professionals in envisioning and delivering innovative, sustainable, and high-performance solutions across diverse project types and scales.

Strategic Alignments

Values

Innovation

Sustainability

Experience

Balance

Trust

Collaboration

Collaboration

To create graphic standards and narrative frameworks to improve our team’s communication towards better collaboration and project impact.

“..paths to work together..”

“..find solutions..”

“..meaningful impacts..”

“..in the built space..”

“..mutual discovery..”

“..establish a studio..”

“..user platform..”

“..project types..”

Opportunity

"The global cross laminated timber (CLT) market size was estimated at USD 1.17 billion in 2022 and is expected to grow at a compounded annual growth rate (CAGR) of 14.9% from 2023 to 2030. Superior design flexibility and faster installation processes in comparison to other building materials are likely to benefit the industry over the forecast period."

Triple Bottom Line

To create graphic standards and narrative frameworks to improve our team’s communication towards better collaboration and project impact.

Transformative Impact

Innovation Experience Sustainability

Mass Timber enables prefabrication and modular construction. MassLab will leverage BuildLabs’ systems to develop advanced, factorymanufactured home solutions.

To create graphic standards and narrative frameworks to improve our team’s communication towards better collaboration and project impact.

Mass Timber is sustainable, sequestering carbon, reducing emissions, and using renewable resources. MassLab will lead in ecofriendly construction.

Balance

Mass Timber balances cost, quality, and time. MassLab maximizes efficiencies and long-term benefits, aligning with BuildLabs’ focus on delivering exceptional value.

BuildLabs’ expertise in prefabrication ensures MassLab projects deliver streamlined workflows, reduced labor, and faster timelines, supporting its high-quality building mission.

Collaboration Trust

MassLab will use transparent data to demonstrate Mass Timber’s performance—fire resistance, strength, and sustainability—building client confidence.

MassLab’s Design-Build Platforms will foster collaboration among architects, engineers, and builders, supporting responsive approaches and better outcomes.

The built environment is facing unprecedented challenges. We must innovate and adapt to meet these demands, prioritizing efficiency, sustainability, and adaptability in design and construction.

The MassLab Studio— champions innovation by integrating advanced technologies and harnessing Mass Timber as a transformative material. Through cutting-edge tools, sustainable practices, and collaborative approaches, MassLab delivers high-performance solutions that seamlessly balance innovation with environmental responsibility, shaping functional, future-ready buildings to address emerging Challenges.

Climate Change and Carbon Emissions

Challenge: The construction industry contributes significantly to global carbon emissions, with steel and concrete being among the largest contributors.

To create graphic standards and narrative frameworks to improve our team’s communication towardsetter collaboration and project impact.

Construction Efficiency and Labor Shortages Housing Shortages and Affordability

Challenge: Many regions face severe housing shortages, with high costs making homeownership and rentals inaccessible to many.

Challenge: Labor shortages and inefficiencies in traditional construction methods lead to project delays and increased costs.

MassLab Response: Mass Timber provides a low-carbon alternative by sequestering carbon and reducing embodied emissions. MassLab prioritizes sustainable design and lifecycle carbon analysis to deliver net-zero and carbon-negative building solutions.

MassLab Response: Develop offsite systems for high-quality, affordable, and scalable housing. Emphasize modular, adaptable designs for multifamily, workforce, and affordable housing, with Mass Timber as a key component grounded in a rigorous design process.

MassLab Response: Leverage prefabrication and modular construction with Mass Timber to streamline workflows, minimize onsite labor, and accelerate timelines. Implement strategies that maximize Mass Timber’s strengths while integrating hybrid solutions as needed.

MassLab pursues solutions to major challenges, recognizing that the Quality of Solutions is shaped by the questions we ask.

Urban Density and Vertical Expansion

Challenge: Cities are under pressure to accommodate growing populations through increased urban density while maintaining livability and sustainability.

Challenges

To create graphic standards and narrative frameworks to improve our team’s communication towardsetter collaboration and project impact.

Resilient and Adaptive Design

Challenge: Many regions face severe housing shortages, with high costs making homeownership and rentals inaccessible to many.

Waste Reduction and Resource Efficiency

Challenge: Labor shortages and inefficiencies in traditional construction methods lead to project delays and increased costs.

MassLab Response: Leverage advancements in Mass Timber to create taller wooden structures (e.g., mid-rise and high-rise buildings) that are efficient, aesthetically pleasing, and sustainable.

MassLab Response: The ongoing fires in Los Angeles underscore the need for resilient, adaptable structures. Mass Timber’s durability, fire resistance, and seismic performance make it an ideal solution. MassLab will develop flexible designs that address these challenges while supporting future retrofits and longterm safety.

MassLab Response: Promote the use of renewable, sustainably sourced Mass Timber materials and adopt design-for-disassembly strategies to reduce waste. Collaborate with manufacturers to optimize resource use and recycling.

MassLab pursues solutions to major challenges, recognizing that the Quality of Solutions is shaped by the questions we ask.

The quality of the answers one provides is directly tied to the quality of the questions one asks. Similarly, the ability to tackle significant opportunities or complex challenges depends on the processes you establish.These processes shape your promises to yourself, your clients, and the community.

The MassLab Studio— grounds its approach in strong values and robust collaborations, fostering a shared vision, focused strategy, and clear mission. This strategic alignment empowers the studio to tackle significant challenges effectively while unlocking greater opportunities for innovation and impact.

To create graphic standards and narrative frameworks to improve our team’s communication towards better collaboration and project impact.

Multi-Family Housing

Provide scalable, affordable, off-sitebuilt solutions with modular Mass Timber prefabrication to reduce costs and accelerate delivery.

To create graphic standards and narrative frameworks to improve our team’s comSingle-Family Residentialwards better collaboration and project impact.

Eds and Meds Single-Family Residential

Create bespoke, high-performance homes using Mass Timber's warmth, durability, and energy efficiency to exceed energy standards. Develop adaptable designs for diverse climates, integrating renewable energy and innovative technologies.

Design sustainable, healthier spaces for learning and healing using Mass Timber as an off-site solution that enhances user experience and wellbeing.

Industrial and Factory Mobility and Public Workplace

Develop efficient, large-span Mass Timber structures to streamline construction for warehouses, factories, and logistics facilities.

Reimagine workplaces with Mass Timber's natural aesthetic and biophilic benefits to boost employee well-being and productivity. Design modular office spaces adaptable to hybrid work models.

Mass Timber can be used for transit

hubs, pedestrian bridges, and public spaces, prioritizing sustainability and user experience—Reimagine public projects with lightweight, durable, and eco-conscious materials.

To establish a baseline of Standard Operating Procedures (SOPs) and Collaboration Frameworks that ensure this opportunity meets the demands of the moment, fulfilling promises to oneself, the client, and the community.

The MassLab Studio— is ?

What is the most effective approach to achieving highperformance structures, prioritizing quality, cost-efficiency, and deliverability? The following experiential insights, considerations, and areas of exploration are crafted to guide actionable steps toward meaningful and impactful results. ?

Phase 1

Objective: Lay the foundation for MassLab by focusing on pilot projects and strategic partnerships, leveraging BuildLabs’ proven methodologies.

Phase 2

To create graphic standards and narrative frameworks to improve our team’s communication towards better collaboration and project impact.

Objective: Expand MassLab’s scope to include a user platform, engaging the design community and fostering collaboration.

Phase 3

Objective: Scale the platform’s reach, diversify offerings, and strengthen MassLab’s role as a resource hub for sustainable construction.

Phase 4

Objective: Establish MassLab as a leading innovation hub within BuildLabs, driving industry-wide collaboration and adoption of sustainable construction practices.

Collaboration

MassLab will push the boundaries of Mass Timber construction and create a collaborative ecosystem that empowers design professionals, developers, and builders to adopt sustainable and innovative practices. By building on the expertise of BuildLabs, MassLab can accelerate its impact and establish a new standard for high-performance construction.

MassLab adopts a phased strategy, refining objectives through successful implementations and lessons learned.

Crafting Resonant Spacesnerships, Architecture’s atmosphere transcends function, blending sensory and spatial elements to create emotional resonance. Light and shadow animate spaces; materiality and texture invite touch; scale and proportion shape perceptions; sound and scent deepen connections. Color sets the mood, movement ensures flow, and views frame vistas, while nature integrates harmony. These elements transform architecture into a living experience, evoking wonder and connection to the world.

Elements of Atmosphere

MassLab adopts a phased strategy, refining objectives through successful implementations and lessons learned. MassLab develops a lexicon of design strategies that translates the elemetns of Off-Site Construction to design features.

Friction
Scrim
Plinth
Attractor

Plinth - A plinth connects the built realm to the earth, negotiating the forces that impact a building's stability. It resists external pressures, creating a secure and stable enclosure. The plinth serves as the base or platform upon which a structure rests, elevating it from the ground and instilling a sense of prominence. It defines the critical transition between the built environment and the ground plane.

Elements of Atmosphere

To create graphic standards and narrative frameworks to improve our team’s communication towards better collaboration and project impact.

A scrim is a semi-transparent or translucent material used to diffuse light or create a sense of separation without entirely blocking visual connection. It adds softness and depth to spaces, acting as a mask or mediating membrane that bridges inside and outside public and private realms.

Elements of Atmosphere

To create graphic standards and narrative frameworks to improve our team’s communication towards better collaboration and project impact.

Friction - Friction is the intentional resistance or tension created between materials, textures, or spatial elements. This tactile resistance enhances sensory engagement, deepening the relationship between the space and its inhabitants and fostering a dynamic and immersive experience.

Elements of Atmosphere

To create graphic standards and narrative frameworks to improve our team’s communication towards better collaboration and project impact.

Canopy - A canopy is an overhead structure that provides shelter or shade, mediating between air, sky, and climate. It regulates the interaction with weather elements such as wind, sun, and rain while creating an intimate, protective atmosphere. A canopy can frame views and influence how the space beneath it is perceived, adding a poetic energy to the architecture.

Elements of Atmosphere

To create graphic standards and narrative frameworks to improve our team’s communication towards better collaboration and project impact.

Chamber - A chamber is an enclosed space designed to evoke a specific atmosphere. The most private and intimate architectural space offers a holistic environment for reflection or personal engagements. Through careful use of proportion, acoustics, and materiality, a chamber creates a sense of seclusion and focus, fostering comfort and introspection.

Elements of Atmosphere

To create graphic standards and narrative frameworks to improve our team’s communication towards better collaboration and project impact.

Attractor- An attractor is a focal point within a space that draws attention and encourages movement toward it. It can manifest as a visual, auditory, or spatial element, enhancing the atmosphere by creating moments of interest and engagement that guide users' experiences.

Elements of Atmosphere

To create graphic standards and narrative frameworks to improve our team’s communication towards better collaboration and project impact.

Hearth - The hearth represents the central gathering point in a home, often associated with warmth, comfort, and social interaction. Beyond its symbolic role, it is the functional "engine" of the house, managing energy and waste. The hearth is both the literal and metaphorical heart of the home.

Elements of Atmosphere

To create graphic standards and narrative frameworks to improve our team’s communication towards better collaboration and project impact.

Court- A court is an open space surrounded by buildings or walls, functioning as the "lungs" of a home. It introduces nature and atmosphere into the interior in a controlled way, allowing for varying levels of intimacy. A court fosters openness and connection to nature, enriching the living experience.

Elements of Atmosphere

To create graphic standards and narrative frameworks to improve our team’s communication towards better collaboration and project impact.

Garden - A garden is a cultivated outdoor space that bridges the natural and built environments. It mediates between these realms by providing a tranquil, curated extension of the home. A garden connects inhabitants to nature, offering a managed yet organic space for reflection, relaxation, and aesthetic pleasure.

Elements of Atmosphere

To create graphic standards and narrative frameworks to improve our team’s communication towards better collaboration and project impact.

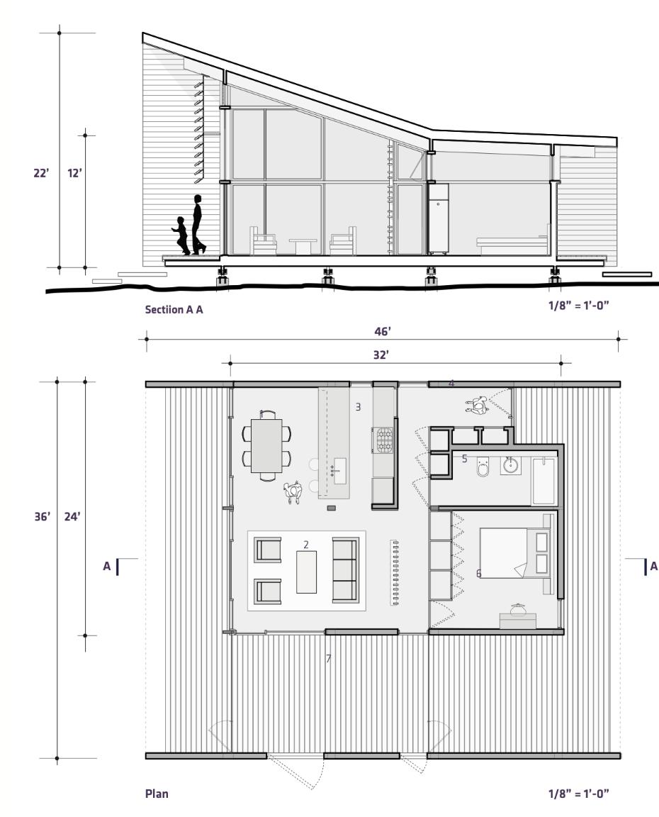
02-ADU

The 02 ADU is a 900-square-foot, twobedroom home crafted from mass timber panels, which serve as the primary long-span gravity and lateral load members. It is thoughtfully designed to meet the needs of rural contemporary life while emphasizing high design quality and sustainability. All load-bearing elements are precision-cut from single CLT (crosslaminated timber) panels, ensuring structural efficiency and minimizing waste. The home is built to highperformance energy standards, featuring a compact, efficient core with all critical components elevated above grade for environmental protection. The roof is designed to support solar panel installation, aligning with the home's sustainable focus. With its adaptable design, the 02 ADU provides an elegant solution for modern living, combining functionality, energy efficiency, and durability.

Pilot Projects

To create graphic standards and narrative frameworks to improve our team’s communication towards better collaboration and project impact.

Pilot Projects

To create graphic standards and narrative frameworks to improve our team’s communication towards better collaboration and project impact.

Add-On House

This proposal addresses environmental sensitivity, constructability, and affordability. Using off-site manufactured panels for framing and cladding, the roof, walls, and floor are fabricated off-site and assembled on-site, reducing costs, waste, and construction impact.

Composite wood beams and columns, made from FSC-certified recycled materials, form the structural skeleton for SIP panels. Elevated on concrete piers, the house minimizes disturbance to Cape Cod's landscape, allowing air and water flow beneath.

Pilot Projects

To create graphic standards and narrative frameworks to improve our team’s communication towards better collaboration and project impact.

Mod- House

Mod-House is based on a rigorous offsite modular system that employs glulam mass timber members and SIPs (structural insulated panels) as infill elements within a post-and-beam structure. This innovative approach combines precision engineering, thoughtful design, and environmental responsibility to create a prefabricated home that offers an affordable yet high-end alternative to customdesigned houses. Its refined structural system and generous use of glass establish a seamless connection with the surrounding landscape, blending simplicity with intimacy.

MassLabStudio

Turn static files into dynamic content formats.

Create a flipbook
Issuu converts static files into: digital portfolios, online yearbooks, online catalogs, digital photo albums and more. Sign up and create your flipbook.
MassLabs-BuildLabs Strategy 2025 by MONTOUTE - Issuu