


Industria / Laboratorios
Comercialización Fabricación Principios Activos I+D+i
Venta Distribución
Venta Directa
Hospitales
Laboratorios farmacéuticos MARCA
Laboratorios farmacéuticos GENÉRICOS
Principios activos / Productos / Autorizaciones
Red Ventas Laboratorios
Mayoristas / Distribuidores Farmacéuticos
Condiciones comerciales y de tratamiento producto
Oficinas Farmacia Exportación
Paciente Consumidor
Administraciones Públicas (estatal y autonómica)
Prescripción, Competencia, Precios
GRUPO COFARES
GRUPO UNNEFAR (DFG) HEFAME GRUPO
ALLIANCE BOOTS HEALTHCARE
6 GRUPOS: 97%
1901
Farmacéuticos pioneros
1957
Cooperativa
Decana de la distribución
española. 122 años
Presencia y liderazgo a nivel
nacional: Fedifar, Aproafa, Acfesa, Unnefar, Acofarma,
Farmadata
Octubre 2012:
INTEGRACIÓN
Premio Correo Farmacéutico:
Mejor iniciativa de gestión
empresarial 2012
GARANTIZAR EL SUMINISTRO MEDICAMENTOS
2. DESARROLLO PROFESIONAL Y EMPRESARIAL FARMACIA
3. MEJORAR SERVICIO SANITARIO A LA POBLACIÓN
• Distribución Solidaria de Gama Completa.
• Buenas Prácticas de Distribución
• Eficiencia logística. 24h.365 días. 2-4/día
• Asesoramiento técnico-farmacéutico • Servicios profesionales y de gestión global
Algunos datos
✓ 360 socios farmacéuticos - Farmacias
✓ 165 millones € facturación
✓ 147 personas plantilla
✓ 47 rutas diarias
✓ 1,5 millones de km recorridos /año
✓ 20 millones unidades venta / año
✓ 13 millones euros en stock
• 1.- Defensa modelo de distribución Local y en Defensa de la farmacia. • 2.- Adaptación al futuro: Innovación
• 3.- Logística y servicio a las Farmacias
¿Por qué invertir en un nuevo almacén de distribución?
• Modelo mediterráneo de Farmacia y Distribución
• Distribución Km.0
• Defensa intereses farmacia y pacientes de Euskadi
• Evolución a un Sistema de alta tecnología All-in-Shuttle.
• Nuevo Sistema automatizado de alto rendimiento con equipos de picking integrados con el sistema de almacenaje
• Incorpora sistema de producción para Ecommerce Sort and Pack
• Incremento de capacidad de almacenaje y número referencias.
• Garantizar la calidad del servicio. Reducción errores preparación
• Control y trazabilidad. Gestión stocks. Control de lotes y caducidades • Mejora de la productividad. Sistema de alto rendimiento • Reducción del tiempo de preparación de las entregas.
1.- Análisis datos:
Layout. Ubicaciones. SKUs. Flujos Líneas y albaranes producción. Capacidades Rotación. Características
2.- ¿A dónde queremos llegar?
Capacidad de almacenamiento. Integración
Análisis rentabilidad. Costes y sinergias globales PE y DAFO. Estrategia digital.
•
Necesidades: Picking, Buffer, flujos
Automatización: Robótica, carruseles, H-V, voz/vista...
Almacenaje Convencional: Radiofrecuencia / Manual
•
4.- Decisión
Conclusiones estudio logístico
Ubicación. Estudio geográfico. Comunicaciones
1.- Elección constructora: Concurso
2.- Plazos de ejecución: Realistas. Acordados
3.- Coordinación Dirección obra / constructor / propiedad
4.- Aspectos clave obra: Cimentación. Estructura.
• Dimensionado del sistema en base a un crecimiento del 40%
• Definición de la hora pico: 42,89% de las unidades y líneas deben poder ser producidas producidas en 2 horas
• Capacidad de producción: 7.763 líneas/hora y 15.845 uds./hora.
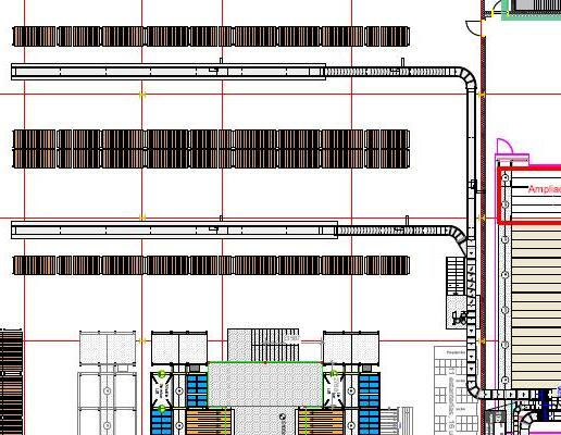
Recepción de Mercancía
Almacén
Almacén de Paletas Convencional Encubetado
Almacén Automático
OSR Shuttle
Picking GTP
Estantería
Estática
Picking SDA Picking Manuales
Sorter de Expediciones
Gran Volumen:
❑ 2 Areas de preparación
❑ 1x Aplicador de etiquetas pre-impresas
❑ 1x Escáner de código de barras (multidireccional)
• 8 Estaciones de Encubetado
• 1 Estación de rechazo/error
• Rendimiento: 30 cubetas/persona/hora
Medios de carga (Ver doc. “Medios de carga”)
Almacén Automático OSR Shuttle.
• 2 pasillos OSR, 26 niveles, 21.000 Ubicaciones estáticas
• Rendimiento: 1.200 cubetas entrada y salida (DC/h)
Estaciones de Picking
• 2 estaciones de picking PiE Evo
• Rendimiento: 1.174 líneas/hora y 1.958 unidades/hora
• 2 sistemas SDA con 3.000 canales en total
• Rendimiento: SDA1: 4.000 líneas/hora y 9.300 unidades/hora
SDA2: 3.133 líneas/hora y 8.025 unidades/hora SDA2 SDA1
• 4 Estaciones picking Manuales, 219 canales dinámicos y 1.600 ubicaciones estáticas
• Rendimiento: 1.095 líneas/hora y 1.978 unidades/hora
❑ 1 x LLM (Etiquetadora y tapadora automática)
❑ Pilas de máximo 20 tapas.
❑ Flejadora – Mosca
• 2 módulos, 480 rampas, 5.760 cubetas
• Encubetado
• 8 Estaciones de Encubetado
• 30 cubetas/persona/hora
• Almacén Automático OSR Shuttle.
• 2 pasillos OSR, 26 niveles, 21.000 Ubicaciones estáticas
• Rendimiento: 1.200 cubetas entrada y salida (DC/h)
• Estaciones GTP
• 2 estaciones de picking PiE Evo
• Rendimiento: 1.174 líneas/hora y 1.958 unidades/hora
• Sistema de Picking Automático SDA
• 2 sistemas SDA con 3.000 canales en total
• Rendimiento: SDA1: 4.000 líneas/hora y 9.300 unidades/hora
SDA2: 3.133 líneas/hora y 8.025 unidades/hora
• Estaciones de Picking Manuales con Canales dinámicos
• 4 Estaciones picking Manuales, 219 canales dinámicos, 1.600 ubicaciones estáticas
• Rendimiento: 1.095 líneas/hora y 1.978 unidades/hora
• Sorter de Expediciones DS
• 2 módulos, 480 rampas, 5.760 cubetas
•1.- Planificación 10-5-2-6. Al alza.
•2.- Formación: Interna y externa
•3.- Inversión: Sistemas, gestión datos, mecatrónica
•4.- Trabajo en equipo: Proyectos
•5.- Gestión multialmacén: Stocks
•6.- Comunicación