

PORTFOLIO ARCHITECTURE

MĂłnica Lozano de la Garza
Monterrey, Mexico
16/12/2000
Since my education as an architect in Mexico, my goal has been to create architectural experiences that connect with our natural environment, integrating technology, that not only evolves with us, but also revitalizes the world we live in. I believe design should be a tool to promote collective well-being, creating spaces where nature and the community can coexist harmoniously
For me, architecture must form emotional connections between people and the spaces they inhabit, creating environments that not only meet technical and functional standards but are also based on subjective elements such as emotion, happiness, and well-being.
My experience in designing community projects has allowed me to develop a deep understanding of users’ needs, which keeps me motivated to create spaces where people feel safe, inspired, and connected, fostering a sense of belonging and well-being.
monica.lozano dlg@gmail.com
http://linkedin.com/in/monicalozanodlg
Experience
2022 - 2024 Lidec
Content Creation and Management
2023 - 2024
2022
Studio AM11
Architecture Internship
Newness Studio
Architecture Internship and Assistant
2021 Agga Architects
Architecture Internship
Education
2019 - 2024
2016 - 2019
Competitions
September 2023
January 2024
June 2024
Universidad AutĂłnoma de Nuevo LeĂłn (UANL)
Bachelor’s Degree in Architecture
Instituto TecnolĂłgico de Monterrey (ITESM)
Completed high school education
Software




“Lo Mejor de lo Mejor” - 1st Place
Organized by the Faculty of Architecture
i’Local Competition
Hyderabad Urban Lab (HUL) Foundation.
Kaira Looro Competition
Sustainable maternity center in rural Senegal











04 05



Cultural Center Canoe Centre Maternity Centre KĂśM Soup Kitchen
01 Lotus
Women’s Shelter
Project Type
Residential / Community-oriented
Year
2022
The Lotus Shelter provides a safe and protective environment, offering essential services and resources to help women overcome situations of violence. This space is designed to provide a sense of security, peace, privacy, and respect, creating an atmosphere that promotes emotional and physical well-being, where each woman feels valued in her process of recovery and empowerment.
Softwares







and Wellness Office

Interior Layout
Spaces organized around interior gardens for green views and privacy

Second Floor Integration
Addition of second floor with private rooms, enhancing functional space.

Exterior Facade
Exterior lattice added for privacy and natural light entry

Landscape Integration
Integration of a protective barrier, outdoor rest areas and recreational spaces.
Therapy

02 Alanosis
Affordable Housing
Project Type
Residential-commercial use
Year
2023
This mixed-use project offers an opportunity for dignified, comfortable, and affordable housing to improve people’s quality of life and create urban regeneration. Through the site analysis, considering the natural surroundings and sociodemographic information, a design has been created that maximizes sustainability and the well-being of residents.
Softwares







The outdoors area is divided by resting and sitting area and a recreational space for children.


The layout began with a structural grid framework, optimizing circulation through strategic subtractions that create fluid movement across the building.


The design focuses on orienting the building for optimal climatic comfort, integrating access to primary zones, and promoting community interaction in shared spaces. Natural light is maximized while providing shade to reduce heat, balancing functionality with environmental considerations





Layout
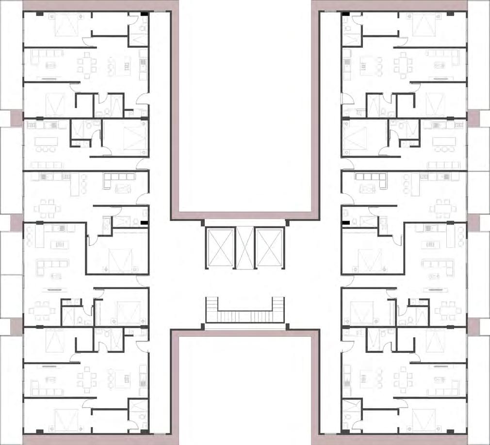
Apartment floor plan


03 Filorma
Cultural Center
Project Type
Community-oriented
Year
2022
This cultural center offers users the opportunity to engage and connect in multifunctional spaces through cultural, artistic, personal development, and social activities. With a design that emphasizes clean lines and geometric forms, the building projects a sense of modernity and openness. The architectural structure maximizes the use of natural light and integration with the surroundings, creating a welcoming and stimulating atmosphere.
Softwares










he purpose of the layout is to create multifunctional spaces for recreational activities and cohesive circulation

Sustainable Integration
Integration of resting areas with urban furniture and vegetation

Absorption well as a solution for rain drainage

Air capture filter, to purify it into water used for the garden

Community vegetable patch, using organic compost


04 Canoe Centre
Maternity Centre
Project Type
Healthcare Facility
Year
2024
This project aims to be an embodiment of hope for mothers in rural Senegal. It addresses the high maternal mortality rate by providing a safe, accessible, and culturally respectful birthing space. Rooted in the timeless flow of the Senegal River, our design embodies the journey of motherhood. It’s a tribute to strength, resilience, and love, reflecting the profound beauty of this transformative experience.








With an open and accessible entrance, this design fosters a sense of community and connection among women, while also incorporating natural light for a bright and transparent atmosphere.




The project is designed for self-construction by the local community. The walls are collaboratively built using locally produced earth bricks and mud mortar for binding, with lashing techniques that incorporate natural fibers to assemble the bamboo framework. Senegalese fabric is added as a breathable layer for water resistance.
05 KĂśM
Soup Kitchen
Project Type
Community Service Facility
Year
2024
The purpose of this project is to provide a welcoming and safe environment where community members can access nutritious meals. Designed to be open and transparent, the space that invites people in. By offering a comfortable and accessible area for all, the project looks to promote a supportive community atmosphere, where individuals can connect, find nourishment, and feel respected.
Softwares








Two separate volumes for the dining and kitchen/serving areas.

Circulation paths connect both volumes, creating a cohesive layout

Geometric roofing captures rainwater

The paths form an inner courtyard, enhancing light and interaction.



The courtyard serves as an inviting central area for communal dining and relaxation, fostering openness and connection with nature.


