

PORTFOLIO

MONALIN SARANGI
SELECTED WORKS (2021-2025)



INTRODUCTION
Name - Monalin Sarangi

MONALIN SARANGI
ARCHITECTURE STUDENT
D.O.B.- 24 September, 2002 th Gender - Female
I am a passionate and dedicated architecture student with 4 years of academic experience, currently pursuing a Bachelor’s degree at Piloo Mody College of Architecture. My portfolio includes a diverse range of projects spanning residential, commercial, and public housing typologies. With a strong interest in architectural and interior design, I am an eager learner driven by curiosity and creativity. I seek an internship opportunity that will allow me to further enhance my design skills, gain practical experience, and contribute meaningfully to innovative architectural projects.
Education
(2009-2019)
CAMBRIDGE SCHOOL, CUTTACK
Till 10th 89%
(2019-2021)
SB WOMEN’S HIGHER SECONDARY SCHOOL 11th and 12th 85%
(2021-2026)
PILOO MODY COLLEGE OF ARCHITECTURE
Bachelor’s of Architecture
Contact
+91 7978950621
monalinsarangi@gmail com
Cuttack,Odisha
Language
English Odia Hindi
Software Skills
Autocad
Sketchup
Adobe Photoshop
Adobe Indesign
MS Office
Canva
VRay/Lumion

Other Skills
Sketching
Model Making
Graphic Design Drafting
Experience
2022
DESIGN INTERN Ankana Interiors and Exteriors
I designed the interiors of metro computers situated at purighat, Cuttack including few more local projects
(2023-2025)
FREELANCER
worked on a number of construction projects
worked as a graphic designer on a multiple projects
2021
AFFILIATE MARKETING
LeadsGuru
Workshops
L&T ( Larson and Toubro)
Building Construction Workshop 2022
Architectural Detailings Workshop
Hands-on Training, Cuttack and Bhubaneswar 2024
ROOH Redevelopment
Slum Redevelopment, Deulasahi, Cuttack 2025

Interests
Fashion
Photography
Travelling
Films
O N T



APARTMENT COMPLEX MIXED-USE OFFICE BUILDING RESIDENCE
VIHANGAM
TRIBHUVAN
KYNORA

MISCELLANEOUS



VIHANGAM
“Where Perspective Meets Purpose.”


VIHANGAM
Academic Project (Residential/Public) Apartment Complex
(Sanskrit: वहगम – meaning “bird’s-eye view” or “vast aerial perspective”)
Vihangam Enclave is a premium high-rise residential apartment complex conceptualized in alignment with the academic brief provided in Architectural Design IV (6th Semester).The project is situated in Nuagaon, Bhubaneswar, a location representative of Odisha’s transition into a vertical, high-density urban model Developed on a 1.1-acre site, this apartment complex aligns with modern planning principles and the aspirations of a rising urban demographic, while staying rooted in local climate, culture, and comfort.
The term “Vihangam” ( वहगम) is a Sanskrit word that translates to “bird’s-eye view” or “an elevated perspective”. The name is not only a poetic metaphor for the butterfly-like architectural form but also reflects the vertical lifestyle and expansive visual and spatial experience that high-rise living offers. Rooted in Indian linguistic heritage, “Vihangam” gracefully encapsulates the design ideology, urban context, and architectural ambition outlined in the design brief, while “Enclave” emphasizes the formation of a secure, integrated residential community within the dense urban fabric of Bhubaneswar.
CONCEPT
The conceptual idea behind Vihangam Enclave stems from the butterfly’s wing formation, interpreted architecturally through a dual-winged layout extending from a central spine. This configuration was chosen to optimize cross-ventilation, natural light, and privacy for each unit, while also creating a visually balanced massing. The repetition of four units per floor two 2.5 BHK and two 3.5 BHK flats—across 10 floors ensures uniformity and structural efficiency. The butterfly form not only informs spatial arrangement but also reinforces the design’s identity, merging functional planning with symbolic elegance, aligned with the project’s high-rise, sustainable living goals.

FORM DEVELOPMENT
PLAN GEOMETRY:
The building adopts a butterfly-wing configuration, where two lateral wings emerge from a central vertical circulation core. This form promotes:
• Cross-ventilation
• Privacy for individual units
• Symmetry and visual openness
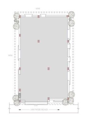
SITEPLAN
SITE AREA
1.10ACRES (4456.17 SQMTS.)
SITE LOCATION
Mouza- Nuagaon/Nuagan (51), PS: Chandaka, Bhubaneswar, Odisha GROUND COVERAGE
40% Of Site Area SETBACK
Minimum Setback 6M

FLOORPLANS

Unit Distribution:
• Each typical floor accommodates 4 units:
• 2 units of 2.5 BHK (minimum carpet area: 200 sq.m.)
• 2 units of 3.5 BHK (minimum carpet area: 225 sq.m.)
• A total of 40 apartments across 10 identical residential floors
This layout ensures equal distribution of unit types, maximizing both spatial efficiency and socio-economic diversity — a core goal in the brief.
FLOORPLANS


2.5 BHK UNIT
FLOORPLANS


3.5 BHK UNIT
FLOORPLANS

stilt




section xx’



YY’
section







I E W S




TRIBHUVAN
“Think, Create, Solve.”
tRIBHUVAN
Academic Project (Commercial) Office Building
(Sanskrit: Three Worlds)

This project, "Tri Bhuvan," proposes the design of a multi-tenant office building intended to foster collaboration and innovation amongst three distinct yet interconnected professional fields: Architecture, Information Technology, and Law. Recognizing the inherent synergy between these disciplines - design's creative vision, technology's transformative power, and law's structural framework - Tri Bhuvan aims to create a dynamic and adaptable workspace that caters to the specific needs of each tenant while encouraging cross-disciplinary interaction.
The design philosophy centers on the concept of "shared intelligence," where physical space becomes a catalyst for knowledge exchange and collaborative problem-solving. We envision a building that transcends the traditional office model, evolving into a vibrant ecosystem where architects, IT professionals, and lawyers can seamlessly integrate their expertise. This will be achieved through a carefully curated blend of dedicated workspaces, and technology-rich meeting spaces, all designed to promote transparency and communication.
Tri Bhuvan will prioritize sustainability, accessibility, and user wellbeing, reflecting the evolving demands of modern workplaces. The building's architectural language will strive for a balance between contemporary aesthetics and functional efficiency, creating a stimulating and inspiring environment for all occupants. This introduction lays the groundwork for a design that will not only house these diverse professions but also facilitate their growth and mutual enrichment. The following proposal will delve into the specific design considerations, spatial configurations, and technological integrations that will bring this vision to fruition.
SITE AREA
2670 SQMTS
SITE LOCATION
Phulnakhara, Bhubaneswar, Odisha
GROUND COVERAGE
40% Of Site Area SETBACK
Minimum Setback 7.5M


FIRST FLOOR
ARCHITECTURAL
FIRM



GROUND FLOOR GYM AND STILT PARKING





KYNORA
“A House Of Light, Line, and Life.”

KYNORA
Academic Project
Private Residence
Kynora is a distinctive two-storey private residence nestled in the warm, humid climate of Bhubaneswar, designed on a 540 sq.m plot with a ground coverage of 280 sq.m. This home redefines urban tropical living where form follows climate, and style follows sustainability.
Crafted with refined proportions, natural textures, and open green terraces, Kynora is more than just a house—it’s a living organism that breathes, lights up, and adapts with nature.
(“KYN”- kinetic + “ORA” - aurora)






FLOORPLANS

GROUND FLOOR FIRST


section 1 1' section 2 2'


KEYPLAN



ELEVATION D


MISCELLANEOUS
“The Art Of The In-Between.”


GRAPHIC DESIGN


PHOTOGRAP


















