ARCHITECTURAL PORTFOLIO - MOHAMED HAMID

Page 1

M O H A M E D H A M I D
TABLE OF CONTENT BIOGRAPHY 1 LUSAIL COMMERCIAL BOULEVARD OBJECTIVES & RESPONSABILITES BC.C1/11 - EXHIBITION HALL BC.C1/13 & BC.D01 – OFFICES BC.B02 - GATEWAY OFFICES BC.C1/18-19 - RETAIL LOD 300-400 DEVELOPMENT 2 3 4 8 10 14 16 ARCHITECTURAL DESIGN & VISUALIZATION RESEDENTIAL DESIGN MASTERPLANING 3D VISUALIZATION 22 23 32 36 IIUM, AVANT GARDE & DETIK PENANG GUGGENHEIM MUSEUM NEO MOVEMENT COFFEE CENTRE 38 39 44 MILESTONES PHOTOGRAPHS 48

BIOGRAOHY

Architect with 6+ years of experience specializing in designing and managing diverse projects, including villas, commercial buildings, and the prestigious Lusail Commercial Boulevard. Skilled in using BIM technology to execute projects efficiently, and contributed to the FIFA 2022 world cup preparations. In addition to my architectural skills, I have a solid understanding of local building codes, regulations, and construction practices. This knowledge allows me to deliver projects on time and within budget while adhering to the highest quality standards. I take pride in my ability to create innovative and functional designs that exceed client expectations. By incorporating the latest industry trends and employing my problem-solving skills, I ensure that each project is tailored to meet specific client needs. I am a proactive communicator and value collaborator, actively seeking input from clients, contractors, and stakeholders to ensure project success. My attention to detail, creativity, and dedication to sustainability contribute to the creation of visionary spaces that inspire and leave a lasting impact.

1
Mohamed

LUSAIL COMMERCIAL BOULEVARD

The Lusail Commercial Boulevard is a vibrant and dynamic commercial development located in Lusail City, Qatar. Spanning a significant area, it serves as a prominent hub for business, retail, and entertainment activities

Designed to create a lively and engaging environment, the boulevard offers a mix of commercial spaces, including modern office buildings, retail outlets, restaurants, cafes, and entertainment venues. The architectural design of the boulevard showcases a blend of contemporary and traditional elements, reflecting the rich cultural heritage of Qatar

The boulevard's strategic location and well-planned layout make it easily accessible and convenient for visitors, residents, and workers. Pedestrian-friendly pathways, landscaped plazas, and open spaces enhance the overall experience, providing opportunities for relaxation, socializing, and community engagement

With its diverse range of retail options, the Lusail Commercial Boulevard caters to the needs and desires of shoppers, offering a variety of international and local brands. Additionally, the boulevard serves as a platform for businesses to establish their presence and thrive in a dynamic commercial environment.

The Lusail Commercial Boulevard is not just a destination for commerce; it also hosts events, festivals, and cultural activities, creating a vibrant atmosphere and attracting visitors from across the region. The integration of modern technology, sustainable practices, and smart infrastructure further enhances the efficiency and livability of the development

Overall, the Lusail Commercial Boulevard represents a dynamic and prosperous center of commerce, where business, retail, and entertainment converge to create a bustling and inclusive environment for residents, workers, and visitors alike.

2

RESPONSABILITES TECHNICAL DEPARTMENT & BIM TEAM

Leading Technical Design

I am responsible for creating and overseeing the technical design of the project, ensuring they align with the client's requirements, I took charge of developing architectural drawings and solutions as well as identifying potential challenges in advance.

Collaborating with Stakeholders

I actively engage with clients, project managers, engineers, and other stakeholders to gather requirements, understand project goals, and ensure effective communication throughout the project lifecycle.

BIM Strategy Development

I am entrusted with developing and implementing a comprehensive BIM strategy that aligns with project goals, industry standards, and best practices.

BIM Modeling and Documentation

I engaged in creating and maintaining accurate BIM models, ensuring they comply with the required level of detail (LOD) and accuracy standards.

Clash Detection and Resolution

I employ advanced clash detection techniques to identify and resolve conflicts among various building systems in the BIM environment.

Problem Solving and Troubleshooting

I thrive on solving complex technical problems. I approach challenges with a proactive mindset, identifying root causes and implementing strategic solutions. I excel at troubleshooting issues, minimizing disruptions, and keeping projects on track.

3 ARCHITECTURAL RENDERING- BY CONSULTANT: AEB

BC.C1/11 - EXHIBITION HALL

BIM LOD 400 MODEL EXCUTION COORDINATION BETWEEN STRUCTURAL, ARCHITECTURAL, FACADE, INTIROR DESIGN, LANDSCAPE & IRRIGATION, AND MEP.

4
ARCHITECTURAL RENDERING- BY CONSULTANT: AEB

NAVISWORKS LOD 400 WORK IN PROGRESS MODELS

An LOD 400 model, also known as a Level of Development 400 model, is a detailed and highly accurate Building Information Modeling (BIM) model that represents a specific component or system of a construction project. It contains comprehensive information, including geometric details, fabrication and installation details, and specific product data. The LOD 400 model is typically used for construction purposes, allowing for precise coordination and accurate fabrication and installation of the component or system it represents.

5
Structural, Architectural, Interior Design, Façade, Landscape & Irrigation, and MEP integrated models. STRUCTURAL LOD 400 MODEL ARCHITECTURAL LOD 400 MODEL INTERIOR DESIGN LOD 400 MODEL FAÇADE LOD 400 MODEL MEP LOD 400 MODELS
6
LANDSCAPE LOD 400 MODEL

BIM modeling facilitates coordination between disciplines by providing a centralized platform where architects, engineers, and other professionals can collaboratively develop and share design information. It allows for real-time communication, seamless integration of different design disciplines, and clash detection. By working on a shared model, potential clashes or conflicts between disciplines can be identified and resolved early in the design process, reducing errors, rework, and delays. BIM modeling promotes interdisciplinary collaboration and improves coordination by enabling stakeholders to visualize and understand the impact of design decisions on other disciplines, resulting in a more efficient and integrated design.

7

BC.C1/13 & BC.D01 - OFFICES

BIM LOD 400 MODEL EXCUTION COORDINATION BETWEEN STRUCTURAL, ARCHITECTURAL, FACADE, INTIROR DESIGN, LANDSCAPE & IRRIGATION, AND MEP.

8 ARCHITECTURAL RENDERING- BY CONSULTANT: AEB
STRUCTURAL LOD 400 MODEL ARCHITECTURAL LOD 400 MODEL INTERIOR DESIGN LOD 400 MODEL FAÇADE LOD 400 MODEL MEP LOD 400 MODELS
9
LANDSCAPE LOD 400 MODEL

BC.B02 - GATEWAY OFFICES

BIM LOD 400 MODEL DEVELOPMENT PRODUCTION OF INTERIOR DESIGN CEILINGS SHOP DRAWINGS

10
ARCHITECTURAL RENDERING- BY CONSULTANT: AEB

SHOPDRAWINGS PRODUCTION USING THE BIM MODELS

BIM (Building Information Modeling) produces architectural shop drawings by leveraging the rich information contained within the BIM model. These drawings provide detailed information for construction and fabrication purposes. BIM allows architects to extract accurate dimensions, annotations, and specifications directly from the model, ensuring consistency and reducing errors. The BIM model serves as a central source of information, enabling the automatic generation of architectural shop drawings with accurate representations of walls, doors, windows, and other architectural elements. This streamlines the process of creating shop drawings, improves coordination with other disciplines, and enhances the overall efficiency of the construction process.

- SAMPLES OF CEILING SHOPDRAWINGS AND MODELING
11
- SAMPLES OF CEILING SHOPDRAWINGS AND MODELING 12
- SAMPLES OF CEILING SHOPDRAWINGS AND MODELING 13
14
BC.C1/18-19 - RETAIL BIM LOD 400 MODEL DEVELOPMENT
ARCHITECTURAL RENDERING- BY CONSULTANT: AEB
Structural model display 15
16
17
18
19

ARCHITECTURAL DESIGN & VISUALIZATION

20

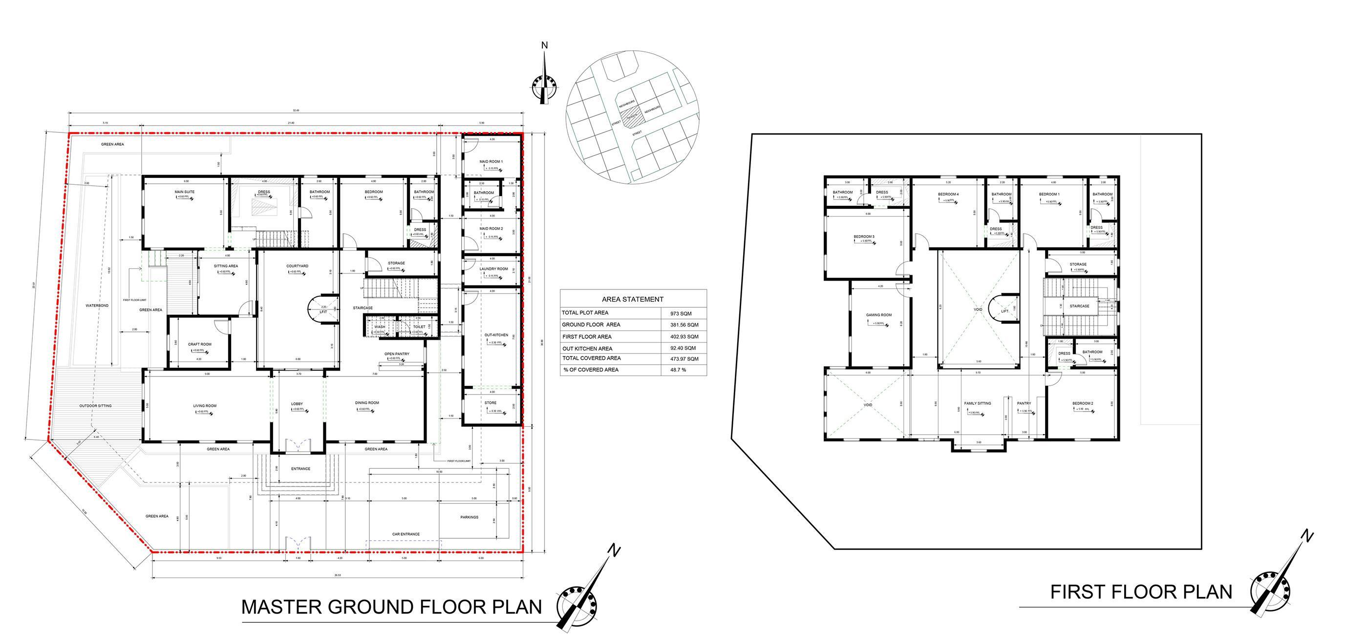
1- SPATIAL AND 3D VISUALIZATION OF PRIVATE VILLA AUTODESK REVIT, ENSCAPE PRODUCTION

21
22
23

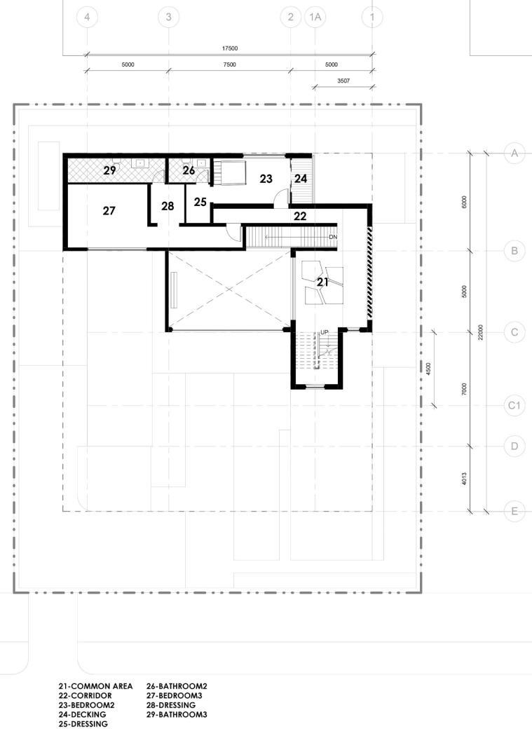
2- PRIVATE RETREAT HOUSE, AL-SHAMAL, QATAR

AUTODESK REVIT, V-RAY PRODUCTION

24
25

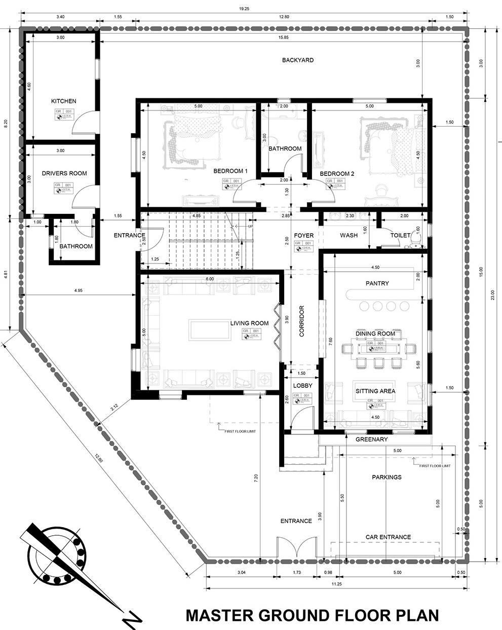
3- COMMERCIAL VILLA PROPOSAL, RAWDAT AL-KHEEL, QATAR AUTODESK REVIT, ENSCAPE PRODUCTION

26
27
4- PLAN PROPOSALS SAMPLES INTERIOR COURTYARD IDEA FOR A PLAN PROPOSAL 28
5- PLAN PROPOSALS SAMPLES NEO-CLASSIC PRIVATE VILLA DESIGN 29

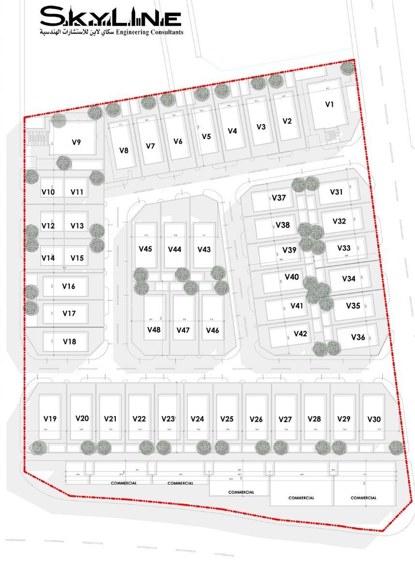
RESIDENTIAL + COMMERCIAL COMPOUND MASTER PLANNING AUTODESK REVIT, ENSCAPE PRODUCTION

30

RESIDENTIAL + COMMERCIAL COMPOUND

MASTER PLANNING

AUTODESK REVIT, AUTODESK

AUTOCAD PRODUCTION

31

ESIDENTIAL COMPOUND MASTER PLANNING

AUTODESK AUTOCAD PRODUCTION

32

LANDSCAPING PROPOSAL FOR A PALACE GARDEN

AUTODESK REVIT, ENSCAPE PRODUCTION

33

3D MODELING AND DEISGN OF A PROPOSED BEACH RETREAT, KUWAIT AUTODESK REVIT, V-RAY PRODUCTIONADOBE

PHOTOSHOP AND PREMIERE POST PRODUCTION

34

3D MODELING AND FACADE DESIGN OF A PROPOSED HOTEL, ALSAAD- QATAR

COMMERCIAL & RESIDENTIAL 3D MODELING AND FACADE DESIGN, AL-WAAB, QATAR

35

IIUM, AVANT GARDE & DETIK

36
37
38
39
40
41
42
43
44
45

MILESTONES PHOTOGRAPHS.

ARCHITECTURAL HERITAGE STUDIES

CONSTRUCTION

WORKSHOP

46
DETIK GROUP PHOTO IKAT BAMBOO GROUP PHOTOs
47
LUSAIL COMMERICIAL BOULEVARD DEVELOPMENT GROUP PHOTO

Turn static files into dynamic content formats.

Create a flipbook
Issuu converts static files into: digital portfolios, online yearbooks, online catalogs, digital photo albums and more. Sign up and create your flipbook.
ARCHITECTURAL PORTFOLIO - MOHAMED HAMID by Mohamed Hamid - Issuu