Projeto Espaço Cultural_Relatorio Final

Page 1

Projeto Conceitual de Place Branding

São Gonçalo dos Campos Julho de 2022

Projeto Conceitual de Place Branding

São Gonçalo dos Campos I Bahia I Brasil

Projeto desenvolvido pela MMOVER Consultoria Estratégica

CNPJ 30.578.303/0001-57

Equipe

André Mucarzel

Arquitetura/Urbanismo e Design de Produtos Coordenador de Projeto

Adaleia Oliveira

Arquitetura e Urbanismo

Gabriel Oliveira Urbanismo

Marcus Cordeiro Design e Comunicação

Mario Bestetti

Planejamento Regional / Marketing Territorial Contrato 181L / 2022

Prefeitura Municipal de São Gonçalo dos Campos

Prefeito Municipal

Tarcisio Torres Pedreira

Vice-Prefeito Municipal

Rafael Queiroz Mendes de Oliveira

Secretarias envolvidas no projeto

Secretaria Municipal de Infraestrutura

Elder de Oliveira Mascarenhas

Secretaria Municipal de Cultura, Esporte e Lazer

Vinicius Braz Leal

Secretaria de Planejamento

Aline Pascoal da Silva

Secretaria Municipal de Desenvolvimento Econômico e Social

Cloves Lopes Cedraz Filho

Secretaria Municipal de Agricultura e Meio Ambiente

Edson Moreira da Silva de Queiroz

Equipe Técnica envolvida no projeto

Bruno Rubens Rischard Testa

Diretor de Trânsito

Milena Cazumbá Pereira

Arquiteta

Marcelle Barbosa de Sousa Silva

Engenheira

Agda Catariny Moura e Machado

Arquiteta

2 I mmover design territorial
Período 5/5/2022 a 5/8/2022

Projeto Conceitual de Place Branding

São Gonçalo dos Campos I Bahia I Brasil 2 Sumário Escopo 3 Objeto ............................................................................................................................................................................................................................3 Descrição Geral ........................................................................................................................................................................................................3 Etapas.......................................................................................................................................................................................................................4 Referenciais teóricos 5 Linhas de Intervenção e Tendências.............................................................................................................................................................................6 Reciclagem Criativa.......................................................................................................................................................................................................7 Metodologia 8 Place Branding ..............................................................................................................................................................................................................9 Intervenção em Pré-Existência......................................................................................................................................................................................9 Contexto 11 Abordagem Estratégica 13 Proposta de Intervenção ..................................................................................................................................................................................................15 Conceito Adotado.............................................................................................................................................................................................................16 Proposta 18 Proposta da circulação vertical....................................................................................................................................................................................19 Proposta do Mirante ....................................................................................................................................................................................................20 Proposta da cobertura .................................................................................................................................................................................................20 Integração das Calçadas 21 Caracterização Técnica das Intervenções na Área Urbana ........................................................................................................................................23 Integração de Piso (Piso Compartilhado) ...............................................................................................................................................................23 Paginação de Piso 23 Balizadores 23 Bancos em Madeira................................................................................................................................................................................................23 Caracterização Técnica das Intervenções no Espaço Popular ...................................................................................................................................32 Mirante 32 Cobertura................................................................................................................................................................................................................32 Claraboia.................................................................................................................................................................................................................32 Fachadas 32 Iluminação Cênica 32 Comunicação & Marketing ...............................................................................................................................................................................................43 Próximas Etapas ..............................................................................................................................................................................................................46 Projeto Executivo do Espaço Popular 46 Projeto de Centro de Interpretação do Patrimônio (CIP/Digital)..................................................................................................................................47 Plano Municipal de Turismo ........................................................................................................................................................................................48

Projeto Conceitual de Place Branding

São Gonçalo dos Campos I Bahia I Brasil

ESCOPO OBJETO

Prestação de consultoria técnica especializada na área de planejamento urbano e design estratégico de elaboração de Projeto Conceitual de Place Branding (Revitalização Urbana e Mercadológica) para região comercial da cidade de São Gonçalo dos Campos (BA), para o espaço delimitado em logradouros a definir.

DESCRIÇÃO GERAL

● O Projeto Conceitual de Place Branding tem como objetivo principal a construção de um conceito que promova a valorização do comércio local, através da apresentação de soluções para a criação de uma unidade local que busque a atração dos clientes potenciais da cidade e da região, definindo-se um conjunto de princípios funcionais e de estilo, resultante das seguintes ações:

o Definição de um conceito baseado em um contexto local;

o Geração de ideias inspiradas no conceito proposto para solucionar problemas de identidade do espaço.

● Esta revalorização resgatará importâncias histórico-culturais, mercadológicas de acordo com as necessidades apontadas pelas dinâmicas socioeconômica e urbana do local de intervenção, levando em consideração as suas peculiaridades.

● A base da construção deste Projeto Conceitual é o Conceito do Design Estratégico. Entende-se por Design Estratégico uma forma de atuação direcionada para a gestão do design no projeto, ocupando-se da orientação interdisciplinar da política de design, apoiada por análises de fatores internos e externos em um nível mais alto de conceituação e aplicado desde as primeiras fases do desenvolvimento do projeto.

● Operar em termos de Design Estratégico significa desenvolver temas de ampla complexidade que permitam compreender as necessidades e aspirações da clientela e de reinterpretá-las através de um percurso racional e objetivo e não apenas subjetivo e criativo.

● O Projeto Conceitual fornece informações suficientes ao desenvolvimento do Projeto Executivo de implantação a ser desenvolvido futuramente.

O projeto terá 03 (três) fases com os seguintes objetivos:

Fase I Levantamento de informações in loco;

Fase II

Fase III

Análise da contextualização e a definição de um conceito narrativo realizada in loco;

Idealização e elaboração do Projeto Conceitual realizada in office, e elaboração de Relatório e Peças Finais.

3

Projeto Conceitual de Place Branding

São Gonçalo dos Campos I Bahia I Brasil

ETAPAS

Fase 1 / Etapa 1. Levantamento de Informações

Pesquisa e levantamento de informações; Pesquisa do contexto;

Fase 1/2 / Etapa 2. Levantamento / Conceituação

Levantamento de informações em campo através de ferramentas de análise comportamental; Registro audiovisual.

Análise de informações em campo e eventuais levantamentos; vPesquisa Bibliográfica e Histórica; Análise e avaliação do contexto.

Reuniões de briefing e contra-briefing com Prefeitura; Conceituação de uma Identidade Mercadológica para o espaço; Conceituação da Imagem Gráfica

Conceituação de Equipamento Urbanos; Apresentações e discussões de conceito com Prefeitura.

Fase 3 / Etapa 3. Idealização

Desenvolvimento da imagens/ilustrações gráficas das soluções urbanas; Idealização dos equipamentos urbanos de sinalização específicos; Especificação/idealização do Desenho Urbano; Desenvolvimento de apresentação conceitual.

Fase 3 / Etapa 4. Validação

Reunião de apresentação e validação (e ajustes) do Projeto Conceitual;

Fase 3 / Etapa 5. Elaboração de Relatório

Preparação de Relatório Final, Pranchas de Projetos e material de apresentação.

4

São Gonçalo dos Campos I Bahia I Brasil

REFERENCIAIS TEÓRICOS

Os ciclos de evolução das cidades são compostos por períodos de crescimento seguido por fases de declínio pois, segundo Philip Kotler1, “o crescimento deixa sementes para sua própria destruição... Os processos básicos da dinâmica de crescimento e declínio podem ocorrer independentemente do estado do ciclo dos negócios, embora possam ser acelerados por mudanças repentinas no clima econômico”.

Tabela 1: Dinâmica de crescimento de uma cidade.

Migração interna de novos moradores e visitantes.

O local é Atraente

a) novas indústrias se instalam;

b) existem muitas oportunidades de emprego;

c) a qualidade de vida atrai.

a) Aumento do custo de imóveis;

b) Infra-estrutura sofre pressão;

c) necessidades sociais crescem.

Aumento dos impostos. Migração interna de novos investimentos.

Algumas forças externas colocam localidades em dificuldades, tais como: a) Rápidas mudanças tecnológicas, e que atingem a economia e as indústrias locais; b) Concorrência externa, fortalecida pela interdependência de uma economia global; c) Mudanças no setor político, como a obsolescência da nação-estado na capacidade de gestão eficiente.

Frente a isso, algumas abordagens se apresentam para fortalecer o desenvolvimento local:

● Desenvolvimento Comunitário: criando uma ambiência de qualidade de vida para as pessoas que vivem e trabalham na comunidade.

● Design Urbano: A melhoria da qualidade do ambiente físico influencia as atitudes e o comportamento das pessoas.

● Planejamento Urbano: Uma estrutura de planejamento urbano da cidade possibilita uma avaliação constante da base econômica e social da cidade, propondo novas ações e soluções.

● Desenvolvimento Econômico: determinando como a economia local se adapta melhor ao contexto regional, nacional e mundial – em constante mutação.

● Planejamento Estratégico de Marketing: integrando as vantagens competitivas de um local aos objetivos gerais de desenvolvimento econômico.

Projeto Conceitual de Place Branding
5
1 KOTLER, Philip. Marketing Público. Makron Books, 1994.

Projeto Conceitual de Place Branding

São Gonçalo dos Campos I Bahia I Brasil

Tais abordagens têm como lócus o espaço físico e o processo de revitalização dos espaços públicos2. Espaços públicos desempenham um papel significativo na organização de cada comunidade, mas definir o que os diferencia de outros espaços da cidade não é uma tarefa fácil. Uma vez que esses espaços começam a se instalar na memória coletiva das comunidades locais, tornam-se elementos-chave que concentram a imagem mental de uma cidade. Enquanto esse processo geralmente acontece com espaços urbanos, monumentos e elementos arquitetônicos isolados também podem se tornar marcos para a vida urbana de uma determinada região.

As qualidades estéticas dos lugares ou monumentos urbanos os tornam reconhecíveis e memoráveis. Eles oferecem uma narrativa do espaço, uma declaração de valores com os quais os habitantes se identificam. Leva tempo para que esses apegos se formem, então a continuidade é um elemento importante. Pequenas mudanças incrementais podem ser assimiladas, pois garantem a adaptabilidade do espaço. No entanto, mudanças abruptas também acontecem, tanto de forma calculada quanto inesperada. Quando o fazem, os habitantes e os arquitetos se deparam com opções contrastantes: aproveitar a oportunidade para construir algo novo ou tentar recriar a continuidade perdida.

A estética urbana significa um acordo tácito compartilhado: as pessoas desta região decidiram inconscientemente e coletivamente que esta imagem, este lugar vazio, ou este edifício é relevante, atribuindo continuamente símbolos de importância. Isso explica em parte a relutância em aceitar uma nova versão porque também representa um novo acordo social sobre o que é ou não importante. Isso é difícil de alcançar, enquanto a versão antiga era amplamente aceita.

Os objetivos funcionalistas de renovação urbana muitas vezes competem com o desejo do público pela restituição de monumentos e lugares valiosos, e o profissionais encarregados da recuperação tem de equilibrar essas agendas contrastantes.

LINHAS DE INTERVENÇÃO E TENDÊNCIAS3

Os ciclos de evolução das cidades podem trazer grandes transformações, alterando seu parcelamento e modificando sua paisagem, despertando assim um sentimento de perda e uma reação em defesa das estruturas urbanas tradicionais ameaçadas. Neste cenário o tema da preservação do patrimônio cultural foi discutido ao longo da história em encontros, seminários e congressos, tendo como resultado as Cartas patrimoniais. Tais documentos refletem as preocupações e os conceitos vigentes quando foram elaboradas e tornando-se consultas importantes para a compreensão do modo como a questão da reutilização do patrimônio edificado vem sendo tratada internacionalmente.

Outro ponto importante a ser considerado é a reintegração do patrimônio edificado à vida contemporânea mediante a adaptação às necessidades de uso, mesmo que distintas das anteriores. A ociosidade a que frequentemente são relegados o patrimônio edificado, seja pelo desaparecimento da função original ou pela inadequação de seus espaços e de sua linguagem às novas exigências, acaba por disponibilizar os edifícios antigos para outras finalidades.

2https://www.archdaily.com.br/br/982717/estetica-da-ruptura-os-efeitos-das-mudancas-abruptas-na-paisagemurbana?utm_medium=email&utm_source=ArchDaily%20Brasil&kth=5,757,570

3 LYRA, Cyro Corrêa. Preservação do patrimônio edificado : a questão do uso – Brasília, DF : Iphan, 2016. pg.72-81.

6

Projeto Conceitual de Place Branding

São Gonçalo dos Campos I Bahia I Brasil

No contexto deste trabalho a existência de uma edificação de Interesse Histórico-Cultural dentro do perímetro, o mercado municipal, exigiu uma atenção maior na linha de intervenção a ser adotada, mesmo que a edificação não tenha registro de tombo. Nos mercados municipais, que são edifícios destituídos de intenção estética, frequentemente o uso conduz a intervenção, em detrimento do edifício, prevalecendo a adaptação sobre a conservação, “a intervenção é conduzida por um pragmatismo expresso na subordinação do monumento a sua nova função, com sacrifício de suas originais características e de seus testemunhos históricos”, segundo Cyro Lyra.

RECICLAGEM CRIATIVA

Reconhecendo a importância da preservação do patrimônio cultural adotamos a Reciclagem Criativa, ou reutilização criativa, como referencial teórico para a linha de intervenção a ser adotada. A Reciclagem Criativa consiste em uma intervenção restaurativa na qual as inserções têm presença expressiva agregando valor à arquitetura existente pela inserção de elementos plasticamente expressivos. Na reciclagem criativa o edifício pode ser enriquecido com a agregação de valores decorrente de inserções esteticamente válidas. Para que esse fim seja atingido a linha de intervenção deve respeitar três critérios: Autenticidade - entendida como a revelação da contemporaneidade da inserção

Harmonia - compreendida como a conciliação dos contrários (o existente e o novo) Sensibilidade - traduzida pela capacidade de diálogo entre o novo e o existente.

7

São Gonçalo dos Campos I Bahia I Brasil

METODOLOGIA

Neste projeto adotou-se como premissa principal a necessidade de aproximar o ato projetual da realidade local, gerando um Projeto Conceito. Este tem como objetivo desenvolver as linhas básicas de um projeto urbanístico, definindo um conjunto de princípios funcionais e de estilo, resultante de:

● Definição de um conceito baseado em um contexto local;

● Geração de ideias inspiradas no conceito proposto para solucionar problemas de identidade do espaço.

A elaboração de um projeto conceitual de revitalização urbana é realizado por uma equipe multidisciplinar e executado em 03 (três) fases, abrangendo as áreas de conhecimento de Design Estratégico, História e Cultura, Arquitetura e Urbanismo, Design de Produto, Design Gráfico e Marketing, respeitando-se o seguinte escopo:

História e Cultura Levantamento e análise de dados históricos e socioculturais relevantes; Levantamento e análise de referências iconográficos; Levantamento do patrimônio material e imaterial.

Marketing Análise de dados secundários sobre o Mercado do Varejo da Cidade e região (Censo Empresarial / SEBRAE);

Análise de dados secundários sobre Pesquisa de Opinião dos Consumidores/Usuários (Pesquisa de Opinião / CDL / Associação Comercial / SEBRAE);

Análise das concentrações do Varejo local; Levantamento de dados primários qualitativos complementares em pequenas amostras.

Design Estratégico Conceituação da Imagem mercadológica do espaço;

Levantamento e análise das potencialidades e fraquezas do local, assim como as oportunidades e ameaças do equipamento de comercialização;

Definição dos parâmetros conceituais a serem seguidos pelo equipamento de comercialização.

Arquitetura/Urbanismo Análise dos planos e plantas existentes no município referentes à área de intervenção e ao respectivo entorno: Plano Diretor Urbano, Projetos de Drenagem, Água e Esgoto, Planta de Instalações elétricas e iluminação, Planos do Sistema Viário local (Hierarquização das vias), Projetos geométricos de vias, Planta de usos atuais (Residencial, Comércio e Serviços, usos mistos), Outros Projetos em desenvolvimento no entorno mais próximo;

Compatibilização conceitual entre projetos já existente e às soluções propostas; Soluções conceituais para área de circulação (piso, locação de equipamentos, iluminação, paisagismo);

Design de Produto Desenvolvimento e/ou especificação dos equipamentos urbanos.

Idealização/especificação dos equipamentos urbanos (Pórticos, MUP, totens, placas, luminárias, etc.).

Design Gráfico Pesquisa e análise dos aspectos semióticos envolvidos no espaço;

Projeto Conceitual de
Place Branding
8

Projeto Conceitual de Place Branding

São Gonçalo dos Campos I Bahia I Brasil

Conceituação de identidade; Idealização do material gráfico (marca, sinalização e suas aplicações).

PLACE BRANDING

Place Branding surge assim como uma ferramenta interdisciplinar que possibilita a geração de soluções que envolvam o usuário principal do espaço público – o cidadão – e o processo de geração de propostas inovadoras tanto de soluções como de estratégias de promoção/comunicação. Place Branding faz a relação entre marca (algo que identifica) com o lugar (algo que é concreto), desta forma trabalha com os elementos físicos, simbólicos, racionais e emocionais que movem e promovem os lugares, sendo uma ferramenta de apoio às estratégias de desenvolvimento, regeneração, planejamento e design que, juntos, criam uma nova perspectiva do lugar.

INTERVENÇÃO EM PRÉ-EXISTÊNCIA

Os mercados, espaço onde os produtores, comerciantes e consumidores de uma região se reúnem, geram nas cidades ponto de convergência, de mistura de classes. Este uso acaba por atribuir a este espaço uma significação maior que o de lugar do comércio: expressa identidade cultural de uma sociedade, segundo Nabil Bonduki4

Ainda segundo Nabil Bonduki¹, os mercados são “muito mais do que um espaço físico – edifício ou praça urbana –, o mercado constitui uma manifestação cultural complexa, sintetizando a maneira como os povos se organizam para cultivar, fabricar e comerciar seus produtos, atividades que envolvem um amplo espectro de criações humanas.” É no mercado que o rural se manifesta, as criações artesanais são apresentadas e expostas, funcionando como porta de entrada e de saída para tudo o que uma sociedade é capaz de criar. Consequentemente a relação entre marca, como algo que identifica a riqueza de uma cidade, com o lugar (Espaço Popular), pode ser medida em seus vários sentidos pelo edifício do mercado municipal e do seu entorno.

“No mercado, todos os nossos sentidos são evocados pelas cores, cheiros, sons, costumes, arranjos. As tradições de uma sociedade ali se manifestam: nas artes da culinária, na maneira como os produtos são expostos, nos pregões e nas canções que anunciam as ofertas, na negociação dos preços das mercadorias – às vezes definidos conforme a cultura local, de modo nem sempre objetivo e racional.

9
“Conhecer uma cidade é conhecer seu mercado”. (Nicolas Guillén)
4 BONDUKI, Nabil. Intervenções urbanas na recuperação de centros históricos – Brasília, DF : Iphan / Programa Monumenta, 2010. pg.142-189

Projeto Conceitual de Place Branding

São Gonçalo dos Campos I Bahia I Brasil

No interior dos mercados fermenta um amplo conjunto de manifestações, o que cria um dos ambientes mais fascinantes da cidade. Por reunir boa parte dos habitantes da localidade, o mercado atrai artistas, músicos, atores, bailarinos, malabaristas, repentistas, mágicos, videntes, contadores de estórias, enfim, toda uma plêiade de criadores que precisam se apresentar e sobreviver.”

A interferência num mercado público repleto de histórias mexe profundamente com as relações sociais, antropológicas e culturais que se formaram nesse ambiente. Importante entender que antes de se fixar em edifícios, o mercado, também denominado “feira”, se constituía em áreas públicas ou praças, nos mesmos locais em que, em outros momentos, se desenrolavam festas, manifestações artísticas ou a execução de sentenças.

O Espaço Popular (antigo Mercado Municipal) e a praça J. J. Seabra são exemplos destes lugares para a cidade de São Gonçalo dos Campos. Reconhecendo a importância da preservação deste patrimônio cultural adotamos a Reciclagem Criativa como referencial teórico para a linha de intervenção a ser adotada.

10

São Gonçalo dos Campos I Bahia I Brasil

CONTEXTO

O atual processo de desenvolvimento na qual a cidade de São Gonçalo dos Campos tem passado – a despeito das instabilidades econômicas e políticas na qual o país tem perpassado – tem fortalecido alguns vetores setoriais na cidade, em especial nos setores da cultura e do comercio, bem como do serviço público.

Tal processo pode ser caracterizado através dos vetores abaixo ilustrados, e no qual podemos perceber tanto sua distribuição urbana, como também na sua materialização.

No campo cultural a cidade tem percebido através da valorização dos equipamentos de importância histórica da cidade (e no qual este projeto se integra).

No aspecto comercial, ações como a reforma do Centro de Abastecimento local e a implantação de um grande varejista nacional fortalece o vetor econômico para aquele setor urbano.

Já no aspecto dos serviços públicos municipais, algumas ações estão em andamento para àquele setor urbano, muito em função – de forte aspecto simbólico também – da relocação da Prefeitura Municipal para um importante casarão histórico, o qual foi reformado e hoje exerce importante repercussão local.

Esta percepção foi determinante para a definição estratégica adotada por este projeto e a qual será descrita mais adiante.

Abaixo ilustramos de forma visual tal contexto de desenvolvimento municipal, ao qual reforçamos a necessidade de atualização do Plano Diretor Municipal, o qual respaldará tais vetores através de legislação e políticas publicas especificas.

Conceitual de
Projeto
Place Branding
11

São Gonçalo dos Campos I Bahia I Brasil

ABORDAGEM ESTRATÉGICA

Com base no levantamento das informações locais e entrevistas realiadas foi estabelecido uma abordagem estratégica para este projeto, no qual a palavra-chave pode ser definida como INTEGRAÇÃO.

Integração esta através dos vetores e eixos encontrados na cidade e caracterizados com seus diversos perfis, bem como a integração entre as intervenções existentes e planejadas, buscando a convergência dos seus interesses de uso.

Outra definição adotada neste projeto é conceitual, com a proposta de estabelecer a relação entre a MARCA (algo que identifica) e o LUGAR (algo que é concreto) do Espaço Popular e seu entorno.

Definição esta caracterizada pela ideia preliminar para reabilitação5 do edifício do antigo mercado municipal (Espaço Popular) aliado a uma Intervenção urbana local6 com o intuito de transformar a dinâmica socioespacial entre o Espaço Popular e seu entorno, promovendo a apropriação desse espaço pela população, criando assim uma nova perspectiva para este lugar.

5 Conjunto de operações destinadas a tornar apto o edifício a novos usos, diferente para o qual foi concebido (Programa Monumenta, Cadernos Técnicos 1, IPHAN).

6 Intervenção sobre uma realidade preexistente com o objetivo de alterar ou acrescentar novos usos, funções e propriedades e promover a apropriação da população daquele determinado espaço. CAU – Conselho de Arquitetura e Urbanismo.

Projeto Conceitual de
Place Branding
13

São Gonçalo dos Campos I Bahia I Brasil

PROPOSTA DE INTERVENÇÃO

O produto final deste trabalho apresenta um conceito que define a relação entre a marca (algo que identifica) e o lugar (algo que é concreto) do Espaço Popular e seu entorno. Desta forma foi desenvolvido uma ideia preliminar para reabilitação7 do edifício do antigo mercado municipal (Espaço Popular) aliado a uma Intervenção urbana local com o intuito de transformar a dinâmica socioespacial entre o Espaço Popular e seu entorno, promovendo a apropriação desse espaço pela população, criando assim uma nova perspectiva para este lugar.

A proposta preliminar para reabilitação do edifício do antigo mercado municipal (Espaço Popular) danificado busca resgatar a essência do uso original para o espaço do mercado como ponto de convergência e de manifestação cultural a fim de fortalecer a identidade da sociedade são-gonçalense. Para que esse fim seja atingido, a proposta entende o Mercado Municipal (Espaço Popular) como um espaço misto, tanto em seu uso quanto em sua materialidade. A ideia preliminar para reabilitação do edifício tem a sensibilidade do diálogo entre a consolidação das fachadas originais e a reestruturação do seu interior a partir de uma intervenção autêntica que revela a contemporaneidade da inserção, tudo ocorrendo de maneira harmoniosa.

A proposta preliminar de intervenção urbana local no entorno do Espaço Popular tem como um dos fundamentos principais privilegiar o pedestre ao invés de valorizar o tráfego do automóvel. A proposta pretende tornar todo o espaço do entorno algo como um platô contínuo com ruas elevadas ao nível do pedestre, protegidas por balizadores, e com velocidade de tráfego diminuída, no sentido da valorização não só das pessoas e do convívio social, mas também dos edifícios existentes, tal como o Espaço Popular. O uso de tipos variados de calçamentos no platô, assim como os padrões em que foram dispostos, diferenciam espaços e, por estar ao nível do piso do Espaço Popular, reforçam a integração entre o mercado municipal e a praça J. J. Seabra.

7 Conjunto de operações destinadas a tornar apto o edifício a novos usos, diferente para o qual foi concebido, segundo Manual de elaboração de projetos de preservação do patrimônio cultural, Ministério da Cultura, Instituto do Programa Monumenta, 2005.

Projeto Conceitual de
Place Branding
15

São Gonçalo dos Campos I Bahia I Brasil

CONCEITO ADOTADO

Cada projeto pensado para um espaço público dá início a uma busca, que começa nas camadas mais superficiais e se aprofunda desvendando histórias e peculiaridades distintas, contadas pelos que vivenciaram e registraram momentos preservando sua memória. Com as pesquisas, floresce o interesse sobre os acontecimentos que deram origem ao desenvolvimento local, traduzindo um significado comum, contribuindo na compreensão do conceito. Dando com isso, forma à ideia da identidade de uma marca lugar.

Não é diferente em São Gonçalo dos Campos, onde seu ar agradável preserva uma ambiência que nos indica ser um local que quer preservar sua essência de uma cidade que abraça seus moradores.

Essas memórias preservadas tornaram-se um senso comum no uso do espaço público, nos eventos típicos de cada época, marcados claramente por quem os vivenciou no espaço, evidenciados no brilho dos olhos dos entrevistados. Essas lembranças, cheias de alegria e boas memórias do local, transmite uma imagem saudosista dos bons tempos no qual o Espaço Popular congregava a população. Essa experiência vivida por cada um, faz parte de um inconsciente coletivo, comum a todos, que diante de sua natureza intangível, ganha forma na proposta de um espaço que vai além de um local de uso único.

Propõe-se um novo lugar, onde o espaço, local físico com suas paredes que vencem o tempo, se une às pessoas, com suas diferenças e particularidades. Um lugar novo e democrático.

Um Lugar para Todos!

Projeto Conceitual de
Place Branding
16

Propõe-se um novo lugar, onde o espaço, local físico com suas paredes que vencem o tempo, se une às pessoas, com suas diferenças e particularidades.

Um lugar novo e democrático. Um Lugar para Todos!

São Gonçalo dos Campos I Bahia I Brasil

PROPOSTA

A primeira etapa dos trabalhos foi um levantamento geral, com detalhes da construção no estado em que estava e o estabelecimento de um programa funcional. O projeto procurou resolver os problemas detectados no diagnóstico visual preliminar do prédio: o estado dos telhados, a umidade que degradava as paredes em alvenaria de tijolos de barro; a distribuição das áreas, o plano de acesso comprometido pelas intervenções ocorridas nas áreas internas do edifício.

Foi desenhado um estudo preliminar, uma proposta que prevê as necessidades em relação aos possíveis usos que serão dados à edificação. O projeto começa, então, a partir da conservação das fachadas do edifício.

A proposta de intervenção do projeto visa manter as paredes existentes, respeitando e mantendo a imagem do edifício pré-existente, entendendo o caráter patrimonial do Imóvel de Conservação Histórica. Para tanto, foi proposta uma estrutura interna que suporta e utiliza as fachadas existentes como próprias, através de uma construção contemporânea de grande espacialidade, flexível, permitindo o maior número possível de usos dentro do novo edifício. O projeto buscou adaptar o espaço para o uso flexível, para atender diversos setores, e tornar o local mais acessível, acrescentando ao edifício espaços que recomponha o ritmo de uso e atividades. No nível do chão, o salão principal de pé direito duplo, que possibilitam uma nova articulação entre todas as funções; no piso superior a instalação de uma passarela metálica formando um mirante em todo perímetro interno da edificação, formando um vazio central. Foi proposto um prédio anexo com 3 pavimentos na parte de traz da edificação, como áreas de apoio para diferentes usos do prédio. A cobertura, é como um saguão monumental, que articula em conjunto com o mirante, praticamente sem barreiras, através dos eixos longitudinal e transversal do edifício, todos os seus espaços.

O objetivo primordial da proposta arquitetônica foi a adequação do edifício às necessidades técnicas e funcionais para receber diversos tipos de usos pelos espaços internos, pelo público potencial e pela ideia de ampliação dos usos do espaço, recepção de exposições temporárias.

A intervenção proposta, consiste em 3 elementos arquitetônicos:

 Circulação vertical

 Mirante

 Cobertura

Projeto Conceitual de Place Branding
18

São Gonçalo dos Campos I Bahia I Brasil

PROPOSTA DA CIRCULAÇÃO VERTICAL

Viabilizar uma nova circulação vertical do edifício, proporcionando acessibilidade ao público em todos os espaços do edifício. No pátio ao fundo da edificação, concentram-se as circulações verticais.

Foi proposta uma plataforma elevatória que dá acessibilidade a pessoas com necessidades especiais, aos pavimentos do edifício anexo e ao mirante. A plataforma elevatória deverá ter estrutura metálica e fechamento em vidro; com portas opostas ou adjacentes.

A plataforma elevatória é delimitada por uma escada com estrutura metálica que deve seguir as normas da NBR para serem funcionais; o tamanho das pisadas e dos espelhos deve seguir um padrão constante ao longo de toda a escada de estrutura metálica, obedecendo aos seguintes critérios:

 A pisada deve ter entre 28 e 32 centímetros e o espelho deve ter entre 16 e 18 centímetros;

 A sua largura deve atender no mínimo 1,20m de largura;

 Os patamares da escada de estrutura metálica devem estar a pelo menos 3,20 metro de distância entre cada desnível e quando a escada muda de direção, em U, seu comprimento deve ser igual à largura.

 A escada metálica também dará acesso ao público aos pavimentos do prédio anexo e ao mirante.

Projeto Conceitual de Place Branding
19

Projeto Conceitual de Place Branding

São Gonçalo dos Campos I Bahia I Brasil

PROPOSTA DO MIRANTE

Há algo mágico em ver uma cidade do alto. Ter um novo ponto de vista e olhar através de um horizonte em vez de olhar para ele é um dos sentimentos mais poderosos e inspiradores que existem. As plataformas de observação não são apenas maravilhas arquitetônicas, mas também uma espécie de ícone cívico, orgulho de uma cidade.

As torres de observação são uma parte importante do urbanismo, do orgulho da cidade e da atração do turismo. Em 1889, para a Feira Mundial de Paris, a Torre Eiffel foi equipada com um sistema de elevador de alta tecnologia que permitia aos passageiros moverem-se de cima para baixo com segurança e rapidez. Embora a torre devesse permanecer apenas nas duas décadas seguintes, rapidamente se tornou um símbolo icônico de Paris e uma representação dos avanços tecnológicos significativos da cidade e ainda é um dos pontos de observação mais visitados.

Inspirados pelo sucesso da Torre Eiffel, muitos outros seguiram o exemplo e começaram a construir suas próprias estruturas. Muitos arquitetos e artistas sentiram que, mesmo que não houvesse um lugar para observar a cidade, a combinação certa de altura e simbolismo teria o mesmo efeito e geraria entusiasmo - no entanto, isso não era o que acontecia na maioria das vezes.

Hoje em dia as torres de observação ganharam vida própria. Em vez de serem uma estrutura com um propósito singular, estão sendo integradas em edifícios que possuem outros elementos programáticos como o espaço de escritórios. A sociedade agora examina fortemente o uso do terreno, fazendo com que as plataformas de observação que são apenas plataformas de observação pareçam um desperdício de espaço.

Para os visitantes, as plataformas de observação oferecem uma vista da cidade que realmente não pode ser capturada de outra maneira. Para as cidades, oferece uma oportunidade de exibir seu progresso e orgulho cultural e gerar receita ao atrair turistas que desejam experimentar a maravilha de seu horizonte. Ao longo do próximo século, à medida que as cidades crescem em densidade e a tecnologia permite que os edifícios sejam construídos em novas alturas, as torres de observação continuarão proporcionando uma experiência única.

O mirante terá sua estrutura metálica independente, com vigas metálicas no sentido transversal e longitudinal com enchimento em concreto pré-moldado e acabamento no piso tipo granilite.

PROPOSTA DA COBERTURA

Os vazios internos serão cobertos por claraboias e coberturas planas, confeccionadas em perfis de aço e vidros laminados translúcidos, para evitar a entrada de chuva e garantir, através da ventilação, a reprodução das condições originais de respiração do conjunto dos espaços internos. Com a utilização de claraboias na cobertura, cria-se uma nova espacialidade em todo o recinto da edificação, na sucessão dos espaços, no fluxo dos visitantes, na luminosidade, produzida ou reproduzida com os recursos arquitetônicos projetados.

20

São Gonçalo dos Campos I Bahia I Brasil

INTEGRAÇÃO DAS CALÇADAS

De maneira geral, para garantir a circulação universal das pessoas, as calçadas devem apresentar superfície regular, contínua, firme, antiderrapante e sem mudanças de níveis ou inclinações. Na prática, sabemos que é raro encontrar calçadas que atendam a esses parâmetros de qualidade. De todos os elementos que compõem uma calçada, a exploração dos recursos de pisos e o enfrentamento da topografia são fundamentais para garantir qualidade no desenho urbano.

Não são poucos os manuais e livros que sugerem como se projetar boas calçadas. Em geral, as regras preveem que as calçadas tenham no mínimo 2 metros de largura e sejam divididas em dois ou três trechos, nos quais se concentram a infraestrutura necessária, como os pontos de visita de esgoto, gás, energia, água, elementos vegetais, além também de preverem espaços para circulação de pedestres e acesso aos lotes. Ao mesmo tempo, o projeto de calçada consiste em uma combinação de quatro elementos principais: piso, mobiliário, fachada e vegetação, dos quais o piso, isso é, a acomodação da calçada sobre o solo limítrofe ao leito carroçável, representa parte fundamental das calçadas, sendo responsável pela organização dos fluxos e da infraestrutura. O desenho de piso é responsável pela setorização da calçada, isso é, a partir do indicado diferenciando por cor, nível ou material, entende-se como um espaço de trânsito, de permanência, ou ainda uma área não acessível, onde estão localizados os pontos de infraestrutura necessários sem comprometer o fluxo de pedestres, como o poste de energia ou lixeiras. Fora isso, o desenho de calçadas não deve apenas lidar com as demandas de infraestrutura básica, mas também precisa se adequar às características locais, propondo soluções para acomodar a topografia, ou qualquer outro elemento pré-existente. Por fim, os desenhos de piso de calçadas também são a interlocução do edifício com a rua, comunicando a identidade do projeto com a cidade, buscando também garantir acessibilidade universal.

Em relação à sua materialidade, busca-se utilizar materiais que sejam resistentes e duráveis, para que garantam anos de permanência e pouca manutenção, ao mesmo tempo que preza-se por texturas que sejam mais rugosas e brutas, fugindo dos pisos lisos nas áreas de circulação e garantindo segurança ao se movimentar. Além disso, é possível a partir de uma combinação de materiais especificar a setorização dos trechos, alternando cores ou a materialidade. Alguns trechos de calçadas podem ser marcados por canteiros de terra ou grama, normalmente especificando onde ficam os pontos de inspeção da infraestrutura ou também a vegetação.

Pedras naturais não polidas, sejam em placas grandes ou a combinação de peças menores, cimentado e ladrilhos hidráulicos são alguns dos materiais possíveis de serem usados nos pisos das calçadas. Uma outra opção muito utilizada são os blocos intertravados e suas variações, que consistem em peças que não usam massa para sua fixação e são, portanto, permeáveis. Muitas vezes se vê a combinação de mais de um material de piso, ou do mesmo material combinado com cores diferentes, marcando a setorização da calçada, ou ainda combinado com vegetação.

Ao mesmo tempo, o desenho de piso está totalmente relacionado à forma como o lote se relaciona com a rua, e como a topografia atua naquele lugar da cidade. Normalmente pensamos em calçadas largas e planas, mas em regiões onde a topografia é muito íngreme, é fundamental garantir uma transição suave na calçada, tanto em relação à entrada do lote, quanto em relação aos vizinhos e à continuidade da rua. Para tanto é importante que o desenho da calçada garanta a acomodação da topografia em platôs, degraus ou rampas. É importante também garantir a continuidade desse relevo entre vizinhos,para não gerar grandes degraus ou diferenças.

Por fim, os desenhos de piso são muitas vezes utilizados como marcos temporais e geográficos, como é o caso das calçadas feitas com os mosaicos de pedras. As “pedras portuguesas, como são conhecidas as pedras em formato irregular têm origem no calcário e

Conceitual
Projeto
de Place Branding
21

Projeto Conceitual de Place Branding

São Gonçalo dos Campos I Bahia I Brasil

no basalto e materializam desenhos que se tornaram símbolos de cidades, como no caso do Rio de Janeiro ou também murais no chão em Portugal. Hoje em dia as leis que incidem sobre esses espaços públicos acabam por limitar a possibilidade desses desenhos, mas, ao mesmo tempo, buscam trazer uma combinação de outros elementos importantes como infraestutura verde, acessibilidade universal e conforto ambiental, o que torna as calçadas mais adequadas à vida cotidiana e menos residuais em cidades dominadas por automóveis8 .

8 Fonte: https://www.archdaily.com.br/br/983489/desenhando-cidades-melhores-como-escolher-o-piso-dascalcadas?utm_medium=email&utm_source=ArchDaily%20Brasil&kth=5,757,570

22

Projeto Conceitual de Place Branding

São Gonçalo dos Campos I Bahia I Brasil

CARACTERIZAÇÃO TÉCNICA DAS INTERVENÇÕES NA ÁREA URBANA

INTEGRAÇÃO DE PISO (PISO COMPARTILHADO)

Em termos de intervenção urbana no entorno do Espaço Popular propomos aqui a integração de todo o piso – calçada e caixa de rua, de forma a haver o compartilhamento do piso entre automóveis e pedestres. Tendência urbana de valorização do pedestre e do ato de caminhar.

PAGINAÇÃO DE PISO

Uma das formas de diferenciação do piso em áreas compartilhadas, a diferenciação na paginação dos pisos através de tipos, cores ou formatos, a paginação destaca os espaços compartilhados entre carros e pedestres e os só para pedestres.

BALIZADORES

Outra forma de diferenciação em pisos compartilhados, os balizadores servem para indicar caminhos e orientar por onde os carros devem seguir. Nesta proposta eles são integrados à paginação de piso, garantindo maior segurança aos pedestres que circularão pelo centro urbano.

BANCOS EM MADEIRA

Um dos itens destacados no levantamento das informações de campo é a grande quantidade de madeira encontrada no interior do Espaço Popular. Seguindo tendências de sustentabilidade do processo de intervenção em construções de valor histórico, propõe-se aqui o aproveitamento da madeira da demolição do mezanino na confecção de mobiliário urbano, em especial em bancos púplicos.

23
Perspectiva da Praça J. J. Seabra
Perspectiva da Praça J. J. Seabra
Perspectiva da Praça J. J. Seabra
Perspectiva da Praça J. J. Seabra

Perspectiva da lateral do Espaço Popular

Perspectiva da Praça Cazuza Machado
Perspectiva da Praça Cazuza Machado
Perspectiva do Mirante do Espaço Popular

Place Branding

São Gonçalo dos Campos I Bahia I Brasil

CARACTERIZAÇÃO TÉCNICA DAS INTERVENÇÕES NO ESPAÇO POPULAR MIRANTE

Proposta inovadora deste projeto, a implantação de um Mirante público na cidade é caracterizado pelo seu perfil moderno e arrojado, através de uma estrutura metálica com guarda corpo em metal e vidro laminado temperado.

COBERTURA

A cobertura deste mirante é plano e estruturado em perfis de aço e vidros laminados translúcidos evitando a entrada de chuva e garantindo a ventilação natural.

CLARABOIA

Estrutura necessária para garantir a boa circulação de ar na área interna do Espaço Popular – e já existente na estrutura de cobertura antiga do prédio – está sendo proposto a cobertura das laterais do salão principal em perfis de aço e vidros laminados translucido.

FACHADAS

Seguindo indicações dos principais órgãos que regulam as intervenções urbanas em sítios históricos brasileiros (IPHAM e CAU), as obras de intervenção na estrutura física do Espaço Popular aqui propostas não degradam a estrutura existente, mantendo o material original e evita mascarar a sua história.

ILUMINAÇÃO CÊNICA

A iluminação cênica a ser trabalhada tanto na uma ideia preliminar para reabilitação do edifício do Espaço Popular quanto na Intervenção urbana do seu entorno reforça a integração da proposta com outros lugares próximos tais como a praça da igreja matriz e a prefeitura.

Projeto Conceitual de
32

Projeto Conceitual de Place Branding

Gonçalo dos Campos I Bahia I Brasil

33
São

Projeto Conceitual de Place Branding

São

Gonçalo dos Campos I Bahia I Brasil

PERSPECTIVA EXPLODIDA

34

Projeto Conceitual de Place Branding

São Gonçalo dos Campos I Bahia I Brasil

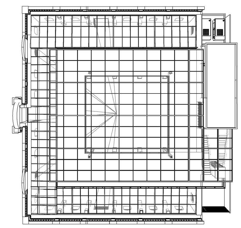
PLANTA TÉRREO

LEGENDA

1. ACESSO PRINCIPAL

2. ACESSO LATERAL

3. ESPAÇO MULTIUSO

4. SANITÁRIOS

5. MANIPULAÇÃO

6. PLATAFORMA

7. ESCADA

8. CAMARIM

9. CIRCULAÇÃO

10. GERADORES

11. CAFÉ/LANCHONETE

12. ADMINISTRAÇÃO

13. MIRANTE

35

Projeto Conceitual de Place Branding

São Gonçalo dos Campos I Bahia I Brasil

PLANTA 1º PAVIMENTO

LEGENDA

1. ACESSO PRINCIPAL

2. ACESSO LATERAL

3. ESPAÇO MULTIUSO

4. SANITÁRIOS

5. MANIPULAÇÃO

6. PLATAFORMA

7. ESCADA

8. CAMARIM

9. CIRCULAÇÃO

10. GERADORES

11. CAFÉ/LANCHONETE

12. ADMINISTRAÇÃO

13. MIRANTE

36

Projeto Conceitual de Place Branding

São Gonçalo dos Campos I Bahia I Brasil

PLANTA MIRANTE

LEGENDA

1. ACESSO PRINCIPAL

2. ACESSO LATERAL

3. ESPAÇO MULTIUSO

4. SANITÁRIOS

5. MANIPULAÇÃO

6. PLATAFORMA

7. ESCADA

8. CAMARIM

9. CIRCULAÇÃO

10. GERADORES

11. CAFÉ/LANCHONETE

12. ADMINISTRAÇÃO

13. MIRANTE

37

Projeto Conceitual de Place Branding

São

Gonçalo dos Campos I Bahia I Brasil

PLANTA DE COBERTURA

38

Projeto Conceitual de Place Branding

São Gonçalo dos Campos I Bahia I Brasil

CORTES TRANSVERSAIS

LEGENDA

1. ACESSO PRINCIPAL

2. ACESSO LATERAL

3. ESPAÇO MULTIUSO

4. SANITÁRIOS

5. MANIPULAÇÃO

6. PLATAFORMA

7. ESCADA

8. CAMARIM

9. CIRCULAÇÃO

10. GERADORES

11. CAFÉ/LANCHONETE

12. ADMINISTRAÇÃO

13. MIRANTE

39

Projeto Conceitual de Place Branding

São Gonçalo dos Campos I Bahia I Brasil

CORTES TRANSVERSAIS

LEGENDA

1. ACESSO PRINCIPAL

2. ACESSO LATERAL

3. ESPAÇO MULTIUSO

4. SANITÁRIOS

5. MANIPULAÇÃO

6. PLATAFORMA

7. ESCADA

8. CAMARIM

9. CIRCULAÇÃO

10. GERADORES

11. CAFÉ/LANCHONETE

12. ADMINISTRAÇÃO

13. MIRANTE

40

Projeto Conceitual de Place Branding

São Gonçalo dos Campos I Bahia I Brasil

FACHADAS

41 ‘

Projeto Conceitual de Place Branding

São

Gonçalo dos Campos I Bahia I Brasil

FACHADAS

42

São Gonçalo dos Campos I Bahia I Brasil

COMUNICAÇÃO & MARKETING

Cada projeto pensado para um espaço público dá início a uma busca, que começa nas camadas mais superficiais e se aprofunda desvendando histórias e peculiaridades distintas, contadas pelos que vivenciaram e registraram momentos preservando sua memória. Com as pesquisas, floresce o interesse sobre os acontecimentos que deram origem ao desenvolvimento local, traduzindo um significado comum, contribuindo na compreensão do conceito. Dando com isso, forma à ideia da identidade de uma marca lugar.

Não é diferente em São Gonçalo dos Campos, onde seu ar agradável preserva uma ambiência que nos indica ser um local que quer preservar sua essência de uma cidade que abraça seus moradores.

Essas memórias preservadas tornaram-se um senso comum no uso do espaço público, nos eventos típicos de cada época, marcados claramente por quem os vivenciou no espaço, evidenciados no brilho dos olhos dos entrevistados. Essas lembranças, cheias de alegria e boas memórias do local, transmite uma imagem saudosista dos bons tempos no qual o Espaço Popular congregava a população. Essa experiência vivida por cada um faz parte de um inconsciente coletivo, comum a todos, que diante de sua natureza intangível, ganha forma na proposta de um espaço que vai além de um local de uso único.

Propõe-se um novo lugar, onde o espaço, local físico com suas paredes que vencem o tempo, se une às pessoas, com suas diferenças e particularidades. Um lugar novo e democrático.

E para dar concretude a esta abstração, este novo lugar, também é representado por uma nova imagem, uma nova marca, interlocutora, que preserva e dá concretude a essa abstração.

Sua forma contempla elementos significantes, tanto da fachada, como o da escrita em curva, e da parte interna, compartilhada na visão de quem frequentou e irá frequentar o espaço. As cores bege e marrom dão o tom de uma identidade alinhada com outros elementos que compõem a cidade, como a prefeitura, a estação ferroviária, etc. Os aspectos técnicos também foram levados em consideração, e o que pode parecer menos em sua simplicidade, torna-se mais. Mais facilidade nas reproduções a exemplo do bordado, serigrafia, impressão gráfica e outros; mais entendimento numa redução ou visualização a distância; mais coerência; mais coesão; mais força.

Projeto Conceitual de
Place Branding
43

São Gonçalo dos Campos I Bahia I Brasil

PRÓXIMAS ETAPAS

PROJETO EXECUTIVO DO ESPAÇO POPULAR

Por se tratar de uma estrutura de relevância histórica e cultural para a cidade (embora não se trate de um Patrimônio Tombado) a etapa de elaboração do Projeto Executivo9 envolverá também a realização de algumas ações técnicas de levantamento de informação sobre a estrutura física, conforme as orientações do CAU e do IPHAM.

Entre as ações necessárias, temos:

Projeto de Intervenção no Patrimônio Edificado

[...] estabelecer diretrizes, orientar e sistematizar as informações indispensáveis à elaboração do Projeto, definindo os procedimentos necessários e específicos, considerando o fato de ser o Bem de especial interesse histórico cultural. Desta forma, o Projeto de Intervenção no Patrimônio Edificado é constituído pelas seguintes etapas:

Identificação e Conhecimento do Bem;

Esta etapa tem o objetivo de conhecer e analisar a edificação sob os aspectos históricos, estéticos, artísticos, formais e técnicos. Objetiva também compreender o seu significado atual e ao longo do tempo, conhecer a sua evolução e, principalmente, os valores pelos quais foi reconhecida como patrimônio cultural. São atividades componentes desta etapa: Pesquisa Histórica; Levantamento Físico; Análise Tipológica, Identificação de Materiais e Sistema Construtivo; Prospecções.

Diagnóstico

É a etapa de consolidação dos estudos e pesquisas anteriormente realizados, na medida em que complementa o conhecimento do objeto, analisando de forma pormenorizada determinados problemas ou interesses específicos de utilização do Bem. São atividades componentes desta etapa: Mapeamento de Danos; Análises do Estado de Conservação; Estudos Geotécnicos; Ensaios e Testes.

Proposta de Intervenção

Compreende o conjunto de ações necessárias para caracterizar a intervenção, determinando soluções, definindo usos e procedimentos de execução, abordados técnica e conceitualmente. A etapa Proposta de Intervenção subdivide-se em três partes interdependentes, a saber: Estudo Preliminar; Projeto Básico de Intervenção; Peças Gráficas; Projetos Complementares.

9 Consiste no desenvolvimento e detalhamento das informações prestadas na etapa de Projeto Básico, revisadas, complementadas, acrescidas de todos os detalhes construtivos e indicações necessárias à perfeita compreensão dos serviços, técnicas e materiais empregados, com vistas à execução da intervenção, definição de orçamento e fixação de prazo.

Projeto Conceitual de
Place Branding
46

São Gonçalo dos Campos I Bahia I Brasil

PROJETO DE CENTRO DE INTERPRETAÇÃO DO PATRIMÔNIO (CIP/DIGITAL)

Propõe-se que após o processo de requalificação física do Espaço Popular, seja elaborado um projeto de uso deste importante equipamento histórico-cultural da cidade. Um modelo de uso aqui proposto é a de implantação de um Centro de Interpretação do Patrimônio (CIP), com a proposta voltada ao estimulo de novas leituras interpretativas sobre os fatos históricos e culturais da cidade. Sobre esse conceito proposto, recomendamos a leitura do Artigo “Centro de Interpretação em Sítios Culturais Patrimoniais”, de autoria do Diretor de Cooperação e Fomento do IPHAN, Marcelo Brito, Anexo III, cujo trecho está reproduzido a seguir:

“O Centro de Interpretação não deve se confinar ao edifício onde está instalado, mas convidar e orientar os visitantes a conhecer o local, o território onde o sítio cultural patrimonial se encontra, a experimentar as vivências quotidianas da população local, na sua mais autêntica tradição. É a porta de entrada para conhecer a localidade e, a partir dela, desenvolver atividades turísticas vinculadas aos testemunhos históricos e às manifestações culturais existentes, revelando no local o significado do legado cultural que o sítio possui. Diferentemente dos museus, não carecem de acervos para sua existência, ainda que possam fazer uso deles e tampouco se propõem ao seu estudo, pesquisa e conservação. (...) O principal objetivo da interpretação não é instruir, mas instigar.” (Fonte: BRITO, Marcelo. Artigo “Centro de Interpretação em Sítios Culturais Patrimoniais”. IPHAN,2019)

A proposta aqui apresentada é a de um CIP moderno e inovador, totalmente digital e utilizando-se das tecnologias da realidade aumentada10. Desta forma, o espaço físico permitirá o uso inicial proposto, de um espaço de usos múltiplos.

A tecnologia de RA permitirá a junção do levantamento histórico cultural da cidade com um processo de visualização além de inovador, democrático, pois os visitantes poderão acessar as informações no próprio celular, através de aplicativo especifico do CIP/Digital.

10 Realidade Aumentada é uma tecnologia que permite sobrepor elementos virtuais à nossa visão da realidade. Um bom exemplo de realidade aumentada são as etiquetas QR Code em pontos turísticos de cidades.

Conceitual de
Projeto
Place Branding
47

Projeto Conceitual de Place Branding

São Gonçalo dos Campos I Bahia I Brasil

PLANO MUNICIPAL DE TURISMO

Em se tratando do desenvolvimento de um equipamento de importância histórico e cultural da cidade, e como estes exercem importante impacto na dinâmica turística da região, sugere-se a elaboração de um Plano Municipal do Turismo, voltado para o desenvolvimento do turismo da cidade.

O plano municipal de turismo é, portanto, uma ferramenta que tem o intuito de contribuir com o desenvolvimento da atividade em âmbito municipal, apresentando estratégias e ações voltadas ao incremento e estruturação do turismo no destino.

Esta ação tem no SEBRAE Bahia um importante parceiro por já disponibilizar solução especifica para tanto: Edital de Inovação Aberta / Ficha Técnica Fomento e Desenvolvimento do Turismo de Municípios.

48

Projeto Conceitual de Place Branding

São Gonçalo dos Campos I Bahia I Brasil

49 MMO Consultoria Empresarial Ltda CNPJ 30.578.303/0001-57 Al.Salvador, 1057 / 912 41.820-790 Salvador BA mmoconsultassoc@gmail.com

Turn static files into dynamic content formats.

Create a flipbook
Issuu converts static files into: digital portfolios, online yearbooks, online catalogs, digital photo albums and more. Sign up and create your flipbook.