Mitra Fatchett Wildflower Reserve

Page 1

WILDFLOWER RESERVE

ECO-RESORT & SPA EMINENCE, MISSOURI

Capstone Book
2 CONTENTS Ecotourism and Green Eco-lodging 5 Problem Statement 6 Concept 8 Logo & Color Development 12 Look + Feel 15 What People Are Saying 18 Spotlight: People of Eminence 20 Welcome to Wildflower Reserve 22 Proposed Resort Map 24 Your Ride 26 Target Clientele 28 Ozark Cuisine 32 Diagrams 34 Floor Plans 40 Diagrams 34 Floor Plans 40 Building Section 46 Renderings 48 Code Analysis 54 Criteria Matrix 56 Mitra Fatchett Interior Design Capstone 2024

Wildflower Reserve is enwrapped in nature’s loving embrace, harmoniously balanced indoors and out. This is where mankind and mother earth generously pour love into one another. Where the mind comes to find peace, where the body comes to find rejuvenation Where the soul comes to find purpose. United together in an unbreakable bond, the mind, body, and soul will experience passion, adventure, and escapeand will leave feeling forever enriched.

M. Fatchett

ECOTROURISM AND GREEN ECOLODGING

A MUTUALLY BENEFICIAL VACATION

Through ecotourism, visitors will have a nature-inspired vacation while minimizing the impact on the environment. Your money supports the Eminence community and conservation efforts surrounding the area.

Feel at peace knowing your home away from home was:

• built using local and sustainable materials

• separates and collects recyclables

• uses water conserving shower heads and toilets

• uses gray water for landscaping

Wildhood Reserve in Eminence, Missouri offers spectacular views of nature and is a paradise for outdoor enthusiasts and spa-lovers alike. The luxury eco-resort and spa provides Eminence locals with meaningful jobs, while guests feel fulfilled knowing they made a positive impact on the local community and wild plant and animal life.

Source: What is an Ecolodge? - ecolodge types and definitions. Worldwide Ecolodges. (2022, December 22). https://worldwideecolodges.com/wp/ecolodge-exp-2/

5

PROBLEM STATEMENTS & GOALS

THE NEED FOR SUSTAINABLE LUXURY TRAVEL IN MISSOURI

PROBLEM STATEMENTS

Demand for Luxury Travel

The high demand for post-pandemic luxury travel has created a thriving global market which reached $1.2 trillion in 2021.

Sustainable Travel

In a survey released by Virtuoso, 74% of their travelers said they would be willing to pay more for sustainable travel and 70% felt that it actually enhances their experience.

Exploration

Social media has influenced the tourism industry leaving travelers with a strong desire to explore remote destinations.

Luxury Eco-Resort in Missouri

In Missouri there is the need for sustainable luxury lodging to cater to those visitors seeking remote purposeful travel.

With over 6,000 acres of hills within the Sunklands Conservation Area, visitors can explore the preserved plant and animal life of Shannon County.

GOALS

• Design a luxury eco-resort & spa in Missouri

• Create awareness of Missouri’s natural beauty and conservation efforts

• Provide a sustainable serene retreat for both Missourians and nature-lovers world-wide

• Enhance lifestyles and overall human wellbeing

• Create jobs for Eminence locals

CONCEPT

AN ELEVATED WILDERNESS EXPERIENCE

Honor the surrounding landscape in a setting that luxuriously mirrors the natural beauty within...

“When you have that much nature around you, you can’t compete.”

Grace Fuller Marroquin Landscape Designer

CONCEPT (CONTINUED)

QUIET LUXURY

Classic, unpretentious, chic sophistication. The highest quality for a timeless look

CALMING REJUVENATION

Surrounded by calming scents, sounds, softness, and scenic landscape

10
VIBE

EMBRACED BY NATURE

Earthy, soulful, rich, and inspired by the landscape

REFINED WARMTH

Cozy, warm, and secure

11

LOGO & COLOR DEVELOPMENT

Firepink flowers, native Missouri wildflowers, are sprinkled throughout the region and known for their red crowns and lobes. The flowers attract hummingbrids.

Indian Paintbrush, another wildflower found throughout Missouri, but particularly within the Sunklands Conservation Area.

Sources: Indian paintbrush. Indian Paintbrush | New Mexico State University - BE BOLD. Shape the Future. (n.d.). https://lowwaterplants.nmsu.edu/plants/indian.html ; Fire pink. Missouri Department of Conservation. (n.d.). https://mdc.mo.gov/discover-nature/field-guide/fire-pink

12

Native Americans used the Indian Paintbrush flower for medicinal uses to treat rheumatism and as a hair rinse for glossy hair!

(RIGHT: Indian Paintbrush Flower, a Missouri wildflower and source of color inspiration)

WILDFLOWER RESERVE

LUXURY ECO-RESORT & SPA EMINENCE, MISSOURI

13

FINISH & MATERIAL INSPIRATION

A JUXTAPOSITION OF LARGE FORMAT FORMS AND SOFT,

ORGANIC ELEMENTS INSPIRED BY NAUTRE

Intentional design

Careful selection of long lasting, locally sourced products

14
Missouri White Oak and Maple | Rammed Earth | Concrete made from cement manufactured in Missouri | Nature-inspired finishes | Missouri Limestone

LOOK & FEEL

15

TARGET CLIENTELE

NATURE-LOVING ADULTS OF ALL AGES

HEALTH & WELLNESS ENTHUSIASTS

ADVENTURE LOVERS

RETREAT SEAKERS

16
17

SPOTLIGHT: PEOPLE OF EMINENCE

NUMBERS AND STATISTICS

TRANSPORTATION&MATERIAL MOVING

MAINTENANCE,INSTALLATION, REPAIR

CONSTRUCION & EXTRACTION

Wildflower Reserve will create additional jobs and bring more income into the local community.

FARMING,FISHING,FORESTRY

OFFICE & ADMIN

OCCUPATIONS

MANAGEMENT

HEALTHCAREPRACTIONERS

&

BUILDING&GROUNDS

SALES

18
CLEANING
PREPARATION
SERVING
FOOD

TOTAL POPULATION

$36,667

MEDIAN HOUSEHOLD INCOME

$53,751

AVERAGE HOUSEHOLD INCOME

SOURCE: Eminence, Shannon County, Missouri Population and Demographics. U.S Population. (n.d.). https://uspopulation.org/missouri/shannon-county/eminence/

500

WELCOME TO WILDFLOWER RESERVE

RELAX, EXPLORE, ESCAPE

THE FIRST LUXURY ECO-RESORT & SPA IN MISSOURI

“There are certain places and activities in Eminence that are simply quiet, serene; some are even magical.. if you're set on getting out of your hometown for a weekend and going somewhere in Missouri where nature is the main event, Eminence is the place to be.”

“This enchanting town in Missouri is unlike any other in the world. There is a lot to love about Eminence, Missouri. This enchan ting nature hot spot brings visitors, from all over the country, to this tiny little town in the Ozarks. There are endless acitivities to try and once in a lifetime sights all located in a town with a population of just over 500. So, take the road less traveled and fall in love with Eminence, the most unique and lovely small town in Missouri...”

“This was the greatest show on earth, and I was the only spectator...I had set out to search for the most remote spot so I could enjoy feeling remote.”

Matt Crossman, Missouri Life Reminiscing on his star gazing experience in the Sunklands Conservation Area

Liz Oliver, Only in Your State

20

From exciting outdoor adventures and leisurely swims to wild horse encounters, bird watching, and stargazing, Wildflower Reserve is perfectly situated in the center of it all.

• Explore plant and animal life in the Sunklands Conservation area.

• Stargaze in a remote area deep within Sunklands.

• Hike, float, or kayak down the Current River.

• Visit the charming town of Eminence and see Missouri’s wild horses.

21
SUNKLANDS CONSERVATION AREA
EMINENCE
CURRENT RIVER STATE PARK WILDFLOWER RESERVE

A STUDY OF THE LAND AND SITE PLAN

22
SITE ANALYSIS
EXISTING SITE SUN PATH 3D SITE VIEW FACING SOUTH TOPOGRAPHY
23
PROPOSED RESORT PLAN
Guest House Gazebo Boardwalk EV Shuttle Boardwalk Path Reception + spa + restaurant Shuttle Parking Yoga studio + gym Main entrance/parking Guest Houses Guest Houses

YOUR RIDE

WILDERNESS CHIC

Guests are driven around the property in comfort, class, and style in a Mercedes-Benz EQG (electric G-Class).

Ready for all seasons, windows down or bundled up for winter, the property’s fleet of EQGs are ready to take guests on excursions and tours.

Uncompromised power and maneuverability, but green-conscious electric off-roading vehicle.

• 50 mpge

• 25 miles electric-only range

• 3 drive modes: hybrid, EV only and eSave

• Regenerative braking (battery charge)

• Max Regen mode

Sources:

Concept EQG. Mercedes. (2023, September 21). https://www.mercedes-benz.com/en/vehicles/g-class/concept-eqg/

24

PARTI DIAGRAM

360 CONNECTION TO NATURE

BLURRING THE BOUNDARIES WITH THE OUTDOORS

ALL BUILDINGS SURROUNDED BY FOREST WITH LAKE VIEWS

26
27
LAKE FOREST

BLOCK DIAGRAMS

LEVEL I: LOBBY | MUSEUM | CAFE

MUSEUM

RESTROOMS STAFF BREAK ROOM

COPY ROOM

LAKE VIEWS

MONUMENTAL STAIR RECEPTION

RESTROOMS

28
ELEVATOR
IT
LUGGAGE LIVING ROOM CAFE ELEVATOR
OFFICE ENTRY
LOUNGE
TERRACE
LOUNGE

LOWER LEVEL- SPA | GYM | POOL

FITNESS CENTER

GYM + YOGA STUDIO

LAKE VIEWS

INDOOR POOL OUTDOOR POOL

TREATMENT ROOMS

CHANGE

29
ELEVATOR
RECEPTION
MEN’S LOCKERS (BATH/ CHANGE WOMEN’S LOCKERS (BATH/
WHIRLPOOL + STEAM
LOUNGE
STEAM LOUNGE
WHIRLPOOL +
ELEVATOR LOUNGE

BLOCK DIAGRAMS

LEVEL II: RESTAURANT & BAR

LAKE VIEWS

FOREST VIEWS

30
DINING ROOM BOH OFFICE RESTROOMS BAR ELEVATOR RESTROOMS
OPEN TO BELOW OPEN TO BELOW ELEVATOR CHEF’S OFFICE GAMES CAFE SEATING

RESTAURANT CEILING WC

RESTAURANT UPHOLSTERY

RESTAURANT TABLE AND BAR TOP

CAFE CASEWORK PAINT WALL PAINT

FIREPLACE AND STAIRS TRAVERTINE

LOUNGE UPHOLSTERY

LOUNGE UPHOLSTERY

LOUNGE UPHOLSTERY

RESTAURANT UPHOLSTERY

LOUNGE LEATHER

LOUNGE UPHOLSTERY

31
GYM WC
MATERIALS
METAL FINISHES WOOD FLOORING LOUNGE RUG BAR FLOOR TILE
LIMESTONE FLOOR TILE SPA LIMESTONE TILE
OUTDOOR
BATHROOM TILE

LOWER LEVEL: SPA + POOLS + FITNESS

32 FLOOR
PLAN

INFINITY EDGE

INDOOR POOL

DOUBLE TREATMENT ROOM SINGLE TREATMENT

SINGLE TREATMENT SINGLE TREATMENT

33
LOWER LEVEL-SPA NTS
GYM CABANAS
YOGA
MEN’S LOCKERS SPA RECEPTION SAUNA WHIRLPOOL STEAM SHOWERS LOUNGE LOUNGE SAUNA WHIRLPOOL
OFFICE
STEAM SHOWERS CABANAS
N
WOMEN’S LOCKERS

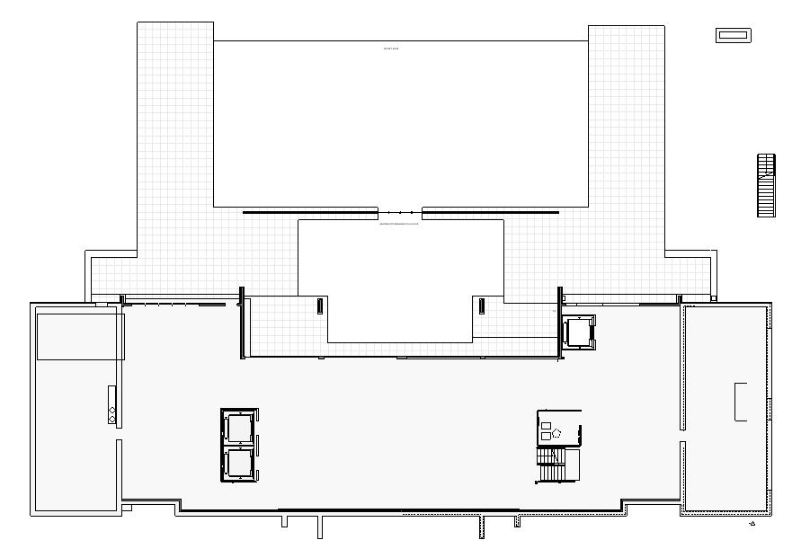
LEVEL I: LOBBY + MUSEUM + CAFE

34
FLOOR PLAN
35 STAFF CONFERENCE/ LOUNGE N LEVEL I-LOBBY NTS ART GALLERY TERRACE ALL-GENDER RR LOUNGE LUGGAGE OFFICE LIVING ROOM CAFE ALL-GENDER RR DUAL-SIDED TWO-STORY FIREPLACE
LOBBY
MECH ENTRY
CAFE TERRACE OPEN STAIRS
W/
GARDEN BELOW

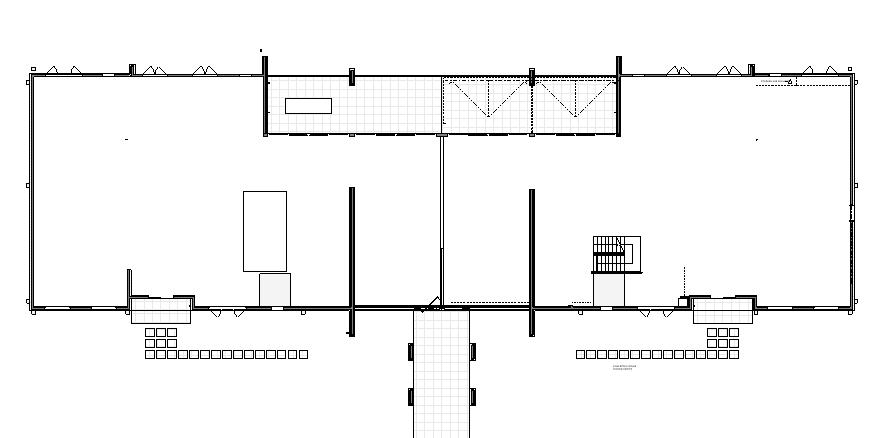
LEVEL II: RESTAURANT & BAR

36
N
KITCHEN
FLOOR PLAN
LEVEL II- RESTAURANT NTS
CEDAR + OAK

RESTAURANT & BAR

37 KITCHEN OPEN TO BELOW OPEN TO BELOW
OAK RESTAURANT GREENHOUSE BAR RR WOMEN RR MEN
BILLIARD LOUNGE
CHEF’S OFFICE OPEN TO BELOW GREEN WALL + GARDEN BELOW

Guests have an immediate view of the lake upon entry. Biophillic elements surround guests with views, indoor garden, and a backlit forest mural behind a petrified wood reception

38 LOBBY- LEVEL I

LOBBY LOUNGE-

A Lounge with a view. Subtle curves and modest pops of red are introduced to the space.

39
LEVEL I

A portion of the ceiling was removed to create a dramatic living room space, while floor to ceiling windows allow guests to take advantage of the views. A double height, dual-sided fireplace creates a cozy space where guests can socialize or play board games. A glimpse into the cafe reminds guests of beverage and snack options.

40 LIVING
LEVEL I
ROOM-

A nature exhibit educates guests on the Sunklands Conservation efforts while local artist are featured in the art gallery. Benches for reflection were added giving guest additional opportunities to take in the spectacular views.

41
GALLERY- LEVEL I
ART

Reds and tans come together in a nature-inspired restaurant known for its elevated Ozark cuisine. A forest mural surrounds guests with nature in each banquette, while organic luminaires add softness to the space.

42
II
RESTAURANT- LEVEL

The bar features a glass canopy so guests never miss an opportunity to connect with the surrounding landscape. Hanging plants provide shade and add another biophillic element to the space.

43
GREENHOUSE BAR- LEVEL II

Guests will enjoy working out in style in this high-intensity interval traininginspired gym.

44 GYM - LOWER LEVEL

YOGA STUDIO - LOWER LEVEL

45
The yoga studio features a light well, indoor garden, and sliding glass wall to maximize on views and fresh air.

WILDFLOWER RESERVE

LUXURY ECO-RESORT & SPA

EMINENCE, MISSOURI

SOURCES

46

5 hotel design trends for 2024, according to Designers. Hospitality Design. (2024, January 31). https:// hospitalitydesign.com/news/business-people/hotel-design-trends-2024/

Award winning Luxury Resorts & Private Homes: One&only. Award Winning Luxury Resorts & Private Homes | One&Only. (n.d.). https://www.oneandonlyresorts.com/

Boyd, E. (2024, January 10). 8 hotel and Resort Design Trends Shaping 2023: HRDS. Hotel & Resort Design South. https://hotelresortdesign-south.com/8-hotel-and-resort-design-trends-shaping-2023/

Eminence, MO. Data USA. (n.d.). https://datausa.io/profile/geo/eminence-mo

Future of luxury travel. Deloitte. (n.d.-b). https://www.deloitte.com/global/en/Industries/consumer/perspectives/future-of-luxury-travel.html

Luxury Resorts and residences. Auberge Resorts Collection. (2024, January 24). https://aubergeresorts. com/

Oliver, L. (2021, August 15). Visit the enchanting town of Eminence, Missouri and soak up the natural beauty. OnlyInYourState®. https://www.onlyinyourstate.com/missouri/enchanting-nature-town-mo/

Sunklands Conservation Area. Missouri Department of Conservation. (n.d.). https://mdc.mo.gov/discover-nature/places/sunklands-conservation-area

Sunklands. Missouri Department of Conservation. (n.d.-c). https://mdc.mo.gov/discover-nature/places/ natural-areas/sunklands

What is an Ecolodge? - ecolodge types and definitions. Worldwide Ecolodges. (2022, December 22). https://worldwideecolodges.com/wp/ecolodge-exp-2/

47

THANK YOU

Turn static files into dynamic content formats.

Create a flipbook
Issuu converts static files into: digital portfolios, online yearbooks, online catalogs, digital photo albums and more. Sign up and create your flipbook.
Mitra Fatchett Wildflower Reserve by Mitra Fatchett - Issuu