BITACORA PRACTICAS








Somos un empresa honesta, responsable y confiable. Contamos con un equipo de trabajo visionario, incluyente, y respetuoso con la puntualidad.
1. Somos claros, transparentes y honestos en el rumbo que seguimos como organización.
2. Generamos valor al cliente final interesándonos genuinamente por su bienestar y satisfacción.
3. Nunca dejamos de aprender, aprendiendo de mí, aprendo de otro.
4. Estamos comprometidos con el medio ambiente y nuestro entorno social.
Nuestra Marca es exitosa generando tendencias, a través de la disrupción positiva, como lideres en el mundo del urbanismo y la arquitectura excediendo las expectativas de nuestros clientes.
1. Diseñamos conceptos, producimos emociones y materializamos sueños.
2. La pasión y compromiso de cada uno, sumado a un esfuerzo colectivo nos lleva a cumplir nuestras metas.
3. Nos gozamos lo que hacemos, amamos lo que hacemos.
4. Transformamos ideas en proyectos con valor que generan experiencias.
Desde 1989 diseñamos proyectos integrales e innovadores, basados en el cumplimiento, la calidad y el conocimiento inmobiliario, a través de procesos efectivos y tecnologías vanguardistas.
1. Visionarios y materializamos proyectos que mejoran la calidad de vida de nuestros clientes.
2. Planeamos, priorizamos y creamos proyectos exitosos y rentables.
3. Cumplimos promesas entre nosotros y con los clientes, basándonos en nuestro conocimiento y experiencia.
4. Entendemos el mercado y generamos tendencias, marcando la diferencia.
Desarrollamos a nuestra gente responsabilidades de sus actos y decisiones valorando sus fortalezas y acompañándolos en sus desaciertos, creemos en su capacidad para innovar y generamos espacios de colaboración que nos permitan lograr un mayor compromiso y orgullo por lo que hacemos.
1. Somos un equipo humano que valora la experiencia de cada uno de nuestros integrantes.
2. Tenemos puesta la camiseta lo que nos permite lograr con pasión nuestros resultados, generando un valor diferenciador.
3. Creemos en el talento de nuestra gente, los empoderamos y acompañamos en crecimiento y desarrollo, generando orgullo por Contexto Urbano.
4. Generamos espacios de colaboración y creación, incentivando y reconociendo el compromiso y la capacidad de innovar de nuestra gente.
CAMARA DE COMERCIO
ACUERDO TRIPARTITA
ARL
PLAN DE TRABAJO
VIENA APARTAMENTOS ES UN PROYECTO INMOBILIARIO EN BOGOTÁ, CUNDINAMARCA, DONDE SE ENCONTRARAN APARTAMENTOS CON ÁREAS CONSTRUIDAS DESDE 39 M² HASTA 73 M².
EL PROYECTO SE ENCUENTRA REGISTRADO PARA CERTIFICACIÓN SOSTENIBLE E IMPLEMENTARÁ MEDIDAS DE AHORRO DE AGUA, ENERGÍA Y ENERGÍA EMBEBIDA EN LOS MATERIALES.
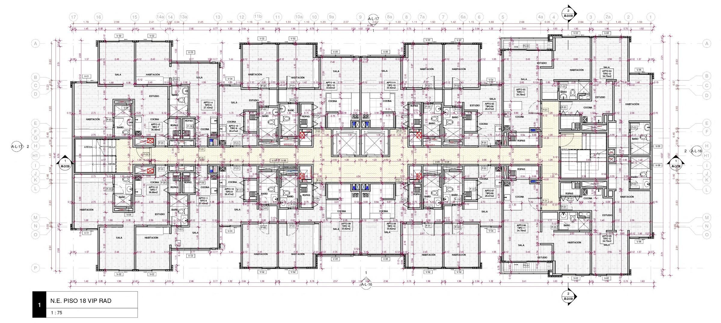
EL PROYECTO CONSTA DE 18 NIVELES POR ENCIMA DEL NIVEL 0.
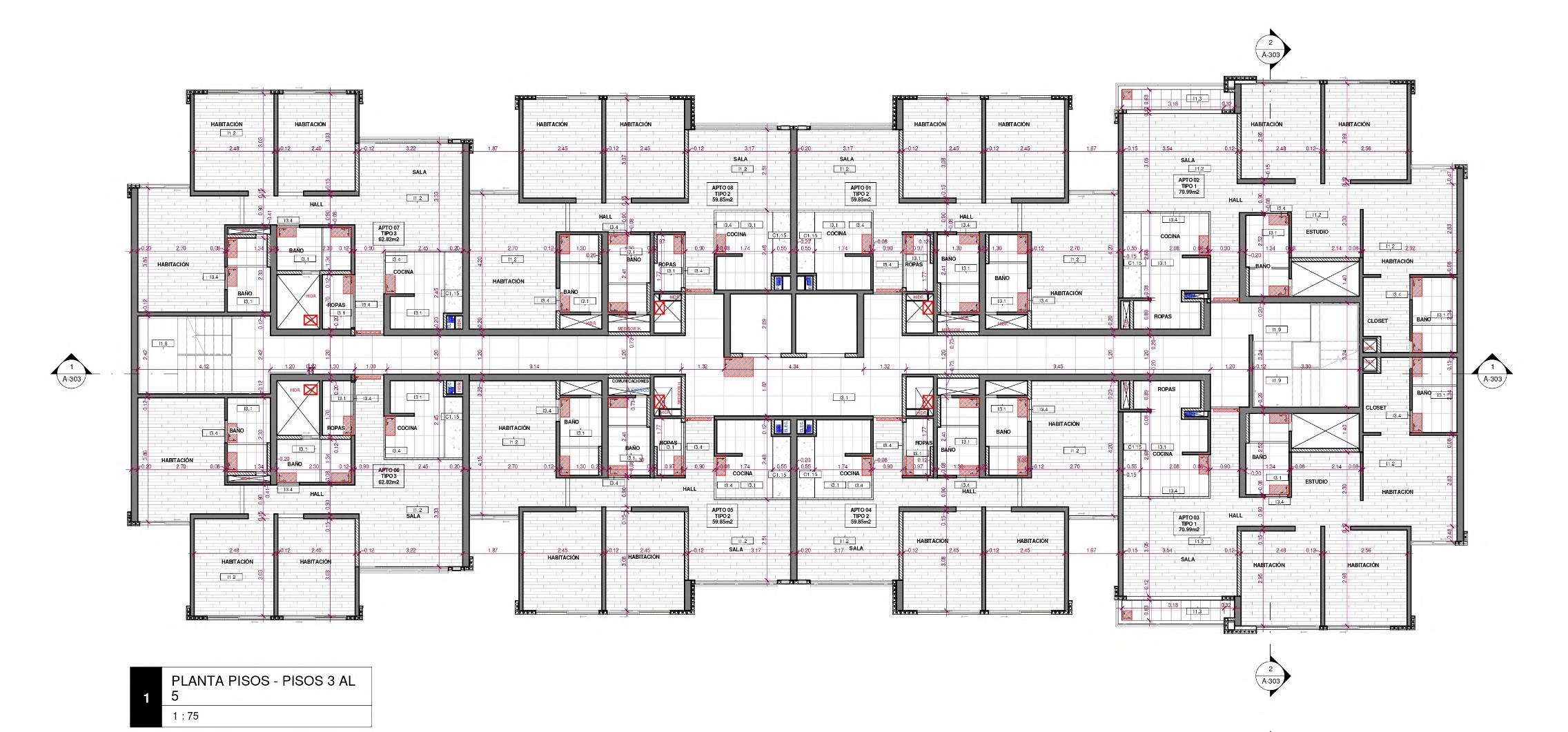
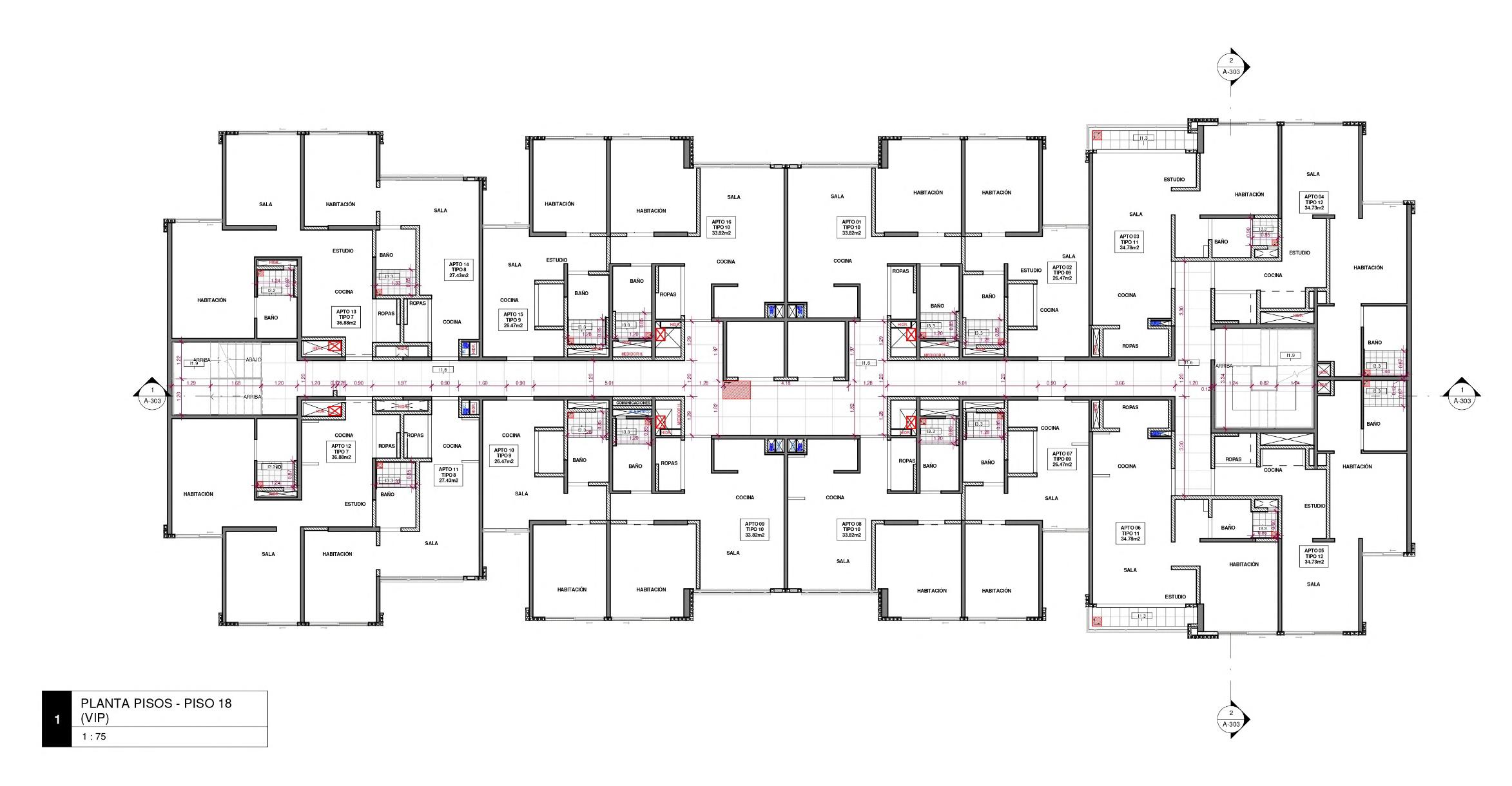
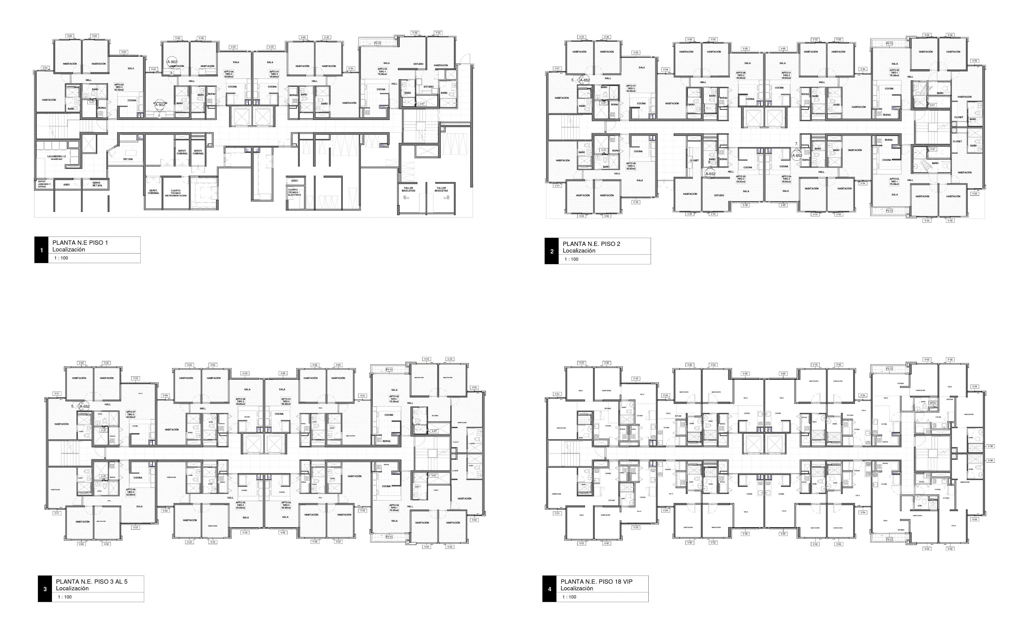
CUENTA CON 8 PISOS TIPO (PISO 1, PISO 2, PISO 3 5, PISO 6 10, PISO 11 15, PISO 16, PISO 17 Y PISO 18). EN LOS CUALES SE DISPONEN 8 TIPOS DE APARTAMENTOS DE 55 75 M² SIENDO EL PISO 18 EL UNICO PISO QUE MARCA UNA DIFERENCIA TENIENDO APARTAMENTOS VIS DE 35 40 M².
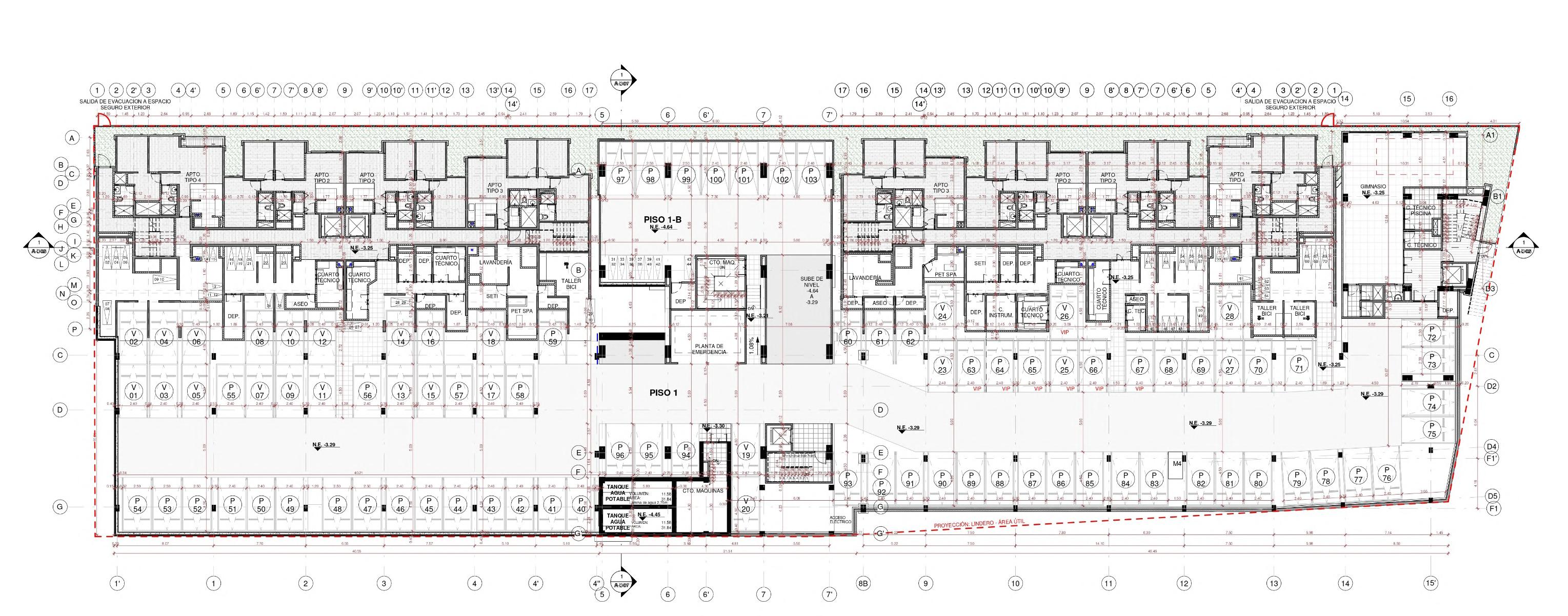
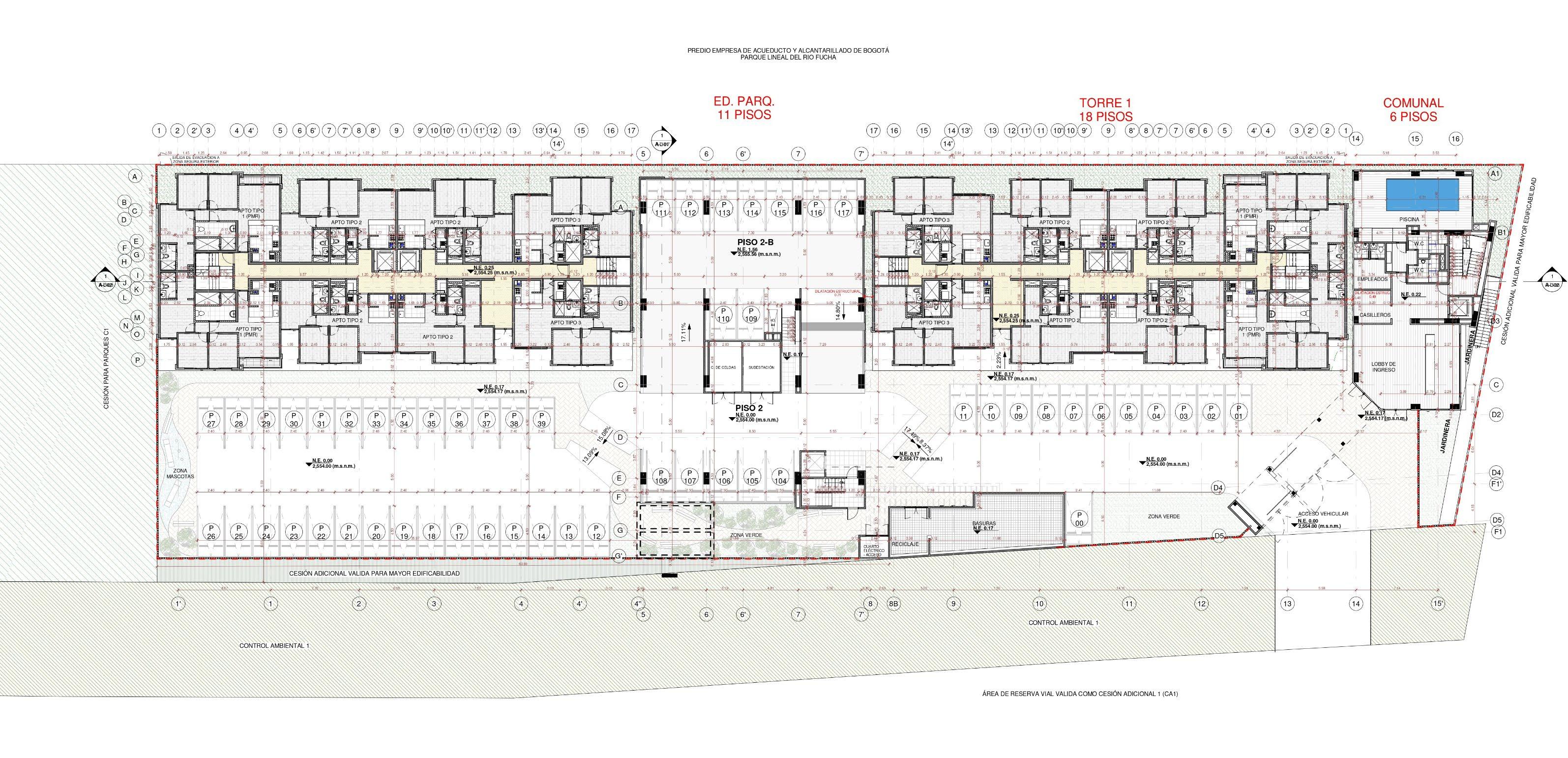
SE MUESTRA LA FORMA DE IMPLANTACION DEL PROYECTO AL CONTEXTO INMEDIATO Y SE EVIDENCIAN LOS ACCESOS A CADA UNO DE LOS EDIFICIOS VIENA (COMUNAL, PARQUEADEROS, TORRE 1 Y TORRE 2) ADEMAS DE ESPACIOS DE CIRCULACION PARA EL ACCESO PEATONAL Y VEHICULAR. SE INDICA LA DIAGRAMACION Y DIMENSION DE LAS AREAS LIBRES Y PRIVADAS DEL PROYECTO.
EL PROYECTO VIENA CONSTA DE 4 EDIFICIOS. 2 DE ESTOS DESTINADOS COMO APARTAMENTOS DE VIVIENDA MULTIFAMILIAR. UNA TORRE COMUNAL EN DONDE HABRAN ACTIVIDADES COMO ZONAS DE JUEGOS, GIMNASIO, PISCINA, AREAS DE TRABAJO, ZONAS DE LECTURA, BIBLIOTECA, SALAS COWORKING, CLUB ROOM Y CANCHA DE FUTBOL. Y POR ULTIMO LA TORRE DE PARQUEADEROS LA CUAL CUENTA CON 300 ESPACIOS DE PARQUEO.
SE MUESTRAN LOS ALZADOS DE LOS 4 EDIFICIOS MOSTRANDO LA FORMA DE LA FACHADA ADEMAS DE SU MATERIALIDAD, CERRAMIENTO Y ALTURAS. EL PLANO CUENTA CON COTAS DE NIVEL, EJES Y COTAS GENERALES.
SE MUESTRAN LOS CORTES GENERALES DE LOS 4 EDIFICIOS MOSTRANDO LA ADECUACION INTERNA Y CONEXIÓN DE LOS PUNTOS FIJOS
A CADA PISO. ADEMAS DE LOS NOMBRES EN SU RESPECTIVO ESPACIO . EL PLANO CUENTA CON COTAS DE NIVEL, EJES, NOMBRES DE CADA ESPACIO Y COTAS GENERALES.
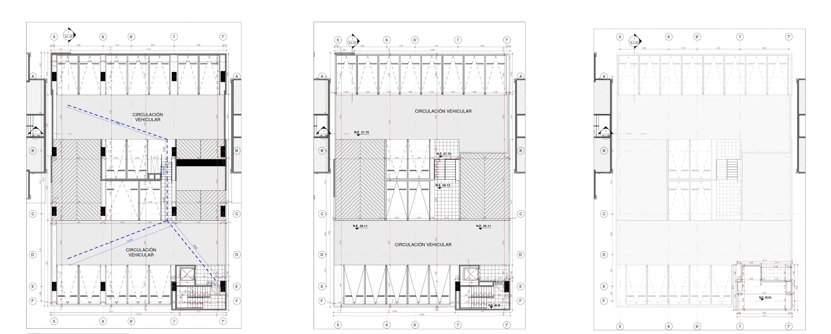
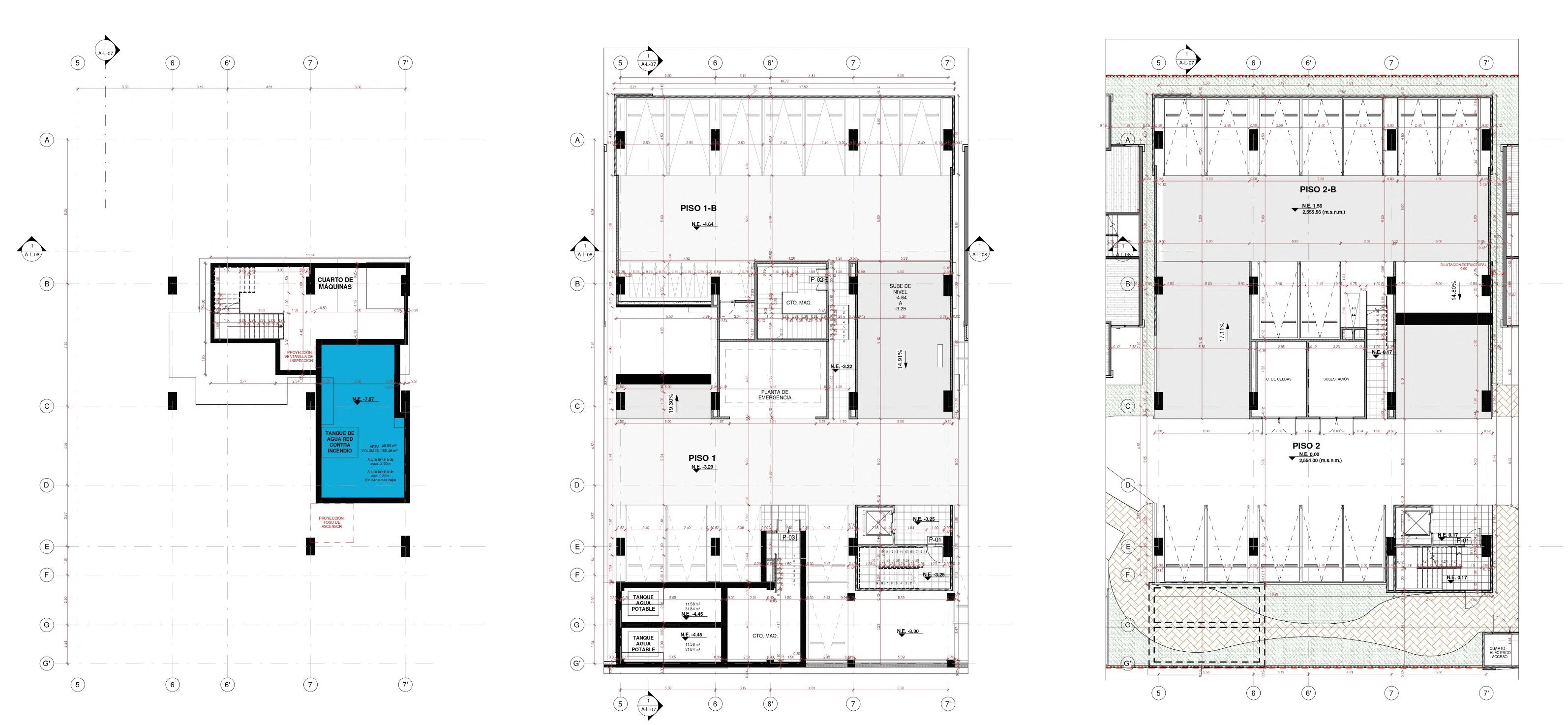
SE MUESTRAN LAS PLANTAS DE PARQUEO 1 Y 2 Y LA UBICACIÓN DE LOS CUARTOS TECNICOS Y COMO ESTE SE ADECUA A TODOS LOS USOS. SE TIENEN EN CUENTA ASPECTOS COMO DIMENSIONES DE CIRCULACION, ADAPTACION DE ESPACIOS DE PARQUEO CON ESTRUCTURA, DIMENSIONES ESTANDAR PARA CUARTOS TECNICOS Y UBICACIÓN ADECUADA PARA PUNTOS FIJOS.
SE MUESTRA LA FORMA Y ORGANIZACIÓN DEL EDIFICIO DE PARQUEADEROS, LAS ALTURAS A LAS CUALES SE LLEGA EN CADA PISO Y LA DIMENSION DE LA RAMPA ADEMAS DE LA ADECUACION DE LOS PUNTOS FIJOS Y ESPACIOS DE PARQUEO PMR.
TORRE 1
TORRE PARQUEADEROS TORRE 2 TORRE COMUNAL
SE MUESTRA LA VISTA 3D DEL PROYECTO PARA ANALIZAR Y TENER CLARA LA IDEA DEL EDIFICIO TENIENDO EN CUENTA LAS PLANTAS, CUBIERTAS Y ENVOLVENTES.
EL TRABAJO REALIZADO EN LOS CORTES FUE LA REPRESENTACION DE ESTOS COMO LA REALIZACION DEL PLANO PARA RADICCACION, APLICACIÓN DE COTAS GENERALES, COTAS DE NIVEL, Y NOMBRAMIENTO DE ESPACIOS VISIBLES EN EL CORTE. SE MUESTRA UN CORTE LATERAL Y UNO TRANSVERSAL .
EL TRABAJO REALIZADO EN ESTE PROCESO DE DETALLES DE BAÑOS FUE INSERTAR LOS MODELOS PREESTABLECIDOS DE MOBILIARIO EN CADA TIPO DE BAÑO TENIENDO EN CUENTA DIMENSIONES, ALTURAS Y UBICACIONES ESTANDAR PENSANDO EN EL PROCESO DE CONSTRUCCION DE ESTOS Y LA ADAPTACION A LAS NECESIDADES DE LOS CLIENTES.
EL TRABAJO REALIZADO EN ESTE PROCESO DE DETALLES DE BAÑOS FUE INSERTAR LOS MODELOS PREESTABLECIDOS DE MOBILIARIO EN CADA TIPO DE BAÑO TENIENDO EN CUENTA DIMENSIONES, ALTURAS Y UBICACIONES ESTANDAR PENSANDO EN EL PROCESO DE CONSTRUCCION DE ESTOS Y LA ADAPTACION A LAS NECESIDADES DE LOS CLIENTES
EL TRABAJO REALIZADO EN ESTE PROCESO DE DETALLES DE BAÑOS FUE INSERTAR LOS MODELOS PREESTABLECIDOS DE MOBILIARIO EN CADA TIPO DE BAÑO TENIENDO EN CUENTA DIMENSIONES, ALTURAS Y UBICACIONES ESTANDAR PENSANDO EN EL PROCESO DE CONSTRUCCION DE ESTOS Y LA ADAPTACION A LAS NECESIDADES DE LOS CLIENTES.
EL TRABAJO REALIZADO EN ESTE PROCESO DE DETALLES DE BAÑOS FUE INSERTAR LOS MODELOS PREESTABLECIDOS DE MOBILIARIO EN CADA TIPO DE BAÑO TENIENDO EN CUENTA DIMENSIONES, ALTURAS Y UBICACIONES
ESTANDAR PENSANDO EN EL PROCESO DE CONSTRUCCION DE ESTOS Y LA ADAPTACION A LAS NECESIDADES DE LOS CLIENTES
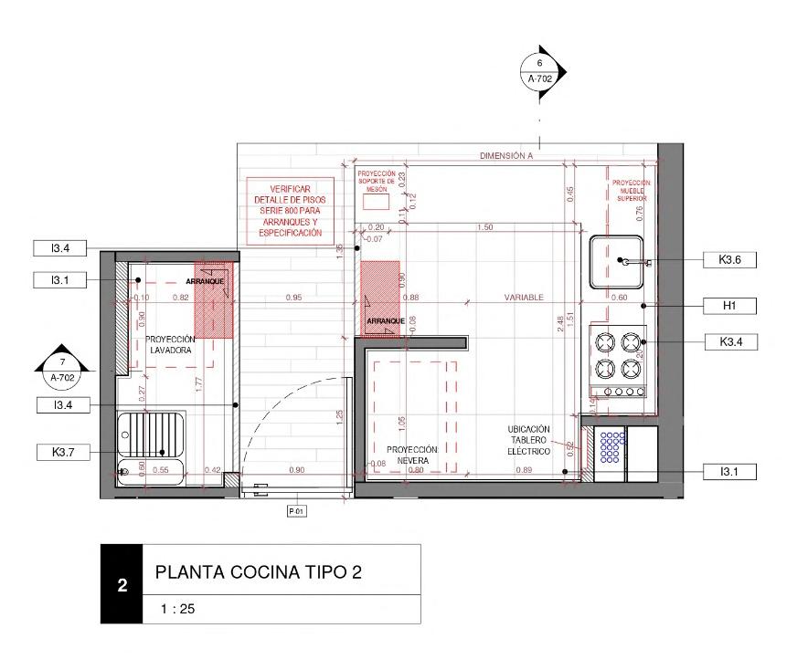
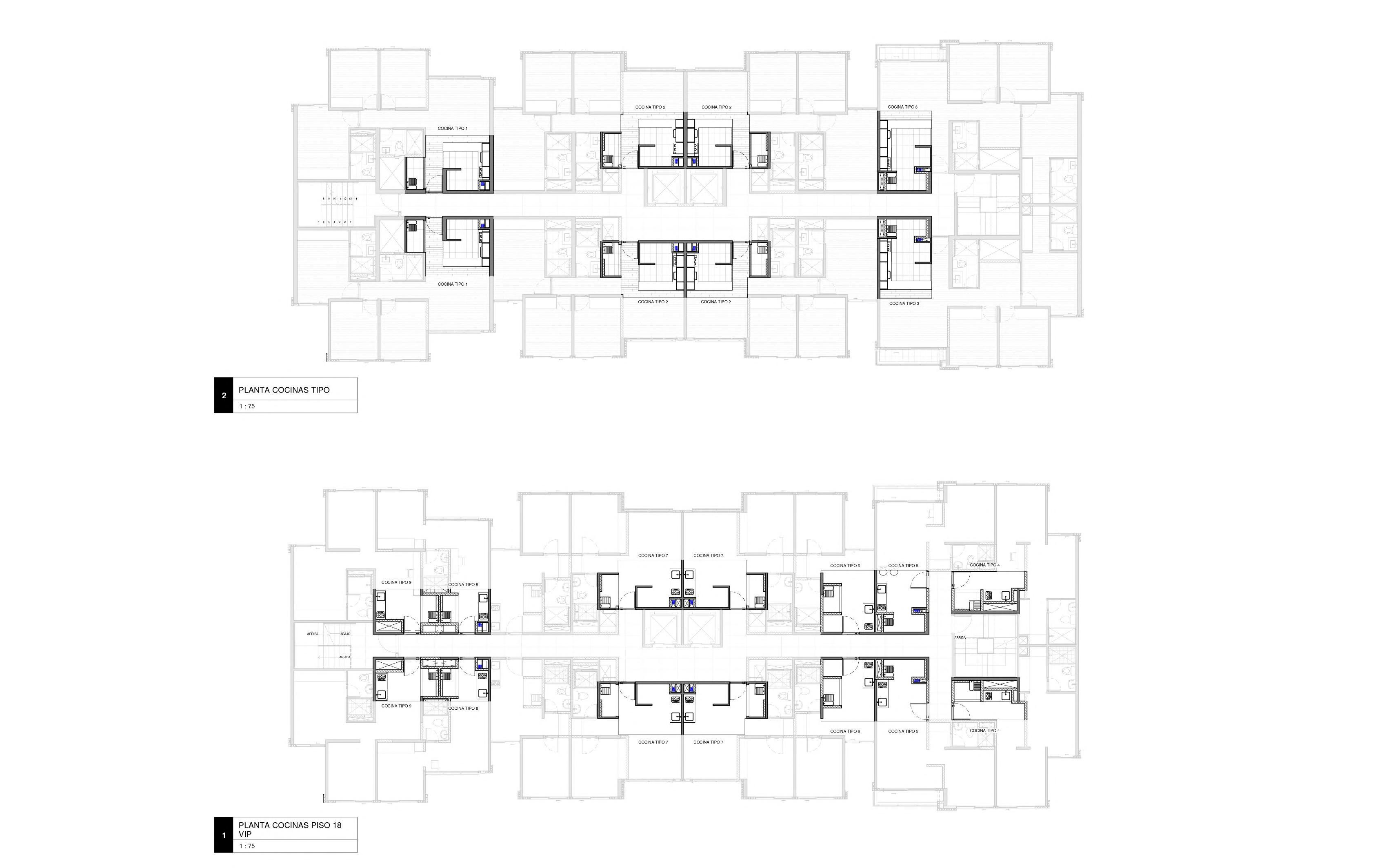
EL TRABAJO REALIZADO EN ESTE PROCESO DE DETALLES DE COCINA AL IGUAL QUE LOS BAÑOS FUE LA UBICACIÓN Y EDICION DEL MOBILIARIO TENIENDO EN CUENTA ALTURAS, DIMENSIONES, UBICACIONES Y USOS DE LOS ELEMENTOS ASI COMO SU MATERIALIDAD Y TIPO DE ENCHAPE POSTERIORMENTE SE REALIZO UN CUADRO DE DIMENSIONES PARA FACILITAR EL PROCESO DE CONSTRUCCION Y FABRICACION DE LOS ELEMENTOS
EL TRABAJO REALIZADO EN ESTE PROCESO DE DETALLES DE COCINA AL IGUAL QUE LOS BAÑOS FUE LA UBICACIÓN Y EDICION DEL MOBILIARIO TENIENDO EN CUENTA ALTURAS, DIMENSIONES, UBICACIONES Y USOS DE LOS ELEMENTOS ASI COMO SU MATERIALIDAD Y TIPO DE ENCHAPE. POSTERIORMENTE SE REALIZO UN CUADRO DE DIMENSIONES PARA FACILITAR
EL PROCESO DE CONSTRUCCION Y FABRICACION DE LOS ELEMENTOS.
EL TRABAJO REALIZADO EN ESTE PROCESO DE DETALLES DE COCINA AL IGUAL QUE LOS BAÑOS FUE LA UBICACIÓN Y EDICION DEL MOBILIARIO TENIENDO EN CUENTA ALTURAS, DIMENSIONES, UBICACIONES Y USOS DE LOS ELEMENTOS ASI COMO SU MATERIALIDAD Y TIPO DE ENCHAPE POSTERIORMENTE SE REALIZO UN CUADRO DE DIMENSIONES PARA FACILITAR EL PROCESO DE CONSTRUCCION Y FABRICACION DE LOS ELEMENTOS
EL TRABAJO REALIZADO EN ESTE PROCESO DE DETALLES DE COCINA AL IGUAL QUE LOS BAÑOS FUE LA UBICACIÓN Y EDICION DEL MOBILIARIO TENIENDO EN CUENTA ALTURAS, DIMENSIONES, UBICACIONES Y USOS DE LOS ELEMENTOS ASI COMO SU MATERIALIDAD Y TIPO DE ENCHAPE POSTERIORMENTE SE REALIZO UN CUADRO DE DIMENSIONES PARA FACILITAR EL PROCESO DE CONSTRUCCION Y FABRICACION DE LOS ELEMENTOS
El primer trabajo realizado en la empresa contexto urbano fue el análisis del proyecto a realizar durante toda la practica. Se realizo una explicación y exploración del proyecto en general, trabajo a realizar y observaciones referentes a este. La primera tarea a realizar en el proyecto fue la expresión de cada plano y correcciones generales para radicación en curaduría, en este trabajo se asignaron las cotas generales de todo en proyecto en plantas, cortes y alzados además de la expresión del plano como tonalidades de color y proyecciones que ayudan a entender mejor el plano, el proyecto o la estructura de este.
Después de la radicación, se realizo una reunión con coordinación junto a mi tutor de las practicas para analizar distintas correcciones al proyecto u anotaciones pertinentes y acordar las fechas para distintas entregas y pendientes. Seguido de realizar las correcciones y enviar los planos generales del proyecto con su debida aprobación. Se continuo con el trabajo de detalles de cada espacio en este caso de la torre 1. Estos detalles abarcan espacios como baños, cocinas, ventanas, puertas, pisos y closets.
Cada detalle a realizar abordaba diferentes formas de expresión. Para los baños por ejemplo se debía indicar temas como especificaciones de cada mobiliario… el lavamanos, sanitario, accesorios (espejos, llaves, percheros), enchapes, material para cielo raso…etc. Debía anotarse la referencia y en algunos casos las dimensiones. Además de diferentes vistas del espacio como plantas, cortes y alzados. Cada una con su respectivo trabajo de acotado, indicadores, proyecciones, alturas…etc.
El aprendizaje de este corte fue muy importante ya que fue la primera aproximación a un proyecto real. Adquirí bastantes conocimientos sobre distintos programas como Revit, AutoCAD y Lumion que aportan de manera positiva a mi proceso de aprendizaje además de aprender sobre detalles arquitectónicos y constructivos.
EL TRABAJO REALIZADO PARA LOS DETALLES DE LAS PUERTAS FUE EL CONTEO E INVENTARIO DE ESTAS. LA ASIGNACION DE COTAS Y VARIACION DE DIMENSIONES DE CADA UNA ASI COMO SUS PROYECCIONES DE ABERURAS SEGÚN SU USO. POR ULTIMO SE REALIZO LA ASIGNACION DE CODIGOS EN CADA PLANTA TIPO PARA TENER LA REFERENCIA Y UBICACIÓN DE CADA UNA.
EL TRABAJO REALIZADO PARA LOS DETALLES DE LAS PUERTAS FUE EL CONTEO E INVENTARIO DE ESTAS. LA ASIGNACION DE COTAS Y VARIACION DE DIMENSIONES DE CADA UNA ASI COMO SUS PROYECCIONES DE ABERURAS SEGÚN SU USO. POR ULTIMO SE REALIZO LA ASIGNACION DE CODIGOS EN CADA PLANTA TIPO PARA TENER LA REFERENCIA Y UBICACIÓN DE CADA UNA.
EL TRABAJO REALIZADO PARA LOS DETALLES DE LAS VENTANAS AL IGUAL QUE LAS PUERTAS FUE EL CONTEO E INVENTARIO DE ESTAS LA ASIGNACION DE COTAS Y VARIACION DE DIMENSIONES DE CADA UNA ASI COMO SUS PROYECCIONES DE ABERURAS SEGÚN SU USO. POR ULTIMO SE REALIZO LA ASIGNACION DE CODIGOS EN CADA PLANTA TIPO PARA TENER LA REFERENCIA Y UBICACIÓN DE CADA UNA.
EL TRABAJO REALIZADO PARA LOS DETALLES DE LAS VENTANAS AL IGUAL QUE LAS PUERTAS FUE EL CONTEO E INVENTARIO DE ESTAS. LA ASIGNACION DE COTAS Y VARIACION DE DIMENSIONES DE CADA UNA ASI COMO SUS PROYECCIONES DE ABERURAS SEGÚN SU USO POR ULTIMO SE REALIZO LA ASIGNACION DE CODIGOS EN CADA PLANTA TIPO PARA TENER LA REFERENCIA Y UBICACIÓN DE CADA UNA.
EL TRABAJO REALIZADO PARA LOS DETALLES DE LAS VENTANAS AL IGUAL QUE LAS PUERTAS FUE EL CONTEO E INVENTARIO DE ESTAS. LA ASIGNACION DE COTAS Y VARIACION DE DIMENSIONES DE CADA UNA ASI COMO SUS PROYECCIONES DE ABERURAS SEGÚN SU USO POR ULTIMO SE REALIZO LA ASIGNACION DE CODIGOS EN CADA PLANTA TIPO PARA TENER LA REFERENCIA Y UBICACIÓN DE CADA UNA
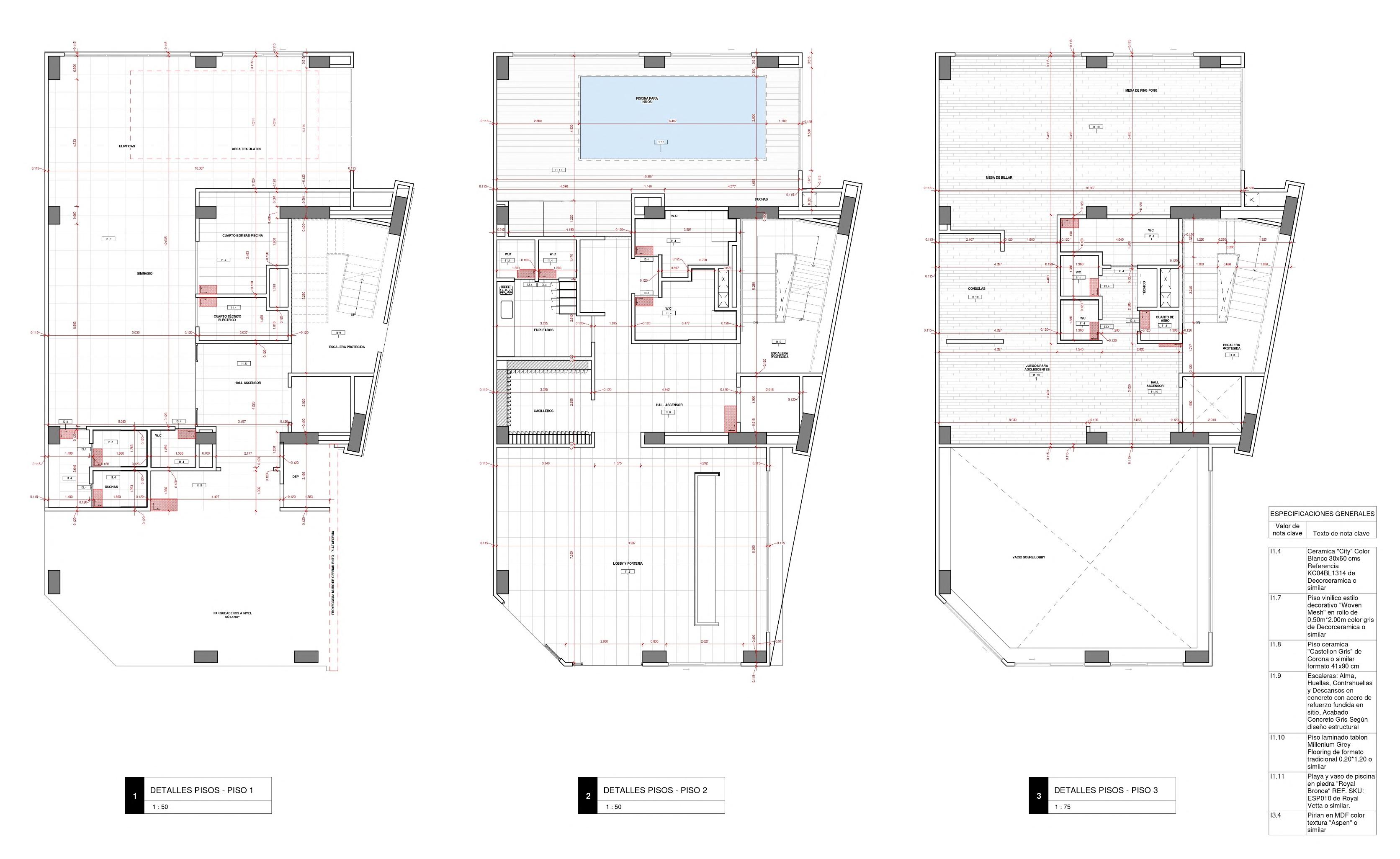
EL TRABAJO REALIZADO PARA LOS DETALLES DE LOS SUELOS FUE LA APLICACIÓN DE LOS DETALLES RECIBIDOS POR COORDINACION, SE RELAIZO EL APLIQUE DE LOS SUELOS CON SUS RESPECTIVAS DIMENSIONES, LOS ARRANQUES DE CADA UNO Y LA ESPECIFICACION DE CADA MATERIAL CON SU DIMENSION, MARCA Y REFERENCIA DE MISMO MODO SE ENCUENTRAN LAS COTAS QUE PERMITIRAN UNA FACILIDAD A LA HORA DE REALIZAR EL APLIQUE.
EL TRABAJO REALIZADO PARA LOS DETALLES DE LOS SUELOS FUE LA APLICACIÓN DE LOS DETALLES RECIBIDOS POR COORDINACION, SE RELAIZO EL APLIQUE DE LOS SUELOS CON SUS RESPECTIVAS DIMENSIONES, LOS ARRANQUES DE CADA UNO Y LA ESPECIFICACION DE CADA MATERIAL CON SU DIMENSION, MARCA Y REFERENCIA DE MISMO MODO SE ENCUENTRAN LAS COTAS QUE PERMITIRAN UNA FACILIDAD A LA HORA DE REALIZAR EL APLIQUE.
EL TRABAJO REALIZADO PARA LOS DETALLES DE LOS SUELOS FUE LA APLICACIÓN DE LOS DETALLES RECIBIDOS POR COORDINACION, SE RELAIZO EL APLIQUE DE LOS SUELOS CON SUS RESPECTIVAS DIMENSIONES, LOS ARRANQUES DE CADA UNO Y LA ESPECIFICACION DE CADA MATERIAL CON SU DIMENSION, MARCA Y REFERENCIA DE MISMO MODO SE ENCUENTRAN LAS COTAS QUE PERMITIRAN UNA FACILIDAD A LA HORA DE REALIZAR EL APLIQUE.
EL TRABAJO REALIZADO PARA
LOS PLANOS DE DETALLES DE CLOSETS FUE LA ADECUACION DE ESTOS AL ESPACIO Y DE MISMO MODO LAS DIMENSIONES Y ESPECIFICACIONES DE MATERIALIDAD. ESTOS CLOSETS FUERON SACADOS Y ADECUADOS DE OTRO PROYECTO CON UNA APLICACIÓN SIMILAR SE INDICA LA UBICACIÓN DE CADA UNO, SUS COTAS Y TAGS CON CUADRO DE ESPECIFICACIONES.
EL TRABAJO REALIZADO PARA LOS PLANOS DE DETALLES DE CLOSETS FUE LA ADECUACION DE ESTOS AL ESPACIO Y DE MISMO MODO LAS DIMENSIONES Y ESPECIFICACIONES DE MATERIALIDAD. ESTOS CLOSETS FUERON SACADOS Y ADECUADOS DE OTRO PROYECTO CON UNA APLICACIÓN SIMILAR SE INDICA LA UBICACIÓN DE CADA UNO, SUS COTAS Y TAGS CON CUADRO DE ESPECIFICACIONES.
EL TRABAJO REALIZADO PARA
LOS PLANOS DE DETALLES DE CLOSETS FUE LA ADECUACION DE ESTOS AL ESPACIO Y DE MISMO MODO LAS DIMENSIONES Y ESPECIFICACIONES DE MATERIALIDAD. ESTOS CLOSETS FUERON SACADOS Y ADECUADOS DE OTRO PROYECTO CON UNA APLICACIÓN SIMILAR SE INDICA LA UBICACIÓN DE CADA UNO, SUS COTAS Y TAGS CON CUADRO DE ESPECIFICACIONES.
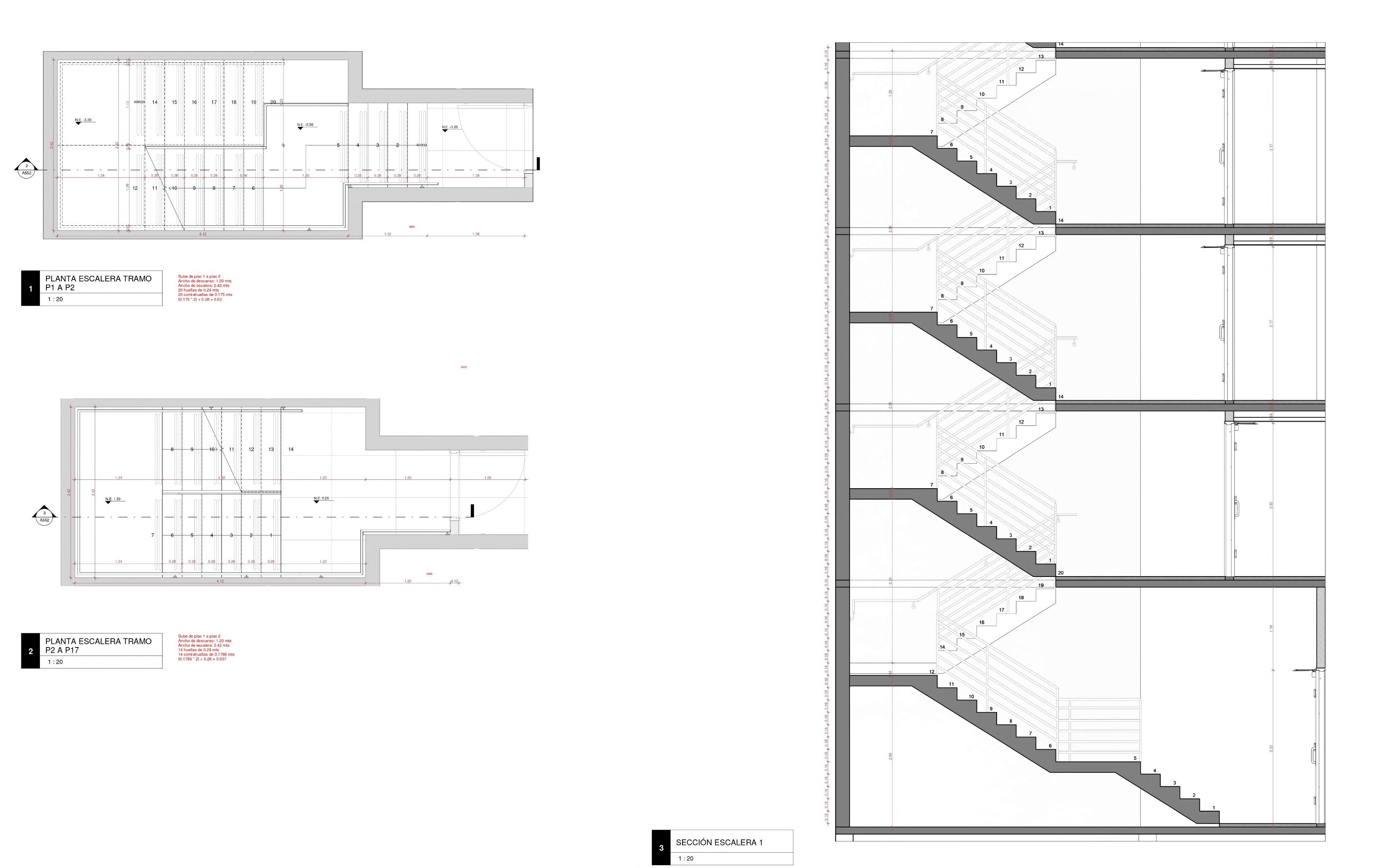
EL TRABAJO REALIZADO PARA LOS PLANOS DE DETALLE DE ESCALERAS COMIENZA CON UN PLANO DE LOCALIZACION QUE PERMITE OBSERVAR DONDE ESTAN UBICADAS, EL AREA QUE OCUPA Y LA FORMA DE ESTAS. DESPUES DE ESTE ANALISIS SE DETERMINA SEGÚN LA NSR 10 LAS HUELLAS Y CONTRAHUELLAS DE ESTAS Y AJUSTANDO LA CONEXIÓN CON TODOS LOS NIVELES. POR ULTIMO SE REALIZAN LOS
RESPECTIVOS DETALLES COMO COTAS, CORTES, ALZADOS Y ANOTACIONES. AGREGANDO
DE IGUAL MODO LOS DETALLES DE BARANDILLA, PIRLAN Y CINTAS ANTIDESLIZANTES.
EL TRABAJO REALIZADO PARA LOS PLANOS DE DETALLE DE ESCALERAS COMIENZA CON UN PLANO DE LOCALIZACION QUE PERMITE OBSERVAR DONDE ESTAN UBICADAS, EL AREA QUE OCUPA Y LA FORMA DE ESTAS. DESPUES DE ESTE ANALISIS SE DETERMINA SEGÚN LA NSR 10 LAS HUELLAS Y CONTRAHUELLAS DE ESTAS Y AJUSTANDO LA CONEXIÓN CON TODOS LOS NIVELES. POR ULTIMO SE REALIZAN LOS
RESPECTIVOS DETALLES COMO COTAS, CORTES, ALZADOS Y ANOTACIONES. AGREGANDO
DE IGUAL MODO LOS DETALLES DE BARANDILLA, PIRLAN Y CINTAS ANTIDESLIZANTES.
EL TRABAJO REALIZADO PARA LOS PLANOS DE DETALLE DE ESCALERAS COMIENZA CON UN PLANO DE LOCALIZACION QUE PERMITE OBSERVAR DONDE ESTAN UBICADAS, EL AREA QUE OCUPA Y LA FORMA DE ESTAS. DESPUES DE ESTE ANALISIS SE DETERMINA SEGÚN LA NSR 10 LAS HUELLAS Y CONTRAHUELLAS DE ESTAS Y AJUSTANDO LA CONEXIÓN CON TODOS LOS NIVELES. POR ULTIMO SE REALIZAN LOS
RESPECTIVOS DETALLES COMO COTAS, CORTES, ALZADOS Y ANOTACIONES. AGREGANDO
DE IGUAL MODO LOS DETALLES DE BARANDILLA, PIRLAN Y CINTAS ANTIDESLIZANTES.
A partir del segundo corte se continua con los detalles de torre 1 que constan de puertas, ventanas, closets, suelos, cielos rasos y escaleras. Para el trabajo de puertas se realizo un conteo de puertas tipo en cada planta. Luego se realizo un cuadro de especificación en donde se agrega el código de cada puerta tipo la cantidad de cada puerta, sus dimensiones, direcciones de apertura y especificación general y referencias. El plano se organiza de tal manera que muestre el cuadro de especificaciones y vistas de cada tipo de puerta (planta, alzado y corte). El trabajo de ventanas al igual que las puertas fue realizar un conteo y análisis de cada tipo para su respectiva especificación y desarrollo de detalles en distintas vistas.
En el detalle de los closets del edificio se realizo un análisis de localización de estos para determinar las dimensiones del espacio para diagramar organizar los compartimentos en cada apartamento. Después de realizar el análisis se realizo el trabajo de realización del plano de tipos de closets de edificio. Se tuvieron en cuenta planos de carpintería para la creación de este. Se generaron distintas vistas de cada tipo de closet (planta, alzado y corte) con sus respectivas dimensiones, proyecciones y cuadros de variantes en caso de que varie alguna dimensión dentro de un mismo tipo de closet.
Por ultimo se realizaron los detalles de las zonas comunes del edificio como cielos rasos, suelos y escaleras. En el detalle de suelos se agrega el material asignado para cada área del proyecto con sus respectivos arranques y especificaciones. Para el trabajo del cielo raso se asignaron a los espacios que eran necesarios como baños, salas, cocinas y zonas comunes y se realizo el trabajo de detalle de cada uno con su respectiva especificación. Y para las escaleras se sacaron distintas vistas y se ajustaron a la estructura del proyecto cumpliendo con la NSR 10, se crearon los acotados de cada área de la escalera y se realizaron distintos detalles como acabados, especificaciones y accesorios.
En conclusión este corte me ayudo a entender mucho mejor el funcionamiento de diferentes áreas de un proyecto arquitectónico en su forma constructiva y de detalle. Aprendí temas de normativa urbana y normativas a nivel arquitectónico que aportan de manera positiva a mi formación.
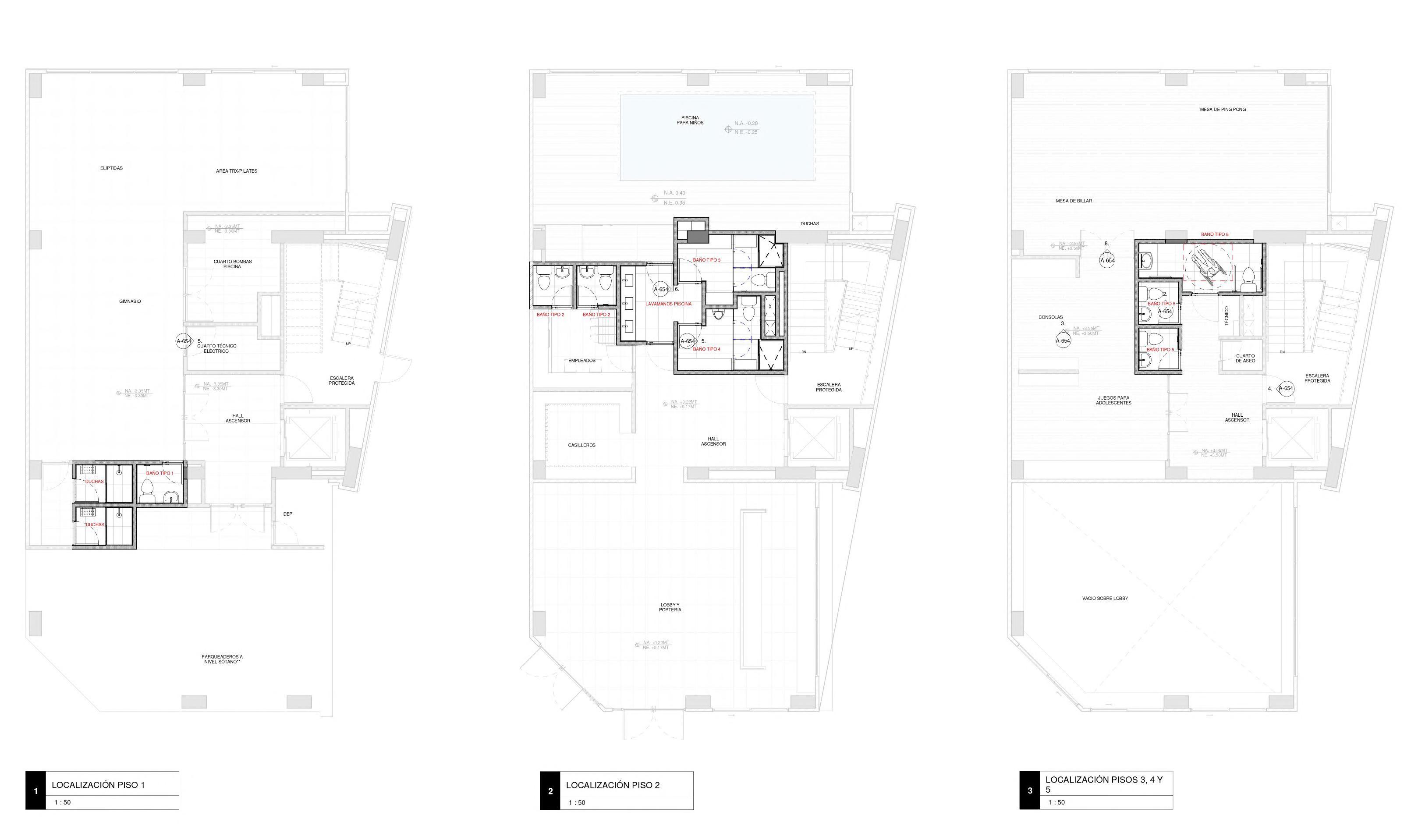
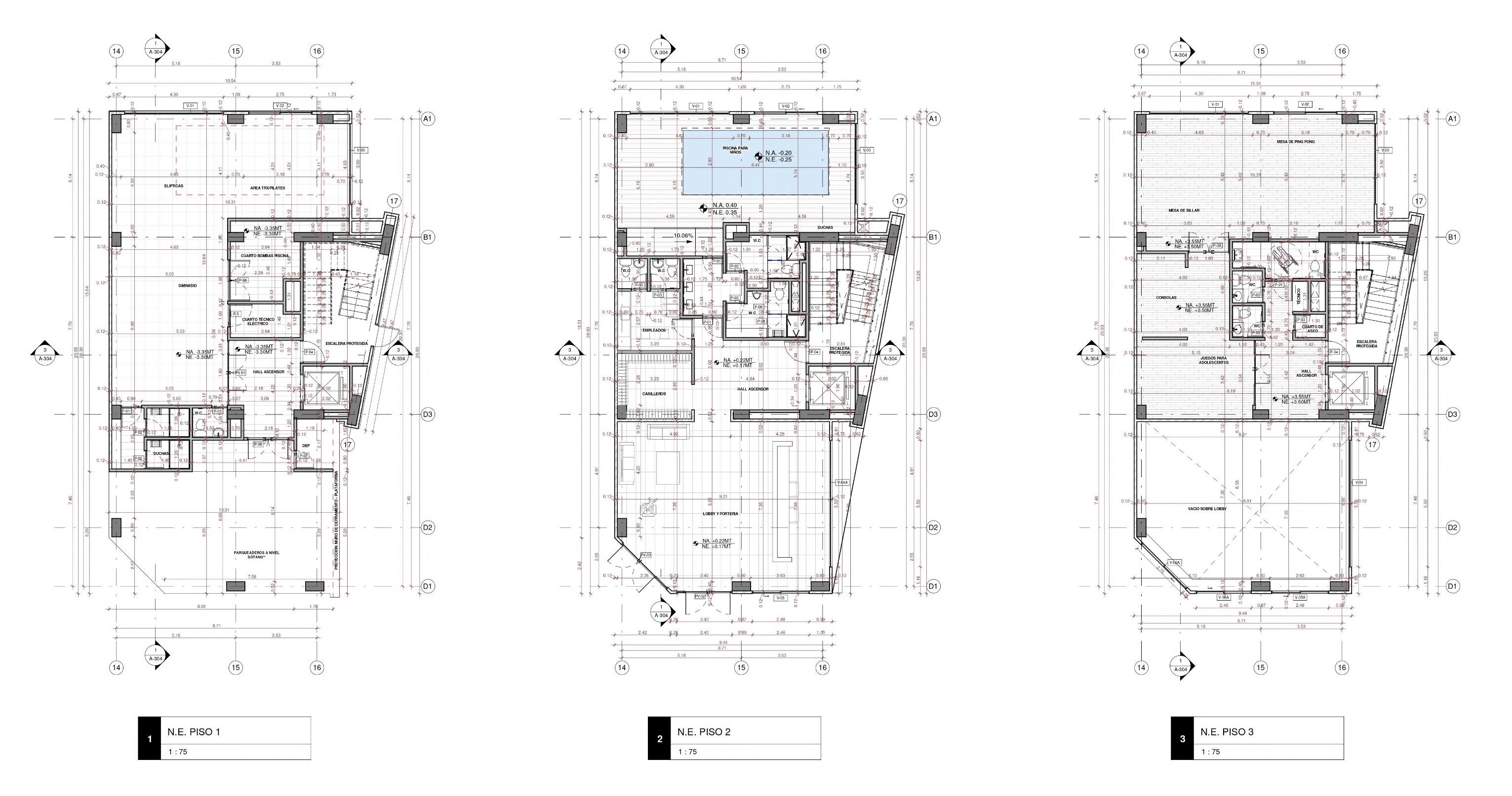
EL EJERCICIO REALIZADO EN LAS PLANTAS GENERALES DE LA TORRE COMUNAL FUE LA REPRESENTACION E INDICADORES DE ESTA COMO EJES, COTAS, ANOTACIONES, NIVELES Y REPRESENTACIONES COMO TRANSPARENCIAS MOBILIARIO Y TEXTURAS. DE MISMO MODO SE ORGANIZA Y SE LIMPIA EL PLANO PARA QUE SEA LOS MAS LEGIBLE Y ORGANIZADO POSIBLE SE MUESTRAN LOS 3 PRIMEROS NIVELES EN DONDE SE ENCUENTRAN ESPACIOS COMO GIMNASIO, PISCINA, LOBBY ZONAS DE JUEGOS, COCINETAS, CASILLEROS, PUNTOS FIJOS Y BAÑOS
EL EJERCICIO REALIZADO EN LAS PLANTAS GENERALES DE LA TORRE COMUNAL FUE LA REPRESENTACION E INDICADORES DE ESTA COMO EJES, COTAS, ANOTACIONES, NIVELES Y REPRESENTACIONES
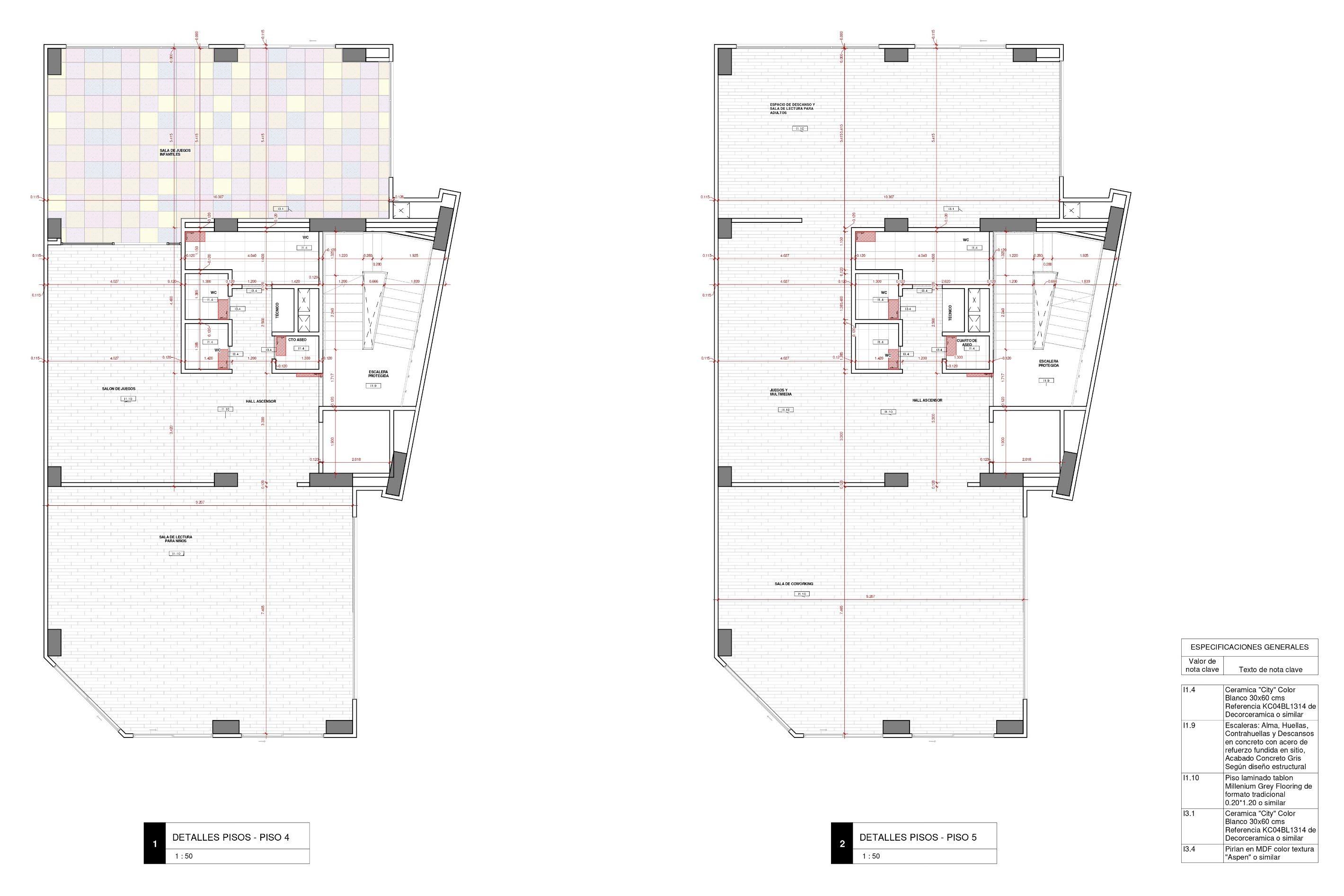
COMO TRANSPARENCIAS MOBILIARIO Y TEXTURAS DE MISMO MODO SE ORGANIZA Y SE LIMPIA EL PLANO PARA QUE SEA LOS MAS LEGIBLE Y ORGANIZADO POSIBLE. SE MUESTRAN LOS 4 NIVELES SUPERIORES EN DONDE SE ENCUENTRAN ESPACIOS COMO SALA DE JUEGOS, SALA DE LECTURA, SALA DE DESCANSO, SALA DE COWORKING, SALON COMUNAL, CLUB Y CANCHA DE FUTBOL
EL TRABAJO REALIZADO PARA LOS PLANOS DE SUELOS FUE LA APLICACIÓN DE EL PISO ESPECIFICADO POR PLANEACION Y AJUSTAR ESTE PARA EL TRABAJO DE APLIQUE SE AÑADEN LOS ARRANQUES EN CADA ESPACIO DONDE EL TIPO DE SUELO CAMBIA Y SE DETALLA EN LA TABLA DE ESPECIFICACION CON SU RESPECTIVO TAG SE MUESTRA DE IGUAL MANERA LAS COTAS GENERALES DE CADA ESPACIO PARA TENER EN CUENTA LAS DIMENSIONES DE CADA AREA.
EL TRABAJO REALIZADO PARA LOS PLANOS DE SUELOS FUE LA APLICACIÓN DE EL PISO ESPECIFICADO POR PLANEACION Y AJUSTAR ESTE PARA EL TRABAJO DE APLIQUE SE AÑADEN LOS ARRANQUES EN CADA ESPACIO DONDE EL TIPO DE SUELO CAMBIA Y SE DETALLA EN LA TABLA DE ESPECIFICACION CON SU RESPECTIVO TAG SE MUESTRA DE IGUAL MANERA LAS COTAS GENERALES DE CADA ESPACIO PARA TENER EN CUENTA LAS DIMENSIONES DE CADA AREA.
EL TRABAJO REALIZADO PARA LOS PLANOS DE SUELOS FUE LA APLICACIÓN DE EL PISO ESPECIFICADO POR PLANEACION Y AJUSTAR ESTE PARA EL TRABAJO DE APLIQUE SE AÑADEN LOS ARRANQUES EN CADA ESPACIO DONDE EL TIPO DE SUELO CAMBIA Y SE DETALLA EN LA TABLA DE ESPECIFICACION CON SU RESPECTIVO TAG SE MUESTRA DE IGUAL MANERA LAS COTAS GENERALES DE CADA ESPACIO PARA TENER EN CUENTA LAS DIMENSIONES DE CADA AREA.
EL TRABAJO REALIZADO PARA LAS FACHADAS DE LA TORRE COMUNAL FUE LA REPRESENTACION Y APLICACIÓN DE EJES, COTAS DE ALTURA CON SUS RESPECTIVAS COTAS DE MEDICION DE CADA ALTURA Y LINEAS DE PROYECCION PARA REPRESENTAR NIVELES DE SOTANO APLIQUE DE TEXTURA
CORRESPONDIENTES Y CORRECCIONES DE VISIBILIDAD COMO SOMBRAS Y COLOR
EL TRABAJO REALIZADO PARA LAS FACHADAS DE LA TORRE COMUNAL FUE LA REPRESENTACION Y APLICACIÓN DE EJES, COTAS DE ALTURA CON SUS RESPECTIVAS COTAS DE MEDICION DE CADA ALTURA Y LINEAS DE PROYECCION PARA REPRESENTAR NIVELES DE SOTANO APLIQUE DE TEXTURA
CORRESPONDIENTES Y CORRECCIONES DE VISIBILIDAD COMO SOMBRAS Y COLOR
EL TRABAJO REALIZADO PARA LOS CORTES DE LA TORRE COMUNAL FUE LA REPRESENTACION DE ESTE Y LAS ANOTACIONES A TENER EN CUENTA. SE MUESTRAN LOS EJES DEL PROYECTO Y SUS RESPECTIVAS COTAS DE ALTURA CON SU CORRESPONDIENTE DIMENSION SE TIENEN EN CUENTA DE MISMO MODO LAS LINEAS DE PROYECCION DE LA
PLATAFORMA Y SE MUESTRAN LOS ESPACIOS DONDE PASA EL CORTE MOSTRANDO LOS GROSORES DE PLACA Y ANCHO DE MUROS..
EL TRABAJO REALIZADO PARA LOS DETALLES DE LAS PUERTAS DE LA TORRE COMUNAL FUE EL CONTEO E INVENTARIO DE ESTAS. LA ASIGNACION DE COTAS Y VARIACION DE DIMENSIONES DE CADA UNA ASI COMO SUS PROYECCIONES DE ABERURAS SEGÚN SU USO POR ULTIMO SE REALIZO LA ASIGNACION DE CODIGOS EN CADA PLANTA PARA TENER LA REFERENCIA Y UBICACIÓN DE CADA UNA LAS CUALES APARECEN EN EL CUADRO DE ESPECIFICACION.
EL TRABAJO REALIZADO PARA LOS DETALLES DE LAS PUERTAS DE LA TORRE COMUNAL FUE EL CONTEO E INVENTARIO DE ESTAS. LA ASIGNACION DE COTAS Y VARIACION DE DIMENSIONES DE CADA UNA ASI COMO SUS PROYECCIONES DE ABERURAS SEGÚN SU USO POR ULTIMO SE REALIZO LA ASIGNACION DE CODIGOS EN CADA PLANTA PARA TENER LA REFERENCIA Y UBICACIÓN DE CADA UNA LAS CUALES APARECEN EN EL CUADRO DE ESPECIFICACION.
EL TRABAJO REALIZADO PARA
LOS PLANOS DE DETALLE DE ESCALERAS COMIENZA CON UN PLANO DE LOCALIZACION QUE PERMITE OBSERVAR DONDE ESTA UBICADA, EL AREA QUE OCUPA Y LA FORMA DE ESTA DESPUES DE ESTE ANALISIS SE DETERMINA SEGÚN LA NSR 10 LAS HUELLAS Y CONTRAHUELLAS DE ESTAS Y AJUSTANDO LA CONEXIÓN CON TODOS LOS NIVELES POR ULTIMO SE REALIZAN LOS
RESPECTIVOS DETALLES COMO COTAS, CORTES, ALZADOS Y ANOTACIONES AGREGANDO DE IGUAL MODO LOS DETALLES DE BARANDILLA, PIRLAN Y CINTAS ANTIDESLIZANTES
EL TRABAJO REALIZADO PARA EL DETALLE DE LOS BAÑOS COMUNALES COMIENZA CON LAS PLANTAS DE LOCALIZACION LAS CUALES INDICAN LA UBICACIÓN DE LOS BAÑOS QUE VARIAN SEGÚN SU USO (PISCINA, SERVICIOS, HALL) EN LOS DETALLES ESPECIFICOS DE CADA BAÑO SE REALIZO LA APLICACION DE MOBILIARIO CON ESPECIFICACION Y REPRESENTACION. TAMBIEN SE AGREGAN COTAS DE ALTURAS Y ANCHOS EN PLANTAS, CORTES Y ALZADOS. ADEMAS DE INDICADORES DE ARRANQUE Y ANOTATIVOS A TENER EN CUENTA.
EL TRABAJO REALIZADO PARA EL DETALLE DE LOS BAÑOS COMUNALES COMIENZA CON LAS PLANTAS DE LOCALIZACION LAS CUALES INDICAN LA UBICACIÓN DE LOS BAÑOS QUE VARIAN SEGÚN SU USO (PISCINA, SERVICIOS, HALL) EN LOS DETALLES ESPECIFICOS DE CADA BAÑO SE REALIZO LA APLICACION DE MOBILIARIO CON ESPECIFICACION Y REPRESENTACION. TAMBIEN SE AGREGAN COTAS DE ALTURAS Y ANCHOS EN PLANTAS, CORTES Y ALZADOS. ADEMAS DE INDICADORES DE ARRANQUE Y ANOTATIVOS A TENER EN CUENTA.
EL TRABAJO REALIZADO PARA EL DETALLE DE LOS BAÑOS COMUNALES COMIENZA CON LAS PLANTAS DE LOCALIZACION LAS CUALES INDICAN LA UBICACIÓN DE LOS BAÑOS QUE VARIAN SEGÚN SU USO (PISCINA, SERVICIOS, HALL) EN LOS DETALLES ESPECIFICOS DE CADA BAÑO SE REALIZO LA APLICACION DE MOBILIARIO CON ESPECIFICACION Y REPRESENTACION. TAMBIEN SE AGREGAN COTAS DE ALTURAS Y ANCHOS EN PLANTAS, CORTES Y ALZADOS. ADEMAS DE INDICADORES DE ARRANQUE Y ANOTATIVOS A TENER EN CUENTA.
EL TRABAJO REALIZADO PARA
LOS DETALLES DE COCINETAS Y CASILLEROS FUE LA ADECUACION DE EL MOBILIARIO AL ESPACIO DISPUESTO TENIENDO EN CUENTA EL USO DE CADA UNO. EN EL CASO DE LOS CASILLEROS SE ADECUARON DISTINTOS MODULOS DEPENDIENDO LA CANTIDAD DE APARTAMENTOS PARA TEMAS DE MENSAJERIA. EN LA COCINETA SE DISPONEN LAVAPLATOS, ESTUFA DE 2 PUESTOS, MUEBLES BAJOS, CASILLLERIA Y MESONES PENSADOS PARA EL USO DE LOS EMPLEADOS DEL EDIFICIO.
EL TRABAJO REALIZADO PARA LOS PLANOS DE DETALLES DE ESCRITORIO LOBBY FUE LA CREACION DEL MUEBLE DE RECEPCION CON SU RESPECTIVA ESPECIFICACION Y MOBILIARIO PERTINENTE. SE ASIGNA LA METIALIDAD Y SE MUESTRAN DISTINTAS VISTTAS DE LA MISMA. PARA EL DETALLE DE LA COCINETA SE ASIGNA EL MOBILIARIO ADAPTADO EN EL ESPACIO CON SUS RESPECTIVOS ESPACIOS DE ALMACENAMIENTO SUPERIOR E INFERIOR.
EL TRABAJO REALIZADO PARA
LOS PLANOS DE FACHADAS
EDGE FUE EL ACOTADO DE CADA UNA DE LAS VENTANAS Y PUERTAS DEL PROYECTO VERTICAL Y HORIZONTALMENTE. ESTO CON EL FIN DE CALCULAR LAS DIMENSIONES DE LOS MARCOS
Y LOS CRISTALES DE CADA ELEMENTO. TAMBIEN SE TIENEN EN CUENTA LOS NIVELES DE CADA EDIFICIO Y LA ALTURA DE CADA UNO.
EL TRABAJO REALIZADO PARA
LOS PLANOS DE FACHADAS
EDGE FUE EL ACOTADO DE CADA UNA DE LAS VENTANAS Y PUERTAS DEL PROYECTO VERTICAL Y HORIZONTALMENTE. ESTO CON EL FIN DE CALCULAR LAS DIMENSIONES DE LOS MARCOS
Y LOS CRISTALES DE CADA ELEMENTO. TAMBIEN SE TIENEN EN CUENTA LOS NIVELES DE CADA EDIFICIO Y LA ALTURA DE CADA UNO.
EL TRABAJO REALIZADO PARA
LOS PLANOS DE FACHADAS
EDGE FUE EL ACOTADO DE CADA UNA DE LAS VENTANAS Y PUERTAS DEL PROYECTO VERTICAL Y HORIZONTALMENTE. ESTO CON EL FIN DE CALCULAR LAS DIMENSIONES DE LOS MARCOS
Y LOS CRISTALES DE CADA ELEMENTO. TAMBIEN SE TIENEN
EN CUENTA LOS NIVELES DE CADA EDIFICIO Y LA ALTURA DE CADA UNO.
EL TRABAJO REALIZADO EN LAS FACHADAS DE AREAS FUE LA APLICACIÓN DE DISTINTAS CAPAS QUE CONFORMAN UN SOLO PROYECTO. ESTO INCLUYE LAS AREAS DURAS Y DE VENTANERIA DEL PROYECTO. SE CUENTA EN CADA FACHADA EL AREA TOTAL DEL EDIFICIO LUEGO EL AREA TOTAL DE VENTANERIA Y POR ULTIMO EL AREA TOTAL DE ZONAS DURAS DEL PROYECTO
EL TRABAJO REALIZADO EN LAS FACHADAS DE AREAS FUE LA APLICACIÓN DE DISTINTAS CAPAS QUE CONFORMAN UN SOLO PROYECTO. ESTO INCLUYE LAS AREAS DURAS Y DE VENTANERIA DEL PROYECTO. SE CUENTA EN CADA FACHADA EL AREA TOTAL DEL EDIFICIO LUEGO EL AREA TOTAL DE VENTANERIA Y POR ULTIMO EL AREA TOTAL DE ZONAS DURAS DEL PROYECTO
EL TRABAJO REALIZADO EN LAS FACHADAS DE AREAS FUE LA APLICACIÓN DE DISTINTAS CAPAS QUE CONFORMAN UN SOLO PROYECTO. ESTO INCLUYE LAS AREAS DURAS Y DE VENTANERIA DEL PROYECTO. SE CUENTA EN CADA FACHADA EL AREA TOTAL DEL EDIFICIO LUEGO EL AREA TOTAL DE VENTANERIA Y POR ULTIMO EL AREA TOTAL DE ZONAS DURAS DEL PROYECTO
EL TRABAJO REALIZADO EN EL PLANO DE DETALLE DEL CUARTO DE BASURAS FUE LA ASIGNACION DE INFORMACION PERTINENTE PARA LA CONSTRUCCION DE ESTE ELEMENTO EL PLANO COMIENZA CON UNA PLANTA DE LOCALIZACION QUE ME PERMITE UBICAR EL ELEMENTO EN EL PROYECTO. SE MUESTRA UN PLANO DE PLANTA Y UNO DE CUBIERTA QUE PERMITE ANALIZAR TEMAS COMO ACOTADO. ALTURAS. MATERIALIDAD, ANOTACIONES Y PROYECCIONES. SE REALIZAN 3 VISTAS AL PROYECTO (2 ALZADOS Y UN CORTE) QUE INCLUYEN EJES, COTAS, GROSORES DE PLACA Y MATERIALIDAD
EL APORTE REALIZADO PARA EL MARCO DE ACCESO FUE LA ASIGNACION DE DETALLES QUE PERMITEN ANALIZAR COMO FUNCIONA SE MUESTRA 1 PLANTA Y LA CUBIERTA DEL PROYECTO MOSTRANDO LOS RESPECTIVOS DETALLES COMO COTAS, PROYECCIONES, ANOTACIONES, TEXTURAS Y ELEMENTOS CONSTRUCTIVOS SE PALICAN DE IGUAL FORMA 2 CORTES Y UN ALZADO QUE PERMITEN VER MAS DETALLADO EL ELEMENTO. ESTAS VISTAS INCLUYEN EJES, COTAS, ESCALAS, Y NIVELES POR ULTIMO SE MUESTRA LA PLANTA DE LOCALIZACION PARA UBICAR LE ELEMENTO EN EL PROYECTO
El trabajo realizado para el tercer corte comienza con las plantas del edificio comunal. El trabajo a realizar en el proyecto fue la expresión de cada plano y correcciones generales para radicación en curaduría, en este trabajo se asignaron las cotas generales de todo en proyecto en plantas, cortes y alzados además de la expresión del plano como tonalidades de color y proyecciones que ayudan a entender mejor el plano, el proyecto o la estructura de este.
Entrando al nivel de detalles se realizaron diversos planos teniendo siempre en mente que se vea estructurado, detallado y entendible para el lector. Se realizaron detalles de suelos, escaleras, puertas, baños, cocineta, casilleros, recepción, cuarto de basuras y portería. Se realizo también un análisis y detalles de fachadas general para saber el área total en cada lado del proyecto. Cada detalle contiene una planta, alzado(s), corte(s) y en algunos casos detalles constructivos para entender mejor el funcionamiento del elemento.
Por ultimo se presentan distintos renderizados de diversos puntos del proyecto (interiores y exteriores) para entender mejor a que se quiere llegar y entregar los renders a las salas de ventas que posteriormente se exhibirán a los clientes para mostrar el resultado final de estos.
En conclusión, a lo largo de mi proceso en la empresa Contexto Urbano he aprendido distintas formas de ejercer mi conocimiento que al mismo tiempo me han ayudado a mi desarrollo de aprendizaje y aportan a mi formación. Aprendiendo cosas nuevas diariamente y utilizando herramientas que me servirán en un futuro. Gracias a la ayuda de mis tutores y jefes inmediatos he podido ejercer y aportar una ayuda en la fase de planeación de un proyecto de vivienda.