Embrace - Closing the Generational Gap

Page 1

Our presentation today is being held on the lands of the Wurundjeri People and I wish to acknowledge them as Traditional Owners.

I would also like to pay my respects to their Elders, past and present, and Aboriginal Elders of other communities who may be here today.

Embrace.

Embrace is about a new way of caring for aging populations in a way that encourages diverse generational reconnections while also providing support for those that find themselves separated from family and friends.

It is about bringing people together who will appreciate and mutually benefit from this new way of living. Fully embracing this intentional community, creating a new definition of family.

.

Residential Aged Care Model

Embrace. Closing the Generation Gap
Home Accommodation Interconnected Abandoned Familiar Unfamiliar =

Embrace. Closing the Generation Gap

Current Residential Aged Care Model

Embrace. Closing the Generation Gap

Precedent: Generations of Hope Model

Parents Need Community Support

Elders Need Access to Affordable Housing Embrace. Closing the Generation Gap

Foster Children Need Forever Families

Embracing the power of relationships uses the relationships formed to provide actions strategies that would otherwise be provided by government interventions 1

2

3 4 5

6 7 8

https://bridgemeadows.org/

Reframing vulnerability shifts the societal lens of vulnerable people characterized as a problem becoming valuable members of the community

Engagement of older adults places an obligation on elderly residents to participate within the community in supportive roles and activities

A key focus on vulnerability is to make vulnerable individuals and families the reason the community existence

Three or more generations adds complex relationships and deeper generational understanding

Embracing diversity to overcome ethnic intolerance and stereotypes

Transformational leadership from within the community, empowering community members to become active leaders

Physical design facilitates relationships demands that the architecture and interior design facilitate and further support relationship development and sustainability

8 CORE COMPONENTS OF INTENTIONAL NEIGHBORING

Out of Home Foster Care

Embrace. Closing the Generation Gap

Proposed Intergenerational Model

Embrace. Closing the Generation Gap

Melbourne Site Location

Site Location

Embrace. Closing the Generation Gap

Site Location: Capel Sound, VIC 3940

Site Address: 8-16 Capel Avenue, Capel Sound, VIC

Site Subdivision: 2 Capel Avenue, Capel Sound, VIC

Council: Mornington Peninsula Shire

Embrace. Closing the Generation Gap

Capel Sound Demographics

Population: 23,943

Projected Population by 2037: 27, 348

Median Age: 49 0-17 Age Groups Lower Proportion

60+ Age Groups Higher Proportion

Cultural Diversity

43.9% English

38.3% Australian

11.6% Scottish

11.5% Irish

4.7% Italian

Mornington Peninsula Indigenous Demographics

Indigenous and Torres Strait Islander Populations:

Median Age: 0-17 Age Groups Higher Proportion

Making up 40% of the Indigenous Mornington Peninsula Populations - Compared to Victoria: total 39.4%

65+ Age Groups Higher Proportion

Making up 6.4% of the Indigenous Mornington Peninsula Populations - Victoria: total 5.3%

Site Location: Capel Sound, VIC 3940

Site Address: 8-16 Capel Avenue, Capel Sound, VIC

Site Subdivision: 2 Capel Avenue, Capel Sound, VIC

Council: Mornington Peninsula Shire

Embrace. Closing the Generation Gap Site Location: Capel Sound, VIC 3940 Site Address: 8-16 Capel Avenue, Capel Sound, VIC Site Subdivision: 2 Capel Avenue, Capel Sound, VIC Council: Mornington Peninsula Shire Existing Site – Aerial View Capel Sound Retail Village Capel Sound Foreshore Rosebud Hospital Nepean Highway Bus 788 Portsea Rosebud Shopping Plaza 1.5 km 4290 m2 4833m2
Embrace. Closing the Generation Gap
1 2 2 2 3 3 3 3 4 4 4 5
Existing Site Documentation
Embrace. Closing the Generation Gap Existing Site Documentation 6 7 8 8 8 9 6 10 13 12 11 11 14

Site Analysis

Existing Site Radiation Analysis

1 December – February 28

1 June – August 31

Embrace. Closing the Generation Gap

Site Location: Capel Sound, VIC 3940

Site Address: 8-16 Capel Avenue, Capel Sound, VIC

Site Subdivision: 2 Capel Avenue, Capel Sound, VIC

Council: Mornington Peninsula Shire

Internal Stakeholders Map

Foster Parent(s)

Foster Children

Counselors

Government Dept. of Health & Human

Services

Government Child Protection

Office Administration

Facility Cleaners

Building Maintenance

Teachers /Instructors

Child Care Professionals

Embrace.

Closing the Generation Gap

Volunteers

Nurses Families

Visitors

+55 Elderly

Daycare Children

Connectivity + Support Systems

Embrace

Embrace Intergenerational Care

FAÇADE MATERIALITY

Green Roof

Recycled Brick Walls

Burnt Timber Ceilings

Recycled Brick Perforated Screens

Clay Rendered Walls

Patterned Cement Tiles

Intergenerational Learning Centre

OBERVATION
AREA

LEVEL ONE + TWO

Intergenerational Care

Households

GROUND LEVEL

Intergenerational Learning

Centre

NATIVE FLORA ATMOSPHERIC LIGHTING

Bolsters, Reed Lights and LED Linear Wall Grazers

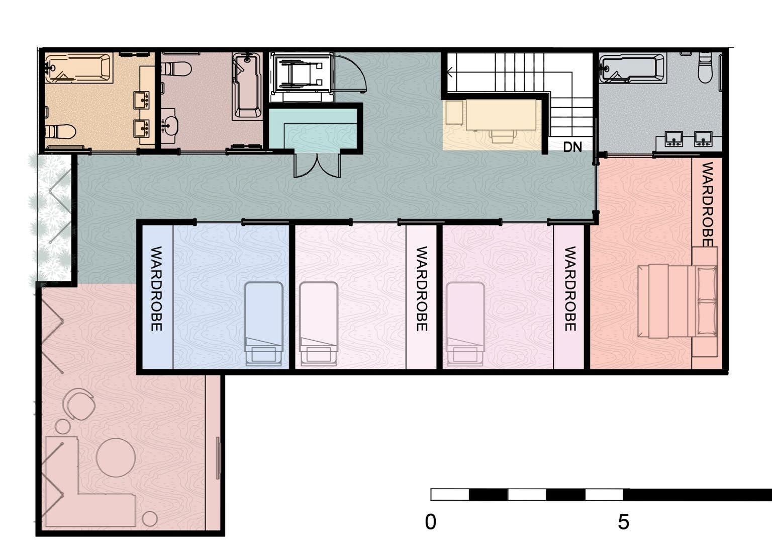
Level One - Household Model

Level Two - Household Model

v
v

Household Living Room Perspective

Household Kitchen and Dining Perspective

Household Kitchen Perspective

ROPOX VERTIELECTRIC DROP DOWN CABINETS

ROPOX FLEXICORNER HEIGHT ADJUSTABLE BENCH TOP

MOUNTED SWING DOWN OVENS

DRAWER FRIDGES/ FREEZERS/DISHWASHERS

ISLAND BENCH OVERHANG

MATERIALITY (Top Left to Bottom Right)

Clay Rendered Walls

Penny Mosaic Tiles

Burnt Timber Ceilings

Grey Marble Bench Tops

2 Pack Painted Joinery

Gingham Cork Tiles)

Brass and Black Fixtures and Fittings

PICTURE RAIL

Elderly Bedrooms (Level One)

Option 1

Option 2

MATERIALITY (Top Left to Bottom Right)

Indigenous Patterned Wallpaper

Burnt Timber Ceilings

Joinery Laminate

Amber Velvet Headboard (Option 1)

Timber Vertical Shiplap Walls

Cork Flooring

Kids Bedrooms (Level 2)

Option 1

Option 2

MATERIALITY (Top Left to Bottom Right)

Seagrass Wallpaper

Burnt Timber Ceilings

Teal and Jarrah Joinery

Cork Floors

Patterned and Colorful Furnishings

Bedrooms Modular Wardrobes

LIFT OFF DOOR HINGES

REMOVEABLE EXTERNAL SHELVING

REMOVEABLE SHELVING

BASE MODULE –CAN BE BUILT DIFFERENT HEIGHTS AS LONG AS IT FITS THE EQ DIMENSIONS

Configuration Examples

REMOVEABLE DRAWERS

REMOVEABLE HANGING ROD

Elderly Bathrooms (Level One)

MATERIALITY (Top Left to Bottom Right)

Axel Mustard Tiles

Indigenous Patterned Wallpaper

Vivid White Ceilings (not shown)

Marble Vanity Tops Bullnose

Timber Joinery

Rubber Flooring

Matte Black Fixtures and Fittings

Kids

Bathrooms (Level Two)

MATERIALITY (Top Left to Bottom Right)

Indigenous Patterned Wallpaper

Vivid White Ceilings (not shown)

Marble Counter Tops Bullnose

Timber Joinery

Rubber Flooring

LEVEL THREE

Common Indoor and Outdoor

Space

LEVEL ONE + TWO

Intergenerational Care

Households

GROUND LEVEL

Intergenerational Learning

Centre

Level Three

Outdoor Activities Spaces

Outdoor Activities Spaces

PICNICS AND BBQS

Outdoor Activities Spaces

CONNECT WITH NATURE

Outdoor Activities Spaces

WALKING TRACK

Outdoor Activities Spaces

PLAYGROUND

Outdoor Activities Spaces

ENCLOSED OFFLEAD DOG PARK

Outdoor Activities Spaces

SENSORY OBSERVATIONS

Outdoor Activities Spaces JUMP

N’ PLAY ADVENTURE

Outdoor Activities Spaces

YARNING CIRCLE

Outdoor Activities Spaces

STORIES TELLING AND CEREMONIAL

TRADITIONS

FIRE GATHERING

Thank you!

Turn static files into dynamic content formats.

Create a flipbook
Issuu converts static files into: digital portfolios, online yearbooks, online catalogs, digital photo albums and more. Sign up and create your flipbook.