Michelle Marshall Professional Portfolio 2022

Page 1

michelle marshall professional portfolio 2022

PROJECT DESCRIPTION:

portfolio 2022 projects
PHASE CONTRIBUTION: + Design Development (FF&E) + Construction Documentation (FF&E) + Construction Administration PHOTOS: Top: entry + common space Bottom left: entry cafe Bottom right: labs
+ Office HQ, Pasadena, CA A co-working lab space for cutting edge scientific research. WELL building designed in harmony with the surrounding community, incorporating local artists and fabricators from the clients’ national office locales. The space also draws inspi ration from their namesake, the historic Alexandria library.

PHOTOS:

Top row: 2nd floor reception, main stair, cafe

Bottom row: small meeting room, mother’s room

portfolio 2022 projects

PHOTOS:

Top left: LA conference room

Top right: library

Bottom left: founder’s signature etched into table

Bottom right: library conference table detail

portfolio 2022 projects
portfolio 2022 projects
San
San
+ New York
+ details
PHOTOS:
Francisco,
Diego, Seattle, Maryland, Boston
Conference Rooms
portfolio 2022 projects PROJECT DESCRIPTION: +Kingsley Residence, Chelsea, NYC (contract) Condominium residence incorporating family furniture and art from Singapore PHASE CONTRIBUTION: +FF&E Selection
portfolio 2022
PROJECT DESCRIPTION: + Upper West Side Condo combo Three condo units are merged into one to create a private family residence in a historic Upper West Side condominium building. PHASE CONTRIBUTION: + Design Development + Construction Documents + Construction Administration MEDIUM: + Revit 4 SPECIFIED COUNTERTOP WITH EASED EDGES (3MM) AND MITERED CORNERS AT WATERFALL 3 0 Finished floor to continue inside cabinet 11" 3'-4" Drawer Boxes: Solid Birch with dovetail joints Drawer guides: Blum Motion full extension heavy duty concealed with soft close 1" 1" Solid Birch door Primed and painted PT 07 AC 4A 6" Drawer Pulls to be centered horizontally on drawer front and placed 2" from top of drawer 2 2 1 1 1 4 3" Finished scribe to ceiling 1" Solid Birch fixed panel Primed and painted PT 07 SS 03 Backsplash 1" 3 2 7 4 3" 2 7 4 3 1" Solid Birch door Primed and painted PT 07 1" Solid Birch baseboard Primed and painted PT 07 1 5 2 3 6 1 2 11" AC 4A 6" Cabinet Pulls to be placed vertically 2" from top of door and 2" from vertical opening of door 6 3 AC 4A Cabinet Pulls to be placed vertically 2" from bottom of door and 2" from vertical opening 2 Cabinet face to be flush with adjacent cabinet faces. Depth of upper cabinet dependent on dimensions of column mounted on to be VIF Cabinet face to be flush with adjacent cabinet faces. Depth upper cabinet is dependent on dimensions of column mounted on to be VIF Adjustable prefinished birch shelves Finished scribe to ceiling 1" Solid Birch door Primed and painted PT 07 SS 03 Backsplash 1" 1'-8" 3 4 2 7 4 2 7 4 3 1 5 2 3 6 1" Solid Birch door Primed and painted PT 07 1" Solid Birch baseboard Primed and painted PT 07 1 2 /L LED lightstrip Recessed to 1"D with 45 degree angle cut at back EF 01 Recessed Plumgold Multi outlet Strip 2"
horizontally from top of door Fixed prefinished birch shelf 7 0 1 4 0 1" Solid Birch lift up door Primed and painted PT 07 restriction. Blum Aventos or equal AC 4A 6" Cabinet Pulls to be centered horizontally 2" from bottom of door /L LED
Adjustable prefinished birch shelves Primed and painted PT 07 SS
6 1" Solid
door
1"
To be aligned
2 9 3 4 Base of front panel to be aligned with
cabinets. 2'-0" 3
EF 01 Recessed Plumgold Multi outlet Strip 2" 2 AC 4B 14" Appliance Pulls be centered horizontally on appliance door face and placed 2" from top of door AC 4A 6" Cabinet Pulls to be placed vertically 2" from bottom of door and 2" from vertical opening 2" SS 03 Backsplash 3 4 3" 3 4 1" Solid Birch custom door Primed and painted PT 07 1" Solid Birch baseboard Primed and painted PT 07 1" 4 1/2" 4" 2'-0 1/2" PL 15b Sink Adjustable prefinished birch shelf wrap disposal unit Wood Window Trim. Painted PT 07 4 2 1 1/4" PL 14b Touchless Faucet PL 16 Garbage Disposal AC 4A 6" Cabinet Pulls to be placed vertically 2" from top of door and 2" from vertical opening of door 2 Wood Window Sill. Painted PT 07 3 New Double Hung Window 1'-4" 3/4" Adjustable prefinished birch shelves 1" Solid Birch lift up door Primed and painted PT 07 Adjustable prefinished birch shelves restriction. Blum Aventos or equal 903 placed vertically from top of AC 4A 6" Cabinet Pulls to be centered horizontally 2" from top of door Fixed prefinished birch shelf Fixed prefinished birch shelves with cut out for hood ventilation ductwork. See hood installation instructions for details. Primed and painted PT 07 2 1 3 4 1" Solid Birch baseboard Primed and painted PT 07. Dimensions and mounting per appliance installation instructions. To be aligned with adjacent baseboards. 3 1/8" 5/8" AP 1a Existing Miele 30" cooktop AP Existing Miele 30" Oven installed per manufacturers instructions AP 2a Miele Hood Vent Ductwork 3 8 AC 4A Cabinet Pulls to be placed vertically 2" from bottom of door and 2" from vertical opening SPECIFIED COUNTERTOP WITH EASED EDGES (3MM) AND MITERED CORNERS AT WATERFALL 3 0 Solid Birch door on push latch Primed and painted PT 07 2 1 1 1 4 2606 EAST 15TH STREET, SUITE #204 BROOKLYN, NY 11235 PHONE: (718) 872-6122 EMAIL: OFFICE@ADNYENG.COM WEBSITE: WWW.ADNYENG.COM -Copyright 2011 A & D ENGINEERING, PLLC- This drawing an instrument of service and is the sole property A & D ENGINEERING, PLLC. Any use of this drawing without written consent by A & D ENGINEERING, PLLC is prohibited. Drawing scales as indicated are for reference only and are not intended to accurately depict actual or designed conditions. Written dimensions shall govern. A&D ENGINEERING, PLLC PROJECT NO. DATE: SCALE: STAMP & SIGNATURE DRAWING TITLE ARCHITECT, AIA PROJECT NAME DATE CLIENT STRUCTURAL ENGINEER MEPS ENGINEER 28 W 25th Street New York, New York 10010 t: 212.807.9600 www.bksk.com LIGHTING DESIGN B K S K A R C H T E C T S L L P 150 West 82nd St Owner LLC c/o Slate Property Group 38 East 29th Street, 9th Floor NY, NY 10016 T: 646 439 4000 Structural Engineering Technologies, PC 40 12 28th Street Long Island City, NY 11101 T: 718 706 7196 EXTERIOR ENVELOPE ISSUE REVISION Clinard Design Studio 228 Park Avenue South Suite 28070 New York, NY 10003 T: 646 580 5344 1 1/2" = 1' 0" 150 WEST 82ND STREET CONDOMINIUM 2123 12/13/21 UNIT 3DFJ KITCHEN MILLWORK DETAIL SECTIONS A-903 1 1/2" = 1'-0" 9 KITCHEN ISLAND SECTION 1 1/2" = 1'-0" 7 KITCHEN SECTION AT EAST SHALLOW CABINETS 1 1/2" = 1'-0" 8 KITCHEN SECTION AT EAST CABINETS 1 1/2" = 1'-0" KITCHEN SECTION AT WEST SHALLOW TALL CABINETS 1 1/2" = 1'-0" KITCHEN SECTION AT REFRIGERATOR 1 1/2" = 1'-0" 5 KITCHEN SECTION AT DISHWASHER 1 1/2" = 1'-0" 6 KITCHEN SECTION AT SINK KITCHEN SECTION AT WEST SHALLOW TALL CABINETS 1 1/2" = 1'-0" KITCHEN SECTION AT DISHWASHER 1APT 3DFJ CD SET ADDENDUM 02.04.2022 2APT 3DFJ BULLETIN 2 03.14.2022 1 1/2" = 1'-0" 10 KITCHEN ISLAND SECTION 2 4 1'-10" 6 8 1 0 6 1 1/2" 9 3 8 1 3 8 1 3 8 3 8 4 5 8 E Q E Q 4 5 1'-10" 6 8 CL SINK, FAUCET, MIRROR CL SINK, FAUCET, MIRROR L-11 L-11 L-11 PL-5C PL-5C AC-11 AC-11 GFI AND LIGHT ALIGNED SS COUNTERTOP .A 904 .A 904 A 509B 1'-11" 2 2 E Q E Q CL 1/2" 4 1/2" PL-3 PL-5 AC 4C 6" PULLS TO BE CENTERED VERTICALLY AND HORIZONTALLY ON DRAWER FACES REUSE EXISTING COUNTERTOP ALL VANITY DIMENSIONS SHOULD BE VIF DEPENDENT ON EXISTING COUNTERTOP DIMENSIONS .A 904 AC-14 .A 501 11 13 2'-2" 1 1 0 3 1 2 5 1 2 CL PL-5B VANITY MIRROR TBD VANITY SCONCES TBD SS COUNTERTOP 11 .A 904 512A 4 0 7 8 1 3 8 1 0 2'-2" PL-5B CL 1 1 0 CL FINGER PULL FINGER PULL VANITY MIRROR TBD 1/4" REVEAL SS COUNTERTOP VANITY SCONCES TBD PT 08 AC-11 AC-11 L-11 L-11 L-11 E Q E Q E Q 4 3 4 EQ 1'-6 1/2" EQ EQ EQ EQ EQ EQ EQ 4 CL CL CL CL 6 CL 3 3 0 AC 12A 8" PULLS, CENTERED VERTICALLY AND HORIZONTALLY AC 12B 4" PULLS, CENTERED VERTICALLY AND HORIZONTALLY PL-5C PL-5C SS COUNTERTOPS 1/4" REVEAL BETWEEN COUNTERTOP AND DRAWERS EQ EQ EQ EQ 6 3 0 3 EQ EQ 2 3 4 PT 08 2'-2" CL 3 0 REUSE EXISTING COUNTERTOP ALL VANITY DIMENSIONS SHOULD BE VIF DEPENDENT ON EXISTING COUNTERTOP DIMENSIONS AC 4C 6" PULLS TO BE CENTERED VERTICALLY AND HORIZONTALLY ON DRAWER FACES AC 14 5A PL-5 4 1 4 E Q E Q E Q 4 CL PT 06 0'5" 3' 5" 8 3 4 3 Q U R W A L O P E N N G H E G H T 2 1 4 6 3 4 4 1/2" 4 PL 5C FAUCET MOUNTED 2 1/2" FROM WALL 2X4 BLOCKING REQ'D ON ALL SIDES ADJUSTABLE LEVELERS CL AC 12A AND AC 12B PULLS CENTERED ON DRAWER FACE AC 11 MEDICINE CABINET SS 1 COUNTERTOP SOFT CLOSE DRAWER GLIDES E Q 1 8 E Q 8 E Q 1 4 FRONT EDGE OF COUNTERTOP SUPPORTING BOARD TO BE PREFINISHED WITH BALTIC BIRCH VENEER 1'-10" 1'-5 5/8" 1 2 3/4" 2 7 1 2 3 4 4 1/2" PL FAUCET MOUNTED 1/2" FROM WALL ADJUSTABLE LEVELERS CL AC 4C PULLS CENTERED ON DRAWER FACE REUSE EXISTING COUNTERTOP SOFT CLOSE DRAWER GLIDES Q 1 8 Q 1 8 E Q 1 4 1'-11 5/8" FRONT EDGE OF COUNTERTOP SUPPORTING BOARD TO BE PREFINISHED WITH BALTIC BIRCH VENEER 1'-6 5/8" 7 1 2 1" 1 8 AC 14 3/8" 4 FIXED PANEL 2X4 BLOCKING REQ'D ON ALL SIDES EQ EQ 6 1/2" PL 5B FAUCET MOUNTED 1/2" FROM WALL CL VANITY MIRROR TBD WALL MOUNTED SS COUNTERTOP SOFT CLOSE DRAWER
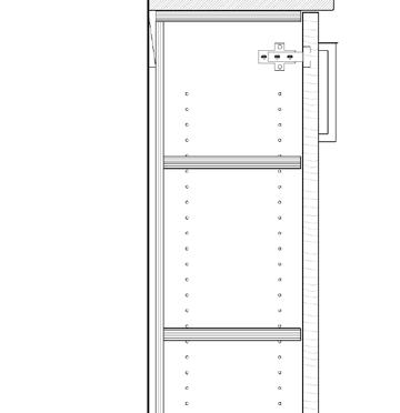
PLYWOOD CABINET INTERIOR 1" PLYWOOD FRONT WITH GROOVED EDGES SHOP PAINTED IN MATTE LACQUER TO MATCH OC 65 CHANTILLY LACE 3/4" PREFINISHED BALTIC BIRCH PLYWOOD ADJUSTABLE SHELVES BLUM CLIP TOP BLUMOTION CONCEALED HINGE WITH SOFT CLOSE IN PLATED NICKEL 2 6 3 1 7 8 2x4 BLOCKING REQUIRED ON ALL SIDES AC TOWEL BAR AC-9 AC-9 PT 02 2 2" 2" 2 2 6 4 0 EQ 4'-0" EQ AC 12B 4" PULL EQ EQ EQ EQ PT 08 9" 3 3/8" 4 PL 5 FAUCET MOUNTED 1/2" FROM WALL ADJUSTABLE LEVELERS CL AC PULLS CENTERED VERTICALLY AND HORIZONTALLY ON DRAWER FACE SS COUNTERTOP SOFT CLOSE DRAWER GLIDES E Q 1 8 E Q 1 8 E Q 1 4 FRONT EDGE OF COUNTERTOP SUPPORTING BOARD TO BE PREFINISHED WITH BALTIC BIRCH VENEER 1'-2 7/8" 7 1 2 3 1 R O U G H N D M E N S O N 4 1 4 2X4 BLOCKING REQ'D ON ALL SIDES AC 10A MEDICINE CABINET @ 6"H 4" 5 1'-7 1/4" PL SINK 3" 3 1/4" 4 PL FAUCET ADJUSTABLE LEVELERS CL AC 18 PULLS CENTERED VERTICALLY AND HORIZONTALLY ON DRAWER FACE SS 1 COUNTERTOP SOFT CLOSE DRAWER GLIDES E Q E Q E Q FRONT EDGE OF COUNTERTOP SUPPORTING BOARD TO BE PREFINISHED WITH BALTIC BIRCH VENEER 1'-2 3/4" 7 1 2 3 1 R O U G H N D M E N S O N 5 8 2X4 BLOCKING REQ'D ON ALL 4 SIDES AC 10B MEDICINE CABINET @ 40"H 4" 5 1'-7 1/8" PL SINK 3" 4 E Q E Q E Q 1 4 3 5 5 2 CL EQ EQ AC 6" PULL PL-5 AC-3A AC-10A L5C EQ 1'-11 1/4" EQ PT 09 AC-10A 4 E Q E Q E Q 1 4 3 5 3" CL CL CL L5D AC-3 PL-5 AC-10B AC 18 CL 1 5 8 EQ EQ 3" 3'-0" PT 08 AC-10B E Q 0 1'-7 1/2" PL-3 PL-5 AC-10A AC 6" EXELEY PULL AC-3A CL E Q EQ EQ E Q E Q 3" 14 .A 904 PL-3 L5D PL-5 AC 18 3" CL 1 7 1 3'-0" E Q E Q 4 EQ EQ SS 1 VANITY TOP 17 .A 904 AC 10B MEDICINE CABINET 511B 7 2606 EAST 15TH STREET, SUITE #204 BROOKLYN, NY 11235 PHONE: (718) 872-6122 EMAIL: OFFICE@ADNYENG.COM WEBSITE: WWW.ADNYENG.COM -Copyright © 2011 A & D ENGINEERING, PLLC- This drawing is an instrument service and is the sole property o A & D ENGINEERING, PLLC. Any use of this drawing without written consent by A & ENGINEERING, PLLC is prohibited. Drawing scales as indicated are for reference only and are not intended to accurately depict actual or designed conditions. Written dimensions shall govern. A&D ENGINEERING, PLLC PROJECT NAME DATE CLIENT STRUCTURAL ENGINEER MEPS ENGINEER 28 W 25th Street New York, New York 10010 t: 212.807.9600 www.bksk.com LIGHTING DESIGN B K S K A R C H T E C T S L L P 150 West 82nd St Owner LLC c/o Slate Property Group 38 East 29th Street, 9th Floor NY, NY 10016 T: 646 439 4000 Structural Engineering Technologies, PC 40 12 28th Street Long Island City, NY 11101 T: 718 706 7196 EXTERIOR ENVELOPE ISSUE REVISION Clinard Design Studio 228 Park Avenue South Suite 28070 New York, NY 10003 T: 646 580 5344 150 WEST 82ND STREET CONDOMINIUM 3/4" = 1'-0" 1 UNIT 3DFJ BATH 1 FLOOR PLAN DETAIL 3/4" = 1'-0" 6 UNIT 3DFJ GUEST BATH VANITY PLAN DETAIL 3/4" = 1'-0" 9 UNIT 3DFJ POWDER RM VANITY PLAN DETAILS 3/4" = 1'-0" 10 UNIT 3DFJ POWDER ROOM VANITY ELEVATION DETAILS 3/4" = 1'-0" 2 BATH 1 VANITY DETAIL ELEVATION 3/4" = 1'-0" 7 UNIT 3DFJ GUEST BATH VANITY DETAIL ELEVATION 3/4" = 1'-0" 3 BATH 1 VANITY DETAIL SECTION 3/4" = 1'-0" 8 GUEST BATHROOM VANITY DETAIL SECTION 3/4" = 1'-0" 11 POWDER ROOM VANITY DETAIL SECTION 3/4" = 1'-0" 5 BATHROOM VANITY SECTION 3/4" = 1'-0" 4 BATH 1 MEDICINE CABINET ELEVATION EAST WALL 14 BATH 2 VANITY DETAIL SECTION 17 BATH 4 VANITY DETAIL SECTION 13 UNIT 3DFJ BATH 2 VANITY ELEVATION DETAILS 16 UNIT 3DFJ BATH 4 VANITY DETAIL PLAN 12 UNIT 3DFJ BATH 2 VANITY DETAIL PLAN 15 UNIT 3DFJ BATH 4 VANITY DETAIL PLAN 1APT 3DFJ CD SET ADDENDUM 02.04.2022 2APT 3DFJ BULLETIN 2 03.14.2022
custom millwork drawings
AC 4A Cabinet Pulls to be placed vertically from bottom of door and 2" from vertical opening 2 6 8 AC 4A 6" Cabinet Pulls be placed vertically 2" from bottom door and 2" from vertical opening 2 2" Adjustable prefinished birch shelves 1" Solid Birch lift up door Primed and painted PT 07 07 1" Solid Birch baseboard 07 07 Adjustable prefinished birch shelves Lift Up Hardware with opening angle restriction. Blum Aventos or equal 1 2 4A 6" Cabinet Pulls be placed vertically 2" from top AC 4A 6" Cabinet Pulls to be centered
lightstrip Recessed with 45 degree angle at back of recess direct light
03 Backsplash
Birch custom
Primed and painted PT 07
Solid Birch baseboard Primed and painted PT 07. Dimensions and mounting per appliance installation instructions.
with adjacent baseboards.
adjacent
1"
GLIDES 1'-10" 5 1 4 FRONT EDGE OF COUNTERTOP SUPPORTING BOARD TO BE PREFINISHED WITH BALTIC BIRCH VENEER TWO (2) RAKKS INSIDE WALL MOUNT EH COUNTER SUPPORT BRACKETS ATTACHED TO STUDS INSIDE WALL STUD INDEPENDENT DRAWER DOES NOT SLIDE WITH EXTERIOR DRAWER FRONT 2 1 0 3 4 1 4 FIXED PANEL 5 8 1" 2 4 1 2 AC 12B PULL 3/4" PREFINISHED BALTIC BIRCH

custom furniture drawings

PROJECT DESCRIPTION:

+ Gabriel’s Bar, New York, NY

Custom light fixture for bar/restaurant project on Central Park South (1 of 2)

MEDIUM: + AutoCAD

portfolio 2022

PROJECT DESCRIPTION:

+ Gabriel’s Bar, New York, NY

Custom banquette for bar/restaurant project on Central Park South (1 of 3)

MEDIUM: + AutoCAD

portfolio 2022
custom furniture drawings
portfolio 2022 ff&e presentations PROJECT DESCRIPTION: + 21st Street High Rise Residential Building Boutique Hi Rise Condominium with bespoke detailing. 2-4 bedroom residences. PHASE CONTRIBUTION: + Concept Presentation + Design Development + Construction Documentation STREET PAGE 9 INTERIOR: VIEW FROM ENTRY VESTIBULE 142 WEST 21ST STREET 05/10/22 ELEVATOR LOBBY: VIEW OF MAILBOXES PAGE 16 LOBBY ELEVATOR VESTIBULE MAIL BOXES 142 WEST 21ST STREET PAGE 9 LOBBY MATERIALS FLOOR NERO MARQUINA 80” X 40” 102” X 70” AVERAGE ABC STONE CONCIERGE WALL + DESK AMERICAN WHITE OAK RIFT TO MATCH GRATO, CINIS,THE ESSENTIALS BASE BOARDS AND TRIM EUREKA CORCHIA MARBLE NASCO STONE + TILE WALLS MARMORINO PLASTER WITH MICA FLAKES SUPERSTRATA WINDOW FRAME, THRESHOLDS, DESK DETAILS: AGED BRASS WINDOW MULLIONS & EXTERIOR: DARK BRONZE CONCIERGE DESK TOP BLUE ROMA STONE SLAB, HONED VESTIBULE FLOOR MAT BLACK COCO WITH BRASS INLAY SURROUND ARONSON’S FLOOR COVERING WALL SCONCES ALABASTER ECLIPSE 10” & 14” BLACKENED BRASS ALLIED MAKER
portfolio 2022 ff&e presentations Primary Bath material presentation boards PHASE CONTRIBUTION: + Concept Presentation + Design Development + Construction Documentation MEDIUM: + Revit + InDesign + Photoshop PAGE 38 PRIMARY BATHROOM 30X48 CLR FLR 30X48 CLR FLR ANS117160321 60DIA 30x60 CLR FLR REMOVABLE GLASS PARTITION EDGE OF SHOWER 6'-7 1/4" 11'-0 3/4" 13'-5 5/8" 3'-8 1/2" 2'-3 3/8" 3'-0 3/4" 4'-2 1/4" 8'-5 1/8" 2'-0" 5'-9" 3/4" 1'-6 1/4" 2'-10 5/8" 2'-0" 3'-9" 2'-0" 2'-0" 2'-0" 8'-7 1/2" 1'-9 5/8" 1'-6 7/8" 2'-0" 1'-5 1/2" 142 WEST 21ST STREET PAGE 40 PRIMARY BATHROOM MATERIALS SHOWER WALL FIOR DI BOSCO, HIGH HONED ARTISTIC TILE, 4’ X8’ VANITY WALL CINDER GREY FIELD TILE, RAKED & BRUSHED ARTISTIC TILE, 12” X 24” X 3/8” VANITY ALPIKORD GROOVE 50.73 WALNUT VENEER, DARK BROOKSIDE VENEERS VANITY SCONCE LOUP DOUBLE SCONCE BOYD LIGHTING PLUMBING ACCESSORIES OIL RUBBED BRONZE VANITY PULL LARGE DRAWER EDGE PULL OIL-RUBBED BRONZE REJUVENATION FLOOR ARABESCATO D’ORO 24 X 24, HONED ARTISTIC TILE 142 WEST 21ST STREET 6/15/22 PAGE 43 TYPICAL PRIMARY BATHROOM (REVISED) 142 WEST 21ST STREET 6/15/22 PAGE 44 TYPICAL PRIMARY BATHROOM (REVISED)
portfolio 2022 ff&e presentations Powder room + Secondary Bath material boards PHASE CONTRIBUTION: + Concept Presentation + Design Development + Construction Documentation MEDIUM: + Revit + InDesign + Photoshop 142 WEST 21ST STREET PAGE 47 FLOORS (12 X 24), VANITY TOP + TUB SURROUND (SLAB) BIANCO ALANUR, POLISHED MARBLE SECONDARY BATHROOM MATERIALS WAINSCOT SAVOY 12 X 12 LARGE STACK CERAMIC MOSAIC TILE RICE PAPER ANN SACKS WALL SCONCE BANDA 24 NATURAL BRASS 142 WEST 21ST STREET 6/15/22 PAGE 50 POWDER ROOM MATERIALS + RENDERING VANITY WALL CIPOLLINO MARBLE FIELD TILE, HONED ARTISTIC TILE, 12” X 24” X 3/8” PENDANT MINI CRESCENT BY LEE BROOM BOYD LIGHTING FLOOR BIANCO ALANUR 12 X 24 STONESOURCE VANITY MIRROR 24X36 DEEL FRAME RECTANGULAR BRASS FINISH - E6254 REJUVENATION 142 WEST 21ST STREET 05/10/22 PAGE 43 TYPICAL SECONDARY BATHROOM VIEW + PLAN 5'-9 1/4" 9'-3 7/8" 2'-8" 1'-11 3/4" 6" PAGE 50 RENDERING
portfolio 2022 ALEXANDRIA HQ BRANDING AND DESIGN LEVEL THREE TO FIVE Quiet Rooms L3-QUIET ROOM L4-QUIET ROOM L5-QUIET ROOM POUF Arper Pix OCCASIONAL TABLE Arper Meety MODULAR LOUNGE CHAIR Rockwell Unscripted OTTOMAN Rockwell Unscripted PEDESTAL TABLE Ligne Roset LOUNGE W/ OTTOMAN Hightower Gimbal Highback SIDE TABLE Blu Dot Swole SCONCE RBW Branch (gold) Field color Detail color FROSTED TEXTURED GLASS Bendheim SCONCE RBW Branch (gold) SCONCE RBW Branch (gold) FILZFELT RAIN PATTERN FILZFELT VERTICAL BAR PATTERN Field color Detail color Features + WELL Standard • Applied frit at glass for privacy • Colorful and textural Filzfelt acoustic wallcoverings • Suspended FilzFelt acoustic ceiling • Soft seating with side table • Decorative wall mounted linear sconce, dimmable, powered over ethernet by RBW PROJECT DESCRIPTION: + Office HQ, Pasadena, CA Marketing Presentation PHASE CONTRIBUTION: + Concept Presentation + Design Development + Construction Documentation MEDIUM: + InDesign + Photoshop ff&e presentations

addendum: program proposal

PROJECT DESCRIPTION: + Corporate Tech Center, San Diego, CA

Programming and experiential proposal to encourage community and wellness.

MEDIUM: + InDesign + Photoshop

portfolio 2022

EXPERIENCE

The Go-To —

A portal, connecting the ARE community.

program proposal

portfolio 2022

program proposal

THE GO - TO PROGRAM

portfolio 2022 PG. 12
TRANSIT
PICK-UP + DROP-OFF
ROTATING POP-UP
DROP-OFF DRYCLEAN
LAUNDRY
BATHROOMS
BIKE REPAIR
SURF STORAGE + SHOP
GRAB
GO - COURTNEY'S
• CONCIERGE •
HUB • AMAZON
+
N'

program proposal

The Go - To LOOK

AND FEEL

portfolio 2022 PG. 14

program proposal

The Go - To MATERIALITY

portfolio 2022

EXPERIENCE

Wellness and Fitness Center —

A rooftop hub for physical, mental, and spiritual wellness

program proposal

portfolio 2022

program proposal

WELLNESS + FITNESS

PROGRAM

portfolio 2022
YOGA ROOM
ROOFTOP YOGA TERRACE
MEDITATION SPACE
• MASSAGE ROOMS
OUTDOOR WALKING PATHS
GROUP GYM CLASSES
MULTI FUNCTION GYM ROOM
• EQUIPMENT ROOM
FEATURE CLIMBING STAIRS
ROOFTOP RUNNING TRACK

program proposal

portfolio 2022 PG. 21
OUTDOOR ACTIVATION
Feature Climbing Stairs INSPIRATION IMAGERY -

EXPERIENCE

Plaza and Drop-Off

program proposal

A place to live in the moment and connect with others.

Blending commuter needs with social gathering space.

portfolio 2022

The Plaza

LOOK AND FEEL

program proposal

portfolio 2022 PG. 26

EXPERIENCE

Children's Center

A space for children to play, explore, and learn

program proposal

portfolio 2022

program proposal

CHILDREN'S CENTER

PROGRAM

• INDOOR PLAY AREA

• OUTDOOR PLAY AREA

• SCIENCE ROOM

• PLAY ROOM

• PLAYGROUND BLOCKS

• LUNCH ROOM

• NAP ROOM

• MINI KITCHEN

portfolio 2022

Children's Center

LOOK AND FEEL

program proposal

portfolio 2022 PG. 34

program proposal

Children's Center

MATERIALITY

portfolio 2022 PG. 35

The Bodega

program proposal

A place to eat, drink and connect with others. A place to recharge in the middle of a busy work day

portfolio 2022
EXPERIENCE
portfolio 2022 PG. 44 THE BODEGA (ALEX MARKET) — How do we help people feel...? • Curious & Connected • Welcomed & Comfortable • Included & Involved • Socially Engaged • Locally Integrated • Supported With stuff like... • Tea house meets 70s bodega • Connection with nature • Grab & Go • Open kitchen/market layout • Delivery Options • Integrated Technology • Spaces for Spontaneous and Planned Interactions • Super Graphics and Locally Art GRAB & GO + AUTOMATION + DELIVERY OPTIONS SPACES FOR SPONTANEOUS AND PLANNED INTERACTIONS LOCALLY SOURCED GRAPHICS/ART INTEGRATED TECHNOLOGY OPEN KITCHEN/MARKET LAYOUT PRIVATE DINING OPTION TEA HOUSE MEETS 70S BODEGA CONNECTION WITH NATURE program proposal

program proposal

The Bodega

LOOK AND FEEL

portfolio 2022 PG. 47

program proposal

The Bodega MATERIALITY

portfolio 2022 PG. 48

EXPERIENCE

The Alex Lab —

A place to develop ideas and learn new skills

program proposal

portfolio 2022
portfolio 2022 PG. 51 Young Community MAKERS SPACE SHOWCASES WORKSHOPS ACTIVATIONS Developing Community Established Community Potential Community CLASSROOMS Learning Community The Alex Lab A COMMUNITY CENTER FOR OPEN ENDED LEARNING AND INNOVATION
program proposal

program proposal

The Alex Lab LOOK AND FEEL

portfolio 2022 PG. 53

program proposal

The Alex Lab MATERIALITY

portfolio 2022 PG. 54

program proposal

portfolio 2022 PG. 56
MATERIALITY
Maker's Space

Turn static files into dynamic content formats.

Create a flipbook
Issuu converts static files into: digital portfolios, online yearbooks, online catalogs, digital photo albums and more. Sign up and create your flipbook.