Desarrollo de sist. técnicos Casa en Monterrey

Page 1

Casa en Monterrey

Estudio de incidencia solar e implementación de sistemas pasivos de acondicionamiento ambiental

Incidencia solar actual

Correcciónes para permitir el calentamiento del espacio en invierno

Correcciónes para evitar sobrecalentamiento por incidencia solar en Verano

Sistema #2

Masas con alta inercia térmica

Elusodemurosde coloroscuroo materialesconalta inerciatérmica,como lapiedra,permiten guardarelcalorobten idoatravésdela incidenciasolary liberarlolentamente durantelanoche

Aquellosmurosquese enfrentanalexterior debenaislarseporsu ladoexternopara evitarpérdidasdecalor haciaelexterior durantelanoche

Sistema #3

Conducto subterráneo

Esteconductotienela capacidadderobarle caloralairepor convecciónconelsuelo subterráneoqueestáa unamenor temperatura

Tienelaposibilidadde cerrarseenépocade inviernoparaimpedir elingresodeaireal espacio.

Suaperturadetoma deaireseencuentra orientadaaleste debidoaquedeallí lleganlascorrientesde aireenestaciudad

RosadelosvientosMonterrey

Funcionamiento de los sistemas en verano y ventilación cruzada

Lasaperturasdelinvernaderopermitenventilarlo,ademássucubiertaaisladaimpidelaincidenciasolarenveranoenesteespacio.Tambíense hicieronnuevasventanasyunlucernarioconposibilidaddeaperturaparapermitirelflujodeaireatravésdelaventilacióncruzada.

Adecuación para oficina

Para la oficina se recomienda adecuar la habitación auxiliar. Para evitar el ingreso del sol pero mantener la iluminación se desarrollan dos estrategias:

Lucernario con posibilidad de ser abierto para permitir el flujo del aire caliente actuando como chimenea en verano. Postigos verticales abatibls que se puedan acomodar dependiendo de la época y de la cantidad de luz que desee el inquilino en el espacio

Anteproyecto de Sistemas Técnicos

5 1 2

Sistema de drenaje

Conven

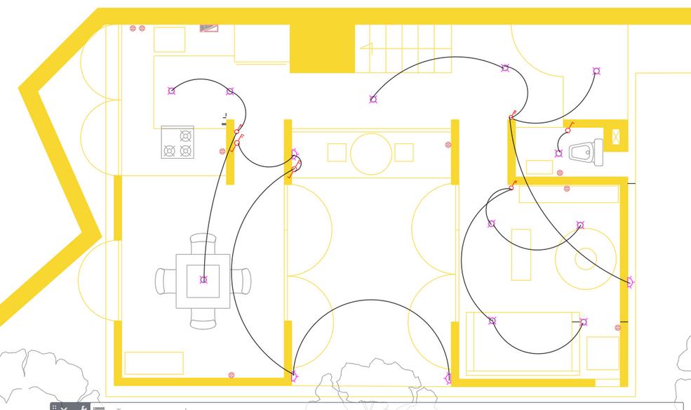
Sistema eléctrico

Turn static files into dynamic content formats.

Create a flipbook
Issuu converts static files into: digital portfolios, online yearbooks, online catalogs, digital photo albums and more. Sign up and create your flipbook.