Parque Biblioteca Belen

Page 1

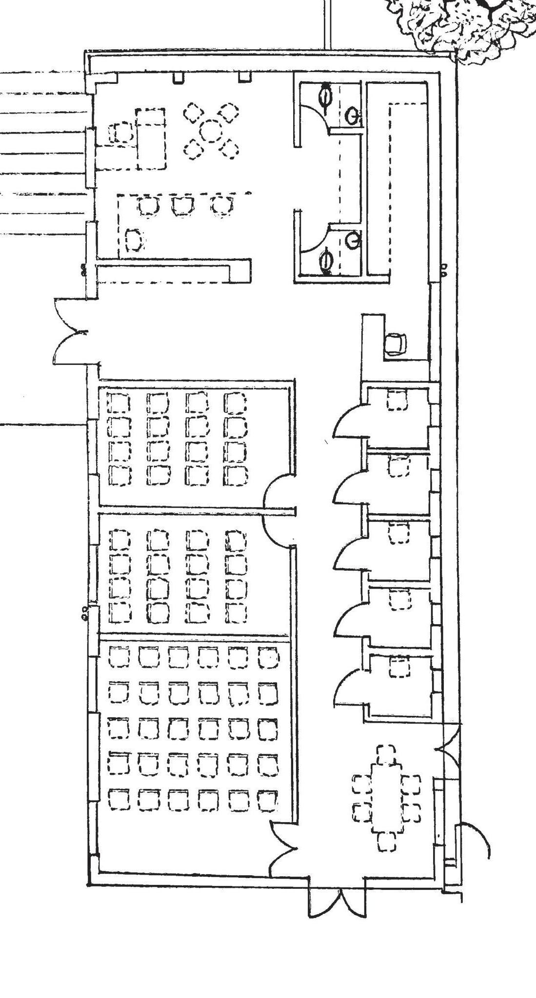
Sala Exhibixion y Talleres

Laura Camila Medina Meneses Lc.medinam@uniandes.edu.co

Maria Isabel Vazquez Rico Mi.Vazquez@uniandes.edu.co

Michael Muñoz Higuera M.munosh@uniandes.edu.co

Miguel Samper Camacho M.samperc@uniandes.edu.co

Santiago Bravo Solano S.bravos@uniandes.edu.co

Un espacio donde el mimetismo de un elemento pasa a ser convergente con la naturaleza del arte y la expresión más sencilla de la entrada de luz, cumbre para el reparto de cultura de una temática determinada que sorprender y dotara de autenticidad a un bloque similar de los demás, sin embargo que dentro de él, se crea una ruptura entre la imaginación y la creación.

_6

_Plantas esuela Sala Exhibicion y Talleres

0 1 2 5 10 20m _Corte

_Detalle

_Descripción

Con un piso de doble altura, así como espacios determinados para diferentes funciones, el modulo de talleres y salón de exposición se determina por una planta rectangular que conecta dos espacios complementarios (talleres y sala de exposición) por medio de un recorrido lineal exterior que los hace converger con la circulación exterior que conforma la totalidad de los bloques, haciendo que ambos espacios sean de una u otra forma independientes.

_Maqueta Detalle

.40 .26 1.91 .89 .54 .15 .30 2.10 .20 4.40 2.10 .69 .34 MURO EXTERIOR A LA VISTA Bloque de concreto catalán blanco .30x.15x.10 CIELO FALSO descolgado en tabla-roca PISO EN MADERA madera laminada TABLILLA SOPORTE DE CUBIERTA madera abarco PERSIANA DE VENTILACIÓN aluminio anodizado color café oscuro LAGRIMAL en lamina de hierro galvanizada 3mm CHAPA SOBRE VIGACANAL bloque de concreto color blanco ALFARDAS SOPORTE DE CUBIERTA madera abarco
_Maqueta

_Sala Exhibicion y Talleres

Fotografía: (Fernando de la Carrera)

Salas Multiples y salon Japon

Laura Camila Medina Meneses Lc.medinam@uniandes.edu.co

Maria Isabel Vazquez Rico Mi.Vazquez@uniandes.edu.co

Michael Muñoz Higuera M.munosh@uniandes.edu.co

Miguel Samper Camacho M.samperc@uniandes.edu.co

Santiago Bravo Solano S.bravos@uniandes.edu.co

El aprendizaje de aquellos de los que mas se tiene que aprender sobre la simpleza y la armonía, no solo del espacio, sino por la forma y composición a partir de las simples, el lenguaje japones, no solo da un clamor importante a la biblioteca Belén, por el contrario refleja la búsqueda de una armonía entre material entorno homenajeado por la sala cuyo objetivo es el entendimiento de dichos procesos.

_7
0 1 2 5 10 20m _Corte _Plantas Salas Multiples y salon Japon

_Detalle

_Descripción

Como parte de la unidad de la Biblioteca Belen, la sala s multiples y salon Japon, disponen una caracteristica que otros espacios no, una conecxion estrecha con el patio interno, creando de este apartado de la edificacion un punto especial, puesto que relaciona directamente con la actividad con la esencia total de la biblioteca Belen.

_Maqueta Detalle

VIGACANAL EN CONCRETO CON TRATAMIENTO IMPERMEABILIZANTE CIELO FALSO EN TABLA ROCA MURO DOBLE EXTERIOR EN BLOQUE DE CONCRETO CATALAN COLOR BLANCO 30X15X10CM .69 .54 .26 .61 .15 .40 2.10 .92 .20 2.10 4.40 .34 .03 .38
_Maqueta

Fotografía: (Fernando de la Carrera)

_Salas multiples y Salon Japon

Sala Ensayo y Esc. Musica

Laura Camila Medina Meneses Lc.medinam@uniandes.edu.co

Maria Isabel Vazquez Rico Mi.Vazquez@uniandes.edu.co

Michael Muñoz Higuera M.munosh@uniandes.edu.co

Miguel Samper Camacho M.samperc@uniandes.edu.co

Santiago Bravo Solano S.bravos@uniandes.edu.co

A veces, los espacios mas hermosos no son los que expresen una técnica sensacional u manejo hegemónico de la materialidad, al igual que todos sus acompañantes, la sala de música y ensayos, presentan la conexión entre el publico y los sentidos, formada en pro de que aquellos que entren, deslumbren el oído experimentando diferentes representaciones del mundo, acompañado de una composición suave y melódica, que al igual que los acordes de los instrumentos, el edificio reconfigura dicho ritmo en sus organizaciones constructivas.

_8

_Plantas Sala de Ensayos y Escuela Musica

_Corte

0 1 2 5 10 20m

_Descripción

_Maqueta Detalle

Espacios destinados para el aprendizaje, la Sala Ensayo y de música buscan generar actividad melódica al interior de la biblioteca Belén, de tal manera, que la práctica de los estudiantes al interior de los recintos nutran y doten de vida sus alrededores, siendo estos, un lugar no solo de aprendizaje y convivencia, por otra parte aumentar la atmosfera familiar, de convivencia dentro de la Biblioteca Belén.

_Detalle
_Maqueta

_Sala de Ensayo y Esc. Musica

Fotografía: (Fernando de la Carrera)

Turn static files into dynamic content formats.

Create a flipbook
Issuu converts static files into: digital portfolios, online yearbooks, online catalogs, digital photo albums and more. Sign up and create your flipbook.
Parque Biblioteca Belen by Michael Muñoz - Issuu