
1 minute read
PRE-EXISTING DWELLINGS
All of the pre-existing dwellings provided a private front yard that created a particular sense of community
Increased Density
Advertisement
How could one triple the existing density while maintaining this sense of community?
Vertical Stacking Diversify
By stacking both vertically and diagonally one can simultaneously preserve the pre-existing way of living and accommodate new dwellers altogether.
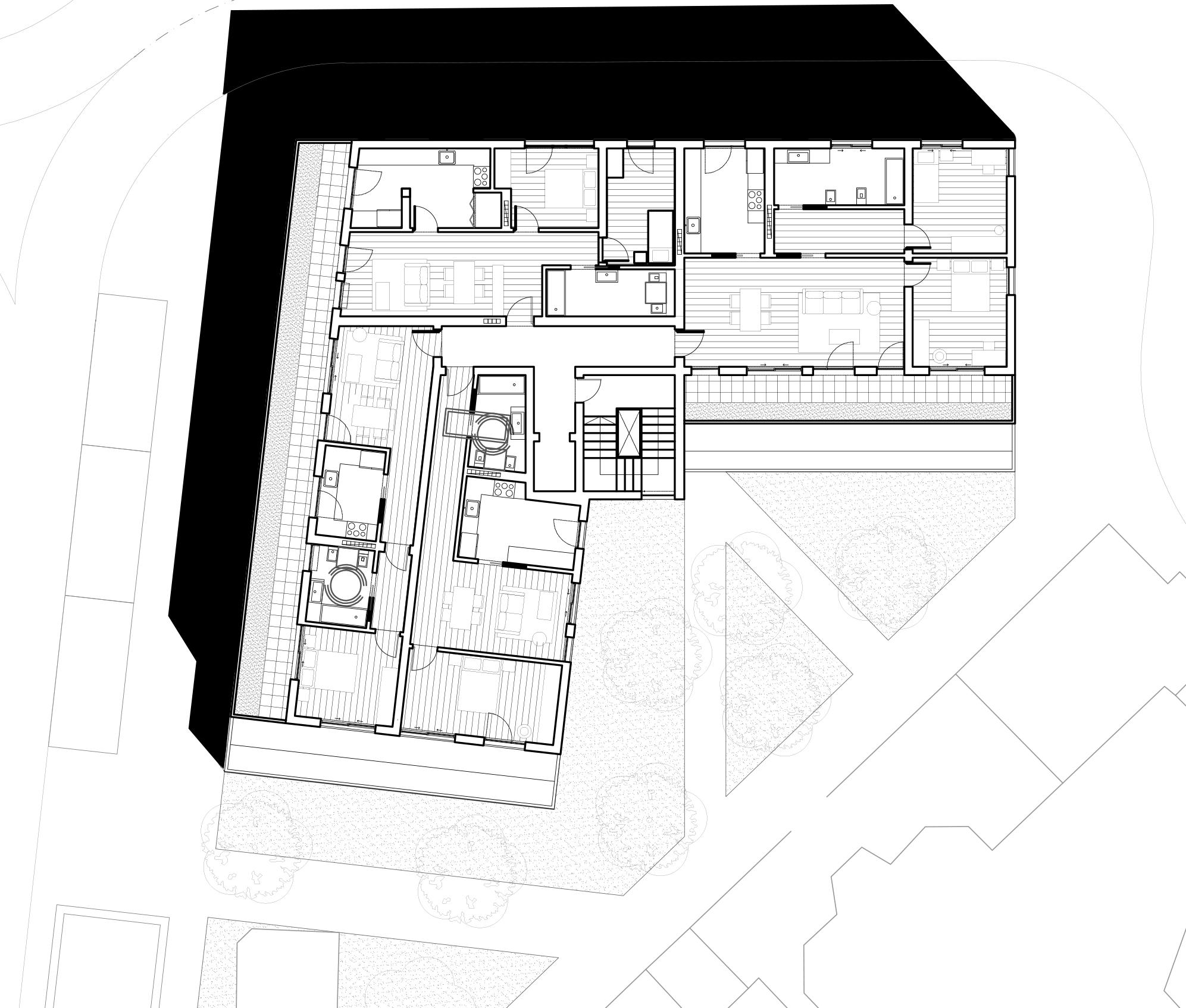
Each block was then pushed in different directions, creating varying typologies throughout the whole area third floor plan fourth floor plan

As part of a shift in paradigms and counterpoints and for the prototype of a good city, the urban requalification of the neighborhood is proposed, with a view to promoting a dynamic, multifunctional and multigenerational city, preserving the sense of community and the values inherent to this heritage, alive.
The neighborhood, characterized by outdated and narrow housing typologies, where the aging of the population and a high level of inactivity is felt, seeks, based on its privileged location in relation to the center of Cascais town and surrounding accesses, to regenerate its image , consolidating it with its current inhabitants, and attracting new activity.





General Axonometric View


Cultural Axis
Public Spaces











