Meagan R. Roberson
A dedicated and hardworking Interior Architect, looking for a full-time position.
Torgerson Design Partners, Interior Design Associate, Ozark, MO • June 2024 - November 2024
• Set up interior construction document sheets
• Developed interior elevations, millwork elevations, millwork sections, reflected ceiling plans, finish for floor plans, etc.
• Completed redlines for construction documents
• Attended Lunch and Learns with different company's and met with several reps
• Maintained, cleaned, and organized materials
FAY MatLab, University of Arkansas Fayetteville, AR • August 2023 – May 2024
• Help students check-out and check-in materials for projects for studio or various classes in the school of Fay Jones
• Manage organization of returned materials.
• Cleaning the room before leaving or closing for the night
• Assisted students with selection of materials
Orientation Leader, University of Arkansas Fayetteville, AR • May 2022 – July 2022
• Facilitated group activities among students and promoted community bonds through engaging events.
• Helped with registration and check-in.
• Addressed questions and concerns in addition to providing resources with more detailed information.
• Coordinated and led campus/residence tours with groups of 80 students and parents.
• Offered personalized support, and guided visitors to target locations and personnel around campus.
Organizations
ASID (American Society of Interior Designers) Fayetteville, AR • January 2022 – Present

Springfield, MO (417)319-9731
meaganroberson17@gmail.com
Skills
Adaptability
Adobe Creative Cloud Adobe Illustrator
Adobe InDesign
Adobe Photoshop Attention to Detail Design
Digital Printing Drafting Drawing Enscape
Material Selection
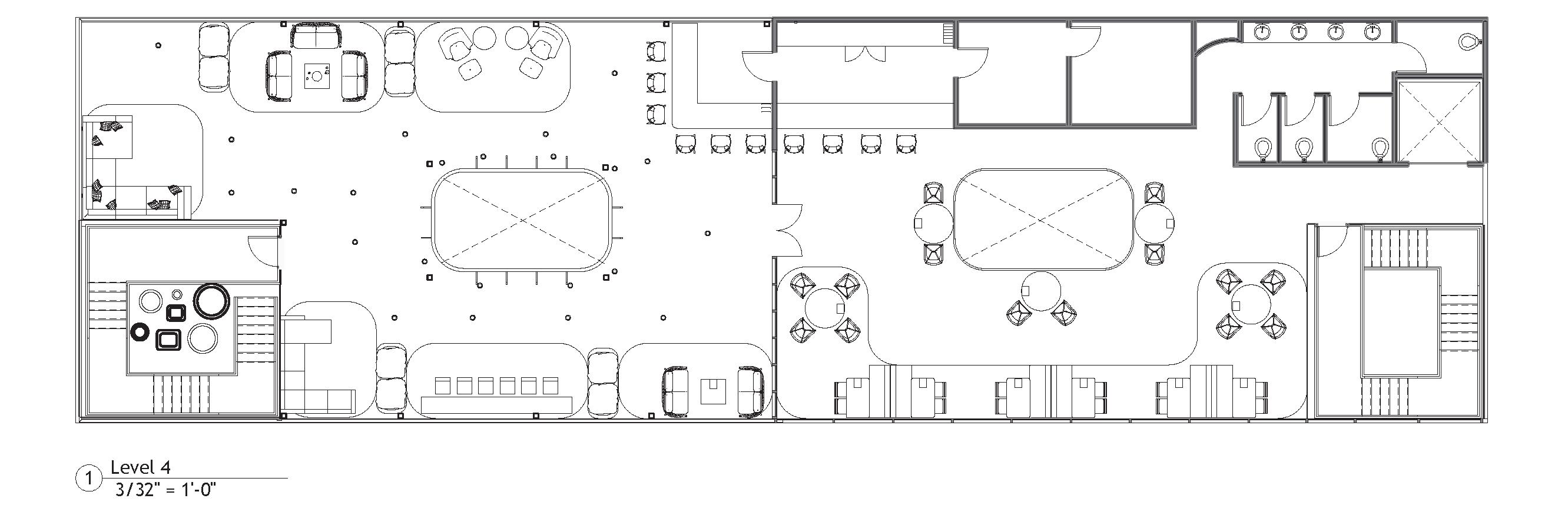
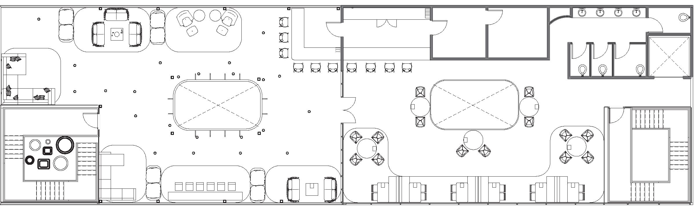
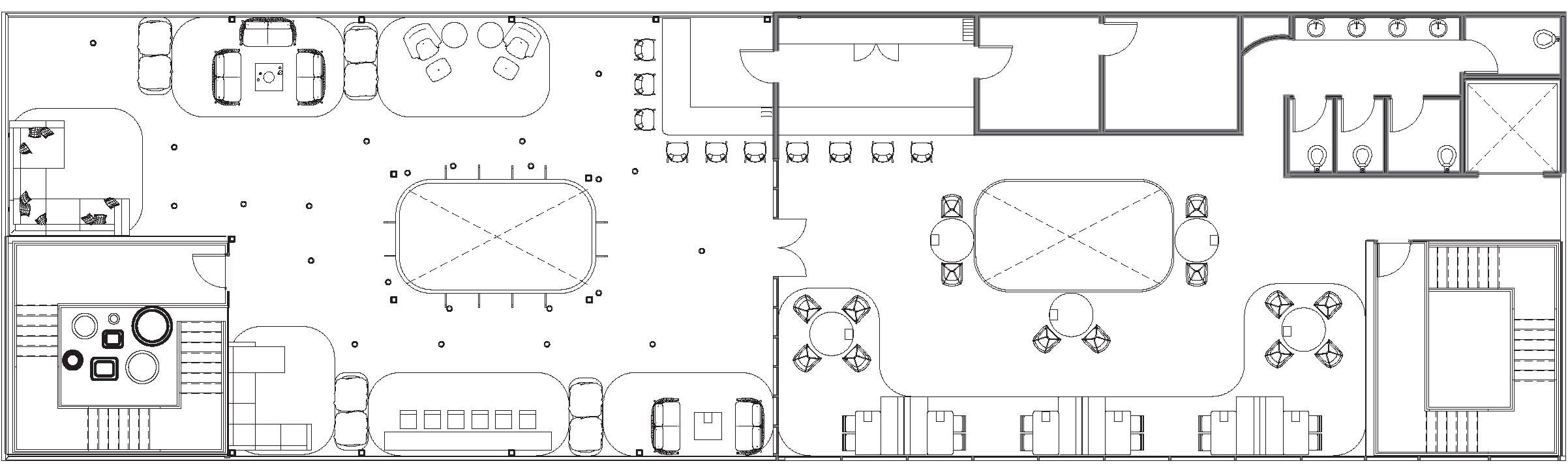
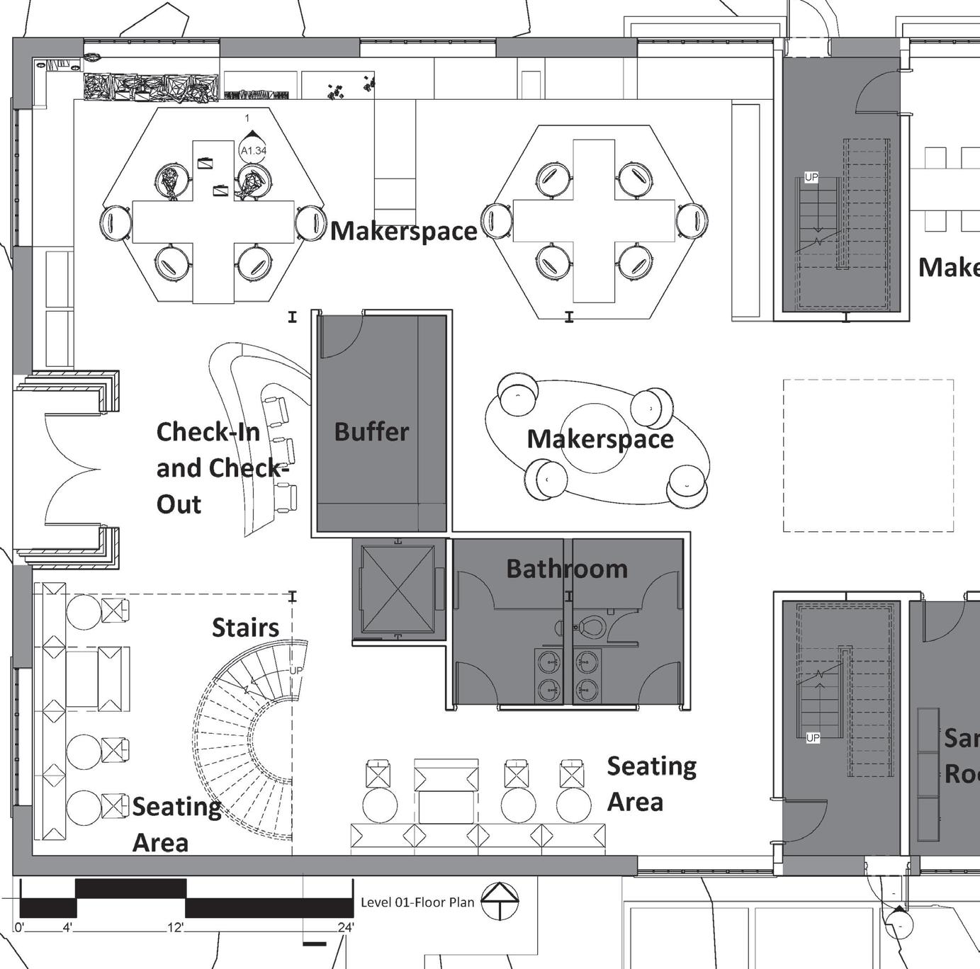
Problem Solving Revit
Education
University of Arkansas Fayetteville 2019 — 2024
Bachelor of Interior Architecture and Design


































































