Portfolio Selena Lee

Page 1


SELENA MAYU LEE

LJUNE-AUGUST 2024

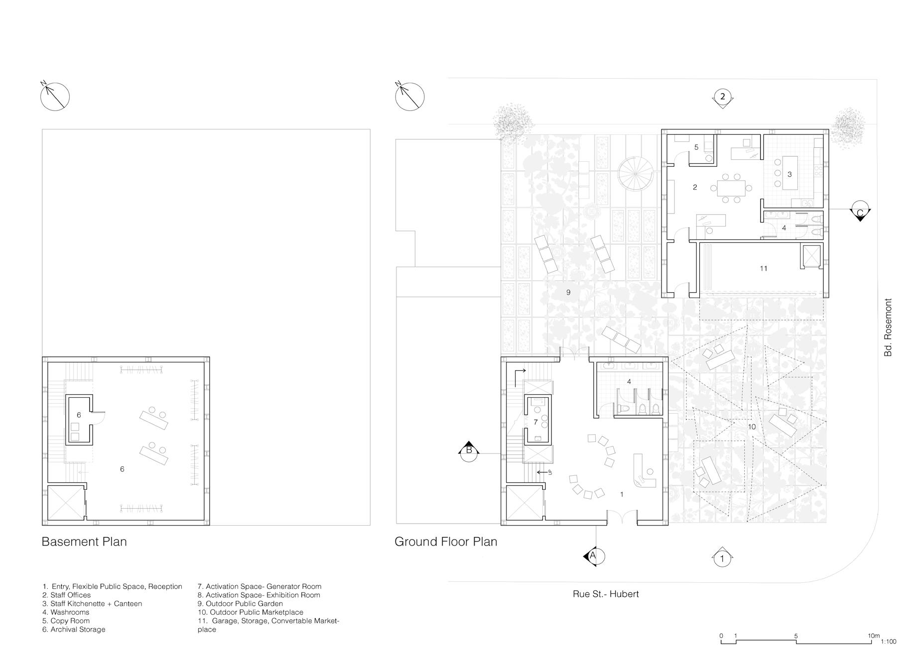
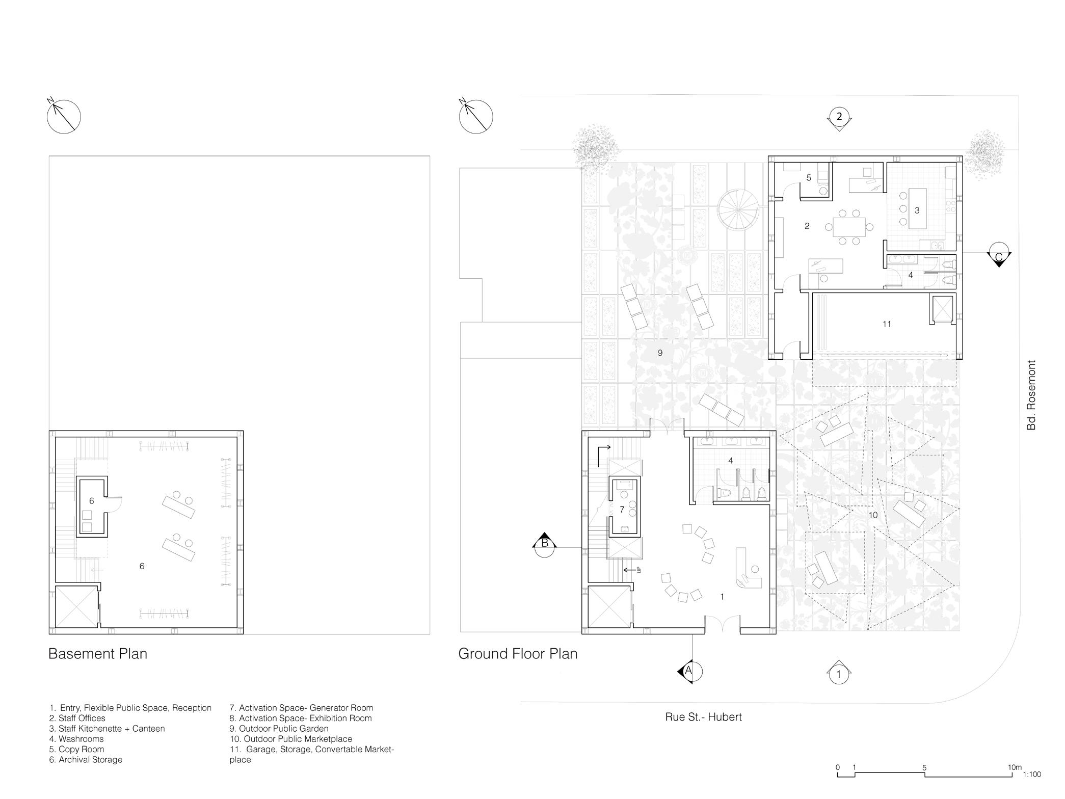
St. Henri, Mile-End Archive Space

Personal Project

Expanding on my own interpretation of a Shanzhai lyric object made in a screenprinting workshop at A83 in Soho, this project explores how this archive can be activated and interacted with in the diverse and colourful Mileend community of St. Henri.

Shanzhai Lyric is an ongoing project based out of Canal street in New York. It is both a physical and online collection of found objects consisting of clothing with misspelt or mistranslated text.

It is a collective commentary in which the fragmented English grammar reveals a hidden territory of perspective on global hierarchies and consumerism. The text further becomes a textile/ print. These rogue objects challenge the traditional borders of society and authorities.

02 THE LINK

SEMESTER 6, 2024

Notre-Dame-de-Grâce, Sustainable urban community

Instructors:

Bruno st. Jean (bruno@neuf.ca) Maïlie Bélisle (mbelisle@neuf.ca)

Partners:

Zi Zheng Li, Sami Hadjadj

LINK is centered around three main principles: Live-Work integration, green equity, and Job-Housing Balance. These concepts were determined from a vigorous study of the neighborhood structure and demographic, as well as the needs of postpandemic life.

LINK’s design fosters the concept of an urban village, where public and private amenities are interconnected, promoting a cohesive and vibrant living environment for its residents.

• Historical YMCA Building

• Adjacent Park

• Volumes unobstructing desired paths

• Connect building and public spaces via skybridges

• program spaces for community

• workspaces, social gathering

• Consolidate design and programmed spaces with site context

Final Project Section, Drawn by Me 1:200 Physical model, made by ZiZheng and I. Renders redone by me.

1/2

SEMESTER 5, 2023

St. Henri, Mile-End Library Expansion

Instructor:

Morgan Carter

Partners: Zi Zheng Li, Sami Hadjadj (morgan.carter@mcgill.ca)

The extension of PSC Library respects the original facade erected in 1872 while including a special addition of a children’s theater. This is in memory of the Riverside Elementary school, and aims at activating the collective lost memory of its youth. This build is a study of integrating playful spaces with sustainability.

Mid - Semester Design Diagrams and Ventilation Strategies Exploration

Collaborative effort between my studio partners Sami, Zi Zheng and I

The use of a thicker wall allows for increased thermal insulation and for the placement of the window to be on the interior side. This allows for increased shading during hte sumemr and heat gain during winter months. For universal shading, the choice to use integral blinds increases the insulation by maximising the air barrier between the two panes of glass. Additionally, it ensures a good fit which makes for optimal shading. All the windows are designed to be operable, following the tilt and turn principle. In the areas ventilated by the atrium, the windows are to tilt from the bottom as that maximises the amount of fresh air intake, without interrupting the already present flow. As for mechanically ventilated areas, the top hung tilt and turn is installed to maximise the hot air escaping the rooms.

The atriums is the central part of the program, allowing for maximal amount of sunlight during the cold winter months while limiting its reach during hot summer. Instead of separating the old building into mechanical ventilation and new into natural, the two building masses are joined into one, ventilated by the large atrium in the middle. The areas furthest from the atrium (as seen on the right side of the above diagram) become fully mechanically ventilated to house some stacks and offices.

The extension proposal is oriented in such a way to maximise the solar gains across the site year- round, while also having in consequence a interesting architectural effect and influence across the site.

The size of the openings vary from floor to floor, largest at the top floor and smallest at the ground, to create a natural air pressure, facilitating the air current. The atrium becomes the largest opening in this scheme.

Ventilation Section - Spring/Fall Mixing
Ventilation Section - Summer
Mechanical System
Calculations Breakdown
OLD

SANCTUARY CAMPUS

SEMESTER 2, 2022

Hudson, Quebec Bird Sanctuary

Instructors:

David Covo (david.covo@mcgill.ca)

Vedanta Balbahadur (vedanta.balbahadur@mcgill.ca)

Individual Project

Sanctuary Campus is individual proposal of a consolidated multi-program extension proposal that seeks to facilitate the rehabilitation of native and endangered birds in the Hudson region.

Public observation areas and interactive educational centers promote awareness of the variety of bird species and the impact of human encroachment on natural habitats. The integration of public and private care facilities ensures both patient privacy and an enriching learning experience for visitors.

HALTON FACILITY

AUGUST 2023

Halton, Ontario, Canada

Industrial Maintenance

Facility

Strasman Architects

Supervisor: Richard Shaw (rshaw@strasmanarch.com)

Professional Project

Halton Maintenance Facility is an proposal for staff dedicated spaces on a larger sustainabiliy oriented recycling campus. The project utilizes a Polycarbonate facade to allow light to filter in and illuminate the volume.

The following visuals were created by me as a presentation set and submission package to the Canadian Architect magazine for their annual project highlights.

CRANE WORKSHOP INVENTORY FACILITY CHEMICALS MANAGEMENT
1.EXTERIOR FRONT.
3.WORKSHOP.
5. WORKSHOP.
4.breakroom.
2.eXTERIOR REAR.

Turn static files into dynamic content formats.

Create a flipbook
Issuu converts static files into: digital portfolios, online yearbooks, online catalogs, digital photo albums and more. Sign up and create your flipbook.
Portfolio Selena Lee by Mayulee - Issuu