21.09-24.06

黃惠敏

連絡電話 0989721769
郵件信箱 may81023lin@gmail.com
居住地區 高雄/屏東
學經歷
正修科技大學 建築與室內設計系 建築組
屏榮高中 餐飲科
實習經歷
永立國際建築師事務所
台灣航空教育發展協會
技能
手繪/代針筆、色鉛筆
軟體/AutoCAD
SketchUp
Revit Rayon Lumion
3D Max
QuickCAD BLUE CAD Photoshop illustrator LayOut
InDesign
PowerPoint
Miro
Excel
Word
語言
台語
英語
日文
設計作品 01 道別的方式 生命紀念園 02 小學設計


模型作品
速寫作品
道別的方式 生命紀念園
畢業設計 / 生命紀念園
基 地 / 823高雄市田寮區狗瘟氤段615-2號
比起華麗炫目,造型具有宗教意象的生命紀念
園區,在民眾接觸西化的情況下對於生命能以
更為坦然、平靜的觀念,也是我們對於道別的 方式的另一種詮釋。
基地概況
基地位於823高雄市田寮區狗瘟氤段615-2號,
面積大約3.7公頃,地形為中間地勢較低,兩 邊高起的山坡保育地,為殯葬用地。靠近臺南
市,基地東邊為田寮區,東北為內門區,西邊 為阿蓮區。

















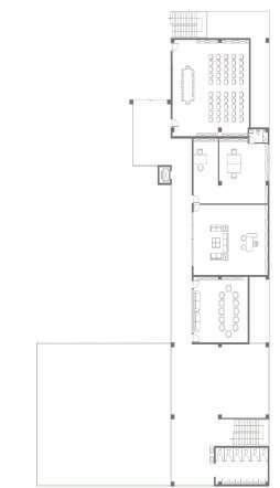
畢業設計 / 生命紀念園
基 地 / 823高雄市鼓山區龍中段119地號「文小26」




全區配置圖












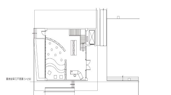
圖書館單元平面圖

音樂教室/美術教室單元平面圖

禮堂/體育館平面圖 室外泳池平面圖




















