Max Srivastava
Architecture
Portfolio
My name is Max Srivastava. I grew up in Belmont California, a town just south of San Francisco. I am currently pursuing a Bachelors in Architecture at the University of Oregon while minoring in Public Policy, Planning, and Management. Outside of all the architecture stuff, I am the president of the UO badminton club and I spend whatever free time I have poking around the buildings on campus, playing board games with my friends, or exploring the local food scene.
The Edible Archive
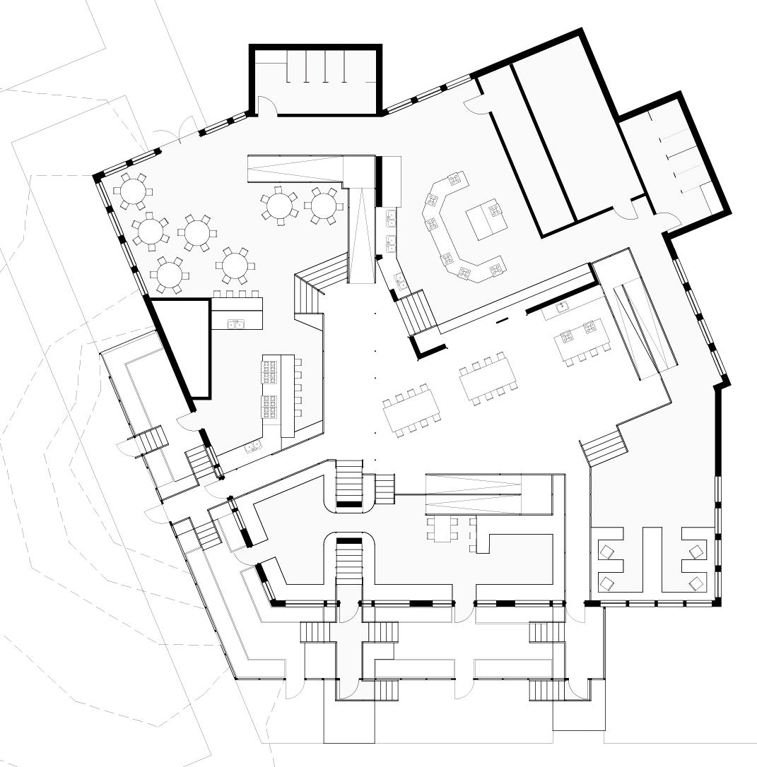
This studio project centered itself around reimagining and deinstitutionalizing the ‘archive’ through the act of archiving a topic of choice and seeing where that leads oneself. This was done to more hollistically understand the building and what it can be.
The project started with student cooking habits and recipes, and extruded itself into food insecurity, productive landscapes, storing food, community around eating, and community farming practices
Project Status : Completed
Term : Fall 2024
Location : Lane County Fair Grounds Eugene, Oregon
Organization
The building is a single story with two levels: one at ground height and one at table height
All of the pieces in the decided program namely need to use the table, so by making it a walkway, the building hopes to begin to unite the programatic spaces with each other and the visitors of the archive who might begin to participate and become apart of a community.
Interior Raised Surface Table & walkway 1.
1: The archive as Casual and approachable
2: Archiving food by eating it
3: Archiving food by teaching it
The Edible Archive gets its name from its attempt to act beyond its institutional research requirements to become a place for helping solve food insecurity within Eugene Oregon’s community.
The Archives focus begins as a classroom for teaching culinary and budgetary skills to students, and moves on to being a seed library, a preserving and pickling station/lab, a green house, and a public facing test kitchen
Performing Arts Centers
Located next to the edge of the Portland Northern Park Blocks, this building hosts contemporary performances with black box and white box theaters. The building also hosts a dance school along with commercial spaces on the first floor.
Project Status : Completed
Term : Spring 2024
Location : North Park Blocks, Portland, Oregon
One of the chief concerns when designing this building came from the large houseless community that had built itself in the park blocks following covid. Performing arts centers are generally for a wealthier clientel and it’s presence could serve to displace the established community. This spurred the goals of softening urban boundaries through the use of the buildings surfaces, and distributing consumption of the building, namely through the large projector screen in front of the building for broadcasting performances free for all.

After the first commercial and service floor, the building is organized around the two box theaters, and an open public corner on the site for viewing projections on to the blank side of the black box. The costume shop makes use of the third level’s walkways around the atrium to bring patrons into the world of the costume making process. finally, the performing arts school and practice space ‘float’ above it all, using a noticbly lighter steel framing method as to relate to the neighboring park’s trees.
Program Organization
1st floor (left) - 5th floor (right)
Dexter Reservoir Community Hall
Project Status : Completed
Term : Fall 2023
Location : Lowell State Park, Oregon
This project asked for a community hall to be built at the beach at Lowell State Park along the Dexter Reservoir. Lowell and Dexter are two very small neighboring communties that share a single high school situated not to far from the site, so in the interest of responding to the communities needs, this community hall was built around the dimensions of a high school gymnasium as to foster sports camps and programs and to give the children of these communities a place to have fun and create community in the winter months while maintaining the versatility of a community hall.
Photographed By
Robert William
Proyect Status : Completed
Project Year : 2006
Client : Lorem
Location : Ipsum
Sub
Weep and ashing
4”
Z
Weep and ashing
Base Plate
Anchor bolts
ashing
Concrete Footing with reinforcements