Portfolio 2022 / Maxence Fromentin

Page 1

SELECTEDWORKS 2022 ,

EDUCATION &AWARDS

MAXENCE FROMENTIN

SKILLS &INTERESTS

SOFTWARESKILLS

PROFESSIONAL EXPERIENCE (1YEAR)

ArchitecturalAssociationSchoolofArchitecture EmergentTechnologies&DesignMSc with Distinction London,UK

Postgraduateprogrammeinemergenttechnologiesforarchitectural design(Parametric&generativedesign,multi-objectiveoptimisation processes,codingandAIfordesign,AR,ecologicalurbandesign, activematerialsystems,robotic&digitalfabrication)

ENSAMontpellier

MasterofArchitecture(PartIIequivalent)/ Montpellier,France FrenchMasterofArchitecturefocusingonmetropolitanarchitecture inmajorcities(M1:BilbaoandAmsterdam,M2:Tokyo)

UCBLLyonIUniversity

PhysicsandEngineeringSciencesBachelor/ Lyon,France ChemistryandPhysics,SpaceandEngineeringsciences(1styear)

Saint-PierreHighSchool

GraduatedwithHonours/ France

SKILLS&INTERESTS

OwnPractice

ArchitecturalAssociationSchoolofArchitecture WorkshopTutor/EmTechStudio/ London,UK

WorkshopontheuseofBlender(photorealisticrendering, animation,modelling,parametricdesign)toEmTechpostgraduate students.

Atelierd'ArchitectureEmmanuelNebout ArchitecturalAssistant (9Months)/ Montpellier,France Internship (1Month)

3daysperweekinparalleltomystudies,full-timeduringholidays. I Workedontheurbandevelopmentof NouveauSaint-Roch in Montpellier,designingvolumesforfuturarchitecturalprojects, developingafly-throughanimationoftheurbanarea. Competition forastadiuminRodez (Stages0-2),Parametricdesignofalibraryin Montpellier(Stages0-2), BIMdesignofahighschoolinCarcassonne (Stages3-4).

Brenac&Gonzalez&Associés

Internship(2months)/ Paris,France

WorkedcloselywithpartnersXavierGonzalezandGuillaume Maréchauxonseveralcompetitionsandongoingprojects.

BordeauxArmagnac :HousingCopetition (Stages0-2)

MarseilleMontolieu: SchoolCompetition(Stages0-2)

NiceMéridia :HousingCompetition(Stages0-2)

HigherRochTowerMontpellier :Halldesign(Stage3)

ColiséeOfficesBordeaux :ceilingplans(Stage4)

LaChapelleInternational :detailsforpublication

AtelierRégisGachonArchitecte

Internship (1month)/ Lyon,France

Graphicelementsfora competition,constructionplans(stages 4-5), construction-sitevisitsandmeetings.

03
02
Flatrenovation (ongoingconstruction), Interiorandfurniture design(custom-made kitchens).
01 ARCHITECTURAL &COMPUTATIONAL DESIGNER
ADVANCED Revit Archicad Autocad Blender Rhino Grasshopper (WallaceiX,Karamba3D,Kangaroo, Ladybug,Pufferfish,t0pos,Culebra, Anemone,Wasp,DeCodingSpaces, Lunchbox,Urbano,…) AdobeSuite (Photoshop,Illustrator,Indesign,After Effects) AffinitySuite MicrosoftOffice Twinmotion Lumion Sketchup INTERMEDIATE Unity UnrealEngine AutodeskCFD Cinema4D Vray Enscape Vectorworks QGIS LANGUAGES French/ Native English/ Fluent(TOEFLscore105) CODINGSKILLS C# (Grasshopper,Unity,AR)
Architecture&Design GenerativeDesign, AIindesign, Adaptive&ResponsiveArchitecture, HarshClimateArchitecture, SustainableDesign. DigitalFabrication 3Dprinting, Laser-cuttingtechniques, CNCmilling, Roboticfabrication. Visual 3Dimageandanimationrendering, GenerativeArt, VectorIllustration, Sketching. /CV ArchitizerA+Award«Collaboration» WinneroftheA+Award2022inthe«collaboration»category fortheRe-EmergeprojectfromAAEmtechXHassellStudio HousingMontpellierCompetition SpecialHonoursPrizeforthe«Myriad»project 2016 2021 2016 2022 2021 2015 2021 2019 2018 2022 2020 2022 2019 Immediatelyavailable Student/GraduateVisa maxarchitecturestudio.com maxence.fromentin@hotmail.com +447453256462
MONTOLIEU PRIMARY SCHOOL PROFESSIONALCOMPETITION BRENAC&GONZALES&ASSOCIATES07.P.33 02.P.07 STAD PARK HILL STUDIOPROJECT ENSAMYEAR4 /CONTENTS /PROFESSIONAL /ACADEMIC /COMPETITIONS /COMPUTATION MAAKBO’OY MAYAN HOUSE THESISPROJECT AAEMTECHMSc 03.P.1305.P.27 RESPONSIVE FACADE SYSTEM STUDIOPROJECT AAEMTECHMSc ARCTIC RESEARCH CENTRE STUDIOPROJECT AAEMTECHMSc 04.P.21 01.P.01 TOKYO SKYTREE ROBOTICS STUDIOPROJECT ENSAMYEAR5 MYRIAD MONTPELLIER HOUSING COMPETITIONWINNER06.
2 YEAR5////// ENSAMONTPELLIER//// 1 TOKYO //TOKYOSKYTREEROBOTICS 35,68321°N,139,80894°E 1 01TOKYO SKYTREE ROBOTICSSTUDIOPROJECT YEAR5 MODELING/ RENDERING / EDITING / REVIT RHINO GRASSHOPPER BLENDER PHOTOSHOP TheTokyoSkytreeRoboticsprojectaimstocreate acentralhubinafast-growingneighbourhood,an impulsioncentrefortheJapaneserobotics revolutionthatcandevelopwithinatest neighbourhood(anurbanprojectshowcasedon mywebsite).Theprojectconsistsofaconcrete basethathousesthehall,ashowroomdedicated toroboticinnovations,andawoodentower containingaroboticsresearchcentre. AnimationmadewithBlenderavailableon: www.youtube.com/watch?v=z4mvc4lXIAE Oronmywebsite: maxarchitecturestudio.com ENSAMONTPELLIER «MetropolesduSud»MasterofArchitecture

Theshowroomisaccessiblebythemain hall,whichisintendedtobeanextension oftheneighbourhood’sgreenway,butalso bytheoutsidewithdifferentframing windowsonaseriesofterracesleadingto thetopoftheconcretebase.Then,

PlanLevel9

offices,workshops,andtestareasmake upthetower,organisedintothree researchdepartments.Thefirstis dedicatedtodomesticrobotics.The seconddepartmentfocusesonrobotics researchinsymbiosiswiththehuman

body.Thethirdisfocusedonapplications inindustrialrobotics.Finally,theroofthat crownsthetowercanserveasanoutdoor testingareaforrobotsanddronesaswell asoutdoorrelaxationareasfor employees.

4 YEAR5////// ENSAMONTPELLIER//// 3 TOKYO //TOKYOSKYTREEROBOTICS 35,68321°N,139,80894°E 1 PlanLevel8
Level8-Testingzone Level0-Mainhall
NorthtoSouthSection
PlanLevel10
ROOFTOP Aerianparc Testingzone ROOFTOP SHOWROOM OFFICES SECTION03 Industrial Robotics SECTION02 Augmented Human Robotics SECTION01 Domestic Robotics RESTAURANT Private CAFE Public SHOWROOM
6 YEAR5////// ENSAMONTPELLIER//// 5 TOKYO //TOKYOSKYTREEROBOTICS 35,68321°N,139,80894°E 1
TERRACE
DEPARTMENT01 DOMESTIC ROBOTICS OFFICE
WORKSHOP WALKWAY
TESTING ZONE
CORRIDOR

Anurbanrenewalprojecthasbeen

ensuredbyavegetatedrooflinkingthe

8 YEAR4////// ENSAMONTPELLIER//// 7 AMSTERDAM //STADPARKHILL 52,353218°N,5,0027695°E 2
variousprogramsbyapathandoffering visitorsviewsofthecityofAmsterdam. AnimationinUnrealEngineavailableon www.youtube.com/watch?v=z4mvc4lXIAE Oronmywebsite: maxarchitecturestudio.com02 STAD PARK HILLSTUDIOPROJECT YEAR4
ENSAMONTPELLIER
«MetropolesduSud»MasterofArchitecture
drawnontheoutskirtsofAmsterdamin anabandonedindustrialdistrict.This newurbanplanfocusesonthe relationshipbetweenwaterandnature bycreatingaparkwithinwhichdifferent programsaredistributed.The neighbourhoodcontainshousing,a schoolandtwoparkingsilos.An architecturalprojecthasbeen developed,addingoffices,exhibition spaces,shopsandagastronomichallto themixed-useurbanprogramme.The continuityofthisprojectwiththeparkis
MODELING/
RENDERING/ ARCHICAD RHINO GRASSHOPPER LUMION UNREALENGINE PHOTOSHOP
EXHIBITION SPACEWORK SPACE

Ariftseparatestheprojectintwo.Bridges arethuscreatedtoconnectthesepartsto preservethecontinuityoftheparkonthe vegetatedroof.Itisthenapublicspaceon twolevelsthatiscreated.Underthe canopy,shopsandrestaurantsaretobe

found.Above,aquietervegetatedpublic areawithshowroomsandoutdoor furniturepunctuatesthewalk.Activities underthevegetatedroofcanbe developedbycreatinglargeopenings providingnaturallighting.Theseactivities

includecoworkingspaces,meeting rooms,andcafes.Ontheothersideofthe rift,localshopsarecreatedtomeetthe needsoftheneighbourhood’s inhabitants.

12 YEAR4////// ENSAMONTPELLIER2
greenroofrender WestElevation SouthElevation
DetailedSection
03MAAK BO’OY MAYAN HOUSE THESISPROJECT AAEMTECHMSc Architectural AssociationSchool ofArchitecture «Emergent Technologies& Design»MSc 2021/2022 TeamMembers LuisBosomsHernandez RodrigoMaronRius MaxenceFromentin RHINO GRASSHOPPER KARAMBA3D NUCLEI KANGAROO ANEMONE WALLACEIX BLENDER AFTEREFFECTS MODELING/ STRUCTURALOPTIMISATION/ AGENT-BASEDSYSTEM/ PHYSICSSIMULATION/ EVOLUTIONARYOPTIMISATION/ RENDERING&PHYSICS/ EDITING/
16 EMTECHMSc////// ARCHITECTURALASSOCIATIONSCHOOLOFARCHITECTURE//// 15 MEXICO //MAAKBO’OYMAYANHOUSE 20,981432°N,-89,61605°E 3 250 km/h hurr canewind 3 5kN/m² 3 5 kN/m²* 0.4)Area 3 5 kN/m²* 0.4)Area 3 5 kN/m²* 0.4)Area 014.7cm cm 250 km/h hurr canewind 3 5kN m² 3 5 kN/m²* 0.4)Area 5 kN/m²* 0.4)Area 3 5 kN/m²* 0.4)Area 255 0cm cm 50 km/h dom nant w nd 07 kN m² Grav y 05 N/m² 50 km h dom nan w nd 0 7 kN/m² Sel Weigh 0 5 N/m SUPPORTS COMPRESSION TENSION 250 km h hurr cane w nd 35 kN/m² -4.7% 4.7% -67.2% 73.7% STRESSLINES GENERATIVESTRUCTURE WIND-DRIVEN FORM-FINDINGOPTIMISATION deformationwasobtained,andthisflexibilityis necessaryforthestructurenottobreak.A secondevolutionaryoptimisationhasbeenrun focusingonthestructure.Thenewgoalswere toreducethedisplacementinthesetwowind scenarioswhilereducingthecross-section sizes.TheParetofrontindividualsdisplaya rangeofdifferentmorphologicalexpressions, andtheaveragebestperformingforthecriteria hasbeenselectedforitsperformance.By understandingthatnotalltheforcesareevenly distributedalongthestructureanddividingit intothreeparts,calculatingloadsofsuction andpressurealongthevolumegavemore accurateresults.Beingabletoremovesome skinduringastormhelpstoeasethe deformationofthestructure.Bothpermanent andremovableskinpanelswillthusbe implemented. Afirstintentionwastofindafastwayto simulatewindpressureonasurfacewitha loopingscript.Fromthere,anEvolutionary Algorithmabstractingthegeometrical propertiesoftheMayanhousetocreatea primitiveformwasimplemented.Multiple objectivesweredefined,suchasminimising windpressureonthesurface,minimising curvature,maximisingusablespaceand minimisingratiovolume/areaforthermal regulation.Basedonthesefourobjectives, thousandsofindividualshavebeengenerated andevaluated.Stressesonthemorphology havebeensimulated,withself-weightandan eastdominantwindloadanddefinedsupports inblue.Fromalargedeformationanalysis, compressiveandtensilestresslineswere extracted,astartingpointforthebamboo structure.However,thesecurvesneededtobe rationalisedintheelasticdomainofbamboo.A firstFiniteElementAnalysiswithself-weight anddominanteastwindwasthenconducted.A secondscenariohasbeentestedwithviolent hurricanewindsfromtheside.Animportant SKINREMOVAL HURRICANESTRATEGY STRUCTURAL OPTIMISATION

Fromtheobtainedsurfaceduringthewinddrivenform-findingoptimisation,bamboo beamshavebeencreatedbylargedeformation analysisandevolutionaryoptimisation.However,thesebamboobeamsneedsolidfoundations,whichhavebeengenerated.Beamsand foundationsareconnectedbyanarticulated metaljoint,ensuringflexibilityduringassembly.

Inordertopromotelocalmaterialandcraftsmanship,mostoftheconnectionsaretied joints.Inthisproject,twotypesoftiejointsare usedandaredigitallygenerated(A&B).

Oncethemainstructureisanchoredand stable,asubstructureiswrappedonittoreceivetheskin.Asecondarystructureissetup tocreatezonestolocatethedifferentskinpanels(C).

Thesubstructuredividestwodifferentskin zones.Oneisneverremovedandconstitutes elasticbutsolidskin.Theotherpartiscomposedofpanelsthatopenorclosedepending onclimateconditions(E).Lastly,rotating doorshavebeenimplemented(D)togivethe usersfreedominnaturalventilation.

18 EMTECHMSc////// ARCHITECTURALASSOCIATIONSCHOOLOFARCHITECTURE//// 17 MEXICO //MAAKBO’OYMAYANHOUSE 20,981432°N,-89,61605°E 3
C
D/Rotatingdoors E/Breathablepanelsscatteringandactivation 1/Selectingsupportingstructure 2/perpendicularframesfromcurveson gridpoints 3/Moveandorientgeometry.Rotation guidedbygraphmapperanddistancetoskin zoneedges 1/Selectinghighcurve,findextreme points.Selectlowcurve,divideandkeep pointsclosesttoextremes 2/Interpolatingpointandpipemesh 3/Creatingpoleascentreofrotation,creatingthesubstructureasexplainedpreviously. C/Skin-zoningstructure tractingcreatedcurves D E A/Tiedjoint1 B/Tiedjoint2 1/Beamsintersection 2/Perpendicularframes,beamcutting,divisionofcurves. 3/Pointssortingandinterpolation 1/Tensilebeamsintersectionwithcentral beam.Beam-cuttingfromplanes,division ofcurves 2/Orientationtocentralbeamtangents, creationoforientedlines,piping 3/Interpolationofcreatedpoints A B
20 EMTECHMSc////// ARCHITECTURALASSOCIATIONSCHOOLOFARCHITECTURE//// 19 MEXICO //MAAKBO’OYMAYANHOUSE 20,981432°N,-89,61605°E 3 Plot1 Plot2 Plot3 Plot4 Plot7Plot5 Plot6 Plot8 Milpa themisreached,moregreeneryiscreated betweenthemtoprovidemoreshading.The scripthasbeensettobeabletoinputthe numberofpeopleandtheiractivitiesoneach plottoselectfunctionsaccordingly.Extensions tovolumescanbeadded,andiftwo neighbouringfamiliesgrowbig,theirplots eventuallymerge. Intermsofspatialorganisation,anexisting terraininMayansettlementsisdefinedbyagrid network,whichisfurtherdividedintoplots.To createwindchannelsbetweentheplots,an agent-basedsystemtryingtominimisethe windchannelsnetworklengthandavoidthe centreoftheplotshasbeenset.Fromwhicha meshhasbeenextractedthatinfluencesthe elevationoftheterrain,aswellasthe vegetation,followingtherulesestablishedin thepreviousexperiments.SeveralCFDshave beenruntoenhancelandscapedesignforwind mitigation.Higherspeedsinwindchannelscan beseen,demonstratingitsefficiency.More thanchannellingwind,theelevationdifference willhelptodealwithstormsurges.Evolutionary optimisationfortheplots’spatialorganisation hasthenbeenputinplace.Theyaimto enhanceshadingandincreasethedistance betweenthemainfunctionstocreatean outdoorspace,andpushawaythewaste, pigstyandbeehive.Plansaregeneratedbased onrules;athinwindchannelpassesthrough theplotfornaturalventilationonwhichthe volumesarealigned.Thedistanceofthemain functionscreatesaterraceforexterior activities.Whenacertaindistancebetween 0 250km/h
22 EMTECHMSc////// ARCHITECTURALASSOCIATIONSCHOOLOFARCHITECTURE//// 21 GREENLAND //ARCTICRESEARCHCENTRE 69,20857°N,-51,10914°E 4 “DesignII:EcologicalUrbanDesignisfocusedoncreatingnewdesignexperiments andsystemlogicsforecologicallysensitivesettlementswithurbantissuesinextremeclimatesandecologicalcontexts.It isfoundedonthelogicthatthepatternsof humaninhabitationaredeterminedbythe needsoftheinfrastructureoftheecology–designed,grown,anddevelopedasintegratednaturalandculturalsystems,with theambitiontoberesilienttochange.”(AA Emtech,2022) Theprojectreflectedonthecreationofan arcticcolonyinGreenlandthatintegrates anarcticresearchcentre,dwellingsfora thousandpeople,anditsnecessary amenities.Agenerativemodularsystem hasbeensetuptoallowtheaggregationof modulesbasedonseveralcontext influences.Thesemodulesareonskis, designedtomovetofollowClimateChange throughouttheyearsinGreenland.Various urbandesignshavebeentested,andone wasselectedbasedonitsperformance. 04 ARCTIC RESEARCH CENTRESTUDIOPROJECT AAEMTECHMSc RHINO GRASSHOPPER WALLACEIX WASP AUTODESKCFD HOUDINI ANEMONE DECODINGSPACES BLENDER MODELING/ EVOLUTIONARYOPTIMISATION/ RULE-BASEDAGGREGATION/ CFDANALYSIS/ NETWORKANALYSIS/ RENDERING/ ArchitecturalAssociationSchoolof Architecture «EmergentTechnologies&Design»MSc 2021/2022 TeamMembers: AnastasiyaKatliarskaya ZiyueGao MaxenceFromentin

Thecomputationallogicisbuiltaround theconnectionpointscreation.The numberofconnectionsdirectlyinfluences thegeometricalform.Aseparateroof modulehelpsnottoloseheatand preserveenergyconsumption.Atthe sametime,theroommodulecreatesan

GENERATIVE PROCESS

CLUSTER

areaforthesolarpanels.Furthermore,as theroofisaseparateprefabricated module,thesettlementcaneasilygrowby relocatingtherooftotheupper accommodationmodule.Thesedifferent moduleshavebeenselectedthrough thousandsofindividualsthankstoan

evolutionarymulti-objectiveoptimisation algorithm.HoudiniCFDsimulationsonthe inhabitationclusterhavebeenconducted toadaptthedesignofthebedroom moduletoredirectwindflowsandthus reducepressureandsnowbuild-up.

Fortheaggregationofthedwelling modules,theWaspplug-ininGrasshopper hasbeenused,andcertainrulesof connectionhavebeencreatedbetween elements,aswellasseveralfieldsthat guidedthisaggregation.Thecloudof pointsexplainsthealgorithm’schoicefor

AGGREGATION

aggregationpathsandtheirvaluesbased onfields.Theaggregationgrowsfollowing theconnectionrulesofelements,defined toplacedifferentinhabitationpods(Food, Kitchen,Social,andBedrooms)tocreate inhabitationclustersfor27peopleeach. Theaggregationcontinuesbystartingat

otheroriginsandthenjoiningattheend.

24 EMTECHMSc////// ARCHITECTURALASSOCIATIONSCHOOLOFARCHITECTURE//// 23 GREENLAND //ARCTICRESEARCHCENTRE 69,20857°N,-51,10914°E 4
Circlesruledaggregationongrid Length1connectstowallpanel1 Length2connectstowallpanel2 Modulefootprint Wallpanelsplacement Differentwindowsdependingonthe wallpanel Verticalconnectionsand solarpanels Connectionpoints+Polylinegeneration Inclusionanalysis
HABITAT
COLONY
BEDROOMS POD SOCIAL POD KITCHEN POD FOOD POD
26 EMTECHMSc////// ARCHITECTURALASSOCIATIONSCHOOLOFARCHITECTURE//// 25 GREENLAND //ARCTICRESEARCHCENTRE 69,20857°N,-51,10914°E 4 RESEARCH CLUSTER EDUCATION&HEALTH CLUSTERS
CULTURE&TOURISM CLUSTERS

FACADE SYSTEM

Inthisproject,a30-storeyhighbuildinghad tobedesignedinLondonwithawooden façadesystem.Climatedatahasbeen usedtoconductenvironmentalanalysis withLadybugandAutodeskComputational FluidDynamics.Theresultsgeneratively orientedthefirstmorphologicalexploration whereamulti-objectiveoptimisation processhasbeenemployedtoachievea

well-performingbuildingvolume.Thedesign consistsofadouble-skinbuildingenvelope thatiscomprisedofhexagonalunitswith ETFEpanelsontheoutside,hexagonalwood panelsasarotatingshaderinthemiddle,and conventionalglazingontheinside.An algorithmhasthenbeencreatedtogenerate theskin’smorphology,thehexpatternwas createdusingLunchbox,andits

deformationsoccurringonterraces withviewscomputedwithKangaroo physics.Finally,theintegrationof dynamicpanels,triggeredby individualsolargainvaluesobtained withLadybug.Thisapproachallowed thedesignofafaçadesystemwith anenvironmentallyresponsive actuation.

28 EMTECHMSc////// ARCHITECTURALASSOCIATIONSCHOOLOFARCHITECTURE//// 27 LONDON //ACTIVESKIN 51,500153°N,-0,1262362°E 5
Solarradiationsensorsactivatingpanels Kineticpanelprototype STUDIOPROJECT AAEMTECHMSc 05 RESPONSIVE
ArchitecturalAssociationSchoolofArchitecture «EmergentTechnologies&Design»MSc 2021/2022 TeamMembers BarisDogaCam YixiaoXu MaxenceFromentin RHINO GRASSHOPPER LUNCHBOX KANGAROO LADYBUG AUTODESKCFD BLENDER MODELING/ ENVIRONMENTALDESIGN/ CFD/ RENDERING/

“ArchitecturalAssociation(AA)Emergent Technologies&Design(EmTech)Post-Graduate ProgrammeandHassellStudiohavecollaborated tocreateanewpavilioninBedfordSquare.Titled Re-Emerge,theresearchagendaofthePavilionis situatedwithintheframeworkofproductionina worldwithlimitedresources.Theproject emphasisesthepavilion'secologicalimpactfrom theearlyphasesofthedesignprocessonwards. Woodisinherentlythebestbio-fabricatedand biodegradablematerial.Whenatimberbuildingis demolishedafterseveraldecades,itdoesnot

produceuselesswaste,butgenerates reclaimedwoodthatcanbere-usedandrepurposed,hencebecomingpartofthecircular economy.Re-EmergeiscreatedwithgradeA reclaimedwoodpallets.

Morphologicalandstructuralcomplexitywas adoptedbythevariableaggregationofsimilar modulesthatareformedbyscoringandsteambending.Themodulesareassembledwithlap joints,diminishingtheneedforsecondary materialsinthejoinerysystem.

Theconsciousattitudeoftheprojecttowards theenvironmentismaintainedinitsfabrication andinstalment. Theemploymentoflifecycleassessment(LCA) inourcomputationalworkflowshasfacilitated totakeintoconsiderationCO2emissions associatedwithnotonlythematerialitself,but alsoitsoriginsandtransportationtosite.Atthe endofitssecondlifecycle,partofthepavilion waserectedinHassellStudioandpartofitwas sentbacktothetimberrecyclingfacilities whereitwasresourcedfrom.Theambitionof

Re-Emergeistocreateastrongdialogue betweenthelocaltimberindustryanditsbyproducts.”(AAEmtech,2022)

Totakeavirtualtourofthepavilion,enabledby Matterporttechnology,pleasevisit: https://my.matterport.com/show/ ?m=Pn7GjFWAmup

30 EMTECHMSc////// ARCHITECTURALASSOCIATIONSCHOOLOFARCHITECTURE//// 29 LONDON //RE-EMERGE 20,981432°N,-89,61605°E RE-EMERGE AAEMTECH XHASSELL ARCHITIZER A+AWARD2022

MYRIAD HOUSING

Thisprojectisoneofthewinnersofa competitionorganisedbytheRegional HealthAgencywhichlaunchedacallfor ideasforinnovativeintergenerational housing,aimingtoimprovethehealthof itsinhabitants.Afirstintentionwas designedtoadaptasbestaspossibleto thecontextinwhichthishousingprojectis established.

Apartfromthefirstfloor,thelevelsare separatedintotwodistinctvolumesto allowthedwellingstoenjoybetternatural ventilationbyoptimisingtheorientations. Oneofthetwopartshasonemorefloorto createadialoguewiththesurrounding buildings’heights.Theprojectthen developsaroundfunctionaltypologies thatcanbefoundinintergenerational

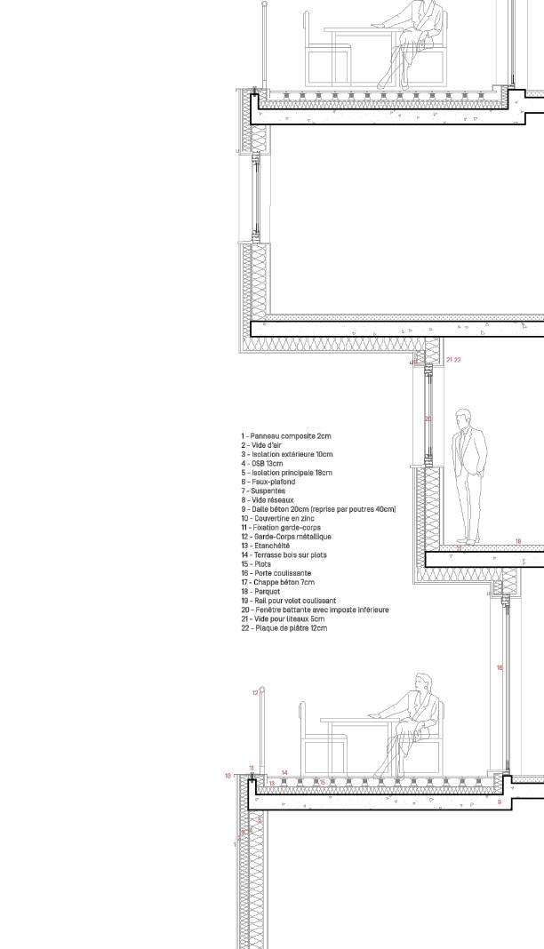
Legend

1-Compositepanel2cm 2-Void 3-Externalinsulation 10cm 4-OSB13cm 5-Maininsulation18cm 6-Falseceiling 7-Lines 8-Voidfornetworks 9-Concreteslab20cm (supportedbybeams 40cm) 10-Zinccover 11-Guardrail attachment 12-Metalrailing 3-Water-resistantlayer 14-Woodenterraceon studs

15-Studs 16-Doubleslidingdoor 17-concretecover7cm 18-Parquet 19-Railforsliding shutter 20-Hingedwindowwith bottomtransom 21-Floorspace5cm 22-Plasterboard12cm

housing,aswellas commonspacespromoting thecohabitationofdifferentgenerations. Offsetsonthesamefloorallow multiplying facadeareasandopenings,tocreateloggiasthat protecttheflatsfromthestreet-levelnoise. Shiftingitfromoneleveltoanotherallowsthe façadetoberhythmedandthuscreatesadditional outdoorsurfacesusedasvastterraces.

MODELING/ RENDERING/ EDITING/

ARCHICAD TWINMOTION PHOTOSHOP ILLUSTRATOR

32 YEAR3////// HOUSINGCOMPETITION//// 31 MONTPELLIER //MYRIAD 43,61086°N,3,87612°E 6
1-BED Youngcouple
2-BED
Youngfamily 3-BED Familywith 2children
06 COMPETITION WINNER «SPECIALHONOURS»PRIZE DetailedSection

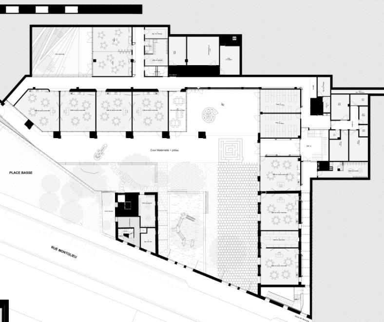
InMarseille,adistrictclosetotheold docksischanging.Thisplace abandonedovertheyearshasthe projectofbecomingavibrant neighbourhood,bothtouristicand residential.Atitscentre,the MontolieuKindergartenandPrimary Schoolisinneedofdevelopment.This

projectisacompetitionparticipant. Thevariousobjectiveswere:to proposeanextensionthatperfectly combinesthehistoricalcharacterof thepresentbuildings.Aswellasto openstudentstosustainable developmentwiththeestablishment ofvegetablegardensandthe

productionofrenewableenergyon theroof. *Rendershavebeenproduced externally

MONTOLIEU PRIMARY SCHOOL

MODELING/ EDITING/

TeamMembers XavierGonzalez JulienGonin MaxenceFromentin

ARCHICAD PHOTOSHOP ILLUSTRATOR

//// 33 MARSEILLE //MONTOLIEUPRIMARYSCHOOL 43,29337°N,5,3713°E
07 PROFESSIONAL COMPETITION
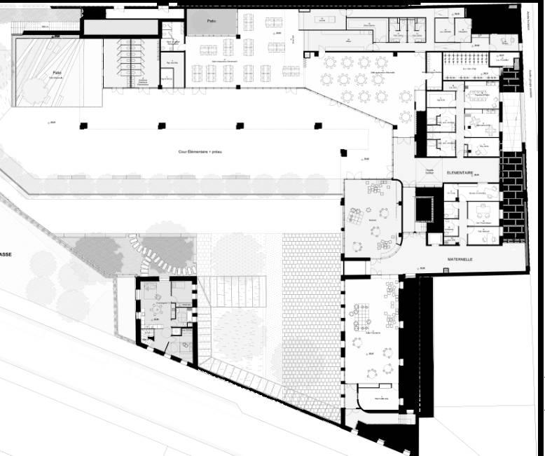
36 PROFESSIONAL////// BRENAC&GONZALEZ&ASSOCIES//// 35 MARSEILLE //MONTOLIEUPRIMARYSCHOOL 43,29337°N,5,3713°E 7 GroundlevelPlan WesttoEastSection FirstlevelPlan
maxarchitecturestudio.com maxence.fromentin@hotmail.com +447453256462

Turn static files into dynamic content formats.

Create a flipbook
Issuu converts static files into: digital portfolios, online yearbooks, online catalogs, digital photo albums and more. Sign up and create your flipbook.
Portfolio 2022 / Maxence Fromentin by maxence.fromentin - Issuu