Coleman Hills x Asher Homes | Custom Estates

Page 1


COLEMAN HILLS

A nature-filled rural living experience has been brought to life amongst the rolling hills of Southwest Medford

Coleman Hills is a premier gated community in a beautiful and conveniently located landscape.

Coleman Hills combines tranquil living with convenient access to a range of amenities. Located in the heart of the Rogue Valley in Southern Oregon, this charming neighborhood offers residents a unique blend of privacy and connectivity. Coleman Hills is ideally situated just minutes from Jacksonville, a historic town known for its vibrant culture, boutique shopping, and fine dining options.

Building envelopes are established and are build ready; utilities include underground power, water, and septic approval. One home has been completed with another in the beginning stages of construction, Coleman Hills is set to be a community of high-quality custom construction curated to the most discerning of buyers.

With such a diverse range of recreational opportunities, from wine tasting and fine dining to outdoor adventures and natural wonders, Coleman Hills provides an unparalleled lifestyle for those seeking the perfect blend of tranquility, convenience, and exploration in Southern Oregon.

We have built our reputation as one of Southern Oregon’s premiere custom home builders by focusing on integrity, artistry and quality craftsmanship. We pride ourselves on our ability to provide clients with a unique and enjoyable experience throughout the entire process of visioning and bringing their dreams of home ownership to life.

With one-of-a-kind, innovative, state-of-the–art architectural designs and an uncompromising commitment to quality, we approach each personalized home project with a fresh perspective and an eye toward simple, understated elegance. With over 35 years in the business, Asher Homes is dedicated to providing you with the utmost in customer satisfaction and to making your dreams a reality.

When you make the important choice to build the personalized home of your dreams, a great deal of thought goes into it. You need to be assured when selecting a builder, that their commitment, integrity and expertise are of the highest caliber. At Asher Homes, our commitment to excellence and customer satisfaction is what sets us apart from the competition.

Our demonstrated dependability, extensive experience in the business and our firmly established reputation as one of the leading custom home builders in the Rogue Valley should be reason enough for you to choose Asher Homes Inc. to design, contract and build the home you have always dreamed of owning.

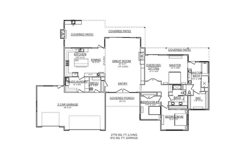
1018 COLEMAN HILLS

Perched within the gated enclave of Coleman Hills, this modern single-level Asher Homes design embodies refined rural living with panoramic valley views and seamless indoor-outdoor flow.

Spanning 2,778 sq ft, the home features 3 bedrooms, 2 baths, and an open-concept layout filled with natural light. Custom built-ins, wideplank hardwood floors, and a stone fireplace with a reclaimed wood mantel define its warm contemporary style.

Built to Earth Advantage Platinum standards, it includes high-efficiency HVAC with air purification, radiant heat in the primary bath, solar-ready infrastructure, and a wildfire-conscious material palette. A 912 sq ft three-car garage, EV charging, and backup generator tie-in add modern convenience.

Outdoor living shines with a covered patio, built-in BBQ, and stone fireplace perfect for soaking in sweeping views of Southern Oregon’s hillsides.

This is a rare opportunity to pair a build-ready parcel with Asher Homes’ hallmark craftsmanship, sustainability, and timeless design.

1018 HOME DETAILS

3

22,778

This modern single-level home by Asher Homes offers 2,778 square feet of refined living with three bedrooms, two bathrooms, and an open-concept design filled with natural light. Expansive windows frame sweeping valley views, while custom built-ins, wide-plank hardwood floors, and a stone fireplace with a reclaimed wood mantel create a warm contemporary feel. Designed for both comfort and efficiency, the home features highperformance systems, a 912 sq ft three-car garage, and seamless indoor-outdoor living with a covered patio, built-in BBQ, and stone fireplace.

Image shown is for digital renderings for illustrative purposes only. Final construction details, finishes, and landscaping may vary from the representations shown.

1018 PROPERTY DETAILS

Access: Access is via gravel driveway off of Coleman Creek Rd

Present Land Use: Vacant Land - Ready to Build

2024 Taxes: $120.83 (This would be reassessed upon the completion of a newly built home)

Zoning: WR (Woodlot Resource)

Elevations: +/-2,080’ to +/-2,400’ above sea level

Topography: Sloped lot with North/Northwest views

Domestic Water: Private Well (JACK 65463) 46

Sanitation: ATT System approved

Electric/Power: Power available - to be developed within construction

Internet: StarLink Available

1018 HOMESITE

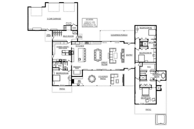
1028 COLEMAN HILLS

Where modern West Coast design meets the quiet beauty of Southern Oregon’s hillsides, this Asher Homes residence combines comfort, craftsmanship, and connection to place. Set within the gated community of Coleman Hills, the proposed home on Parcel 3 offers 3,859 sq ft of single-level living with four bedrooms and three and a half baths. Vaulted ceilings, wideplank hardwood floors, and dual stone fireplaces create warmth and architectural harmony throughout.

Built to Earth Advantage Platinum standards, the home features high-efficiency HVAC with air purification, solar-ready infrastructure, radiant heat in the primary bath, and a wildfireconscious material palette. A gourmet kitchen with custom cabinetry and quartz surfaces opens to a covered outdoor living area with BBQ and fireplace, ideal for year-round entertaining. The oversized three-car garage includes EV charging and generous storage.

Every Asher Homes build reflects precision, sustainability, and enduring design crafted to honor its surroundings and elevate everyday living.

1028 HOME DETAILS

4 3.5 3,859

This single-level modern home by Asher Homes spans 3,859 square feet and features four bedrooms and three and a half baths, thoughtfully designed for both gathering and retreat. Vaulted ceilings with exposed beams, wide-plank hardwood floors, and dual stone fireplaces create a warm, cohesive aesthetic throughout. The gourmet kitchen showcases custom cabinetry, quartz countertops, and premium appliances, flowing seamlessly into the great room and covered outdoor living space. With its open layout, abundant natural light, and refined finishes, the home embodies modern West Coast comfort and timeless craftsmanship.

Image shown is for digital renderings for illustrative purposes only. Final construction details, finishes, and landscaping may vary from the representations shown.

1028 PROPERTY DETAILS

Access: Access is via gravel driveway off of Coleman Creek Rd

Present Land Use: Vacant Land - Ready to Build

2024 Taxes: $90.63 (This would be reassessed upon the completion of a newly built home)

Zoning: WR (Woodlot Resource)

Elevations: +/-2,200’ to +/-2,280’ above sea level

Topography: Large level building pad with rolling acreage

Domestic Water: Private Well (JACK 65565) 23 GPM

Sanitation: ATT System approved

Electric/Power: Power available - to be developed within construction

Internet: StarLink Available

CC&R’s: Restrictions provide conformity and protect the nature of the community

1028 HOMESITE

Turn static files into dynamic content formats.

Create a flipbook
Issuu converts static files into: digital portfolios, online yearbooks, online catalogs, digital photo albums and more. Sign up and create your flipbook.