the works of

the works of
at ThoughtCraft Architects, LLC
UF: GSoA Masters of Architecture 2021
UF: SoA Bachelors of Design 2019
193 Hampshire Street, 2 Cambridge, MA 02139
Phone: (321) - 806 - 0130
E-mail: mark.wilson.064@gmail.com
My name is Mark Ignacio Wilson. (he/him/his)
I am Half-Filipino, Half-White American. I am the son of an immigrant and a first generation college graduate.
This work is my story.
Evidence of my soul can be found in these works. Even if this is a small vignette of my life, a recognizable essence can found in every line, cut and click. I found architecture at just the right time. It helped me find character, my passion, my curiosity and, most importantly my place in this world. To learn, to listen, and to make is how I naturally dwell on this earth. I truly believe that.
On the cover, you will find three images of places where I have worked over the past few years. These places were special to me then and they are special to me now. Through this always working document, as I look back at places and projects of old, I look forward to new challenges and adventures.
This version of my portfolio was updated in 2023 and shortened to be viewed easily on this platform.
Enjoy. And thank you.
193 Hampshire Street, 2 Cambridge, MA 02139
Phone: (321) - 806 - 0130
E-mail: mark.wilson.064@gmail.com
2019 - 2021
UNIVERSITY OF FLORIDA: GRADUATE SCHOOL OF ARCHITECTURE
School of Architecture at the University of Florida College of Design, Construction, and Planning
SPRING 2019
UNIVERSITY OF FLORIDA: VICENZA INSTITUTE OF ARCHITECTURE
Study abroad program offered by UF: SoA. The program involves living, learning and immersing oneself into a culture foreign to myself. Based in Vicenza, Italy, the
2016 - 2019
UNIVERSITY OF FLORIDA
School of Architecture at the University of Florida College of Design, Construction, and Planning
2013 - 2015
EASTERN FLORIDA STATE COLLEGE
Graduated in Fall 2015 with Associate of the Arts Degree with Honors
2022 - CURRENT
THOUGHTCRAFT ARCHITECTS LLC
Designer | Contributes design thinking to a number of projects typologies and initiatives. From the first conversations to execution, Mark is currently learning how to be a thoughtful practitioner from the talented team at TC.
2021 - 2022
DIMELLA SHAFFER
Junior Designer | Primarily working on project teams, taking project from early concept to construction documentation. Was part of a successful project interview team. Also, I contributed as valued member of several internal organizations.
2020 - 2021
VORKURS: DOMAINE
Production Editor | Annual graduate publication aiming at instilling the ideas of the school’s graduate students and faculty into the larger discourse of architecture.
SUMMER 2019
Architectural Intern | Responsibilities included: assisting with several projects in the Construction Development phase. Re-developing the office website, creating renderings for projects.
2017 - 2018
ARCHITRAVE 25 & 26
Creative Editor | Helped lead a student-run, school-supported publication aimed a capturing the design culture of the University of Florida: School of Architecture. I lead the team of student designers tasked with creating the graphic & theoretical nature of the publication.
FALL 2022 - CURRENT
At the Wentworth School of Architecture and Design. Instructs architectural Representation and Media classes to first-year students
SUMMER 2021
At the University of Florida: School of Architecture Summer Program, assisting teaching Design 1.
SUMMER 2020 + 2021
Worked as a graduate instructor for the architecture high school camp at the University of Florida: School of Architecture.
FALL 2019 + FALL 2020
Partnered in re-development of course work & direction. Created an exhibition of student work, lead a student project to create set of theoretical journals. Assisted with grading assignments and essays.
SUMMER - FALL 2017
Served as a Teacher’s Assistant for foundational architectural design courses at the University of Florida: School of Architecture.
SPRING 2023
VORKURS: RITUALS
Wrote an original essay entitled “A Morning Coffee”.
Adobe Photoshop
Adobe InDesign
Adobe Lightroom
Autodesk AutoCAD
Autodesk Revit
Rhinoceros 3D
Sketchup
V-Ray Rendering
Enscape
Abobe Illustrator
Microsoft Office
Miro
Archicad 22
Grasshopper
Adobe Premiere Pro
ANALOG
Model making
Sketching
Drafting
Watercolor painting
Woodworking
Casting
PERSONAL
Graphic design
Photography
Writing
Poetry
Web design
Project organization
Cinematography
Teaching
Travel
IN MY FREE TIME
Cooking
Reading
Running
Basketball
Photo Walks
Sketching
Painting
Making Coffee
Watching Movies
2021
The American Institute of Architects Henry Adams Medal
Awarded to the most outstanding graduating professional degree student.
2021
Architecture Graduate Design Honor Award
Ranked first place on graduate studio works, based upon faculty vote.
2021
Architecture Masters Research Project Design Honor Award
Awarded to the best Masters Research Project, based upon faculty vote.
2019
Professor Harold W. Kemp Endowed Scholar
Merit-based scholarship fund awarded for design excellence.
2021
Graduate Award for Excellence in Teaching
Honor for excellence in Pedagogy.
2017
Top Ten Pin-Up Score
Placed among top students during the UF:SoA lower division sequence.
Plaza’s or squares long have held a significant place in the urban landscape of Latinx societies. The indigenous civilizations of Latin America had long been anchoring their cities around civic courts. These spaces were a nexus for religion, bartering of goods, recreation, and displays of power. When the Spanish colonized the America’s they took with them their traditions of plazas. Functionally the spaces were used similarly, but their expression and organization changed to match the powers at be.
Among those changes remained a constant, used by both Latin Americans and Spanish colonialists, the grid. European Empires have been known to use grid plans for their colonies since Classical Greece. Its form is perfect, stretching equally in both directions. Easy to plan, easy to adjust. Often it is deployed cardinally, which consequently evokes Christian/ Catholic imagery.
The grids used by pre-Colombian Latin Americans were not as ready made, but instead developed over time, like the home cities of their future colonizers. Cardinality was not uncommon in the grids of the Aztec, Maya, and Inca to name a few, but there was also space for irregular grids. These irregular charts were often developed from astronomical insights, aligning axis of roads with the setting of significant satellites (typically Venus). These celestial mappings created new lines to revere formally as urban spaces were sculpted.
The status of the Plaza space in America 2020. Near 300 years of industrial and post industrial complexes have dominated American urban landscapes. In most cities one is pressed to find a true plaza space, activated by all the aforementioned programs (religion, bartering of goods, recreation, and displays of power).
This project, Plaza de la Plataformas, seeks two goals. One to provide a platform for American Latinx to project and absorb their identity. This is a plaza of platforms. American Latinx are not a monolith, they have a diversity of beliefs, interests, and histories. They in turn deserve a diverse way of projecting those into the National Mall and the country itself. Equally important is a platform to absorb, and this is manifest in the programs that envelop the plaza. Galleries for history, cycling artworks, classrooms, research libraries, curatorial spaces, informal and formal auditoriums all work together to frame this National Museum for American Latinx.
The second goal is to acknowledge the significance of the Plaza typology to Latin Americans through out their various urban histories. To acknowledge how its use has developed overtime, for better and worse. Accompanying this is to provide a platform for the reclamation of a significant typology in a national theatre by a more than significant national Identity.
Striving to acknowledge and celebrate the multivalent habitation of the Latin American Plaza, our group looked to experiment with a material process that is as rich as this important cultural space. In doing so, we worked with plaster, as it could be casted, manipulated and interpreted. As we felt the first step to making a plaza is to wrap it, we used the material process of subtraction to dissolve the edges, revealing a porosity between the public and the plaza.
Directly inspired from the Latinx sensitivity to the seasons and reacting to the temperate climate of the Nation’s capital, we worked to shape the informal habitations of the plaza around the calendar year. Instead of simply focusing on the marque holidays, we also accommodated for the more informal gatherings that happen in a public urban space. We felt this acted to provide a intimate and vibrant urban space, but also allowed the museum to truly be a celebration of the Lantinx culture that anyone can participate in.
Within the defining walls of the plaza, the descrete programs of the museum are held. Inspired by the Latin American cultural practice of paseo, which directly translates to walking, the public collections are organized around vertical circulation cores allowing for a natural wandering through the galleries. In addition, the programs that define the edge of the plaza are linked within the walls; the paseo happens within the walls, as well as within the plaza.
Section perspective reveals the relationship between the temporary gallery, the plaza and the spaces below. The Museum is an active participant both urban and cultural space. auditorium pre-function auditorium offices and library
Location Program Prompt
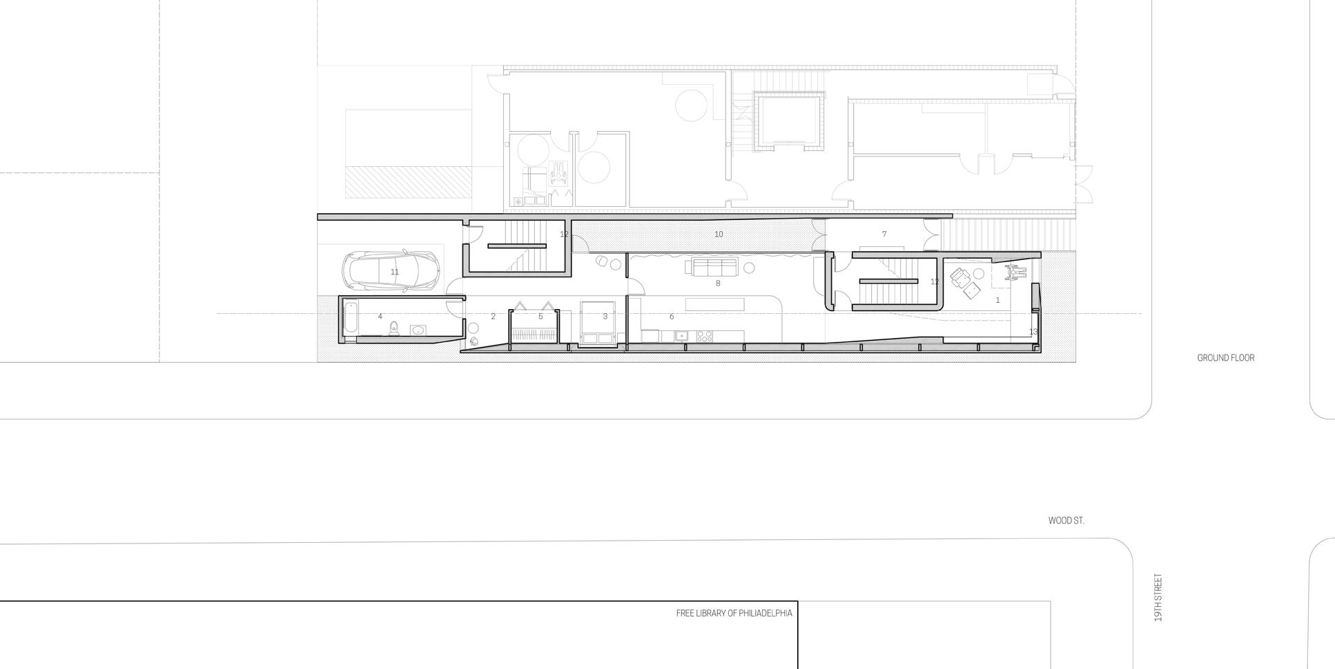
Philadelphia, PA, USA
Infill Residential Housing for Traveling Scholars
This project is a meditation on how architecture can create a residence in which a community of scholars can dwell and learn within the urban context of Philadelphia.
Focusing on the intimate interplay of the scales between the body and the book, light actives this relationship. To do so, the fortunate of south light is harnessed by a translucent assembly, where light is projected into the units, serving as ideal spaces for reading and contemplation. Additionally, at the street corner, a community library displays books to the neighborhood; leaning as a spectacle, therefore boistlering the structure as a nexus of knowledge.
As one part of a thirty building residential proposal, this particular infill site is gifted with three faces of southern exposure. The form, organization and composition of the facade are all direct reactions to the conditions of the site; the exterior is of the site. Given that the program asks for quiet and contemplative living space, the inside edge of the building quietly supports the “homeliness” that a urban dwelling deserves; the interior is of the program.
The edge, the poche, the two foot distance between home and the city works to negotiate this duality between interior and exterior. This proposal does this by employing a tectonic polycarbonate glazing system. Within this system, panels of varying opaqueness, either open or close the space of the apartments to the city.
The materiality of light and books meet with the body in the reading space. The space is vertically shared between the stacked apartments, through this relationship, the act of reading becomes a communal event. The boundaries of public and privacy are stretched and therefore negated. Knowledge becomes a community.
Location Program Venezia, Veneto, Italy
Interpretive Gallery
During my explorations of the mystical city of Venice, a curious citizen of the city caught my eye: the common pigeon. Their chaotic energy and ability to inhabit the narrow spaces of Venice with pure freedom captured my imagination. This observation turned catalyst, inspiring a program to would provide humans the ability to experience the intermediate space above the streets, to fly above the canals of Venezia; to feel the freedom of a bird.
The chosen site of a narrow rio adjacent to the Rialto Fish Market combined with the program inspired an intimate space suspended high above the liquid streets of Venice. There with pigeons flying above, the sound of their wings flapping fills the space, light shines down from above, illuminating the scene.
This sectional relationship, creates a moment of understanding between human, animal and place that would not of existed without the intervention of architecture.
A Constructed Nexus | Understanding takes the form of a tensile, didactic volume: the nexus of image, animal, movement, light and sound.
understanding by observation
understanding by study
understanding by light
understanding by interaction
Along the edge of the floating volume, images of pigeons are sequenced within a horizontal space. Separated by a tensile canopy, pigeon and human coexist, both flying above the rio below. Due to the cable structure, as one walks the floor moves in the slightest way. This precariousness focuses the body and gives one a sense of flying and therefore, freedom. At the ends of this sequence, the volumes opens up, one is flying high above the canal.
10
FRAMEWORK
The Leon Electric building has remained untouched for too long. Its once robust and impenetrable structure has become an imposing monument to the empty promises of the government and the greed of its owners.
This project aims to investigate a method for the equitable development of the Leon Electric building. This is achieved by flipping the typical city-construction-client relationship. Rather than the designers merely seeking approval from the community, the direction of the construction is given to the public. This is accomplished by creating a flexible space for the community to build into. By removing much of the existing walls and floors at the Southwest corner, the hidden concrete structure is revealed as a framework for a kit of parts to attach to. The old holds the new, the new holds the old. A timeless relationship that can be re-invented for generations to come.
Dorchester, Boston, MA USA Adaptive Reuse Public Mixed-Use Commercial 72 HOURS
With the public leading the way and the builders at their service, this collaborative will design and build the ideal use for the remaining space. By becoming an integral part of the design process, the public can learn to harness architecture’s power to catalyze change. Through this democratic process, the reconstruction of the building becomes a public performance; an exhibition of the imagination of the local community.
This set of images demonstrates one outcome of the myriad of possibilities achieved through this design approach. The collaborative chose to construct an outdoor stage, serving as a gateway and introduction to the vibrant community of Upham’s Corner.
COMPETITION
Every year, in a collective act of protest the concerned citizens of America will descend on the National Mall and peacefully march on Washington. In this annual ritual of resistance, the people will re-activate the civic stage in remembrance and celebration of the thousands who have used the space to exercise their constitutional right to protest.
As part of the ritual, the people will erect temporary structures that will aid them in the activation and execution of the event. These structures are programed to support the creation of and use of protest signs. These storied tools of protest are barometers of social change representations of cultural identity and rhetoric of revolution. Through this intervention(s) the signs and the people will be recognized and celebrated. To do so, within the bounds of the support structures, the signs will be created, utilized and then displayed.
Temporal structures with discrete programs will be built by the people; the act of communal constructing as protest. In the free spirit of making, the people will be allowed to make/move these structures as they see fit. Their democratic placement will give the pristine grounds of National Mall back to the people. To mark the start of the event the people will construct the structures, and to mark the end, they will be deconstructed. In creating a more permanent place for democratic resistance, the event and the subject matter of debate will remain longer, and perhaps clearer, in the ever-so-short national attention. The
authorship of the nature of the space, when given to the public, will resonate more in sync with the will of the people, rather than the elite. In doing so, the public will become true participants in the construction of their national history.
The protest signs, the medium in which the message of the protest is spoken, will be celebrated and stored. By displaying them for all to see, their messages will resound longer and louder.
The American legacy of resistance can be activated with every protest: as if the ghosts of thousands in the past will be marching hand in hand with the activists of the present.
1 CREATE a communal maker-space in which the people gather and make protest signs
2 MOBILIZE a way-finding space in which the people gather and then march towards the branches of government
3 SAVE
a space of remembrance in which the protest signs are collected, displayed and stored
Just as the ability to make a protest sign is democratically available to everyone, a modular means of construction bridges the gap between the builder and the citizen. A versatile kit of parts is constructed around a common scaffolding unit. Scaled for the body and offering surfaces to receive protest signs, this system can be multiplied and expanded into infinite versions of structures. The design offers three responses to three scales of protests: the individual, the group, and the mob.
A Workshop for Freedom | the stage construction not only provides a proscenium for events, but also acts as a place to make, store and celebrate protest signs.
The structures can be disassembled and erected anywhere on the Mall, the power over the built environment is given back to the people. The hierarchical spacing between the structures allows for the protest to occupy the monumental space of the National Mall. Housed within and around these constructs, the traditional means of protests are made in a communal, celebratory and safe space.
“Dissent is the highest form of patriotism.”
Thomas Jefferson
On the steps of the White House, the protest is supported by the powerful armature of architecture.
Here in this place, a new construction offers a place to reckon with the past .
This monument was to be a composite of material processes. It was to be temporal by taking advantage of the process of ruination that results from commemorative actions.
A layered wall was to be built up overtime. It was to convey it process of construction and deconstruction in material form; a sequenced monument
First, five brass poles, each representative of a victim who was hung at the site, would be fixed into the ground. Next, these poles would be cast in concrete. Finally, the entire composite would be cast in rammed earth. Over time this wall would degrade, transform and slowly remove itself from the site. If this wall is an edification of the history, of the pain, of the memory of racial trauma, it would slowly fade back into the earth.
This temporal monument can act as a hearth for communal commemoration. It could be an embodiment of the history of a place, offering a place return to, to rest, to recharge, to remember and mostly most importantly, to reckon with where we have come from and what work still needs to be done.
a commemoration is humble
a commemoration is from a place of respect
a commemoration is resistant of judgment
a commemoration is slow
a commemoration is not careful, but it is not careless
a commemoration is proud
a commemoration is personal
a commemoration is universal
a commemoration is a soft voice
a commemoration is a roaring condemnation
a commemoration is kind
a commemoration is hurtful
a commemoration is provocative
a commemoration is demanding
a commemoration is a process
a commemoration is never a single moment
a commemoration is a ritual
a commemoration is a conversation
a commemoration is listening
a commemoration is projecting
a commemoration is an embrace
a commemoration is a gathering
a commemoration is an individual
a commemoration is shared
a commemoration is kept to oneself
a commemoration is at day
a commemoration is at night
a commemoration is a celebration
a commemoration is in mourning
a commemoration is a call to justice
a commemoration is transformative
a commemoration is made of material
a commemoration is made around material
a commemoration is complex
a commemoration is simple
a commemoration is made of actions
a commemoration is made of places
a commemoration is for the past
a commemoration is for the present
a commemoration is hope for a better future
A special thanks for all of my educators, friends, family and colleagues who have inspired me and helped me along my journey.
Copyright © 2023 Mark Wilson