Projeto Profissional | E.A house

Page 1

E.A house

Proposta

Marina Agra
de reforma e ambientação | mai. 2022 . interior architect

Este apartamento está localizado na cidade de Recife/PE, Brasil, e inicialmente os clientes solicitaram uma proposta de mudança de layout nas áreas sociais e de serviço, com a intenção de posteriormente realizar alterações nos dormitórios. O foco principal foi na integração dos espaços entre a sala e a cozinha, pois gostam de receber familiares e amigos, mas ainda tem a opção de fechá-la parcialmente para maior privacidade. Além disso, o apartamento não possuía banheiro de hóspedes, e eles gostariam de criar um, já que a planta original o incluía. Pediram também a conversão da despensa da lavanderia em quarto de serviço. O casal tem duas filhas e um cachorro, por isso valorizam espaços funcionais. Em termos de materiais, eles gostam de texturas naturais como pedra e madeira, além de tons claros, e solicitaram toques de cor nos objetos decorativos.

Moodboard | Paleta de cor

Caderno de especificações

Planta baixa - levantamento

Planta de reforma

Planta de layout

Imagens 3D

introdução conteúdo
moodboard | paleta de cor
11 m² VARANDA 35 m² SALA DE TV E ESTAR 15 m² SALA DE JANTAR 13 m² COZINHA 8 m² ÁREA DE SERVIÇO 3 m² DESPENSA 2 m² BWC 8 m² JARDIM OBSERVAÇÃO: CONFERIR COTAS NA OBRA ANTES DA EXECUÇÃO TAMANHO DA FOLHA NO DESENHO: A3 ESC. CLIENTE: DESENHO TÉCNICO : M a ri n a A g r a arquitetura de interiores . 1 50 P. REFORMA E .A H O U SE 30/05/2022 R 00 P 0 1 EXECUTIVO LEVANTAMENTO Marina Agra 1 - P LA N T A B A I XA - L E V A N T A M E N T O ESCALA: 1/50

OBSERVAÇÃO: CONFERIR COTAS NA OBRA ANTES DA EXECUÇÃO

2.07 0 5 2 4.92 3.20 1.82 1 7 3 1 0 0 3 4 7 3.77 0.15 5.17 0.16 4.18 0.08 1.23 1 3 3 1 9 6 1 9 0 1 5 7 8.06 0.15 1.28 2.72 12 m² VARANDA 28 m² SALA DE TV E ESTAR 13 m² COZINHA 8 m² ÁREA DE SERVIÇO 5 m² QUARTO SERVIÇO 2 m² BWC 13 m² SALA DE JANTAR 2 m² LAVABO 8 m² JARDIM
TAMANHO DA FOLHA NO DESENHO: A3 ESC. CLIENTE: DESENHO TÉCNICO : M a ri n a A g r a arquitetura de interiores . 1 50 P. REFORMA E .A H O U SE 30/05/2022 R 00 P 0 2 EXECUTIVO DEMOLIR E CONSTRUIR Marina Agra 1 - P LA N T A B A I XA - DE M O L I R E C O N S T R U I R ESCALA: 1/50

OBSERVAÇÃO: CONFERIR COTAS NA OBRA

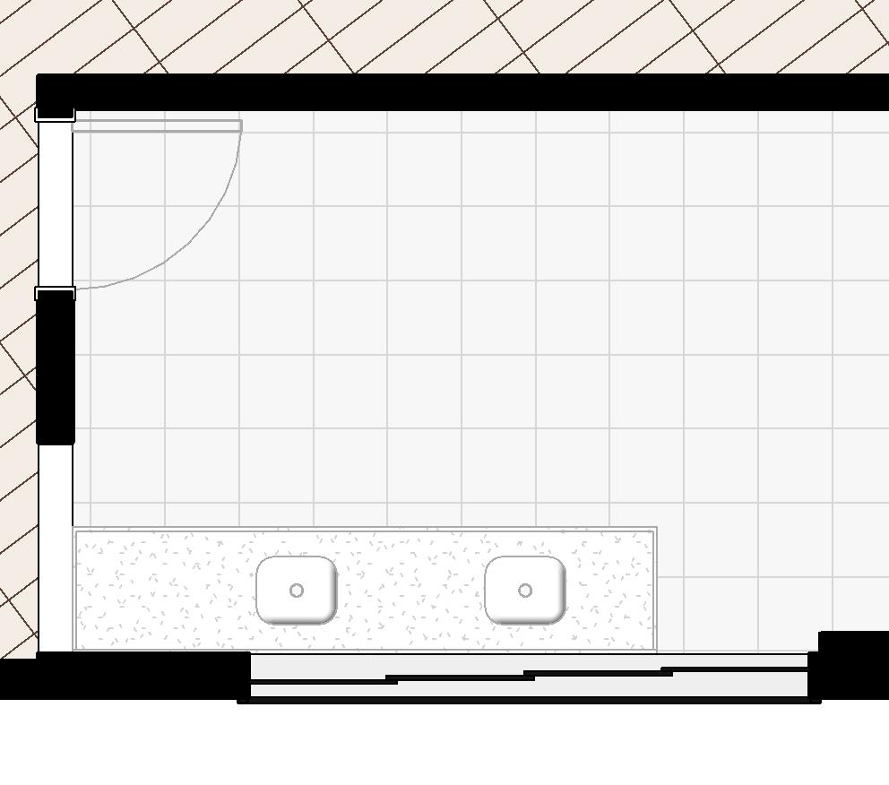
12 m² VARANDA 28 m² SALA DE TV E ESTAR 8 m² JARDIM 13 m² SALA DE JANTAR 2 m² LAVABO 13 m² COZINHA 8 m² ÁREA DE SERVIÇO 5 m² QUARTO SERVIÇO 2 m² BWC
DA
TAMANHO DA FOLHA NO DESENHO: A3 ESC. CLIENTE: DESENHO TÉCNICO : M a ri n a A g r a arquitetura de interiores . 1 50 P. REFORMA E .A H O U SE 30/05/2022 R 00 P 0 3 EXECUTIVO LAYOUT Marina Agra 1 - P LA N T A B A I X A - LA Y O UT ESCALA: 1/50
ANTES
EXECUÇÃO
OBSERVAÇÃO: CONFERIR COTAS NA OBRA ANTES DA EXECUÇÃO TAMANHO DA FOLHA NO DESENHO: A3 ESC. CLIENTE: DESENHO TÉCNICO : M a ri n a A g r a arquitetura de interiores . P. REFORMA E .A H O U SE 30/05/2022 R 00 P 0 4 EXECUTIVO IMAGENS Marina Agra P E R S P E C T I V A 3 D P E R S P E C T I V A 3 D P E R S P E C T I V A 3 D
OBSERVAÇÃO: CONFERIR COTAS NA OBRA ANTES DA EXECUÇÃO TAMANHO DA FOLHA NO DESENHO: A3 ESC. CLIENTE: DESENHO TÉCNICO : M a ri n a A g r a arquitetura de interiores . P. REFORMA E .A H O U SE 30/05/2022 R 00 P 0 5 EXECUTIVO IMAGENS Marina Agra P E R S P E C T I V A 3 D P E R S P E C T I V A 3 D P E R S P E C T I V A 3 D
NA OBRA ANTES DA
TAMANHO DA FOLHA NO DESENHO: A3 ESC. CLIENTE: DESENHO TÉCNICO : M a ri n a A g r a arquitetura de interiores . P. REFORMA E .A H O U SE 30/05/2022 R 00 P 0 6 EXECUTIVO IMAGENS Marina Agra P E R S P E C T I V A 3 D P E R S P E C T I V A 3 D P E R S P E C T I V A 3 D
OBSERVAÇÃO: CONFERIR COTAS
EXECUÇÃO

E.A house

Proposta

Marina Agra . interior architect
de reforma e ambientação | mai. 2022

Turn static files into dynamic content formats.

Create a flipbook
Issuu converts static files into: digital portfolios, online yearbooks, online catalogs, digital photo albums and more. Sign up and create your flipbook.