
6 minute read
The HALLS of the FUTURE
The Storm King School enters its 157th year in a position of strength and positive growth. Our enrollment has increased over the last decade despite pandemic and economic setbacks. Likewise, the profile of our students continues to rise, hailing from more than 20 nations each year and attending increasingly competitive colleges, universities and art schools across the world.
The School is at a crucial turning point in its history. The international admissions environment is increasingly competitive and our aging campus and outdated learning spaces are struggling to keep up with their academic needs and overall expectations.

If Storm King is to continue to provide a transformative educational experience for future generations, we must take immediate, concrete steps to preserve the School’s ability to carry out its mission. The expansion and renovation of Dyar Hall is a crucial first step toward overcoming these challenges and securing the School’s legacy moving forward.

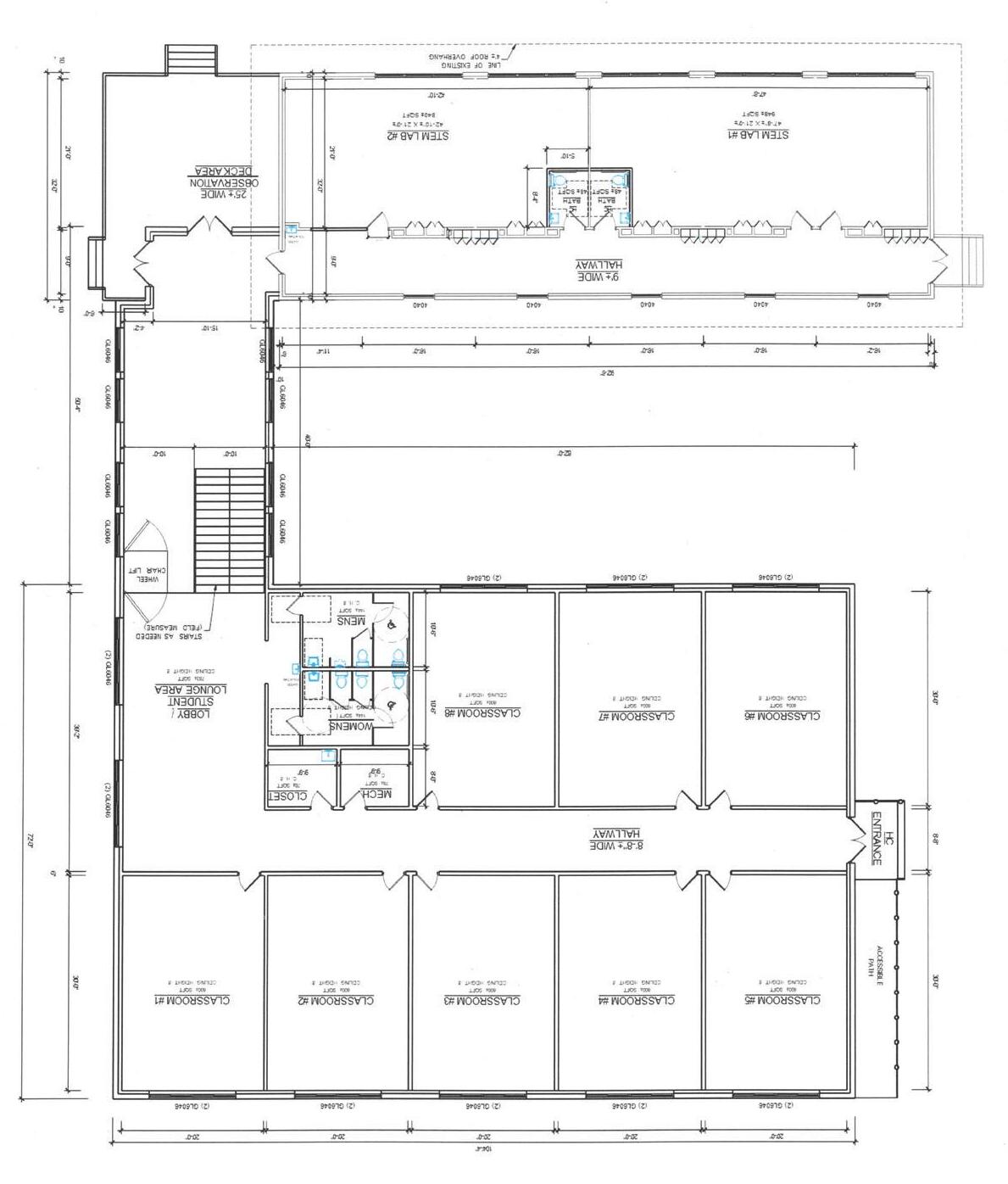
The New Dyar Hall will double the size of 12 out of the School’s 17 main classrooms and add one additional large classroom. Eight new, large classrooms will be built in the newly constructed space. The existing Dyar Hall will be renovated to create two large STEAM classrooms. All spaces will be equipped with new furnishings and updated equipment that will allow interactive classroom setups where teachers and students will have the space and facilities to collaborate, work comfortably and safely.
As of January 2024, Storm King has secured $1.3 million in its campaign fund, generously donated by members of our alumni community. The cost for the New Dyar Hall Project is estimated at $2.7 million. This includes $2.2 million for the construction and an additional $500,000 to furnish the new building and renew the parking area. Ultimately, $1.4 million in additional funding is needed to complete this exciting renovation.

If you will invest in this project and help Storm King reach its goal, please contact Sarah (sfulton@sks.org) or Lynn (lcrevling@sks.org) in the Alumni and Development Office.

IT’S BACK!
Alumni Basketball Returns
After a four-year hiatus, Alumni Basketball Day was back in action! The much-anticipated tip-off between alumni, current students, and faculty took place on Sunday, March 24, 2024 in the SKS Athletic Center. It was a fun afternoon filled with excitement and incredible talent on both sides of the court. This year, the Alumni Team took home the win with an 87-74 score over the SKS Student/ Faculty Team.
Enthusiastic Storm King graduates spanning several decades filled the alumni bench, including John Lopes ’01, Victoria Dos Santos ’11, Trevor Hughes ’13, Chris Smith ’22, Precious Omoshola ’23, Sele Birchwood ’09, RJ Delahaye ’22, Dennet Rivera ’03, Shauntice “Puddin” Hunt ’01, and Richard Bailey ’02. There were two “honorary alum” appearances made by Andrew Baynes and Ugo Nwa Chukwu. To show their support and cheer them on, the other alums in attendance were Storm King School Trustee Johnathan Flores ’12, Daniella Jones-Baynes ’97, Dick Broughton ’54, and Jim Perlberg ’70.
Former SKS basketball coach Kevin Houston (1998-2006) refereed the game alongside faculty member and Associate Dean of Students Sara




Sandstrom. At half-time, the students took part in a half-court shot contest, with two students winning prizes.
Throughout the game, the Alumni Team kept the heat going until the very end, playing our talented student-athletes and faculty members. The crowd cheered as the alumni sank the final basket and defeated the home team. In the end, the students weren’t too upset by this year’s loss and were highly impressed by our skilled alumni. All had a great time and agreed that the most important thing was getting back on the court at their alma mater, seeing one another, and having fun.

1 Back row from left: RJ Delahaye ’22, Christopher Smith ’22, Sele Birchwood ’09, Sarah Fulton ’09, Jonathan Lopes ’00, Johnathan Flores ’12, Precious Omoshola ’23, Trevor Hughes ’13, Richard Bailey ’02, Lynn Crevling ’72, Dick Broughton ’54, Jim Perlberg ’70; Front row standing: Dennet Rivera ’03, Daniella Jones-Baynes ’97, Shauntiece “Puddon” Hunt ’01; Kneeling: Victoria Dos Santos ’11 and Andrew Baynes 2 Precious Omoshola ’23 playing for the Student/Faculty Team challenges Jon Lopes ’00 3 College payers Christopher Smith ’22 (Alfred University) and RJ Delahaye ’22 (Franklin Pierce University) 4 Shauntiece “Puddon” Hunt ’01 5 Precious Omoshola ’23 reacts to the refs’ call while standing beside past coach Kevin Houston and Associate Dean of Students Sara Sandstrom 6 Marisa Chapman ’24, Athlete of the Year and Sele Birchwood ’09 go head to head 7 Trevor Hughes ’11






Events & Notes
Vicky Liu ’17 Visits Campus John Carruthers, Visual Arts Departmemt Chair, Yunqi "Vicky" Liu ’17, and Head of School Jonathan W. R. Lamb; Florida Pat Finnegan, Lynn Crevling ’72, Tyler Crawford (Treasurer of the Annette Urso Rickel Foundation), Jay Rickel-Finnegan ’02 and staff Kathy Syvertsen in Delray Beach, FL; Head of School's Retirement Dinner Trustee Johnathan Flores ’12, the SKS Cougar (Trustee Ila Barton ’92) with Head of School Jon Lamb and Assistant Head for Academics Tim Lance Ph.d; Cedric Zhao ’23 Visits Campus; Florida Alumni Gathering Toni Scherrer, Jon Lamb, Peter Fox ’77, Richard A. Epstein ’59, Michael Fischer ’82, Glen B. Rabin '80, Laurie P. Smith ’92, Jennifer Forman Hubbert ’92, Roger Auerbacher ’66; Campus Visitors Yusei Suzuki '25, Mohanad Almashal '25, Anton "Tony" Berning '25, and Jaime Kababie Sefami '25
