

MARC A. GUERRERO
BFA ARCHITECTURE
MASS. COLLEGE
ART AND DESIGN





MARC GUERRERO PROFESSIONAL WORK AT GUND PARTNERSHIP
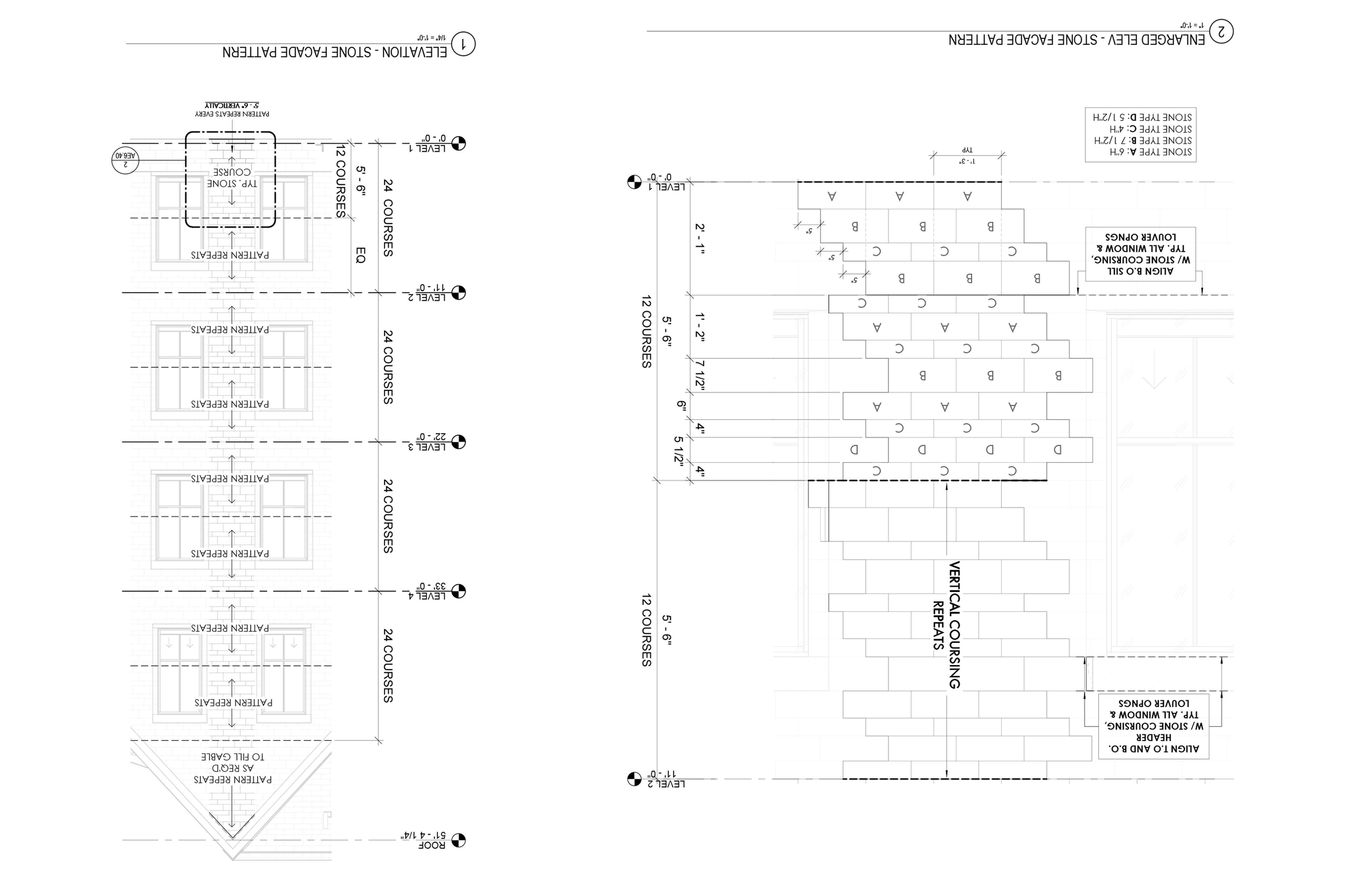
These drawings represent my contributions to the project I was most involved with during my time at GUND Partnership: a four-story, 28,000+ sq. ft. first-year dormitory for a college in Ohio. I joined the team when the project was at 50% Construction Documents (CDs) and worked through to the 95% CD phase.
My primary responsibility was to develop and update drawings related to the building's exterior fa~ade. This included foundation conditions in relation to grade, exterior wall assemblies, and detailed exterior components.
Please note that the intellectual property associated with the work presented is owned by Gund Partnership. This portfolio is intended solely for the purpose of displaying my professional work .









THE RESIDENCE

291 RD /
Z Th e __ Residence project s t he demolition o f an exis t ing, non-conforming three -st ory home and the i:.: construction of a new, conforming t h ree-st ory home u and ancillary ca rriage house. The existing home currently si t s wi t h n t h e shoreli ne setbac k, and t he ._ proposed work intends to move the home away from the lake and nto the allowable bui ldable area.
f Th e proposed home is a wood -framed b u ildi n g w ith lim ited use o f steel to help create large fenes trati ons and inter ior spaces Highlights of work o n t he exterior include a reconfigure d gravel driveway, a new pa t io alon gside the side an d rear of the home overlooki ng the water, and traditional buil d ing facades in natura l wood shingle shake siding with cedar tr ms a nd accen ts
Pro p osed work on the interior includes an unfin ished basemen t p repped for future use, a mai n level wi t h large w indows facing th e wa t er, 11 -foot ta l ceili n gs, and a double- height Living Room, and a secondary leve w ith four bedrooms and an office .
The project showcased as 291 __ Rd was completed while employed by Sam Kachmar Architects.
My participation in this project included working directly with my Project Manager (Ian Masters, S.K.A) on all of the phases listed below:
- Pre-Design
- Schematic Design
- Design Development
- Construction Documents
- Construction Administration
The drawings showcased within this portfolio sample were created and crafted with the supervision of my project manager (Ian Masters, S.K.A)
Participants:
- Ian Masters - Project Manager
- Marc Guerrero - Architectural Designer
- Alissa Wiekel - Architectural Designer
-Sam Kachmar -Architect on Record

DRAWINGS

NORTHWESTERN ISOMETRIC
SOUTHEASTERN ISOMETRIC


FRONT
3 COVERED COLONNADE WRAP-AROUND PORCH W/ SEMI-FLUSH LIGHTS IN TONGUE & GROOVE CEIL. ABOVE
4 STEPS DOWN TO PATIO AT GRADE; DELTA IS LESS THAN 30', NO HANDRAIL REQ D
5 EXTER OR SIDE ENTRY INTO MUDROOM; SEE EXTERIOR DOOR SCHEDULE FOR SELECTION & SIZING
6 TILE FLOORING THROUGHOUT ROOM; SEE NTERIOR FINISH SCHEDULE FOR SELECTION
7 CUSTOM BUILT~N MUDROOM CABINETRY W/ ROLLING LADDER TO ACCESS UPPER STORAGE CABINETS 8 DOUBLE POCKET DOORS; SCHLUTER TO BE USED AT ALL TILE-WOOD TRANSITIONS,


WESTERN ELEVATION
1/4" = 1'-0"
MATERIAL LEGEND
STAINED CEDAR SHING LE SIDING 8- NCH
STAINED CEDAR DETAIL TRIM
PAINTED EXTERIOR WINDOW TRIM
ASPHALT SHINGLE ROOFING
FIELDSTONE VENEER (1 5" THICK)
ELEVATION LO CATION

ANNOTATIONS
B STONE VENEER APPLIED TO ALL CONC FOUNDATION WALLS & 16'" BASE OF LEVEL EXTER OR WALLS;
8" STAINED CEDAR SHINGLE SIDING THROUGHOUT WITH FLAIR AT STONE VENEER BASE, TYPICAL W D A H EXTERIOR TRANSOM WINDOWS; REFER TO A-700 SERIES FOR PROJECT SCHEDULES AND WINDOW SELECT ONS ASPHALT SHINGLED ROOF; REFER TO A·700 SERIES FOR PROJECT SCHEDULES AND EXTERIOR FINISH SELECTIONS
DECORATIVE ROOF TRIM THROUGHOUT; REFER TO A-500 SERIES FOR CONSTRUCTION DETAILING
K DECORATIVE GABLE ROOF DETAIL; REFER TO A-500 SERIES FOR CONSTRUCTION DETAILS
CH MNEY CAP; SEE EQUIPMENT SCHEDULE FOR SELECTION
M DECORATIV E TAPERED ENTRY WAY DETAIL; REFER TO A-500 SER ES FOR CONSTRUCTION DETAILS
N WOOD CORBEL DETAILS; REFER TO A-500 SERIES FOR CONSTRUCTION DETAILS
0 EXTERIOR WALL SCONCE LIGHT; REFER TO LIGHTING SCHEDULE FOR SELECTIONS
P CUSTOM WOODEN TRELLIS ABOVE DOUBLE GARAGE DOOR ENTRY; REFER TO A-500 SERIES FOR CONSTRUCTION DETAILS
Q EXTERIOR SKYLIGHT WINDOWS; REFER TO A-700 SERIES FOR PROJECT SCHEDULES AND WINDOW SELECTIONS
R AUTOMATIC GARAGE DOORS; REFER TO A -700 SERIES FOR PROJECT SCHEDULES A ND DOOR SELECTIONS (2) EXTER OR WALL SCONCE LIGHTS ON EITHER S DE OF GARAGE DOOR; REFER TO LIGHTING SCHEDULE FOR SE LECTIONS
EXTERIOR PICTURE WINDOWS; REFER TO A-700 SERIES FOR PROJECT SCHEDULES AND WINDOW SELECTIONS
U DECORATIVE CORBEL DETA L IN-BETWEEN EACH PICTURE WINDOW REFER TO A-500 SERIES FOR CONSTRUCTION DETAILS
w X
V 4 PANEL SLIDING GLASS DOOR BY LEPAGE; REFER TO PROJECT SCHEDULES AND WINDOW SELECTIONS
RENDERINGS
TO A- 700 SERIES FOR PROJECT SCHEDU LES AND WINDOW
ASPHALT SHINGLED ROOF; REFER TO A-700 SERIES FOR PROJECT SCHEDULES AND EXTERIOR FINISH
J DECORATIVE ROOF TRIM THROUGHOUT; REFER TO A-500 SERI ES FOR CONSTRUCTION DETAILING
K DECORATIVE GABLE ROOF DETAIL REFER TO A - 500 SER ES FOR CONSTRUCTION DETAILS
CH MNEY CAP; SEE EQ UIPMENT SCHEDULE FOR SELECTIO N
M DECORATIVE TAPERED ENTRY WAY DETAIL; REFER TO A- 500 SER ES FOR CONSTRUCTION DETAILS
N WOOD CORBEL DETAILS; REFER TO A-500 SERIES FOR CONSTRUCT ON DETAILS
0 EXTERIOR WALL SCONCE LIGHT; RE FE R TO LIGHTING SCHEDU LE FOR SELECTIONS
P C USTOM WOODEN TRELLIS ABOVE DOUBLE GARAGE DOOR ENTRY; REFER TO A-500 SERIES FOR CONSTRUCTION DETAILS
Q EXTERIOR SKYLIGHT WINDOWS; REFER TO A-700 SER ES FOR PROJECT SCHEDULES AND WINDOW SELECT ONS
R AUTOMATIC GARAGE DOORS; REFER TO A-700 SER IES FOR PROJECT SCHEDU LES AND DOOR SELECT ONS
(2) EXTER OR WALL SCONCE LIGHTS ON EITHER S DE OF GARAGE DOOR; REFER TO LIGHTING SCHEDU LE FOR SELECTIONS
EXTERIOR PICTURE WINDOWS REFER TO A-700 SERIES FOR PROJECT SCHEDULES AND WINDOW SELECTIONS
U DECORATIVE CORBEL DETA L IN-BETWEEN EACH PICTURE W INDOW REFER TO A - 500 SERIES FOR CONSTRUCTION DETA LS
V 4 PANEL SLIDING GLASS DOOR BY LEPAGE; REFER TO PROJ ECT SCHEDULES AND WINDOW SELECTIONS
4 P N Y P • R F T P T AN WIN W llONS

RENDERINGS

WINDOWS
ASPHALT SHINGLED ROOF; REFER TO A·700 SER ES FOR PROJECT SCHEDULES AND EXTERIOR FINISH
J DECORATIVE ROOF TRIM THROUGHOUT; REFER TO A-500 SERIES FOR CONSTRUCTION DETAILING
K DECORATIVE GABLE ROOF DETAIL; REFER TO A - 500 SER ES FOR CONSTRUCTION DETAILS
CH MNEY CAP; SEE EQ UIPMENT SC HEDULE FOR SELEC TI ON
M DECORATIVE TAPERED ENTRY WAY DETAIL; REFER TO A-500 SER ES FOR CONSTRUCTION DETAILS
N WOOD CORBEL DETAILS; REFER TO A-500 SERIES FOR CO NSTRUCTION DETAILS
0 EXTERIOR WALL SCONCE LIGHT REFER TO LIGHTING SCHEDULE FOR SELECTIONS
P CUSTOM WOODEN TREL LIS ABOVE DOUBLE GARAGE DOOR ENTRY; REFER TO A-500 SERIES FOR CONSTRUCTION DETAILS
Q EXTERIOR SKYLIGHT WINDOWS; REFER TO A-700 SERIES FOR PROJECT SCHEDULES AND WINDOW SELECT ONS
R AUTOMATIC GARAGE DOORS; REFER TO A - 700 SER ES FOR PROJECT SCHED ULES AND DOOR SELECT O NS (2) EXTER OR WALL SCONCE LIGHTS ON EITHER SIDE OF GARAGE DOOR; REFER TO LIGHTING SCHEDU LE FOR SE LECTIONS
EXTERIOR PICTURE WINDOWS; REFER TO A-700 SERIES FOR PROJECT SCHEDULES AND WINDOW SELECTIONS
U DECORATIVE CORBEL DETA L IN-BETWEEN EACH PICTURE WINDOW; REFER TO A-500 SERIES FOR CONSTRUCTION DETAILS
V 4 PANEL SLIDING GLASS DOOR BY LEPAGE; REFER TO PROJECT SCHEDULES AND WINDOW SELECTIONS
w X
FOUNDATION D IMENSIONAL FLOOR PLAN
Scale: l/4"=

GENERAL NOTES
1.
STRUCTURAl R C>Glc BEAM 10 RECEIVE 2X ROOF RAFTERS
2X ROOF RAFTERS 10BE CON NECTED TO STRUCIURAl RIDGE: REFER TO STRUCTURAL ENGINEER SET FOR PROPER FRAMING CONNECTIONS
ASPHAll ROOF SHINGLES THROUGHOUTSLOPED ROOFS; F NAL SPEC TBO BY ARCHITECT '-. ,.-,li"-,:c-r:-------- ST.-JN-GRADE DECORAIIVE WOOD BEAM 10 RECEIVE BOTIOM Of EXPOSEO RAFTERS WllHIN DOUBLE HEIGHT SPACE'
L-----4--3----------- SJAIN GRADE DECORATIVE WOOD RAFTERS WITHIN DOUBLE HBGHl SPACE
ST,'JNGRADE DECORATIVE WOOD COllAA TIES WITHIN DOUBLE HEIGH1 SPACE
L---------------~-l!'---------- STAIN GRADE DECORATIVE WOOD BEAM D RECTLY UNDER LVL RIDGE
l=:=:=:=:=:=:=:=:=:=:=:=:=:=:=:=:=:=;;;:!le,\__________ II 7/f!J'IJI FLOOR FRAM NG THROUGHOUT SECOND FLOOR:
REFER 10 STRUCTURAL ENGINEER SET FOR PROPER FRAM NG MEMBERS ANO CONNECTIONS DECORATIVE CEDAR SIDING FVJR WllH ADDIIIONAl TR M WOfi!K UNDERNEATH
CONTINUO US AVP BARRIER IHROUGHOUI
8-INCH SlAJNEDCEDAR SHINGLES SIDING
~---+----------- 117/f!J IJI FLOOR FRAMING THROUGHOUT SECOND R.OOR; li:£FER TO STRUCTURAL ENGINEER SET FOR PROPER FRAM NG MEMBERS ANO CONN ECT ONS
Kr--------- DECORATIVE CEDAR stDING FLAJR WI I H SlONE VENEER KNEE WALL UNDERNEATH
s;..--------- STONE VENEER CLADO NG ;FINAL SPE.C T&D BY ARCHITECT
WINDOW WELL RETAJNING WALL WRAPPED N SIONE VENEER CLADDING
l'-------il:------- WINDOW EXTENSION JAMB 10 CONCEAl STONE VENEER MAIEmAL TRANSITION -"'"---------------- FULL HEIGffl FOUNDATION WALL Ol'ENING FOR WINDOWS ~--+------- FOUNDATION WALL FOOTING ;UFER TO STRUCTURAL ENGINEER SET FOR PROfER SIZING
=~ WINDOW wm RETAJN NG WAlL FOOTING :REFER TO STRUCTURAL ENG NEER SET FOR PROPER SIZING
UNDERSLABRIGID INSULATION
ASPHAll ROOf SH NGLES HROUGHOlJT SLOPED ROOFS FINAL SPEC T80 BY ARCHITECT
3/4" PLYWOOOSHEATHIN

AVP TO WRAP AROUND SOfFIT AND FASCIA DETAl
8-INCH SIAJNED CEDAR SH NGLES SIDING
PLYWOOOSHEATH NG
3/4~ PLYWOOO SHEATH NG
B- NCHSTAJNED CEOAA SH NGLE SID NG ,._ CONTIN UOUS AVP



DRAWING BY MARC GUERRERO

RARERS END AT GYPSUM WAl.L
BUILTUP TOP PLATE TO SUPPORl EXPOSED RAFTERS
INTEGRAl£D Gu=s REMOVED FROM SCOPE Of WORK MPlfM(NI STANDARDCONSlRUCllON DETA L INSTf,',O
RECL/\IMED WOOD RIDGE B1"M 10 SUPPORT LIV NG ROOM ROOF
RECL/\IMED WOOD EXPOSED ROOF RARERS
BU TUP COLLAR TIE WRAPPED AND ANISHED IN RECLA MED WOOD
CE LING TO BE FIN SHED IN NATURAl TONGUE ANO GROOVE SHIPLAP
RECLAJMED WOOD ROOF RAAERS END AT GYPSUM WAll BU LT UP TOI' PLATE TO SUPPORT EXPOSED RAFTERS

https://www.youtube.com/watch?v=Sj8Ww2sLX48
UNITY PLAZA
SANTIAGO, CHILE
CAN ARCHITECTURE BRIDGE THE GAP BETWEEN SOCIO-ECONOMIC CLASSES WHO ALL SHARE CONNECTED TRAUMA?

In 1970 socia ist presidential candidate
Salvad o r Allende defeated the right wing Christian Dem o crac y Party, Promising • 1970 that h is legislative beliefs would prioritize lower and midd e class citizens who ha ve
felt forg otten from previous administrati on s.
As a political response to their defeat, the Chri stian Democracy party used the support of their upp e class voters to shut down all economic sectors within Santiago between the years of 1970-1973 in an
1972 • attempt to topp e All ende's presidency by proving his economic strategies were failing n response left wing supporters of Allende would gather in any space they cou d to plan and coordinate a peace ful strategy to make sure citizens could access the basic necessities while the economy was failing.
Ultimately in 1973, the Christian Democracy I Party saw that because of the push back from left wing activists and citizens, they would take their final course of action They would launch a Military Coup that would convert the Chilean government from a Socialist Democracy into a military D ctatorship • 19 7 3
This new Authorit arian government banned all eft w ng ideology from citizens, news
outlets newspap ers and with n the academic arena. Those either proven or suspected to have left w ng deologies would be arrested and placed within concentration camps Many would ei th er be killed, tortured or went m ss ing strictly off of suspected leftist views
In 1990 Augusto Pi nn ochet, • the leader of t he military coup, gave up h i s power a nd the authoritarian go vernment, returning Chile t o a Democratically ru n country.
Al<h o,g h <h e Dkra , msh;p was d;s=oded
n 1990 , one key compo n ent remaine d n e ffect th e co n stit u t ion written u n der the Dic t at ors hi p. Th is co n sti tu tio n wo uld • 201 9 prov i de pro t ec t io n o government lea d ers and the mi itarized po ice force w h o sti ll to h is d ay ma ntains a heinous p u blic m enta ity as a resu t of th e aftermat h of years of Authoritarian bruta ity.
20 20
I n 2020, a series of protests took place with t he main goal being the abo ishment of the • • • o d consti t ution and for c u rrent Democrat i c eaders wi hin the coun t ry o draft and propose a new constitution centered around supporting all citizens
MAIN PROGRAMMATIC INSPIRATION
AMID A DIVIDED GOVERMENT ADMINISTRATION, SOCIALIST CIVILIANS OF SANTIAGO CHILE GATHERED IN PUBLIC DOMAINS TO PROTEST THE RIGHT WING AUTHORITARISM. THESE PEACEFUL PROTESTS UNIFIED THOSE WHO FELT NEGLECTED AND MISTREATED BY GOVERNMENT OFFICAL'S AND A MILITARISTIC POLICE FORCE.
THE PRIMARY PROGRAM FOR PLAZA UNITY IS TO REINFORCE TOGETHERNESS THROUGH A CENTRALIZED CITY SQUARE. PLAZA BAQUEDANO IDEALLY CONNECTS AND UNIFY THE RECOLETA, PROVIDENCIA, AND SANTIAGO DISTRICTS WHICH ALL REPRESENT A DIVIDE BETWEEN LOWER, MIDDLE AND UPPER CLASS CITIZENS.
HOW CAN YOU RECONNECT THE DISCONNECTED THROUGH DESIGN?
CAN YOU SUPPORT CONNECTION NOT ONLY THROUGH ORGANIZATION AND LAYOUT, BUT ALSO THROUGH A KIT OF PARTS THAT SEEK TO WEAVE VIEWS TOGETHER?
DISPLACEMENT FROM EXISTING TRAFFIC LAYOUT PREVENTS EACH DISTRICT FROM BEING ABLE TO REACH ONE ANOTHER WITH EASE
HOW AND WHERE DO YOU CONNECT EACH SIDE TO ONE ANOTHER?

ONCE EACH SIDE IS CONNECTED, HOW CAN THE PROPOSED STRUCTURE DIRECT MOVEMENT AND VIEWS TO INVITE USERS TO THE CENTERED AND THE ADJACENT SPACES
ASSEMBLY
CENTERALIZED ORGANIZATION

ENCLOSURE
MIMIC/MIRROR TAPERED TOPOGRAPHY
SUBTRACTION+ ADDITION
CARVE EXISTING LANDSCAPE
SUBTRACTION+ ADDITION
UPLIFTING SHIFT IN STRUCTURE
EXPLORATORY STRUCTURAL DRAFT MODEL
FINAL CONCEPTUAL MODEL
REINFORCE CONNECTION THROUGH SHIFTS IN VERTICALITY


SMALL SCALE SITE PLAN





TENSILE ROOF CONNECTION
C12X30
1"X8" STEEL PLATE
5"X5" STRUCTURAL TUBE











