

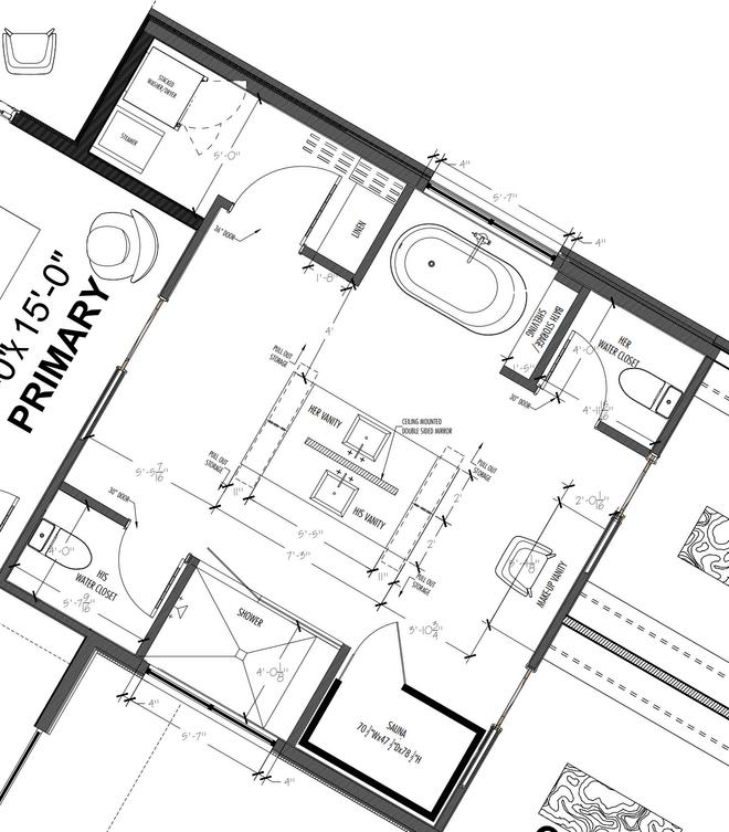
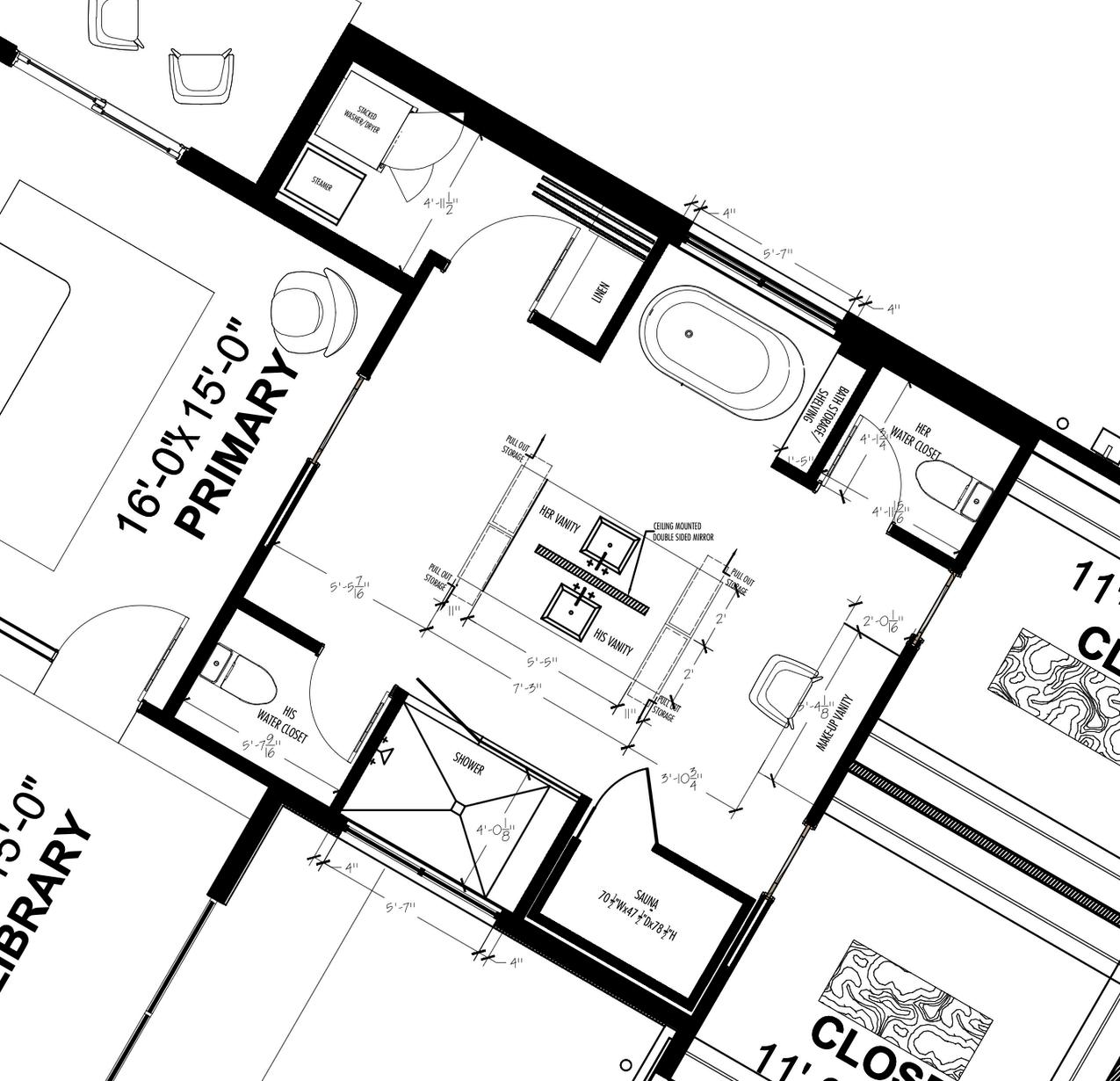
Primary Bathroom Updates





Double-Sided Vanity Inspiration
Back to back vanities with suspended mirror and ceiling mounted pendants
This creates two distinct spaces that still feel connected with one another


Option to add pull out linen towers on top of countertop to provided additional storage




Tub Wall Inspiration
Creating a tub nook with watercloset & utility walls for tub to sit in Could possibly drop ceiling similar to photo below
















Utility space tucked away in “elbow” of bathroom








Make up Vanity Ideas - built in, millwork matching cabinetry. Possible waterfall slab detail on sides, or could be a piece of furniture type



