Space
Planning & Design Development
Ryan & Lyndia Makol
April 4, 2025






Desk Idea

Built-In/Desk Arrangement Drapery Panels



Chair and Ottoman in corner for reading/lounging


Main Walls throughout Interior
SW Greek Villa 7551



Sculptural Art in Staircase area It could be on the wall or freestanding





Console with lamp idea
Adding this here allows the room to feel connected vs off the hallway

Dining Room
Selected Chandelier







Counter stool Ideas at Island

Could be done in a vinyl for easy cleaning


Large wood coffee table will add warmth to living room with stone fireplace
2 Upholstered 8' Sofa - great for hanging and for conversational set up.







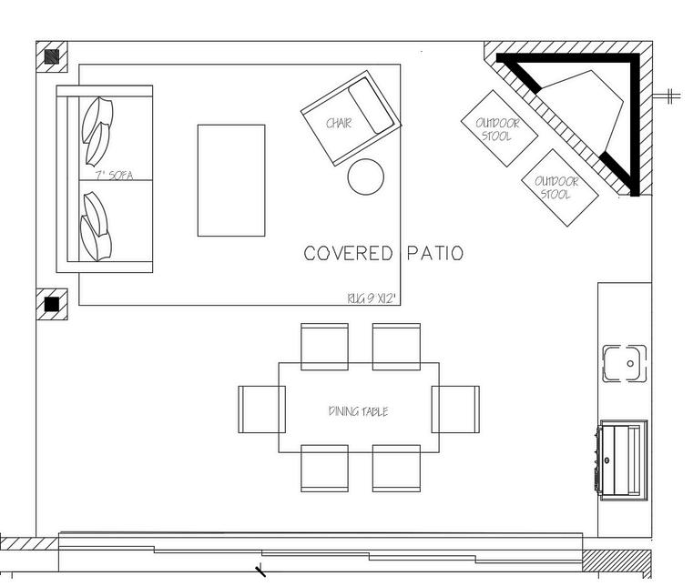
Conceptual Furniture layout ideas. Need to confirm exact layout and location of outdoor kitchen

Lighter weight dining chairs could be brought over to fireplace for additional seating if needed





















































