Grape Creek Road Concept Flipbook

Page 1

Keating Ranch Grape Creek Road Concept Flipbook

Mann Design Studio | May 2024
Mann Designs | 2024 PRELIMINARYSPACE PLANNING First Floor
4
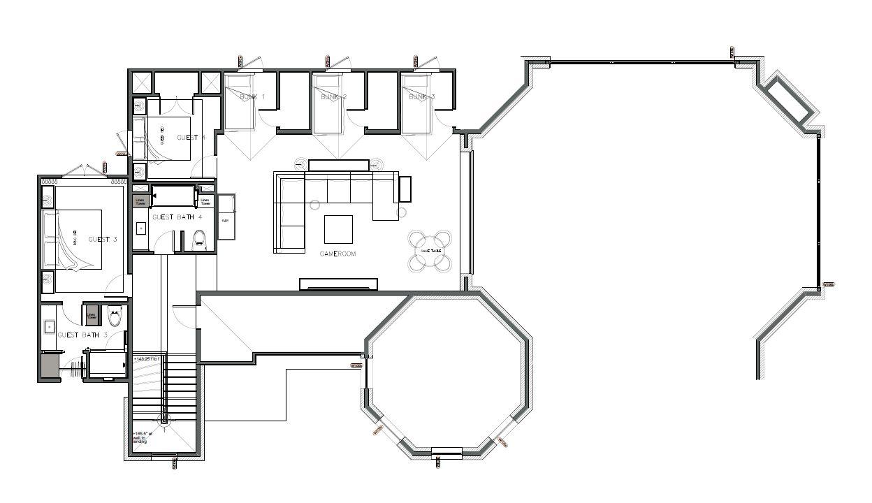
Mann Designs | 2024 PRELIMINARYSPACE PLANNING
Second Floor
6
Slurried Stone look
Mann Designs | 2024 EXTERIOR DETAILS
Lighter stain wood color

Cantilevered deck, Light detail on

Firepit Inspiration

beams/wood Cantilevered Deck 8
Mann Designs | 2024 INTERIOR
DETAILSTHROUGHOUT
Beautiful texture & material combination

Images showing overall Interior tones and color palette

10

Artisan light fixture, color of wood on the ceiling, & stone.

Mann Designs | 2024

Incorporating wood and metal/steel details

12

Light slurry on stone, Serene lighter palette

Mann Designs | 2024

Hide wall panels

14

Foyer Inspirations - (Center) Plaster or washed, board wall detail above interior stone, Also like the idea of a cool, long light fixture

(Above) Another light fixture option, great rug design made for space (Far Right) shelving/bookshelves on round walls

FOYER

Mann Designs | 2024
16
Existing (Above)

LIVING

Traditional large custom light paired with transitional furniture & the overall scale of the space. The sheers soften the space and absorb sound. Not sure if this would work with your windows but the look is nice..

Mann Designs | 2024

placement will vary as design develops, but preliminary plan above gives a general idea for furniture placement.

Gathering space by fireplace, lounging area by TV, and multiple sitting opportunities to take in the views.

18

Photos left show a mix of collected furniture that could be sprinkled in - do these pieces resonate with you?

Photos right show cleaner, more modern furniture.

We’d love to incorporate a balance of the two.

Great overall feel -
Mann Designs | 2024
20

Light Fixture Inspiration

Existing Ceiling Fixtures

Mann Designs | 2024

Fireplace detail with rustic and modern details (top right)

Seating arrangements that connect multiple spaces to one another (bottom right)

22
Mann Designs | 2024 KITCHEN

Great overall feel in this kitchen, we love the mixture of materials and use of the space. Creative idea with the wood detail in center of island.

24

The following are a few more kitchens that caught our eye. Do any of these stand out to you?

Wood color, backsplash, & simple details

Rustic beams paired with transitional cabinetry
Mann Designs | 2024

Beautiful coloring & veining in this slab option

26
Mann Designs | 2024
28
Mann Designs | 2024
30

Option to use space off of kitchen as a cozy, sitting nook

Mann Designs | 2024
32

Different dining room details and designDo any of these elements stand out to you in these Dining Rooms?

DINING ROOM

Mann Designs | 2024
34

Backsplash Inspiration (above) Mixing in metal material (above and right) Floating shelves with rope design and different textures (previous)

Mann Designs | 2024
BAR

Existing Bar Space

36

MASTER BEDROOM

Mann Designs | 2024

Fireplace Design Idea for Primary Bedroom & wood ceiling inspiration

38

Beautiful headboard detail, love the warmth from the colors & wallpaper

Mann Designs | 2024

Do any of these bedrooms resonate with you?

Transitional furniture with modern elements, touches of the comfortable ranch setting added in

40

Pendants over nightstand, sheers & connection to patio

Mann Designs | 2024

Bedroom workspace ideas

42

Inspired by the vanity design - reference photos classic, modern and rustic combined

PRIMARYBATHROOM

Mann Designs | 2024
44
Mann Designs | 2024
46

PRIMARYENTRANCE

Accessible Storage

Mann Designs | 2024

Different powder bath design Inspirations -

48
BATHS
POWDER

Idea for bottom step(s)

STAIR DETAILS

Mann Designs | 2024

Metal Railing Detail

50

Different design ideas for secondary bedrooms -

Overall feel

BEDROOMS

Mann Designs | 2024 SECONDARY

Great hide wall detail behind headboard

Crisp, comfortable with a punch of fun

52
Mann Designs | 2024
54

General inspiration for loft area - tucked away beds & lounging/game table space

LOFT& GAMEROOM

Mann Designs | 2024
56

Balance between different design elements throughout residence.

OVERALLFEEL

Mann Designs | 2024

Mixed Patterns

58

713-664-6707

office@manndesignsstudio.com

3214 Mercer St. Houston, TX 77027

MANNDESIGNSTUDIO.COM

Turn static files into dynamic content formats.

Create a flipbook
Issuu converts static files into: digital portfolios, online yearbooks, online catalogs, digital photo albums and more. Sign up and create your flipbook.