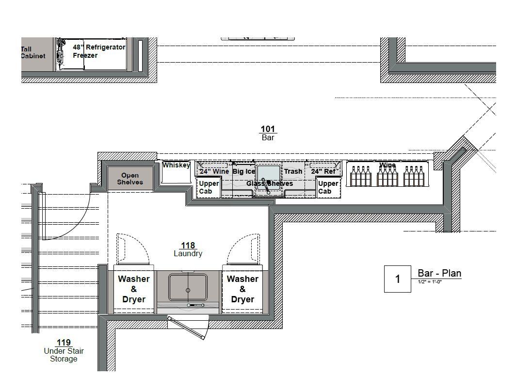
Keating Ranch
Grape Creek Road
Hard Surface, Lighting, & Interior Details
















Second Floor



![]()
















Second Floor



Floor Pattern Design


Slurry on existing stone Bronze Metal Frame in cased openings












Farmhouse Stone
Campagne Flooring - Engineered / Solid Wood
Available in Several Color Options

Wide Width Sizes
8.5, 10.25, 11.75 inches
Random Length
67 - 106 inches







Avalon Tumbled Limestone
Available in Multiple Sizes
● 16”x 24”
● 16”x16”
● 16” x Random Length (16” to 36”)
● 2” x 8”
● 20” x Random Length (16” to 36”)
● 6”x 12”
● 8” Hexagon
● 8”x 8”
● 4” x 4”
● 2” x 2”









10’ Sofa x 41”D x 36”H (overall)



3 Seat cushions vs 2 Seat Depth 23”D
Coffee Area - Leather Swivel Club Chair
Possibly with irregular shape rug or cowhide underneath










800 lumens



990 lumens


Add a piece of furniture under TV



10’x4’ Dining Table (Shown top) Seating 10
Extended to 14’x4’ Dining Table (Shown Right) Seating 14


A variation of a Branch Hanging Fixture
69”L x 42”D x 53”H


Chair
Dining Table - Customized to extend for additional seating

Metal Detail at Stone Arches on both sides of Dining Room


Side Chair











Cabinet Front Design Option 1





Brass Hardware
Cabinet Front Design Option 2

















































Bottom Stair Detail














Detail on Ceiling
(Not Fabric)

Blackout Drapery Panels with Pocket Detail - Soft, Accent Lighting in Cove (No shears)

Design
Custom headboard in Leather or Hide Sconces over nightstands


















































Bedrooms - Guest 1





Bathrooms - Guest 1












Bedrooms - Guest 2




Bathrooms - Guest 2



















Upper Guest Bathroom 3





























713-664-6707
office@manndesignsstudio.com
3214 Mercer St. Houston, TX 77027