Rice Concept Flipbook

Page 1

Rice Family Residence Concept Flipbook

Mann Designs Studio | October 6, 2023

Rice Family Residence

This beachfront family home is more than just a dwelling; it is a canvas for creating lasting memories. NestledattheendofAirwayLane,amagnificentnew construction family home is poised to become the backdrop for cherished memories, unforgettable gatherings, and a host of beautiful events. This enchantingwaterfrontpropertymarksthebeginningof an exciting new chapter, offering a haven where the tranquil beauty of the water meets the warmth of family ties. The architecture of this home is a harmonious fusion of modern elegance and coastal charm. The interior of the residence enjoys the perfect blendofnaturalbeautyandmodernconvenience.

Imagine waking up to the coastal breeze, savoring breakfastontheterrace,andhostingfamilybarbecues as the sun sets over the water. From building sandcastles with children to celebrating milestone birthdays and anniversaries, every moment here is destinedtobetreasured.

2
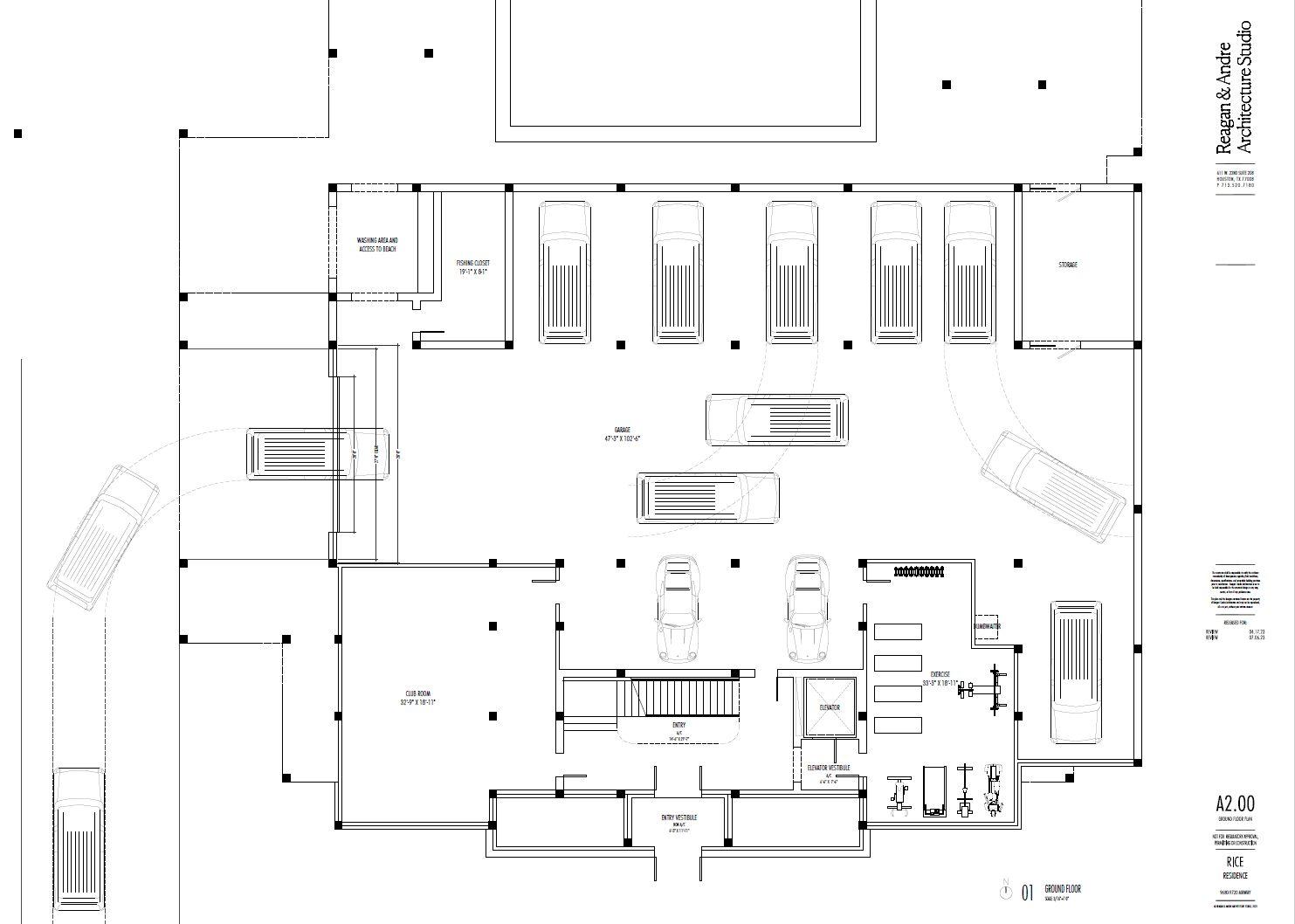
Mann Designs | 2023 GroundFloor
4
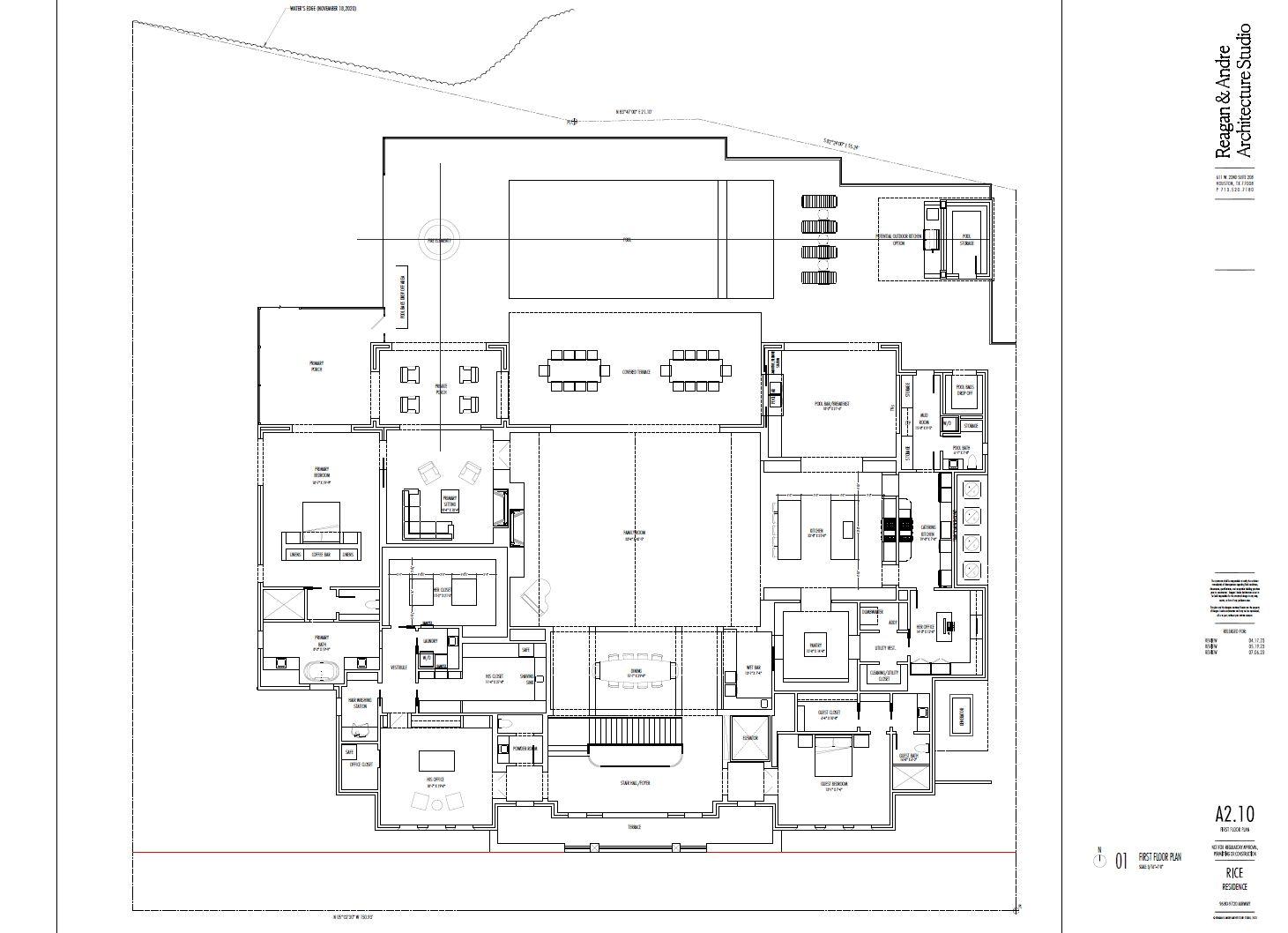
Mann Designs | 2023 FirstFloor
6
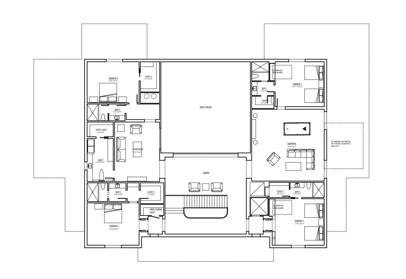
Mann Designs | 2023 SecondFloor
8
Mann Designs | 2023
ExteriorElevations
10

Exterior details that combine a mix of sophisticated elements with the relaxed vibe of water front property.

Exterior Mann Designs | 2023
12
Mann Designs | 2023

Durable materials, classic designs, and natural elements blend to create the Exterior

14
Mann Designs | 2023
16

ExteriorLiving

Outdoor Dining, Lounging, & Seating incorporated throughout the different patios and areas

Mann Designs | 2023

Outdoor spaces perfect for al fresco dining and entertaining

18

Bright & Airy entrance way with thought-out pops of color & patterns

Entry
Mann Designs | 2023
20

Beautiful & Rich tones in the Slab Material

Kitchen
Mann Designs | 2023
cabinetry & details 22
Sophisticated
Mann Designs | 2023

Ceiling Detail

24

Breakfast/PoolBar

Mann Designs | 2023

A charming and inviting dining and/or conversation space with personality by using playful lighting, mixture of textures through the furniture, and colorful wallpaper and/or wall details.

Pass Through Window
26

Cultivated Dining Room

Textures, Art, & Lighting that make a statement

Possibly play with the ceiling in this space to allow for a more intimate setting.

DiningRoom/FormalBar

Mann Designs | 2023

Thoughtful design elements, such as, wallpaper, metal suspended shelving, or exotic stone at the bar as you enter the main level of the residence

28
Living Mann Designs | 2023
Back to Back Seating - Utilizing space for both gathering & views

Timeless & Classic Details mixed throughout with modern updates

Different ceiling details

Blues and sandy ochers enhance the sea hues beyond the windows

Interior blending with the outdoors

30
Mann Designs | 2023

Wall Detail, art, & accessories that bring in character through pattern & color

32

Soft and serene primary suite; utilizing gentle colors, natural materials, and tailored details

PrimarySuite Mann Designs | 2023

Light & Bright with touches of color incorporated into the space Refined Details throughout Suite 34
Mann Designs | 2023
Seating area in front of the primary bed, leading the primary suite to the primary porch

Welcoming and relaxing Primary Suite TV space with sectional & lounge seating, photo above shows preferred furniture layout (Not necessarily colors)

36

Incorporating vibrant punches of color &/or texture in Powder Bathrooms to create an energetic space

PowderBath

Mann
| 2023
Designs
38

GameRooms

Mann Designs | 2023

Purposefully crafted to create spunk and fun, making these gathering spaces vibrant and lively.

40

SecondaryEnSuites

Mann
| 2023
Designs

Uniqueness & Charm throughout the secondary spaces by incorporating eye-catching & functioning details

42

AncillaryRooms

Mann Designs | 2023

Secondary rooms with punches of color

44
office@manndesignsstudio.com
Mercer St. Houston, TX 77027
MANNDESIGNSSTUDIO.COM 713-664-6707
3214

Turn static files into dynamic content formats.

Create a flipbook
Issuu converts static files into: digital portfolios, online yearbooks, online catalogs, digital photo albums and more. Sign up and create your flipbook.