Skip to main content

Manmeet- Portfolio 2024

Page 1


Sydney, Australia

Email: manmeetthandhi@gmail.com Mobile: 0411 378 984 Manmeet Thandhi

Software & Technical Skills

Drafting, Modeling & Technical Revit | ArchiCAD | AutoCAD | Rhinoceros | Grasshopper | Sketchup 3D | Microsoft

3D Rendering & Visualization

Vray | Lumion | Enscape | Unity | Adobe Photoshop | Adobe Indesign | Adobe Illustrator

Work Experience

Graduate of Architecture

SHROFFLEóN Architecture and Interior Design Studio | Mumbai, India | Full-Time

January 2021 – June 2022

Intern Architect

Vilas Avachat & Associates Builders & Architects | Mumbai, India | Full-Time November 2018 – April 2019

Volunteer Research Assistant

Urban Design Research Institute (UDRI) | Mumbai, India | Volunteering January 2019 – April 2019

Sales Assistant

Michael Kors | Sydney, Australia | Part-Time September 2022 – February 2023

Education

Master of Architecture

The University of Sydney (USYD) | Sydney, Australia 2022 – 2024

Academic Achievement: High distinction in Master’s Thesis.

Bachelor of Architecture

L.S. Raheja School of Architecture (University of Mumbai) | Mumbai, India 2015 – 2020

Academic Achievement: Graduated with distinction

Honours & Awards

• Selected for Architecture Catalogue| The University of Sydney | ADP Graduate Show 2024

• Sydney International Student Award | The University of Sydney | 2021

• Design for Change DHFL Trophy | 2018

• Wood is Good | Festival Of Architecture, Interior Design (FOAID) | 2016

• Participant, HUDCO and Industrial Design Trophy | Annual NASA Convention | 2017 & 2018

Cool Pool House

work at Shroffleón

RESIDENCES Professional work at Shroffleón

work at VVA

Vaulted House Professional work at Shroffleón In Search of Independence

MASTERS OF ARCHITECTURE

SELECTED WORK

Documentation of my selected work at The University of Sydney, MArch Design Studio.

THE FUTURE OF TOWNS

MArch Studio - The University of Sydney Collaborative work with - Merlyn Wilson, Thawtar lynn Programs used - Revit, AutoCad, Sketchup, Lumion, Photoshop Guide - Ar. Ashley Dunn

The project in Cobar, situated in the far west region of New South Wales, encompasses a multifaceted approach that not only addresses environmental sustainability but also holds profound implications for social impact. Drawing inspiration from Jo Lee’s “Networking: Social Capital and Identities in European Rural Development,” the project aligns with the idea that rural development is intricately linked to social networks and identities.

This building incorporates an innovative convection system, leveraging the natural movement of hot air rising and cool air sinking. Inspired by effective passive design strategies observed during our site visit to Bourke, we integrated a subfloor structure that facilitates air circulation. The concrete slab’s thermal mass, combined with water tanks within the subfloor, induces a phase change, allowing cool air to be drawn in. This cooler air is then channeled through a shaft and directed into interior spaces via openable wall vents.

Taking cues from successful precedents like the Bourke’s Lands Department Building, we extended the span and introduced roof vents, maximizing natural ventilation and integrating as much vegetation as possible into the design.

Cobar is mostly dependent on a land-based supply chain for staple foods including eggs, fresh vegetables, pork, and poultry. There are major challenges to local agriculture and animal production due to the hot, dry environment and little rainfall. These difficulties are exacerbated by the lack of water. This means that food must be transported across long distances to Cobar, increasing carbon dioxide emissions.

COBAR’S FOOD MILEAGE MAP

The vaulted brick roof ceiling in the housing modules serves a dual purpose: providing structural support for the substantial roof, especially due to the presence of planter boxes, and incorporating thermal mass for enhanced energy efficiency. The design incorporates vents strategically placed alongside the cavities between the vaults, facilitating the release of hot air. This thoughtful integration not only ensures the stability of the structure but also optimizes thermal dynamics within the space.

ESCAPE OR RETREAT

Architecture as a vessel to facilitate mental healing process

MArch Studio - The University of Sydney Collaborative work with - Thawtar lynn Programs used - Revit, AutoCad, Sketchup, Lumion, Photoshop Guide - Rose McEnery

The rapid metamorphosis of Redfern North Everleigh’s paint shop district has precipitated the erosion of cultural landmarks, revered historical sites, and natural elements, which have been supplanted by concrete, thereby exacerbating the diminution of indigenous flora and fauna. The proposed design meticulously scrutinizes the repercussions and ramifications of Bates Smart’s paint shop master plan framework. The forthcoming urban fabric will comprise towering apartment complexes, accommodating an augmented populace. The proposed architectural intervention endeavours to establish a non-institutional facility for headspace patrons, concurrently serving as a social nexus for the local populace, providing compelling and healthful environs for all.

SENSE OF ESCAPE AND RETREAT

We maintain that individuals should be afforded the option, embodying the liberty to seek solitude, escape, or retreat when their environment becomes overly oppressive or simply to find solace. Escape spaces manifest as secluded courtyards or intimate gardens concealed from plain view, serving as sanctuaries. Retreat spaces encompass comforting domestic environments with vistas extending to the sky, fostering spaces for renewal and rejuvenation.

ESCAPE AND IT’S CONNECTION TO CARRIAGEWORKS
ESCAPE AND IT’S CONNECTION TO PAINTSHOP

WAYFINDING THROUGH PLAYSCAPES

The proposed design presents a streamlined approach to wayfinding and navigation within the hub, achieved through the elimination of narrow, poorly illuminated corridors in favour of expansive pathways bathed in natural light. These pathways are accentuated by lively floor finishes or playful-coloured ceiling lights, facilitating effortless identification.

HERITAGE REVITALIZATION

The revitalization of the paint shop heritage fabric is intricately woven into the proposed building design.

DIFFUSED NATURAL AND ARTIFICIAL LIGHTING IN INTERVIEW SPACES

PROFESSIONAL

SELECTED WORK

Documentation of my selected works during the period of my internship at VVA Architects and as a full time Architect at Shroffleón.

THE COOL POOL HOUSE

Site - Karjat, India

Professional Work with Shróffleon

Year - 2021

Programs used - AutoCad, Sketchup, Vray, Photoshop

Collaborative work with - Kayzad Shroff, Khusbu Mehta, Hitanshi Mehta

Deep within the untamed wilderness of Karjat, India stands a symbol of refuged. The house is a floating, transparent structure, designed to take advantage of the multiple captivating views that make up its surroundings. The built form with its aging character becomes the second home of a family eager to change the rhythm, far from any trace of civilization.

The primary living spaces are bridged together with a spacious, airy portico, adorned with slender concrete columns at its perimeter. These columns are mindfully designed and placed to allow the portico to seamlessly unfold into the plantations. The three bedrooms overlook on opposite sides, with the master bedroom opening up to the river valley below, and the guest bedroom enjoying views of the vast plantations.

9 RESIDENCES

Site - Mumbai, India Professional Work with Shróffleon

Programs used - AutoCad, Sketchup, Vray, Photoshop

Collaborative work with - Principal Architect Kayzad Shroff

Greenlands, located in the suburbs of Mumbai, is a 9 storey luxury residential building with 8 identical 4 bedroom apartments of 1400 sq ft apartments and a duplex penthouse at the top. The structure was envisioned to look ahead of its times in terms of colors, materials and method of construction. The intent of the design was to disguise the repetitive and standardized nature of the program within the envelope to allow for a structure with fragmented varied skin.

A stark material palette of black and grey zinc, punctuated by warmer panels of Parklex, is dominant throughout the facade. The construction of the façade occurs in layers, with the black outermost layer visually structuring the façade. A series of setbacks of horizontal and vertical bands fragment the controlled format, resulting in an irregular façade.

The façade makes an attempt to break away from the traditional fenestrations and provide a refreshing change in its aesthetics with a playful composition of openings.

ENTRANCE LOBBY
LIVING AREA
BATHROOM

This Project is currently at it’s initial stages of construction, my role involved seamless collaboration with diverse contractors, ensuring all drawings received met the project’s specifications. Coordinating with contractors demanded a keen eye for detail and an ability to navigate through the intricate web of construction processes. From structural to electrical, my responsibilities spanned various discipline. This multifaceted experience not only honed my technical skills but also developed my proficiency in managing intricate project timelines

TERRACE PLAN

COLO RESIDENCY

Site - Mumbai, India

Internship with VVA Architects Year - 2019

Programs used - AutoCad, Sketchup, Lumion, Photoshop Collaborative work with - Principal Architect Vilas Avachat

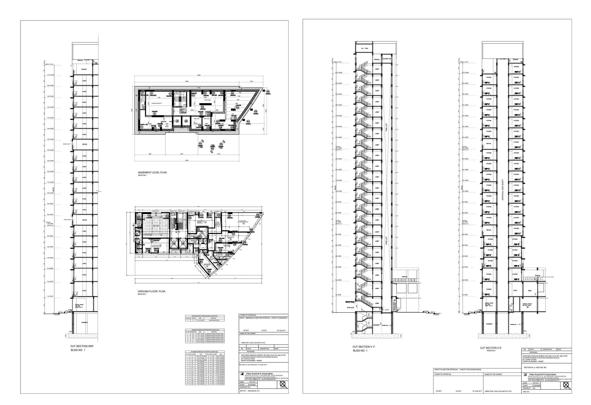
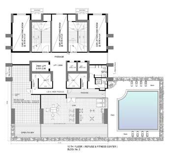
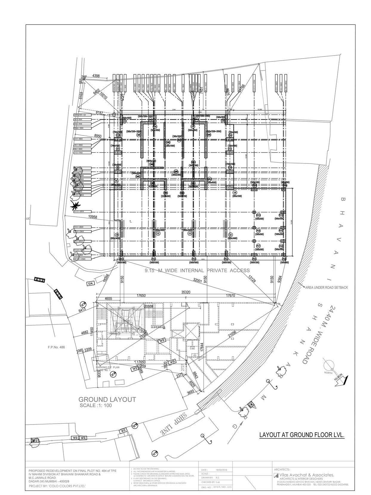
Colo residency is a high rise luxurious residential complex in Mumbai. Colo building is a forty eight storey high residential building where ground floor acts as commercial, floors from first to ninth are used for parking and servicing and floor tenth acts as a refuge floor along with a recreational space including a gym and an infinity pool at one of the corners.

This project was helpful in making me understand how the structural system works when it comes to a complex highrise structure and in what detail technical drawings are expected from an architect.

THE VAULTED HOUSE

Site - Alibaug, Mumbai, India

Professional Work with Shróffleon

Year - 2021

Programs used - AutoCad, Sketchup, Vray, Photoshop

Collaborative work with - Principal Architect Kayzad Shroff

Situated amidst the vast landscape of Alibaug , India ‘The Vaulted House’ is an experimental contemporary holiday home. The house is deconstructed to create a set of pods, designed in a form of brick monolith vaults scattered within the lush jungle-like greens. These pods are oriented to overlook an organic shaped water body giving each space, a serene and distinct view of the extensive verdure.

The central water body that dissolves into nature connects the different pods together with a peripheral outdoor corridor. The house develops from the idea of being aware of the environment and takes into consideration the respect for its surroundings

Dining overlooking the pool

BACHELORS OF ARCHITECTURE

SELECTED WORK

Documentation of my selected work at The University of Mumbai, BArch Design Studio.

IN SEARCH OF INDEPENDENCE

Living and Learning Center for Young Autistic Adults

Undergraduate Thesis

Year - 2019-2020

Programs used - AutoCad, Sketchup, Lumion, Photoshop Guide - Ar. Mridulla Pillai Gudekar

The work attempts to Design an environment that caters to the spatial needs of autistic youth and adults and attempts to define an intervention that helps these individuals become independent to ensure their inclusion in our urban society. This project stemmed off from my interest in the impact of architecture on the human psyche, I started giving a thought as to how many possibilities could architecture bring into the lives of individuals in the spectrum.

Autism spectrum disorder is a complex neurological disorder, it affects one’s social cognitive perception which further affects an individual’s ability to process information and their behavioral pattern.

When designing for autism the Zoning and organization of the building is done around the senses because that is what the autistic individuals could relate the most to, so high stimulation spaces next to high stimulation spaces and low stimulation next to low stimulation with a good transition in between.

SERENE SPACES: All spaces are designed to reduce sensory stimulation and provide a serene environment. Forms are familiar, colors and finishes are subdued, and lighting is mostly indirect.

ESCAPE: And finally the niche spaces in the common areas acts as an escape space that offer respite if individuals find any environment too overbearing.

LEGIBILITY: A straightforward and consistent spatial organization provides clearly defined transition thresholds between public and private spaces

PREDICTABILITY: All four homes are similar in design so that residents feel comfortable visiting each other or relocating to a different house on the site.

The relationship between humanity and the built environment is closely linked to the way in which one perceives the world around them. Perception allows, to understand, translate, and draw relationships with the surrounding environment. But what happens when one experiences this built environment with impaired perceptions. Individuals in the autism spectrum find it difficult to make sense of the world, which in turn affects their abilities to cope, experience, and relate to their surrounding environments.

STUDENT’S RESIDENCE

The concept of the residential unit follows an experiential hierarchy, beginning with the Individual to a neighborhood and finally expanding toward the community. Residents are given the opportunity to preview spaces and activities, and if they find any discomfort to access places of retreat for quiet.

Use of diffused lights to avoid creating over stimulation Bringing natural daylight Interactive & tactile surroundings

THERAPY CENTRE

The concept here is following an experiential hierarchy of volumes starting from low stimulating areas moving towards areas of the high stimulus, with good transition space between them and an opportunity to retreat in case the environment becomes overstimulating.

DESIGN FOR CHANGE

Design for a child care center (Anganwadi) National Competition Year: 2018

Programs used - AutoCad, Sketchup, Vray, Photoshop Collaborative work with: 10 members

Contribution: Research, design, presentation, drawings. 3rd place at The Design for Change trophy at 60th Annual NASA Convention.

Prototyped for regional implementation across outskirts of Mumbai.

Anganwadis or courtyard centres, are established as a part of the Integrated Child Development Scheme (ICDS) services of the Ministry of Women and Child Development,Government of India to provide quality early childhood development and care to children up to 6 years of age. As this idea proved to be effective, it was replicated all across India, in rural, urban and tribal contexts.

In order to create an ideal anganwadi our design has incorporated child friendly spaces via a sustainable approach which is innovative and responsive in maintaining an active brain and body development. This module aims to be a space that nurtures both the child and their mother. By creating such spaces it allows the child to be more active, making him curious to explore and discover new things around them and stimulate their senses.

THANK YOU manmeetthandhi@gmail.com

Turn static files into dynamic content formats.

Create a flipbook
Manmeet- Portfolio 2024 by Manmeet Thandhi - Issuu