

Mais Joudeh Architecture Portfolio
Contact Info
Email: maisjoudeh@cmail.carleton.ca
Phone: +1 8197437643
LinkedIn: Mais Joudeh
Instagram: @maisz_arts
Objective
An ambitious Architecture student, driven by a strong passion for sustainable design, ready to commence a significant career opportunity within an architecture firm. This role not only aims to enhance my professional skills but also strives to address and overcome challenges within the design domain.
Aspiring to leverage my academic foundation, LEED Green Associate certification, and innovative design instincts I am eager to contribute my unique perspective to cutting-edge interior design projects, advanced design theories, and sustainable practices within the industry.
Software AutoCAD
2021
Junior Architect - Trainee
LA CASA Architects & Engineering Consultants
Dubai, United Arab Emirates
- Drafting using AutoCAD.
- Enhancing master plans using Photoshop.
- Applying color codes to plans and formatting presentations for clients.
- Acquiring knowledge about post-COVID design and conducting rapid research tasks.
- Gaining proficiency in 3D digital modeling through software such as SketchUp and basic 3Ds Max.
- Conducting rendering using Lumion and Enscape.
- Designing apartment plans for high-rise buildings.
2022
Receptionist/Optometric Assistant
Eyelink Optometry Ottawa, Canada
- Scheduling appointments.
- Conducting preliminary tests on patients.
- Arranging the clinic.
- Placing and receiving orders for eyeglasses.
- Generating invoices.
- Verifying insurance information.
2023 (June-August)
Design Intern
Stride Media Advertising Agency Amman, Jordan
- Producing videos with Adobe Premiere.
- Utilizing Photoshop for logo creation.
- Engaging with clients.
- Developing marketing strategies.
- Managing business social media accounts.
2022 - 2024
Barista/ Supervisor
Second Cup Coffee Co. - Heron Park Ottawa, Ontario, Canada
- Operating a cash register.
- Creating simple latte art.
-Ensuring a comprehensive and enjoyable customer experience.
- Completing specific duties during each shift to uphold the establishment’s standards.
- Holding responsibility as a key-holder.
Education
- Masters of Architecture - Architectural StudiesConservation & SustainabilityCarleton University, Ottawa, ON - Jubilee Center for Excellence in EducationJubilee School, Amman, Jordan
Languages
Arabic English
French
Certifications
- LEED Green Associate - Embodied Carbon & Life Cycle Assessment in Traditional & Heritage Buildings- AIAU
LinkedIn Certifications
- Navigating Environmental Sustainability: A Guide for Leaders - Learning Procreate
- Construction Management: Modular
- Construction Methods Revit 2023: Essential Training for Architecture (Imperial and Metric)
TABLE OF CONTENTS




Orkney Church Interpretation Centre
Photoshop Sketchup Procreate Enscape
Orkney Church was built by Scottish Presbyterians. The proposed interpretation centre uses the same stonemasonry and is built horizontally to maximise space and lighting. The building is oriented diagonally towards the historic church. Part of the space is underground to maintain a low height, relative to the existing church. The open indoor spaces are intended to host workshops that teach about the culture of settlers and indigenous peoples. The circulation depicts the settlers’ journey from Scotland to the land.

Orkney RM 244, Saskatchewan, S3N, Canada



CHARACTER DEFINING ELEMENTS
-material: scottish stonemasonry, limestone mortar -rectangular footprint



SITE ANALYSIS


*Site image provided by Prof Steve Fai

South-West Elevation


South-East Elevation



Section




RENDERS
Heritage Heights Reclaimed Living on Bronson

This project is an urban proposal of Confederation Heights. Inspired by David Fortin’s adaptive reuse of the American’s embassy in Ottawa project; this masterplan proposal also conceptually envelopes the existing structure; the CBC Building, symbolizing claiming the land back and also filling in the voids of the misinformation that is spread by mainstream media. The existing heritage building is assumed to be reused for housing.

1500 Bronson Ave, Ottawa, Canada
Area of site
9.3 Hectares
Build Gross Area
120,560 m^2
Net Area
96,448 m^2
Floor Space Index 1.29
Site Analysis







Concept
Landscape
Given the close proximity to Carleton University, this project is mainly targeted towards students. The simple landscaping divides the open spaces allowing for more specific uses that can be curated by the inhabitants of each building.
Adopting the indigenous concept of the CIrcle of Life which is divided into four quarters; representing the spiritual, mental, physsical and emotional. Each building is identical and mirrored with a small setback to allow for better solar penetration.




Parking Level Ground Floor






Typical





CONSTRUCTION DETAILS

INTERIOR
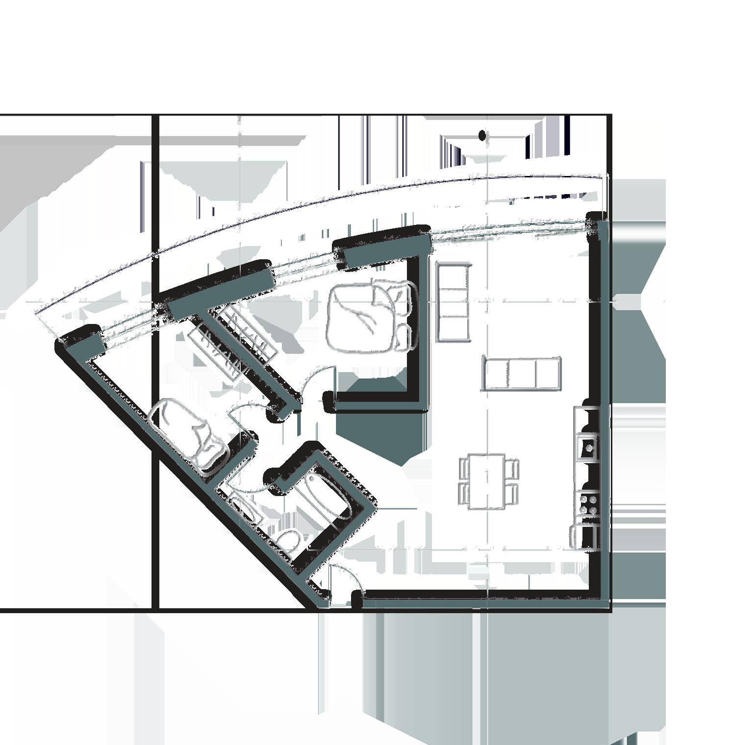
Interior Design
The
Nay VIP Lounge
These are interior design project sketch proposals for a middle eastern Cafe that includes Hookah smoking. The client wanted bright, unique colors, highlighting royal blue. The mood boards combine inspiration for spaces that include royalty, arab, cozy, and modern minimalistic & bohemian styles. The orange serves as a complementary, powerful statement. Ornamentation, curved surfaces/ furniture, light colors given the small space, exposed HVAC system and high ceiling, given that there will be smoking, are the most important elements.
* On the sides are mood boards for ecah option. The notes are mine but the pictures are not






Animations -
‘What You Need to be Warm?’
After Effects Procreate Premiere Pro Gaiman’s novel was concept of warmth was broken down into various interpretations, comparing the literal and figurative ideas of warmth, as well as the absence of and abundance of warmth.
Scene 2 represents the moment when warmth becomes merely a memory and turns into fire that burns down the laughter, the trees, the home all in a second and turns them into ashes until the last leaf of hope falls and disappears.
The hurt eyes are of those children that were lost in the current war in Gaza, reiterating the aim of the author of shedding light on the life that refugees and martyrs’ families have to leave behind in the midst of all the pain and the coldest winters.






Free handsketches


DSA ROME ‘23 - ROMA CIRCO MASSIMO






Mediums:
Ink
Pencil

Colouring Pencil
Charoal Pencil
Procreate digital sketch
Watercolour







Style reference image: Landscape Sketch
Prompt: landscape design, spacing trees, scale figures, wood benches, wood flooring or grass

Prompt: architectural render, building white simple massing