PORTAFOLIO DIBUJO Y PRESENTACIÓN DE PROYECTOS

Page 1

DIBUJO Y sección: 522 D O C E N T E : V E R Ó N I C A R O S S A D O E S P I N O Z A J O S E P A N D U R O

TABLA DE CONTENIDOS

Pre Anteproyecto

CG1-1- CG7 - CG9 pag.01

02 03 04 01

Anteproyecto CG1-2 - CG7 CG9 pag.16

Cerramientos y Sistemas Constructivos

CG1-3 - CG7 - CG8 CG11 pag.38

Acabados Interiores CG1 - CG7 - CG9 CG11 pag.46

02 03 04 0 1

Componentes arquitectónicos CG1 - CG7 - CG9 - CG11 pag.66

Interiores CG9 -

Síntesis Individual CG1 - CG5 - CG7 - CG8CG9 pag.66

Comentario Final y CV pag.87

ANTEPROYECTO CG1- CG7-CG9 01

90% 100%

E C 1 OYECTO 9
Dificultad del tema Tiempo invertido 02
04
06
08
10
12
14
PROYECTO CG1-2 - CG7 CG9

OBJETIVO:

El objetivo de este proyecto fue aprender a representar de manera más detallada los planos de una vivienda unifamiliar a nivel de proyecto. Detallando sus elementos y componentes en planta, corte y elevaciones.

ENCARGO:

Tuvimos que representar de manera adecuada toda la Información para el emplazamiento de una vivienda unifamiliar a nivel proyecto. Para este ejercicio se tuvo como base la entrega anterior con el fin de complementarla. En la planta, corte y elevaciones, detallamos los componentes de la mampara, puertea, ventana y escalera.

REFLEXIÓN

Aprendí bastante con este encargo, sobre todo a poder detallar más adecuadamente toda la información que debe contener un plano a nivel de anteproyecto.

VALORACIÓN PERSONAL:

E C 12 TO 7 CG9
del tema Tiempo invertido 80% 100% 16
Dificultad
Catálogo
18
20
22
24
26
28
30
32
34
36
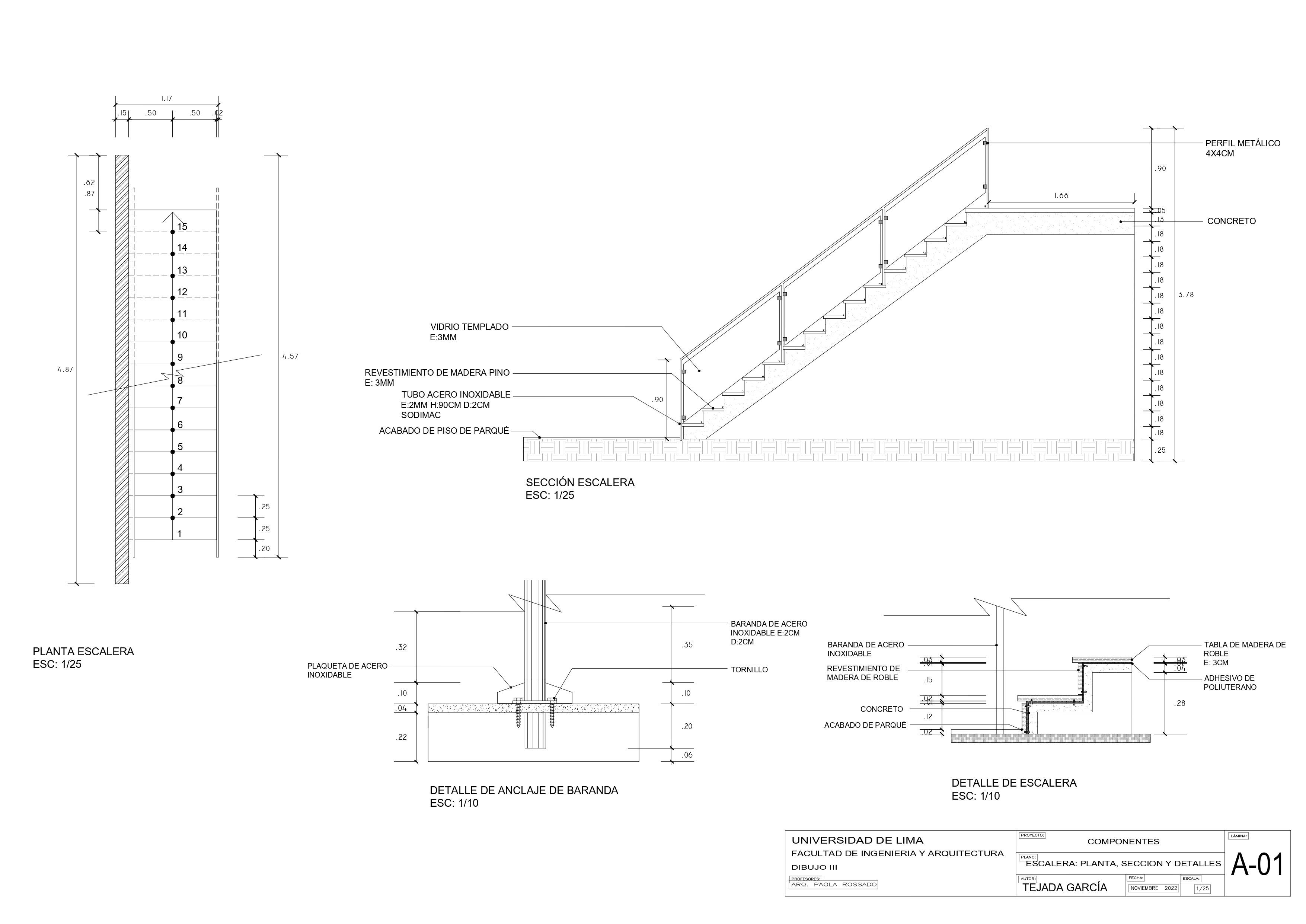
DE PROYECTO Y CERRAMIENTOS
- CG7 - CG8 CG11
ETAPA
CG1-3

DE PROYECTO Y CERRAMIENTOS

OBJETIVO:

El objetivo de este proyecto fue aprender a representar de manera más detallada los planos de una vivienda unifamiliar a nivel de proyecto. Detallando sus elementos y componentes en planta, corte y elevaciones.

ENCARGO:

Tuvimos que representar de manera adecuada toda la Información para el emplazamiento de una vivienda unifamiliar nivel proyecto. Para este ejercicio se tuvo como base la entrega anterior con el fin de complementarla. En la planta, corte y elevaciones, se detalló los componentes de la mampara, puertea, ventana y escalera.

REFLEXIÓN

Aprendí bastante con este encargo, sobre todo a poder detallar más adecuadamente toda la información que debe contener un plano a nivel de anteproyecto. Sin embargo, siento que uno de los aspectos en los que tuve mayor dificultad fue a la hora de representar algunos elementos constructivos y detalles de uniones metálicas de la baranda con la escalera y demás, que pude comprender gracias a las críticas en clase

VALORACIÓN PERSONAL:

E C 11 . 2
7 - CG8
CG11
Dificultad del tema Tiempo invertido 80% 100% 38
Catálogo
40
42
44

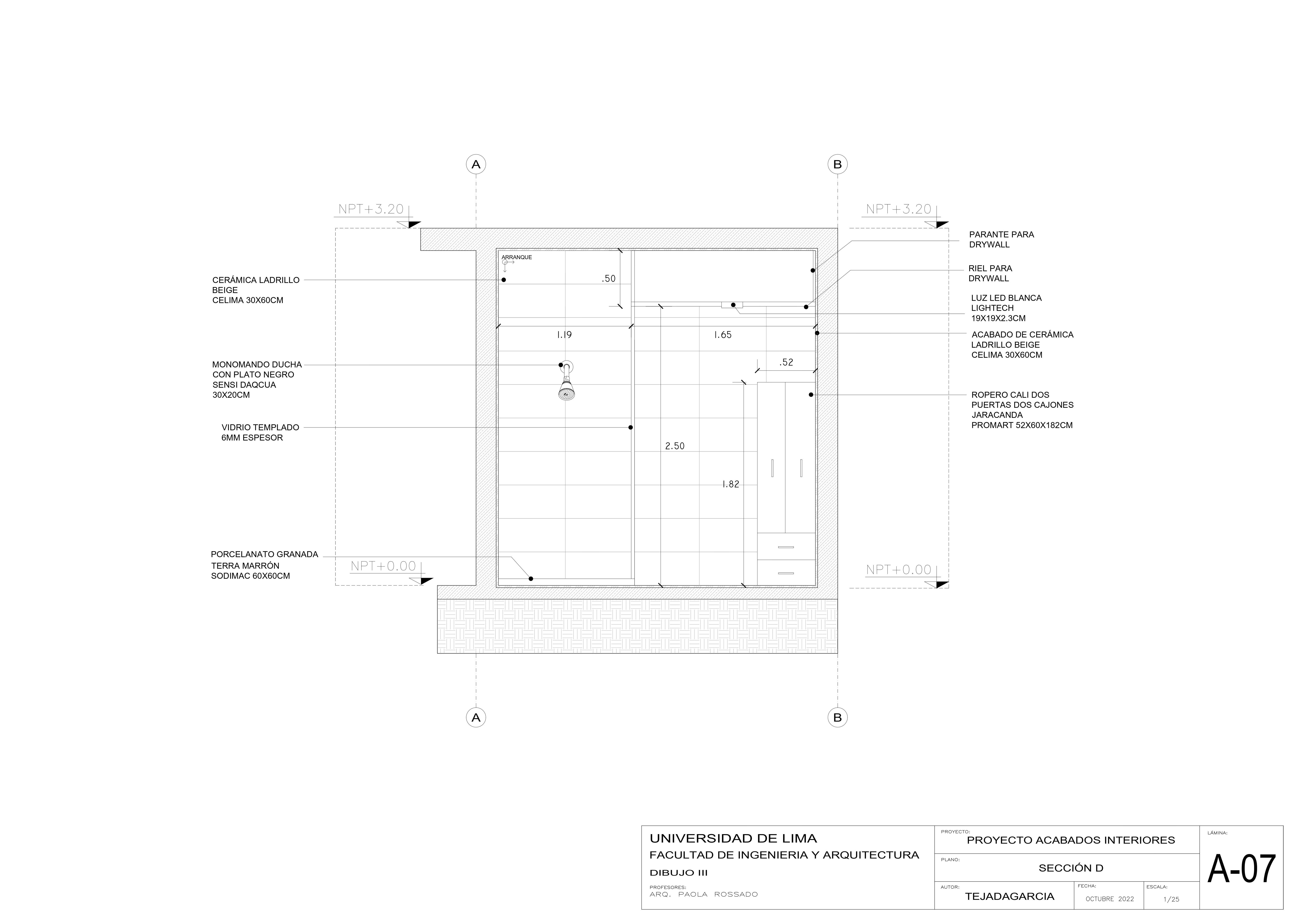
ACABADOS INTERIORES CG1-CG7-CG9

OBJETIVO:

El objetivo de este proyecto fue aprender detallar los acabados interiores de un servicio higiénico, es decir: tipo de piso, acabados en muros, accesorios, mobiliario, etc.

ENCARGO:

Tuvimos que representar de manera adecuada toda la Información para especificar los acabados de un baño. Para esto tuvimos que buscar referentes y realizar un catálogo para que tenga en cuenta de dónde adquirimos esa información.

REFLEXIÓN

Este encargo me gustó muchísimo. Me entretuve buscando los referentes para los acabados que quería especificar en el baño, aunque siento que esta etapa fue la que tomó un poco más de tiempo.

VALORACIÓN PERSONAL:

E C 21
7-CG9 46
OS INTERIORES
del tema Tiempo invertido 100% 100%
Dificultad
Catálogo
Catálogo
50
52
54
56
58
60
62
64
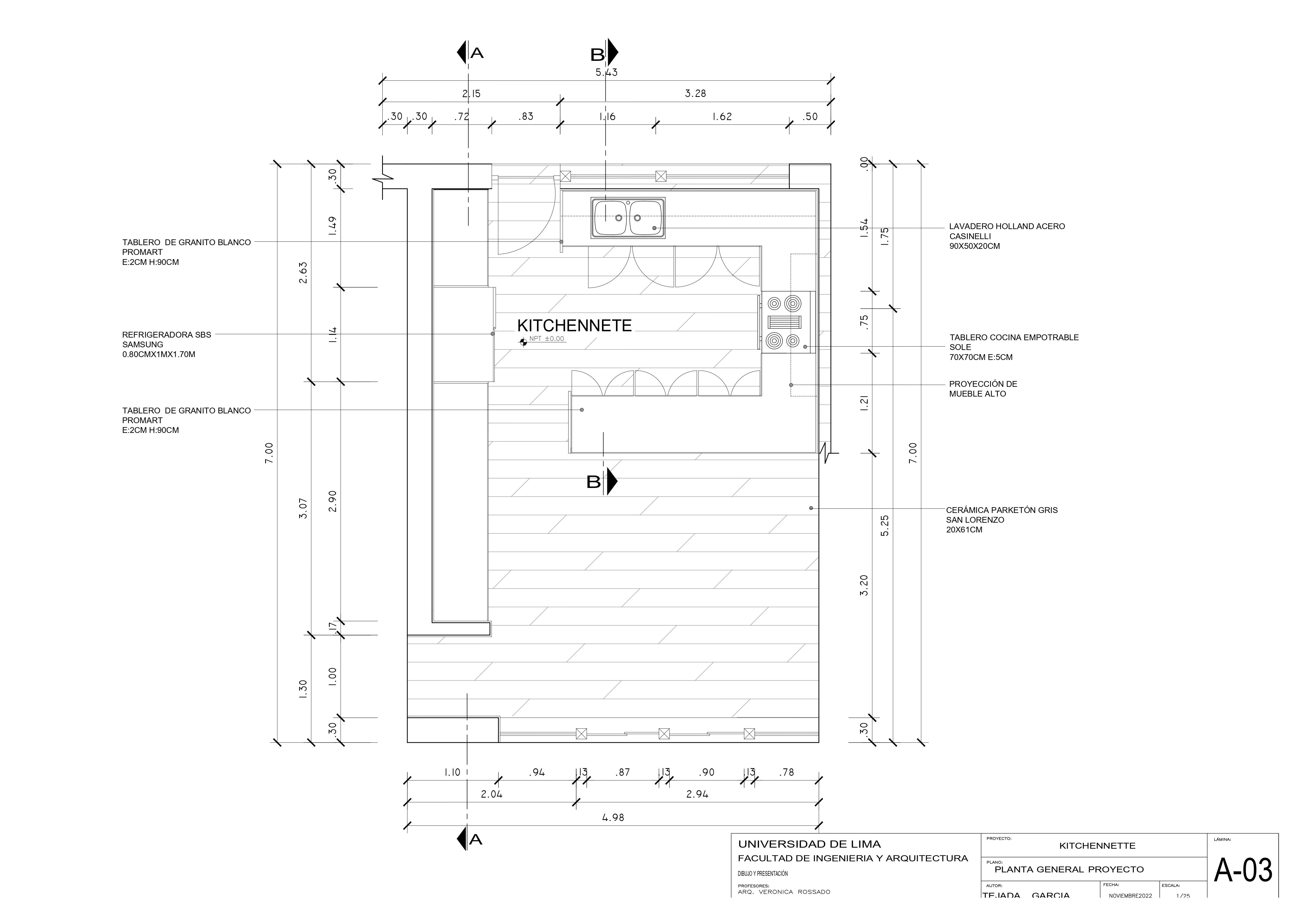
SÍNTESIS CG1 - CG5 - CG7 - CG8 - CG9 63

CG9

OBJETIVO:

El objetivo de este proyecto fue demostrar todos los conocimientos adquiridos mediante la elaboración de planos, cortes y elevaciones de una suite con sala de estar y kitchennete a nivel proyecto.

ENCARGO:

Buscamos un nuevo referente, esta vez, una suite de hotel para realizar a modo de síntesis todas las especificaciones aprendidas a lo largo de todo el ciclo. Para esto se tuvo que valorar y graficar correctamente: los elementos constructivos, carpintería, revestimientos y demás especificaciones.

REFLEXIÓN

Siento que en este ejercicio a modo de síntesis, pude volver a reafirmar todos los conocimientos adquiridos a lo largo del ciclo. Si bien es cierto, fue un encargo en donde detallar toda la información fue un poco complicado, siento que aprendí bastante.

VALORACIÓN PERSONAL:

E C 22 S G5 - CG7 -
-
CG8
80% 100% 66
Dificultad del tema Tiempo invertido
Referente
Suite
de
e de Suite 68
Catálogo
70
72
74
76
78
80
82
84

INFORMACIÓN ADICIONAL

COMENTARIO DEL CURSO

Llevar el curso de dibujo y presentación de proyectos me gustó muchísimo. Siento que llevar este curso fue de vital importancia para mi desempeño como profesional.

El ejercicio que más me gustó realizar fue el último de síntesis del curso porque me permitió reforzar todos mis conocimientos adquiridos y complementar algunos en donde todavía estaba en proceso de aprendizaje.

En todo este proceso fueron de gran ayuda las críticas en clase y asesorías.

86
ACIÓN ADICIONAL

MARÍA FERNANDA

TEJADA

Me considero una persona bastante creativa, optimista y persevante. Además creo que uno de los valores que más rescato sobre mi es la organización, eso me está ayudando bastante en especial en esta carrera Por otro lado también tengo un alto sentido de compromiso y responsabilidad con los trabajos que se me asignan y cuento con gran capacidad de autoaprendizaje, dispuesta a cumplir mis metas y objetivos Siempre trato de buscarle una solución a cualquier problema que se me presente y considero que me adapto fácilmente a cualquier situación o cambio en general.

CV
S O B R E M I EDUCACIÓN Primaria: 2008 2014 Colegio Regina Pacis Secundaria: 2014 2019 Colegio Regina Pacis Pre grado: 2020 Actualidad Universidad de Lima CONTACTO 20203694@ALOE ULIMA EDU PE APTITUDES Dedicada Responsable Perseverante Paciente Positiva Respetuosa INTERESES Música (piano, guitarra) Arte (dibujo, pintura, baile) Manualidades (modelados en cerámica/arcilla) Deporte (tennis) Jardinería Labores de acción social Lectura Autocad Adobe Ilustrator Adobe Photoshop Revit Procreate Español Inglés Servicios de Acción Social Voluntariados HABILIDADES IDIOMAS ACTIVIDADESEXTRACURRICULARES RECONOCIMIENTOS Certificado de inglés FCE (2019) Certificado de oratoria

Docente:

Nombre del curso: Dibujo y Presentación de Proyectos

Objetivo General: Objetivo Específicos:

Suministrar a los alumnos de instrumentales conceptuales y operativo que les permita expresar conceptos y planteamientos de diseño con coherencia, rigor técnico e impacto visual.

1. Dotar de los fundamentos conceptuales y técnicos a los alumnos para la expresión eficaz del Proyecto Arquitectónico como herramienta fundamental de la construcción arquitectónica.

MARÍA FERNANDA

2. Dotar de los fundamentos conceptuales y técnicos a los alumnos para la expresión del detalle arquitectónico - constructivo, como fundamento parte del campo del diseño arquitectónico, de la construcción, la administración y la gestión de obras

TEJADA

3. Objetivos de Desarrollo Sostenible – ODS: - Objetivo 5: Lograr la igualdad entre los géneros y empoderar a todas las mujeres y niñas. - Objetivo 10: Reducir la desigualdad en y entre los paísesObjetivo 11: Lograr que las ciudades sean más inclusivas, seguras, resilientes y sostenibles

Criterios Riba

CG1 Habilidad para crear diseños arquitectónicos que satisfagan requerimientos técnicos y estéticos.

CG5 Comprensión de la relación entre las personas y las edificaciones y las edificaciones y su medio ambiente, y la necesidad de relacionar las construcciones y los espacios entre estas y las necesidades humanas y su escala.

CG7 Comprensión de los métodos de investigación y preparación de un sumario para un proyecto de diseño.

CG8 Comprensión del diseño estructural y los problemas de construcción y de ingeniería asociados con el diseño de las edificaciones.

CG9 Adecuado conocimiento de los problemas físicos y tecnológicos y la función de las construcciones para dotarlas de condiciones internas de confort y protección en contra del clima, en el marco del desarrollo sostenible.

CG11 Conocimiento adecuado de las industrias, organizaciones, regulaciones y procedimientos involucrados en la traducción de conceptos de diseño en edificios y planes integradores dentro de un plan general.

88
CV INFORMACIÓN

Turn static files into dynamic content formats.

Create a flipbook
Issuu converts static files into: digital portfolios, online yearbooks, online catalogs, digital photo albums and more. Sign up and create your flipbook.