G1-PLASTICAS 1

Page 1

TALLER DE DISEÑO ARQUITECTÓNICO VI

A N Á L I S I S D E C A S O S

Integrantes:

Carranza Camacho, Diego

Guzmán Gutiérrez, Elizabeth

Larco Chavez, Chris

Mantilla León, Alejandro

Moreno Arellano, Rebeca

Palomino Medina María Fernanda

A R T E S P L Á S T I C A S

universidad de bergen - facultad de artes, música y diseño

Ficha técnica

ARQUITECTOS: Snøhetta

AÑO: 2017

UBICACIÓN: BERGEN,NORWAY

AREA DEL TERRENO: 14800 m²

TIPOLOGÍA: Educativa

ESPECIALIDAD: Artes Mixtas

relacion contexto-edificio

Ubicado en una zona predominantemente residencial.

Otras facultades de la Universidad de Bergen se encuentran próximas.

Su accesibilidad se limitada a una sola vía vehicular, por la cual también circulan ciclistas

ou

emplazamiento Y ASOLEAMIENTO

Posicionado en un terreno en pendiente, dispone su ingreso principal en el punto mas bajo, junto con la única vía de acceso.

Enlaza el segundo nivel junto con el punto más alto del terreno, el cual solo es accesible desde el interior y desde el estacionamiento vehícular

respuesta al entorno

ACCESO PRINCIPAL, ESPACIO PÚBLICO Y VISUAL

Espacios que fortalezcan el vínculo de la sociedad y las artes.

ZONA RESIDENCIAL

ESTACIONAMIENTOS

PARA BICICLETAS

Dispone de sala de proyectos, la biblioteca, el auditorio y la cafetería de fácil acceso.

Bahía Lungegårdsvann

Noruega es un país cuyos ciudadanos suelen transitar en este medio de transporte

CONECTANDO CON LA VIDA DE LA CIUDAD

intenciones proyectuales

Aproximación

Entrada del edificio conectada con la gran plaza pública Edificio acogedor y abierto en diálogo con el centro de la ciudad.

Organización

Visuales hacia el medio natural Los ambientes académicos y sociales están ubicados hacia los laterales para mirar hacia los espacios recreativos exteriores.

Misión unificadora CONCEPTO

Sala de proyectos como símbolo del proceso de unificación de seis edificios. Reflejo de la ambición de estimular la colaboración y el intercambio interdisciplinario.

FUNCIONALIDAD circulación

Ingresa a una sala de exposiciones la cual desemboca en pasillos internos.

Circulación vertical

Circulación horizontal

FUNCIONALIDAD circulación

Un pasillo interno que conecta las areas comunes y los talleres,

Circulación vertical

Circulación horizontal

FUNCIONALIDAD circulación

Circulación vertical

Circulación horizontal

FUNCIONALIDAD circulación

Anchos espacios de transición que son usados por los estudiantes como lugar de trabajo, dejan para circulación pasillos internos.

Circulación vertical

Circulación horizontal

organigrama funcional

plaza RELACIONES Directa Indirecta
Z o
Z o n a d e s
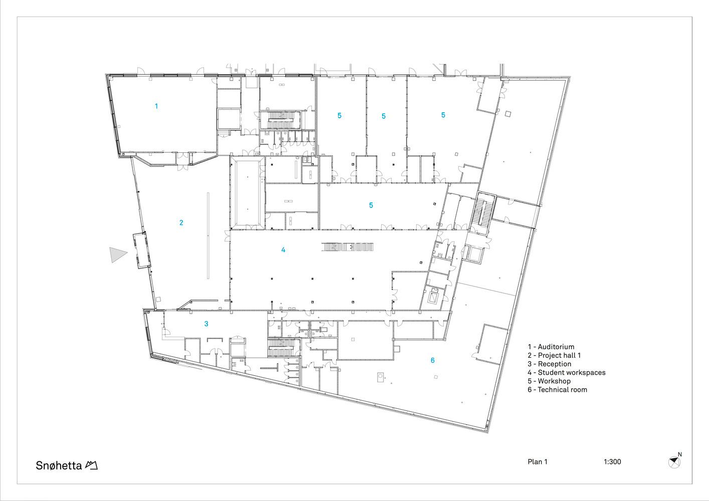
2 S a l ó n d e E X P O S I C I Ó N 1 auditorio
3 r e c e p c i ó n Z o n a c o m p l e m e n t a r i a Z a c a d é m i c a – s a l o n e s
n a a d m i n i s t r a t i v a
e r v i c i o
5 Talleres
4 Á r e a d e T r a b a j o e s t Área
servicio
7 S A L A D E P R O Y E C T O S T A L L E R G R Á F I C O T A L L E R T E X T I L 8 B I B L I O T E C A E S T D E V I D E O
6 Salón técnico
de
CAFÉ

FUNCIONALIDAD zonificación

Zona académica

Zona administrativa

Zona de servicio

Zona colectiva

FUNCIONALIDAD zonificación

Zona académica

Zona administrativa

Zona de servicio

Zona colectiva

FUNCIONALIDAD zonificación

Zona académica

Zona administrativa

Zona de servicio

Zona colectiva

FUNCIONALIDAD zonificación

Zona académica

Zona administrativa

Zona de servicio

Zona colectiva

zonficación

Zona colectiva Zona academica Zona de servicio Zona administrativa
1 2 3 4 5 5 5 5 6 Auditorio Salón de proyectos 1 Recepción Área de trabajo de estudiantes Taller Salón técnico
ambientes Auditorio Sala de exposiciones Recepción Área de trabajo de estudiantes Taller Salón técnico 1. 2. 3. 4. 5. 6.
FUNCIONALIDAD

Área de trabajo de estudiantes Sala de proyectos

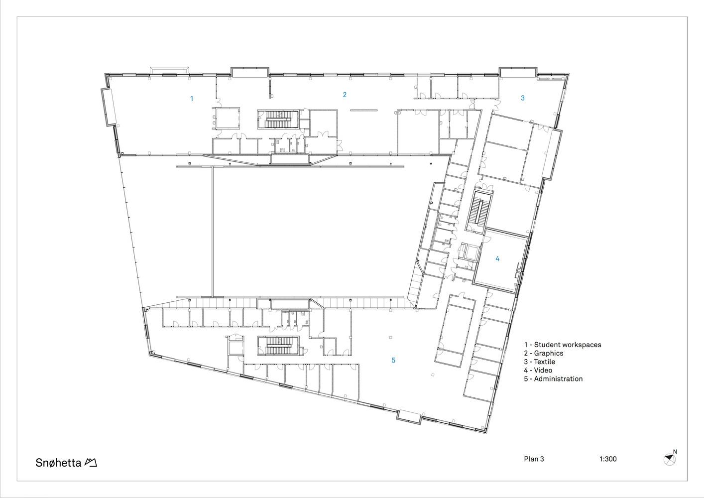
1 2 3 4 5 5 5 5 5 5 5 5 5 5 FUNCIONALIDAD ambientes Biblioteca
Cafetería Biblioteca Salónes
1.
2. 3. 4. 5.

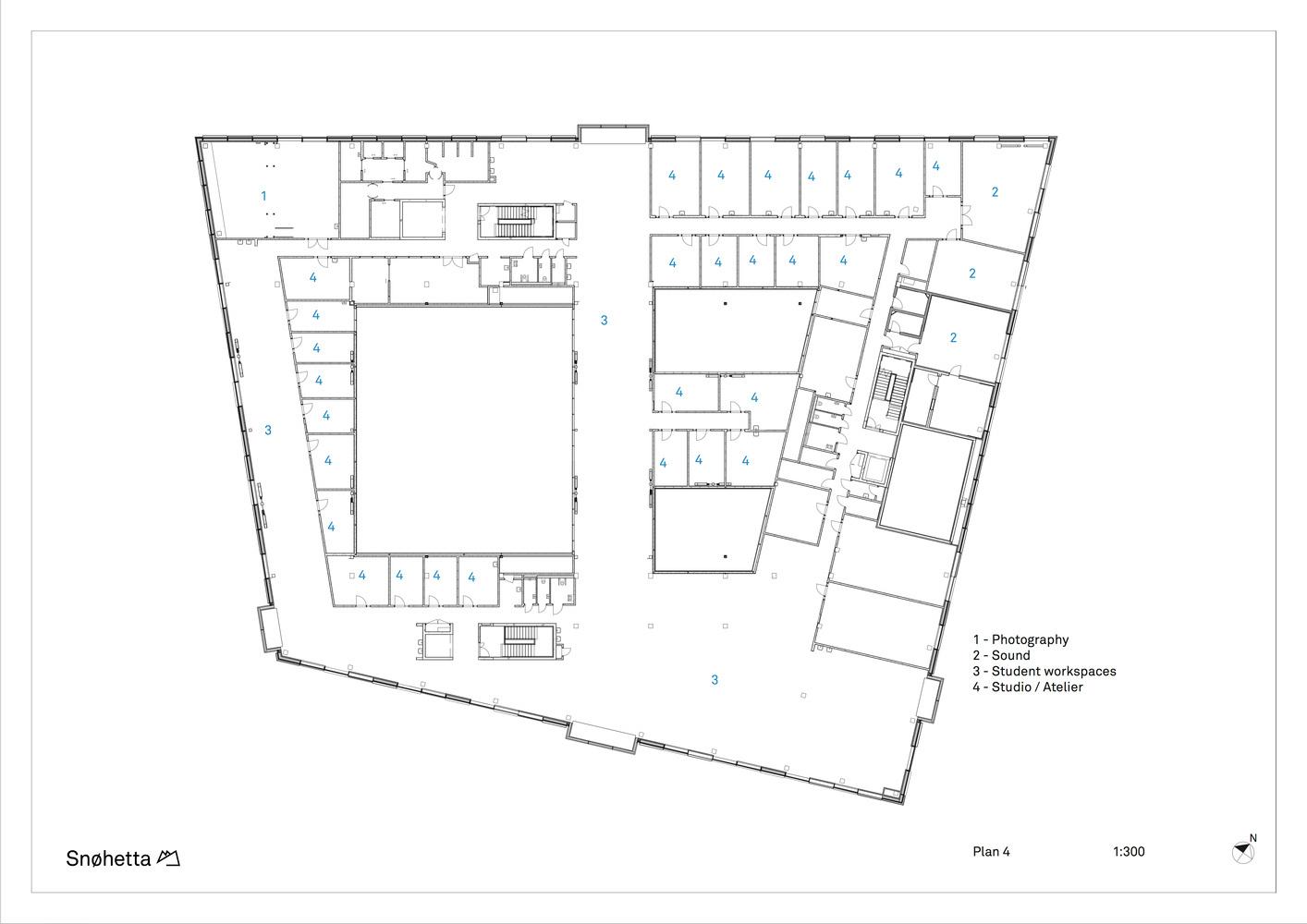
Áreas de trabajo estudiantes Taller grafico Taller textil Estudio de video Administración

Área de trabajo estudiantes

Taller gráfico

Taller textil

Estudio de video Administración

5 1 2 3 4
FUNCIONALIDAD ambientes
1. 2. 3. 4. 5.

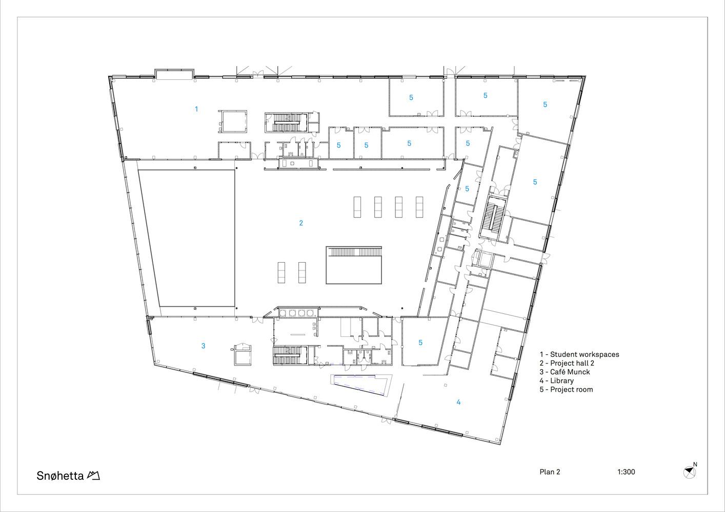
Salón de fotografía

Estudio de grabación

Area de trabajo de estudiantes

1 2 3 4 2 2 4 4 4 4 4 4 4 4 4 4 4 4 4 4 4 3 4 4 4 4 4 4 4 4 4 4 4 4 4 3
Salón de fotografía Estudio de grabación Áreas de trabajo estudiantes Atelier
FUNCIONALIDAD ambientes Areas de trabajo estudiantes
Atelier 1. 2. 3. 4.

Organización espacial exterior espacialidad

Detrás del edificio encontrará patios para trabajos al aire libre y una zona de entrega.

Un total de 9 acres están dedicados a áreas al aire libre:

Áreas verdes Plazas abiertas Estacionamiento

Gran parte del exterior es accesible al público, con la plaza Kunstallmenningen y la terraza del café como puntos de encuentro naturales.

Los patios conducen a talleres que han sido equipados con estaciones de trabajo al aire libre en el techo

Estas estaciones de trabajo en terrazas conducen al terreno circundante con su vegetación accidentada y dispersa.

Ingreso principal Ingresos secundario Ingreso servicio Ingresos secundarios

Juegan con triples alturas

Los distintos tamaños en espacios fueron creados para fomentar la creatividad.

El objetivo es liberar a los estudiantes y al personal de las limitaciones por superficies y materiales.

Organización espacial interior espacialidad

Las ventanas en forma de caja en voladizo que emergen de la fachada pueden servir como zonas sociales

Donde los estudiantes pueden reunirse para tomar un café para discutir, relajarse y disfrutar de la vista

Espacios sociales y administrativos se diseñaron para que las personas trabajen y se relajen juntas

espacial interior espacialidad
Organización
Interior ventanas en forma de caja en voladizo

Esta expresión robusta y lúdica brinda una gran flexibilidad al planificar las ventanas y las condiciones de iluminación.

Las ventanas del edificio están colocadas a difer alturas para permitir el máximo espacio de par utilizable y excelentes condiciones de luz natu

emás, el techo de cristal transmite la luz del cielo ue se funde con la luz que atraviesa la pared de cristal.

Las sombras en este espacio se borran un poco, dejando los colores de la habitación auténticos y naturales.

Iluminación espacialidad

análisis formal - volumétrico

ORGANIZACIÓN volumétricA Composición volumétricA (relación entre elementos)

El volumen se tranforma mediante la sustraccion de elementos

Compuesto por un gran bloque, que otorga distintos espacios por sus separaciones interiores

PARALELePIPEDO

sustracciones

adiciones

análisis formal - volumétrico

Caracteristicas formales

Compuesto por un solo bloque, que sufre tranformaciones en su propio cuerto atraves de pequeñas adiciones y sutracciones

Adiciones

Sustracciones

SUPERFICIE (CUBIERTA) INTERIORES

LLos elementos prefabricados de aluminio en bruto que revisten el exterior del edificio componen un rompecabezas de profundidad, anchura y longitud. 900 elementos de aluminio crudo resistentes al agua de mar de varios tamaños sobresalen de la pared a diferentes distancias, solo detenidos por grandes ventanas en forma de caja en voladizo que marcan el ritmo de la superficie de aluminio Los casetes de metal cambian según las condiciones climáticas de la costa oeste y refuerzan el efecto metálico del aluminio

La paleta de materiales tiene una clara referencia a la costa noruega, utilizando materiales bien establecidos, como pisos de bloques de madera de pino, chapa de abedul, aluminio en bruto, acero en bruto y hormigón

Los rieles y pasamanos de acero crudo se montan y sueldan en el sitio y cada transición se redondea cuidadosamente y es suave al tacto El hormigón vertido in situ se deja con las marcas meteorológicas dadas el día de la construcción. El uso de acero bruto también se refleja en los perfiles de los paneles de vidrio interiores y en las hojas de las puertas grandes y pesadas que conducen a los talleres en el nivel 1 y a la sala de proyectos en el nivel 2

MATERIALIDAD

Turn static files into dynamic content formats.

Create a flipbook
Issuu converts static files into: digital portfolios, online yearbooks, online catalogs, digital photo albums and more. Sign up and create your flipbook.