A Modern Addition to the Merry Residence

Page 1


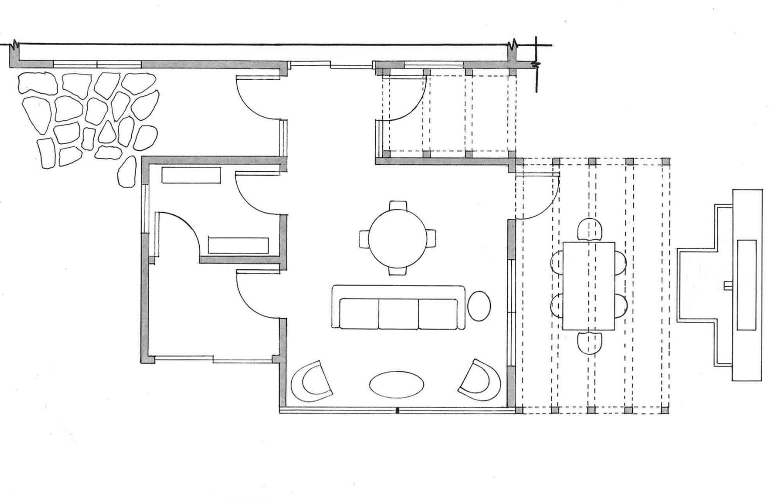
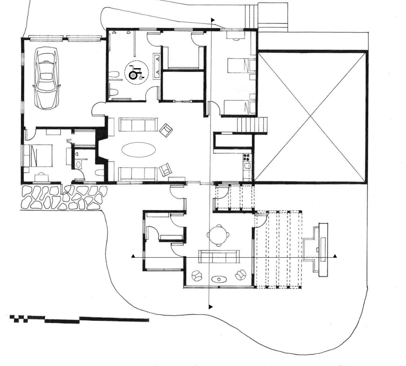
This lower-level remodel meets the changing needs of the Merry family. The original floorplan has been redesigned to provide more space in key areas, while a new new sunroom addition pays homage to the mid-century origins of the house and provides a tranquil place to eat, exercise, relax, and enjoy the outdoors.

AccommodAting differences: the merry residence

01. a bedroom and full bath with a separate external entrance have been added onto the new garage for a live-in aide

02. the enlarged primary bath includes a large walk-in shower with two shower heads, a wall-mounted double sink, and a bidet

03. a spacious walk-in closet connects the master bedroom and bath 04. a large closet provides plenty of space for medical equipment and more 05. a kitchenette with built-in shelving has been added in place of the original bathroom, with easy access to the adjacent dining areas

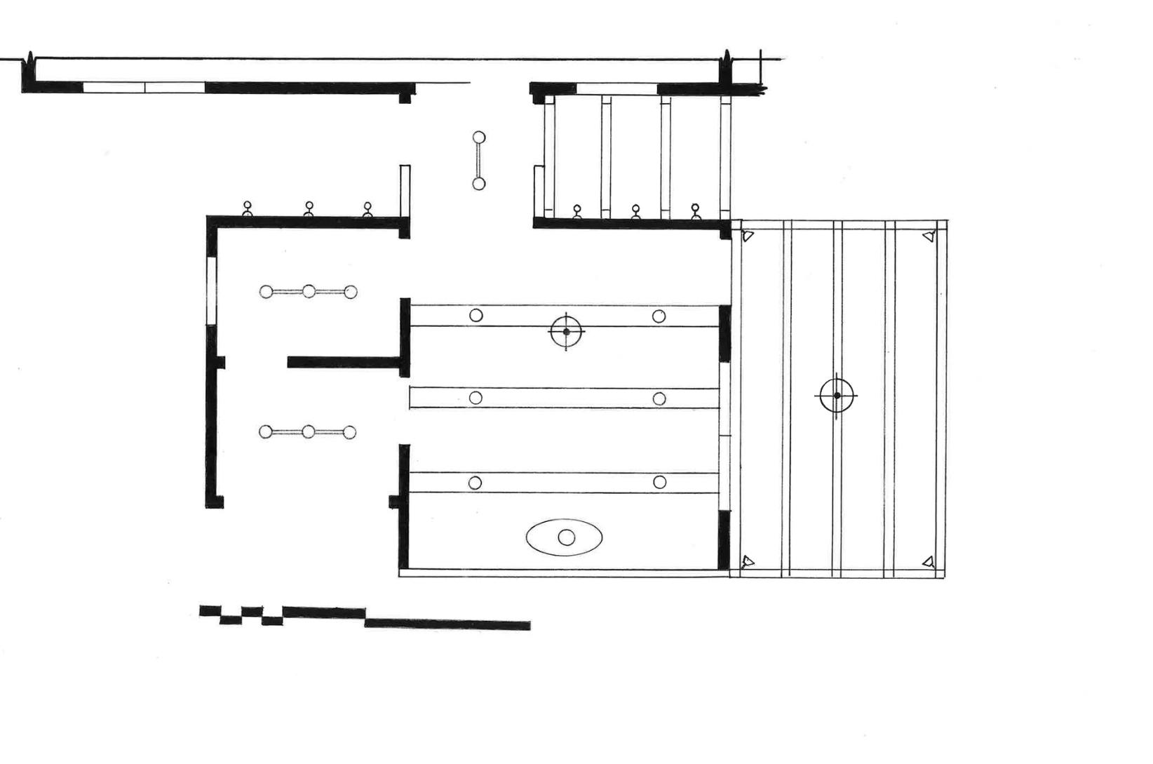
06. the new addition includes a sunroom/dining area, a small sauna, and a fitness room

07. the outdoor patio area features a modern trellis and fountain

Turn static files into dynamic content formats.

Create a flipbook
Issuu converts static files into: digital portfolios, online yearbooks, online catalogs, digital photo albums and more. Sign up and create your flipbook.
A Modern Addition to the Merry Residence by Maddie Bean - Issuu