2022-2023 Architecture Portfolio

Page 1

Portfolio

1

3-8 House of Free Feeling

9-12 Oslo House- Precedent Study

13- 16 Constructed Geometry + Digital Morphogenesis

17-22 Cubism Reflection

2
TABLE OF CONTENTS

House of Free Feeling

3

House of Free Feeling

Use: Single Family Residence

Client: Jimi Hendrix

Location: Urban Reserve, Dallas, TX

The concept of the design was based off the song “Castles Made of Sand” by Jimi Hendrix. The circulation, space, and hiearchy were all developed by analyzing the dynamic, texture, and rhythm of the music.

Instructor: Megan Martinez

4

House of Free Feeling

5
6
GRID
DYNAMIC TEXTURE RHYTHM/ SPACE RHYTHM CIRCULATION

Rendered images

7

Final and study models

8
1/8”=1’0” 1/16”=1’0”

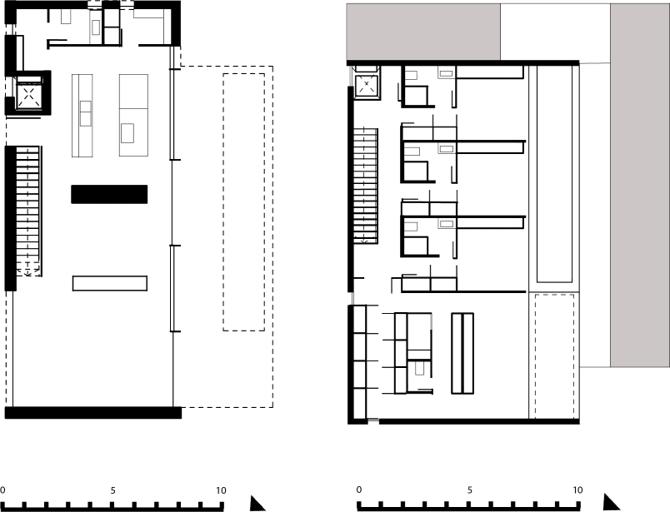
Oslo House- Precedent Study

9

The Oslo House, located in Alicante, Spain, is a 2 story

single family home designed by Ramon Esteve.

Structure

Instructor: Megan Martinez

First Floor

Second Floor

10
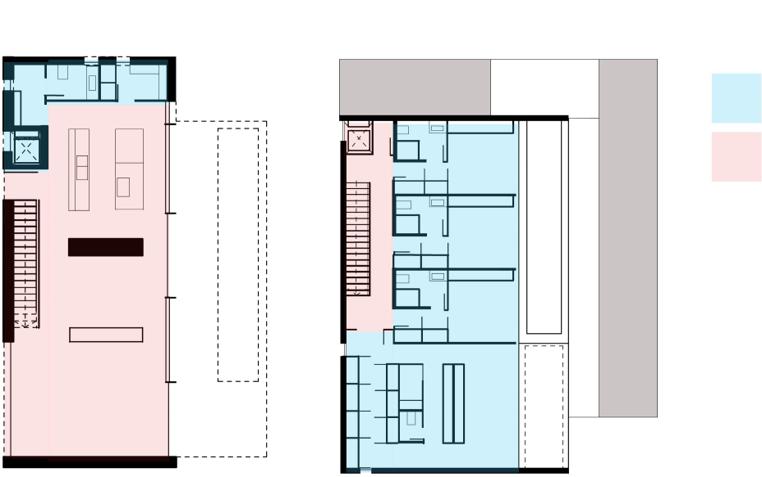
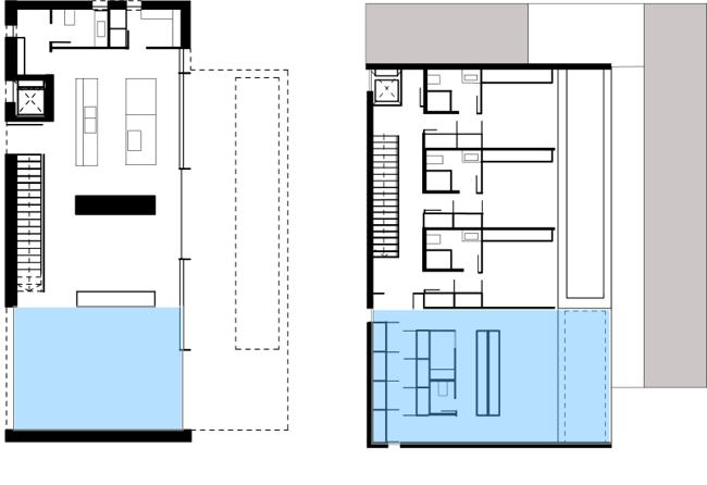
11
public private
Public Hiearchy
Front Elevation Rear Elevation
Private vs
12 Sun diagram
Parti
Section

Constructed Geometry + Digital Morphogenesis

13

The goal of this project was to create an architectural structure made out of 99 pieces of a chosen geometrical shape. The first step was to understand geometry, perspective, and line weights by diagraming 27 shapes.

14

A digital model of the structure was made through Rhino, then a layout of the shape (octahedron) was designed through AutoCAD. The 3D model is made from white cardstock.

15
16

Cubism Reflection

Objective: To create a art gallery and separate studio with focus on the exhibition of the selected cubist painting.

Requirements: Courtyard, sculpture garden, sculpture wall, promenade, pavilion and plaza. The required site elements integrate the gallery and studio to the site.

Instructor: Donna Firouzbakht

18
1/8”=1’0” 1/8”=1’0”
Bottles and Knife- Juan Gris

Collage

19
20
Grid
Figure Ground Study
21

Section model

22
1/8”=1’0”
1/4”=1’0”

Turn static files into dynamic content formats.

Create a flipbook
Issuu converts static files into: digital portfolios, online yearbooks, online catalogs, digital photo albums and more. Sign up and create your flipbook.