2022
COTTAGE GROUP
©
COPYRIGHT
WELCOME TO COTTAGE GROUP
For Matt & Liza Dillard, building smart-sized luxury homes isn’t just about creating a stylish yet comforting place for you to live. It’s about building a life.
Working in the family business is definitely a labor of love, and one they hope to pass along to the next generation. Today, this dynamic young duo continues to carry the legacy of the Dillard-Jones brand and all it stands for… old-world craftsmanship, uncompromising quality, and a timeless style that is as uniquely Southern as a palmetto in the moonlight.
Let them help you bring your dream home to life.
OUR FEATURED ARCHITECTS
We are fortunate to work with some incredibly brilliant architects here at Cottage Group. Each architect included in our portfolio is profiled below.
Founded in 1989, the Studio of Christopher Phelps is a residential design firm dedicated to the simple goal of producing a residential setting that is suited precisely to the demands of their clientele. Christopher Phelps has designed thousands of houses throughout the Carolinas over the years, and he has spent a significant amount of his professional life listening to and producing designs for his clients that reflect their wants and goals with attention to detail and finish.
MHK Architecture’s mission is to help successful and visionary people design their dream home in a way that is more pleasant than they ever imagined. They believe that architecture is all about the people that live in it. So they retain the human relationship at the center of everything, both in the end result and throughout the process.
Four Square Studios and West 84 Architecture work as leading residential design businesses in the Carolinas to assist individuals and families in creating distinctive homes that are timeless and adapted to their clientele’s specific needs.
2022
COTTAGE GROUP
©
COPYRIGHT
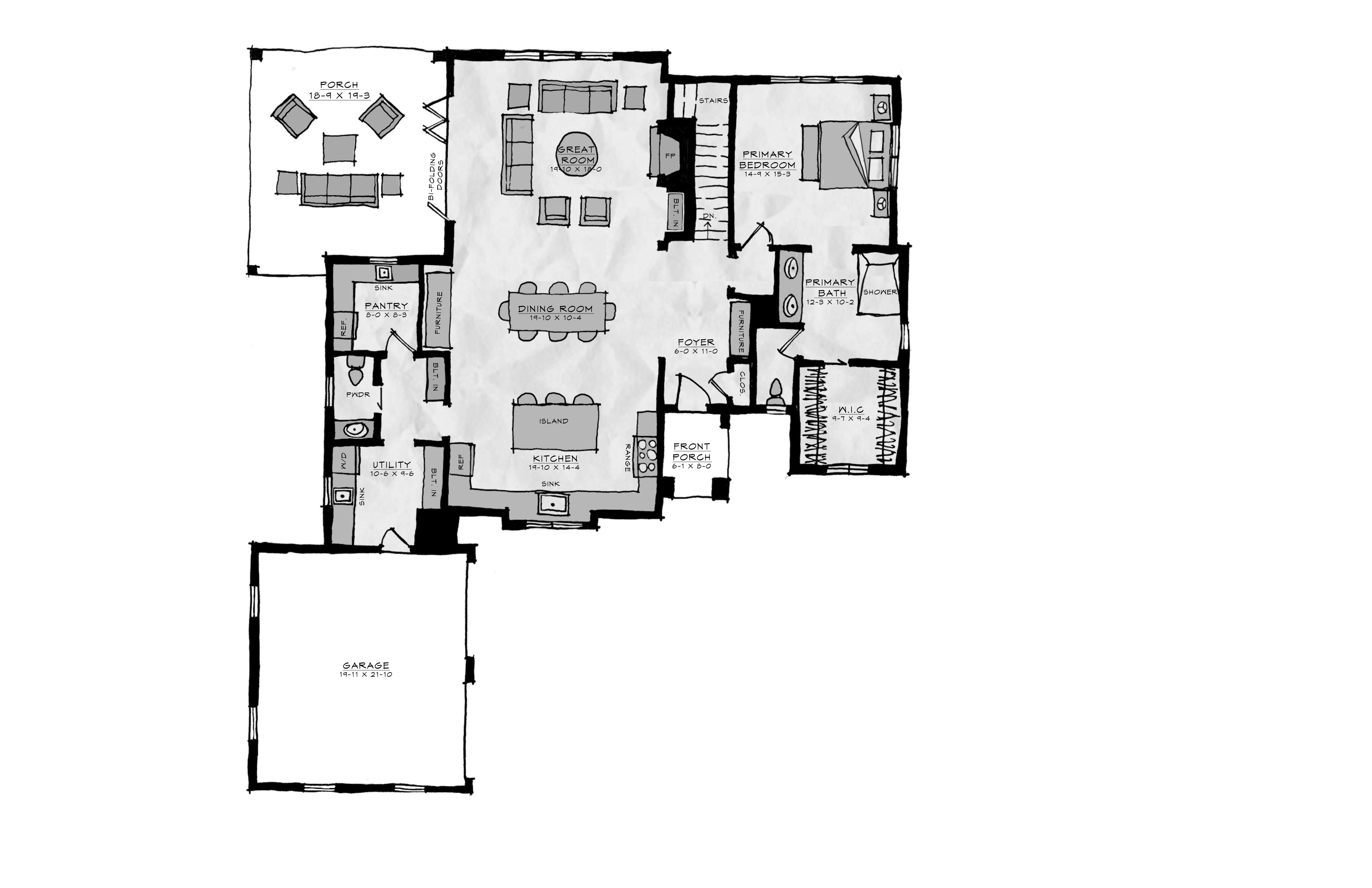
THE OAKLEY
BY CHRISTOPHER PHELPS
© 2022 COPYRIGHT COTTAGE GROUP
2,409 SQ FT 3 BEDROOMS + STUDY 3 FULL BATHROOMS 1 HALF BATHROOM 2 CAR GARAGE MAIN LEVEL © 2022 COPYRIGHT COTTAGE GROUP
THE MESSINA
BY CHRISTOPHER PHELPS
© 2022 COPYRIGHT COTTAGE GROUP
THE MESSINA
BY CHRISTOPHER PHELPS
© 2022 COPYRIGHT COTTAGE GROUP
MAIN LEVEL
LOWER LEVEL © 2022 COPYRIGHT COTTAGE GROUP 2,883 SQ FT 3 BEDROOMS + STUDY 3 FULL BATHROOMS 1 HALF BATHROOM 2 CAR GARAGE
SUMMIT POINT
BY CHRISTOPHER PHELPS
© 2022 COPYRIGHT COTTAGE GROUP
SUMMIT POINT
BY CHRISTOPHER PHELPS
© 2022 COPYRIGHT COTTAGE GROUP
MAIN LEVEL
LOWER LEVEL © 2022 COPYRIGHT COTTAGE GROUP 2,960 SQ FT 3 BEDROOMS + OFFICE 3 FULL BATHROOMS 1 HALF BATHROOM 2 CAR GARAGE
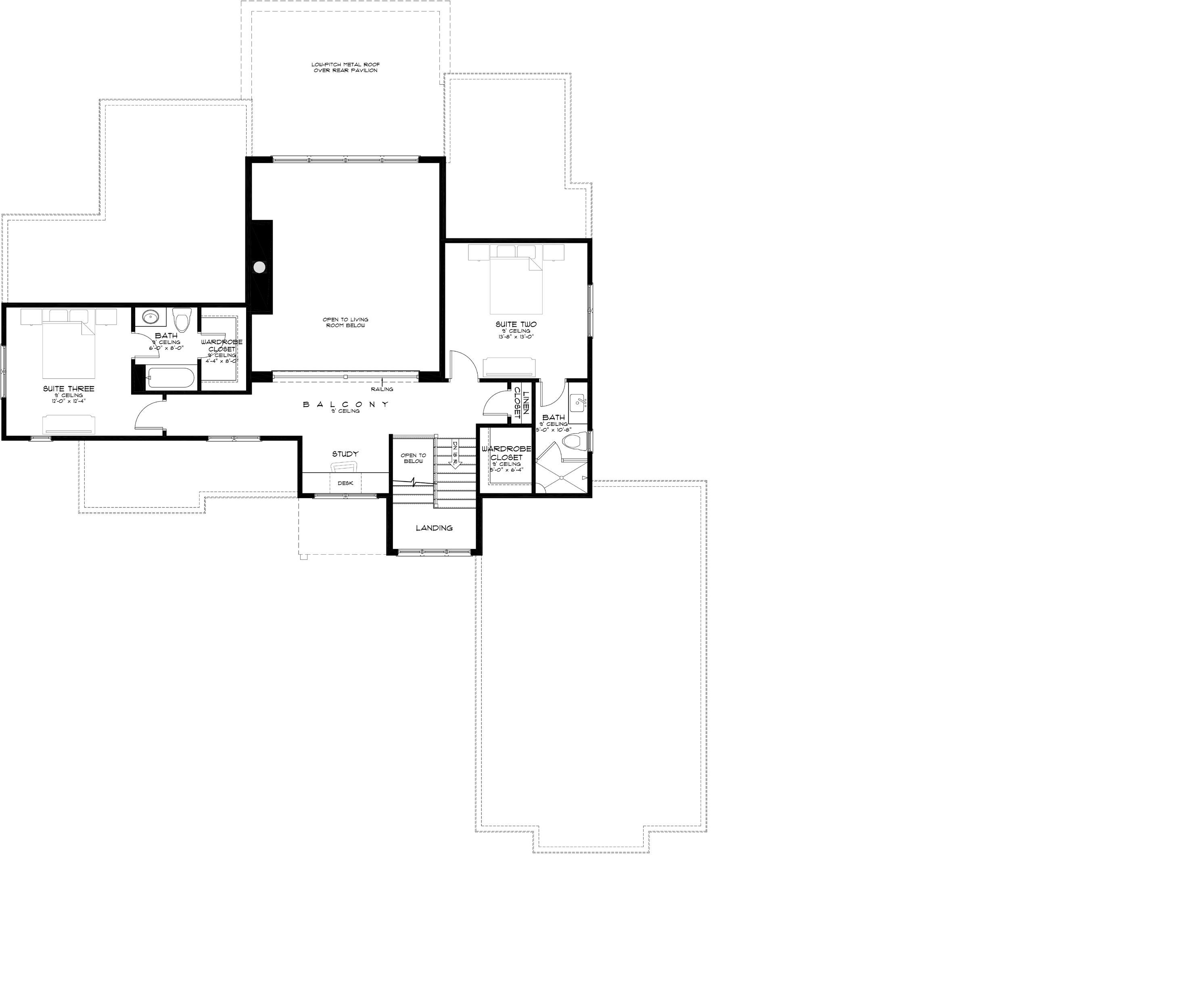
THE HIGHVIEW
BY CHRISTOPHER PHELPS
© 2022 COPYRIGHT COTTAGE GROUP
THE HIGHVIEW
BY CHRISTOPHER PHELPS
MAIN LEVEL
© 2022 COPYRIGHT COTTAGE GROUP
LOWER LEVEL © 2022 COPYRIGHT COTTAGE GROUP 3,116 SQ FT 3 BEDROOMS 3 FULL BATHROOMS 1 HALF BATHROOM 2 CAR GARAGE FUTURE OFFICE 231 SQ FT
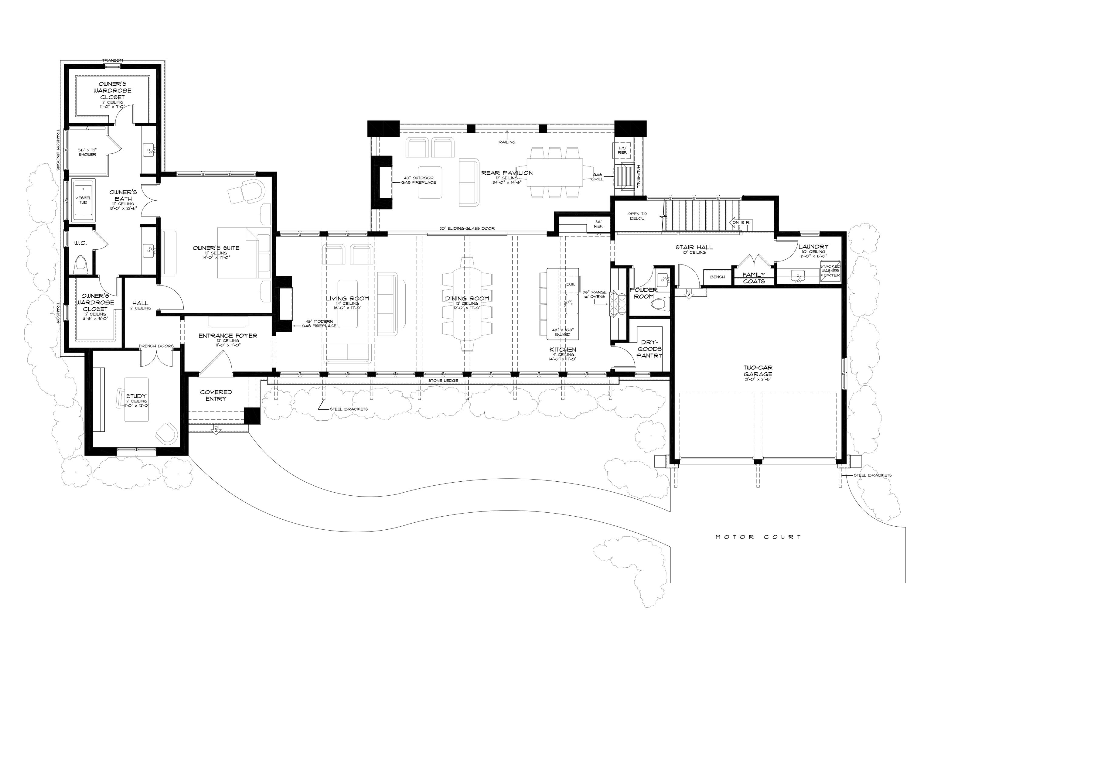
THE FARRINGTON
BY CHRISTOPHER PHELPS
© 2022 COPYRIGHT COTTAGE GROUP
THE FARRINGTON
BY CHRISTOPHER PHELPS
© 2022 COPYRIGHT COTTAGE GROUP
MAIN LEVEL
LOWER LEVEL © 2022 COPYRIGHT COTTAGE GROUP 3,468 SQ FT 3 BEDROOMS + STUDY 3 FULL BATHROOMS 1 HALF BATHROOM 2 CAR GARAGE
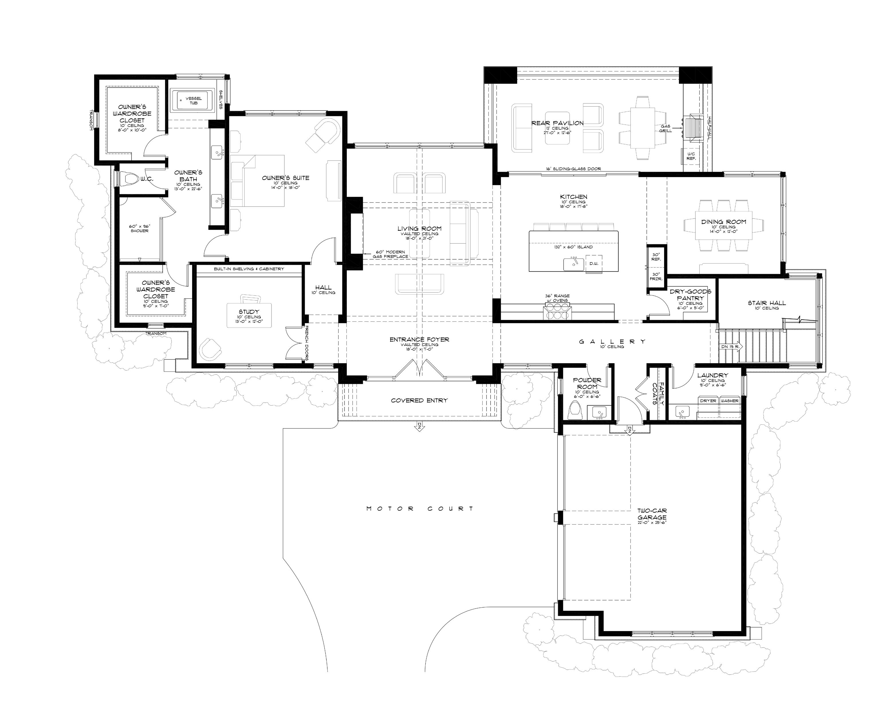
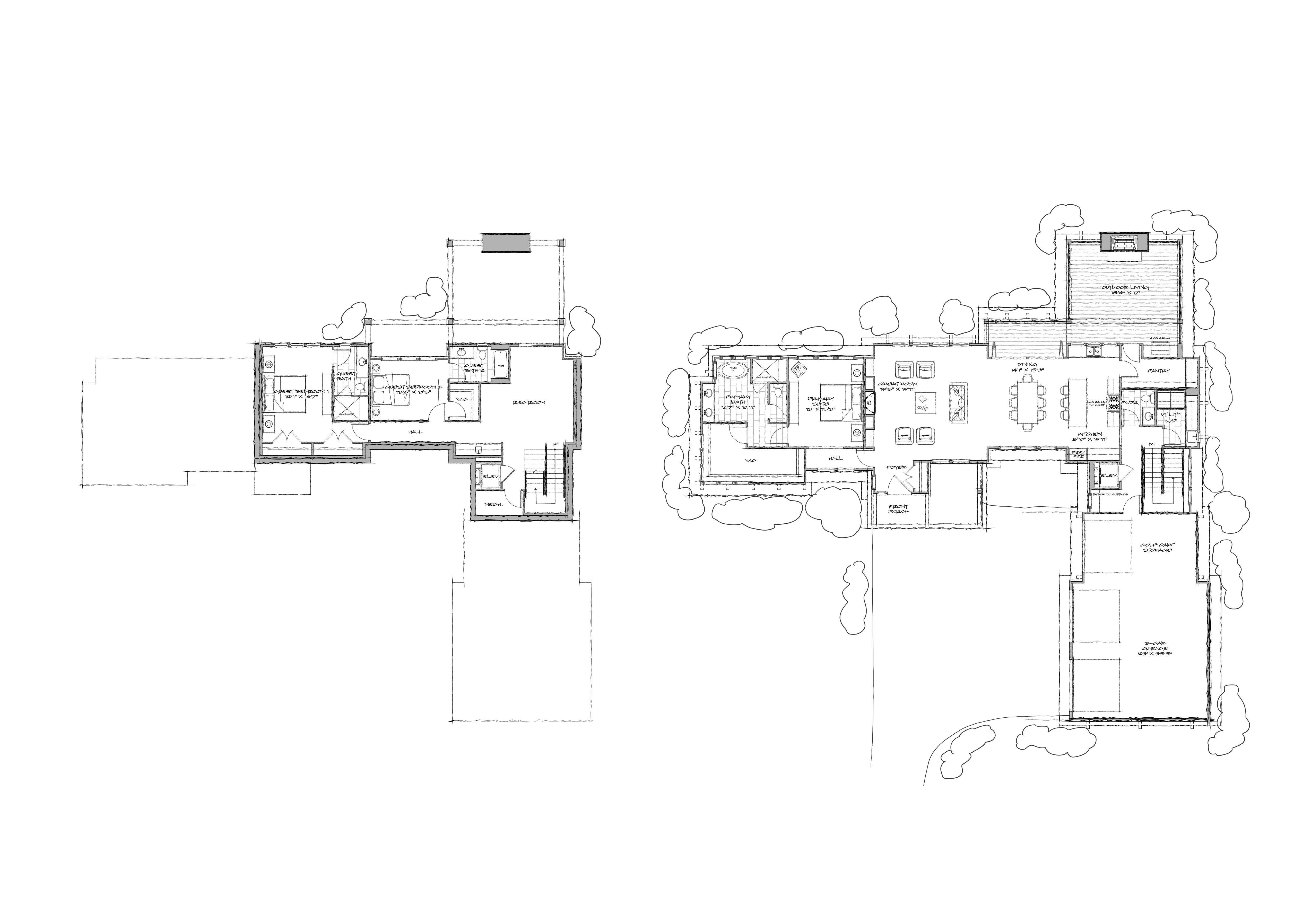
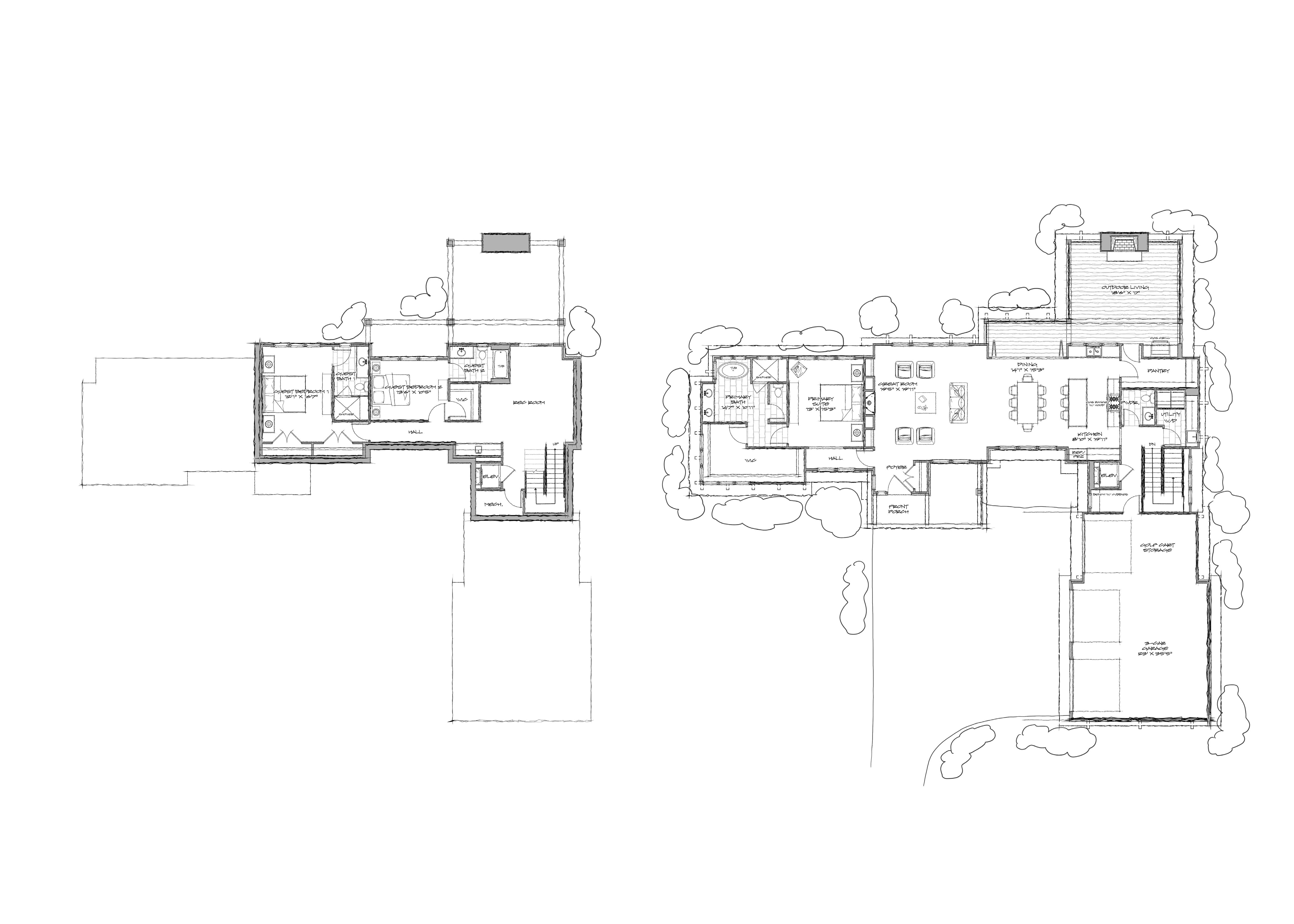
THE COMPTON
BY CHRISTOPHER PHELPS
© 2022 COPYRIGHT COTTAGE GROUP
THE COMPTON
BY CHRISTOPHER PHELPS
© 2022 COPYRIGHT COTTAGE GROUP
MAIN LEVEL
LOWER LEVEL © 2022 COPYRIGHT COTTAGE GROUP 3,556 SQ FT 3 BEDROOMS + STUDY 3 FULL BATHROOMS 1 HALF BATHROOM 2 CAR GARAGE
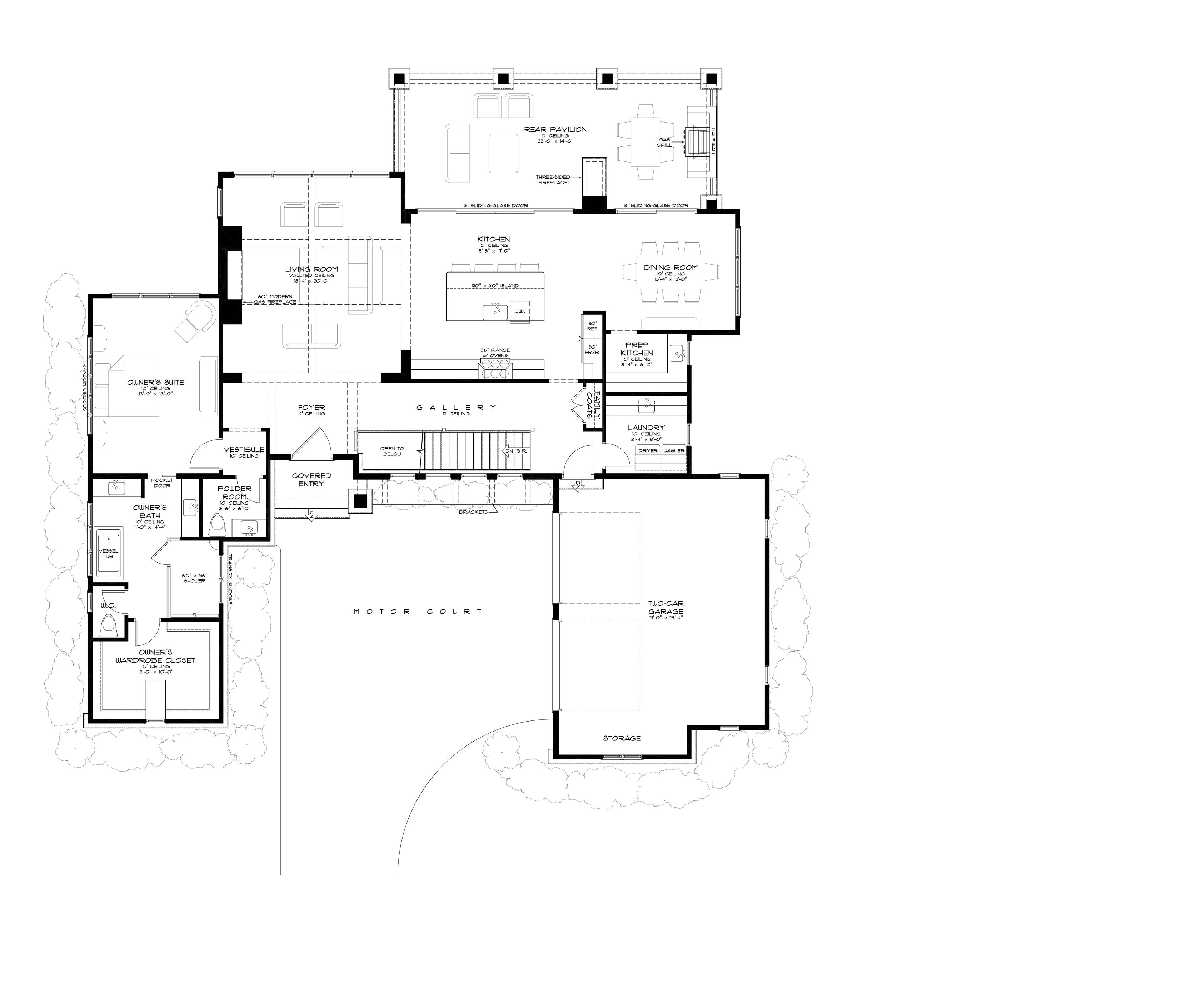
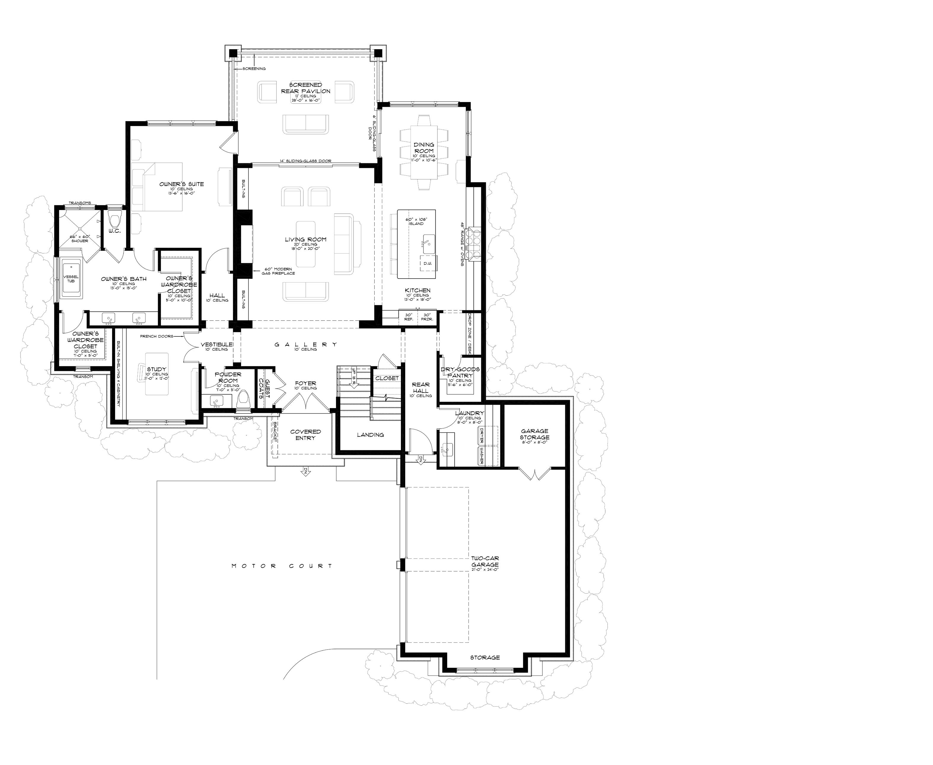
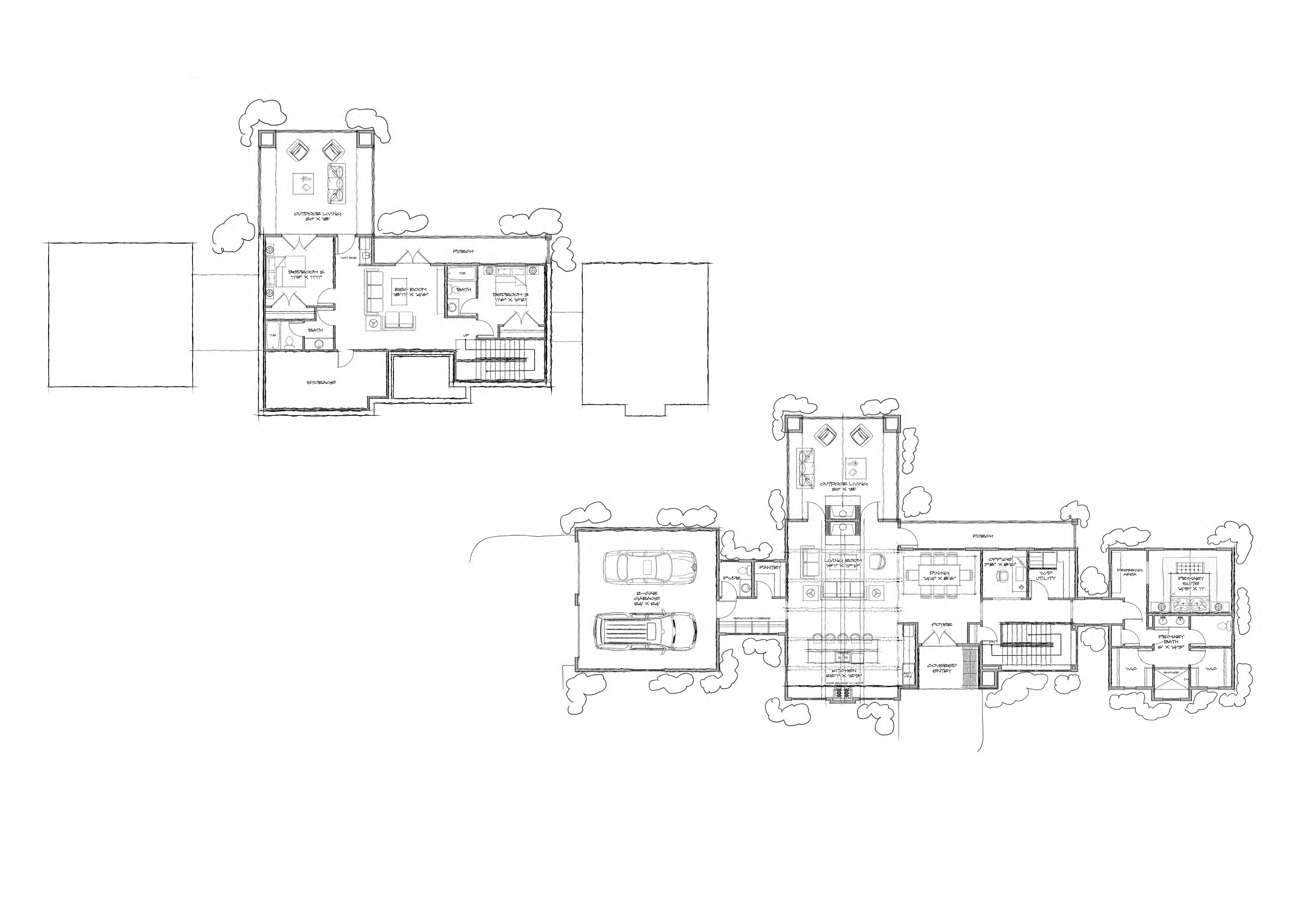
THE MONTEREY
BY CHRISTOPHER PHELPS
© 2022 COPYRIGHT COTTAGE GROUP
THE MONTEREY
BY CHRISTOPHER PHELPS
© 2022 COPYRIGHT COTTAGE GROUP MAIN LEVEL
LOWER LEVEL © 2022 COPYRIGHT COTTAGE GROUP 3,667 SQ FT 3 BEDROOMS 4 FULL BATHROOMS 1 HALF BATHROOM 2 CAR GARAGE OPTIONAL: 4TH BEDROOM & FITNESS 807 SQ FT
THE BERKLEY
BY MHK ARCHITECTURE
© 2022 COPYRIGHT COTTAGE GROUP
THE BERKLEY
BY MHK ARCHITECTURE
© 2022 COPYRIGHT COTTAGE GROUP MAIN LEVEL
UPPER LEVEL © 2022 COPYRIGHT COTTAGE GROUP 2,689 SQ FT 4 BEDROOMS 3 FULL BATHROOMS 1 HALF BATHROOM 2 CAR GARAGE
THE WINDSOR
BY MHK ARCHITECTURE
© 2022 COPYRIGHT COTTAGE GROUP
THE WINDSOR
BY MHK ARCHITECTURE
© 2022 COPYRIGHT COTTAGE GROUP
MAIN LEVEL
LOWER LEVEL © 2022 COPYRIGHT COTTAGE GROUP 2,826 SQ FT 3 BEDROOMS + OFFICE 3 FULL BATHROOMS 1 HALF BATHROOM 2 CAR GARAGE
THE VALENCIA
BY MHK ARCHITECTURE
© 2022 COPYRIGHT COTTAGE GROUP
MAIN LEVEL
THE VALENCIA
BY MHK ARCHITECTURE
© 2022 COPYRIGHT COTTAGE GROUP
LOWER LEVEL © 2022 COPYRIGHT COTTAGE GROUP 2,956 SQ FT 3 BEDROOMS 3 FULL BATHROOMS 1 HALF BATHROOM 3 CAR GARAGE
THE ABERDEEN
BY MHK ARCHITECTURE
© 2022 COPYRIGHT COTTAGE GROUP
THE ABERDEEN
BY MHK ARCHITECTURE
© 2022 COPYRIGHT COTTAGE GROUP
MAIN LEVEL
LOWER LEVEL © 2022 COPYRIGHT COTTAGE GROUP 2,754 SQ FT 3 BEDROOMS 2 FULL BATHROOMS 1 HALF BATHROOM 2 CAR GARAGE
THE CATALINA
BY MHK ARCHITECTURE
© 2022 COPYRIGHT COTTAGE GROUP
THE CATALINA
BY MHK ARCHITECTURE
© 2022 COPYRIGHT COTTAGE GROUP MAIN LEVEL
3,322 SQ FT 4 BEDROOMS 3 FULL BATHROOMS 1 HALF BATHROOM 3 CAR GARAGE
THE PRIMROSE
BY MHK ARCHITECTURE
© 2022 COPYRIGHT COTTAGE GROUP
THE PRIMROSE
BY MHK ARCHITECTURE
© 2022 COPYRIGHT COTTAGE GROUP
MAIN LEVEL
LOWER LEVEL © 2022 COPYRIGHT COTTAGE GROUP 3,644 SQ FT 4 BEDROOMS + OFFICE 3 FULL BATHROOMS 2 HALF BATHROOMS 3 CAR GARAGE
AND
THE CAMDEN
BY WEST84 ARCHITECTURE AND FOUR SQUARE STUDIOS
© 2022 COPYRIGHT COTTAGE GROUP
THE CAMDEN
BY WEST84 ARCHITECTURE AND FOUR SQUARE STUDIOS
© 2022 COPYRIGHT COTTAGE GROUP MAIN LEVEL
LOWER LEVEL © 2022 COPYRIGHT COTTAGE GROUP 3,170 SQ FT 3 BEDROOMS + OFFICE 3 FULL BATHROOMS 1 HALF BATHROOM 2 CAR GARAGE
THE PIEDMONT
BY WEST84 ARCHITECTURE AND FOUR SQUARE STUDIOS
© 2022 COPYRIGHT COTTAGE GROUP
THE PIEDMONT
BY WEST84 ARCHITECTURE AND FOUR SQUARE STUDIOS
© 2022 COPYRIGHT COTTAGE GROUP MAIN LEVEL
LOWER LEVEL © 2022 COPYRIGHT COTTAGE GROUP 3,160 SQ FT 3 BEDROOMS 3 FULL BATHROOMS 2 HALF BATHROOMS 2 CAR GARAGE
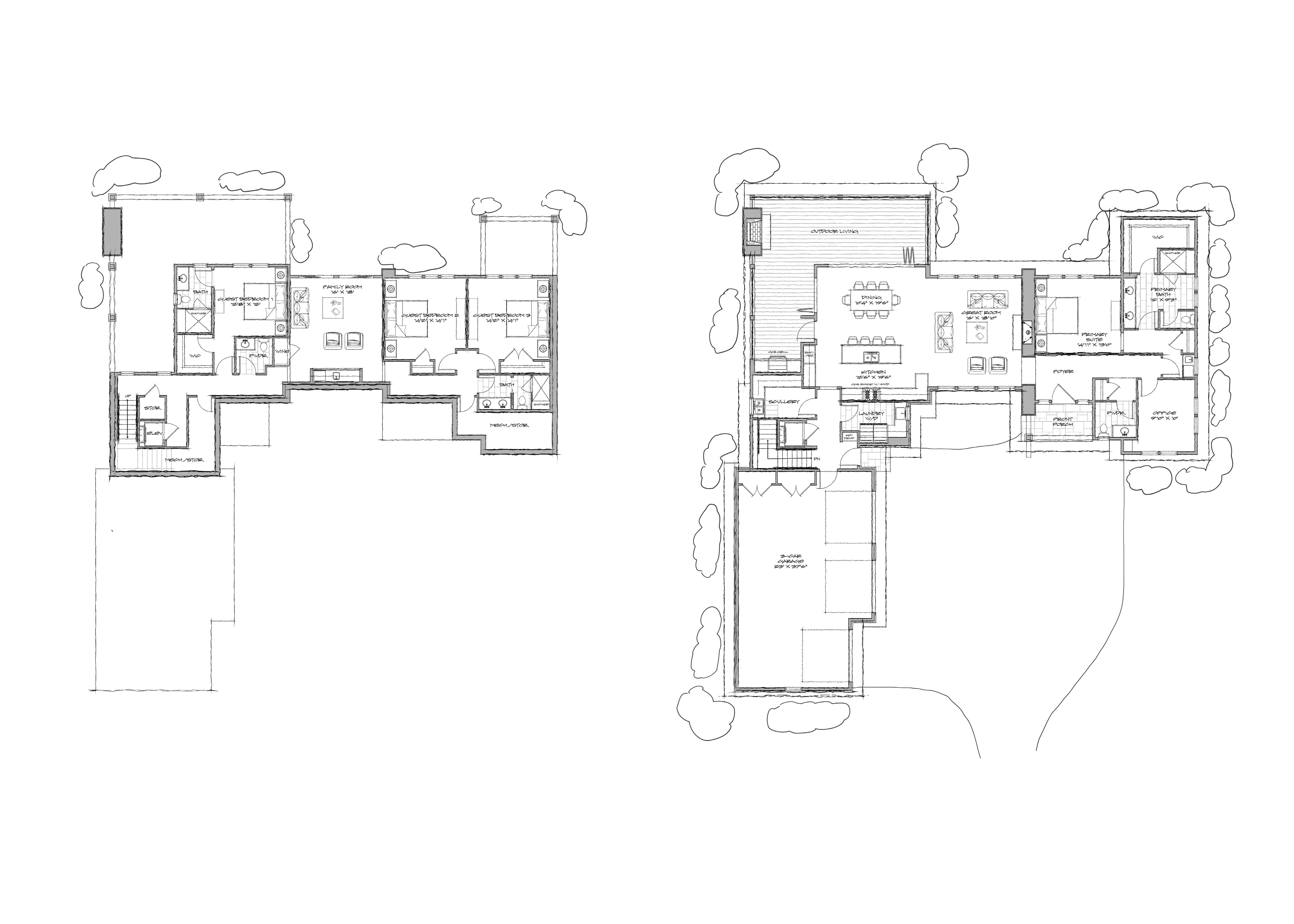
THE BRADFORD
BY WEST84 ARCHITECTURE AND FOUR SQUARE STUDIOS
© 2022 COPYRIGHT COTTAGE GROUP
THE BRADFORD
BY WEST84 ARCHITECTURE AND FOUR SQUARE STUDIOS
© 2022 COPYRIGHT COTTAGE GROUP
© 2022 COPYRIGHT COTTAGE GROUP LOWER LEVEL 4,299 SQ FT 3 BEDROOMS + OFFICE 3 FULL BATHROOMS 1 HALF BATHROOM 3 CAR GARAGE