UK-Lugarde Select Modern brochure 2025

Page 1


At Lugarde, we bring the great indoors outdoors. Our garden rooms are built to generate joy. As a family company, we take customer satisfaction personally. We aim high, converting aspiration into reality by blending function and emotion. With 100 years of expertise ingrained in everything we do, we know that great design is so much more than wood and structure; it’s about how a space makes you feel.

That’s why we craft with precision, sustainability and a passion for perfection. We believe in inner peace through beautifully designed outdoor spaces. We believe in quality without compromise. We believe in Simply the Best Life.

Outdoor rooms built to last

Key features Your choice

5 years warranty

1st class kiln-dried spruce

Treatment

Untreated

Double glazing in doors and windows

Possible dimensions

18 mm T&G roofboards

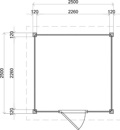
Width and depth in 50 cm increments: from 200 cm up to 800 cm including canopy. All dimensions quoted do not include the roof overhang. 23 cm is added per side.

28

All hardware included

Place the canopy on either side to suit your garden layout perfectly.

Options

12x12 cm laminated quality posts

EPDM package

Resistant to ageing and weathering. Roof outlets and special quality-tested EPDM glue.

Foundation beams

Choose from wood or composite. Pre-cut to ensure a perfect fit for your cabin.

Internal floor

18 mm tongue & groove spruce boards. Including skirting for a neat finish.

Down pipe set

Choose from standard or zinc. A complete set with all necessary mounting materials.

Brown wood oil Black wood oil

High-quality windows and doors are always included in the price.

Double glazing

All windows and doors come with double glazing as standard, providing better insulation, energy efficiency, and soundproofing to keep your space comfortable all year round.

Cylinder locks

High-quality locks on all doors, including three keys, offering reliable security from the start.

Top-hung windows

Open effortlessly with a sleek black handle to your preferred angle, perfect for letting in fresh air without compromising on privacy or rain protection.

Weather strips

All windows and doors are fitted with weather strips to block drafts and moisture. They come with a removable foil for a clean finish after painting.

Door handles

Spring-loaded chrome handles for a smooth, premium feel, combining style with everyday convenience.

Sealed windows

Each window is professionally sealed by us, saving you time and ensuring a perfect fit straight away.

Hinge covers

Neat covers included for all hinges, giving a tidy, polished look to every door and window.

Aluminium wear strip

Doors include a protective aluminium strip with pre-drilled holes to guard your door sill from everyday wear.

Adjustable split hinges

Fully adjustable in all directions, making it easy to fine-tune door alignment for smooth use over time.

Fully treated with wood oil

Choosing a summerhouse treated with wood oil? Then you can count on a complete treatment, inside and out. This includes the interior and exterior sides of the walls, all corner joints, the roof, and even the areas you won’t be able to reach after installation. Your garden building is protected down to the smallest detail.

This thorough treatment ensures the wood is well-saturated and immediately ready for use.

A carefree start, with a beautiful natural look and long-lasting protection.

Sometimes, you just know what you need: a garden building that fits seamlessly into your outdoor space. The Lugarde Select Modern collection gives your garden a strong, modern look. These summerhouses are perfect for storing tools and furniture or as a hobby space. With a wide range of standard sizes, with or without a canopy, you can easily combine storage and relaxing.

The sturdy corner posts create a robust feel. Thanks to their timeless design, these garden rooms fit perfectly into any modern outdoor setting.

Easy to choose. Easy to enjoy. Built to last.

For over 40 years, Lugarde has been known for crafting high-quality wooden summerhouses, log cabins, verandas and more, always perfectly tailored to your needs.

With Lugarde Select, you’ll discover a carefully curated collection of over 300 standard models, all designed with simplicity, quality and style in mind, and offered at a highly competitive price. While you are now looking at the robust Modern collection, Lugarde Select also includes the traditional Log Cabin collection, the innovative Prima system, and elegant gazebos, each with its own unique features, finishes and charm.

Whether you need extra storage space, a hobby room or a cosy outdoor retreat, Lugarde Select offers the ideal solution. Thanks to the smart modular system, all models are quick and easy to assemble

Every Lugarde Select product is crafted from sustainably sourced and carefully selected top-grade, kiln-dried wood. Shrinkage, expansion and warping is minimised thanks to laminated components. Combined with premium windows and doors with double glazing, you can count on long-lasting durability and beauty.

Discover Lugarde Select and contact your official Lugarde dealer to find the perfect summerhouse for your garden.

Lugarde Select Modern options and pricing

Design your ideal garden building – tailored to your every wish

At Lugarde, we believe your garden building only truly feels like yours when it matches your style and needs. That’s why we love to think along with you – together with our selected dealers – to design your perfect outdoor space. With Lugarde Select, upgrading your garden building is easy. Choose an extra side wall, a practical rainwater downpipe set, or a different layout for windows and doors. Want to make adjustments? Your dealer is happy to help you make the right choices. For a beautiful and long-lasting result, we always recommend adding the EPDM roof package, foundation beams and an interior floor. That way, you’ll enjoy your garden building even longer – every single day.

Version 2025.2

All listed prices include VAT, customs charges and delivery charges (mainland only). These are recommended retail prices; please contact your local dealer for the most up-to-date pricing information. Prices apply from July 2025 until a new version of this brochure is released. Prices are subject to change and may contain printing or typographical errors. The measurements shown in the floor plan are always leading. Minor differences from the dimensions mentioned in the text may occur.

WP50_HI_X_NC_N_XXX02 W50H double door 151x193,5 cm brown oiled - replacement of single door W61H

WP50_HI_X_NC_N_XXX03 W50H double door 151x193,5 cm black oiled - replacement of single door W61H

WP50_HI_X_NC_N_XXX01 W50H double door 151x193,5 cm untreated - replacement of double door W60H

WP50_HI_X_NC_N_XXX02 W50H double door 151x193,5 cm brown oil - replacement of double door W60H

WP50_HI_X_NC_N_XXX03 W50H double door 151x193,5 cm black oil - replacement of double door W60H

WI01_HI_L_XX_X_XXX01 ID01H inwards turning wooden door (left hinged) untreated*

WI01_HI_L_XX_X_XXX02 ID01H inwards turning wooden door (left hinged) brown oil*

WI01_HI_L_XX_X_XXX03 ID01H inwards turning wooden door (left hinged) black oil*

WI01_HI_R_XX_X_XXX01 ID01H inwards turning wooden door (right hinged) untreated*

WI01_HI_R_XX_X_XXX02 ID01H inwards turning wooden door (right hinged) brown oil*

WI01_HI_R_XX_X_XXX03 ID01H inwards turning wooden door (right hinged) black oil*

*Self-cutting: you choose the ideal position for your window and/or door.

£277

£332

LSM28-SW-300UN

LSM28-SW-300BR

LSM28-SW-300BL

LSM28-SW-388UN

LSM28-SW-388BL

LSM28-FW-SIDE-250 Foundation

LSM28-FP-SIDE-250

LSM28-FW-SIDE-300 Foundation

LSM28-FP-SIDE-300

LSM28-FW-SIDE-388 Foundation beam wood pressure treated for a 388 cm side wall

LSM28-FP-SIDE-388 Foundation beam composite for a 388 cm side wall

Discover more Lugarde Select

Log Cabin

The Log Cabin collection brings a timeless classic to your garden. The distinctive windmill corner joints provide strength and an authentic look. These log cabins are available in a variety of standard sizes, roof shapes and wall thicknesses of 28 or 44 mm. Models with a canopy are also possible. The Log Cabin collection is a reliable choice for those who value craftsmanship and tradition.

Prima

The Prima collection combines refined design with smart technology. Thanks to the patented 3-in-1 corner connection system, there are no visible screws or connectors, resulting in a sleek and seamless appearance. Available in both rectangular and octagonal models with flat, gable or pyramid roofs. Perfect for anyone looking for a unique summerhouse that can serve as storage space, a hobby room or a home office.

Gazebo

The gazebo collection offers stylish, yearround comfort. With enclosed sides, you are protected from wind and rain. Available in various standard sizes, so there is always a model to suit your garden. The sleek design and high-quality finish give your outdoor space a luxurious feel.

Turn static files into dynamic content formats.

Create a flipbook
Issuu converts static files into: digital portfolios, online yearbooks, online catalogs, digital photo albums and more. Sign up and create your flipbook.
UK-Lugarde Select Modern brochure 2025 by Lugarde - Issuu