ATALAYA_ensayos para un nuevo hábitat urbano_PFC_Unversidad de Sevilla

Page 1

Forjado bidireccional de hormigón armado HA-30-F-15-XC4 canto 45cm y casetones perdidos de EPS Formación de pendientes (1,5%) con hormigón aligerado con áridos de arcilla expandida Geotextil separador de fibras de poliéster 100% gramaje 150 g/m² Lámina flexible impermeabilizante de poliolefinas espesor 2mm Geotextil separador de fibras de poliéster 100% gramaje 150 g/m² Aislante térmico XPS 500 kPa espesor 100mm Geotextil separador antipunzonamientono a base de fibra corta de poliéster con densidad de 300 g/m² y resistencia a la perforación de 2250N

Malla Geotextil antihierba de polipropileno, no tejida, 125 g/m²

Capa de autoprotección de grava canto rodado lavado 15/35 mm, espesor mínimo 8 cm

Pasillos técnicos: baldosa bicapa 50x50cm de hormigón poroso con base de poliestireno extruido mecanizado de espesor 4cm y densidad 35kg/m3. Resistencia a compresión de la loseta de 300kPa Junta perimetral de dilatación 5cm poliestireno expandido densidad 20kg/m3 Refuerzo lámina flexible impermeabilizante de poliolefinas 2mm. Asciende por el paramento vertical 20cm sobre la cota de terminación de la capa de autoprotección de grava previa disposición de de un mortero adhesivo cementoso de fraguado rápido C2 F Perfil de acero galvanizado para fijación y protección de parte superior de lámina impermeabilizante fijado mecánicamente mediante tornillos de acero. Se dispone igualmente sobre la lámina impermeabilizante en su tramo vertical otra capa de mortero CS W2 T1 y una chapa de aluminio anodizado que la protegen Panel Sándwich de aluminio anodizado, de espesor variable 100-80mm, 1500mm de alto y 1000mm de ancho. Cara exterior de chapa ondulada de aluminio de 0,8mm de espesor, acabado anodizado y recubrimiento de fluoruro de polivinilideno (PVDF) transparente natural mate, alma aislante de lana de de densidad media 120kg/m3, y interior de chapa de aluminio acabado anodizado, de 0,5mm de espesor. Euroclase A2-s1, d0 de reacción al fuego según UNE-EN 13501-1, resistencia al fuego EI 120 según UNE-EN 1366-1. Fijados mecánicamente con sistema de fijación oculta y estanca a una estructura portante auxiliar.

Cámara de aire no ventilada entre los elementos de la estructura portante auxiliar. Estructura auxiliar fachada de galvanizado. Se dispone vertical de forjado forjado y está formada por perfiles montantes de S-275JR conformados en frío y galvanizados en caliente tipo HEB 100 cada 1,00m y perfiles horizontales en C del mismo material de espesor nominal 6mm y proporciones 50x30mm cada 50cm fijados mediante soldadura a los montantes.

Fijación mecánica de los paneles mediante tornillos autorroscantes de acero al carbono cincados de 7cm Panel alma de cemento portland, recubierto por malla de fibra de vidrio. Espesor de 12,5mm. Resistente al agua incombustible (A1). Albardilla para coronación de fachada de paneles sandwich, de chapa de aluminio anodizado plegada, de 0,8 mm de espesor con pendiente hacia el exterior de 10º y goterón a 3cm de la fachada. Fijada mecánicamente mediante tornillos a la estructura portante de la fachada.

Refuerzo lámina flexible impermeabilizante de poliolefinas 2mm

Sumidero de TPO (poliolefina universal) con paragravas Pasatubos bajante de PVC Ø110mm Sellado de espuma de poliuretano proyectable espesor 3cm Codo registrable PVC Ø110mm Techo suspendido continuo de dos placas de yeso laminado espesor 15mm cada y dimensiones 1200mmx3000mm perfilería de aluminio anodizado dispuesta cada 800mm y lana mineral integrada para mejorar el aislamiento térmico y acústico de 60mm conductividad térmica λ=0,035W/mK, densidad nominal 70kg/m3, clasificación A1 contra el fuego. Pasta de yeso B6 de espesor 150 formulado especialmente para la protección frente al fuego de estructuras el ámbito de la edificación.

Clase de reacción al fuego A2-s1,d0 (B) Baldosa de terrazo grano fino de fondo blanco roto y moteado gris formato 30x30x2cm a disponer sin juntas visibles, pulido inicial en fábrica, para pulir y abrillantar en obra. Grado de resbaladicidad C1. Dispuesto sobre lecho de mortero de cemento C2 Sumidero lineal de acero galvanizado Sellado de junta con cordón polimérico terminado en silano 1cm Perfil de cierre en C de acero galvanizado sobre el canto del forjado con goterón en parte inferior y pendiente de 10º en parte superior a modo de vierteaguas fijado mecánicamnete en el canto del forjado previa disposición de un mortero impermeable C S1 W2

Barandilla de aluminio anodizado acabado mate con fijación mecánica vertical de acero galvanizado barandal superior de perfil rectangular de 51x21 mm y montantes principales de perfil rectangular de 40x20 mm con una separación de 100 cm entre sí, montantes secundarios cada 10cm de perfil rectangular de 24x20 mm en el mismo aluminio anodizado. Altura de 1,20m sobre el acabado de la terraza y 1,60m en total

Paneles de protección solar deslizantes de aluminio anodizado con fijación mecánica de aluminio anodizado dimensiones 3.40mx 1.20m 0,03m lamas orientables Cerramiento deslizante de paneles de policarbonato espesor 3cm y carpinterías de aluminio anodizado Carpintería de aluminio con rotura de puente térmico, dos hojas correderas, dimensiones 4800x2500mm, acabado anodizado natural. Transmitancia térmica del Uh,m=3,9 W/(m2K); espesor del acristalamiento: 56 mm, clasificación la permeabilidad al aire clase 4, según UNE-EN 12207, clasificación a la estanqueidad al agua clase 7A, según UNE-EN 12208, y clasificación a la resistencia a la carga del viento clase C5, según UNE-EN 12210. Acristalamiento triple: vidrio exterior laminar de 6+6 mm, capa de control solar y baja emisividad térmica, unidas mediante una lámina incolora de butiral de polivinilo, dos cámaras deshidratadas rellenas de gas argón con perfil separador de aluminio y doble sellado perimetral, vidrio intermedio incoloro de 4 y cidrio exterior laminar de 4+4 mm, capa de baja emisividad térmica incorporada en la cara exterior, compuesto por dos lunas de vidrio laminar de 4 mm unidas mediante dos láminas incoloras de butiral de polivinilo. Luminaria encastrada de aluminio extruido acabado termaesmaltado de color blanco para led. Techo suspendido continuo de placas de yeso laminado hidrófugas 1x25mm de espesor con perfilería de aluminio dispuesta cada 80c Caja de persiana automatizada de aluminio anodizado dimensiones 20x20cm protegida interiormente lana de e=3cm y densidad 70kg/m3. Fijada mecánicamente al forjado. Film de polietileno 2mm antiimpactos Panel rígido de lana de roca 2cm densidad 120 kg/m3 Baldosa de terrazo grano fino de fondo blanco roto y moteado gris formato 30x30x2cm a disponer sin juntas visibles, pulido inicial en fábrica, para pulir y abrillantar en obra. Grado de resbaladicidad

ATALAYA ENSAYOS PARA UN NUEVO HÁBITAT URBANO CIUDAD VIVIENDA PAISAJE. P F C e n t r ega final I 13 0 7 .2023 L UCI A SAN T OS BUC E T A I M á s t e r H abilita n t e E T S A S e villa (U S ) M A 01 I Coo r dinador: AMAD E O RAMOS CARRANZA I CONSTRUCCIÓN 0.20
C1. Dispuesto sobre lecho de mortero de cemento C2 Soportes tipo plot regulable de polipropileno dispuestos formando una malla de 40x40 cm altura regulable entre 20 y 50cm Ø 8cm Cámara de aire ventilada Solado flotante: loseta cerámica armada antideslizante (clase 2 Rd 35-45) 40x40x4cm acabado gris mate con juntas abiertas de 4m Murete de un pie de ladrillo perforado de resistencia característica 75kp/cm2 con mortero M5 y juntas de movimiento cada 15m Zabaleta cerámiza fijada mediante mortero C2 F cubriendo la lámina impermeabilizante 10 2 1 3 4 5 6 9 11 12 13 19 24 25 26 28 29 30 31 32 33 34 35 36 37 41 42 43 44 45 45 44 43 42 41 40 39 37 35 36 32 33 34 31 30 28 29 26 25 21 22 23 24 18 17 10 16 14 13 15 12 11 9 6 5 1 2

y está formada por perfiles montantes de S-275JR conformados frío y galvanizados caliente tipo HEB 100 cada 1,00m y perfiles horizontales en C del mismo material de espesor nominal 6mm y proporciones 50x30mm cada 50cm fijados mediante soldadura a los montantes.

Fijación mecánica de los paneles mediante tornillos autorroscantes de al carbono cincados de 7cm

Panel alma de cemento portland, recubierto por malla de fibra de vidrio.

Espesor de 12,5mm. Resistente al agua e incombustible (A1).

Panel aislante térmico y acústico de lana de roca, 5cm de espesor, conductividad térmica densidad nominal 70kg/m3, clasificación A1 contra el fuego. Fijado mecánicamente mediante 4 rosetas de polipropileno, en forma de "T" por cada m2 al panel de cemento portland previamente taladrado.

Trasdosado autoportante con doble placa de yeso laminado espesor 2x15mm atornillado a estructura portante de montantes y canales de perfilería ligera de galvanizado fijada mecánicamente entre forjados con bandas de estanqueidad acústica autoadhesiva en la parte inferior y superior en contacto con el forjado. Perfil U de laminado galvanizado de dimensiones 110x50mm y espesor nominal 6mm para reparto de cargas y fijación mecánica al forjado mediante tornillos de acero al carbono cincados 7cm. Forjado bidireccional de hormigón armado HA-30-F-15-XC4 canto 45cm y casetones perdidos de EPS Film de polietileno 2mm antiimpactos Panel rígido de lana de roca no revestido 2cm densidad 120 kg/m3 Mortero

pintura plástica bicapa color blanco mate y textura lisa (50 micras por capa) previa imprimación acrílica, reguladora de la absorción a base de copolímeros acrílicos, color blanco sobre soporte de trasdosado autoportante con doble placa de yeso laminado de espesor 15mm atornilladas a estructura portante vertical de perfilería ligera de acero galvanizado fijada mecanicamente entre forjados. Nivel de acabado Q3 rejuntado y enrasado con pasta de yeso fino blanco en juntas, accesorios, esquinas, y encuentros con otros materiales evitando rebabas, raspaduras y huellas de las herramientas. Con rodapie enrasado de terrazo grano fino de fondo blanco roto y moteado gris de h=7cm y canto superior rebajado colocado con mortero adhesivo cementoso C2 TE S1 pintura plástica color blanco a base de copolímeros acrílicos, lavable, hidrorepelente y transpirable (100 micras por capa) sobre partición autoportante de doble placa de yeso laminado hidrófugo de espesor 15mm atornilladas a estructura portante vertical de perfilería ligera de acero galvanizado fijada mecanicamente entre forjados. Nivel de acabado Q2. Con rodapie enrasado de terrazo grano fino de fondo blanco roto y moteado gris de h=7cm y canto superior rebajado colocado con mortero adhesivo cementoso C2 TE S1 alicatado con azulejos cerámicos blanco mate esmaltados rectificados dimensiones 90x30cm dispuestos verticalmente mediante mortero adhesivo de deslizamiento reducido C2 T y juntas tratadas con mortero adhesivo de resina reactiva hidrófuga R2 F hormigón visto en elemento estructural tipo muro pantalla de hormigón armado HA-30-F-15-XC4 con recubrimiento de armaduras mínimos de 40mm y el cemento será blanco. Los encofrados serán metálicos y se cuidará especialmente su estanqueidad para que no haya pérdidas de lechada que puedan producir nidos de grava. Además, se achafanarán las esquinas mediante berenjenos metálicos. Se hormigona completamente de planta planta la misma partida tongadas de no más de 30cm para garantizar un acabado homogéneo panel sándwich de de aluminio anodizado, de espesor variable 100-80mm, 3000mm de alto y 1000mm de ancho. Cara exterior de chapa ondulada de aluminio de 0,8mm de espesor, acabado anodizado y recubrimiento de fluoruro de polivinilideno (PVDF) transparente natural mate, alma aislante de lana de roca de densidad media 120kg/m3, y cara interior de chapa de aluminio acabado anodizado, de 0,5mm de espesor. Conductividad térmica 0,037 W/(mK), Euroclase A2-s1, d0 de reacción al fuego según UNE-EN 13501-1, resistencia al fuego EI 120 según UNE-EN 1366-1. Colocados posición vertical y fijados mecánicamente con sistema de fijación oculta y estanca a una estructura portante auxiliar. baldosa de terrazo grano fino de fondo blanco roto y moteado gris formato 30x30x2cm a disponer sin juntas visibles, pulido inicial en fábrica, para pulir y abrillantar en obra. Grado de resbaladicidad C1. Dispuesto sobre lecho de mortero de cemento C2 baldosa de terrazo grano fino de fondo blanco roto y moteado gris formato 30x30x2cm. Pulido inicial en fábrica, para pulir y abrillantar en obra. Grado de resbaladicidadC1. Dispuesto sobre lecho de mortero de cemento C2 y rejuntado con mortero adhesivo de resina reactiva hidrófuga R2 FT pintura plástica bicapa color mate y textura lisa (50 micras por capa) previa imprimación acrílica, reguladora de la absorción a base de copolímeros acrílicos, color blanco sobre techo suspendido continuo de placas de yeso laminado espesor 2x15mm y dimensiones 1200mmx3000mm con perfilería de aluminio anodizado dispuesta cada 800mm y fijada mecanicamente al forjado. Nivel de acabado Q3 rejuntado y enrasado con pasta de yeso fino blanco en juntas, accesorios, esquinas, y encuentros evitando rebabas, raspaduras y huellas de las herramientas. techo suspendido registrable de placas de yeso laminado con un revestimiento vinílico blanco (60x60x1cm). Acabado visto (inferior): vinilo gofrado blanco nivel del brillo 5-7 según DIN 67530. Sobre perfilería de aluminio anodizado dispuesta cada 600mm y fijada mecanicamente al forjado. encimera cerámica espesor 3cm color antracita acabado pulido y bordes achaflanados barandilla de aluminio anodizado natural de 120cm de altura, formada por bastidor compuesto por barandal superior de perfil rectangular de 51x21mm y montantes de perfil rectangular de 40x20mm con una separación de 100cm entre sí y entrepaño compuesto de barrotes verticales del mismo material y perfil rectangular de 24x20mm. Se encuentra fijada al canto del forjado mediante anclaje mecánico atornillado cada 100cm. contraventana deslizante de aluminio anodizado acabado natural. Una hoja de lamas orientables de 120x340cm paneles translúcidos planos de policarbonato celular de 30mm de espesor, 1200mm de ancho y 2800 mm de alto, fijado smecanicamente a una carpintería deslizante de aluminio anodizado. puerta de paso con hoja abatible y cerco de madera de pino prelacada color blanco. Hoja de dimensiones: 210 x 90 x 4cm puerta de paso con hoja corredera y cerco en madera de pino prelacada color blanco. Hoja alojada en armazón metálico incluido en partición autoportante de palcas de yeso laminado. Dimensiones 210x80x4cm. puerta de acceso a la vivienda de acabado en madera de pino prelacada en blanco, acorazada, hoja de 90x203x7 cm, compuesta por alma de plancha plegada de acero electrogalvanizado, soldada en ambas caras a planchas de acero de 0,8 mm de espesor y reforzada por perfiles omega verticales, de acero, acabado con tablero liso en ambas caras de madera de tola, bastidor de tubo de acero y marco de acero galvanizado, con cerradura de seguridad.

puerta de paso con hoja corredera y cerco en madera de pino prelacada color blanco con ojo de buey de vidrio laminado

3+3mm Ø=60cm. Hoja alojada en armazón metálico incluido en partición autoportante de palcas de yeso laminado.

Dimensiones 210x140x4cm.

mampara de vidrio laminado transparente 6+6mm con butiral translúcido fijada sobre perfilería perimetral de aluminio

anodizado dimensiones 300x120cm ventana de una hoja oscilobatiente con marco y perfil de hoja de aluminio color natural acabado anodizado con rotura de puente térmico y juntas de estanqueidad de EPDM. Transmitancia del conjunto marco+premarco+persiana motorizada

Um=1,3W/(m2K), permeabilidad al aire clase 4, estanqueidad al agua clase E1950 y resisitencia a la carga del viento C5.

Acritalamiento triple formado por vidrio laminar exterior 6+6 con capa de control solar y baja emisividad térmica con lámina incolora de butiral de polivinilo. Vidrio intermedio incoloro de 4mm y vidrio interior laminar de 4+4mm con butilral de polivinilo. puerta corredera triple hoja y perfil de hojas de alumnio color natural acabado anodizado. rotura de puente térmico y juntas de estanqueidad de EPDM. Transmitancia del conjunto marco+premarco+persiana motorizada

Um=3,9W/(m2K), permeabilidad al aire clase 4, estanqueidad al agua clase 7A y resisitencia la carga del viento C5.

Acristalamiento triple formado por vidrio laminar exterior 6+6 capa de control solar y baja emisividad térmica lámina incolora de butiral de polivinilo. Vidrio intermedio incoloro de 4mm y vidrio interior laminar de 4+4mm con butilral de polivinilo. puerta corredera dos hojas y perfil de hojas de alumnio color natural acabado anodizado. rotura de puente térmico y juntas de estanqueidad de EPDM. Transmitancia del conjunto marco+premarco+persiana motorizada

Um=3,9W/(m2K), permeabilidad al aire clase 4, estanqueidad al agua clase 7A y resisitencia la carga del viento C5.

Acritalamiento triple formado por vidrio laminar exterior 6+6 capa de control solar y baja emisividad térmica lámina incolora de butiral de polivinilo. Vidrio intermedio incoloro de 4mm y vidrio interior laminar de 4+4mm con butilral de polivinilo. puerta de hoja oscilobatiente y perfil de hoja de aluminio color natural acabado anodizado rotura de puente térmico y juntas de estanqueidad de EPDM. Transmitancia del conjunto marco+premarco+persiana motorizada

Um=1,3W/(m2K), permeabilidad al aire clase 4, estanqueidad al agua clase E1950 y resisitencia la carga del viento C5.

Acritalamiento triple formado por vidrio laminar exterior 6+6 capa de control solar y baja emisividad térmica lámina incolora de butiral de polivinilo. Vidrio intermedio incoloro de 4mm y vidrio interior laminar de 4+4mm con butilral de polivinilo. puertas para registro contra incendio de acero galvanizado con aislamiento de lana mineral, densidad 145 kg/m3 RF-30.

Picaporte de acero sintetizado. Marco con junta intumescente

ATALAYA ENSAYOS PARA UN NUEVO HÁBITAT URBANO CIUDAD VIVIENDA PAISAJE. P F C I e n t r ega final 13 0 7 .2023 L UCI A SAN T OS BUC E T A M á s t e r H abilita n t e E T S A S e villa (U S ) I M A 01 Coo r dinador: AMAD E O RAMOS CARRANZA CONSTRUCCIÓN. ENVOLVENTE + ACABADOS S=5.46m² S=5.52m² S=1.87m² S=14.52m² S=10.13m² S=11.01m² S=14.28m² S=28.06m² PAREDES pintura plástica bicapa color blanco mate y textura lisa (50 micras por capa) previa imprimación acrílica, reguladora de la absorción a base de copolímeros acrílicos, color blanco sobre partición autoportante de doble placa de yeso laminado de espesor 15mm atornilladas a estructura portante vertical de perfilería ligera de acero galvanizado fijada mecanicamente entre forjados. Nivel de acabado Q3 rejuntado y enrasado con pasta de yeso fino blanco en juntas, accesorios, esquinas, y encuentros con otros materiales evitando rebabas, raspaduras y huellas de las herramientas. Con rodapie enrasado de terrazo grano fino de fondo blanco roto y moteado gris de h=7cm y canto superior rebajado colocado con mortero adhesivo cementoso C2 TE S1
60x60x5,2cm. SOLADOS TECHOS ENCIMERAS PROTECCIONES SOLARES Y BARANDILLAS CERRAMIENTOS DESLIZANTES DE POLICARBONATO PUERTAS DE MADERA VENTANAS, PUERTAS Y MAMPARAS DE VIDRIO PUERTAS METÁLICAS S1 S2 SOL V1 E1 1 1 3 4 6 S1 S2 1 T1 B SOL V1 P1 P2 V2 V3 P3 P5 P7 1 1 1 1 1 1 1 1 1 1 1 2 2 1 4 4 4 4 3 1 4 2 P3 P1 P2 P2 1 T2 6 2 S2 1 T2 S2 1 T2 S2 S2 S1 T1 S1 T1 S1 T1 S1 T1 P7 P7 S2 T1 P6 1 P4 110 m²+t 1.50 1.50 1.50 1.50 0.80 1.50 8.25 6.17 1.40 0.68 16.00 2.70 1.20 13.30 3.08 4.86 2.11 1.50 5.77 4.23 1.97 4.23 1.20 1.78 3.07 1.80 4.30 5.53 1.33 e_1:50 0,50 3.07 7.23 1.37 4.35 0.60 0.90 0.60 1.78 0.90 1.65 0.90 0.16 1.11 1.00 0.68 0.91 0.80 1.09 1.27 4.76 1.88 1.20 1.20 1.43 0.19 0.28 3.00 1.33 1.37 0.47 3.40 1.20 0.30 0.30 0.04 0.02 0.30 3.40 1.20 1.40 2.10 3.00 1.00 1 2 4 5 6 7 8 10 9 11 12 14 13 16 3 15 1 5 10 12 13 Panel Sándwich de aluminio anodizado, de espesor variable 100-80mm, 3000mm de alto y 1000mm de ancho. Cara exterior de chapa ondulada de aluminio de 0,8mm de espesor, acabado anodizado y recubrimiento de fluoruro de polivinilideno (PVDF) transparente natural mate, alma aislante de lana de roca de densidad media 120kg/m3, y cara interior de chapa de aluminio acabado anodizado, de 0,5mm de espesor. Conductividad térmica W/(mK), Euroclase A2-s1, d0 de reacción al fuego según UNE-EN 13501-1, resistencia al fuego EI 120 según UNE-EN 1366-1. Colocados en posición vertical y fijados mecánicamente con sistema de fijación oculta y estanca a una estructura portante auxiliar. Cámara de aire ventilada entre los elementos de la estructura portante auxiliar. Dicha estructura se dispone en vertical de forjado a forjado
de grafito. Dimeniones de la hoja
adhesivo cementoso C2 TE S1 aplicado
soporte
rayada
las piezas) Baldosa de terrazo grano fino de fondo blanco roto y moteado gris formato 30×30x3mm a disponer sin juntas visibles, pulido y abrillantado en obra. Grado de resbaladicidad C1 Pasta de yeso B6 de espesor 15 mm formulado especialmente para la protección frente al fuego de estructuras en el ámbito de la edificación. Clase de reacción al fuego A2-s1,d0 (B) Techo suspendido continuo de 2 placas de yeso laminado espesor 15mm y dimensiones 1200mmx3000mm con perfilería de aluminio anodizado dispuesta cada 800mm y lana mineral integrada para mejorar el aislamiento térmico y acústico de 60mm conductividad térmica Perfil angular en L de acero galvanizado 50x5mm fijado mecánicamente al canto del forjado Panel rígido de lana de roca densidad 120kg/m3 apoyado sobre angular de acero galvanizado para absorber vibraciones y aislar contra la propagación del fuego la cámara de aire no ventilada. 14 16
dos capas (una sobre el
y otra
bajo

ESQUEMA ESTRUCTURAL.

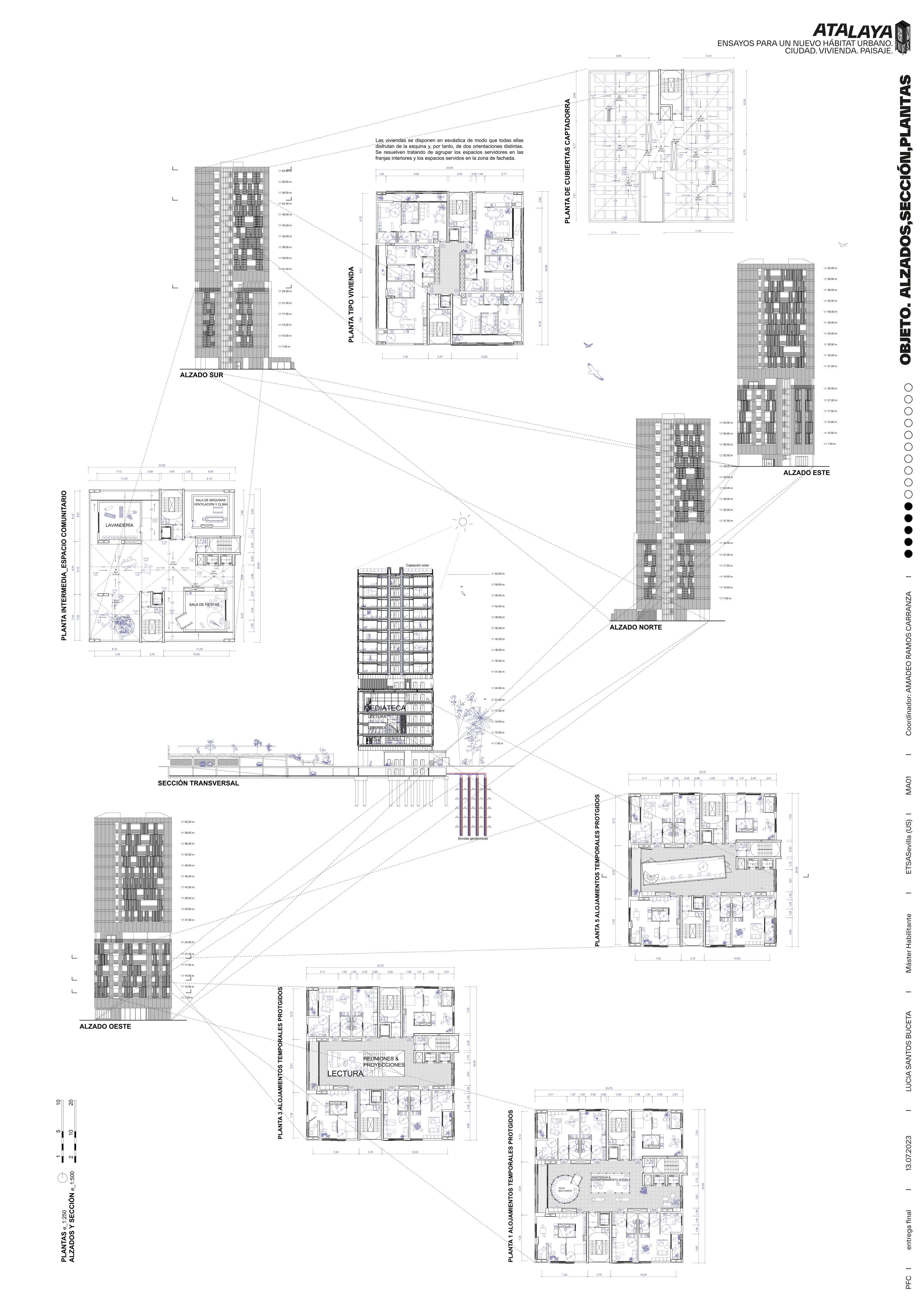
A grandes rasgos, puede describirse el esquema estructural del edi cio como una sucesión de forjados reticulares de hormigón armado soportados por 8 grandes pilares apantallados también de hormigón armado y tres agrupaciones de muros pantalla en torno a los núcleos de comunicaciones verticales de la torre. La zona de aparcamiento bajo rasante se desarrolla como una construcción anexa independiente debido a la radical diferencia de cargas. Una decisión clave en la resolución del diseño estructural es el apantallamiento de los pilares. Esto deriva, por un lado, de de la necesidad de arriostrar el edi cio frente a empujes horizontales y, por otro lado, de la búsqueda de una forma que encajase en la arquitectura pese a sus importantes dimensiones (puesto que, debido a la gran altura del edi cio, las cargas transmitidas verticalmente precisan de secciones más que considerables).

Así, la estructura queda arriostrada en la dirección Este-Oeste (x) por dichos pilares y en la dirección perpendicular (Norte-Sur) por los muros pantalla que conforman los dos núcleos de comunicaciones que recorren de abajo a arriba la torre. El tercer grupo de muros pantalla colabora con el arriostramiento en la misma dirección que los pilares, aunque solo asciende hasta la mitad de la torre. La presencia de este tercer elemento de pantallas rígidas será el responsable de algunas asimetrías en el reparto de los esfuerzos.

Las luces estructurales alcanzan los 10’60 metros y los pilares, pese a responder a un orden, no conforman una cuadrícula perfecta. Por este motivo se ha decidido emplear como sistema estructural principal un forjado bidireccional tipo reticular de hormigón armado aligerado con casetones no recuperables de EPS. Se disponen nervios de 12cm cada 82cm (intereje) con una armadura inferior para resistir el ector positivo y una armadura superior para el ector negativo. Además, se crearán refuerzos de armadura en los puntos donde sea necesario y se añadirá una capa de compresión de 5cm en la parte superior con su correspondiente armado.

PLANTA DE CIMENTACIÓN.

La tipología en altura conlleva no solo la transmisión de grandes cargas al terreno, sino también fuertes empujes horizontales de viento por lo que ha de cimentarse el edi cio sobre un estrato altamente resistente y haciendo imposible su vuelco. Para ello, se plantea la posibilidad de pilotar la estructura mediante pilotes de barrena continua. Se analiza entonces el corte del terreno extraído del estudio geotécnico realizado en la parcela. Se observa que existe un primer estrato de relleno antrópico de aproximadamente 2m de profundidad que habría que extraer en cualquier caso debido a sus pésimas características resistentes. Esto justi ca la viabilidad económica de la excavación de un sótano pues esta retirada de tierras sería necesaria en cualquier caso para poder cimentar cualquier edi cio. A continuación, encontramos una arcilla limosa de cualidades medias y un estrato de arena limosa. A los 6,50m bajo la cota 0 comienza un estrato de grava zahorra de alta resistencia a compresión. Este estrato presenta las cualidades resistentes y la profundidad su cientes como para pilotar sobre él la estructura. De este modo, según apunta el estudio geotécnico realizado, este tipo de cimentación profunda resultaría viable constructiva y económicamente puesto que existe el grueso estrato resistente de grava zahorra mencionado a escasa profundidad (desde la cota -6,5m hasta los -18m). Observando el corte del terreno pueden preverse longitudes mínimas de aproximadamente 6m para asegurar el empotramiento en el estrato resistente y que los pilotes puedan comenzar a trabajar por punta. Además, en vista de que cada pilar soporta 17 forjados con áreas de in uencia de entre 30 y 60m2 pueden preverse grandes cargas y grandes momentos debidos a la acción del viento sobre la fachada de 63 metros de altura. Por este motivo los primeros “tanteos” realizados serán con pilotes de diámetros de 0,85m o incluso 1m asociados en grupos.

Para la zona de aparcamiento, sin embargo, se propone cimentar con tres losas de hormigón armado diferentes. Las cargas en esta zona no son muy elevadas ya que cuenta solo con 1 o dos plantas que soportar más el peso del ajardinamiento. Se divide en tres losas diferentes por varios motivos relacionados con las dimensiones y proporciones del sótano. Evitar cantos excesivos y favorecer que las resultantes estén centradas son los motivos principales.

Las juntas entre las losas, en principio, no supondrán mayor problema en cuanto a estanqueidad puesto que el nivel freático se encuentra al menos 1m por debajo. Será de gran importancia la comprobación de asientos de las diferentes losas para asegurar que la cota del sótano sea constante. Para este cálculo han de tenerse en cuenta las interacciones entre ellas.

ATALAYA ENSAYOS PARA UN NUEVO HÁBITAT URBANO CIUDAD VIVIENDA PAISAJE. P F C I e n t r ega final 13 0 7 .2023 L UCI A SAN T OS BUC E T A M á s t e r H abilita n t e E T S A S e villa (U S ) I M A 01 Coo r dinador: AMAD E O RAMOS CARRANZA ESQUEMA ESTRUCTURAL + CIMENTACIÓN DATOS GEOTÉCNICOS Resistencia admisible del terreno--> arenas N 14: 100 kN/m2 Resistencia admisible del terreno--> gravas zahorras N CUADRO DE MATERIALES MATERIALES HORMIGÓN ACERO Control Nivel Control Coef. Seg. Tipo Clase Exposición Tamaño máx. Árido Características Control Características Nivel Control Coef. Seg. Tipo Elemento Zona/Planta Cimentación Pilares Forjado Muros EXPO./AMBIENTE XC2 Recubrimeintos nominales (mm) CUADRO DE ACCIONES (kN/m2) PERMANENTES G φ=1,35 Peso propio Pavimentos acabados Tabiquería Σ permanentes k Pl. Cubierta no 6,5 2 0 Σ permanentes d 11,475 VARIABLES Q φ=1,5 Σ variales k Total qd Total qk estadíst. estadíst. estadíst. φ=1,5 φ=1,5 φ=1,5 HA-30 normal φ=1,15 blanda 50-90 mm 20 mm 15 mm B-500S XC2 XC4 HA-30 HA-30 φ=1,5 fuida Se exigirá mínimo de 70 de recubrimiento nominal de armaduras pilotes "in situ" cualquier elemento encofrado agua contenido mínimo de cemento 300 kg/m3 Pilotes "in situ" estadíst. φ=1,5 XC2 HA-30 Hormigón de limpieza HL-150/C/TM XC4 Pl. Vivienda Pl. Cubierta 6,5 1 1 11,475 6,5 0 11,475 Pl. Alojam. 6,5 11,475 Pl. Baja 6,5 1 1 11,475 Pl. Baja 4 16 0 27 Pl. Parking 10 1 0 14,85 Pl. 10 1 1 16,2 0,2 1,2 1,8 9,7 13,275 0 3 10,5 14,475 0,2 3,2 4,8 23,2 31,8 3 17,85 4,5 20,7 0 0 0 0 10,5 10,5 10,5 14,475 14,475 14,475 3 3 - Control Estadístico en CE, equivale control normal- garantizarse disposición correspondientes (separadores calzos) obra de acuerdo con la Tabla 49.8.2 Disposición de separadores del CE - Separación entre barras en vigas (cara superior): separación mínima de 75mm entre, al menos, dos de ellas para hacer posible e vibradode 30cm para garantizar un acabado homogéneo - (pilares muros) especialmente estanqueidad haya pérdidas de lechada que puedan producir nidos de grava100-150 mm fuida fuida 15 mm 20 mm VIDA ÚTIL NOMINAL DEL EDIFICIO: 100 años NIVEL DE CONTROL DE LA EJECUCIÓN: normal XC2 XC2 63.00 m ESQUEMA CIMENTACIÓN ARRANQUE DE MURO DE SÓTANO EN LOSA DE CIMENTACIÓN Armado inferior Armado muro Armado superior losa Base compactada (zahorras) Calzos de apoyo de parrilla Cordón Detalle llave de cortante Hormigón de limpieza Llaves de cortante, superficies limpias, rugosas humedecidas antes de hormigonar Lb (*) Armado inferior losa Armado pilar Armado superior losa Base compactada (zahorras o gravas) Calzos de apoyo de parrilla 5 cm Hormigón de limpieza Montaje 3eØ6 en arranque pilar Pilar Patés de apoyo de la parrilla superior Lb hormigonado, rugosa, limpia y de hormigonar ARRANQUE DE PILAR EN LOSA DE CIMENTACIÓN LÍMITE PARCELA (canto 0,40m) (1,70x1,70X1,28m) Ø 0,45m (0,40x0,60m) FORJADO BIDIRECCIONAL DE CASETONES CIMENTACIÓN MURO DE SÓTANO JUNTO A LÍMITE DE PARCELA JUNTA ESTRUCTURAL 1 2 3 4 5 6 7 8 9 10 12 13 14 15 C B A D E F G H 4,79 37,33 4,05 5,3 5,3 5,3 4,85 1,74 11 LÍMITE DE PARCELA M6 M5 M8 M7 M1 M4 P3 P2 P1 P5 M11 M12 M13 M14 VC 40X70 VC 40X70 ENCEPADO 3,71 1,35 5 2,35 11,4 0,9 0,9 0,9 0,9 0,9 0,9 2,35 6,7 2,5 7,35 8,5 8,17 2,56 12,97 9,15 1,9 4,17 1,8 8,06 2,5 8,06 1,8 4,17 1,9 9,15 7,19 8,06 M2 7,45 2,73 3,7 4,38 6,22 5,74 7,37 2,67 1,87 3,94 8,12 8,12 8,51 7,34 -4.00m JUNTA ESTRUCTURAL 6 V 6 V 6 V 6 V VA 60X80 VA 60X60 VB 45X60 1 5 10 Encepado 2 pilotes P1 Encepado 3 pilotes SECCIÓN A 1,30 3,00 4,01 1,45 Geometría y Armado de pilotes 1,50 0,70 1,50 P2 Encepado 4 pilotes SECCIÓN A 1,50 0,70 1,30 1,50 0,70 0,1 P5 SECCIÓN A 1,50 0,70 1,50 UG-1 -6.50 +-0 -1.80 -4.50 -18.00 UG-2 UG-3 arena limosa UG-4 UG-4 -6.00 NF
ATALAYA ENSAYOS PARA UN NUEVO HÁBITAT URBANO CIUDAD VIVIENDA PAISAJE. P F C I e n t r ega final 13 0 7 .2023 L UCI A SAN T OS BUC E T A M á s t e r H abilita n t e E T S A S e villa (U S ) I M A 01 Coo r dinador: AMAD E O RAMOS CARRANZA ESTRUCTURA PLANTA TIPO ALOJAMIENTOS DATOS GEOTÉCNICOS Resistencia admisible del terreno--> arenas N 14: 100 kN/m2 Resistencia admisible del terreno--> gravas zahorras N CUADRO DE MATERIALES MATERIALES HORMIGÓN ACERO Control Nivel Control Coef. Seg. Tipo Clase Exposición Tamaño máx. Árido Características Control Características Nivel Control Coef. Seg. Tipo Elemento Zona/Planta Cimentación Pilares Forjado Muros EXPO./AMBIENTE XC2 Recubrimeintos nominales (mm) CUADRO DE ACCIONES (kN/m2) PERMANENTES G φ=1,35 Peso propio Pavimentos acabados Tabiquería Σ permanentes k Pl. Cubierta no 6,5 2 0 Σ permanentes d 11,475 VARIABLES Q φ=1,5 Σ variales k Total qd Total qk estadíst. estadíst. estadíst. φ=1,5 φ=1,5 φ=1,5 HA-30 normal φ=1,15 blanda 50-90 mm 20 mm 15 mm B-500S XC2 XC4 HA-30 HA-30 φ=1,5 fuida Se exigirá mínimo de 70 de recubrimiento nominal de armaduras pilotes "in situ" cualquier elemento encofrado agua contenido mínimo de cemento 300 kg/m3 Pilotes "in situ" estadíst. φ=1,5 XC2 HA-30 Hormigón de limpieza HL-150/C/TM XC4 Pl. Vivienda Pl. Cubierta 6,5 1 1 11,475 6,5 0 8,5 11,475 Pl. Alojam. 6,5 11,475 Pl. Baja 6,5 1 1 11,475 Pl. Baja 4 16 0 27 Pl. Parking 10 1 0 14,85 Pl. 10 1 1 16,2 0,2 1,2 1,8 9,7 13,275 0 3 10,5 14,475 0,2 3,2 4,8 23,2 31,8 3 17,85 4,5 20,7 0 0 0 0 10,5 10,5 10,5 14,475 14,475 14,475 3 3 - Control Estadístico en CE, equivale control normal- garantizarse disposición correspondientes (separadores calzos) obra de acuerdo con la Tabla 49.8.2 Disposición de separadores del CE - Separación entre barras en vigas (cara superior): separación mínima de 75mm entre, al menos, dos de ellas para hacer posible e vibradode 30cm para garantizar un acabado homogéneo - (pilares muros) especialmente estanqueidad haya pérdidas de lechada que puedan producir nidos de grava100-150 mm fuida fuida 15 mm 20 mm VIDA ÚTIL NOMINAL DEL EDIFICIO: 100 años NIVEL DE CONTROL DE LA EJECUCIÓN: normal XC2 XC2 Escala 1:150 Armado base superior Capa de compresión SECCIÓN TIPO DEL FORJADO Y ARMADURA BASE Nervio 0,45 0,40 0,82 0,12 0,82 0,12 0,12 ARMADURA BASE EN ÁBACOS (por cuadrícula): 2 Ø10 4Ø12 Ø10 4Ø12 REFUERZO DE PUNZONAMIENTO EN ESQUINA 4Ø12 /15cm 4Ø20 Ø10 4Ø20 Ø10 REFUERZO DE PUNZONAMIENTO EN ESQUINA 4Ø20 /10cm RESUMEN ACERO ARMADO LONGITUDINAL INFERIOR Longitud total (m) B 500 S, Ys=1.15 Peso+10% (kg) Longitud total (m) RESUMEN ACERO ARMADO TRANSVERSAL INFERIOR Longitud total (m) B 500 S, Ys=1.15 Ø20 Peso+10% (kg) 928.7 2519 11.5 5 214.8 373 667.7 1811 66.2 280 2469 Longitud total (m) B 500 S, Ys=1.15 Ø 8 Ø16 Ø20 Ø25 Peso+10% (kg) Longitud total (m) 7.4 7 150.6 261 RESUMEN ACERO ARMADO TRANSVERSAL SUPERIOR Longitud total (m) B 500 S, Ys=1.15 Ø12 Ø16 Ø20 (kg) Longitud total (m) 45x45 45x45 h=45 1P2Ø20 L=640 R.I.+1P3Ø20 L=505 R.I. 23 1P6Ø20 L=820 R.I.+1P7Ø20 L=780 R.I. 1P8Ø20 L=1180 R.I.+1P9Ø20 L=1105 R.I. 33 1P10Ø20 L=850 R.I.+1P7Ø20 L=780 R.I. 33 33 1P16Ø20 L=903 R.I.+1P17Ø20 L=540 R.I. 33 1P20Ø20 L=1185 R.I.+1P14Ø20 L=805 R.I. 33 1P11Ø20 L=870 R.I.+1P21Ø20 L=495 R.I. 33 1P22Ø20 L=1130 R.I.+1P23Ø8 L=725 R.I. 15 1P22Ø20 L=1130 R.I.+1P9Ø20 L=1105 R.I. 1P29Ø20 L=835 R.I.+1P30Ø20 L=620 R.I. 1P32Ø20 L=1090 R.I. 1P33Ø20 L=940 R.I.+1P34Ø20 L=555 R.I. 1P37Ø20 L=905 R.I.+1P38Ø20 L=720 R.I. 1P28Ø20 L=1200 R.I. 33 1P56Ø20 L=665 R.I.+1P57Ø20 L=310 R.I. 15 1P60Ø20 L=1140 R.I.+1P64Ø10 L=705 R.I. 1P66Ø20 L=1120 R.I.+1P67Ø20 L=955 R.I. 1P77Ø20 L=135 R.I.+1P78Ø20 L=90 R.I. 8,12 8,51 7,34 7,46 3,7 10,6 23,5 24,5 7,34 2,7 5,81 8,12 Pórtico Pórtico11 Pórtico10 Pórtico 45x45 45x45 45x45 45x45 1P1Ø20 L=505 R.I. 1P1Ø20 L=505 R.I. 1P3Ø20 L=500 R.I. 1P4Ø20 L=510 R.I. 33 1P5Ø20 L=515 R.I. 1P6Ø20 L=845 R.I. 33 33 33 1P8Ø20 L=841 R.I.+1P9Ø20 L=705 R.I. 1P10Ø20 L=760 R.I.+1P9Ø20 L=705 R.I. 1P11Ø20 L=855 R.I.+1P12Ø20 L=670 R.I. 64 13 61 1P17Ø20 L=455 R.I.+1P18Ø20 L=390 R.I. 1P19Ø20 L=855 R.I.+1P10Ø20 L=760 R.I. 1P20Ø20 L=90 R.I. 1P21Ø20 L=805 R.I.+1P9Ø20 L=705 R.I. 71 1P22Ø20 L=560 R.I.+1P23Ø20 L=420 R.I. 1P24Ø20 L=945 R.I.+1P25Ø20 L=710 R.I. 1P26Ø20 L=570 R.I.+1P27Ø20 L=450 R.I. 1P28Ø20 L=825 R.I.+1P14Ø20 L=725 R.I. 38 1P29Ø20 L=875 R.I.+1P25Ø20 L=710 R.I. 33 1P30Ø20 L=835 R.I.+1P31Ø20 L=675 R.I. 36 1P32Ø20 L=890 R.I.+1P14Ø20 L=725 R.I. 33 128 1P33Ø20 L=850 R.I.+1P34Ø20 L=620 R.I. 33 1P6Ø20 L=845 R.I. 1P35Ø20 L=860 R.I. 33 1P36Ø20 L=865 R.I. 33 1P22Ø20 L=560 R.I. 34 1P3Ø20 L=500 R.I. 1P40Ø20 L=530 R.I.+1P41Ø20 L=400 R.I. 128 1P42Ø20 L=930 R.I. 1P43Ø20 L=540 R.I.+1P44Ø20 L=435 R.I. 130 1P45Ø20 L=940 R.I. 1P46Ø20 L=510 R.I.+1P47Ø20 L=405 R.I.176 1P48Ø20 L=970 R.I. 1P49Ø20 L=1200 R.I.+1P16Ø20 L=735 R.I. 148 1P49Ø20 L=1200 R.I.+1P50Ø20 L=1015 R.I. 1P52Ø20 L=615 R.I.+1P43Ø20 L=540 R.I. 35 56 137 1P55Ø20 L=950 R.I. 1P56Ø20 L=480 R.I.+1P57Ø20 L=380 R.I. 1P58Ø20 L=920 R.I. 1P59Ø20 L=535 R.I.+1P41Ø20 L=400 R.I. 129 1P60Ø20 L=865 R.I. 1P61Ø20 L=625 R.I.+1P62Ø20 L=425 R.I. 129 1P24Ø20 L=945 R.I. 125 1P62Ø20 L=425 R.I.+1P63Ø20 L=275 R.I. 24 33 1P64Ø20 L=425 R.I. 1P65Ø20 L=985 R.I.+1P28Ø20 L=825 R.I. 63 1P49Ø20 L=1200 R.I.+1P66Ø20 L=980 R.I. 33 1P67Ø20 L=410 R.I. 24 1P68Ø20 L=1025 R.I.+1P69Ø20 L=465 R.I. 33 1P71Ø20 L=1035 R.I.+1P72Ø20 L=810 R.I. 1P73Ø20 L=1200 R.I.+1P74Ø20 L=955 R.I. 33 1P73Ø20 L=1200 R.I.+1P75Ø20 L=1090 R.I. 1P49Ø20 L=1200 R.I.+1P68Ø20 L=1025 R.I. 8,12 8,51 7,34 7,46 3,7 10,6 23,5 24,5 7,34 2,7 5,81 8,12 Pórtico11 45x45 45x45 45x45 45x45 45x45 45x45 45x45 45x45 1P2Ø20 L=610 R.S.+1P3Ø16 L=520 R.S. 1P6Ø20 L=400 R.S.+1P7Ø25 L=330 R.S. 49 1P8Ø20 L=540 R.S.+1P9Ø25 L=455 R.S. 1P10Ø20 L=903 R.S.+1P11Ø16 L=855 R.S. 1P15Ø20 L=410 R.S.+1P16Ø20 L=335 R.S. 1P19Ø20 L=500 R.S.+1P20Ø16 L=410 R.S. 1P22Ø20 L=440 R.S.+1P23Ø20 L=360 R.S. 1P10Ø20 L=903 R.S.+1P24Ø20 L=855 R.S. 1P25Ø20 L=930 R.S.+1P26Ø20 L=885 R.S. 1P27Ø20 L=645 R.S.+1P28Ø20 L=510 R.S. 1P2Ø20 L=610 R.S. 1P33Ø20 L=640 R.S. 1P41Ø20 L=1120 R.S. 1P51Ø20 L=1005 R.S.+1P52Ø20 L=850 R.S. 1P59Ø20 L=355 R.S.+1P60Ø16 L=335 R.S. 10,6 3,7 7,46 8,12 8,51 7,34 7,46 3,7 10,6 23,5 24,5 7,34 2,7 5,81 8,12 Pórtico Pórtico Pórtico 7 Pórtico 1 Pórtico Pórtico11 Pórtico10 Pórtico 45x45 45x45 45x45 45x45 45x45 45x45 45x45 45x45 45x45 45x45 h=45 33 1P1Ø20 L=540 R.S. 33 1P2Ø20 L=460 R.S.+1P3Ø16 L=365 R.S. 33 33 33 1P6Ø20 L=860 R.S.+1P7Ø25 L=695 R.S. 33 33 1P8Ø20 L=841 R.S.+1P9Ø16 L=795 R.S. 33 1P10Ø20 L=420 R.S.+1P11Ø25 L=340 R.S. 1P12Ø20 L=570 R.S.+1P13Ø25 L=435 R.S. 35 1P14Ø20 L=400 R.S.+1P15Ø25 L=330 R.S.+1P16Ø20 L=330 R.S. 33 33 1P19Ø20 L=725 R.S.+1P20Ø25 L=685 R.S. 33 1P19Ø20 L=725 R.S.+1P23Ø20 L=685 R.S. 1P10Ø20 L=420 R.S. 1P24Ø20 L=595 R.S.+1P25Ø20 L=370 R.S. 1P12Ø20 L=570 R.S.+2P26Ø20 L=365 R.S. 33 1P27Ø20 L=1125 R.S.+1P28Ø20 L=955 R.S. 267 1P29Ø20 L=600 R.S.+1P30Ø25 L=375 R.S. 33 128 33 225 1P35Ø20 L=1165 R.S.+1P36Ø16 L=745 R.S. 131 1P37Ø20 L=655 R.S.+1P38Ø16 L=395 R.S. 1P1Ø20 L=540 R.S. 135 1P39Ø20 L=825 R.S. 1P40Ø20 L=685 R.S. 33 1P41Ø20 L=510 R.S. 1P42Ø20 L=875 R.S. 239 1P43Ø20 L=1200 R.S.+1P44Ø16 L=730 R.S. 33 33 1P47Ø20 L=830 R.S. 33 1P49Ø20 L=795 R.S. 33 1P50Ø20 L=545 R.S. 1P51Ø20 L=465 R.S.+1P52Ø16 L=340 R.S. 33 1P53Ø20 L=1185 R.S.+1P54Ø12 L=735 R.S. 33 1P55Ø20 L=495 R.S.+1P56Ø25 L=400 R.S. 33 222 1P57Ø20 L=1150 R.S.+1P36Ø16 L=745 R.S. 1P58Ø20 L=980 R.S.+1P59Ø20 L=960 R.S. 33 10 1P62Ø20 L=1000 R.S.+1P63Ø16 L=800 R.S. 33 1P1Ø20 L=540 R.S.+1P64Ø16 L=390 R.S. 1P65Ø20 L=475 R.S. 1P66Ø20 L=890 R.S. 33 1P68Ø20 L=960 R.S. 33 1P48Ø20 L=515 R.S.+1P69Ø16 L=370 R.S. 173 70 1P71Ø20 L=395 R.S.+1P72Ø16 L=265 R.S. 33 1P73Ø20 L=815 R.S. 137 180 1P74Ø20 L=900 R.S.+1P75Ø16 L=540 R.S. 33 14 1P76Ø20 L=1065 R.S.+1P77Ø16 L=900 R.S. 33 1P78Ø20 L=445 R.S. 1P79Ø20 L=415 R.S. 1P80Ø20 L=1165 R.S.+1P81Ø20 L=760 R.S. 33 1P82Ø20 L=425 R.S. 35 1P5Ø20 L=390 R.S.+1P85Ø25 L=320 R.S.+1P86Ø20 L=320 R.S. 33 33 1P8Ø20 L=841 R.S.+1P87Ø16 L=841 R.S. 33 35 1P88Ø20 L=375 R.S.+1P89Ø25 L=310 R.S.+1P90Ø25 L=310 R.S. 33 1P91Ø20 L=395 R.S.+1P92Ø16 L=325 R.S. 33 1P10Ø20 L=420 R.S.+1P93Ø16 L=380 R.S. 10,6 3,7 7,46 8,12 8,51 7,34 7,46 3,7 10,6 23,5 24,5 7,34 2,7 5,81 8,12 Pórtico Pórtico 7 Pórtico Pórtico Pórtico11 10,6 3,7 7,46 8,12 8,51 7,34 7,46 3,7 10,6 23,5 24,5 7,34 2,7 5,81 8,12 45x45 45x45 45x45 45x45 45x45 45x45 45x45 45x45 45x45 45x45 45x45 45x45 M9: 40 M6: 30 M5: 30 M7: 30 M1: 30 M2: 30 M3: M11: 30 M12: 30 M13: 30 M14: 30 1.82 1.69 8,1 2,2 2,2 6,06 1,78 1,92 9,19 2,49 8,1 1,92 2,49 1,92 2,2 9,22 P1 P3 P4 P5 P8 P2 P4 P7 P8 P1 P3 P4 P2 P4 P7 P8 P8 P2 P4 P8 ESQUEMA CIMENTACIÓN 38´75 m³ 1,16 1,6 1,16 1,6 1,3 1,20,8 1,5 1,5 1,2 0,8 1,5 1,5 1,5 1,5 1,5 0,9 0,9 0,9 1,5 0,9 1,5 1,6 1,6 1,5 1,5 0,8 1,5 1,5 1,5 1,5 1,5 0,9 0,9 0,9 0,91,5 1,5 10,6 3,7 7,46 8,12 8,51 7,34 7,46 3,7 10,6 23,5 24,5 7,34 2,7 5,81 8,12 ARMADO TRANSVERSAL SUPERIOR. ARMADO LONGITUDINAL SUPERIOR. ARMADO TRANSVERSAL INFERIOR. ARMADO LONGITUDINAL INFERIOR. REPLANTEO. ARQUITECTURA.
ATALAYA ENSAYOS PARA UN NUEVO HÁBITAT URBANO CIUDAD VIVIENDA PAISAJE. P F C I e n t r ega final 13 0 7 .2023 L UCI A SAN T OS BUC E T A M á s t e r H abilita n t e E T S A S e villa (U S ) I M A 01 Coo r dinador: AMAD E O RAMOS CARRANZA ESTRUCTURA PLANTA TIPO VIVIENDA DATOS GEOTÉCNICOS Resistencia admisible del terreno--> arenas N 14: 100 kN/m2 Resistencia admisible del terreno--> gravas zahorras N CUADRO DE MATERIALES MATERIALES HORMIGÓN ACERO Control Nivel Control Coef. Seg. Tipo Clase Exposición Tamaño máx. Árido Características Control Características Nivel Control Coef. Seg. Tipo Elemento Zona/Planta Cimentación Pilares Forjado Muros EXPO./AMBIENTE XC2 Recubrimeintos nominales (mm) CUADRO DE ACCIONES (kN/m2) PERMANENTES G φ=1,35 Peso propio Pavimentos acabados Tabiquería Σ permanentes k Pl. Cubierta no 6,5 2 0 Σ permanentes d 11,475 VARIABLES Q φ=1,5 Σ variales k Total qd Total qk estadíst. estadíst. estadíst. φ=1,5 φ=1,5 φ=1,5 HA-30 normal φ=1,15 blanda 50-90 mm 20 mm 15 mm B-500S XC2 XC4 HA-30 HA-30 φ=1,5 fuida Se exigirá mínimo de 70 de recubrimiento nominal de armaduras pilotes "in situ" cualquier elemento encofrado agua contenido mínimo de cemento 300 kg/m3 Pilotes "in situ" estadíst. φ=1,5 XC2 HA-30 Hormigón de limpieza HL-150/C/TM XC4 Pl. Vivienda Pl. Cubierta 6,5 1 1 11,475 6,5 0 8,5 11,475 Pl. Alojam. 6,5 11,475 Pl. Baja 6,5 1 1 11,475 Pl. Baja 4 16 0 27 Pl. Parking 10 1 0 14,85 Pl. 10 1 1 16,2 0,2 1,2 1,8 9,7 13,275 0 3 10,5 14,475 0,2 3,2 4,8 23,2 31,8 3 17,85 4,5 20,7 0 0 0 0 10,5 10,5 10,5 14,475 14,475 14,475 3 3 - Control Estadístico en CE, equivale control normal- garantizarse disposición correspondientes (separadores calzos) obra de acuerdo con la Tabla 49.8.2 Disposición de separadores del CE - Separación entre barras en vigas (cara superior): separación mínima de 75mm entre, al menos, dos de ellas para hacer posible e vibradode 30cm para garantizar un acabado homogéneo - (pilares muros) especialmente estanqueidad haya pérdidas de lechada que puedan producir nidos de grava100-150 mm fuida fuida 15 mm 20 mm VIDA ÚTIL NOMINAL DEL EDIFICIO: 100 años NIVEL DE CONTROL DE LA EJECUCIÓN: normal XC2 XC2 Armado base superior Capa de compresión SECCIÓN TIPO DEL FORJADO Y ARMADURA BASE Nervio 0,45 0,40 0,82 0,12 0,82 0,12 0,12 ARMADURA BASE EN ÁBACOS (por cuadrícula): 2 Ø10 4Ø12 Ø10 4Ø12 REFUERZO DE PUNZONAMIENTO EN ESQUINA 4Ø12 /15cm 4Ø20 Ø10 4Ø20 Ø10 REFUERZO DE PUNZONAMIENTO EN ESQUINA 4Ø20 /10cm RESUMEN ACERO ARMADO LONGITUDINAL INFERIOR Longitud total (m) B 500 S, Ys=1.15 Peso+10% (kg) 28.8 12 945.2 2564 2576 RESUMEN ACERO ARMADOTRANSVERSAL INFERIOR Longitud total (m) B 500 S, Ys=1.15 Ø 8 Ø20 Peso+10% (kg) Longitud total (m) 9.3 4 7.8 5 127.2 221 763.7 2072 89.3 378 2680 Longitud total (m) B 500 S, Ys=1.15 Ø 8 Ø16 Ø20 Ø25 Peso+10% (kg) Longitud total (m) Ø10 RESUMEN ACERO ARMADOTRANSVERSALSUPERIOR Longitud total (m) B 500 S, Ys=1.15 Ø16 (kg) Longitud total (m) Escala 1:150 ESQUEMA CIMENTACIÓN 1P1Ø20 L=1200 R.I. 1P2Ø20 L=1125 R.I. 24 1P15Ø20 L=870 R.I.+1P16Ø20 L=520 R.I. 1P17Ø20 L=1140 R.I.+1P8Ø20 L=740 R.I. 1P15Ø20 L=870 R.I.+1P6Ø20 L=780 R.I. 1P17Ø20 L=1140 R.I.+1P18Ø20 L=1065 R.I. 1P22Ø20 L=475 R.I.+1P23Ø20 L=365 R.I. 1P24Ø20 L=265 R.I. 1P27Ø20 L=1190 R.I.+1P19Ø20 L=1120 R.I. 1P31Ø20 L=975 R.I. 1P1Ø20 L=1200 R.I. 1P3Ø20 L=1165 R.I. 1P33Ø20 L=1180 R.I. 91 1P25Ø20 L=1200 R.I.+1P35Ø20 L=715 R.I. 16 1P40Ø20 L=450 R.I.+1P41Ø20 L=310 R.I. 1P47Ø20 L=850 R.I.+1P48Ø20 L=775 R.I. 10,6 3,7 7,46 8,12 8,51 7,34 7,46 3,7 10,6 23,5 24,5 7,34 8,51 8,12 Pórtico Pórtico Pórtico 45x45 45x45 1P1Ø20 L=480 R.I. 33 1P2Ø20 L=525 R.I.+1P3Ø20 L=455 R.I. 52 1P4Ø20 L=500 R.I. 50 1P5Ø20 L=460 R.I. 1P6Ø20 L=960 R.I. 52 1P4Ø20 L=500 R.I. 25 1P7Ø20 L=830 R.I.+1P8Ø20 L=765 R.I. 17 1P9Ø20 L=855 R.I.+1P10Ø20 L=730 R.I. 1P13Ø20 L=750 R.I.+1P14Ø20 L=690 R.I. 1P15Ø20 L=880 R.I.+1P16Ø20 L=720 R.I. 1P17Ø20 L=835 R.I.+1P8Ø20 L=765 R.I. 50 108 1P18Ø20 L=805 R.I.+1P19Ø20 L=575 R.I. 46 1P20Ø20 L=785 R.I.+1P21Ø20 L=715 R.I. 15 1P22Ø20 L=825 R.I.+1P16Ø20 L=720 R.I. 50 1P23Ø20 L=470 R.I. 148 1P24Ø20 L=955 R.I.+1P16Ø20 L=720 R.I. 1P25Ø20 L=515 R.I.+1P26Ø20 L=415 R.I. 51 1P27Ø20 L=490 R.I. 1P28Ø20 L=940 R.I.+1P29Ø20 L=705 R.I. 159 1P6Ø20 L=960 R.I.+1P16Ø20 L=720 R.I. 1P30Ø20 L=485 R.I. 1P31Ø20 L=760 R.I. 1P25Ø20 L=515 R.I. 1P32Ø20 L=965 R.I. 52 1P33Ø20 L=505 R.I. 1P34Ø20 L=725 R.I. 65 1P35Ø20 L=580 R.I. 1P11Ø20 L=780 R.I. 33 1P36Ø20 L=495 R.I. 52 113 1P38Ø20 L=510 R.I.+1P39Ø20 L=410 R.I. 125 1P28Ø20 L=940 R.I. 1P40Ø20 L=520 R.I.+1P41Ø20 L=440 R.I.186 1P42Ø20 L=950 R.I. 1P25Ø20 L=515 R.I.+1P43Ø20 L=445 R.I. 1P44Ø20 L=975 R.I.+1P45Ø8 L=820 R.I. 1P46Ø20 L=530 R.I.+1P47Ø20 L=465 R.I. 402 1P48Ø20 L=895 R.I.+1P49Ø8 L=455 R.I. 1P50Ø20 L=450 R.I. 32 1P25Ø20 L=515 R.I.+1P43Ø20 L=445 R.I. 188 109 1P51Ø20 L=890 R.I.+1P13Ø20 L=750 R.I. 31 14 1P50Ø20 L=450 R.I.+1P39Ø20 L=410 R.I. 190 1P48Ø20 L=895 R.I.+1P52Ø20 L=860 R.I. 1P54Ø20 L=430 R.I. 115 1P27Ø20 L=490 R.I. 1P44Ø20 L=975 R.I.+1P45Ø8 L=820 R.I. 125 1P57Ø20 L=945 R.I. 1P58Ø20 L=550 R.I.+1P26Ø20 L=415 R.I. 126 1P28Ø20 L=940 R.I. 31 1P59Ø20 L=535 R.I.+1P60Ø20 L=405 R.I. 1P18Ø20 L=805 R.I.+1P61Ø20 L=655 R.I. 31 1P62Ø20 L=555 R.I. 1P11Ø20 L=780 R.I. 51 1P63Ø20 L=910 R.I. 50 1P18Ø20 L=805 R.I. 1P23Ø20 L=470 R.I. 148 115 1P64Ø20 L=920 R.I.+1P14Ø20 L=690 R.I. 68 1P65Ø20 L=560 R.I.+1P39Ø20 L=410 R.I. 50 1P1Ø20 L=480 R.I. 168 118 1P66Ø20 L=935 R.I.+1P67Ø20 L=700 R.I. 31 75 50 103 1P13Ø20 L=750 R.I.+1P2Ø20 L=525 R.I. 149 121 1P70Ø20 L=1125 R.I.+1P57Ø20 L=945 R.I. 10,6 3,7 7,46 8,12 8,51 7,34 7,46 3,7 10,6 23,5 24,5 7,34 8,51 8,12 1P1Ø20 L=655 R.S. 33 33 33 33 33 1P6Ø20 L=610 R.S. 33 33 33 33 33 33 33 33 33 33 14 1P38Ø20 L=505 R.S.+1P39Ø20 L=405 R.S.+1P40Ø20 L=395 R.S. 33 15 1P6Ø20 L=610 R.S. 33 1P48Ø20 L=625 R.S. 1P50Ø20 L=1115 R.S. 202 1P58Ø20 L=1010 R.S.+1P59Ø20 L=770 R.S.+1P60Ø20 L=605 R.S. 33 33 33 14 10,6 3,7 7,46 8,12 8,51 7,34 7,46 3,7 10,6 23,5 24,5 7,34 8,51 8,12 Pórtico Pórtico 45x45 45x45 33 1P1Ø20 L=430 R.S.+1P2Ø25 L=350 R.S. 33 1P4Ø20 L=1145 R.S. 33 1P5Ø20 L=520 R.S. 33 1P6Ø20 L=965 R.S. 33 1P7Ø20 L=375 R.S.+1P8Ø16 L=305 R.S. 1P9Ø20 L=535 R.S.+1P10Ø25 L=435 R.S. 1P11Ø20 L=425 R.S.+1P12Ø16 L=285 R.S. 1P4Ø20 L=1145 R.S.+1P13Ø20 L=925 R.S.+1P14Ø20 L=730 R.S. 33 1P11Ø20 L=425 R.S.+2P15Ø25 L=345 R.S. 33 1P16Ø20 L=1130 R.S.+1P17Ø25 L=1000 R.S. 33 1P18Ø20 L=1195 R.S.+1P19Ø16 L=745 R.S. 1P20Ø20 L=645 R.S.+1P21Ø16 L=395 R.S. 33 1P22Ø20 L=455 R.S. 33 216 1P23Ø20 L=1135 R.S.+1P24Ø16 L=835 R.S. 33 1P25Ø20 L=400 R.S.+1P26Ø25 L=330 R.S. 95 1P27Ø20 L=585 R.S.+2P28Ø20 L=390 R.S. 158 1P29Ø20 L=565 R.S.+1P30Ø20 L=350 R.S. 1P29Ø20 L=565 R.S.+1P31Ø20 L=355 R.S.+1P32Ø16 L=355 R.S. 130 121 1P33Ø20 L=600 R.S.+1P34Ø20 L=370 R.S. 33 1P35Ø20 L=450 R.S.+1P36Ø16 L=305 R.S. 33 1P37Ø20 L=535 R.S. 1P38Ø20 L=835 R.S.+1P39Ø16 L=515 R.S. 29 26 1P40Ø20 L=1200 R.S.+1P41Ø20 L=1025 R.S. 19 1P42Ø20 L=1200 R.S. 1P43Ø20 L=1200 R.S. 1P44Ø20 L=1200 R.S. 1P45Ø20 L=440 R.S.+1P46Ø20 L=335 R.S. 1P47Ø20 L=1200 R.S.+1P48Ø25 L=770 R.S. 33 35 33 33 231 161 1P52Ø20 L=1200 R.S.+1P53Ø20 L=775 R.S.+1P54Ø16 L=775 R.S. 89 26 1P55Ø20 L=435 R.S.+1P56Ø20 L=345 R.S.+1P57Ø20 L=320 R.S. 33 1P58Ø20 L=430 R.S.+1P59Ø20 L=355 R.S.+1P60Ø20 L=345 R.S. 21 1P61Ø20 L=1200 R.S.+1P41Ø20 L=1025 R.S. 44 1P64Ø20 L=540 R.S. 1P38Ø20 L=835 R.S. 44 33 1P65Ø20 L=470 R.S.+1P7Ø20 L=375 R.S. 33 1P67Ø20 L=810 R.S. 44 33 1P68Ø20 L=480 R.S.+1P69Ø20 L=390 R.S.+1P70Ø20 L=380 R.S. 33 1P64Ø20 L=540 R.S. 1P38Ø20 L=835 R.S. 90 1P71Ø20 L=450 R.S.+1P72Ø25 L=360 R.S. 1P73Ø20 L=1200 R.S. 11 1P74Ø20 L=1200 R.S.+1P75Ø25 L=980 R.S. 1P76Ø20 L=855 R.S.+1P39Ø16 L=515 R.S. 1P77Ø20 L=860 R.S. 17 234 1P78Ø20 L=1200 R.S.+1P79Ø16 L=735 R.S. 33 1P25Ø20 L=400 R.S. 160 1P80Ø20 L=575 R.S.+1P81Ø16 L=435 R.S. 33 229 1P3Ø20 L=1185 R.S.+1P82Ø16 L=695 R.S. 40 1P83Ø20 L=550 R.S.+1P55Ø20 L=435 R.S. 33 1P84Ø20 L=1165 R.S.+1P85Ø20 L=920 R.S. 33 1P86Ø20 L=395 R.S.+2P87Ø20 L=325 R.S. 1P88Ø20 L=695 R.S.+2P89Ø20 L=420 R.S. 33 1P70Ø20 L=380 R.S.+1P90Ø25 L=310 R.S.+1P91Ø16 L=310 R.S. 192 43 1P92Ø20 L=555 R.S.+1P81Ø16 L=435 R.S. 87 132 1P93Ø20 L=660 R.S.+1P94Ø20 L=395 R.S. 10,6 3,7 7,46 8,12 8,51 7,34 7,46 3,7 10,6 23,5 24,5 7,34 8,51 8,12 10,6 3,7 7,46 8,12 8,51 7,34 7,46 3,7 10,6 23,5 24,5 7,34 8,51 8,12 45x45 45x45 M6: 30 M5: 30 M1: 30 M2: 30 M3: 30 M7: 30 2,49 8,1 1,92 1.69 8,1 2,1 2,1 6,16 1,78 1,92 9,29 2,49 1,92 2,1 9,32 P1 P3 P4 P5 P6 P8 P1 P3 P4 P5 P6 P8 P2 P4 P6 P7 P8 P2 P4 P6 P7 P8 P2 P4 P6 P8 1,5 1,5 1,5 1,5 110 m²+t 70 m²+t 1,5 1,5 1,5 1,5 1,2 0,8 1,2 0,8 1,5 1,6 1,35 1,6 1,5 110 m²+t 1,5 1,5 1,5 1,5 1,5 0,8 1,5 0,8 0,8 1,5 1,5 1,5 1,5 0,8 1,5 0,8 0,8 1,5 1,5 1,5 10,6 3,7 7,46 8,12 8,51 7,34 7,46 3,7 10,6 23,5 24,5 7,34 8,51 8,12 ARMADO TRANSVERSAL SUPERIOR. ARMADO LONGITUDINAL SUPERIOR. ARMADO TRANSVERSAL INFERIOR. ARMADO LONGITUDINAL INFERIOR. REPLANTEO. ARQUITECTURA.
ATALAYA ENSAYOS PARA UN NUEVO HÁBITAT URBANO CIUDAD VIVIENDA PAISAJE. P F C I e n t r ega final 13 0 7 .2023 L UCI A SAN T OS BUC E T A M á s t e r H abilita n t e E T S A S e villa (U S ) I M A 01 Coo r dinador: AMAD E O RAMOS CARRANZA PROTECCIÓN CONTRA INCENDIOS P7 P8 P9 P10 P11 P12 P13 P14 P15 P1 P2 P3 P4 P5 P6 P0 P-1 SECTOR 5 2430 m² SECTOR 4 486 m² SECTOR 3 1560 m² SECTOR 2 1560 m² SECTOR 1 1560 m² SECTOR 6 SECTOR 7 3205 m² 3 3 5m Recorrido de evacuación Ocupantes Suma ocupantes en salida de planta Salida de planta 3 7 R-120 EI-60 EI230-C5 EI-30 AE 23 23 23 23 23 23 23 23 23 39 39 42 42 35 240 367 243 ∑ cuarto técnico VENT. SÓTANO 1 30 m2 cuarto técnico depósito PCI 30 m2 cuarto técnico AFS 57 m2 RITI 15 m2 cuarto técnico GEOTERMIA 60 m2 cuarto técnico ACOMETIDAS 50 m2 110 m2 10% 6.50 57 57 57 57 40m 35m 32m 30m 23 24m 1600 1200 1.20 1500 900 900 1.35 1.20 1500 900 900 22m 35 e_1:200 0,5 2,5 63.00 m 59.50 m 56.00 m 52.50 m 49.00 m 45.50 m 42.00 m 38.50 m 35.00 m 31.50 m 24.50 m 21.00 m 17.50 m 14.00 m 10.50 m 7.00 m e_1:400 10 11 HIDRANTE DE INCENDIOS HIDRANTE DE INCENDIOS AVSAN JERÓNIMO

de las bajantes de aguas pluviales para un

de ventilación con válvulas de aireación en cubierta

para evitar salida en cubierta transitable

Sin embargo, se decide sobredimensionar todas las bajantes a Ø110mm para evitar posibles problemas las cotas altimétricas vienen dadas en función de la altura que alcanza el mortero de creación de pendientes sobre el nivel del forjado

ATALAYA ENSAYOS PARA UN NUEVO HÁBITAT URBANO CIUDAD VIVIENDA PAISAJE. P F C I e n t r ega final 13 0 7 .2023 L UCI A SAN T OS BUC E T A M á s t e r H abilita n t e E T S A S e villa (U S ) I M A 01 Coo r dinador: AMAD E O RAMOS CARRANZA SANEAMIENTO Vivienda A Vivienda B Vivienda C Vivienda D Alojamiento A Alojamiento B Alojamiento C Alojamiento D Alojamiento E Alojamiento F Vivienda A Vivienda B Vivienda C Vivienda D Vivienda A Vivienda B Vivienda C Vivienda D Vivienda A Vivienda B Vivienda C Vivienda D Vivienda A Vivienda B Vivienda C Vivienda D Vivienda A Vivienda B Vivienda C Vivienda D Vivienda A Vivienda B Vivienda C Vivienda D Alojamiento A Alojamiento B Alojamiento C Alojamiento D Alojamiento E Alojamiento F Alojamiento A Alojamiento B Alojamiento C Alojamiento D Alojamiento E Alojamiento F Alojamiento A Alojamiento B Alojamiento C Alojamiento D Alojamiento E Alojamiento F Alojamiento A Alojamiento B Alojamiento C Alojamiento D Alojamiento E Alojamiento F Bajante aguas residuales Bajante pluviales Ventlación primaria Ventilación secundaria Sumidero pluviales Sumidero garaje Arqueta separadora de arenas Arqueta separadora de grasas Bomba de achique Arqueta sifónica de registro AR Red general de saneamiento 160 125 90 160 125 160 90 Ø 110 Ø 110 Ø 110 Ø 110 P7 P8 P9 P10 P11 P12 P13 P14 P15 P1 P2 P3 P4 P5 P6 P0 P-1 Cuarto lavado y planchado Sala de fiestas 8,17 8,06 9,65 8,10 10,30 3.91 8,10 5,73 11,01 +0.09m 3.3% +0.09m 1.6% +0.09m 2% 3.3% +0.09m 2.4% 93.5m² Ø 63mm 7,91 4.05 4.18 1.98 1.60 8,11 23,60 7,13 3,40 24,65 5,45 2,40 1,85 2,00 3,56 6,05 2,88 1,20 1600 1200 0.80 1.50 1.35 8,51 7,34 8,12 3,20 2,07 1,24 3,70 7,40 10,55 8,10 8,01 11,25 8,10 8,10 11,25 3,89 7,40 8,37 7,34 Ø 110mm 87m² Ø 63mm 2.05 3.02 3.02 4.43 +0.12m 3% 5.8% +0.12m 6.45% +0.12m 3.3% 2.93 1.22 Acorde con Tabla B.1 de Intensidad Pluviométrica y la Figura B.1 Mapa de isoyetas y zonas pluviométricas del Anexo B del DB HS, Sevilla es zona pluviométrica B dentro de una isoyeta de 40 lo que equivale a un intensidad de precipitación de 90 mm/h. De este modo, según la tabla Tabla 4.6 o r e m u N de sumideros en n o c n u f de la superficie de cubierta: S= 457m² --> nº sumideros ≥ 4 S=317m² --> nº sumideros ≥ 4 1 Dimensionado bajantes pluviales
CTE DEB HS Tabla 4.8 Diámetro
régimen pluviométrico de 100 mm/h: B1-->S= 110m²--> Ø 63mm -->Ø110 B2-->S= 57m²--> Ø 50mm-->Ø110 B3-->S= 150m²--> Ø 75mm-->Ø110 B4-->S= 24m²--> Ø 50mm-->Ø110 1 2
1 CUBIERTA INTERMEDIA TRANSITABLE 2 CUBIERTA SUPERIOR NO TRANSITABLE B1-->S= 73m²--> Ø 63mm-->Ø110 B2-->S= 181m²--> Ø 90mm-->Ø110 B3 -->S= 146.5m²--> Ø 75mm-->Ø110 B4 -->S= 89m²--> Ø 63mm-->Ø110 Bajantes
subsistema
1.90 0.80 1.50 1.60 1.35 1.60 110 m²+t 1.50 1.50 1.50 1.50 0.80 1.50 1.50 S=5.46m² S=5.52m² S=1.87m² S=14.52m² S=10.13m² S=11.01m² S=14.28m² S=28.06m² 8.25 6.17 1.40 0.68 16.03 6.17 1.40 1.88 1.20 2.40 1.20 1.32 0.19 0.28 2.40 3.08 2.70 4.91 2.15 1.50 5.77 4.23 1.97 4.23 1.20 1.78 0.84 3.07 1.80 4.30 5.53 1.33 e_1:50 0,50 2 1 1.20 0.92 2.17 3.40 1.20 Ø40P2% Ø 160 Ø 40 P2% Ø 32 P2% P2%Ø32/ Ø110 Ø 40 / P2% Ø 40 P2% Ø90/P2% Ø100/P2% Ø 32 / P2% Ø 100 / P2% Ø 160 Ø 40 / P2% BAJANTE DE AGUAS RESIDUALES ESQUEMA DE PRINCIPIO INSTALACIONES DE SANEAMIENTO RECOGIDA Y EVACUACIÓN DE PLUVIALES Ø 40 Ø 40 Ø 110 Ø 63 Ø 32 Ø 100 Ø 160 Ø 90 Ø 40 Ø 32 Ø 100 Ø 40 Ø 160 Ø 90 Ø 40
según
con
2
ATALAYA ENSAYOS PARA UN NUEVO HÁBITAT URBANO CIUDAD VIVIENDA PAISAJE. P F C I e n t r ega final 13 0 7 .2023 L UCI A SAN T OS BUC E T A M á s t e r H abilita n t e E T S A S e villa (U S ) I M A 01 Coo r dinador: AMAD E O RAMOS CARRANZA ELECTROTECNIA +TELECOMUNICACIONES DGMP automático protección de sobretensiones) hasta 30 puntos de luz DGMP (interruptor general automático protección de sobretensiones) 30 mA DIFERENCIAL 6000 MAGNETOTÉRMICO MAGNETOTÉRMICO MAGNETOTÉRMICO MAGNETOTÉRMICO C16-2P MAGNETOTÉRMICO C1 ILUMINACIÓN hasta 30 puntos de luz 2x2,5mm²+TØ16 hasta 20 tomas de 16A hasta 2 tomas de 25A C8 ILUMINACIÓN ADICIONAL 2x1,5mm²+TØ16 C10 PREVISIÓN 2x1,5mm²+TØ16 P7 P8 P9 P10 P11 P12 P13 P14 P15 P1 P2 P3 P4 P5 P6 P0 P-1 RITS Vivienda A Vivienda B Vivienda C Vivienda D RS RTR RTR RTR RTR RS RTR RTR RTR RTR Vivienda A Vivienda B Vivienda C Vivienda D RS RTR RTR RTR RTR Vivienda A Vivienda B Vivienda C Vivienda D RS RTR RTR RTR RTR Vivienda A Vivienda B Vivienda C Vivienda D RS RTR RTR RTR RTR Vivienda A Vivienda B Vivienda C Vivienda D RS RTR RTR RTR RTR RS RTR RTR RTR RTR Vivienda A Vivienda B Vivienda C Vivienda D RS RTR RTR RTR RTR Vivienda A Vivienda B Vivienda C Vivienda D RS RTR RTR RTR RTR RITI armario 1x0.5x2 m RE RS Alojamiento A Alojamiento B Alojamiento C Alojamiento E Alojamiento F RS RTR RTR RTR RTR Alojamiento D RTR RTR Alojamiento A Alojamiento B Alojamiento C Alojamiento E Alojamiento F RS RTR RTR RTR RTR Alojamiento D RTR RTR Alojamiento A Alojamiento B Alojamiento C Alojamiento E Alojamiento F RS RTR RTR RTR RTR Alojamiento D RTR RTR Alojamiento A Alojamiento B Alojamiento C Alojamiento E Alojamiento F RS RTR RTR RTR RTR Alojamiento D RTR RTR Alojamiento A Alojamiento B Alojamiento C Alojamiento E Alojamiento F RS RTR RTR RTR RTR Alojamiento D RTR RTR Recepción Aloj. RS RTR ARQUETA armario 45x15x45 cm RE RED PÚBLICA DE DISTRIBUCIÓN MEDIA TENSIÓN (20 kV) CT CENTRO DE TRANSFORMACIÓN 800 KVAs ACOMETIDA BAJA TENSIÓN (400V) CGP CAJA GENERAL DE PROTECCIÓN LÍNEA GENERAL DE ALIMENTACIÓN (LGA) CD CAJA DE DERIVACIÓN INTERRUPTOR GENERAL DE MANIOBRA DGMP PREVISIÓN DE CARGA VIVIENDAS: GRADO DE ELECTRIFICACIÓN ELEVADO: 9200W 14,8 x 9200 W=136,160 kW CGP CGP DERIVACIÓN INDIVIDUAL (DI16) DERIVACIÓN INDIVIDUAL (DI17) PREVISIÓN DE CARGA ALOJAMIENTOS: GRADO DE ELECTRIFICACIÓN BÁSICO: 5750W nº=30 15,3 + (30-21) x 0,5 = 19,8 19,8 5750W = 113,85 kW DERIVACIONES INDIVIDUALES (DI1-30) DISPOSITIVOS GENERALES DE MANDO PROTECCIÓN INSTALACIÓN INTERIOR ALOJAMIENTO CAJA GENERAL DE PROTECCIÓN LÍNEA GENERAL DE ALIMENTACIÓN (LGA) INTERRUPTOR GENERAL DE MANIOBRA VIVIENDAS (X16) DISPOSITIVOS GENERALES DE MANDO PROTECCIÓN INSTALACIÓN INTERIOR VIVIENDA DERIVACIÓN INDIVIDUAL (DI1) DGMP CGP DERIVACIÓN INDIVIDUAL (DI2) DERIVACIÓN INDIVIDUAL (DI3) PREVISIÓN DE CARGA VIVIENDAS: GRADO DE ELECTRIFICACIÓN ELEVADO: 9200W nº=16 12,5 x 9200W = 115,000 kW CGP PREVISIÓN DE CARGA TOTAL GARAJE: Total = 93.6 kW PREVISIÓN DE CARGA ALUMBRADO ZONAS COMUNES: 10 W/m² 150 m² 6 plantas = 9000 W = PREVISIÓN DE CARGA 2 ASCENSORES (ITA 2_400kg de carga-5personas-velocidad 1m/s): 2 7,5 kW = PREVISIÓN DE CARGA EQUIPO DE P = Q x H 367 µ Dos bombas de 1,5 kW PREVISIÓN DE CARGA BOMBAS DE CALOR (ACS+CLIMA) X6: FUSIBLE DE SEGURIDAD PREVISIÓN DE CARGA TOTAL: CAJA GENERAL DE PROTECCIÓN PREVISIÓN DE CARGA VENTILACIÓN MECÁNICA (UTAE): 40 kW DE MANIOBRA FUSIBLE DE SEGURIDAD PREVISIÓN DE CARGA 10 W/m² 900 m² = 9000 W = 9 kW PREVISIÓN DE CARGA 2 ASCENSORES (ITA 2_400kg de carga-5personas-velocidad 1m/s): 2 x 7,5 kW = 15 kW PREVISIÓN DE CARGA EQUIPO DE BOMBEO: P = Q H 367 x µ = 6,217kW Serie de tres bombas con P= 4 kW CARGA VEHÍCULO ELÉCTRICO: 3.680 W x 10 plazas = 36,80 kW (a aumentar en el futuro) PLANTA (vent. natural) 10 W 998,68 m² = 9,986 kW PLANTA -1 (vent. forzada): 20 W 2343,15 m² = 46,863 kW CAJA GENERAL DE PROTECCIÓN PREVISIÓN DE CARGA TOTAL: PREVISIÓN TOTAL DE POTENCIA 608,76 kW GE PREVISIÓN DE CARGA ALUMBRADO EMERGENCIA ZONAS COMUNES ALOJAMIENTOS: 2 W/m² 150 m² 6 plantas = 4500 W = 1,8 kW PREVISIÓN DE CARGA ALUMBRADO EMERGENCIA UNIDADES 2 W/m² 136 m² 6 plantas = 4500 W = 1,8 kW PREVISIÓN DE CARGA ALUMBRADO EMERGENCIA ZONAS COMUNES VIVIENDAS: 2 W/m² (25 m² x plantas 100 m²) = 550 W = 0,55 kW PREVISIÓN DE CARGA ALUMBRADO EMERGENCIA ESCALERAS: PREVISIÓN DE CARGA TOTAL S. GENERALES: Total = 150,15 kW INTERRUPTOR GENERAL DE MANIOBRA CONTADOR EMERGENCIA CAJA GENERAL DE PROTECCIÓN GENERADOR FOTOVOLTAICO 120 MÓDULOS DE 450 Wp PRODUCCIÓN ANUAL: 120 paneles x 450 Wh --> 89.059 kWh (fuente de cálculo PVGIS) PREVISIÓN DE CARGA ASCENSOR DE EMERGENCIA: 7,5 kW INTERRUPTOR GENERAL DE MANIOBRA VIVIENDAS (X20) DERIVACIÓN INDIVIDUAL (DI15) 1.90 0.80 1.50 1.60 1.35 1.60 110 m²+t 1.50 1.50 1.50 1.50 0.80 1.50 1.50 S=5.46m² S=5.52m² S=1.87m² S=14.52m² S=10.13m² S=11.01m² S=14.28m² S=28.06m² 8.25 6.17 1.40 0.68 16.03 6.17 1.40 1.88 1.20 2.40 1.20 1.32 0.19 0.28 2.40 3.08 2.70 4.91 2.15 1.50 5.77 4.23 1.97 4.23 1.20 1.78 0.84 3.07 1.80 4.30 5.53 1.33 e_1:50 0,50 2 1 1.20 0.92 2.17 3.40 1.20 BASE DE ENCHUFE 2P+T (10/16A) (Empotrada. Altura 0,3m del suelo) PORTERO ELECTRONICO (Empotrado. Altura 1,1m del suelo) (Empotrado. Altura 1,1m del suelo) (Superficial. Altura 2,2m del suelo) PUNTO DE LUZ 29+T (En techo) (En pared) REGISTRO TOMA ICT RTV (Empotrada, Altura 0,3m del suelo) INTERRUPTOR SIMPLE (10A) REGISTRO TOMA ICT RTV/TBA (Empotrada, Altura 0,3m del suelo) REGISTRO TOMA ICT RJ-45 TELEFONIA Y FIBRA ÓPTICA (Empotrada, Altura 0,3m del suelo) INTERRUPTOR CONMUTADO (10A) (Empotrado. Altura 1,1m del suelo) (Empotrado, Altura 1,1m del suelo) DI Øext = 50mm S = 50mm² Sneutro = 50mm² Sprotección = 25mm² ESQUEMA DE PRINCIPIO INSTALACIONES DE TELECOMUNICACIONES. ESQUEMA DE PRINCIPIO INSTALACIONES ELÉCTRICAS. ESQUEMA UNIFILAR VIVIENDA. ESQUEMA UNIFILAR ALOJAMIENTO.

Turn static files into dynamic content formats.

Create a flipbook
Issuu converts static files into: digital portfolios, online yearbooks, online catalogs, digital photo albums and more. Sign up and create your flipbook.