LS
Leah Schuminsky
Interior Design Student Portfolio
Appalachian State Unversity
Expected Graduation May 2026

Commercial Office
Hospitality
Image Place Holder will be added at end of semester

Johns for John

Leah Schuminsky
Interior Design Student Portfolio
Appalachian State Unversity
Expected Graduation May 2026
Commercial Office
Hospitality
Image Place Holder will be added at end of semester
Johns for John
Location: Asheville, North Carolina Year: Spring 2024
Skills Used: AutoCAD, Sketchup, Twinmotion Professor: Jeanne Mercer-Ballard
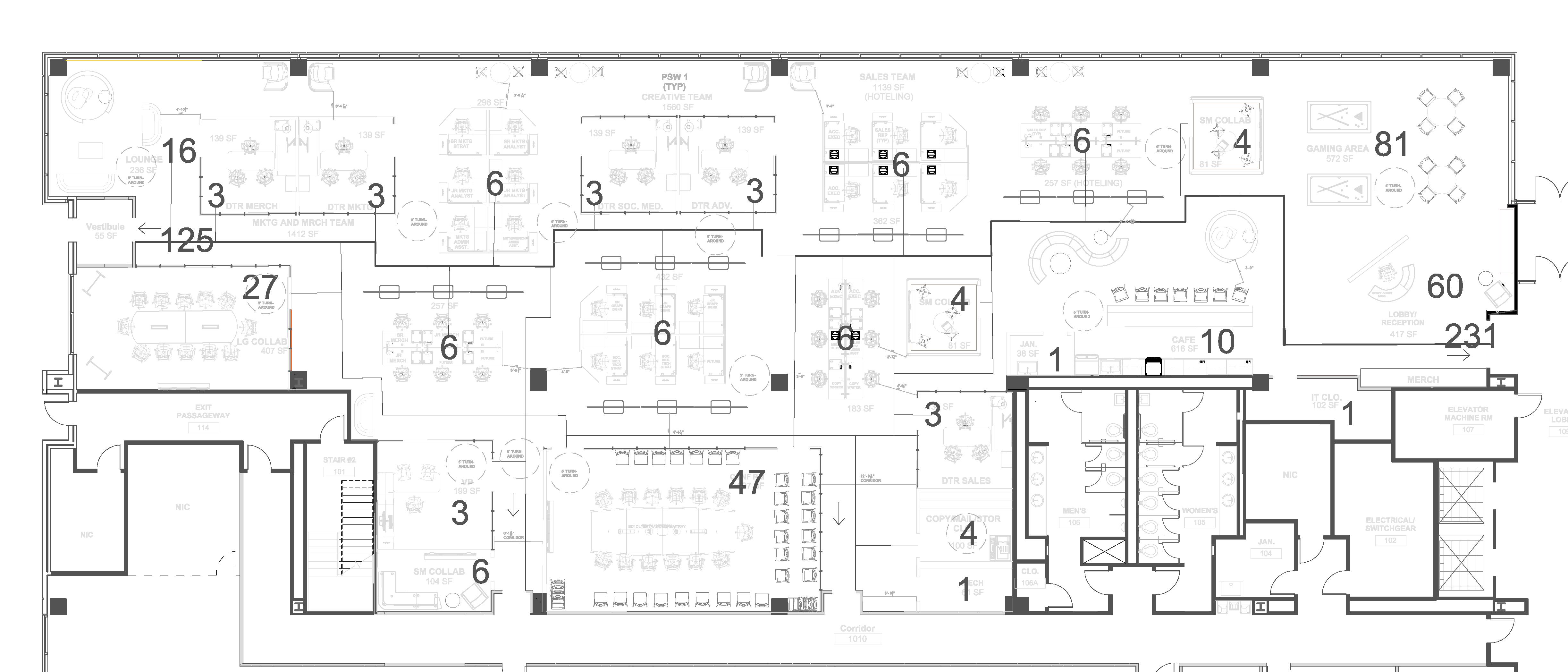
I was tasked with deNitro’s new Southeast Marketing office for their location in Asheville, NC. The company is a very flat hierarchical company. Their special requirements are to be LEED certified because their goal is to continue to be better and do better. The office was also designed around the post Covid-19 pandemic.
Nitro is a privately owned company that was founded in Seattle, Washington in 1990. One of their key brand values is mutual respect. They start with their employees, continues with their partners, suppliers, and distributors, and reaches all the way to the riders out there buying the Nitro products. They enjoy having the family feel because it makes them who they are and they come from all corners of the world. Nitro cares about their business’s environmental impact, social responsibility, and the global snowboarding community. They focus on quality to extend a product’s lifespan. They do not excessively overproduce products, only what is on demand. They consider and choose the most sustainable strategy for lower energy and carbon emissions when shipping product around the globe. They also source alternative and sustainable materials to substitute those based on fossil fuels and higher carbon emissions.
The result of the COVID-19 pandemic led to lots of changes within the workplace. These changes include, working remotely and adding more collaborative spaces into the workplace. With now having the option of being remote and having more collaboration spaces, technology has also evolved within the workplace to allow those who are working from home to be included in the in office work. Workers now want to work from home 2-3 days a week, but when they are in the office they want to go to a place that would give them a purpose.
-“There is a growing need for connectivity, both physically and digitally. To accommodate hybrid working patterns and remote collaboration, private spaces and technologies should be offered (alongside social zones) to support meetings with colleagues who are working remotely.”
Source: Mantesi, E., Chmutina, K., & Goodier, C. (2022, May). The Office of the Future: Operational Energy Consumption in the post-pandemic era. Energy research & social science. https://www.ncbi.nlm.nih.gov/pmc/articles/
PMC8754501/
As people return to the office post-pandemic, the reason for coming back has shifted from a socializing standpoint to one that is about focusing on getting work done individually and with colleagues.
-“The pandemic has fundamentally changed not only how we work, but also the spaces and resources that we need to do our best work and meet our expectations of the office.”
1. Mobility: workers expecct to be able to work from anywhere.
2. Choice: having a variety of work settings.
3. Privacy: expect to have the privacy they had from home.
4. Hybrid: improve hybrid spaces in the office.
5. Health & Well-being: health and wellness need to be built in.
Source: McLaurin, J. P. (2023, July 12). 5 trends driving the new workplace. Gensler. https://www.gensler.com/blog/5-trends-driving-the-new-post-pandemic-workplace
- Performing temperature checks or adjusting circulation patterns.
- Good communication on working away from the office remotely.
Legend: Research Data Chart:
INDIVIDUAL SPACES
COLLABORATIVE SPACES SUPPORT SPACES
- Incorporating more technology when collaborating so that collaboration is more effective inside and outside the workplace.
- "In the short term, you may be taking steps such as performing temperature checks or adjusting circulation patterns throughout your space.”
Source: Steelcase. (n.d.). https://www.steelcase.com/content/uploads/2023/04/2023_SC_Whitepaper_OrganizationalCulture.pdf
The concept of “Go with the flow” comes from the foundation of Nitro as a company. When Nitro started over 30 years ago, there was no grand master plan. Just pure passion for snowboarding and many ideas for products. Not even a business plan or a long-time perspective. Nitro didn’t think about what the overall company would be in 30 years, and they focused only on the stuff they wanted to build.
- “Go with the flow.
People tend to spend more time away from their workstations post pandemic to be more collaborative, and get to know their colleagues better. Having lots of informal "lounge" spaces in an office accommodates for those individuals.
DESIGN NOTES: Custom Reception Desk with 9" toe kick and a drop down counter for accessibility purposes. WOODWORKS Grille is installed on the reception desk with the material not being limited to just ceiling installation.
- meets USGBC LEED Version 4/4.1 ID&C Standards
- sourced raw materials
- material ingredient reporting
The Dune Panels from Modular Arts are acoustically sound and easy to install vertically or horizonatally. All panels must be glued with an approved adhesive and screw mounted to the substrate.
- meets LEED Materials and Resources 2.1/2.2:
Construction Waste Management
- meets LEED Indoor Environmental Quality 4.1: Adhesives and Sealants
Materials and Finishes:
Demountable
Reception Wall
Dune Panels: Modular Arts
Dropped Wood Slat Ceiling WOODWORKS
Grille Dark Cherry
7097BO: Armstrong Ceilings
Wallcovering: Wavelength
Plasma:National Solutions L71102
Legend: LEED CERTIFIED/ SUSTAINABLE ACOUSTICS
Year: Fall 2024
Skills Used: AutoCAD, Sketchup, Revit, Twinmotion Professor: Jeanne Mercer-Ballard
Project Profile:
I was tasked with designing an Urban Biophilic hotel that transports visitors out of the country into the beautiful Carribean Sea into the Country of Jamaica within the city limits of High Point, North Carolina. This innovative hotel will create a dynamic and creative space that implements cutting edge design and utilizing new and advanced technology systems, materials and construction patterns. To create an excellent experience the design will incorporate biophilic design patterns, be fully ADA compliant using universal and inclusive design principles to provide a fully functional, accessible, and comfortable experience for all, and meet LEED and WELL certifications by incorporating natural and/or environmentally friendly/ethically sourced materials and products, conservation of energy and water use, etc.
Client Profile:
The people who come to stay at the Xaymaca hotel can vary in terms of their profession or marital status. Many people come to High Point because of it being the furniture capital of the world. The High Point Furniture Market attacts many people within the design and furniture markets. People can also come to see family, travelling for work, or to explore the Piedmont Triad. Many middle aged people in their 30s and 40s need a sense of self-explortation, pleasure, and a feel of easiness. In a high-stress driven market it is good to have a place to destress and connect with nature. The Xaymaca Hotel offers a stress-free environment, and can allow customers in this industry to apprecitate the sustainsble practices that are blended into the Jamaican culture.
will be added at end of semester
The Xaymaca Hotel is located in High Point in place of the former hosiery mill built in 1922 with most of the brick facade being given a more modern look. The hotel is focused more on attracting business people more specifically for the High Point Furniture Market for it’s furniture and textiles. High Point has a great city life and has an affordable cost of living. The High Point population is a majority of middle aged people, and consists of about 49% white, 32.25% African American, 7.81% Asian, and 6.91% other races. Jamaica as a whole has abourt 21,000 people in NC. Aside from the furniture market, there are numerous art galleries, breweries, and the rest of the Piedmont Triad is a nice drive to take while you visit.
Jamaica is the third largest island in the Caribbean Sea, west of Haiti, and is south of Cuba. Jamaica covers around 4,411 square miles, featuring mountains, with a narrow, discontinuous coastal plan. The highest point on the island is 2,256 meters in the Blue Mountains. The island is very tropical, hot, and humid. Jamaica’s population is around 2.8 million people. The majority of the population lives in Kingston with around 937,000 people. 59.6% of the population lives in urban areas.Most of the country’s population is of African descent, with smaller groups of East Indians, Chinese, and whites. Some of the citizenry has a mixed-race ethnicity.
Biophilic Design can reduce stress, improve cognitive function and creativity, improve our well-being and expedite healing; as the world population continues to urbanize, these qualities are ever more important. It is essential to provide people with opportunities to live and work in healthy places with less stress and greater overall health and well being. Biophilia is the humankind’s innate biological connection with nature like the flow of water or crashing waves. Emphasizes human adaptations to the natural world, depends on repeated and sustained engagement with nature, requires reinforcing and integrating design interventions that connect with the overall setting or space, fosters emotional attachments to settings and places, and fosters positive and sustained interactions and relationships among people and the natural environment.
Xaymaca is an Arawak word that meaning “land abounding with springs”, from which the Jamaican translation is “land of wood and water”. The Taino people, were the it’s inhabitants of Jamaica.
Concept Statement:
The Taino people named the island Xaymaca, and the word Jamaica was derived from Xaymaca. The Taíno people arrived in Jamaica from South America around 600 AD and named the island after its dense forests and many fast-flowing streams. Xaymaca is also a Jamaican rum.
Color Theory:
Yellow, green, and blue is made up of an analogous color theory with neutrals to give off an earthy feeling and directly connects to “the land of wood and water”. In Jamaica, the colors yellow and green are represented in the Jamaican flag. With yellow representing the sunshine, and the green representing the land.
will be added at end of semester
Location: High Point , North Carolina
Fall 2024
Mercer-Ballard
The restroom our team has designed is inclusive because it is fully ADA accessible, has gender neutral left and right restrooms, and has a ambulatory stall.
- 1524mm (5’) turnarounds in required locations
Clear forward/or sideway approaches in required locations
- 914mm (36”) doorways in required locations
- 863mm (34”) ambulatory stall doorway
- Minimum of 914mm (36”) aisles
- Required ADA accessible stall in each restroom
-Urinals have 914mm (36”) required locations
- Ambulatory stalls are provide for increased accessibility
- Baby changing tables are provided in every restroom
- Feminine hygiene dispensers and receptacles are provided in every stall
- Hooks are provided in every restroom and stall
- Three categories of restrooms are available for inclusivity
- Left and right handed single compartment stalls are provided
- Accessible water fountains are provided
Year: Fall 2023
Skills Used: AutoCAD, Sketchup,Twinmotion
Professor: Ingrid Schneider
Introduction
I was tasked with designing an unfinished apartment loft space in a midsize urban neighborhood for a non-nuclear family from a non-western country. The loft will also meets universal design requirements by being fully ADA accessible and having an overall sustainable design.
Location
They are located in Baltimore, MD which is also know as charm city or diverse city, and they live in Canton which is a historic waterfront family-friendly neighborhood. It is an allrounder for the family friendly, urban lifestyle, and pulsating social scene.
A Jewish Reformative Family that consists of a single dad who has been recently widowed with his two children Ezra in a wheelchair, his daughter Avi, and his mother in law (Bubbe) who immigrated from Israel moved in to help out with the children. The family needs a residence that helps them transition into their new normal. The father often likes to work from home to be closer with the children and would need his own office, Bubbe likes to entertain in the main living area for the Jewish holidays and incorporate the memorial of her late daughter, The children want a movie room for thir family to come together, as well as having their own personal space for their hobbies.
Concept Statement: warm, and inviting, but also has polished and refined appearance.
- “ Aim for casual sophistication, cozy elegance, andlaid-back luxury”- unknown
- By incorporating natural, organic, and earthy colors into the space. The colors will help ed create a warm and inviting feeling. The organic elements will help with the polished and refined appearance to give off the elegant feel.
Having a home that faces the North and allows the sun to come in from the West allows for more sunlight in the evening. This is beneficial for my family because the Dad is a psychatrist and the family as a whole is Jewish and Jewish traditions and services all take place in the evening. Homes that are oriented to the north typically receive most of their direct sunlight in the back of the building. This causes a north-facing home to remain cooler in the summer.. In warmer climates, a north-facing home can have the benefit of reduced cooling costs when temperatures climb in summer. However, this means less natural light filtering in from the front of the house, since north-facing windows let in less sun.
Lifting Capacity: 750 lb
Standard Lift Height: 64”
Maximum Lift Height: 160”
Lift Speed (FPM):12
Arrives Assembled: Yes
Drive System:
Direct Drive ACME Screw
Battery Powered Option: Yes
Constant Pressure Platform Control: Yes
Alarm Button: Included
Platform Type: Non-Skid (Epoxy crushed and recycled tires)
Platform Size: W 34”-36” x L 54”-60”
Optional Platform Sizes: W 31”-42” x L 46”-66”
Platform Configuration: Straight-Thru Access
Optional Platform Configurations: Same Side Entry-Exit, 90 Degree Adjacent Access Grab Rail: Not Included
Maximum Stops: 3 Portable: Optional
LEED CERTIFIED/ SUSTAINABLE
Appliance Schedule Cabinet Schedule
Universal Design Considerations:
- 0’-9” toe kick under cabinets
- 5’- 0” turnaround
- roll under sink and island
- ADA compliant three- function
sink faucet with a single lever handle.
- D-Shaped handles on all cabinets