Carnet de projet - Besançon

Page 1

Carnet de projet

Réhabilitation d’une maison de ville des années 1900 Août à Novembre 2021

Lorène Tournier

Photographie de la façade sur rue de la maison, 2021, L. Tournier

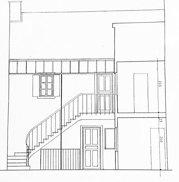
Élévation de la maison existante, 2021, L. Tournier

Contenu

I Etat des lieux

a Le rez-de-chaussée 01 Le couloir d’entrée 02 Les chambres b Le premier étage 11 La pièce de vie, cuisine 12 Salle de bain c Le deuxième étage 21 La chambre sous combles d L’extérieur 05 La cour à l’arrière

II Conception - Chantier - Réception

a La verrière L’escalier

p 1 p 2 p 3 p 4 p 5 p 6 p 7 p 8 p 9 p 10 p 11 p 14

b La cuisine au premier étage c Le balcon

III Photographies avant/après

a Les circulations 01 Couloir d’entrée 02 Verrière continuité de l’entrée 03 L’escalier dans la verrière

b Les pièces

11 Pièce de vie - cuisine à l’étage 03 Chambres au rdc 21 Chambre sous combles 12 Salle de bain et d’eau

c Les espaces extérieurs

05 Le patio à l’arrière 23 Le balcon, bain de soleil

p 17 p 20 p 23 p 24 p 25 p 26 p 27 p 28 p 29 p 30 p 31 p 32 p 33 p 34

Front de rue, description des façades d’immeubles sur rue, chronologie de construction de gauche à droite, formation de la rue depuis le haut de la rue (proche de la gare Viotte) vers le bas, 2021, L. Tournier

Etat des lieux I

Plan des toitures de l’ilôt, maison du projet en jaune, 2021, L. Tournier

- 1 -

01 Le couloir d’entrée

02 La chambre

03 Le salon/cuisine

a

Rez-de-chaussée

- 2 -

Photographie de l’existant, couloir d’entrée de la maison, frisette en sous-bassement et au plafond, sol carreaux de ciment d’origine, portes anciennes moulurées, mars 2021, L. Tournier

Photographie de l’existant, couloir d’entrée de la maison, sol carreaux de ciment déjointoillés, mars 2021, L. Tournier

N

Etat des lieux Le couloir d’entrée a

Plan de releve du couloir d’entrée de la maison, trame des carreaux de ciment, dimensions de la frisette en sous-bassement, et des surfaces associées, avril 2021, L. Tournier

- 3 -
I
N

Photographie de l’existant, chambre au rez-dechaussée, murs peints, frisette au plafond, parquet sapin peint en bleu, mars 2021, L. Tournier

N

Plan de relevé, chambre du rez-de-chaussée, dimensions et réseaux électrique, avril 2021, L. Tournier

Photographie de l’existant, chambre au rez-dechaussée,linteau de fenêtre en OSB, menuiseries doubles vitrages bois, radiateur en fonte non peint, mars 2021, L. Tournier

N

Etat des lieux

Photographie de l’existant, salon cuisine au rdc, murs peints et carrelées dans la cuisine, frisette au plafond, sol en parquet sapin vernis, tableau électrique dans coffrage bois, meubles cuisines, accès à la salle de bain, espace encombré, mars 2021, L. Tournier

N

Les chambres au rez-de-cour

Plan de relevé, salon/cuisine du rez-de-chaussée, dimensions, cuisine et parquet surfaces associées, avril 2021, L. Tournier

Photographie de l’existant,salon cuisine au rez-dechaussée, encadrement et linteau de fenêtre en OSB, mur en lames de volet bois avec joints creux, mars 2021, L. Tournier

I
- 4 -
a

11 Pièce de vie 12 Salle de bain

b

Premier étage - 5 -

Photographie de l’existant, cuisine dans pièce de vie, mobilier fait maison en OSB, plaque de placo-plâtre apparentes sans fnition, plafond en frisette bois, mars 2021, L. Tournier

Photographie de l’existant, cuisine dans pièce de vie,chaudière sur pied veillissante, hotte de cuisson non branchée, plaque de cuisson gaz, four electrique mars 2021, L. Tournier

N 11

Etat des lieux La pièce de vie

Plan de relevé de la pièce de vie à l’étage, dimensions et réseaux électriques et chauffages, surfaces associées, avril 2021, L. Tournier

N - 6I
b

Photographie de l’existant, salle de bain du rez-dechaussée,murs carrelés et tapissés, séparation douche/ baignoire en OSB, frisette au plafond, sol carrelé jaune et blanc, mars 2021, L. Tournier

N

Plan de relevé de la salle de bain du rez-dechaussée, dimensions, avril 2021, L. Tournier

Photographie de l’existant, salle de bain du rez-dechaussée, séparation lavabo/porte en OSB, mur en lames de volet bois, encadrement de baignoire en OSB peint, mars 2021, L. Tournier

N
12 04

Etat des lieux

Photographie de l’existant, salle de bain de l’étage, murs carrelés et OSB en partie haute, baignoire, douche, wc et lavabo en faïence bleue, corniches IP sur le haut de la faïence murale, poutres bois en plafond avec frisette, ancienne niche pour poêle sans fnition, parquet châtaignier, mars 2021, L. Tournier

Plan de relevé de la salle de bain de l’étage, dimensions, équipements sanitaires et réseaux, avril 2021, L. Tournier

Photographie de l’existant, salle de bain de l’étage, fenêtre sur sèche-serviette, rideau de séparation avec le salon, mars 2021, L. Tournier

- 7 -
Les salles d’eau N b
I

Photographie de l’existant, chambre sous combles, mur pignon en OSB, sous-pentes en OSB et lame de volet bois, sol en agglomérés vissés, ferme en bois d’origine, mars 2021, L. Tournier

Photographie de l’existant, chambre sous combles, mur pignon en lame de volet bois, encadrement de velux sans cadre, garde-corps d’escalier en bois moulurée, mars 2021, L. Tournier

N 21

Etat des lieux La chambre sous combles c

Plan de relevé d’une chambre au rez-de-chaussée, dimensions et réseaux électriques, surfaces associées, avril 2021, L. Tournier

N - 8 -
I

Photographie de l’existant, cour arrière, façade des salles de bain en briques déjointoillées et non enduit, escalier en chêne massif avec garde-corps métallique, le tout d’origine, sol en ciment, mars 2021, L. Tournier

Photographie de l’existant, cour arrière sous bassement de l’escalier en bois, décollement de l’enduit sur les murs, ancienne ep, et support d’une marquise, EP traversante et fuyante, muret en pierre dejointoille, garde corps métallique sur la descente de cave, mars 2021, L. Tournier

N 05

Etat des lieux

Plan de relevé de la cour arrière, dimensions et circulations, surfaces associées, avril 2021, L. Tournier

N - 9I
d
La cour à l’arrière

Plan de l’étage, pièce de vie composée du salon et de la cuisine, une salle d’eau, le palier de la verrière, et un balcon.

L.L.

pièce de vie 37 m2

salle de bain 8 m2 balcon 3,5 m2

verrière cour arrière 11 m2

Plan du rez-de-cour, couloir d’entrée, deux chambres, une salle de bain, un verrière accédant à l’étage, et une cour extérieure.

chambre 1 17 m2

salle de bain 8 m2

verrière escalier 6 m2 accès cave chambre 2 17 m2

couloir 5,4m2

cour arrière 11 m2

Projection II

a La verrière L’escalier

b La cuisine au premier étage c Le balcon

- 10 -

Conception a La verrière

Façade de la verrière, projection de la réalisation.

Matériaux et composition : structure en mélèze, verre feuilleté simple vitrage, joints étanches et parclose en mélèze, deux portes coulissantes sont présentes au rdc donnant sur l’accès à la cave et à la cour, une porte pivotante à l’étage donne accès à un futur balcon, Juillet 2021, L. Tournier

- 11II

Photographie de la toiture existante sur cour, déconstruction d’une grande partie de la toiture, Juillet 2021, L. Tournier

Photographie de la nouvelle toiture, déplacement des velux, réemploi des éléments de structure Juillet 2021, L. Tournier

Chantier

Photographie de l’existant, couloir d’entrée de la maison, frisette en sous-bassement et au plafond, sol carreaux de ciment d’origine, portes anciennes moulurées, mars 2021, L. Tournier

Photographie de l’existant, couloir d’entrée de la maison, sol carreaux de ciment déjointoillés, mars 2021, L. Tournier

II
a La verrière - 12 -

Photographie de la verrière, structure bois, vitrage feuilleté, panneaux bois peints, nov. 2021, L. Tournier

Réception a La verrière

Photographie de la verrière, structure bois, vitrage feuilleté, panneaux bois peints, nov. 2021, L. Tournier

- 13 -
II

Conception a

Projection en coupe de l’escalier dans la verrière, escalier à deux quarts tournants, matériaux : limons en médium peints en blanc, marches et palier haut en lamellé-collé de chêne, Juillet 2021, L. Tournier

II
- 14 -
L’escalier

Photographie de l’existant, couloir d’entrée de la maison, frisette en sous-bassement et au plafond, sol carreaux de ciment d’origine, portes anciennes moulurées, mars 2021, L. Tournier

Photographie de l’existant, couloir d’entrée de la maison, sol carreaux de ciment déjointoillés, mars 2021, L. Tournier

Chantier a

Photographie de l’existant, couloir d’entrée de la maison, frisette en sous-bassement et au plafond, sol carreaux de ciment d’origine, portes anciennes moulurées, mars 2021, L. Tournier

Photographie de l’existant, couloir d’entrée de la maison, sol carreaux de ciment déjointoillés, mars 2021, L. Tournier

II
L’escalier
- 15 -

Photographie de la verrière, structure bois, vitrage feuilleté, panneaux bois peints, nov. 2021, L. Tournier

Réception a L’escalier

Photographie

- 16 -
II
de la verrière, structure bois, vitrage feuilleté, panneaux bois peints, nov. 2021, L. Tournier

Conception b La cuisine

Projection en plan de la cuisine, deux colonnes de rangements accueillants la chaudière et le réfrigérateur intégré, trois mètres de plan de travail, et une colonne de rangements avec un meuble sur mesure pour s’adapter aux faux-équerre de la construction, Juillet 2021, L. Tournier

II
- 17 -

Photographie de l’existant, couloir d’entrée de la maison, frisette en sous-bassement et au plafond, sol carreaux de ciment d’origine, portes anciennes moulurées, mars 2021, L. Tournier

Photographie de l’existant, couloir d’entrée de la maison, sol carreaux de ciment déjointoillés, mars 2021, L. Tournier

Chantier b La cuisine

Photographie de l’existant, couloir d’entrée de la maison, frisette en sous-bassement et au plafond, sol carreaux de ciment d’origine, portes anciennes moulurées, mars 2021, L. Tournier

Photographie de l’existant, couloir d’entrée de la maison, sol carreaux de ciment déjointoillés, mars 2021, L. Tournier

II
- 18 -

Photographie de la verrière, structure bois, vitrage feuilleté, panneaux bois peints, nov. 2021, L. Tournier

Réception b La cuisine

Photographie de la verrière, structure bois, vitrage feuilleté, panneaux bois peints, nov. 2021, L. Tournier

- 19 -
II

Projection en coupe de l’escalier dans la verrière, escalier à deux quarts tournants, matériaux : limons en médium peints en blanc, marches et palier haut en lamellé-collé de chêne, Juillet 2021, L. Tournier

II
Conception c Le balcon
- 20 -

Photographie de l’existant, couloir d’entrée de la maison, frisette en sous-bassement et au plafond, sol carreaux de ciment d’origine, portes anciennes moulurées, mars 2021, L. Tournier

Photographie de l’existant, couloir d’entrée de la maison, sol carreaux de ciment déjointoillés, mars 2021, L. Tournier

Chantier

Photographie de l’existant, couloir d’entrée de la maison, frisette en sous-bassement et au plafond, sol carreaux de ciment d’origine, portes anciennes moulurées, mars 2021, L. Tournier

Photographie de l’existant, couloir d’entrée de la maison, sol carreaux de ciment déjointoillés, mars 2021, L. Tournier

II
c Le
- 21 -
balcon

Photographie de la verrière, structure bois, vitrage feuilleté, panneaux bois peints, nov. 2021, L. Tournier

Réception

Photographie de la verrière, structure bois, vitrage feuilleté, panneaux bois peints, nov. 2021, L. Tournier

- 22 -
II
c Le balcon

III

Avant / Après

a Les circulations

01 Couloir d’entrée 02 Verrière continuité de l’entrée 03 L’escalier dans la verrière

b Les pièces

11 Pièce de vie - cuisine à l’étage 03 Chambres au rdc 21 Chambre sous combles 12 Salle de bain et d’eau

c Les espaces extérieurs

05 Le patio à l’arrière 23 Le balcon, bain de soleil

- 23 -

Le couloir

Photographie de l’existant, couloir d’entrée de la maison, frisette en sous-bassement rouge et bleu, plafond en frisette sapin vernis, sol carreaux de ciment d’origine, portes anciennes moulurées peintes en jaune et bleu, mars 2021, L. Tournier

Plan de relevé du couloir d’entrée, trame de carreaux de ciment, dimensions de la frisette en sous-bassement, et des surfaces associées, plan des réseaux électriques et chauffage, mars 2021, L. Tournier

Plan de projet, couloir d’entrée et verrière en continuité, puit de lumière, circulation traversante, septembre 2021, L. Tournier

Photographie de la réalisation, peinture sur l’ensemble des murs et du plafond, blanc satin et blanc mat, rénovation des carreaux de ciment, verrière dans la continuité du couloir, ouverture vers l’extérieur, mars 2021, L. Tournier

Avant/Après Le couloir d’entrée a

Photographie de l’existant, couloir d’entrée de la maison, sol carreaux de ciment déjointoillés, mars 2021, L. Tournier

Photographie de la réalisation, remise en état de la porte d’entrée, rénovation des carreaux de ciment et des seuils de porte, mars 2021, L. Tournier

III
- 24 -

La verrière

Photographie de l’existant, cour arrière, façade des salles de bain en briques déjointoillées et non enduit, escalier en chêne massif avec garde-corps métallique, le tout d’origine, sol en ciment, mars 2021, L. Tournier

Photographie de la réalisation, la verrière depuis la cour, structure en mélèze, panneaux en agglo peints en gris, balcon sur structure en mélèze, protection descente de cave, avril 2022, L. Tournier

Avant/Après La verrière, circulation verticale a

Photographie de l’existant, cour arrière couverte par une toiture composée d’une structure en bois sur poteaux, étanchéité, quatre fenêtres de toit dont deux électriques, murs décrépis, EP traversante et fuyante, muret en pierre déjointoillé, mars 2021, L. Tournier

Photographie de la réalisation, la verrière avec ses fenêtres de toit, structure peint en blanc, montant en mélèze, remplissage verre et panneaux agglo peint en gris, avril 2022, L. Tournier

II
- 25 -

L’escalier

Photographie de l’existant, cour arrière, escalier en chêne massif, avec garde-corps posé à l’anglaise en fer, sous-bassement en frisette bois le long de l’escalier d’origine, ancien support d’une marquise, mars 2021, L. Tournier

Photographie de la réalisation, verrière bois et verre, escalier en lamellé-collé de chêne vernis mat, garde-corps en réemploi décapé et peint en blanc brillant, posé à l’anglaise avec rosace existante, avril 2022, L. Tournier

Avant/Après L’escalier dans la verrière a

Photographie de l’existant, couloir d’entrée de la maison, frisette en sous-bassement et au plafond, sol carreaux de ciment d’origine, portes anciennes moulurées, mars 2021, L. Tournier

Plan de l’existant, escalier le long de la façade un quart tournant, ancienne latrine dans la cour, septembre 1990, auteur inconnu

Plan du projet, escalier deux quarts tournants le long des façades de salle de bain, dans verrière bois et verre toute hauteur, balçon flant protegeant la descente de cave , bain de soleil, Décembre 2021, L.Tournier

coupe du projet, verrière bois, escalier bois et médium peint, toiture en réemploi peint avec deux fenêtres de toit, Juillet 2021, L. Tournier

Photographie de la réalisation, verrière bois et verre, escalier en lamellé-collé de chêne vernis mat, sol en carrelage ciment 60x60cm, avril 2022, L. Tournier

II
- 26 -

La pièce de vie

Photographie de l’existant, pièce de vie, menuiserie en bois, frisette verticale aux murs en bois, sol chêne, radiateurs peints en partie, mars 2021, L. Tournier

Photographie de la réalisation, peinture blanche sur les murs, le plafond, et les radiateurs, rénovation du parquet en chêne, avril 2022, L. Tournier

Avant/Après La cuisine dans la pièce de vie b

Photographie de l’existant, cuisine dans pièce de vie, mobilier fait maison en OSB, plaque de placoplâtre apparentes sans fnition, faïence murale 2m, plafond en frisette bois, chaudière gaz sur pied, mars 2021, L. Tournier

Plan de relevé de la pièce de vie à l’étage, dimensions et réseaux électriques, chauffage et plomberie, avril 2021, L. Tournier

Plan de projet de la pièce de vie à l’étage, partie cuisine distinguée par le revêtement de sol, avril 2021, L. Tournier

Coupe du projet, cuisine l’ensemble du mur, mur peint en rouge terracotta, applique murale en verre et laiton, crédence terrazzo avec baguette de fnition en laiton, août 2021, L. Tournier

Photographie de la réalisation, pose d’une cuisine IKEA blanc mat avec poignée intégrée, plan de travail e stratifé chêne blanchis, crédence linoléum terrazzo avec baguette de fnition en laiton, idem pour le sol, avril 2022, L. Tournier

- 27 -
II

Photographie de l’existant, chambre au rez-dechaussée, murs peints, frisetet au plafond sapin vernis, parquet sapin peint en bleu, mars 2021, L. Tournier

N

Plan de relevé, chambre du rez-de-chaussée, dimensions et réseaux électrique, avril 2021, L. Tournier

Photographie de fn de chantier, chambre au rez-de-chaussée, murs, plafond et porte peints en blanc, mars 2021, L. Tournier

Plan de projet, chambre du rez-de-chaussée, murs et plafond repeints en blanc, mars 2022, L. Tournier

N

Avant/Après

Photographie de l’existant, salon cuisine au rezde-chaussée, murs papiers peints, carrelage dans la partie cuisine aux murs, frisette sapin vernis au plafond, tahleau eléctrique dans coffrage bois, meubles cuisines, accès à la salle de bain, espace encombré, mars 2021, L. Tournier

Plan de relevé, salon/cuisine du rez-de-chaussée, dimensions, cuisine et parquet surfaces associées, avril 2021, L. Tournier

Photographie de fn de chantier, chambre au rez-de-chaussée, murs peints en blanc, frisette au plafond sapin peint en blanche, parquet sapin peint en bleu, mars 2021, L. Tournier

Plan de projet, chambre du rez-de-chaussée, murs et plafond repeints en blanc, pose d’un parquet stratifé chêne blond, condamnation de la cuisine et ses réseaux, reprise de l’électricité, mars 2022, L. Tournier

N
Les chambres au rez-de-cour
II
- 28b

La chambre

Photographie de l’existant, chambre sous combles, mur pignon en OSB avec ouverture en hublot, sous-pentes en OSB et lame de volet bois, deux grandes fenêtres de toit, sol en agglomérés vissés, ferme en bois d’origine, mars 2021, L. Tournier

Photographie de la réalisation, ensemble des sous-pentes peint en blanc satin, mur pignon peint en vert, nettoyage de la ferme, pose d’un parquet en stratifé de chêne claire, avril 2022, L. Tournier

Avant/Après

Photographie de l’existant, mur pignon en lame de volet verticale d’un côté et diagonale de l’autre, fenêtre de toit, escalier avec rambarde d’arrivée en sapin, mars 2021, L. Tournier

Plan de relevé de la chambre sous combles, dimensions et surfaces associées, dimensions sous pentes et velux, mars 2021, L. Tournier

Coupe du projet, peinture sur mur pignon, rangement en sous-pente fxés sur la solive intermédiaire, coffrage des bas de pente pour éviter un pont thermique flant, mars 2021, L. Tournier

Plan du projet, pose d’un parquet sur l’ensemble de la surface, septembre 2021, L. Tournier

Photographie de la réalisation, peinture sur mur pignon et sous pente, reprise des encadrements de velux, pose d’un parquet stratifé en chêne avril 2022, L. Tournier

La chambre sous combles

II
- 29 -
b

Photographie de l’existant, salle de bain du rdc, murs carrelés 1,5m, tapisserie bleu sur le reste de la hauteur, plafond en frisette sapin vernis, murs en OSB de séparation entre les appareils sanitaires, sol en carrelage blanc et jaune, mars 2021, L. Tournier

Plan de relevé dimensionnel de la salle de bain du rdc, avril 2021, L. Tournier

Plan de projet de la salle de bain du rdc, dépose de la douche, septembre 2021, L. Tournier

Photographie de la réalisation, dépose de l’ancienne douche fuyante, pose d’étagères en place, peinture de l’ensemble des murs et du plafond, avril 2022, L. Tournier

Photographie de l’existant, salle de bain de l’étage, faïence murale jaune et blanche avec corniche en IP de fnition, murs en OSB, niche d’un ancien poêle en partie enduit, appareil sanitaire en faïence bleu, mars 2021, L. Tournier

Plan de relevé dimensionnel de la salle de bain de l’étage, avril 2021, L. Tournier

Plan de projet de la salle de bain de l’étage, dépose de la baignoire suite à accident de chantier, déplacement de l’ensemble du tableau electrique dans niche, déplacement du lavabo, pose d’une nouvelle douche à l’italienne, septembre 2021, L. Tournier

Photographie de la réalisation, pose d’une vasque sur plan de travail en stratifé de chêne blanchis, pose d’une douche à l’italienne avec revêtement mural en lambris PVC, pose d’un linoléum avec baguette de fnition laiton sous le lavaboplafond, avril 2022, L. Tournier

II
Les salles d’eau b - 30 -
Avant/Après

Ancienne cour couverte

Photographie de l’existant, cour arrière, décollement de l’enduit sur les murs, muret en pierre déjointoillés, sol en ciment, mars 2021, L. Tournier

Plan de l’existant, escalier le long de la façade un quart tournant, ancienne latrine dans la cour, septembre 1990, auteur inconnu

Plan du projet, restructuration de la cour, trois espaces distincts : la verrière, le balcon et la cour-patio, septembre 2021, L. Tournier

Photographie de la réalisation, enduit à la chaux sur l’ensemble des murs de la cour, graveline sur l’ensemble du sol, balcon avec garde-corps en réemploi, avril 2022, L. Tournier

Photographie de l’existant, cour arrière, encadrement de fenêtre sans fnition, toiture sur l’ensemble de la cour, frisette rampante le long de l’escalier, enduit hétérogène, mars 2021, L. Tournier

Coupe de projet, balcon avec structure en mélèze, remplissage en panneaux d’agglo peint en gris, garde-corps en réemploi posé à l’anglaise avec rosace en partie en réemploi, janvier 2022, L. Tournier

Photographie de la réalisation, reprise de l’ensemble du mur avec de l’enduit à la chaux, reprise de l’encadrement de fenêtre, reprise de la rive de toiture peint en gris, pose du balcon flant avec garde-corps en réemploi en fer peint en blanc brillant, avril 2022, L. Tournier

II
- 31 -
Avant/Après Le patio à l’arrière c

Turn static files into dynamic content formats.

Create a flipbook
Issuu converts static files into: digital portfolios, online yearbooks, online catalogs, digital photo albums and more. Sign up and create your flipbook.
Carnet de projet - Besançon by Lorène TOURNIER - Issuu