Precious Moments Greenville: An architecture case study in rethinking repair

Page 1

CALIFORNIA COLLEGE OF THE ARTS ARCHITECTURE DIVISION

FALL 2022 INTEGRATED STUDIO

Ayse Elif Aydinli, Dazaun Soleyn, Lizzy Wilson

PRECIOUS MOMENTS

Greenville, CA

PRECIOUS MOMENTS

CCA Integrated Studio Report

Fall 2022 Integrated Studio - Greenville - An Architecture Case Study In Rethinking Repair

Instructors:

Ikeda/Donohue

Team:

Ayse Elif Aydinli

Dazaun Soleyn

Lizzy Wilson

Date: 12/15/2022

GRAPHIC COVER SHEET

TITLE PAGE INDEX & SYMBOLS

A0.0 PROJECT INTRODUCTION

A0.1 Thesis

A1.0 RESEARCH & PRECEDENTS

A1.1 Key Concepts

A1.1.1 Wood Precedent Study

A1.1.2 Wood Precedent Study

A1.2.1 Time Frame Thinking

A1.2.2 Time Frame Thinking

A1.3.1 Fire Precedent

A2.0 SITE AND CONTEXT

A2.1 Repair of Main Street

A2.2 Greenville Site Visit - Our Site

A2.2.1 Greenville Site Visit - Historic Greenville

A2.2.2 Greenville Site Visit - Making the Wood

A2.2.3 Greenville Site Visit - You Can Feel The Trauma In the Land

A3.0 PROGRAMMING & LIFE SAFETY

A3.1 Tectonic Modules/Models

A3.1.2 Tectonic Modules/Models

A3.2 Program Information

A3.3 Program Diagrams

A3.3.1 Program Diagrams

A3.3.2 Program Diagrams

A3.4 Life Safety Analysis and Egress Diagram, Fire safety analysis

A5.0 STRUCTURAL SYSTEMS

A5.1 Structural Section Perspective

A5.2 Exploded Axonometric Diagram

A5.2.1 Exploded Axonometric Diagram

A5.3 Structural Plans

A5.3.1 Structural Plans

5.4 Structural Details.

A6.0 ENVIRONMENTAL SYSTEMS

A6.1 Integrative System Section Perspective

A6.1.1 Integrative System Section Perspective

A6.2 Daylighting & Artificial Lighting Strategy

A6.3 Thermal Performance (ventilation and shading) Strategy

A6.4 Renewable Energy Strategy

A6.5 Ecological Systems

A7.0 BUILDING ENVELOPE – MATERIAL & ASSEMBLY

A7.1 Material & construction diagrams.

A7.2 Assembly diagrams

A7.3 Envelope Details.

A7.4 Material Strategy & details

A8.0 PROCESS

A8.1 Process Models

A8.2 Process Drawings

A8.2.1 Process Drawings

A8.2.2 Process Drawings

A8.2.3 Process Drawings

A8.2.4 Process Drawings

A8.3 Consultant Workshop One | Building Technology Systems

A8.3.1. Consultant Workshop One | Structural Systems

A8.3.2 Consultant Workshop Two | Building Technology Systems

A8.3.3 Consultant Workshop Two | Structural Systems

A8.3.4 Consultant Workshop Three | Building Technology Systems

A8.3.5 Consultant Workshop Three | Structural Systems

A8.4 Armin Wolski, Fire Safety Engineer (Notes from 9/22 visit)

PRECIOUS MOMENTS

CCA Integrated Studio Report

Fall 2022 Integrated Studio - Greenville - An Architecture Case Study In Rethinking Repair

Instructors: Ikeda/Donohue

Team: Ayse Elif Aydinli

Dazaun Soleyn

Lizzy Wilson

Date: 12/15/2022

A4.1.1 Bird’s-eye
A4.1.2 Exterior view A4.1.3 Exterior view A4.1.4 Interior view A4.1.5 Interior view A4.1.6 Interior view A4.1.7 Interior view | Section A4.2 Site Plan A4.3 Site Elevation A4.4 Plans A4.4.1 Plans A4.5 Sections A4.5.1 Sections A4.5.1 Sections A4.6 Elevations A4.6.1 Elevations A4.6.2 Elevations A4.7 Details
A4.0 ARCHITECTURE
view
SYMBOLS DRAWING LABEL NORTH ARROW ELEVATION NO SHEET NO SECTION NO SHEET NO DETAIL NO SHEET NO COLUMN GRID BREAK LINE IMAGE REFERENCE POINT xx Ax.x xx xx Ax.x 01 01 DWG TITLE SCALE: XX” = 1’-0” SOURCE: CITATION & PAGE N xx Ax.x INDEX & SYMBOLS INDEX

A 0.0 PROJECT INTRODUCTION

PRECIOUS MOMENTS

CCA Integrated Studio Report

Fall 2022 Integrated Studio - Greenville - An Architecture Case Study In Rethinking Repair

Instructors:

Ikeda/Donohue

Team:

Ayse Elif Aydinli

Dazaun Soleyn

Lizzy Wilson

Date: 12/15/2022

A0.0 PROJECT INTRODUCTION

As a design team we found a sense of tenderness by designing precious moment of connection. The preciousness of the architecture is embodied in the programing. This includes a commercial space, winter garden/atrium, communal kitchen, and four residential units. The harmonic song between the social interactions of each space create opportunities for the community to laugh, rest, eat, exchange, and gather in ways that feel good for themselves. Precious moments is a beacon of light in the community and a place that will once again hold lasting memories for generations to come.

PRECIOUS MOMENTS

CCA Integrated Studio Report

Fall 2022 Integrated Studio - Greenville - An Architecture Case Study In Rethinking Repair

Instructors: Ikeda/Donohue

Team:

Ayse Elif Aydinli

Dazaun Soleyn

Lizzy Wilson

Date: 12/15/2022

A0.1 THESIS

A 1.0 RESEARCH & PRECEDENTS

PRECIOUS MOMENTS

CCA Integrated Studio Report

Fall 2022 Integrated Studio - Greenville - An Architecture Case Study In Rethinking Repair

Instructors:

Ikeda/Donohue

Team:

Ayse Elif Aydinli

Dazaun Soleyn

Lizzy Wilson

Date: 12/15/2022

A1.0 RESEARCH & PRECEDENTS

The spiral staircase is an architectural feature that was in Ann’s Cafe. In the past it was a place where folks would traditionally come to take prom and wedding photos and we hope that our staircase can serve the community in similar ways.

PRECIOUS MOMENTS

CCA Integrated Studio Report

Fall 2022 Integrated Studio - Greenville - An Architecture Case Study In Rethinking Repair

Instructors: Ikeda/Donohue

Team: Ayse Elif Aydinli

Dazaun Soleyn

Lizzy Wilson

Date: 12/15/2022

A key concept of the form of the architecture is the resemblance resemble the architecture of the building that existed before. We hope that a reference to this form of architecture creates a sense of familiarity to the community.

One key concept of the architecture is to create precious moments for the community to connect, gather, and work together. We hope the architecture will be a space that is filled with memories and moments of belonging for the community.

Source: google maps

A1.1 KEY CONCEPTS

01 BARNYARD ASSEMBLY 03
ASSEMBLY
BARNYARD
01
SPIRAL STAIRCASE

PRECIOUS MOMENTS

CCA Integrated Studio Report

Fall 2022 Integrated Studio - Greenville - An Architecture Case Study In Rethinking Repair

Instructors: Ikeda/Donohue

Team:

Ayse Elif Aydinli

Dazaun Soleyn

Lizzy Wilson

Date: 12/15/2022

A1.1.1

WOOD PRECEDENT STUDY

The materiaility of Glass House by Sigurd Larsen inspired the facade of PRECIOUS MOMENTS. It gave us insight into how the mass timber could be in harmony to other materials. It also inspired lighting intentions.

01 GLASS HOUSE / SIGURD LARSEN

SOURCE: Arch Daily

PRECIOUS MOMENTS

CCA Integrated Studio Report

Fall 2022 Integrated Studio - Greenville - An Architecture Case Study In Rethinking Repair

Instructors: Ikeda/Donohue

Team:

Ayse Elif Aydinli

Dazaun Soleyn

Lizzy Wilson

Date: 12/15/2022

We specifically examined The Warehouse in Ageo precedent for its sectional design strategies. In addition, it inspired the way the we light the Winter Garden/Atrium.

01 WAREHOUSE IN AGEO |ARII IRIE ARCHITECTS

SOURCE: Arch Daily

A1.1.2 WOOD PRECEDENT STUDY

PRECIOUS MOMENTS

CCA Integrated Studio Report

Fall 2022 Integrated Studio - Greenville - An Architecture Case Study In Rethinking Repair

Instructors: Ikeda/Donohue

Team:

Ayse Elif Aydinli

Dazaun Soleyn

Lizzy Wilson

Date: 12/15/2022

These hand sketches were done to study the time framing strategies of the Incremental Social Housing in Iquito, Peru. We were interested in how the design started with a frame that allowed the occupants to add rooms, amenities, and spaces to the home when they had to resources to do so.

A1.2.1 TIME FRAME THINKING

01 INCREMENTAL SOCIAL HOUSING, IQUITO, PERU

PRECIOUS MOMENTS

CCA Integrated Studio Report

Fall 2022 Integrated Studio - Greenville - An Architecture Case Study In Rethinking Repair

Instructors: Ikeda/Donohue

Team:

Ayse Elif Aydinli

Dazaun Soleyn

Lizzy Wilson

Date: 12/15/2022

A1.3.1

FIRE PRECEDENTS

The lecture with Armin informed the Assembly design of PRECIOUS MOMENTS. It also informed the use of the 12x12 Mass Timber post that can be found throughout the structure.

01
LECTURE WITH ARMIN

A2.0 SITE AND CONTEXT

PRECIOUS MOMENTS

CCA Integrated Studio Report

Fall 2022 Integrated Studio - Greenville - An Architecture Case Study In Rethinking Repair

Instructors: Ikeda/Donohue

Team:

Ayse Elif Aydinli

Dazaun Soleyn

Lizzy Wilson

Date: 12/15/2022

A2.0

SITE AND CONTEXT

Our site visit to Greenville was an opportunity for the design team to gain a deeper sense of the devastation that the fire had on the Greenville community. The architectural, emotional, and psychological impact of the tragedy could still be felt on the grounds of main street. It is our hope that our architecture can be a part of the repairing process of main street.

PRECIOUS MOMENTS

CCA Integrated Studio Report

Fall 2022 Integrated Studio - Greenville - An Architecture Case Study In Rethinking Repair

Instructors: Ikeda/Donohue

Team:

Ayse Elif Aydinli

Dazaun Soleyn

Lizzy Wilson

Date: 12/15/2022

A2.1 REPAIR OF MAIN STREET

PRECIOUS MOMENTS

CCA Integrated Studio Report

Fall 2022 Integrated Studio - Greenville - An Architecture Case Study In Rethinking Repair

Instructors: Ikeda/Donohue

Team: Ayse Elif Aydinli

Dazaun Soleyn

Lizzy Wilson

Date: 12/15/2022

We analyzed site to understand the scale of it in relation to the landscape. We were able to see what remained of the 4 corners and at the intersection of main street and 89th street. We found surviving objects that were behind the site, specifically in the area that we intending to use as a loading zone. The experience also allowed us to see what remained of the trees in the background.

A2.2

GREENVILLE SITE VISIT

SITE 01 WHERE THE BUILDING ONCE STOOD 02 LANDSCAPE ON THE CORNER 03 SURVIVING OBJECTS 04 A NEW PLANT 05 SITE FOOTPRINT
- OUR

PRECIOUS MOMENTS

CCA Integrated Studio Report

Fall 2022 Integrated Studio - Greenville - An Architecture Case Study In Rethinking Repair

Instructors: Ikeda/Donohue

Team: Ayse Elif Aydinli

Dazaun Soleyn

Lizzy Wilson

Date: 12/15/2022

By seeing these images of main street grounded our understanding of the cultural heritage of the site and the community. We saw images of the hotel that was located across the street from our site as well as an historic image of 89th street and most of the buildings that were surrounded our site.

A2.2.1 A2.2.1

GREENVILLE SITE VISIT - HISTORIC GREENVILLE

01 HISTORIC GREENVILLE 02 HISTORIC GREENVILLE 03 HISTORIC GREENVILLE 04 HISTORIC GREENVILLE 05 HISTORIC GREENVILLE

PRECIOUS MOMENTS

CCA Integrated Studio Report

Fall 2022 Integrated Studio - Greenville - An Architecture Case Study In Rethinking Repair

Instructors: Ikeda/Donohue

Team: Ayse Elif Aydinli

Dazaun Soleyn

Lizzy Wilson

Date: 12/15/2022

We witnessed the processing of logs and the lumbers that were created from the manufacturing logs at 2 separate sawmills. On the tours we saw how the wood were packaged and the way that the wood chips that accumulated on the ground as byproducts from the creation of the lumber. It was interesting to learn that these same wood chips were burnt to help create energy to power the manufacturing process.

-
THE WOOD 01 MILL EXTERIOR 02 STACKING LUMBER PLANKS 03 PILES OF TIMBER 04 MARKING WOOD 05 WOOD THAT
A2.2.2 GREENVILLE SITE VISIT
MAKING
IS READY TO SHIP

PRECIOUS MOMENTS

CCA Integrated Studio Report

Fall 2022 Integrated Studio - Greenville - An Architecture Case Study In Rethinking Repair

Instructors: Ikeda/Donohue

Team: Ayse Elif Aydinli

Dazaun Soleyn

Lizzy Wilson

Date: 12/15/2022

The trauma of the fire and could still be felt in the land. It still hold the grief and the pain of the event. The photos are our documentation of that effects of the tragedy.

A2.2.3 A2.2.3

THE TRAUMA IN THE LAND 01 BURNED TREES 02 BURNED VALLEY 03 WILTED TREES 04 CHARRED BARK 05 BURNED TREES
GREENVILLE SITE VISIT - YOU CAN FEEL

A 3.0 PROGRAMMING & LIFE SAFETY

PRECIOUS MOMENTS

CCA Integrated Studio Report

Fall 2022 Integrated Studio - Greenville - An Architecture Case Study In Rethinking Repair

Instructors:

Ikeda/Donohue

Team:

Ayse Elif Aydinli

Dazaun Soleyn

Lizzy Wilson

Date: 12/15/2022

A3.0

PROGRAMMING & LIFE SAFETY

Study Model Version 2 was created for the community engagement event in Greensville. Through the making of this model we explored the spacial qualities of the building. We questioned how the cantilevers can be on one side of the atrium or if they should be equally distributed through the space.

PRECIOUS MOMENTS

CCA Integrated Studio Report

Fall 2022 Integrated Studio - Greenville - An Architecture Case Study In Rethinking Repair

Instructors: Ikeda/Donohue

Team:

Ayse Elif Aydinli

Dazaun Soleyn

Lizzy Wilson

Date: 12/15/2022

A3.1

TECTONIC MODULES/ MODELS 01

STUDY MODEL 9/28/2022

01 STUDY MODEL 12/6/2022

PRECIOUS MOMENTS

CCA Integrated Studio Report

Fall 2022 Integrated Studio - Greenville - An Architecture Case Study In Rethinking Repair

Instructors: Ikeda/Donohue

Team:

Ayse Elif Aydinli

Dazaun Soleyn

Lizzy Wilson

Date: 12/15/2022

A3.1.2

TECTONIC MODULES/ MODELS

The structural model was used to study the rigidity of the truss system and was made at a half inch scale.

RESIDENTIAL

ATRIUM

CCA Integrated Studio Report

Fall 2022 Integrated Studio - Greenville - An Architecture Case Study In Rethinking Repair

Instructors: Ikeda/Donohue

Team:

Ayse Elif Aydinli

Dazaun Soleyn

Lizzy Wilson

Date: 12/15/2022

COMMERCIAL

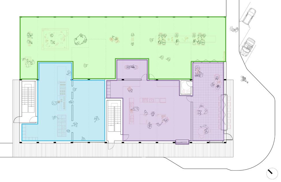
The program of Precious Moments consist of the following: 1 Communal Kitchen (Ground Floor), 1 Multipurpose Winter Garden (Ground Floor), 4 Living Units (Second Floor).

PROGRAM
PRECIOUS MOMENTS A3.2
INFORMATION

PRECIOUS MOMENTS

CCA Integrated Studio Report

Fall 2022 Integrated Studio - Greenville - An Architecture Case Study In Rethinking Repair

Instructors: Ikeda/Donohue

Team:

Ayse Elif Aydinli

Dazaun Soleyn

Lizzy Wilson

Date: 12/15/2022

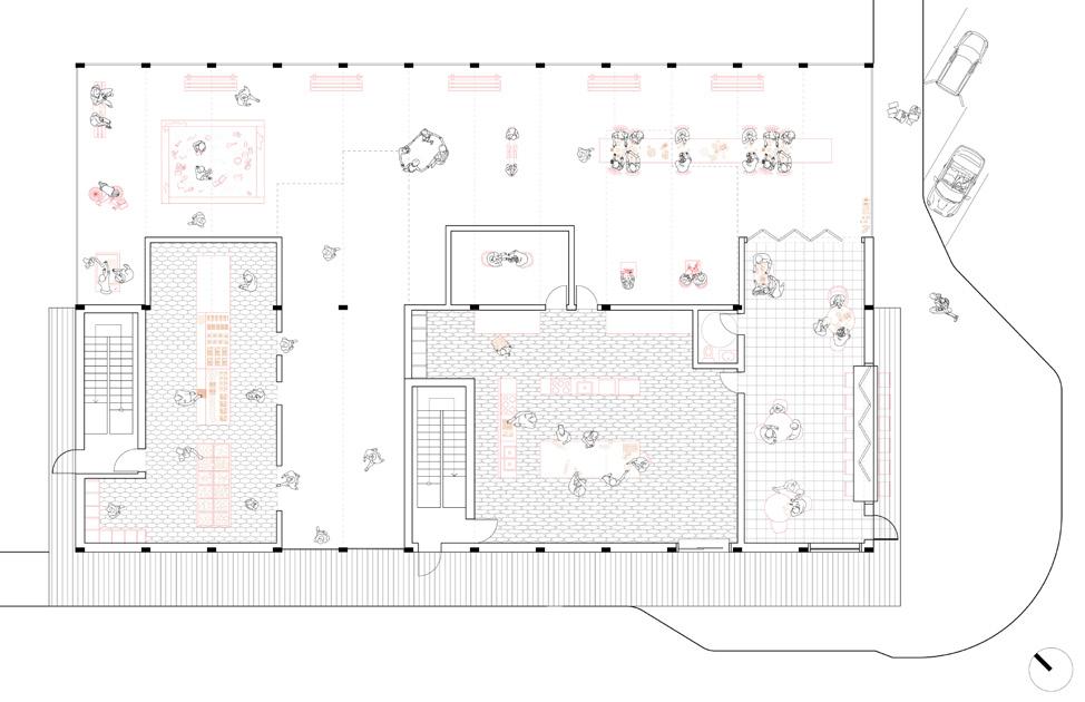
The first floor plan diagram reveals the 3 main programs on the first floor of PRECIOUS MOMENTS. The communal kitchen and other commercial spaces are in light blue and the winter garden/atrium is in a darker shade of blue. The 2nd Floor Plan Diagram reveals how the 4 residential units that are highlighted in orange.

DIAGRAMS

01 FIRST AND SECOND FLOOR PLAN DIAGRAM
A3.3 PROGRAM

PRECIOUS MOMENTS

CCA Integrated Studio Report

Fall 2022 Integrated Studio - Greenville - An Architecture Case Study In Rethinking Repair

Instructors:

Ikeda/Donohue

Team:

Ayse Elif Aydinli

Dazaun Soleyn

Lizzy Wilson

Date: 12/15/2022

A two diagrams above shows the possible configuration for the circulation of the patios on the 2nd Floor. The diagram on the right show the configuration of all the residential patios being open to the public and the diagram on the left show the circulation when the residential patios are closed to the public.

A3.3.1 PROGRAM DIAGRAMS

2ND FLOOR PLAN PATIO CIRCULATION DIAGRAMS

01

PRECIOUS MOMENTS

CCA Integrated Studio Report

Fall 2022 Integrated Studio - Greenville - An Architecture Case Study In Rethinking Repair

Instructors:

Ikeda/Donohue

Team:

Ayse Elif Aydinli

Dazaun Soleyn

Lizzy Wilson

Date: 12/15/2022

A3.4 LIFE SAFETY ANALYSIS AND EGRESS DIAGRAM, FIRE SAFETY ANALYSIS 01

BUILDING EGRESS DIAGRAM

A 4.0 ARCHITECTURE

PRECIOUS MOMENTS

CCA Integrated Studio Report

Fall 2022 Integrated Studio - Greenville - An Architecture Case Study In Rethinking Repair

Instructors:

Ikeda/Donohue

Team:

Ayse Elif Aydinli

Dazaun Soleyn

Lizzy Wilson

Date: 12/15/2022

A4.0 ARCHITECTURE

PRECIOUS MOMENTS

CCA Integrated Studio Report

Fall 2022 Integrated Studio - Greenville - An Architecture Case Study In Rethinking Repair

Instructors: Ikeda/Donohue

Team:

Ayse Elif Aydinli

Dazaun Soleyn

Lizzy Wilson

Date: 12/15/2022

A4.1.1

BIRD’S-EYE VIEW

01 SOUTH EAST CORNER

PRECIOUS MOMENTS

CCA Integrated Studio Report

Fall 2022 Integrated Studio - Greenville - An Architecture Case Study In Rethinking Repair

Instructors: Ikeda/Donohue

Team:

Ayse Elif Aydinli

Dazaun Soleyn

Lizzy Wilson

Date: 12/15/2022

A4.1.2

EXTERIOR VIEW

01
FROM MAIN STREET - DAY
VIEW

PRECIOUS MOMENTS

CCA Integrated Studio Report

Fall 2022 Integrated Studio - Greenville - An Architecture Case Study In Rethinking Repair

Instructors: Ikeda/Donohue

Team:

Ayse Elif Aydinli

Dazaun Soleyn

Lizzy Wilson

Date: 12/15/2022

A4.1.3

EXTERIOR VIEW

01
VIEW FROM MAIN STREET - NIGHT

PRECIOUS MOMENTS

CCA Integrated Studio Report

Fall 2022 Integrated Studio - Greenville - An Architecture Case Study In Rethinking Repair

Instructors: Ikeda/Donohue

Team:

Ayse Elif Aydinli

Dazaun Soleyn

Lizzy Wilson

Date: 12/15/2022

A4.1.4

INTERIOR VIEW

01 ATRIUM

PRECIOUS MOMENTS

CCA Integrated Studio Report

Fall 2022 Integrated Studio - Greenville - An Architecture Case Study In Rethinking Repair

Instructors: Ikeda/Donohue

Team:

Ayse Elif Aydinli

Dazaun Soleyn

Lizzy Wilson

Date: 12/15/2022

A4.1.5

INTERIOR VIEW

01 SECOND FLOOR BALCONY

PRECIOUS MOMENTS

CCA Integrated Studio Report

Fall 2022 Integrated Studio - Greenville - An Architecture Case Study In Rethinking Repair

Instructors: Ikeda/Donohue

Team:

Ayse Elif Aydinli

Dazaun Soleyn

Lizzy Wilson

Date: 12/15/2022

A4.1.6

INTERIOR VIEW

01 SECOND FLOOR BALCONY

PRECIOUS MOMENTS

CCA Integrated Studio Report

Fall 2022 Integrated Studio - Greenville - An Architecture Case Study In Rethinking Repair

Instructors: Ikeda/Donohue

Team: Ayse Elif Aydinli

Dazaun Soleyn Lizzy Wilson

Date: 12/15/2022

A4.1.7 INTERIOR VIEW | SECTION

01 INTERIOR VIEW | EAST SHORT SECTION 0 6 12 18 24 0-00” 0-12’7” 0-18’ 0-36’8” 0-37’5” 3 2 1

PRECIOUS MOMENTS

CCA Integrated Studio Report

Fall 2022 Integrated Studio - Greenville - An Architecture Case Study In Rethinking Repair

Instructors: Ikeda/Donohue

Team:

Ayse Elif Aydinli

Dazaun Soleyn

Lizzy Wilson

Date: 12/15/2022

0 6 12 18 24 0 6 12 18 24 01 SITE PLAN
A4.2 SITE PLAN

PRECIOUS MOMENTS

CCA Integrated Studio Report

Fall 2022 Integrated Studio - Greenville - An Architecture Case Study In Rethinking Repair

Instructors: Ikeda/Donohue

Team: Ayse Elif Aydinli

Dazaun Soleyn

Lizzy Wilson

Date: 12/15/2022

A4.3

SITE ELEVATION

0 6 12 18 24 01 SITE ELEVATION 0-00” 0-12’7” 0-18’ 0-36’8” 0-37’5” 3 2 1

PRECIOUS MOMENTS

CCA Integrated Studio Report

Fall 2022 Integrated Studio - Greenville - An Architecture Case Study In Rethinking Repair

Instructors: Ikeda/Donohue

Team:

Ayse Elif Aydinli

Dazaun Soleyn

Lizzy Wilson

Date: 12/15/2022

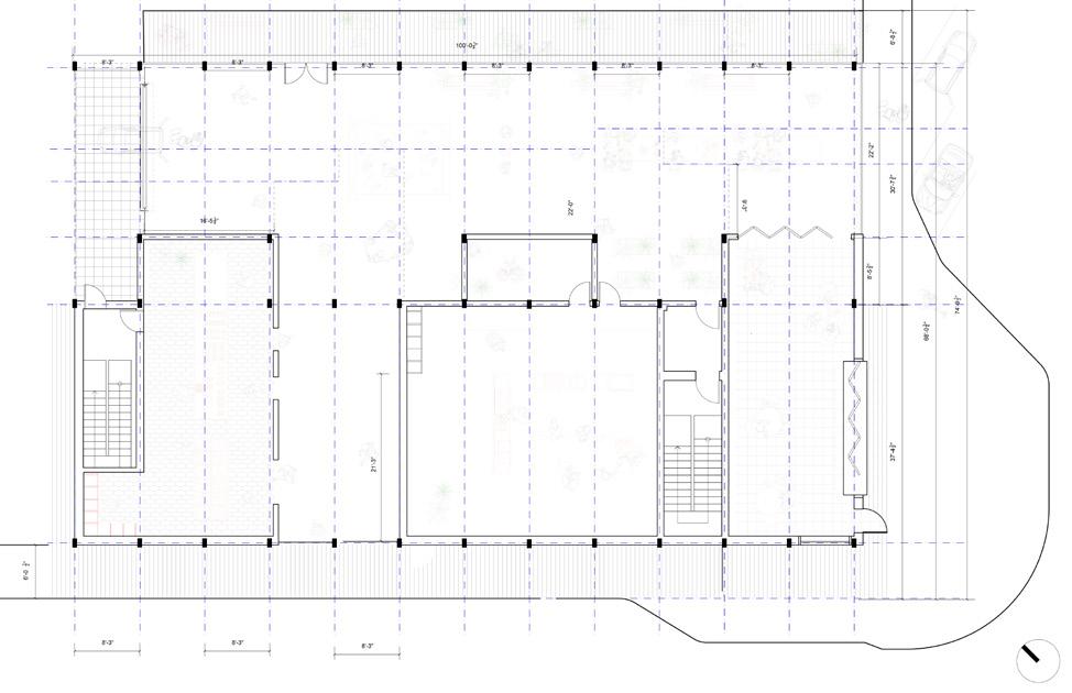
A4.4 PLANS

01 FIRST FLOOR PLAN 0 6 12 18 24 0-95’ 0-8’

PRECIOUS MOMENTS

CCA Integrated Studio Report

Fall 2022 Integrated Studio - Greenville - An Architecture Case Study In Rethinking Repair

Instructors: Ikeda/Donohue

Team:

Ayse Elif Aydinli

Dazaun Soleyn

Lizzy Wilson

Date: 12/15/2022

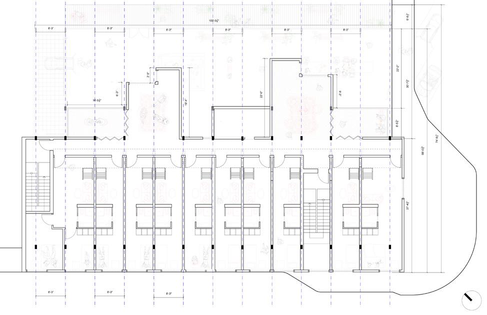
A4.4.1 PLANS

01 SECOND FLOOR PLAN 0 6 12 18 24 0-95’ 0-8’

PRECIOUS MOMENTS

CCA Integrated Studio Report

Fall 2022 Integrated Studio - Greenville - An Architecture Case Study In Rethinking Repair

Instructors: Ikeda/Donohue

Team:

Ayse Elif Aydinli

Dazaun Soleyn

Lizzy Wilson

Date: 12/15/2022

A4.4.2 PLANS

01 MEZZONINE PLAN 0-95’ 0-8’ 0 6 12 18 24

PRECIOUS MOMENTS

CCA Integrated Studio Report

Fall 2022 Integrated Studio - Greenville - An Architecture Case Study In Rethinking Repair

Instructors: Ikeda/Donohue

Team: Ayse Elif Aydinli

Dazaun Soleyn

Lizzy Wilson

Date: 12/15/2022

A4.5 SECTIONS

01 SHORT SECTION 0 6 12 18 24 0-00” 0-12’7” 0-18’ 0-36’8” 0-37’5” 3 2 1

PRECIOUS MOMENTS

CCA Integrated Studio Report

Fall 2022 Integrated Studio - Greenville - An Architecture Case Study In Rethinking Repair

Instructors: Ikeda/Donohue

Team: Ayse Elif Aydinli

Dazaun Soleyn

Lizzy Wilson

Date: 12/15/2022

A4.5.1 SECTIONS

01 SHORT SECTION 0 6 12 18 24 0-00” 0-12’7” 0-18’ 0-36’8” 0-37’5” 3 2 1

PRECIOUS MOMENTS

CCA Integrated Studio Report

Fall 2022 Integrated Studio - Greenville - An Architecture Case Study In Rethinking Repair

Instructors:

Ikeda/Donohue

Team:

Ayse Elif Aydinli

Dazaun Soleyn

Lizzy Wilson

Date: 12/15/2022

A4.5.2 SECTIONS

01 LONG SECTION PERSPECTIVE 0 6 12 18 24 3 B C D E F G H I J K L M A

PRECIOUS MOMENTS

CCA Integrated Studio Report

Fall 2022 Integrated Studio - Greenville - An Architecture Case Study In Rethinking Repair

Instructors: Ikeda/Donohue

Team: Ayse Elif Aydinli

Dazaun Soleyn

Lizzy Wilson

Date: 12/15/2022

A4.6 ELEVATIONS

01 WEST ELEVATION 0 6 12 18 24 0-00” 0-12’7” 0-18’ 0-36’8” 0-37’5” 3 2 1

PRECIOUS MOMENTS

CCA Integrated Studio Report

Fall 2022 Integrated Studio - Greenville - An Architecture Case Study In Rethinking Repair

Instructors: Ikeda/Donohue

Team:

Ayse Elif Aydinli

Dazaun Soleyn

Lizzy Wilson

Date: 12/15/2022

A4.6.1 ELEVATIONS

01 NORTH FACING ELEVATION 0 6 12 18 24 B C D E F G H I J K L A M 0-00” 0-18’ 0-36’8”

PRECIOUS MOMENTS

CCA Integrated Studio Report

Fall 2022 Integrated Studio - Greenville - An Architecture Case Study In Rethinking Repair

Instructors: Ikeda/Donohue

Team: Ayse Elif Aydinli

Dazaun Soleyn

Lizzy Wilson

Date: 12/15/2022

A4.6.2 ELEVATIONS

01 SOUTH FACING ELEVATION 0 6 12 18 24 B C D E F G H I J K L A M 0-00” 0-18’ 0-36’8”

PRECIOUS MOMENTS

CCA Integrated Studio Report

Fall 2022 Integrated Studio - Greenville - An Architecture Case Study In Rethinking Repair

Instructors: Ikeda/Donohue

Team: Ayse Elif Aydinli

Dazaun Soleyn

Lizzy Wilson

Date: 12/15/2022

A4.7 DETAILS

03 ROOF DETAIL 04 ROOF DETAIL 01 FOUNDATION | CTL SHEER WALL 02 FOUNDATION | BEAM 05 NORTH WALL DETAIL 06 BEAM AND POST DETAIL 0 6 12 18 24 0 6 12 18 24 0 6 12 18 24 0 6 12 18 24 0 6 12 18 24 0 6 12 18 24

A 5.0 STRUCTURAL SYSTEMS

PRECIOUS MOMENTS

CCA Integrated Studio Report

Fall 2022 Integrated Studio - Greenville - An Architecture Case Study In Rethinking Repair

Instructors:

Ikeda/Donohue

Team:

Ayse Elif Aydinli

Dazaun Soleyn

Lizzy Wilson

Date: 12/15/2022

A5.0 STRUCTURAL SYSTEMS

PRECIOUS MOMENTS

CCA Integrated Studio Report

Fall 2022 Integrated Studio - Greenville - An Architecture Case Study In Rethinking Repair

Instructors: Ikeda/Donohue

Team:

Ayse Elif Aydinli

Dazaun Soleyn

Lizzy Wilson

Date: 12/15/2022

A5.1

STRUCTURAL SECTION PERSPECTIVE

01
0 6 12 18 24
STRUCTURAL SECTION PERSPECTIVE

01 EXPLODED AXONOMETRIC DIAGRAM

PRECIOUS MOMENTS

CCA Integrated Studio Report

Fall 2022 Integrated Studio - Greenville - An Architecture Case Study In Rethinking Repair

Instructors: Ikeda/Donohue

Team:

Ayse Elif Aydinli

Dazaun Soleyn

Lizzy Wilson

Date: 12/15/2022

A5.2 EXPLODED AXONOMETRIC DIAGRAM

01 BUILDING SLICE AXONOMETRIC

PRECIOUS MOMENTS

CCA Integrated Studio Report

Fall 2022 Integrated Studio - Greenville - An Architecture Case Study In Rethinking Repair

Instructors: Ikeda/Donohue

Team:

Ayse Elif Aydinli

Dazaun Soleyn

Lizzy Wilson

Date: 12/15/2022

A5.2.1 EXPLODED AXONOMETRIC DIAGRAM

roofing system joist and truss assembly sheer walls and flooring

PRECIOUS MOMENTS

CCA Integrated Studio Report

Fall 2022 Integrated Studio - Greenville - An Architecture Case Study In Rethinking Repair

Instructors: Ikeda/Donohue

Team:

Ayse Elif Aydinli

Dazaun Soleyn

Lizzy Wilson

Date: 12/15/2022

A5.3

STRUCTURAL PLANS

01 GROUND FLOOR STRUCTURAL PLAN 0 6 12 18 24 0-100’ 0-8’

SECOND FLOOR STRUCTURAL PLAN

PRECIOUS MOMENTS

CCA Integrated Studio Report

Fall 2022 Integrated Studio - Greenville - An Architecture Case Study In Rethinking Repair

Instructors: Ikeda/Donohue

Team:

Ayse Elif Aydinli

Dazaun Soleyn

Lizzy Wilson

Date: 12/15/2022

A5.3.1

STRUCTURAL PLANS.

01
0 6 12 18 24 0-100’ 0-8’

PRECIOUS MOMENTS

CCA Integrated Studio Report

Fall 2022 Integrated Studio - Greenville - An Architecture Case Study In Rethinking Repair

Instructors: Ikeda/Donohue

Team:

Ayse Elif Aydinli

Dazaun Soleyn

Lizzy Wilson

Date: 12/15/2022

A5.4

STRUCTURAL DETAILS.

03 ROOF DETAIL 2 04 JOINT CONNECTION 01 ROOF DETAIL 02 NORTH WALL DETAIL 0 6 12 18 24 0 6 12 18 24 0 6 12 18 24 0 6 12 18 24

A 6.0 ENVIRONMENTAL SYSTEMS

PRECIOUS MOMENTS

CCA Integrated Studio Report

Fall 2022 Integrated Studio - Greenville - An Architecture Case Study In Rethinking Repair

Instructors: Ikeda/Donohue

Team:

Ayse Elif Aydinli

Dazaun Soleyn

Lizzy Wilson

Date: 12/15/2022

A6.0

ENVIRONMENTAL SYSTEMS

CCA Integrated Studio Report

Fall 2022 Integrated Studio - Greenville - An Architecture Case Study In Rethinking Repair

Instructors: Ikeda/Donohue

Team:

Ayse Elif Aydinli

Dazaun Soleyn

Lizzy Wilson

Date: 12/15/2022

PRECIOUS MOMENTS A6.1

INTEGRATIVE SYSTEM SECTION
01 INTEGRATIVE SYSTEM SECTION PERSPECTIVE 0 6 12 18 24
PERSPECTIVE

CCA Integrated Studio Report

Fall 2022 Integrated Studio - Greenville - An Architecture Case Study In Rethinking Repair

Instructors: Ikeda/Donohue

Team:

Ayse Elif Aydinli

Dazaun Soleyn

Lizzy Wilson

Date: 12/15/2022

PRECIOUS MOMENTS A6.1

INTEGRATIVE SYSTEM SECTION
01 INTEGRATIVE SYSTEM SECTION PERSPECTIVE 0 6 12 18 24
PERSPECTIVE

SECOND FLOOR BALANCY RENDER WITH LIGHTING EFFECTS

PRECIOUS MOMENTS analyzed the sun path diagram and lighting software to determine the lighting strategies for the architecture. The information was used in the decision making process of having a sheer walls on the north side of the building to allow for a fully transparent roof.

PRECIOUS MOMENTS

CCA Integrated Studio Report

Fall 2022 Integrated Studio - Greenville - An Architecture Case Study In Rethinking Repair

Instructors: Ikeda/Donohue

Team:

Ayse Elif Aydinli

Dazaun Soleyn

Lizzy Wilson

Date: 12/15/2022

A6.2

DAYLIGHTING & ARTIFICIAL LIGHTING STRATEGY / SECTION DETAIL

SEPTEMBER SOUTHEAST JUNE SOUTHEAST 11:00 12:00 PM 1:00 PM 2:00 PM 3:00 PM 6:00 AM 7:00 AM 8:00 AM 9:00 AM 10:00 AM 03 SUN DIAGRAM 01 SHADOW STUDY 02 SHADOW STUDY
04

THERMAL PERFORMANCE DIAGRAM

PRECIOUS MOMENTS

CCA Integrated Studio Report

Fall 2022 Integrated Studio - Greenville - An Architecture Case Study In Rethinking Repair

Instructors: Ikeda/Donohue

Team:

Ayse Elif Aydinli

Dazaun Soleyn

Lizzy Wilson

Date: 12/15/2022

A6.3

THERMAL PERFORMANCE (VENTILATION AND SHADING) STRATEGY

01
+ + + 02
DIAGRAM
VENTILATION

PRECIOUS MOMENTS

CCA Integrated Studio Report

Fall 2022 Integrated Studio - Greenville - An Architecture Case Study In Rethinking Repair

Instructors: Ikeda/Donohue

Team:

Ayse Elif Aydinli

Dazaun Soleyn

Lizzy Wilson

Date: 12/15/2022

Building Integrated Photovoltaic functions as a brise-soleil and is a operable facade on the south facing side of the building. It also functions as a non operable rain screen on the south facing roof. The specifications below explains how the brise-soleil will collect enough energy to power the housing units.

-7247.55 sqft of PVs

-Converted to 2209.05324 m^2

-618,548 kWh/yr of usable energy produced by PVs

-approx. 158,787 kWh/yr of energy needed to run the building

A6.3

RENEWABLE ENERGY STRATEGY

03 RENEWABLE ENERGY AXON 01 EXPLODED AXONOMETRIC OF PHOTOVOLTAIC 02 RENEWABLE ENERGY DIAGRAM

ELEVATION OF THE FLOATING GARDEN

PRECIOUS MOMENTS

CCA Integrated Studio Report

Fall 2022 Integrated Studio - Greenville - An Architecture Case Study In Rethinking Repair

Instructors: Ikeda/Donohue

Team:

Ayse Elif Aydinli

Dazaun Soleyn

Lizzy Wilson

Date: 12/15/2022

A6.4

ECOLOGICAL SYSTEMS

PERSPECTIVE OF THE FLOATING GARDEN

01
02

A 7.0 BUILDING ENVELOPE – MATERIAL & ASSEMBLY

PRECIOUS MOMENTS

CCA Integrated Studio Report

Fall 2022 Integrated Studio - Greenville - An Architecture Case Study In Rethinking Repair

Instructors: Ikeda/Donohue

Team:

Ayse Elif Aydinli

Dazaun Soleyn

Lizzy Wilson

Date: 12/15/2022

A7.0 BUILDING ENVELOPEMATERIAL & ASSEMBLY

EXPLODED AXONOMETRIC DIAGRAM

PRECIOUS MOMENTS

CCA Integrated Studio Report

Fall 2022 Integrated Studio - Greenville - An Architecture Case Study In Rethinking Repair

Instructors: Ikeda/Donohue

Team:

Ayse Elif Aydinli

Dazaun Soleyn

Lizzy Wilson

Date: 12/15/2022

A7.1

MATERIAL & CONSTRUCTION DIAGRAMS.

01
02
BARN RAISING DIAGRAM

PRECIOUS MOMENTS

CCA Integrated Studio Report

Fall 2022 Integrated Studio - Greenville - An Architecture Case Study In Rethinking Repair

Instructors: Ikeda/Donohue

Team:

Ayse Elif Aydinli

Dazaun Soleyn

Lizzy Wilson

Date: 12/15/2022

A7.2 ASSEMBLY DIAGRAMS

01 BUILDING SLICE AXONOMETRIC
roofing system joist and truss assembly sheer walls and flooring

PRECIOUS MOMENTS

CCA Integrated Studio Report

Fall 2022 Integrated Studio - Greenville - An Architecture Case Study In Rethinking Repair

Instructors: Ikeda/Donohue

Team: Ayse Elif Aydinli

Dazaun Soleyn

Lizzy Wilson

Date: 12/15/2022

A7.3 ENVELOPE DETAILS

03 ROOF DETAIL 2 01 EXPLODED AXONOMETRIC DIAGRAM 02 SECTION PERSPECTIVE 04 ROOF DETAIL 0 6 12 18 24 0 6 12 18 24 0 6 12 18 24 0 6 12 18 24

PRECIOUS MOMENTS

CCA Integrated Studio Report

Fall 2022 Integrated Studio - Greenville - An Architecture Case Study In Rethinking Repair

Instructors: Ikeda/Donohue

Team:

Ayse Elif Aydinli

Dazaun Soleyn

Lizzy Wilson

Date: 12/15/2022

A7.4 MATERIAL STRATEGY

01 MATERIAL STRATEGY DIAGRAM

A 8.0 PROCESS

PRECIOUS MOMENTS

CCA Integrated Studio Report

Fall 2022 Integrated Studio - Greenville - An Architecture Case Study In Rethinking Repair

Instructors:

Ikeda/Donohue

Team:

Ayse Elif Aydinli

Dazaun Soleyn

Lizzy Wilson

Date: 12/15/2022

A8.0 PROCESS

PRECIOUS MOMENTS

CCA Integrated Studio Report

Fall 2022 Integrated Studio - Greenville - An Architecture Case Study In Rethinking Repair

Instructors: Ikeda/Donohue

Team:

Ayse Elif Aydinli

Dazaun Soleyn

Lizzy Wilson

Date: 12/15/2022

A8.1

PROCESS MODELS

01 STUDY MODELS 9/21/22
The first study model was to test the barn yard structural frames and possible spacing for housing units.

PRECIOUS MOMENTS

CCA Integrated Studio Report Fall 2022 Integrated Studio - Greenville - An Architecture Case Study In Rethinking Repair

Instructors: Ikeda/Donohue

Team: Ayse Elif Aydinli Dazaun Soleyn Lizzy Wilson

Date: 12/15/2022

A8.2

PROCESS DRAWINGS

100'-0" 8'-0" 10'-2 21'-4" 73'-0" 31'-5" 7'-8" 3'-0" 1'-0" 8'-0" 11'-0" 7'-4" 24'-4" 15'-4" 29'-11" 15'-6" 31'-4" 29'-11" 29'-11" 15'-4" 8'-0" 7'-8"
01 SHORT SECTION PERSPECTIVE 11/3/2022
02 LONG SECTION PERSPECTIVE 11/3/2022 03 LIGHT STUDY 11/14/2022 04 LIGHT STUDY 2 11/14/2022 05 GROUND FLOOR PLAN 10/31/2022 75.00’ 62’ 10” 9’5” 9’ 2” 6’ 11” 2’6” 06 SECTION PERSPECTIVE 10/24/2022

PRECIOUS MOMENTS

PROCESS DRAWINGS

A8.2.1
foundation second floor joists second floor joists atrium glazing 03 GROUND FLOOR PLAN 10/20/2022 04 2ND FLOOR PLAN 10/20/2022 CCA Integrated Studio Report Fall 2022 Integrated Studio - Greenville - An Architecture Case Study In Rethinking Repair Instructors: Ikeda/Donohue Team: Ayse Elif Aydinli Dazaun Soleyn Lizzy Wilson Date: 12/15/2022
01 EXPLODED AXONOMETRIC DIAGRAM 10/23/2022 02 SECTION PERSPECTIVE 10/20/2022 05 GROUND FLOOR PLAN 10/28/2022 06 2ND FLOOR PLAN PHASE 1 10/28/2022

PRECIOUS MOMENTS

CCA Integrated Studio

Instructors: Ikeda/Donohue

Team: Ayse Elif Aydinli

Dazaun Soleyn Lizzy Wilson

Date: 12/15/2022

A8.2.2 PROCESS DRAWINGS 03 GROUND FLOOR PLAN 10/23/2022 04 2ND FLOOR PLAN 10/23/2022 01 EXPLODED AXONOMETRIC DIAGRAM 10/23/2022 02 SECTION PERSPECTIVE 10/23/2022 05 GROUND FLOOR PLAN 10/23/2022
Report
Fall 2022 Integrated Studio - Greenville - An Architecture Case Study In Rethinking Repair

PRECIOUS MOMENTS

CCA Integrated

Fall

Instructors: Ikeda/Donohue

Team: Ayse Elif Aydinli Dazaun Soleyn Lizzy Wilson

Date: 12/15/2022

PROCESS DRAWINGS

A8.2.3
06 2ND FLOOR PLAN PHASE 1 10/28/2022 01 2ND FLOOR PLAN PHASE 2 10/28/2022 02 FIRST FLOOR PLAN DIAGRAM 10/28/2022 03 2ND FLOOR PLAN 10/28/2022 04 COLLAGE SECTION PERSPECTIVE 10/28/2022 05 SECTION PERSPECTIVE DIAGRAM 10/28/2022
Report
Studio
2022
Studio
Case
Integrated
- Greenville - An Architecture
Study In Rethinking Repair

PRECIOUS MOMENTS

CCA Integrated Studio Report

Fall 2022 Integrated Studio - Greenville - An Architecture Case Study In Rethinking Repair

Instructors: Ikeda/Donohue

Team: Ayse Elif Aydinli

Dazaun Soleyn

Lizzy Wilson

Date: 12/15/2022

A8.2.4

PROCESS DRAWINGS

01 ROOF PLAN AND PERSPECTIVE 9/13/2022 02 ROOF PLAN AND PERSPECTIVE 9/13/2022 03 2ND FLOOR PLAN 9/13/2022 04 ROOF PLAN DRAFT 2 9/13/2022 05 FIRST FLOOR PLAND DRAFT 2 9/13/2022 06 FIRST FLOOR PLAN 9/13/2022

PRECIOUS MOMENTS

CCA Integrated Studio Report

Fall 2022 Integrated Studio - Greenville - An Architecture Case Study In Rethinking Repair

Instructors: Ikeda/Donohue

Team:

Ayse Elif Aydinli

Dazaun Soleyn

Lizzy Wilson

Date: 12/15/2022

A8.3

CONSULTANT WORKSHOP

| BUILDING TECHNOLOGY SYSTEMS

ONE
01 SCREENSHOTS FROM THE MEETING 02
FROM THE MEETING
NOTES

NOTES FROM THE MEETING

PRECIOUS MOMENTS

CCA Integrated Studio Report

Fall 2022 Integrated Studio - Greenville - An Architecture Case Study In Rethinking Repair

Instructors: Ikeda/Donohue

Team:

Ayse Elif Aydinli

Dazaun Soleyn

Lizzy Wilson

Date: 12/15/2022

A8.3.1

SCREENSHOTS FROM THE MEETING

CONSULTANT WORKSHOP ONE | STRUCTURAL SYSTEMS

02
01

PRECIOUS MOMENTS

CCA Integrated Studio Report

Fall 2022 Integrated Studio - Greenville - An Architecture Case Study In Rethinking Repair

Instructors: Ikeda/Donohue

Team:

Ayse Elif Aydinli

Dazaun Soleyn

Lizzy Wilson

Date: 12/15/2022

A8.3.2

CONSULTANT WORKSHOP TWO |BUILDING ENERGY

01 SCREENSHOTS FROM THE MEETING 02
FROM THE MEETING
NOTES

NOTES FROM THE MEETING

PRECIOUS MOMENTS

CCA Integrated Studio Report

Fall 2022 Integrated Studio - Greenville - An Architecture Case Study In Rethinking Repair

Instructors:

Ikeda/Donohue

Team:

Ayse Elif Aydinli

Dazaun Soleyn

Lizzy Wilson

Date: 12/15/2022

A8.3.3

SCREENSHOTS FROM THE MEETING

CONSULTANT WORKSHOP TWO | STRUCTURAL SYSTEMS

01
02

PRECIOUS MOMENTS

CCA Integrated Studio Report

Fall 2022 Integrated Studio - Greenville - An Architecture Case Study In Rethinking Repair

Instructors: Ikeda/Donohue

Team:

Ayse Elif Aydinli

Dazaun Soleyn

Lizzy Wilson

Date: 12/15/2022

A8.3.4

CONSULTANT WORKSHOP THREE |BUILDING ENERGY

01 SCREENSHOTS FROM THE MEETING 02
FROM
NOTES
THE MEETING

PRECIOUS MOMENTS

CCA Integrated Studio Report

Fall 2022 Integrated Studio - Greenville - An Architecture Case Study In Rethinking Repair

Instructors: Ikeda/Donohue

Team:

Ayse Elif Aydinli

Dazaun Soleyn

Lizzy Wilson

Date: 12/15/2022

A8.3.5

CONSULTANT WORKSHOP THREE | STRUCTURAL SYSTEMS

01
02
SCREENSHOTS FROM THE MEETING
NOTES FROM THE MEETING

PRECIOUS MOMENTS

CCA Integrated Studio Report

Fall 2022 Integrated Studio - Greenville - An Architecture Case Study In Rethinking Repair

Instructors: Ikeda/Donohue

Team:

Ayse Elif Aydinli

Dazaun Soleyn

Lizzy Wilson

Date: 12/15/2022

A8.4

ARMIN WOLSKI, FIRE SAFETY ENGINEER

The lecture with Armin informed the Assembly design of PRECIOUS MOMENTS. It inspired the 12x12 Mass Timber post that can be found throughout the structure. 01 LECTURE WITH ARMIN

Turn static files into dynamic content formats.

Create a flipbook
Issuu converts static files into: digital portfolios, online yearbooks, online catalogs, digital photo albums and more. Sign up and create your flipbook.