BASECO
Strategic Pathways to Formalize the Informal

Urban Design Proposal For Informal Settlement Upgrading in Metro Manila

![]()

Urban Design Proposal For Informal Settlement Upgrading in Metro Manila

Urban Design Proposal For Informal Settlement Upgrading in Metro Manila
This thesis proposal is a result of months of hard and rewarding work that would not have been possible without the help of so many people. Throughout this journey it has been inspiring to meet like-minded designers, civil servants, volunteers and welcoming residents.
It has been an honor to meet people who face inequalities and difficult living conditions yet continue to approach the day with genuine positivity and hope. Filipinos are natural self organizers and advocates of community strength to navigate tricky situations. These unique traits are what drive successful projects and provide feasibility to this proposal.
Thank you to supervisors Andreas Olsson and Laura Liuke for your excellent support, patience and guidance. Thank you Peter Siöström for your constructive advice during the process. Thank you to the jurors, Björn Ekelund and Harrison Fraker, for your insightful feedback.
Thank you Johnny Astrand for welcoming me into your Urban Shelter course and organizing an incredibly informative study trip to Manila. Thank you to Ms. Faith Varona for welcoming us to the Philippines and coordinating important presentations and site visits.
The BASECO and case study fieldwork would not be possible without Charmae Nercua of IHS for introducing me to Ms Melissa Quetulio Navarra of the Presidential Commission for the Urban Poor. Ms Melissa, along with Mr Kreeger Bonagua and Mr Viggo Gunio were able to connect me with multiple NGO’s working in informal settlements. Thank you to Ms Teresa Prondosa of FDUP, COM, Habitat for Humanity and the Urban Poor Associates.
Thank you to Ms. Alice Murphy, Mr Arwin Atentar and Mr Al Bernarte of the UPA for coordinating the introduction to the Kabalikat organization in BASECO and having faith in the importance of the research.
Thank you to the Kabalikat organization for providing important first hand information about BASECO and your assistance with resident interviews and multiple site tours. Thank you Architect Albert Zambrano for your answers to many questions and sharing your important BASECO work and insights into the complexities of their situation. You provided a plethora of information that helped explain what the community desires for their housing and surrounding environment.
Thank you to Ms Isabel Clarizze for assisting with site visits, interviews and research, and being extremely patient.
Thank you to Sarah Lombardo and Kevin Keul for their unwavering support.
Master Thesis Report
Sustainable Urban Design
School of Architecture, Lund University
2019
Author: Lili Smith
Supervisors: Andreas Olsson, SUDes, Lund University
Laura Like, HDM, Lund University
Examiner: Peter Siöström
Jury: Björn Ekelund (Warm in the Winter) Harrison Fraker (University of California, Berkeley)
In addition to those who have been so helpful on this project, I would like to thank my personal friends and family who understand my continuous drive to learn and create. Thank you for providing unconditional support that has propelled me forward.


The term informal settlement refers to a group of settlers who occupy an area without legal tenure, thus leaving them vulnerable to eviction without notice and void of basic city services. The housing structures are often self built and the services self developed, thus leading to frequent safety and health issues. An informal settlement can range in size from a small group of families to the size of a small city. They exist across the world and continue to grow as the income gap continues to widen. The settlers consist of rural migrants who come to the city for work, city inhabitants who have been priced out of the housing market, and multi-generational families of original settlers. As the populations of these settlements reach 30 – 40% of total city populations in many cases, it is clear that governments must take immediate action to improve the living standards for these marginalized communities. These interventions should be implemented for long term success while governments swiftly plan how to tackle housing affordability and availability along with income inequality.
This Sustainable Urban Design thesis project focuses on BASECO, an informal housing settlement located in

the main port area of Manila Bay, Philippines. The site consists of 54 Hectares and over 85,000 households,. The settlement was started in 1964 by 15 to 20 families of the employees of Bataan Shipping and Engineering Company (BASECO) that operated in that location, and continued to grow informally long after the company vacated. In the early 2000’s there was an estimated 60,000 residents.
Situated close to the tourist attractions of old town Manila, busy shipping ports and various business and market areas, there are many job opportunities close by and it is centrally located within Manila. These factors have consistently drawn residents to the area, and thus it has grown significantly in the last 10 years, and growth is expected to continue in a climate of rapid urbanization in Metro Manila.
Through analysis, on-site observations and interviews, it is clear there are complex challenges that affect the resident’s living conditions and public perception of the area. Housing is improvised and often overcrowded with no formal systems for sanitation and drainage. With no legal tenure, the residents do not have access to the same quality of city services and often
can’t save earn enough to move to formal housing. As well there are many misconceptions from the outside regarding the resident’s circumstances and difficulty to recognize the potentials of the settlement.
The goal of this proposal is to enlist the goals of Sustainable Urban Design, environmental, economic and social, to create a research based design proposal, synthesizing the complexities of BASECO by retaining, strengthening and expanding the existing functional urban fabric while creating newly identified areas of improved development. The project aims to provide permanent on-site upgrading as a new norm rather than long distance relocations. This could be achieved with temporary on-site relocations, and will consist of a methodical phasing process that considers continuous services and guaranteed housing during renovation.
This proposal provides a pathway to on site development, upgrading to formalized housing while increasing the population capacity, adding areas of green space, improving living conditions, strengthening resilience and consolidating public areas to support vibrant long term economic activity.

As of 2018, 55.24% of the world population lives in urban areas, and it is estimated that by 2050 this percentage will grow to 68%. It is estimated that 3 million people move from the countryside to cities per week. In general, the shift to urban majority was primarily due to the agricultural and industrial revolution. Rural employment opportunities dropped significantly from an increase in mechanization and automation while non-agricultural industry created more jobs in the cities. As rural populations dropped, so did their political influence, government investments, available products and general services. Wealth and success thrive in cities, which creates an attraction for people who are seeking an improved quality of life with more livelihood opportunities. Cities also offer greater access to social support and services such as health care, education and technology. The reality is that not everyone in the city equally benefits from the consolidation of wealth.
Income and Opportunity Inequality and the Proliferation of Poverty
As cities continue to grow rapidly in population and wealth, so does income inequality and the proliferation of poverty. While the issues are complex, there are a few common causes that contribute to this divide. Increased population can lead to an inadequate amount of fiscal assistance for those in need, with governments focusing a majority of resources that favor wealthy investments. The shift in interest from agricultural to industrial investment increases employment rates for skilled laborers, while decreasing the opportunities for generally unskilled rural migrants. The lack of

affordable education and skills training leads to high unemployment and increased urban poverty.
Economic de-regulation policies promote a free market economy with little government intervention, often leading to low pay and income below the standard living wage. Additionally, inequitable tax policies favor the wealthy, limiting the funds and services available to distribute across the population. This can include affordable healthcare, childcare and transportation.
Increased inequality and poverty issues are more severe in developing countries. The lack of education and family planning lead to rapid urbanization and population growth, which strains the existing infrastructure. Other factors include a lack of technological development and miss-use of funds through government corruption. This combination can lead to the proliferation of the urban poor and incidence of informal settlements.
As more people move to cities in search of opportunity, in reality they often face inadequate salaries or long term unemployment, pricing them out of the formal rental market. In addition, government policies and financial focus lead to an inadequate number of affordable housing units. These residents often have no choice but to move to illegal informal settlements where they are able to build their own shelter or live with family and friends for a lower cost of living. Within the world’s urban population, approximately 30% of people are living in informal settlements. Unfortunately the

living conditions can be unhealthy, with overcrowding, dangerous structures, personal insecurity, constant risk of eviction, and insufficient of city services.
Many governments lack the resources or do not prioritize their budget to properly address the informal settlement issues. Frequently, housing developers, driven by maximizing profits, find loopholes to avoid providing the amount of low income units required by law. City municipalities often fall victim to corruption, allowing these practices to take place. When governments are not pro-active in providing for their less fortunate citizens, housing will cater to middle and high income citizens. Unless changes are made to how governments approach housing development projects, informal settlements will only increase in frequency and size. Strategies that insure equality of growth and strengthened communities will lead to a stable economy with higher employment and affordable housing opportunities. These changes should include innovative design strategies and processes that involve organized community participation and input.
This proposal aims to contribute ideas for improving the housing crisis in the Philippines by providing solutions for upgrading existing informal settlements through the lens of Sustainable Urban Design. These concepts are applied to the BASECO area of Manila, and are intended to be scalable and applicable to other settlements worldwide while considering the site specific requirements and inhabitant’s unique needs.

During the initial exploratory phases of research and on-site fieldwork, the question of “Why in the Philippines” and “Why Baseco” was raised frequently by those being interviewed. The reasons originate from an interest in urban poverty, the proliferation of informal settlements worldwide and how disasters affect the poorest world populations. In relation to these subjects, the Philippines stands out, being prone to yearly major disasters and a high incidence of high risk urban poor.
When analyzing the Philippines, BASECO became a focus of interest as one of the largest long term established informal settlements in the country, located in a vulnerable location on a peninsula in Manila Bay. It offers a dynamic view into how life functions in an informal setting, and how residents cope with challenges of insecure tenure, disasters and self governance.
The objective of the fieldwork in Manila was to inform the project proposal with on site data collection and observations that can only be verified and experienced in person. Through interviews and site visits information was gained regarding the housing sector, the involved stakeholders and the life experiences of the urban poor.
The goal of the research was to learn more about:
• Livelihood activities in the informal economy and how these connect to formal sectors
• Passive solutions used in the built environment for thermal comfort, such as ventilation and shading
• Preferences of interior space and household amenities
• Communal activities outside the home
• Community organization
• How informal areas interface with their surroundings
• One month in Metro Manila
• Visited both informal and upgraded formalized housing sites
• Conducted Interviews with families, neighborhood community leaders, NGO’s and government agencies
• Collected on site data, observations and resident feedback

The BASECO Urban Design proposal is a result of multi-phases of research, analysis, fieldwork in Manila, data synthesis and design development.
Research and analysis involved compiling information related to weather, population, economy, poverty, housing and government statistics in both the Philippines and Manila. As well this time was used to plan interview questions for government officials, NGO’s and residents.
The project fieldwork was conducted in Metro Manila for a total of 30 days in order to gain a holistic view of the region’s government, culture, quality of life, low income housing industry and informal settlements. The fieldwork included lectures from scholars and government housing agencies, government and NGO interviews, resident interviews on site and in selected settlements and cultural exploration activities. The objective was to decipher the unique contributing indicators in Metro Manila’s housing crisis and what is being done in response, while also observing how residents are affected in their daily lives.
The lectures provided a comprehensive background of the low income housing crisis in the Philippines and more specifically in Manila. Various key government and non-government organizations chronicled recurring challenges, past and ongoing projects and future housing objectives. Government and NGO Inteviews: Interviews of key actors in the low income and informal housing arena were conducted to gain a sense of the biggest challenges they faced when trying to improve the multi-layered housing

crisis. This information provided a context for the subsequent site analysis. In addition, simultaneously, second or third interviews were conducted as new questions were prompted from site and case study visits.
Case studies were chosen from various site visits and interviews conducted during the fieldwork in Metro Manila. They are current or former informal settlements in various stages of development and size, and provide insight to how communities organize and socialize, maintain their economy, interact with the government, deal with water and sanitation and how they interact with the built environment.
Extensive site orientation:
On-site interviews with residents and community leaders during the BASECO site visits were extremely important in understanding the complexities of the settlement. This time was used to connect with the

community leaders and conduct interviews with them to gain a deeper understanding of the challenges faced specific to BASECO. Resident interviews were conducted across the site within varying neighborhood areas to gain an understanding of how the experience can vary dependent on the house location, and what was needed most to improve their lives. In addition, time was used to collect qualitative data such as observations, and quantitative data such as site measurements, home floor plans, structural notes, materials and population density estimates.
Interviews, observations and data collected in the field are reviewed and synthesized into a set of goals for the study site. SWOT analysis helps focus those goals to determine the guiding vision and strategy of the project. Project concepts are developed through strategic diagrams, detailed design elements and the master plan, culminating in the final urban design proposal.

Philippines History and Statistics

The Philippines was established by people who migrated from the Asian mainland when there were land bridges that connected it to the Philippine islands. They established Barangays, which were groups of a few hundred people, and represented the largest organized form of government economy at that time. Today, Barangays are the smallest form of government, which is a testament to how many changes the area has gone through in history.

The Spanish occupied the area from 1565 to 1898, introducing a new language, religion and political control. They established Catholicism as the dominant faith, and this continues to present day. Filipinos revolted against the Spanish in 1898, however the Americans, who were in a conflict with Spain, were quick to take control of the country, occupying the area until 1945. The American occupation introduced the English language, a new government structure and the prevalence of a car dependent culture. Cars influenced the core design principals of the cities and lack of cohesive transportation. High dependency on cars mixed with a rapidly increasing population has led to extreme traffic problems in the urban areas.
• Located in South East Asia
• Consists of 7000 Islands

• Living in Informal Settlements: 38.3%

• Population: 104.9 million (2015 census)
• Projected: 107 million by end of 2019

• Average Density: 337 People/km
• Urban Population: 46.9% (2018)

• Religion: 86% Roman Catholic
6% Other Christian
8% Islamic and other
• Average Family Size: 5
• Average Urbanization Rate: 1.61%
• Expected Growth Rate 2015: 1.5%




• Located in South East Asia just north of the equator
• Tropical climate
• Dry (winter)/Wet(summer)
• Annual Avg. Temp: 26.6 C
• Annual Avg. Rainfall: 2,047 mm



The Philippines is the most disaster prone area in the world, commonly from typhoons and earthquakes. There are an average of 20 typhoons per year, causing enormous damage and loss of life. In 2018, The Philippines was 2nd in the world with 2.53 million people displaced due to disasters. Those affected are most often the poorest sector of the population, due to weak and unsafe building structures and close proximity to higher risk areas such the coastline and rivers.
The destruction is amplified in dense cities such as Manila, due to the number of people and structures that exist. This is compounded by the fact that the risk factor is medium to high.







One of the strongest tropical cyclones ever recorded was typhoon Haiyan, which passed through the central part of the Philippines in 2013. It left over 6000 people dead and devastated whole cities, with over 4.5 billion USD of damages recorded.

Average Annual Typhoons 20
Average Annual Effects of Natural Disasters 640 lives lost
$160 Million damages 71,000 houses destroyed
2.53 Million Displaced (2nd in World -2018)


The Philippine government is a democratic republic, with a president as the highest in office. They serve a single 6 year term with no possibility of re-election. This seat has been riddled with problems mostly stemming from deep-routed corruption, which often exists in many parts of the government structure. Mayors hold office for 3 years. It was argued by many of those interviewed, and may in fact be the case, that a one term presidency and such short term lower offices can often lead to the inability to see larger projects to completion. It is also common that the newly elected officials will halt or change the nature of the projects started by their predecessors.
The Barangay, which is a term for village, is the smallest form of government within municipalities and consists of 5000 to over 100,000 people. Barangays have 8 elected officials who are responsible for implementing laws and acting as mediators in local disputes to prevent them from overloading the court system. Barangays, as the other levels of government, are susceptible to corruption. They have significant influence over resident opinions and can sway support or rejection of low income housing projects in their jurisdiction.







Metro Manila, City of Manila
The city of Manila is the official capital of the Philippines; however the government offices are located across the larger area named Metro Manila, or the National Capital Region (NCR). It is made up of 16 cities, and in addition to politics, it is the central economic and cultural hub. The largest city in Metro Manila is Quezon City and Manila is considered the most dense city in the NCR and one of the most dense cities in the world at 43,000 people per km2.
• Metro Manila density: 27,307 per square mile
• Metro Manila Population: 14,750,000
• Square miles: 540 miles
• Newly Industrialized Country: Agriculture, services, manufacturing
• Exports: Electronics, garments, equipment, petroleum products, coconut oil, fruit
• Metro Manila = 35% of Philippine Economy
• National Poverty Line - $1.25/day


Manila Density - Person/Sq.KM
Built in the 1970’s, the Metro Manila transport system, MRT, is overtaxed, insufficient both in capacity and extent, unable to keep up with the demand of a rapidly increasing population. There is a limited Metro line to major locations within the NCR, however little service to outer areas where many urban poor are re-located or live due to affordability. There is a large network of buses, however they are also caught in major traffic jams, and thus the punctuality is very unreliable. Many rely on high polluting but cheaper options such as the overabundance of jeepneys and motorcycle trikes. Jeepneys are converted military vehicles left by the United States post occupation. The Jeepney network is extensive and only stops when requested, however they are also extremely crowded. The trikes can be a dangerous option, but they are quick for inner city trips and able to avoid traffic in many instances.



The first railway, PNR, once had 138 stations spanning from far North of Manila through Luzon. This provided express service to an from Manila and allowed for residents to live farther outside of the city. Today there are only 49 active stops near Manila and in the south. Some areas have been damaged by typhoons, and the recovery has been slow.







National Poverty: 12.1% Below Subsistence

Manila Poverty: 4.5 Million People


Metro Manila has grown exponentially due to rapid urbanization of people from the countryside seeking work opportunities services. Unfortunately many of these job-seekers do not earn enough income to live in formal accommodations close to their work and the metro area lacks sufficient affordable housing. More often their only choice is to stay with co-workers or family members in informal settlements, where the conditions are cramped and lacking sufficient water and sanitation services.
These informal settlements are illegally formed often on government land and close to water access. The settlements are often in danger zones with little prevention for flood or fire. The majority of homes are built with lightweight materials and without proper foundations. The structures, which can be multi-story, are damaged easily from strong winds and earthquakes. The residents live under a constant threat of eviction, flooding, loss of shelter or injury from damage and water related illnesses.
In response, the government protocol is to remove residents from the high risk environment and relocate them to safer areas. Unfortunately, these relocation sites are usually where land is cheaper and a far distance from the economic opportunities in the city. With an insufficient transportation system and extreme traffic times, many residents choose to move back to city, and end up once again in high risk informal settlements. Although the government recognizes these issues, and is pursuing alternative solutions, the cost of land prohibits the ability to provide in-city relocation for the amount of need that exists. As well, corruption plays an important part in the unwillingness of some government officials to offer available municipality land for low income development.



Informal Settlements Stats
Metro Manila


35% Live in informal settlements

4.6 Mil. people as of 2018
ISF - Informal Settlement Family


ISF = 5-8 People per household avg.

Avg. home size: 15-24 Sq.M



Avg. Rebuild 2x per year




The following chart represents a portion of the key actors involved in low income housing production and services for informal settlers. During the fieldwork, the main government entities interviewed include the NHA and the PCUP. The items in blue are non-governmental agencies and community organizations related to BASECO and other visited sites.
The NHA is the primary government entity responsible for producing socialized housing. Started in 1975, it is a government owned and controlled corporation. They are pressed with high targets that are difficult to reach, and the need continues to grow yearly. For instance in 2018, the target was over 552,000 homes, and 15% of this was accomplished. The more recent BALAI initiative is in place to focus on increased public/private partnerships to help fill this fulfillment gap. The NHA faces immense challenges in fulfilling their mandates due to the distribution of power in the government. Local governments (LGU’s) are responsible for housing in their jurisdiction, and can stop a project by withholding funding. Often they do not want informal settlers in their city or they wish to capitalize on the high price of land.
NHA mandates:
• Provide technical and other forms of assistance to LGUs in the implementation of their housing programs
• Undertake identification, acquisition, and disposition of lands for socialized housing
• Implement vital components of the National Shelter Program
• Land banking for the Resettlement Program
• Manage and administer the Trust Fund for the Medium Rise Public and Private Housing and Local Housing Programs
NHA Housing Programs:
• Resettlement program for ISFs living along danger areas and those affected by infrastructure projects
• Regional resettlements
• Settlement upgrades
• Government Employees’ Housing Program
• Vertical development low income housing
• Housing program for calamity victims
Factors Contributing to the Housing Crisis:
• De-regulated market driven approach
• Government as an enabler not provider
• Short term mayors (3 years)– Inconsistent Promises
• Over-burdened public transportation
• Corruption
• High risk to disaster
• Lack of cohesive master urban plan
• Loopholes in construction permits




This is a selection of locations visited during in Metro Manila. They represent various settlement and stakeholder types encountered while conducting fieldwork.
The following case studies highlight 3 selected projects visited. They have been chosen to give insight into strategies that may work well for BASECO and challenges that were taken into consideration when designing the study site. These projects represent various stages of development, from completely informal to renovated and formalized. The fieldwork of these sites included initial interviews with the Government or NGO entities involved, round table discussions with community leaders and a tour of the area and interviews with residents in their homes.

Lupang Arenda is a large informal settlement on the edge of Laguna Lake, a large water body southeast of Manila. The population as of 2011 is estimated at 95,000 made up of approximately 19,000 families.
The NHA (National Housing Authority) is currently conducting a census for updated statistics. The NGO, COM (Community Organizers Multiversity), facilitated a town hall meeting with community leaders to learn how they are organized and what their short and long term and challenges consist of. They provided a tour through the site where they discussed specific examples of their successes and hurdles.
The area was an agricultural land before the 1950’s, and by the early 1990’s, there were only approximately 200 farming families living there. As Metro Manila began to urbanize rapidly, many families moved to the area. The population grew dramatically the government proclaimed

the area as a social housing site in 1995. The community is highly organized, however they still face challenges pertaining to secure tenure, liquefaction, peace and order, drainage and political push-back from their own local Barangay. Ultimately, their goal is to be granted the land by the government at no cost with agreement to zoning laws regarding the height and weight of structures due to the weak soil.
• Similar in size to BASECO
• Similar issues to BASECO such as liquefaction and insufficient drainage and sanitation services
• Well planned and site coordinated community organizations:
Once separate neighborhood groups and leaders, came together to form the APOLA federation, consisting of an alliance of group leaders from seven zones allocated by the residents.

“It is important to empower the organization and the leaders. The transfer of information from the leaders to the members is important to gain the trust of the people and also share to other people who do not believe in the advocacy of the organization.”
• Ongoing interaction and negotiations with local and federal government:
As one federation they are able to bring one cohesive strategy to the government, which is more convincing. For instance, they passed a position paper to different government agencies and were able to form a technical working group for the issues of the Lupang Arenda. The organization coordinated with the Housing and Urban Development Coordinating Council (HUDCC) to request for a new proclamation for the area. The HUDCC committee declared Lupang Arenda feasible for human habitation. This is an example of how community organization can prevail.
Lupang Arenda, Informal Settlement
• Long term ongoing interaction and planning with NGO’s and surrounding settlements:
APOLA partnered with TAO-Pilipinas to conduct information dissemination on the current situation of the area regarding liquefaction. Also with the help of Community Organizers Multiversity, the alliance formed 5 committees which focused on 5 areas :
• Land Housing
• Community Based Disaster Risk Reduction and Management
• Advocacy
• People Strengthening Committee
• Basic Services.
• Progress towards securing tenure:
At the time of the visit, the community leadership had just secured a tenancy proclamation from the government for one neighborhood zone. This is the first step in becoming a legal settlement, and is a reflection of how community organizations can create change.
They have a well developed street and housing network with some improved roads and piped in drinking water.
They apply yearly for funds through Local Government Units (LGU) for improvement projects, and have been successful in funding strategic drainage solutions and concreting of roads where possible.
They were able to advocate with the help of Presidential Commission for he Urban Poor (PCUP) for a water station to provide piped drinking water.

Bistekville 4

Bistekville 4 is a project started in 2013 and developed by the Quezon City Building Department with the city Architect Mark Anthony Baladjay and Habitat for Humanity. It consists of a phased process of transitioning informal settlers on site from their informal homes to formally built and government approved housing. This project is an example of how Quezon City understands the importance of keeping residents close to their original settlements. This goal is exemplified in many of their current projects that involve buying informal land, renovating it and then charging rent to the residents once they have moved into their new homes.
This project is used as a case study for the following reasons:
• Exemplifies collaboration and communication between agencies:
Projects such as Bistekville 4 require multi-level government and CSO (Civil Society) organization, for instance, the Quezon City Planning department and the NHA worked with NGO’s and community advocates to ensure the success of the project.

• Long term management and holistic community involvement:
• Community training includes capacity building and work training
• An example of how an informal settlement can successfully transition to formal housing without significant resident relocation :
The city plans for long term management for continuity and feedback that can be applied to make future projects stronger. Community leaders involve residents with the project to disseminate correct information and avoid outside influences from “Professional Squatters” who profit from the current situation. These residents capitalize on governmental disorganization and available subsidies by selling or renting properties provided to them and repeat this from settlement to settlement.
The phasing process mixes new housing, current construction and original informal settlers. They coexist until eventually all residents will transition into new units. They are all from the same settlement, so the established ties help support the transitions. Some residents have to stay with friends or family during construction, as well there are funds provided by the government for rental expenses during renovation if needed.

• Smart economic management:
The residents pay rent for 5 years before they can be eligible for ownership. This gives them a chance to get accustomed to making payments for rent and utilities, and for them to make sure that they are happy with their new housing. For purchasing power, there is a combination of funding provided by in house finance with Quezon city, the HDHP if they are by waterways or in danger areas, and a group savings fund if they are members. Their down payment requirement is 10,000 PHP or $190.74. The city supports a strict eviction policy of 3 months if the rent or mortgage is not paid.
• Requires a qualification of being able to make payments, and thus some residents who do not qualify are turned over to the NHA and often relocated far outside the city
• Land costs are increasing rapidly and this often leads to smaller project sites, thus a smaller number of final residents.
• The phasing process can be lengthly.
• Located within the city of Manila port area
• At the mouth of the Pasig River
• 54 Hectares of reclaimed land
• Former Shipyard - Bataan Shipyard and Engineering Corporation


The project site, BASECO, is one of the largest informal settlements in the Metro Manila area. It is a former shipyard located at the mouth of the Pasig River, which flows from Laguna Bay Lake to Manila Bay. There are an estimated total of 17,000 informal settlement families (ISF), an estimated 85,000 residents. The settlement is 100% without legal tenure.
Most of the residents work in the nearby ports and shipyards or as pedi-cabs, trike drivers and in food service. Once on stilts, the houses were re-built by the residents after 2005 when the government began filling the area with man-made land. Unfortunately, this government effort was made in various stages through changing political landscapes, and much of the fill area was improperly mixed with garbage and sand, leaving the base unstable and prone to liquefaction during seismic events.
Soil tests conducted in the area reveal that if leaving the soil as is, it is not safe to build more than 2 stories. Most structures are 1 to 2 stories, however some who have the funds build up to 4, which is extremely unsafe in the case of an earthquake. There are also many tall Municipal buildings, such as schools and an evacuation center.







Historic Photos
The historic satellite images are from 2001 to 2019 and show the progression from a mostly over water community to a highly dense informal development on landfill. Although the homes are technically off the water now, they are still at a high risk of destruction due to liquefaction during a seismic event or damage during high winds due to their lightweight construction.



Surroundings: Green Space, Connections, Transport
In Manila, shaded green spaces are not very common, although they are extremely important as a welcome respite from the high heat and sun. BASECO has multiple public shaded areas for community gathering and sports, however none contain accessible nature. The surrounding areas provide very little green space that is not formalized with little shade. One of the largest continuous spaces is a private golf club that surrounds the original Intramuros fort. This represents a lost opportunity for a large inner city public park.
BASECO is located close to major commuter and delivery road networks and important tourist and business districts in Manila City. Despite being centrally located, the site has only one entrance and exit, and is surrounded by Manila Bay and the Pasig River with no water transport access. The main road feeds port access, and the majority of traffic involves large delivery trucks or trikes coming to and from the area. There is no proper area to walk, and there are times of extreme traffic delays and dangerous shared road space. The lack of connections and inefficiency of access compounds physical and social isolation.
The closest metro stop is about 5 km away and would take a 1 hour walk or a 20 min car / trike ride in light traffic, but this time could double at certain times of day. The closest bus stop is a shorter 3.5 km; however there are no direct public transport options into the site other than trikes.



BASECO has distinct neighborhoods as a result of municipal and NGO interventions, patterns of settlement over the years, proximity to the water, and areas re-built after disasters. During fieldwork resident interviews were conducted in six different areas and in most cases, multiple households per area. This allowed for a cross section of information and observations that created an overview of the convergent experiences that exist across the site. The interviews provided a context for analysis of what residents require from their homes, surrounding environments, social activities, services and income. The residents give the most accurate depiction of what daily life is like in BASECO, and when responces and observations are re-occurring, they become indicators for consideration.
Summary of main points learned:
• Secure tenancy is usually the highest priority
• Many have to rebuild their home due to vulnerability to strong winds and they are in need of heavier materials and building technology support
• Sanitation and drainage is the biggest problem inside the home
• Water provided by the city is not safe when it reaches the home due to contamination in the tubes, and is rarely used for drinking
• Installing electricity to the home is costly, and many share power or unsafely connecting to power lines
• There is a lack of personal security due to minimal peace and order services

GK:
The NGO, Gawad Kalinga, built over 2000 homes with sophisticated public/private partnerships, receiving funding from many private companies. This allowed them to remain on site for long term leadership and capacity training with the residents.
HFH:
The NGO, Habitat for Humanity, built over 1000 homes after a fire destroyed a large number of homes.
Dubai #1, #2:
Government funded housing built after the submission of the people’s plan.
New Site Neighborhood:
The only location on BASECO that has been properly filled with solid concrete. This was gridded by the municipality and residents have built 3-4 story houses. Although the city issued certificates of occupancy, they are still considered informal.
Gasan Neighborhood:
Partially re-built after a large fire, with the help of the UPA.
20 M /3M Setback:
The law demands a 3M setback from the water for any structures. Recently the government has threatened the area with evictions up to 20M inland.

Playa Neighborhood:
Homes built closest to Manila Bay and most at risk. They are within a 20M setback that may be imposed by the government, and are susceptible to eviction.
Beach:
Unstable sand fill was placed by the government in 2002 after a large fire. It was intended as a temporary housing site for fire victims in 2004, however the fill was improperly executed. The area is popular with residents for recreation activities and cooling off in the water. Unfortunately the area is heavily polluted from site runoff and trash.
Mangrove Sanctuary:
Started by members of the Kabalikat, it has grown to over 1000 healthy trees within 5 years.
Kabalikat Nursury:
Started by the Kabalikat with assistance from UPA and Architect Albert, it is where they foster the mangrove seedlings and grow plants for member homes.
SportsCenter:
The sports center is a large covered structure used for multi-purpose activities, mainly sports like basketball, which is a favorite in the Philippines. It offers an expansive shaded area for players and spectators.


Large food market near the main entrance of the site. It was renovated along with many others in Manila in 2017 at the orders of President Estrada. The area is a bustling economic hub, with food and goods vendors along the surrounding streets.









The fieldwork of BASECO began with an introductory meeting with the government agency PCUP (Presidential Commission for the Urban Poor), and continued with one of the NGO’s actively working on site, the UPA (Urban Poor Associates). They have years of experience with the site and are actively involved in community capacity building and planning.
The Kabalikat, a small but active resident community organization, was interviewed as an introduction to the site, providing detailed information about their work and living in BASECO. They discussed projects, accomplishments, disaster prone areas and ongoing discussions with the government. Aside from the main issue of legal tenancy, the most recent cause of alarm has been a government claim of an increased setback requirement of 20 meters from the water, significantly larger than from 3 meter distance as stated in the federal building code. The Kabalikat members also provided guided tours throughout the site, touching upon the nuances of each neighborhood and introducing us to residents for interviews in their homes (Chapter 9).
The Kabalikat works closely with the UPA on an ongoing basis. The UPA assists them with structuring the organization, livelihood activities, savings plans, volunteer coordination, community gardening and government communication. Their head architect, Albert Zambrano worked with the community to rebuild homes after a large fire in 2004 and continued to collaborate with the community to create a formal people’s plan. He has developed various housing designs and urban plan concepts based on resident input. The people’s plan is a strong tool for communities to show the government a professional proposal for their area and advocate for the opportunity to participate in the future planning of their settlement or their re-location.


“What we are asking for is a meaningful conversation with the government, in which the government recognizes that local people are also experts. Our People’s Plan demonstrates that we have vital perspectives and ideas to contribute to creating true development solutions.”
Jessica Amon, Community Organizers Multiversity (COM) Courtesy medium.com
Community Gardens, Mangroves and Parks: There is an obvious lack of nature in BASECO, with most green existing as small plants at the front of homes, or larger trees that have been planted by neighborhood groups and are only accessible when the multi-purpose area is open. There is very little natural shade and the playgrounds lack grass or trees. The Kabalikat has been working towards increasing the urban green spaces in BASECO. They have attempted multiple times to create a large public park space with plantings, however many of the plants are soon stolen or destroyed. Unfortunately they are not able to continue funding such efforts, and have focused their efforts on their nursery, where they give away plants to members to place in or around their homes. The difficulty in maintaining large green spaces provides insight into the need for smaller, more manageable and resident responsible park spaces.
The Kabalikat community leaders initiated a mangrove nursery program in 2014 that has fostered over 1000 successful growth trees. They were started in the community nursery as seedlings and then planted in an area on the shoreline. One member is the head caretaker of the area, making sure that they remain healthy and un-tampered. Within five years, they have grown immensely, creating a dense network of roots and foliage. The leaders were planning on expanding the plantings when the current Mayor decided to take over a significant part of the shore for their mangrove effort. As the poor state of the plants indicates, there has not been enough care and oversight, and thus most of them are dying or dead. This juxtaposition of the community and government projects is symbolic of how the best government intentions can often fail or fall short when the community is not included in the effort.
The following images from Architect Albert and represent a selection of design work accomplished through collaboration with the community.
The people’s plan developed with the community and Architect Albert was officially submitted to the Municipality in 2012 It included a comprehensive re-blocking urban plan and suggestions of incremental housing typology. The plan was influential in convincing the Municipality to move forward with building homes for fire victims in the Dubai neighborhood. The community and Architect Albert worked together to design the housing details. The Municipality ultimately modified the home designs, however it remains a positive example of community influencing government decisions. The municipality is currently building a second phase of homes.
The Gasan subdivision plan and home design was developed in response to a fire that destroyed a large part of that neighborhood. 205 homes were re-built based on an incremental housing proposal by Architect Albert with the UPA. The pictures show examples of how families had grown their spaces soon after they were constructed. The fieldwork revealed that many of these homes have exceeded the recommended height restrictions and are often constructed without enough technical ability. This is a factor that must be considered by any incremental housing concept, in order to maintain a level of safety and visual aesthetic.
Architect Albert Zambrano albertzambrano.com











Many residents have formal employment in the surrounding ports or in the business districts. They also make up many of the pedi-cab, trikes, jeepney drivers and fisherman in the area. Within BASECO, many livelihood activities take place in both the formal and informal economies.
The Kabalikat organizes several livelihood activities including recycled foil and water hyacinth plant accessories, eco bricks and plastic bag cleaning for reuse. They operate the activities out of their headquarters where they sell items such as woven purses, wallets, sandals and tablet covers. Many members utilize these activities as part of their savings plan. The Kabalikat pay them for their work and hold their income in an account for future home repairs or other emergencies. This scheme has the potential to be a robust community savings with lending power, however a great deal more members than they already have would be required for it to be successful.
Their main company, HABI bags, sells products out of their store in BASECO. The members that help construct the items are paid and have the option of maintaining their pay as a savings account. habibags.wordpress.com
Livelihood Activities Performed out of Storefronts or Vendor Stalls:
• Building materials and hardware stores
• Restaurants
• Food Markets
• Food stalls
• Sari Sari Stores (candy, drinks, snacks, household products)
• Electronics
• Salons
• Internet / Gaming cafes or single computer stations
• Karaoke rooms
Livelihood Activities performed at home:
• Recycling – Redemption and plastic bag cleaning
• Garlic and onion peeling - Performed for wholesalers receiving food goods from the port.
Social activities and the Multi-Purpose Center:
The social fabric of BASECO includes sports, church, karaoke, community gardening, playgrounds, beach activities and community gatherings for special events. Most social gatherings take place in multi-purpose centers, which are a core part of Filipino culture and occur in most neighborhoods, often associated with the Barangay hall. They are open air hard shell canopy structures that vary in size depending on budgets and space available. In BASECO there are many centers throughout the site, and they often include an area used for basketball, church and community meetings, weddings, birthdays and evacuations. The community also participates in an initiative to clean Manila Bay, when they help pick up trash along the beach and river edge.


SWOT analysis is an effective tool used as a point of departure in an Urban Design project. SWOT stands for strengths, weaknesses, opportunities and threats. These are determined from quantitative and qualitative research conducted on the project site. The strengths and weaknesses are focused on internal aspects and the opportunities and threats relate to external factors. The results of the SWOT analysis help guide the vision and strategies of the design project, leading to relevant and appropriate interventions.
During the project research formal and informal settlement families were interviewed in BASECO and throughout Metro Manila. Families reflected on their hopes for the future and their community upgrade projects. This helped to gain an understanding of the successes and failures within the process and outcome, from the standpoint of the residents themselves.
The following SWOT analysis for BASECO considers a combination of observations, collected empirical data and input from the residents, government agencies and NGO’s.

• Vibrant existing economic streets and market areas
• Diversified existing livelihood activities that can be expanded
• Existing social fabric structure: Places of Worship / Multi-Purpose Community Centers / Sports Groups / Schools / Urban Farming
• Un-built spaces suitable for added green space: Lagoons / Playgrounds / Demolished Areas
• Ability of residents to adapt with challenging circumstances and willingness to live in compact spaces
• Economic strength from a large population warrants formal installations of utilities and other city services

• Proximity to main transport roads provides increased accessibility options
• Surrounding water offers opportunities for water transport access and fishing
• Location at the mouth of the Pasig provides options for a robust recycling business due to large amounts of trash that flow from riverside settlements
• Close proximity to the historic Intramuros and harbor areas in Manila: Work opportunities related to tourism or work in the docks
• Possibility of attracting locals and tourists for food, groceries and handmade goods






• Minimal road connections to the site
• Contaminated drinking water due to unprotected rubber tubing
• Lack of adequate amount of public green space
• Drainage is often either missing or improvised with self made dig out drains
• Septic tanks are placed per family and improvised directly in the ground and with no measurable level. Contaminated wastewater leeches into the ground and eventually to the bay
• The proliferation of garbage on the site and in the water is a combination of outflow from informal communities along the Pasig River and from BASECO. This is due to a lack of affordable unified garbage collection in informal settlements
• Lightweight structures are common due to the affordability of the materials. They are highly prone to Damage During Weather or Seismic Events
• Inadequate peace, order and safety organizations such as police and firefighters
• High crime statistics leading to negative external perception
• Frequent uncontrolled fires
• Difficulty to reach inner areas due to narrow pathways

• Insecure tenure with the constant threat of government mandated evictions or long distance re-locations

• Liquefaction possibility during a seismic event due to the poor quality of the soil fill
• Location on the coast of Manila Bay:
• Storm surges with high winds and waves, causing damage and flash flooding
• Frequent typhoons, leading to significant structural damage and site erosion
• Possibility of permanent flooding from sea level rise
Subject Title




The vision for BASECO is to provide a formalized onsite settlement upgrade with inclusive community based planning and methodical building processes, integrating the site to the surrounding areas with an improved perception and added value to the city.
To achieve the vision for BASECO, the strategy retains, strengthens and expands the existing functional urban fabric while creating new opportunities for healthy development, standardized city services and long term economic growth.
The following strategic plan diagrams describe the specific interventions that will support the vision and strategy for BASECO and guide main components of the master plan.
BASECO currently has only one main entrance to the site, which is shared with points of entry to the nearby ports. Traffic jams are common, and can cause major commute delays.
Access can be improved by increasing the connections from main roads close by and utilizing existing street networks in the port area. From the main traffic circle that leads to Intramuros and a larger ramp to the north, an existing road is formally connected to a new proposed bridge between the port edge and Eastern edge of the site. An additional Northern perimeter road leads to two new connections that drop south to the main entrance and Barangay Hall.
Existing economic roads are retained and extended to connect across the site. They are formalized and standardized with sufficient allocated space for vendors, shoppers, pedestrians, trikes, bikes and deliveries.
Main connector roads within BASECO are derived from existing routes where possible in order to maintain familiarity of way-finding and minimization of change for the residents. They are extended and interconnected to create defined neighborhood blocks.
The addition of ferry stops on the North and South East coast introduces an additional and unique form of access to BASECO. These will tap into an existing ferry service that operates on the Pasig River between Laguna Lake and Manila Bay. The new stops could connect to service extending south down the coast, significantly reducing travel times to Makati and other major cities.
New Connectors to Site
Strengthened and Formalized Existing Economic Streets
Expanded Economic Streets
Strengthened and Expanded Inner Connector Roads
New Ferry Line with Two Stops

New Connectors to Site
Strengthened and Formalized Existing Economic Streets Expanded Economic Streets
Strengthened and Expanded Inner Connector Roads New Ferry Line with Two Stops
Public park areas and open green spaces have been difficult to maintain in BASECO mainly due to a lack of personal responsibility of residents, and in some cases, theft or destruction of the plants. The successful green spaces that remain untampered with usually have restricted access, such as the Kabalikat nursery, or are difficult to access, such as the mangrove sanctuaries. There are also small fenced off urban farms that are cared for by a group of households.
Although there is very little green space on site, there are existing lagoon areas that remain un-built by residents due to their swamp-like properties. This is a result of water seeping through the inadequate landfill and the area’s high water table. They create areas of unbuildable land; however they also foster naturally growing plants, and become some of the only open spaces on the site. The existing familiarity of these areas makes them more likely to be respected and less likely to be appropriated or destroyed by residents.
These lagoons present an opportunity to be re-imagined as nature spaces with rainwater retention and filtration ponds. The basin prevents flooding by holding extra water while the vegetation slows water from storm runoff. The plants also help filter drained water that may be contaminated from roadways, trash and improper dumping. The lagoons are an important step in improving water quality before it eventually flows into Manila Bay. Additional lagoons will be created in order to intensify the water management capabilities.
Basins are commonly designed with the intention of sub-soil water infiltration, however In this case the deep foundation is concrete. It is therefore required that a thicker than usual vegetation and rock base is used for sufficient filtration and slow down of water. Due to the prevalence of malaria in the region, the lagoons would require a small pump to ensure water movement and the ability to fully drain the basin if necessary.
Mangrove Forest
Mangroves naturally occur in southeast Asia where the Philippines is located, however they have been decimated for building materials and to make room for development. Although strict rules are now in place against destroying mangroves, they remain rare in dense cities, such as Manila, where they are needed the most. They are natural champions of the coastline, and would be a multi-layered asset for the environment of BASECO.
The Kabalikat mangrove project would be expanded along the site shoreline and the outer sandy fill, creating a green space with environmental functions. The existing mangrove sanctuary is a testimony to the ability of residents to organize and successfully complete such a project.
Environmental benefits of Mangrove forests:
• Slow down Erosion by reducing the energy of and height of waves.
• Stabilize the coastline with strong and deep root footings
• Increase Carbon Sequestering and at a faster rate than forests
• Create an ideal environment for many Flora and Fauna species
• Grow up to 2m within 2 years and ultimately as large as 25m tall
• Survive in extremely salty water and with roots submerged
• Filter pollutants in the water
Park Area and Wetlands
Constructed Wetlands
Constructed wetlands are increasing in popularity in urban settings due to their multi-layered benefits to the health of the environment residents. The BASECO wetlands would be located in the existing water area formed between the original shoreline and the large area of sand fill brought in by the municipality. This area is semi-protected from the main bay, however it is affected by tides and storms. The area will be further protected by a large bank of planted mangroves along the inner edge of the sandbank, and vegetation throughout the area. The area is approx 2 Hectares, which is small enough for community managed project and large enough to have an impact on the local environment. The wetlands would be an additional environmental buffer between the built environment and Manila Bay, and an attractive recreational green space for residents and visitors.
Urban environmental benefits of constructed wetlands:
• Economical way of purifying urban water runoff, a factor of approximately 10 times cheaper than purification plants
• Filter sediment and digest chemicals from runoff before it enters the main water area
• Reduce wave heights and wind speeds
• Reduce flooding by soaking up excess rainwater
BASECO requires alternative approaches to managing green spaces to ensure long term success. The proposal strategies include retaining the locations of well managed areas when possible, and placing new smaller nature units and integrated playgrounds strategically within neighborhood clusters. The smaller scale parks and gardens will be more manageable and will foster a greater sense of personal responsibility among neighbors in close proximity.
Similarly, urban farming activities are smaller and distributed throughout the site. The green plan places food growing and nurseries in connection to the multi-purpose centers and next to the main food market. Some areas may require locked enclosures due to risk of vandalism and theft. However, if residents feel included and have access to their own green area, they will be m ore likely to respect the others.
The shoreline park will be the only expansive green area, spanning along the perimeter between both ferry stops. The space is divided by mangrove plantings, walking path, a flood control berm and a small road for bikes and trikes. The parkland connects into the neighborhoods with small shared parks along the edge. Management would combine resident volunteer groups, the municipality and park workers from BASECO, paid through a park fund tax collected from the residents.









Currently most septic tanks are self-installed one per family, and are in fact simple dirt pits that are not extractable or measurable. The proper tank requires a high investment up front and extraction can be costly, so most families are forced to improvise. This leads to leeching of waste into the ground water and adds significantly to the pollution of Manila Bay.
The new sanitation network will shift from single house septic pits to a formal site-wide shared sewage processing plant. It will be located on the north edge of the site, near the current main entry road for easy access for maintenance. The centralized system piping will be installed with the slab remediation phases.
Inhabitant.com
I.Pinimg.com
• Formalized drainage with a series of curbs, lagoons and underground pipes
• Lagoons will slow water flow during times of heavy rain and provide filtration of contaminated rainwater runoff
• Formal sewage processing and piped water delivery is installed with the slab remediation
• Single per family septic tank will be replaced with a site wide sewage plant
• Water tube delivery system will transition to a formal clean drinking water system
Currently Manila Water pumps in clean water to the site for a fee, however it is distributed to homes through rubber hoses that often become damaged and contaminated. The water can be used for laundry and plants, however drinking water must be purchased at stores or water distribution kiosks, which can be costly and time consuming.
The new system will provide water through formal underground pipes installed during the site remediation and distributed from a centralized water storage tank. During the construction phases there will be temporary tanks to supply each neighborhood until the system is finalized. Additionally the water can be used for fire emergencies and in case of a municipal water shortage.

















































































The new formal drainage system is designed to slow and store water during periods of heavy rain and clean water runoff prior to it entering Manila Bay or the Pasig River. This is achieved by directing the water through semipermeable street pavers, standard street drains that direct water through plantings and vegetated lagoons with a final filtration phase in constructed wetlands and mangroves. Additional water collection will happen at the building scale with rain water collector basins. This water can then be used to water plants, do laundry, and flush toilets.




The strategy for public spaces, such as churches and multi-purpose centers, is to retain the current locations and add additional spaces wherever possible. The existing buildings will be re-built and in most cases expanded to include additional activities, such as sports and gardening. The new locations will be based on proximity and size of the neighborhoods, adding spaces where necessary. Using the Gawad Kalinga and Habitat for Humanity developments as an example, there will be a shared public multi-purpose center approximately every 1000 households.
The retention of the existing meeting points will minimize the perception of change and maintain a sense of familiarity, while the addition of new spaces will increase resident equality of access.

The economic zones follow current economically active streets and new connections that foster commercial activities in latitudinal and longitudinal directions across the site. This allows for an expanded network and opportunities to bring livelihood through neighborhoods that are currently lacking the exposure to outside visitors and residents from other areas. This will increase livelihood and foster community socializing in an expanded goods and services network. The common businesses on these streets will range from food vendors, restaurants, convenient stores and specialty services. The main activity would take place in spaces under residences, with the exception of the livelihood center and large market area, where there will be organized space for vendor stalls.
There will be three main economic entrances to the site, two of which are currently the only main points of entry. Two of the hubs will coincide with new ferry stops that will attract visitors while remaining controlled by and accessible to residents of BASECO. The two existing points are the closest to main transit roads with connections to the historic downtown. Keeping them active will maintain the memory of the connection to the site and improving their accessibility and vibrancy will bolster the draw for tourists and new locals to visit. The third main entry and ferry stop will foster vibrant economic activity while also providing an entrance to the main shoreline park and mangrove/wetlands area. Along the shore there is a choice to take a tricycle, bicycle or walk, and the park continues to a mangrove sanctuary area and around to the western edge, ending in the second ferry stop.

The livelihood center will be a contribution to the community and their livelihood activities. It is needed in BASECO in order to centralize similar income activities and promote business collaboration and alliances. The space will facilitate small businesses, providing space for making products, a market area for selling goods, co-working office spaces, meeting rooms and training spaces. The building also contains a large meeting center where all neighborhood associations can come together for planning and voting or invite government officials for presentations. The center is strategically placed close to the food market to encourage visitors from the popular location.
The bolstered economic activity will be a robust catalyst for social connections across the site, and additional focal points throughout all the neighborhoods will encourage exploration related to social activities such as sports, religion, farming, celebrations and community organization gatherings. The livelihood and nature center will provide larger spaces to facilitate education, training, outside business interests and centralized meeting places.
• New water, sanitation and recycling center
• New economic and cultural activity
• Activation of under-utilized space
• Integrated green spaces
• New points of water access



The existing food market area will be expanded to include a livelihood center with retail stores, a large nursery and a community organization hub where the various neighborhood leaders can meet.

Additional new ferry terminals connect BASECO with an existing ferry service through the Pasig river.
These will increase access to the site and provide a more efficient form of transportation for residents traveling to other parts of Metro Manila for work.

The existing community mangrove sanctuary has grown immensely in just 5 years. This will continue on a larger scale to re-populate the coastline. As well, a nature center and nursery will be erected near the original grove.


Available land will be transformed into a zero waste facility, on site sewage treatment and the main pumping station for formal potable water delivery








Available land east of the site becomes an area for the temporary housing of residents while their neighborhoods are renovated. These homes will become permanent once the site upgrading is complete.
This area also houses the main construction yard for the project and sample houses used for construction training and resident orientations.


The system of the site is based on six main points of interest. These are derived from existing economic activity, available under-utilized space, existing cultivated or natural green space and new points of water access.





















Subject Title

The master plan combines the strategies and vision for BASECO to create a cohesive and functional site system. The decisions are based on retaining, strengthening and expanding the existing functioning aspects of the site. Formalized and centralized services bolster quality of life and new community and livelihood spaces encourage social activities and organizations. These, along with a new cohesive visual landscape, will add value to BASECO and improve internal and external perceptions, leading to increased social activities and visitors.


The system of main roads that currently exists are maintained where possible and organized into five scales, from larger economic to smaller walking only. New roads are added and connections are strengthened to the site and within the site. The existing economic activity remains in place and is improved with organized spaces for vendors, housing that fosters small business activities and an expansion of economic roads throughout the site. Main entrances to the site remain in place while two new ferry stops create a dynamic approach to the area where economic activity is bolstered.
along the shore where a constructed urban wetlands and public park area is added.
The drainage system is enhanced with multi-scale roads that are all connected to the main waterways. Continuous street drains, planters and semi-permeable pavers throughout direct the water through lagoons, wetlands, mangroves, or all three prior to reaching the port, bay or river. The majority of the smaller roads, sidewalks and open public spaces are surfaced with semi-permeable pavers to slow and effectively drain water during heavy rains.


The beach area on the edge of the sand fill is retained as a recreation area for swimming. The water in this area of the bay will be cleaner due to the extra contaminant filtration achieved by the shoreline park, mangroves and wetlands. The filtration capabilities of the green edge of the Pasig River will be enhanced by organized water garbage trapping, collection and recycling taking place on the northern edge.

Existing public buildings and social gathering areas are left in place where possible, and rebuilt or expanded if necessary. Multi-purpose buildings are added in areas that are lacking access to shared public space.
The green spaces are added with consideration to the challenges experienced in the past with larger formal spaces. The new spaces are small and more manageable, connected to specific neighborhoods or in public building courtyards. Urban gardens and nurseries are placed throughout the site, often linked to the shared multi-purpose areas or near food related activities, such as next to the main food market. Lagoons are transformed into water retention ponds, and the existing mangrove sanctuary is expanded

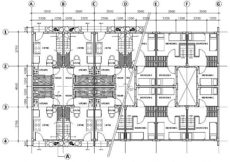
Neighborhoods are made up of multiple clusters of homes with close access to a multi-purpose center and small self managed green spaces. They are distributed in a grid pattern within areas shaped by larger perimeter roads. The smaller cluster formations will provide greater visual connections for safety while maintaining close access to main roads and site circulation. Housing blocks are lowered from 8 to 6 units per row to improve scale, and include 2-3 story multi-story walk up and 2 story row houses.

green spaces and create a destination based region supported by economic hubs and commercial activities along main roads. New connections from the city make BASECO more accessible and convenient, supporting a healthy integration with surrounding neighborhoods.


The master plan for BASECO creates a unified network of roads, housing, commercial activities and public spaces, equally distributing the socio-economic fabric throughout the site. The ferry stops provide additional options for residents and visitors to reach the area and a way to commute to work faster. The public shoreline park and nature area fill the need for more shaded






1:2000

The following plans, sections and perspectives focus on three main areas of the BASECO urban design proposal; the new ferry stop with retail stores and restaurants, the shoreline park with nature center and the market with livelihood center.





The new ferry stop taps into an existing ferry service through the Pasig river, and will provide visitors and residents with a destination for food, leisure and public green space, which is lacking in most of the city. This area will also be a gained economic opportunity for the area.
The location is positioned close to the new park area, and in clearance of shipping containers and passenger cruises in the bay. The area has varying housing types and is a primarily walking only network of streets.



Ferry Stop Section 1:100



Background: Philippines and Manila
Subject Title










The existing market area is a vibrant economic hub. The renovation will involve providing organized surrounding areas for vendors and seating for customers. Close by, the new community center and retail stores will provide a consolidated location for livelihood activities and will foster an environment for new business ideas.





Shoreline Park Section 1:100

The bay side in the South is currently used for swimming, fishing activities and on occasion trash burning. The sandy area is often flooded during heavy rains, leaving the edge of the coast prone to erosion. The planted mangroves will strengthen the edge and together with wetlands, rainwater runoff will be filtered and slowed down. The beach will remain for leisure activities, however a rigorous and profitable recycling program will prevent persistence of garbage in the area.



The process of developing housing typologies for BASECO relied heavily on observations combined with interviews conducted with the residents in 6 distinct neighborhoods during fieldwork. Observations included physical condition, materials and construction, overcrowding indicators, visible defects and makeshift solutions to overcome difficulties in the home. Questions guided residents to discuss the details of their routines, what they struggled with or enjoyed on the interior and exterior of their homes and what changes they would make immediately if they had the ability. The responses varied depending on where they lived on the site. For instance, self built lightweight homes near the beach required major repairs multiple times per year compared to minor repairs in homes professionally built by Habitat for Humanity.

The Dubai 1 development consists of single story row houses built by the municipality in 2016 after a fire in the area. The residents participated in community design meetings with the UPA and Architect Albert to plan their ideal home based on budget and space requirements. Although the People’s Plan was presented to the city, the final homes were not built with the same attributes. The residents hoped for the ability to extend vertically with a buildable 2nd story or loftable interior space. The roof height is technically sufficient for a loft, however with a thin corrugated metal roof and average high temperatures all year, the loft would be too hot to tolerate. The high roof becomes mostly wasted space, used for drying clothes or storage. The space is 20 square meters, and has cross ventilation through windows and a door to the back shared space. In back the residents improvise shade with wooden rods between the homes and plant vines. They also grow plants, collect rainwater, do their laundry and utilize it as a wet kitchen, preparing foods that require washing. Water is delivered from the municipality through rubber hoses, and there are risks of contamination. Residents buy their drinking water and boil the piped water for showers. The septic tanks are single per home and are extracted by Manila Water.



The Playa neighborhood is the area closest to Manila Bay, and often takes the brunt of the damage from storms and typhoons. The houses range mostly from 1 to 2 stories, and the majority are self built with lightweight materials.
The Playa 1 home is approximately 22m housing a family of 6, including grandparents, parents and 2 kids. The family was able to secure a location slightly farther away from the water minimizing the chance of destruction; however they still suffer from frequent flooding. They self built the structure in 2014 using concrete blocks for the walls and bamboo slats for the roof. Their septic tank is improvised and un-extractable, and they purchase potable water. Their home would be at risk of eviction if the government upholds the 20 M setback rule for the area. When asked for their thoughts on renovation, they would like to participate in the design and building of a new home, and would prefer 2 stories.



The Playa 2 home is farther from the water, and passed the 20 m setback. The family is a total of 6 members, and they moved there to avoid ongoing flooding issues where they were closer to the bay, although they still have issues with the security of their roof. They have managed to secure a formal pre-paid electricity connection, which can be costly with a long waiting time. They have an improvised septic tank made out of concrete with no options for extraction and no measurement capability. They have drums in front of their home that they fill with municipal water in case of a municipal shutoff. In addition to the husband’s work as a porter, the family runs a small sari-sari store their home, customizing the front wall with a large service window.



The Gasan house is located in the Gasan neighborhood, which was filled soon after the New Site area, approximately 15 years prior. The learned soon after that the fill was primarily garbage and hollow blocks. The 6 member family self built their home and were able to establish a pre-paid electric connection early on. Their septic tank is an improvised cement container, and they also have issues with the safety of their drinking water. Their home is a single story with loft, which provides extra floor space for storage and a larger kitchen area. They have an additional space outside in the back that functions as their wet kitchen and laundry area. For income they operate a sari-sari store and small restaurant, the husband is a trike driver and they sell vegetables at the local market. They are planning to build a second story due to heat in the loft area.



The Habitat for Humanity homes were built soon after a number of consecutive large fires. The resident, Maria, applied with Habitat, and was awarded a home with a built-in store front space. She ran a store out of her former home, and could show her ability to bring in enough income to cover the rent for the extra space. The construction took 3 months total, and she volunteered to keep track of materials and inventory on the construction site. The homes were built with a material named Hardiflex. It is an affordable material, however it is not durable and many residents have since cemented over the walls, adding a great deal of weight to the structure. Habitat built the homes as an emergency measure, to last only 5 years, however residents continue to occupy them 12 years later. Maria’s business has been continuously profitable since the school across from her was built in 2010. The main issue inside the home is flooding due to a lack of drainage on the street. The homes were built at the level of the ground, prior to the concreting of the surrounding streets, and so they are lower than the street level. This causes flooding issues, even in times of no rain, from water draining from surrounding areas. Many of the residents have raised their floors, creating a ceiling that is too low, and adds discomfort for them. The homes are all loftable and include a shared back area similar to Dubai, however the residents did not have an opportunity to contribute to the design.



The Gawad Kalinga neighborhood was built at the same time as Habitat, and also housed fire victims. The residents had no input for the design, however the tenant Evelyn was happy with final outcome. The interior is similar to the Dubai, with a high ceiling but no loft. The Gawad Kalinga organization has remained involved in the community for over 12 years, and they have strict rules regarding how the home can be modified, excluding lofts and vertical expansion. This homogeneity creates a sense of care and organization. It is a noticeable characteristic of the neighborhood in comparison to uncontrolled growth in the surrounding areas. The roofs are tied to a row of 8 homes, and this helps the strength in times of high winds. They do have issues with some flooding during rain storms. They family finished the concrete block walls and floor with cement and also had to replace the roof. GK had originally installed a shared septic tank, however it filled to capacity in 11 years, and there were issues extracting it. The family built their own hollow block improvised tank. There is a shared back area similar to Dubai, and functions as their wet kitchen and laundry area. The neighborhood has a strong community organization with a large communal space that can be rented out for special events. The space includes large shady trees and a large covered stage with a livelihood, health and food center.







Analysis of existing housing on site can be summarized into three main categories, single story built by NGO’s and government, self built multi-story on the new site and self built mostly single story structures. Spatial analysis shows the planned developments follow the common low income housing format of 8 units per block and a shared narrow back space for laundry, plants and storage.
The new site homes are organized on a grid and lot system established by the city, however they are freestanding and the back area is determined per household. The heights vary dependent on how much capital the family has, however they can safely build higher due to the concrete foundation.

The self built houses visited in the Playa and Gasan, and many other parts of the site, are mostly single story with an improvised layout based on what space and funds may be available at the time. They vary in size and may follow larger access roads or sit along smaller dirt pathways. Extended families prefer to live close, and will often build next to each other, creating larger interconnected structures.


















INCREASED BACKYARD SPACE

2
The departure point for the new housing typologies are based on a combination of NGO designs with attributes from the “New Site” and the smaller single story self built houses. By removing units from 8 to 6 maximum, residents can now recognize who is at the end of the block, creating a more comfortable human scale shared space.
Variations involve 6 or less sets and can be organized in groups and clusters. The backyards are widened to accommodate more personal space and opportunities
for water collection. They are covered with a permeable shading device that can be removed if needed during strong winds. The interchangeable configurations are the base point for the neighborhood cluster concept and allow for a dynamic mix of row and blocks. The heights of the buildings vary from single to 3 stories, with flexible options for use of interior space.
DISTRIBUTION OF GREEN SPACE IN RELATION TO HOUSING
HOUSING DIVIDED TO THE SMALLEST UNIT, GREEN SPACE RELATIVELY SPLIT
REPLACEMENT OF SMALLEST UNIT FOR ADDED GREENSPACE
GREENSPACE RE-DISTRIBUTED

APPLY GREEN CLUSTER RULE TO HOUSE CLUSTER BY REMOVING A UNIT AND REPLACING WITH GREEN
Deconstructed Green Space
ADDITION OF SMALL UNIT TO FORM COMMUNITYBUILDING WITH GREENSPACE
APPLY CLUSTER RULE TO NEIGHBORHOOD TO FORM MANAGEABLE SHARED GREE SPACE

















There are three main housing typologies that can be intermixed to form neighborhood cluster blocks. Each type includes a shared back area as the residents prefer. The green space exists between the blocks as well as within the cluster by subtracting units.
Cluster With Green: Corner Store + 2 Story Row
Single Family Row:
Placed along economic roads
Corner Store:
Placed at most economic and connector intersections
Back and Forth:
Placed in existing grid continuations near Dubai and New Site and near some economic and connector streets
The following housing typologies are design suggestions based on observations and interviews from case studies in Metro Manila and BASECO fieldwork. They follow the requirements of the Filipino building code and consider the lifestyles and space requirements of the residents. The ideas will be presented to the residents for community driven design input in a series of exercises to finalize the details of the housing and neighborhood layout.
The three core proposed housing types, “Single Family Row,” “Corner Store” and “Back and Forth,” are inspired by incremental housing concepts as developed by Architect Albert in the BASECO People’s Plan and from observations of how residents self build additions to their homes over the years. It is common for houses to increase vertically, however they are often built without technical assistance and can be structurally unstable and easily destructible.














The new typologies will encourage horizontal expansion in place of vertical growth, incorporating space for home based businesses, retail storefronts, and an increase in family size. This variation will provide engineered space that will not require improvisation and will ensure that the structure is sound. In addition, there will be a set of training houses in the construction area, and residents can learn how to correctly add on to their homes.
All three typologies allow for flexible growth and uses, making them suitable for all neighborhoods in the site. The varying sizes and uses giving residents more options of where to live and how much space they desire or can afford.




The “Single Family Row” is ideal for residents who wish to run larger stores or restaurants out of their house. The 2 story unit is built with an open ground floor on slab, which can be used for a full or partial store, with the living quarters on the second story. The upper unit is secured with a locked door, to allow residents time to transform the space as needed. The core space has a back door that leads to the shared backyard, and the upper unit has windows on both walls, allowing for proper cross ventilation. This is the largest unit size, and will be common along main economic streets where residents can take advantage of business from busy walking streets.














































































































































































The “Corner Store” has loftable ground floor units and smaller second story spaces with balconies, which can be transformed to extended living spaces if needed. The lower corner units include flexible space in the front, suitable for a storefront. The spaces range from 20 to 30m. The ground floor is a walk up in the front and the top floor is accessed by a shared staircase and walkway. The backyard is shared with single story units to allow for maximum light exposure. The block can be
as small as two corners shared with the single story row, or extend with similar two story units to form an extended corner building. The angled corner creates a dynamic activated intersection or an opportunity for a shared neighborhood green space. The flexibility of this typology offers many options for residents, whether they wish to run a home based retail story or have a large extended family.














































Back and forth house
The “Back and Forth House” is a three story walk up building with a maximum of 6 units per row. The units are 20m push and pull horizontally to allow for growth in either the front or back to 25m. The front areas of ground floor homes can be used as a small store or for bigger living spaces. The upper stories can use the area for an outdoor space or an extra room. The structure includes the slab for the extended units, only requiring the residents to build the walls if desired. The roofs slope to the shared back area where water collection, laundry and social activities can take place. There is a shade device on each floor ensure comfort while spending time outside. The overhangs of the roof and extruded spaces also provide shade in the front.







There are 5 main street typologies throughout the site, accommodating various forms of transportation, economic and social activities. The roads that allow motorized vehicles, such as cars or trikes, contain planter areas on each side, allowing runoff to filter through the plantings before entering the drainage system. The plantings also provide a buffer between the road and the sidewalk, creating a more comfortable space for pedestrians. The walking only streets are common within the neighborhood blocks, fostering a healthier environment, providing residents with a greater freedom to socialize and a safer area for kids to play.




























Phase 0 refers to preparation work that is required prior to starting new home construction. During this phase the community is involved in coordinated design exercises and meetings in order to present initial design ideas for feedback. The residents will participate in ongoing design development activities and the planning process, finalizing a consensus for housing typologies and site blocking. During construction, community leaders will actively inform residents of project specifics and personal impacts. NGO’s such as UPA, COM and the FDUP have experience in organizing this process and providing continuous communication the community
CAPACITY OF APPROX 600 TEMPORARY TO PERMANENT HOUSES
EDGE OF “NEW SITE” IS THE STARTING POINT OF THE RENOVATION PHASES
PHASES SECTIONED TO PROVIDE NECESSARY CONSTRUCTION SPACE AND IN ACCORDANCE WITH CONSTRUCTION SITE CAPACITY
The process of transitioning 17,000 families to new housing and preparing the proper foundation to safely build will require a step by step approach with multiple phases. Phasing organizes the project into planned benchmarks and allows the development to evolve, with an opportunity to learn from previous mistakes and make adjustments if necessary.
This proposal suggests at least 12 phases based on the ability to utilize an adjacent land area for temporary houses and as the main construction site. That area has a stable concrete foundation and can hold an estimated 600 homes. Some areas with more households will be split into sub-phases to ensure that all have proper housing. Preparing the construction area and building the temporary homes and would be the first priority of phase 1.
Although on a much smaller scale, the Quezon City Bistekville #4 development discussed in chapter 2 provides inspiration for successful incremental phasing that allows the co-existence of new and old structures. The proposed phases split up the overall project time line with an estimate of no longer than one year per phase. Other aspects of the project will be developed concurrently with the housing construction, such as the mangrove sanctuary and wetlands.
The NHA Smokey Mountain project in Manila provides a warning regarding how long phases take to complete. In that case residents were housed in temporary structures near the site, however the project lasted 10 years and by this time the temporary housing became a permanent informal settlement with uncontrolled growth.
The phase plan proposes the first area of the site to undergo re-fill is the location that shares an edge with New Site neighborhood, in phase 2. The New Site base is the only area of the site with properly engineered
concrete fill, and provides a stable base to attach the new concrete to. When phase 2 and 3 are completed, a large stable area will be created in order to address the south west edge that is fully exposed to the bay and that are at most risk from strong winds and flooding. Most phase areas are currently accessible by roads, however in some of the central interior areas the passages are too narrow. During phase 2 and 3, the main roads will need to be completed to provide a central access for phase 4-8. It is also possible to use the water to transport materials from the construction site, which would significantly speed up completion times in phase 2, 4, 5 and 6.
Within each phase there are sub-phases for the order of construction of the new houses to create the best situation for machinery and material access and is broken down based on how many homes can be built on the construction site at once. For instance in phase 2, it is estimated that there would be 4 sets, the first being the farthest area from the main access road, and continues towards the road.
This proposal does not include Gawad Kalinga, Dubai and New Site neighborhoods. These houses are in good condition and within compliance of the building code for maximum building heights dependent on the quality of the landfill. The homes are clear from the 3 Meter easement law, and residents have a certificate of occupancy, although this does not guarantee security of title. The homes built by Habitat for Humanity are included in phase 12, as they were intended for a short term solution, and thus are in definite need of renovation. It would be recommended that eventually all unstable landfill is re-mediated with a re-build of the houses, and this could be completed subsequent to the shown proposal phases.
The process utilized to complete each phase is a leapfrog system of moving residents to temporary housing while the area is renovated and new housing is built. At that point those living in the temporary housing will move to their new homes, and the next set of residents will move to the temporary housing.
Once the first set of residents are moved out, the foundation will be prepared by re-mediating the contaminated soil, which in some cases may require removal. The preparation of the new slab is based on creating the most stable foundation from concrete fill. Although this is a material heavy process, concrete and sand from the existing fill and non-hazardous waste from housing demolition can be re-used to help minimize consumption. Once this ground is stabilized, new housing construction can begin and the next area will be demolished.
During phase 1, while the construction site and temporary houses are being completed, the recycling center and sanitation processing area will be constructed on the North side of the site. The recycling center will be an integral part of both the deconstruction and construction phases of the project. During demolition, all discarded materials and landfill will be processed there, separating out usable material and recyclables. As well, the center would process the continued waste from residents. Usable materials could include ground concrete that can be re-mixed into new fill and plastic materials that can be melted and mixed with concrete to create the semi-permeable pavers. Plastic can also be melted and re-constituted into the framework for the pavers or flooring for indoor spaces. The pavers are used throughout the project in public spaces, sidewalks and some smaller streets. The ability to self-manufacture them would create a significant savings.
After renovation, the facility would continue to produce pavers from resident waste, selling them to the public. The facility could also include an area for independent resident recyclers, which is a very common livelihood in Manila. They could charge a small fee for space used there, and this would help fund the facility and provide an organized and contained space for the recycling activities.
The inspiration for the recycling center comes from the Holy Spirit Barangay Zero Waste Facility in Manila, where minimal space and few machines and workers are able to yield a large number of pavers which are then sold to the public and used in government owned facilities. The facility is successful due to the strict residential and commercial waste rules, with collection mandated or fines are incurred. They also control their own waste collection. The BASECO recycling center should be modeled after their organization to ensure long term success.
The construction zone is located in the area south of the temporary housing, providing close access to the water and via a new road that connects to the main site. This is where first the temporary homes will be built and then the homes that will replace the current residences. Under continuous supervision by NGO’s and the municipality, seasoned contractors will facilitate the organization of the site, and will provide professional training for residents who wish to be employed as construction workers. Those who are already skilled workers could be placed immediately with work. This system would provide steady income for a large sector of the residents, and this employment could continue through all phases, providing a great deal of financial stability for many residents.
In addition to construction, residents can be trained in supervision and management, which will both help to ensure honest construction practices and provide employment opportunities for those who may not be able to do long hours of physical labor. There would be at least one supervisor per block of units to oversee the material, construction, productivity and prevention of corruption. Their presence would create a level of trust with other residents due to social familiarity and their employment would boost the local economy. Construction services would remain after the renovation is complete, providing a resource for skilled builders in the area and opportunities for continued income.
The first homes to be built would be a sample house blocks from each typology, located between the construction zone and the temporary housing area. This would function as a tool for construction training and material testing. Once completed, it would provide an opportunity for residents to become familiarized with the new homes they will be moving into, and will facilitate acceptance of new typologies, such as multilevel apartment style buildings. These training homes will also feature various options of how the spaces can be expanded for living or commercial activities. Specialists will provide technical building assistance to ensure that house additions follow building codes and visual guidelines.
During the fieldwork in Manila a type of building practice called tunnel forming was observed in a new low income development by Phinma properties. This construction technique is extremely fast, yielding one row of 8 units per week. It involves a metal form that is poured in place and removed once the concrete is dry. The units can be cast together successively after a short curing time, and
the forms are removed and cleaned and used again. The drawback to this technique is the requirement of a large space due to the forms and the use of a crane to lift them. This space would not be available in the case of BASECO due to existing houses surrounding the build site and therefore an alternative version of this process would be required.
Other options that were researched and considered for this project include modular constructions of walls and floors that are then assembled on site and prefabrication construction that is partially assembled then finished on site. Modular and prefabricated techniques yield a high production rate and would be beneficial to speed up the construction time line.
It is concluded that due to limited space and need for speedy construction, developing a combination of tunnel forming and modular construction would be the optimal situation for this project. Standard tunnel formed units can be made in the construction area, however instead of being bound together in a single row, they would be consist of modular pieces that can be separately transported and installed on the build site with little use of extra space. Modular walls would be used for interior walls and when space may require assembly parts smaller than the single tunnel form. The construction site would have an assembly line format for modular parts, a yard for tunnel forming and an area for loading the parts on to trucks or boats. These techniques would allow for constant oversight and quality control, leading to a greater consistency of construction.

Process Diagrams










Kabalikat has accomplished many community projects and has a structured organization with an ongoing dialogue with the city. Although they are engaged with NGO’s, their memberships are not robust enough to create a long term savings scheme and strong advocacy for the site as a whole. Many residents become members during times of need such as after a hurricane or fire, however once they are assisted, they no longer participate. In this case there should be a strategy to ensure long term accountability.
The Lupang Arenda alliance provides a strong role model, where all neighborhoods are represented, and those elected representatives from each neighborhood would be responsible for their membership payments and participation. One main strength of Lupang Arenda is their constant communication with residents. This information gives the residents a sense of value for their membership fee.
The Kabalikat has also organized livelihood activities that have a great deal of potential for strong economic growth, however there have been limitations due to a lack of professional business planning advice. Thus many products are successful on a seasonal basis such as during Christmas time, and they have not been able to expand their products to outside BASECO. It would be beneficial to engage with a non-profit or use a portion membership funds to seek business planning and merchandising assistance.
The savings potential from community membership fees is strong due to the number of residents, and could lead to a community bank that micro lends to those who may not be able to secure financing. For this to succeed it would be necessary to hold members accountable to the fees on a longer term basis, not just in times of need such as rebuilding after a fire.
Home owner’s association fees should be mandatory for all families, and would provide a large savings to be used for repairs, cleaning public areas and enforcing rules and regulations.
During the BASECO interviews concerns around peace and order were mentioned by multiple residents and the Kabalikat. There are certain parts of the site that seem lawless and are controlled by gangs, creating pockets of instability. These issues would need to be addressed by the community to prevent this from continuing, and would require a strong base organization to enlist community enforcement. Currently there is a security group run by the Barangay, however they only patrol the site once, and do not reach all areas. Without a police station nearby, officers are slow to respond. The community organization could rely on volunteer watchmen and peace officers, and work with the city to establish police station within the area.
Livelihood activities and economic zones would be strengthened through a resident committee lead by representatives from each neighborhood. The central meeting place for the associations and hub for handmade goods would take place in the livelihood center and market neighborhood.
The recycling center and zero waste facility would play an important role in providing materials for items such as eco brick planters, recycled plastic pavers and soil production from biodegradables. Through a circular cycle, a large portion of waste from BASECO residents, and other refuse that flows into the bay, would be reused and re-imagined for greater savings and income possibilities.




Purchase

Handmade Goods
Sell to companies for re use

Fishing
Trike Drivers
Food Industry
Handmade Goods
Sari - Sari
Construction
Professional Services
Custodial

Services:
Custodial Trike Drivers
Mechanics
Bike Rental
Onion/Garlic Peeling
Hardware Stores
Sari-Sari
Handmade Goods
Nurseries: Mangrove Seedlings Plants
Tress
Home Construction
Carpentry
Skilled Labor
Fishing
Weaving
Food Vendor
Restaurants
Markets
This proposal offers an opportunity to develop successful informal settlement upgrades while maintaining continuous shelter for residents and including the community in the process of designing, planning and building. The housing design and neighborhood blocking considers specifics of BASECO, however the phasing, process and construction are intended to provide concepts applicable to other sites in the Philippines and worldwide.
The fieldwork conducted for this project was essential in understanding the importance of community involvement in all steps of the process, and the need for long term capacity building continued strong resident organizations after renovations are complete.
Observations and interviews conducted with residents living in varying situations provided valuable insight into challenges that affect their daily lives and the cultural, social and economic patterns that support them. Becoming familiarized with housing typologies requirements specific to the region was the driver for the new proposed housing designs. Understanding how and why residents grow their living spaces informed new adaptations of incremental housing that would promote controlled growth while providing flexibility.
The strategic planning decisions for BASECO aim to maintain and strengthen the positive aspects that are woven through the community while adding new opportunities for healthy socio-economic growth and long term success of self governed community organizations. This proposal promotes residents as the backbone of BASECO, with involvement throughout all steps of the settlement upgrade process.
The concepts that drive the BASECO informal settlement upgrade:
• Higher population capacity with increased public gathering and accessible green spaces
• Improved physical connections to the site and opportunities to visit the area
• Nature restorations that benefit the health of residents and the surroundings
• Flood control through formalized drainage, semi-permeable pavers, retention ponds and constructed wetlands
• Improved resilience and living conditions with a retrofitted slab, heavier building materials and formalized public services
• Strengthened livelihood activities, economic zones and community organizations through spatial consolidation of public spaces
• New income opportunities from the renovation process with long term positive effects on the local economy





Books:
LCHS, Lund University, 1976. Swedish Experiences of Self- Building Co- operational Consumer Research Participation. Lund, Sweden.
Housing Development and Management, Lund University, 2007. Shelter for the Urban Poor, Proposals for Improvements-Inspired By World Urban Forum III. Lund, Sweden
Woodrow Wilson International Center for Scholars, 2015. Urban Opportunities: Perspectives on Climate Change, Resilience, Inclusion, and the Informal Economy. A New Generational of Ideas.
Aravena Mori, Alejandro, Iacobelli, Andrés, 2016. Elemental: Incremental Housing and Participatory Design Manual.
Websites:
Philippine Statistics Authority: https://psa.gov.ph/
GIS Information: http://philgis.org/search/node/population%20density
Statistical Data: https://data.gov.ph/
World Bank: https://data.worldbank.org/country/ philippines?view=chart
Munich RE Hazard Mapping: https://natcatservice.munichre.com/
Statistics Information: https://Knoema.com
Lectures in Manila:
Housing Delivery System in the Philippines, Ms Agnes Agay, National Housing Authority, 2019.
Urban Planning, Governance and Shelter, Mr Virgilio Regala, Ms Lucille Chua, Quezon City Local Government Architects, 2019.
Urban Development Metro Manila, Mr Michael Tomeldan, Architect, Faculty, College of Architecture, University of the Philippines, 2019.
Landscape Design, Ms Zenaida Galingan, Landscape Architect, Faculty, College of Architecture, University of the Philippines, 2019.
Photos:
Unless noted, all photos are by Lili Smith and Kevin Keul
