

• THREE UNITS ONE HOUSE
• CARVE HOUSE
• LIBRARY CHAIR
INTERIOR
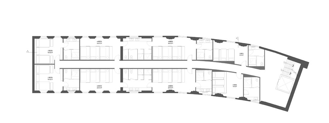
• KING’S CROSS HOSTEL
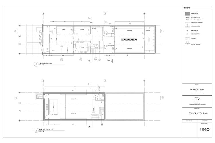
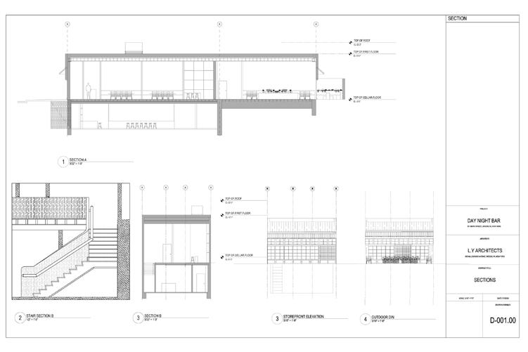
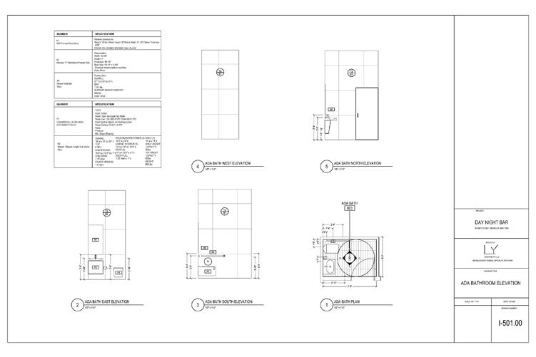
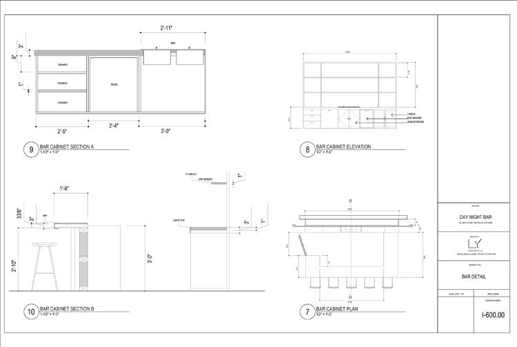
• CAFE BAR
• LINES OF BECOMING - PUBLIC SPACE
• INDEX
• THE INVISIBLE TOUCH DRAWING
INTERACTIVE INSTALLATION









![]()


• THREE UNITS ONE HOUSE
• CARVE HOUSE
• LIBRARY CHAIR
INTERIOR
• KING’S CROSS HOSTEL
• CAFE BAR
• LINES OF BECOMING - PUBLIC SPACE
• INDEX
• THE INVISIBLE TOUCH DRAWING
INTERACTIVE INSTALLATION











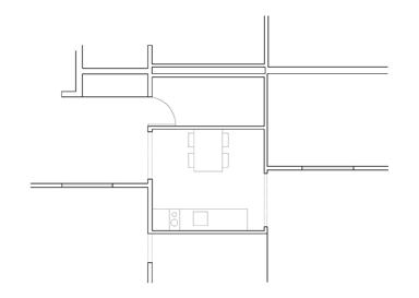
This project explores the design of a three-unit residential structure in Providence, RI, with a focus on the dining room as a central shared program. Often overlooked in contemporary housing—either merged with the living room or kitchen—the dining space holds significant cultural and social value as a place for gathering, conversation, and connection.
My earlier concept reimagines the dining room/table as both a structural and functional element, integrating it into circulation and spatial organization. Rather than being a static, designated area, the dining space becomes a versatile architectural feature that connects different programs, influencing movement and interaction between residents.




CURVE A -- DWELLING
• Studio Apartment
• 2-Bedroom Apartment
• 3-Bedroom Apartment
CURVE B -- SHARED PROGRAM
• Courtyard
• Main Circulation
CURVE C -- LEARNING
• Teaching Lab for RISD Regenerative Earth Collective
• Storage BLOCK D -- DINNING ROOM
• Dinning Space
• Rooftop Courtyard




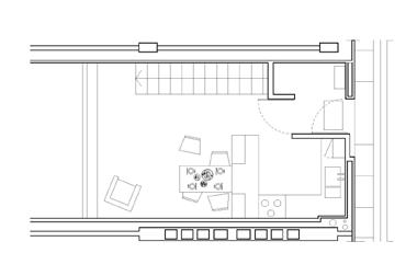
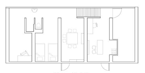
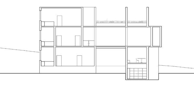
The concept employs a continuous curve and a rectilinear element as organizing principles to define and differentiate key spatial programs within the house—public spaces, private dwelling areas, and the intentionally distinct dining room. These elements serve as both formal and spatial markers, subtly guiding circulation and interaction throughout the residence. Rather than existing and constructed as a singular, uninterrupted form, the curve manifests in fragments, influencing features such as partitions, passageways, built-in furniture, and custom elements like tables, benches, cabinets, and even bathtubs. This creates a cohesive visual and spatial rhythm that reinforces connectivity while preserving the distinct character of each program. From the exterior, these elements offer visual cues about the organization of spaces within, making the structure legible from both inside and out.








This infill project is situated in the heart of Ho Chi Minh City (Saigon), Vietnam , designed to accommodate a family of five. Emphasizing the integration of the region’s warm climate, the project uses the outdoor environment , allowing for lush gardens and open spaces that encourage interaction with nature. Also to promote natural cooling and ventilation, reducing the need for artificial air conditioning.
The design approach is carving out volumes from two direction s, to create an intricate and visually flowy design that naturally guides movement and sightlines throughout the property. The space is tailored to support both communal activities and individual privacy. Two distinct building volumes are designated for shared family interactions while allowing for personal retreats. The curved forms serve as a unifying element, seamlessly connecting these two zones , fostering a cohesive and fluid spatial experience.


































This thesis reimagines traditional therapy through unique acousticbexperiences by converting urban noises into healing sounds to enhance mental wellbeing. Through this expansive and accessible method, it underscores the impact of sound, offering an alternative way of healing for the future. Over time, the installation becomes a living, breathing reflection of the community’s voice, a constantly shifting soundscape that is both created by and, in turn, influences the participants.








